アプリで簡単 物件探し 通知 共有 アプリならではの機能を使ってみる
中古マンション

GRANDE MAISON 戸山 3階 3LDK

情報提供元
SUUMO
GRANDE MAISON 戸山 清潔でスタイリッシュな白いタイル張りが印象のマンションです。
価格 8190万円  (管理費等:1万4900円/月(委託(巡回)))
修繕積立金 20,630円
交通
所在地 東京都新宿区新宿7周辺地図
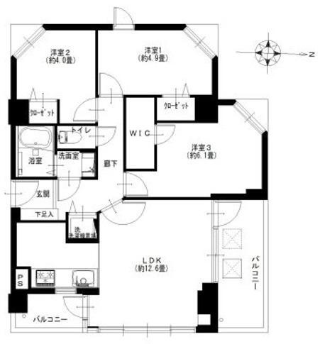
間取り 3LDK 専有面積 64.28m2(壁芯)
所在階/階数 3階/地上7階地下1階建 方位
築年月 1983年7月 築年数 築42年4ヶ月
おすすめポイント
●中古市場の全物件をお取り扱い可能!諸費用を抑えたい方はお気軽にご相談下さい!●〇戸山公園が近く、自然の癒しと都会の喧騒の調和を楽しめる新宿エリア〇大型スーパーや総合病院至近で生活に便利♪〇主要都市へスムーズにアクセスでき移動にも便利です!〇安心のオートロック・防犯カメラ完備〇家族の暮らしを叶える3LDK!12.6帖の2面採光のリビング〇浄水器・食器洗乾燥機付のシステムキッチン〇浴室乾燥機付バスルーム〇全室に窓があり採光を取り込めます〇大容量のウォークインクローゼットト●中古市場の全物件をお取り扱い可能! お客様が気になる物件、全部1度にご案内いたします!
日当り良好・角部屋・管理人巡回・24時間ゴミ出し可
お問い合わせ先
ハウスドゥ神楽坂日本新都市リアルタ(株)
物件を見たい、物件や住環境の詳しい情報やローン相談など、
お問い合わせ先
ハウスドゥ神楽坂日本新都市リアルタ(株)

詳細情報

価格 8190万円 管理費等 1万4900円/月(委託(巡回))
駐車場 敷地内(料金無) 修繕積立金 20,630円
所在地 東京都新宿区新宿7周辺地図
交通
  • 都営大江戸線 東新宿駅 徒歩1分乗換案内
  • JR山手線 新大久保駅 徒歩10分乗換案内
  • 東京メトロ丸ノ内線 新宿三丁目駅 徒歩14分乗換案内
物件名 GRANDE MAISON 戸山
築年月(築年数) 1983年7月(築42年4ヶ月) 間取り 3LDK
総戸数 32戸 専有面積 64.28m2(壁芯)
所在階/階数 3階/地上7階地下1階建 バルコニー面積 9.4m2
方位 建物構造 RC
管理形態 委託管理
維持費等 土地権利 所有権
用途地域 商業地域 借地期間・地代
現況 引渡可能年月 相談
情報提供元 SUUMO [030Z78515746] 情報公開日
情報更新日 次回更新予定日 随時

設備など

ペット相談可 - 即入居可 - 南向き -
角部屋 駐車場空き有り トランクルーム -
オートロック - 宅配ボックス - 浴室乾燥機
床暖房 - ウォークインクローゼット 管理人常駐 -
最上階 - 2階以上 タワーマンション -
設備 バルコニー・トイレ・収納スペース・エレベーター・浴室乾燥機・ウォークインクローゼット・温水洗浄便座・システムキッチン・モニタ付インターホン・風呂・2面バルコニー・衣類乾燥機・食器洗浄乾燥機・リフォーム・駐輪場・リノベーション
リフォーム履歴 2025年9月完了
 水回り設備交換:キッチン・浴室・トイレ
 内装リフォーム:壁・床・全室
 その他:玄関人感センサー 他
※年月は一番古いリフォーム箇所を表します
リノベーション履歴 -
備考 <物件名>GRANDE MAISON 戸山/<駐車場>敷地内/委託(巡回)/<土地権利>所有権/<間取り>3LDK/<リフォーム>●リフォーム:2025年9月完了(水回り設備交換:キッチン・浴室・トイレ、内装リフォーム:壁・床・全室、その他:玄関人感センサー 他)※年月は一番古いリフォーム箇所を表します/<用途地域>1種住居あり/<特徴>【お値段改定!】リノベーション済の3LDK♪陽当り通風良好♪東新宿駅1分♪、2沿線以上利用可・スーパー 徒歩10分以内・市街地が近い・内装リフォーム・システムキッチン
販売戸数:1戸/管理費等帯:14900円/修繕積立金帯:20630円
特記事項 日当り良好・角部屋・管理人巡回・24時間ゴミ出し可

省エネ性能

エネルギー消費性能 -
断熱性能 -
目安光熱費 -

東京都新宿区新宿7 周辺地図情報

地図
※地図上に表示される物件の位置は付近住所に所在することを表すものであり、実際の物件所在地とは異なる場合がございます。
   正確な物件所在地は、取扱い不動産会社にお問い合わせください。
物件を見たい、物件や住環境の詳しい情報やローン相談など、
お問い合わせ先
ハウスドゥ神楽坂日本新都市リアルタ(株)

不動産会社情報

お問い合わせ先 商号:ハウスドゥ神楽坂日本新都市リアルタ(株)
免許番号:東京都知事(3)第096605号
所在地:東京都新宿区白銀町1-17 東邦神楽坂ビル2階
TEL:0120-195858
取引態様:媒介
管理コード:SG3415-NA
共有する
QRコード
物件を見たい、物件や住環境の詳しい情報やローン相談など、
お問い合わせ先
ハウスドゥ神楽坂日本新都市リアルタ(株)

新宿区の暮らしデータ

人口などの統計情報

世帯数 222461世帯
人口総数 349226人
転入者数 46749人
転入率(人口1000人当たり)
133.86人
転出者数 41291人
転出率(人口1000人当たり)
118.24人
土地平均価格
住宅地
875917円/m2
商業地
5390517円/m2

結婚・育児の助成金

子育て関連の独自の取り組み (1)新宿区子ども未来基金(子どもの育ちを支援する区民等の自主的な活動への支援等)。(2)しんじゅく子育て応援ナビ(スマートフォンによる子育て情報の提供)。(3)産前産後支援事業(ヘルパーや産後ドゥーラの派遣)。(4)ホームスタート(先輩ママ、パパが家庭を訪問し子育て支援)。(5)多世代近居同居助成(近居・同居にかかる子世帯と親世帯の費用を一部助成)。(6)次世代育成転居助成(子育て世帯へ民間賃貸住宅への住み替えにかかる費用を一部助成)。(7)ひとり親家庭休養ホーム。(8)ベビーシッター利用支援。(9)障害児通所支援の利用者負担を軽減。(10)障害児通所施設における給食費の負担を軽減。
出産祝い あり
公立保育所数 11所(うち0歳児保育を実施している保育所:11所)
私立保育所数 54所(うち0歳児保育を実施している保育所:39所)
保育所入所待機児童数 0人
認定こども園数 17園 預かり保育実施園数 公立:4園 私立:9園
学校給食 【小学校】完全給食【中学校】完全給食
公立中学校の学校選択制 実施(新入学時のみ)
子ども・学生等医療費助成<通院>対象年齢 18歳3月末まで 子ども・学生等医療費助成<入院>対象年齢 18歳3月末まで

新宿区の治安・ごみ収集情報

公共料金・インフラ

ガス料金(22m3使用した場合の月額) 東京瓦斯株式会社(東京地区等)3926円
水道料金(口径20mmで20m3の月額) 東京都水道局2816円
下水道料金(20m3を使用した場合の月額) 東京都下水道局2068円
下水道普及率 100.0%

安心・安全

建物火災出火件数 168件
人口10000人当たり
4.81件
刑法犯認知件数 5537件
人口1000人当たり
15.85件
ハザード・防災マップ あり

医療

一般病院総数 13ヶ所
一般診療所総数 766ヶ所
小児科医師数 237人
小児人口10000人当たり
78.56人
産婦人科医師数 153人
15~49歳女性人口1万人当たり
17.39人
介護保険料基準額(月額) 6600円

ごみ

家庭ごみ収集(可燃ごみ) 無料
備考
日量10kgを超える臨時のごみは有料。
家庭ごみの分別方式 3分別14種〔燃やすごみ 金属・陶器・ガラスごみ(陶器・刃物・ガラス類、蛍光ランプ・水銀体温計・水銀血圧計、ライター) 資源(資源プラスチック[製品プラスチック・容器包装プラスチック]、古紙[新聞、チラシ・雑誌・本、紙パック、段ボール]、びん、缶、ペットボトル、スプレー缶・カセットボンベ、乾電池)〕 拠点回収:使用済小型電子機器等 紙パック 白色トレイ 乾電池
家庭ごみの戸別収集 一部実施(高齢者・障害者世帯等のごみ出しを支援)
粗大ごみ収集 あり
備考
有料。事前申込制。家庭から排出される粗大ごみに限る。大きさにより400~3,200円。
生ごみ処理機助成金制度 なし
上限金額
-
上限比率
-

新宿区の住まいの給付金

中古購入

利子補給制度 なし
補助/助成金制度 なし

増築・改築・改修

利子補給制度 なし
補助/助成金制度 あり
上限金額
(1)50万円(2)300万円
備考
(1)【アスベスト対策費助成金】吹付アスベストの除去等工事費用の2/3相当。一戸建て住宅は上限50万円。分譲マンション等は上限300万円。他要件あり。(2)【建築物等耐震化支援事業】2000年5月31日以前着工の木造の住宅、共同住宅等は、補強設計に基づき耐震改修工事を行う場合、300万円(1981年5月31日以前着工の非木造は4,000万円)を上限とし費用の一部を助成。他要件あり。
暮らしデータ提供元:生活ガイド.com
※行政機関により公表していない地域及びデータがございます。東京23区以外の政令指定都市は、市全体のデータとして表示しています。
※提供データには細心の注意を払っておりますが、調査後に変更がある場合があります。 最新の情報につきましては各市区役所までお問い合わせいただくか、自治体HPなどをご確認ください。

この物件を見た人はこんな物件も見ています

OCN×ドコモ光新規お申込みで合計最大137,280円相当おトク!特典の内訳・適用条件など詳細はこちら

他のエリアから探す

新宿区の詳細地域から中古マンション物件を探す

愛住町赤城下町赤城元町荒木町市谷加賀町市谷砂土原町市谷左内町市谷田町市谷台町市谷仲之町市谷八幡町市谷本村町市谷薬王寺町市谷柳町榎町大久保改代町神楽坂歌舞伎町上落合河田町北新宿北町北山伏町左門町信濃町下落合白銀町新小川町新宿水道町須賀町住吉町高田馬場箪笥町大京町築地町筑土八幡町富久町戸山内藤町中井中落合中里町納戸町西落合西五軒町西新宿西早稲田二十騎町払方町原町馬場下町東五軒町百人町袋町舟町弁天町南榎町南町南元町南山伏町山吹町矢来町横寺町余丁町四谷四谷坂町四谷三栄町若葉若松町若宮町早稲田鶴巻町早稲田町

近辺の市区から探す

川口市千代田区中央区港区文京区台東区墨田区江東区品川区目黒区世田谷区渋谷区中野区杉並区豊島区北区荒川区板橋区練馬区足立区武蔵野市

周辺の駅から探す

山手線
渋谷原宿代々木新宿新大久保高田馬場目白池袋大塚
都営地下鉄大江戸線
都庁前新宿西口東新宿若松河田牛込柳町牛込神楽坂飯田橋
東京メトロ丸ノ内線
赤坂見附四ツ谷四谷三丁目新宿御苑前新宿三丁目新宿西新宿中野坂上新中野

住宅ローンの返済額一覧

物件価格 8190万円に対して、年率 で、頭金 の場合
↓ボーナス 35年間 30年間 25年間 20年間 15年間 10年間
0万円 199,621円/月 230,076円/月 272,741円/月 336,771円/月 443,532円/月 657,121円/月
5万円 190,535円/月 221,101円/月 263,874円/月 328,012円/月 434,880円/月 648,575円/月
10万円 181,450円/月 212,125円/月 255,007円/月 319,253円/月 426,229円/月 640,030円/月
15万円 172,364円/月 203,149円/月 246,140円/月 310,495円/月 417,577円/月 631,485円/月
20万円 163,279円/月 194,173円/月 237,274円/月 301,736円/月 408,926円/月 622,940円/月
25万円 154,193円/月 185,198円/月 228,407円/月 292,977円/月 400,274円/月 614,395円/月
30万円 145,108円/月 176,222円/月 219,540円/月 284,219円/月 391,623円/月 605,850円/月
支払い利息合計 6,962,590円~ 5,946,080円~ 4,937,700円~ 3,937,520円~ 2,945,090円~ 1,960,740円~
※元利均等返済方式で試算しています。 「円」の単位以下の端数金額は「切り捨て」として計算しております。
※金利は、固定金利として計算しております。
※上記の住宅ローン返済額一覧は、あくまで試算であり、将来の金利動向により、実際のご返済額とは異なります。
※ボーナス支払総額が総支払額の50%を超えている場合、上記の表では「ローン不可」となります。
※住宅ローン返済額一覧の数値は、住宅ローンのお申し込みやご融資をお約束するものではございません。
物件を見たい、物件や住環境の詳しい情報やローン相談など、
お問い合わせ先
ハウスドゥ神楽坂日本新都市リアルタ(株)

掲載情報の著作権は提供元企業等に帰属します。
Copyright:(C) 2025 Recruit Co., Ltd.
アプリで簡単 物件探し 大手不動産サイトの情報から一括検!プッシュ通知で物件を見逃さない
App Storeからダウンロード Google Playで手に入れよう QRコード