アプリで簡単 物件探し 通知 共有 アプリならではの機能を使ってみる
RSS

練馬区(東京都)の中古一戸建て・中古住宅 物件一覧

東京都練馬区の中古住宅、中古一軒家などの中古一戸建て物件をご紹介します。中古物件、中古一軒家、中古建売住宅などの中古一戸建て物件情報を探すならgoo住宅・不動産。価格・建物面積・土地面積・間取り・人気のこだわり条件から物件を簡単検索。理想のマイホーム探しをgoo住宅・不動産がサポートします。

探したい物件のエリア・検索条件を変更して再検索

エリア
検索条件
626 並び替え
12345 … 16 次へ
チェックした物件を一括で
選択 物件タイプ
画像
所在地/交通
(駅/バス 所要時間)
価格 間取り
建物面積
土地面積 築年月
築年数
new

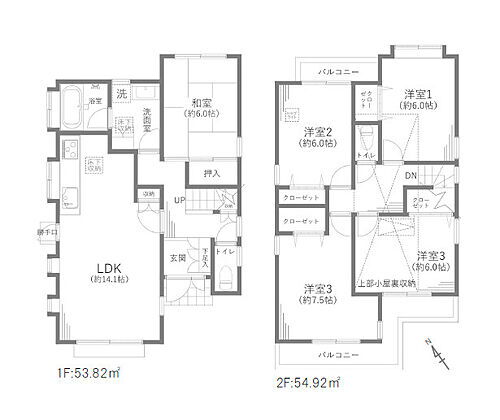
東京都練馬区春日町1 7,399万円 4SLDK

  • 中古住宅
  • 東京都練馬区春日町1 中古住宅
    間取り図
東京都練馬区春日町1
都営大江戸線 練馬春日町駅 徒歩7分
都営大江戸線 豊島園駅 徒歩13分
東京メトロ有楽町線 平和台駅 徒歩19分
7,399
万円
4SLDK
110.53m2
81.48m2 2001年2月(築25年4ヶ月)
  • 3階建て以上
  • 都市ガス
  • 駐車場あり
  • システムキッチン
  • 浴室乾燥機
  • 所有権
おすすめポイント
⌒⌒⌒ オススメポイント ⌒⌒⌒■令和7年12月内装リフォーム済!■4LDK+納戸♪■木造3階建♪■食器洗浄乾燥機・浴室乾燥機付!■都営大江戸線「練馬春日町」駅まで徒歩7分☆⌒⌒⌒⌒ リフォーム内容 ⌒⌒⌒⌒■システムキッチン/ユニットバス/洗面化粧台/トイレ交換■各居室フローリング/各室クロス張替、ハウスクリーニング※その他箇所は現地にて確認してください\ ご覧頂きまして誠にありがとうございます /練馬区・西東京市・東久留米市の不動産購入や売却は、福屋不動産販売 石神井公園へお任せください。お問合せ・ご来店をスタッフ一同心よりお待ちしております。
new

東京都練馬区富士見台4 1億480万円 3SLDK

  • 中古住宅
  • 東京都練馬区富士見台4 中古住宅
    間取り図
東京都練馬区富士見台4
西武池袋線 練馬高野台駅 徒歩7分
西武池袋線 富士見台駅 徒歩16分
1億480
万円
3SLDK
97.5m2
163.39m2 2023年7月(築2年11ヶ月)
  • 2階建て
  • 都市ガス
  • 駐車場あり
  • 駐車2台
  • システムキッチン
  • 床暖房
  • 浴室乾燥機
  • 所有権
おすすめポイント
ご内覧予約承ります♪気軽にお問合せください^o^○●○●○●○●○●○●○●○●○●○●○●○●○●○● ~イズミホームはアットホームな地域密着型の会社~弊社は大泉学園駅前の商店街に店舗を構えた地域密着型のお店です!不動産の情報・知識や物件のことはもちろん、エリアの特性や住み心地、飲食店、スーパー、学校など生活に便利な情報もご提供させていただきます♪不動産のことや住宅ローンのこと等なんでもお気軽にご相談下さい。丁寧にご対応させていただきます^o^○●○●○●○●○●○●○●○●○●○●○●○●○●○●
new

東京都練馬区大泉学園町7 2,180万円 4LDK

  • 中古住宅
  • 東京都練馬区大泉学園町7 中古住宅
    間取り図
東京都練馬区大泉学園町7
西武池袋線 大泉学園駅 バス8分/「都民農園」バス停 停歩3分
2,180
万円
4LDK
101.02m2
210.84m2 1977年7月(築48年11ヶ月)
  • 2階建て
  • 都市ガス
  • システムキッチン
  • 所有権
  • 即入居可
おすすめポイント
■即日ご内覧頂けます♪各種資料請求・ご内覧のご予約はお気軽に【03-5797-7991】までお問合せください!
new

東京都練馬区大泉町5 6,980万円 4LDK

  • 中古住宅
  • 東京都練馬区大泉町5 中古住宅
    間取り図
東京都練馬区大泉町5
西武池袋線 大泉学園駅 徒歩24分
6,980
万円
4LDK
102.26m2
115m2 2018年2月(築8年4ヶ月)
  • 2階建て
  • 南道路
  • 都市ガス
  • 駐車場あり
  • 設計住宅性能評価付
  • 所有権
おすすめポイント
◆衣類から季節家電まで、たっぷりしまえるウォークインクローゼット。◆浴室窓により、スムーズな通風と採光が可能です。◆1階と2階のそれぞれにトイレを配置し、階段の上り下りを気にせず快適な住環境を実現。◆徒歩5分圏内に大型スーパーや飲食店、ホームセンターが揃う「タイムパフォーマンス」の良い立地。大泉インター近くで、お車での外出が多い方にもおすすめのエリアです。

東京都練馬区小竹町2 1億3,980万円 4LDK

  • 中古住宅
  • 東京都練馬区小竹町2 中古住宅
    間取り図
東京都練馬区小竹町2
東京メトロ有楽町線 小竹向原駅 徒歩3分
東京メトロ副都心線 小竹向原駅 徒歩3分
西武有楽町線 小竹向原駅 徒歩3分
1億3,980
万円
4LDK
102.43m2
110m2 2017年1月(築9年5ヶ月)
  • 2階建て
  • 都市ガス
  • 駐車場あり
  • 床暖房
  • 浴室乾燥機
  • 所有権
おすすめポイント
-物件のおすすめポイント-▼立地・東京メトロ有楽町線・副都心線「小竹向原」徒歩3分 他・第一種低層住居専用地域▼特徴・三井不動産レジデンシャル(株)旧分譲・吹抜け仕様のLDKは約18.3帖、DEN約4.6帖が隣接・食洗機搭載の対面式キッチン、食器棚有・WIC約3.0帖など収納豊富・小屋裏収納は固定階段で昇降可能▼設備・床暖房(LD・DEN)・ミストサウナ付浴室乾燥機・EV自動車用コンセント▼周辺環境・練馬区立小竹小学校 徒歩5分(約400m)■ ご希望の住まい探しをお手伝いします ━━━━━・・・物件の詳細・ご相談はお気軽にお問い合わせください。

東京都練馬区練馬1 2億4,800万円 3SLDK

  • 中古住宅
  • 東京都練馬区練馬1 中古住宅
    間取り図
東京都練馬区練馬1
西武池袋線 練馬駅 徒歩3分
都営大江戸線 練馬駅 徒歩4分
2億4,800
万円
3SLDK
251.19m2
172.14m2 1983年6月(築43年)
  • 3階建て以上
  • 南道路
  • 都市ガス
  • ルーフバルコニー
  • 床暖房
  • 所有権
おすすめポイント
-物件のおすすめポイント-▼立地・西武池袋・豊島線「練馬」徒歩3分・都営大江戸線「練馬」徒歩4分▼一部賃貸中・1・3階賃貸中※現在賃貸中につき賃貸借契約の引継ぎを要します※賃料収入は将来にわたって得られることを保証するものではありません▼特徴・居宅部分の各洋室・キッチン・LDKに床暖房敷設・1階に電動シャッター有・2・3階に南向きバルコニーを設置・屋上にはルーフバルコニー有▼周辺環境・ライフココネリ練馬駅前店 徒歩4分(約300m)■ ご希望の住まい探しをお手伝いします ━━━━━・・・物件の詳細・ご相談はお気軽にお問い合わせください。

東京都練馬区南大泉3 8,980万円 4SLDK

  • 中古住宅
  • 東京都練馬区南大泉3 中古住宅
    間取り図
東京都練馬区南大泉3
西武池袋線 保谷駅 徒歩4分
8,980
万円
4SLDK
128.65m2
135.37m2 2008年9月(築17年9ヶ月)
  • 2階建て
  • 都市ガス
  • 駐車場あり
  • システムキッチン
  • 床暖房
  • 所有権
おすすめポイント
-物件のおすすめポイント-▼立地・西武池袋・豊島線「保谷」徒歩4分・第一種低層住居専用地域内▼特徴・LDは3面に採光を確保・お料理中も会話が弾む対面式キッチン、勝手口有・1階和室は掘りごたつ・床の間有、家事室約2.5帖が隣接・LD・1階和室に面するウッドデッキを設置・2箇所に南向きバルコニー有・納戸約2.5帖等、室内随所に収納有・駐車スペース有(車種による)▼設備・浴室は1618サイズ・食器洗乾燥機・床暖房(LD・約2.5帖の家事室)■ ご希望の住まい探しをお手伝いします ━━━━━・・・物件の詳細・ご相談はお気軽にお問い合わせください。

東京都練馬区貫井2 1億3,900万円 3LDK

  • 中古住宅
  • 東京都練馬区貫井2 中古住宅
    間取り図
東京都練馬区貫井2
西武池袋線 中村橋駅 徒歩4分
都営大江戸線 練馬駅 徒歩20分
西武池袋線 練馬駅 徒歩20分
1億3,900
万円
3LDK
112.12m2
104.5m2 2023年5月(築3年1ヶ月)
  • 2階建て
  • 南道路
  • 都市ガス
  • ルーフバルコニー
  • システムキッチン
  • 浴室乾燥機
  • 所有権
おすすめポイント
【おすすめポイント】・ミーレ社の食洗機付き、セラミックカウンターアイランドキッチン・16×18サイズの浴室、洗面所と脱衣所が分かれております・パントリー、小屋裏、ファミリークローク、シューズインクローク等収納力豊富・住友不動産(株)旧施工、2023年築の拘りの注文住宅・土地建物100㎡超のゆとりある広さ・LDK23帖、寝室7.8帖と広々空間に・90を超えるお店で賑わう「サンツ中村商店街」まで徒歩1分、スーパーや駅までも徒歩1~4分の距離に・1階開口部は電動シャッター付き・2階トイレは手洗いカウンター付き・水廻り、リビング、バルコニーがワンフロア、生活動線◎

東京都練馬区練馬1 2億1,980万円 3LDK

  • 中古住宅
  • 東京都練馬区練馬1 中古住宅
    間取り図
東京都練馬区練馬1
西武池袋線 練馬駅 徒歩4分
都営大江戸線 練馬駅 徒歩6分
都営大江戸線 豊島園駅 徒歩7分
2億1,980
万円
3LDK
251.11m2
151.31m2 2007年1月(築19年5ヶ月)
  • 3階建て以上
  • 都市ガス
  • 所有権

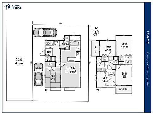
東京都練馬区春日町4 7,980万円 4LDK

  • 中古住宅
  • 東京都練馬区春日町4 中古住宅
    間取り図
東京都練馬区春日町4
都営大江戸線 練馬春日町駅 徒歩5分
7,980
万円
4LDK
90.71m2
92.62m2 2020年7月(築5年11ヶ月)
  • 2階建て
  • 都市ガス
  • 駐車場あり
  • システムキッチン
  • 浴室乾燥機
  • 所有権
おすすめポイント
閑静な住宅街に位置する2020年7月築の戸建て物件でございます。南向きリビングダイニング床暖房あり広々としたリビングに充実設備のキッチン全居室に収納スペースを備えた4LDKタイプゆとりある1616サイズのバスルーム平置き駐車場あり(ミニバンが入っております)徒歩圏内にドラッグストア・スーパー・コンビニなど利便性に優れた住環境

東京都練馬区桜台4 9,870万円 3SLDK

  • 中古住宅
  • 東京都練馬区桜台4 中古住宅
    間取り図
東京都練馬区桜台4
西武池袋線 桜台駅 徒歩5分
都営大江戸線 練馬駅 徒歩11分
西武池袋線 練馬駅 徒歩11分
9,870
万円
3SLDK
94.57m2
110.1m2 2017年12月(築8年6ヶ月)
  • 2階建て
  • 都市ガス
  • システムキッチン
  • 床暖房
  • 浴室乾燥機
  • 所有権
  • バリアフリー
おすすめポイント
・西武池袋線「桜台」駅まで徒歩5分 「氷川台」と「練馬」駅への利用も可能・平成29年12月築の三井不動産施工の旧分譲住宅 ゆとりある街並みと美しい外観デザインが特徴・耐震のある2×4工法・前面道路はゆとりある幅員6.0mの道路 ~車の出し入れも容易に行えます~・室内きれいにお使いです♪・全居室二面採光の間取り設計・各居室収納の他、階段下収納や1階部分に納戸も有り収納豊富・キッチンには、シンクのお手入れや洗い物に便利なシャワーハンド付き水栓設置、食洗機付・窓ガラスは、全てペアガラスを採用・LDに床暖房を設置・浴室はミストサウナと換気乾燥あり・良質工房 etc

東京都練馬区桜台4 9,870万円 3SLDK

  • 中古住宅
  • 東京都練馬区桜台4 中古住宅
    間取り図
東京都練馬区桜台4
西武池袋線 桜台駅 徒歩5分
都営大江戸線 練馬駅 徒歩11分
西武池袋線 練馬駅 徒歩11分
9,870
万円
3SLDK
94.57m2
110.1m2 2017年12月(築8年6ヶ月)
  • 2階建て
  • 都市ガス
  • 駐車場あり
  • システムキッチン
  • 床暖房
  • 浴室乾燥機
  • 所有権
おすすめポイント
-物件のおすすめポイント-▼立地・東京メトロ有楽町線「氷川台」徒歩15分 他・三井不動産レジデンシャル旧分譲地・第一種低層住居専用地域▼特徴・全居室南面採光を確保・吹抜けのある明るいLD、リビング階段設計・作業効率の良いL字型対面式キッチン・キッチン近くに洗面室有、家事動線良好▼設備・床暖房(LDK)・ミストサウナ・浴室換気暖房乾燥機・複層ガラス▼周辺環境・あまいけ練馬店 徒歩5分(約400m)・練馬区立開進第二小学校 徒歩4分(約290m)■ ご希望の住まい探しをお手伝いします ━━━━━・・・物件の詳細・ご相談はお気軽にお問い合わせください。

東京都練馬区羽沢2 1億2,540万円 5SLDK

  • 中古住宅
  • 東京都練馬区羽沢2 中古住宅
    間取り図
東京都練馬区羽沢2
西武有楽町線 新桜台駅 徒歩5分
東京メトロ有楽町線 小竹向原駅 徒歩11分
西武池袋線 江古田駅 徒歩12分
1億2,540
万円
5SLDK
147.84m2
145.43m2 1984年12月(築41年6ヶ月)
  • 2階建て
  • 南道路
  • 都市ガス
  • 浴室乾燥機
  • 所有権
  • リフォームリノベーション
おすすめポイント
■3駅3路線利用可能です。通勤・通学に便利な立地です。・西武有楽町線「新桜台」駅まで徒歩5分・西武池袋線「江古田」駅徒歩12分・有楽町線「小竹向原」駅徒歩11分・南側公道に面す・間口約8m・南向きの為、日当たり良好です。・宅地内は高低差のないフラットな地形・有効土地面積:約139.61m2(約42.23坪)の整形地・カースペースあり・第1種低層住居専用地域の閑静な住宅地・建蔽率50%、容積率160%・洗面所2か所あり・2階にシャワールームあり・2階洋室にトップライトあり・西側面は各居室に出窓あり

東京都練馬区羽沢1 1億4,000万円 5LDK

  • 中古住宅
  • 東京都練馬区羽沢1 中古住宅
    間取り図
東京都練馬区羽沢1
西武有楽町線 新桜台駅 徒歩5分
西武池袋線 江古田駅 徒歩7分
東京メトロ副都心線 小竹向原駅 徒歩10分
1億4,000
万円
5LDK
162.71m2
165.31m2 1996年11月(築29年7ヶ月)
  • 2階建て
  • 南道路
  • 都市ガス
  • 所有権
おすすめポイント
□3路線3駅利用可能西武有楽町線「新桜台」駅徒歩5分西武池袋線「江古田」徒歩7分東京メトロ有楽町・副都心線「小竹向原」駅徒歩10分□南道路、陽当たり良好!□接道間口:約8.0m□土地面積:165.31㎡(50.00坪)□建物面積:162.71㎡(49.21坪)□間取り:5LDK+納戸□平成8年11月築□建築会社:ミサワホーム株式会社

東京都練馬区下石神井4 1億4,800万円 5LDK

  • 中古住宅
  • 東京都練馬区下石神井4 中古住宅
    間取り図
東京都練馬区下石神井4
西武新宿線 上井草駅 徒歩5分
1億4,800
万円
5LDK
208.95m2
231.4m2 1991年9月(築34年9ヶ月)
  • 2階建て
  • 都市ガス
  • システムキッチン
  • 所有権
おすすめポイント
-物件のおすすめポイント-▼立地・西武新宿線「上井草」徒歩5分・第一種低層住居専用地域の閑静な住宅街▼特徴・南向きの明るいLDKは約12.4帖・住空間を広く使える壁付キッチン・約6.0帖の洋室はLDとホールの2WAY仕様・各洋室に収納スペース有・賃貸部分は1K×5部屋・室内丁寧にお使いです▼設備・食器洗乾燥機・温水洗浄便座▼周辺環境・マルエツ上井草駅前店 徒歩3分(約235m)・セブンイレブン練馬下石神井2丁目店 徒歩4分(約300m)■ ご希望の住まい探しをお手伝いします ━━━━━・・・物件の詳細・ご相談はお気軽にお問い合わせください。

東京都練馬区練馬1 1億6,280万円 3SLDK

  • 中古住宅
  • 東京都練馬区練馬1 中古住宅
    間取り図
東京都練馬区練馬1
西武池袋線 練馬駅 徒歩5分
都営大江戸線 練馬駅 徒歩6分
1億6,280
万円
3SLDK
182.02m2
121.42m2 1998年3月(築28年3ヶ月)
  • 3階建て以上
  • 都市ガス
  • システムキッチン
  • 所有権
おすすめポイント
-物件のおすすめポイント-▼立地・西武池袋・豊島「練馬」徒歩5分・都営大江戸線「練馬」徒歩6分▼特徴・軽量鉄骨造3階建の賃貸併用住宅(1K×2戸、3SSLDK)・LDに南向きバルコニー隣接、陽当り・通風良好・3階キッチンは調理に集中しやすい壁付型、出窓付き・南側に面する明るい洋室・足を伸ばしてくつろげる和室付き・2・3階にサービススペースを設置▼周辺環境・ライフココネリ練馬駅前店 徒歩5分(約400m)・練馬区立南町小学校 徒歩1分(約70m)■ ご希望の住まい探しをお手伝いします ━━━━━・・・物件の詳細・ご相談はお気軽にお問い合わせください。

東京都練馬区上石神井1 1億7,280万円 6LDK

  • 中古住宅
  • 東京都練馬区上石神井1 中古住宅
    間取り図
東京都練馬区上石神井1
西武新宿線 上石神井駅 徒歩5分
1億7,280
万円
6LDK
210.93m2
120.44m2 2016年6月(築10年)
  • 3階建て以上
  • 都市ガス
  • 駐車場あり
  • 床暖房
  • 浴室乾燥機
  • 所有権
おすすめポイント
~パナホーム施工の高耐久住宅 2世帯住宅としても利用可~◆担当者からのオススメポイント■室内大変丁寧にお使いです。■水回りが1・2階にあり2世帯住宅としての利用可能■地下に約5.7帖の納戸有■浴室は壁温水システムを設け、冬でも暖かく利用できます。■天候の影響を受けづらいビルトインガレージには2台駐車可能■2階LDは約19.2帖あり、3面採光のため明るい空間となります。■玄関スペースが広く荷物が多い場合の外出や宅配便の受け取り時などに快適に運べる■1階にはシューズインクローゼット、3階に約3.6帖のウォークインクローゼット有

東京都練馬区上石神井南町 4,980万円 3LDK

  • 中古住宅
  • 東京都練馬区上石神井南町 中古住宅
    間取り図
東京都練馬区上石神井南町
西武新宿線 上石神井駅 徒歩6分
4,980
万円
3LDK
74.52m2
67.81m2 2006年2月(築20年4ヶ月)
  • 3階建て以上
  • 都市ガス
  • 駐車場あり
  • システムキッチン
  • 床暖房
  • 浴室乾燥機
  • 所有権
  • 即入居可
おすすめポイント
■西武新宿線「上石神井」駅徒歩6分■交通量の少ない閑静な住宅街に立地■3LDK+カースペース■室内は大変綺麗にお使いです■現在空室の為、お気軽にご内見いただけます■大型スーパー至近

東京都練馬区上石神井南町 4,980万円 2SLDK

  • 中古住宅
  • 東京都練馬区上石神井南町 中古住宅
    間取り図
東京都練馬区上石神井南町
西武新宿線 上石神井駅 徒歩6分
4,980
万円
2SLDK
74.52m2
67.81m2 2006年2月(築20年4ヶ月)
  • 3階建て以上
  • 都市ガス
  • システムキッチン
  • 床暖房
  • 浴室乾燥機
  • 所有権
  • 即入居可
おすすめポイント
-物件のおすすめポイント-▼立地・西武新宿線「上石神井」徒歩6分▼特徴・プライバシーを保ちやすい2階リビング設計・LDK約14.5帖は3面採光で通風良好・食洗機搭載の対面式キッチン・納戸約7.0帖は窓・収納付で多目的に利用可・カースペース1台分有(車種制限有)▼設備・床暖房(LDK・納戸)・浴室乾燥機・1階・3階にトイレ有・複層ガラス▼周辺環境・いなげや練馬上石神井南店 徒歩4分(約320m)※敷地の一部は建ぺい率60%、容積率200%■ ご希望の住まい探しをお手伝いします ━━━━━・・・物件の詳細・ご相談はお気軽にお問い合わせください。
チェックした物件を一括で

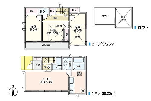
東京都練馬区小竹町1 5,480万円 2SLDK

  • 中古住宅
  • 東京都練馬区小竹町1 中古住宅
    間取り図
東京都練馬区小竹町1
西武池袋線 江古田駅 徒歩6分
西武有楽町線 新桜台駅 徒歩7分
東京メトロ副都心線 小竹向原駅 徒歩8分
5,480
万円
2SLDK
56.09m2
40.66m2 2004年7月(築21年11ヶ月)
  • 2階建て
  • 都市ガス
  • システムキッチン
  • 床暖房
  • 浴室乾燥機
  • 所有権
  • リフォームリノベーション
おすすめポイント
床暖房(LDK、納戸、2階西側和室)、浴室乾燥機、小屋裏収納2ケ所

東京都練馬区関町北2 6,480万円 2SLDK

  • 中古住宅
  • 東京都練馬区関町北2 中古住宅
    間取り図
東京都練馬区関町北2
西武新宿線 武蔵関駅 徒歩6分
6,480
万円
2SLDK
91.7m2
103.58m2 2014年11月(築11年7ヶ月)
  • 2階建て
  • 都市ガス
  • 所有権
おすすめポイント
■作業のしやすいL字型キッチン■LDには床暖房設置済み■全居室2面採光■駐車スペースあり(車種制限あり)■前面道路は東側6m公道■スーパー、コンビニ徒歩5分圏内

東京都練馬区関町北4 7,580万円 他

  • 中古住宅
  • 東京都練馬区関町北4 中古住宅
    間取り図
東京都練馬区関町北4
西武新宿線 武蔵関駅 徒歩6分
西武新宿線 東伏見駅 徒歩12分
西武新宿線 西武柳沢駅 徒歩27分
7,580
万円

118.39m2
124.27m2 1999年11月(築26年7ヶ月)
  • 2階建て
  • 南道路
  • 都市ガス
  • 駐車場あり
  • 駐車2台
  • 所有権
おすすめポイント
◇2世帯住宅使用(リフォームで変更可能)◇1世帯でのご検討も可能です。◇利便性に優れた住環境◇内覧予約受付中~・~・~・~・~・~・~・~・~・~・~・~・~・~・~・~・~・~・~お問い合わせは 【0120-515-888 】 までお気軽にどうぞ♪担当のスタッフが分かりやすく丁寧にご対応を致します!埼玉県所沢市宮本町1-9-25 【 株式会社すまらいふ 】

東京都練馬区田柄2 8,580万円 3SLDK

  • 中古住宅
  • 東京都練馬区田柄2 中古住宅
    間取り図
東京都練馬区田柄2
東京メトロ有楽町線 地下鉄赤塚駅 徒歩6分
東京メトロ副都心線 地下鉄赤塚駅 徒歩6分
東武東上線 下赤塚駅 徒歩8分
8,580
万円
3SLDK
97.6m2
101.45m2 2017年9月(築8年9ヶ月)
  • 2階建て
  • 南道路
  • 都市ガス
  • システムキッチン
  • 床暖房
  • 浴室乾燥機
  • 所有権
おすすめポイント
-物件のおすすめポイント-▼立地・東京メトロ有楽町線/東京メトロ副都心線「地下鉄赤塚」徒歩6分 他・第一種低層住居専用地域▼特徴・ご家族と会話の弾む対面式キッチン・主寝室は約8.5帖の広さ・2階に水回りが配置された間取り・納戸は約6.0帖、窓・収納付で多用途に活用可能・バルコニーはグレーチング仕様で通気性良好・駐車スペース有(車種による)▼設備・床暖房(LDK)・食洗機/浄水器・浴室乾燥機・防犯性の高いシャッター雨戸・TVモニタ付インターホン■ ご希望の住まい探しをお手伝いします ━━━━━・・・物件の詳細・ご相談はお気軽にお問い合わせください。

東京都練馬区早宮3 6,480万円 1SLDK

  • 中古住宅
  • 東京都練馬区早宮3 中古住宅
    間取り図
東京都練馬区早宮3
都営大江戸線 豊島園駅 徒歩7分
西武豊島線 豊島園駅 徒歩9分
西武池袋線 練馬駅 徒歩15分
6,480
万円
1SLDK
72.9m2
90.38m2 2024年6月(築2年)
  • 2階建て
  • 南道路
  • 都市ガス
  • 駐車場あり
  • システムキッチン
  • 床暖房
  • 所有権
おすすめポイント
-物件のおすすめポイント-▼立地・都営大江戸線「豊島園」徒歩7分・第一種低層住居専用地域・前面道路幅員は南側約4.5m▼特徴・2024年6月築・採光・プライバシーに配慮された2階リビング設計・LDを見渡せる対面式キッチン・家族との会話が育まれやすいリビング階段・2箇所のサービススペース有▼設備・床暖房(LD一部)・浴室は1616サイズ▼周辺環境・まいばすけっと豊島園駅北店 徒歩5分(約400m)・練馬区立ふたば児童遊園 徒歩5分(約350m)■ ご希望の住まい探しをお手伝いします ━━━━━・・・物件の詳細・ご相談はお気軽にお問い合わせください。

東京都練馬区春日町1 7,399万円 5LDK

  • 中古住宅
  • 東京都練馬区春日町1 中古住宅
    間取り図
東京都練馬区春日町1
都営大江戸線 練馬春日町駅 徒歩7分
西武豊島線 豊島園駅 徒歩13分
東京メトロ有楽町線 平和台駅 徒歩19分
7,399
万円
5LDK
110.53m2
81.48m2 2001年2月(築25年4ヶ月)
  • 3階建て以上
  • 都市ガス
  • 駐車場あり
  • システムキッチン
  • 浴室乾燥機
  • 所有権
  • 即入居可
おすすめポイント
~ 物件の魅力と周辺環境のご紹介 ~▼都営大江戸線「練馬春日町」駅まで徒歩7分の好立地▼希少な5LDK戸建、カースペース付き▼全居室フローリングでお手入れ簡単、清潔感ある室内▼食洗機、浴室乾燥機など毎日を快適にする充実の設備▼即入居可能!綺麗な室内で新生活をすぐにスタートできます▼弊社限定家具家電30万円分キャッシュバックキャンペーン対象物件♪*住宅ローン無料相談受付中*『転職したばかりの方』や『外国人の方』でも、まずは一度ご相談お任せください。多数の提携銀行からご提案させていただきます!英語、中国語対応可能。お気軽にお問合せ下さい。03-6300-0038

東京都練馬区春日町1 7,399万円 4SLDK

  • 中古住宅
  • 東京都練馬区春日町1 中古住宅
    間取り図
東京都練馬区春日町1
都営大江戸線 練馬春日町駅 徒歩7分
都営大江戸線 豊島園駅 徒歩13分
東京メトロ有楽町線 平和台駅 徒歩18分
7,399
万円
4SLDK
110.53m2
81.48m2 2001年2月(築25年4ヶ月)
  • 3階建て以上
  • 都市ガス
  • 駐車場あり
  • システムキッチン
  • 浴室乾燥機
  • 所有権
  • 即入居可
  • リフォームリノベーション
おすすめポイント
・明るい2階リビング・家事がはかどる食洗器付き・「練馬春日町」駅徒歩約7分の近さ・複数路線利用可の為、通勤 通学に便利な立地・生活に便利な環境都営大江戸線「練馬春日町」駅徒歩約7分の近さの中古一戸建住宅。西武豊島線「豊島園」駅まで徒歩約13分や、バス利用にて東京メトロ有楽町線「平和台」駅など利用することができ、通勤・通学・お買い物等に大変便利な環境です。システムキッチン、ユニットバス、洗面化粧台、トイレ、他などリフォーム済ですので、すぐにでも新しい生活をはじめることができます。明るい2階リビングですので、プライバシー重視の方になどにおすすめな間取りとなっております

東京都練馬区春日町1 7,399万円 4SLDK

  • 中古住宅
  • 東京都練馬区春日町1 中古住宅
    間取り図
東京都練馬区春日町1
都営大江戸線 練馬春日町駅 徒歩7分
西武豊島線 豊島園駅 徒歩13分
東京メトロ有楽町線 平和台駅 徒歩19分
7,399
万円
4SLDK
110.53m2
81.48m2 2001年2月(築25年4ヶ月)
  • 3階建て以上
  • 都市ガス
  • 駐車場あり
  • システムキッチン
  • 浴室乾燥機
  • 所有権
  • 即入居可
  • リフォームリノベーション
おすすめポイント
◆スーパー&コンビニ&ドラッグストア& 小学校&保育園が徒歩7分圏内 買い物にも子育てにもやさしい環境です【周辺環境】 (買い物)  ・よしや・・徒歩7分 ・ファミリーマート・・徒歩1分 ・スギ薬局・・徒歩6分  (教育施設)  ・練馬東中学校・・徒歩15分 ・練馬東小学校・・徒歩6分 ・木下の保育園春日町・・徒歩4分 ・春アンミッコ保育園・・徒歩4分 ・春日町第二保育園・・徒歩5分  (病院)   ・岡田内科クリニック・・徒歩6分 (郵便局)   ・練馬春日南郵便局・・徒歩5分

東京都練馬区春日町1 7,399万円 4SLDK

  • 中古住宅
  • 東京都練馬区春日町1 中古住宅
    間取り図
東京都練馬区春日町1
都営大江戸線 練馬春日町駅 徒歩7分
西武豊島線 豊島園駅 徒歩13分
東京メトロ副都心線 平和台駅 徒歩18分
7,399
万円
4SLDK
110.53m2
81.48m2 2001年2月(築25年4ヶ月)
  • 3階建て以上
  • 都市ガス
  • 駐車場あり
  • システムキッチン
  • 浴室乾燥機
  • 所有権
  • 即入居可
  • リフォームリノベーション
おすすめポイント
Point ・‥…━━━━☆●忙しい朝や遅い帰宅時にも嬉しい「練馬春日町」駅徒歩約7分! ●後片付けの救世主!食洗機付きシステムキッチン●雨の日の強い味方!浴室換気乾燥機付きユニットバス●いつでもおいしいお水が飲める浄水器一体型水栓も完備 *・*―― 2025年12月リフォーム完了済み ――*・*キッチン、浴室、トイレ、洗面所フローリング、クロス、建具、照明、スイッチコンセント等色々物件をご覧になっても、どこかピンとこない方ぜひ一度お気軽にお問い合わせ下さい!大泉学園店フリーダイヤル【0120-585-108】まで!

東京都練馬区春日町1 7,399万円 4SLDK

  • 中古住宅
  • 東京都練馬区春日町1 中古住宅
    間取り図
東京都練馬区春日町1
都営大江戸線 練馬春日町駅 徒歩7分
西武豊島線 豊島園駅 徒歩13分
流鉄流山線 平和台駅 徒歩19分
7,399
万円
4SLDK
110.53m2
81.48m2 2001年2月(築25年4ヶ月)
  • 3階建て以上
  • 都市ガス
  • 駐車場あり
  • システムキッチン
  • 浴室乾燥機
  • 所有権
  • リフォームリノベーション
おすすめポイント
●リビングは3面採光+トップライトで心地よい空間に●暮らしを美しく整える壁付キッチン●食洗機や浴室乾燥機など充実の設備仕様●駐車1台可能ご見学希望の方は赤色『見学予約』から資料請求はオレンジ色『資料請求』をクリック直接のお問い合わせは03-6905-9710までスマートフォンの方は右下青色の電話ボタンをクリック☆テレビで紹介された『やどかリッチ』使えます豊かに過ごすには『インテリア』家具や家電と『エクステリア』カーポートや楽しめる庭、この充実度で変わってきますこれらを一括購入できその代金を住宅ローンに組み込むことが可能なサービス、それがやどかリッチです

東京都練馬区春日町1 7,399万円 4SLDK

  • 中古住宅
  • 東京都練馬区春日町1 中古住宅
    間取り図
東京都練馬区春日町1
都営大江戸線 練馬春日町駅 徒歩7分
都営大江戸線 豊島園駅 徒歩13分
7,399
万円
4SLDK
81.48m2
81.48m2 2001年2月(築25年4ヶ月)
  • 3階建て以上
  • 都市ガス
  • 駐車場あり
  • システムキッチン
  • 浴室乾燥機
  • 所有権
  • 即入居可
  • リフォームリノベーション
おすすめポイント
◆◇◆◇◆◇◆◇◆◇◆◇◆◇◆◇◆◇◆◇◆ーーフィットイーハウス 6つのチョイスーー◆◇◆◇◆◇◆◇◆◇◆◇◆◇◆◇◆◇◆◇◆(1)キッチン・浴室・トイレなどの水廻りが新調され、新生活を快適に過ごせます。(2)4面採光でたっぷり光を取り込む、明るく開放的なLDK。(3)プライバシー性の高い2階リビング仕様。「4LDK+S」の中古戸建。(4)都営大江戸線「練馬春日町」駅徒歩7分。「豊島園」駅徒歩13分の立地。(5)少ない水で洗える食器洗乾燥機が日々の家事をサポートします。(6)浴室暖房換気乾燥機や温水洗浄便座などの設備が備わっています。

東京都練馬区春日町1 7,399万円 4SLDK

  • 中古住宅
  • 東京都練馬区春日町1 中古住宅
    間取り図
東京都練馬区春日町1
都営大江戸線 練馬春日町駅 徒歩7分
西武豊島線 豊島園駅 徒歩13分
7,399
万円
4SLDK
100.53m2
81.48m2 2001年2月(築25年4ヶ月)
  • 2階建て
  • 都市ガス
  • 駐車場あり
  • システムキッチン
  • 浴室乾燥機
  • 所有権
  • 即入居可
  • バリアフリー
おすすめポイント
◆ ◇おすすめPOINT◇ ◆POINT1. 都営大江戸線「練馬区春日町」駅徒歩7分、西武豊島線「豊島園」駅徒歩13分の立地!POINT2. 一部屋がゆとりある広さを持つ4SLDKプラン。13.5帖のLDKはトップライトがより開放的で過ごしやすい空間を創り出します。POINT3. 2025年12月リフォーム完工!水回りや内装など、中古特有の使用感なく快適にお使いいただけます!POINT4. 物件周辺はコンビニ徒歩1分、スーパー徒歩6分と買い物施設が利用しやすい徒歩圏内に点在している暮らしやすい住環境!POINT5. 保育園徒歩4分、幼稚園徒歩5分、小学校徒歩6分とお子様の送り迎えや通学も安心の距離に教育施設が揃っています!◆ ◇ ◆ ◇

東京都練馬区春日町1 7,499万円 5LDK

  • 中古住宅
  • 東京都練馬区春日町1 中古住宅
    間取り図
東京都練馬区春日町1
都営大江戸線 練馬春日町駅 徒歩7分
西武豊島線 豊島園駅 徒歩13分
都営大江戸線 豊島園駅 徒歩13分
7,499
万円
5LDK
110.53m2
81.48m2 2001年2月(築25年4ヶ月)
  • 3階建て以上
  • 所有権
  • 即入居可
おすすめポイント
【ライフインフォメーション】・春日町第二保育園・・・・・・約270m・練馬区立練馬東小学校・・・・約450m・練馬区立練馬東中学校・・・・約1000m・練馬光が丘病院・・・・・・・約2080m

東京都練馬区春日町1 7,499万円 4SLDK

  • 中古住宅
  • 東京都練馬区春日町1 中古住宅
    間取り図
東京都練馬区春日町1
都営大江戸線 練馬春日町駅 徒歩7分
都営大江戸線 豊島園駅 徒歩13分
東京メトロ有楽町線 平和台駅 徒歩19分
7,499
万円
4SLDK
110.53m2
81.48m2 2001年2月(築25年4ヶ月)
  • 3階建て以上
  • 都市ガス
  • 駐車場あり
  • システムキッチン
  • 浴室乾燥機
  • 所有権
  • リフォームリノベーション
おすすめポイント
【リフォーム内容】・キッチン新規交換 ・ユニットバス新規交換 ・洗面化粧台新規交換・トイレ1F、2F新規交換 ・フローリング貼替 ・フロアタイル貼替・壁、天井クロス貼替 ・照明器具、スイッチコンセント、建具新規交換・ハウスクリーニング ・その他--Life Information--■都営大江戸線「練馬春日町」駅徒歩7分。 西武豊島線「豊島園」駅徒歩13分。■徒歩10分圏内に生活施設が整った閑静な住宅街◎ご案内・詳細な資料のご請求はお気軽にどうぞ♪

東京都練馬区春日町1 7,499万円 4SLDK

  • 中古住宅
  • 東京都練馬区春日町1 中古住宅
    間取り図
東京都練馬区春日町1
都営大江戸線 練馬春日町駅 徒歩7分
西武豊島線 豊島園駅 徒歩13分
7,499
万円
4SLDK
110.53m2
81.48m2 2001年2月(築25年4ヶ月)
  • 3階建て以上
  • 都市ガス
  • 駐車場あり
  • システムキッチン
  • 浴室乾燥機
  • 所有権
  • 即入居可
  • リフォームリノベーション
おすすめポイント
□都営大江戸線練馬春日町駅徒歩7分!西武豊島線豊島園駅徒歩13分で通勤通学便利です♪■3階建て4SLDKカースペース1台可能で永住型戸建で自転車やバイクも楽々置けて便利♪□室内リフォーム入ります。キッチンやバスルームやトイレ洗面台、クロスは新品に新規交換します♪■近くには小学校・中学校があり便利でお子様を伸び伸び育てるのに凄くピッタリな立地になります♪○お支払い例  月額209,495円7490万円のお借入 頭金9万円・ボーナス払い無 35年の場合金利0.945%(当社提携都市銀行)金利はお客様の審査内容により変る場合があります。諸費用込みこみプランもあります。

東京都練馬区春日町1 7,499万円 4SLDK

  • 中古住宅
  • 東京都練馬区春日町1 中古住宅
    間取り図
東京都練馬区春日町1
都営大江戸線 練馬春日町駅 徒歩7分
西武豊島線 豊島園駅 徒歩15分
7,499
万円
4SLDK
110.53m2
81.48m2 2001年2月(築25年4ヶ月)
  • 3階建て以上
  • 都市ガス
  • 駐車場あり
  • システムキッチン
  • 浴室乾燥機
  • 所有権
  • リフォームリノベーション
おすすめポイント
◆都営大江戸線『練馬春日町』駅 徒歩7分◇4LDK+S◇全居室に収納があり、お部屋をすっきりとお使いいただけます!◇全居室フローリング◇手洗いよりも高温・節水で洗浄できる食器洗浄乾燥機!◇浴室には換気に便利な窓付!◇雨の日のお洗濯や入浴後の換気に便利な浴室乾燥機!◇トイレ2か所設置!【買物施設】ファミリーマート 春日町一丁目店・・・徒歩1分(約30m)セブンイレブン 練馬春日町一丁目店・・徒歩4分(約260m)

東京都練馬区春日町1 7,499万円 4SLDK

  • 中古住宅
  • 東京都練馬区春日町1 中古住宅
    間取り図
東京都練馬区春日町1
都営大江戸線 練馬春日町駅 徒歩7分
西武豊島線 豊島園駅 徒歩13分
7,499
万円
4SLDK
110.53m2
81.48m2 2001年2月(築25年4ヶ月)
  • 3階建て以上
  • 都市ガス
  • 駐車場あり
  • システムキッチン
  • 浴室乾燥機
  • 所有権
  • リフォームリノベーション
おすすめポイント
-物件のおすすめポイント-▼立地・都営大江戸線「練馬春日町」徒歩7分▼特徴・全居室2面以上の採光を確保・お料理に集中しやすい独立型キッチン・3ヶ所にトップライト有・2階に南西・南東向き、3階に南東向きバルコニーを設置▼設備・食洗機・浄水器・浴室乾燥機▼2025年12月室内リフォーム済【交換】キッチン、UB、洗面台、トイレ 等【貼替】フローリング、クロス 等【その他】ハウスクリーニング▼周辺環境・練馬区立練馬東小学校 徒歩5分(約400m)■ ご希望の住まい探しをお手伝いします ━━━━━・・・物件の詳細・ご相談はお気軽にお問い合わせください。

東京都練馬区春日町1 7,499万円 4SLDK

  • 中古住宅
  • 東京都練馬区春日町1 中古住宅
    間取り図
東京都練馬区春日町1
都営大江戸線 練馬春日町駅 徒歩7分
西武豊島線 豊島園駅 徒歩13分
7,499
万円
4SLDK
110.53m2
81.48m2 2001年2月(築25年4ヶ月)
  • 3階建て以上
  • 都市ガス
  • 駐車場あり
  • システムキッチン
  • 浴室乾燥機
  • 所有権
  • リフォームリノベーション
おすすめポイント
◆ システムキッチン・ユニットバス等の   住宅設備すべてリフォーム   もちろん内装も・・・   もうすぐ工事も完工となりますので、   ぜひ一度内覧ください!◆ ファミリーマート徒歩10秒   サミットストア徒歩8分   ビックA・練馬東小学校も徒歩6分にあります。

東京都練馬区春日町1 7,499万円 4SLDK

  • 中古住宅
  • 東京都練馬区春日町1 中古住宅
    間取り図
東京都練馬区春日町1
都営大江戸線 練馬春日町駅 徒歩7分
7,499
万円
4SLDK
110.53m2
81.48m2 2001年2月(築25年4ヶ月)
  • 3階建て以上
  • 都市ガス
  • 駐車場あり
  • システムキッチン
  • 浴室乾燥機
  • 所有権
  • リフォームリノベーション
おすすめポイント
◆4路線4駅利用可能 ・都営大江戸線「練馬春日町」駅徒歩7分 ・西武池袋線「豊島園」駅徒歩13分≪2025年12月中旬 フルリフォーム完了予定≫・キッチン交換(食洗器、浄水器付き)・浴室交換(1616サイズ、換気乾燥機付)・洗面化粧台交換、洗濯用水栓交換・トイレ2か所交換(温水洗浄便座一体型便器)・照明器具、スイッチコンセント、建具新規取付・フローリング貼り、水回りフロアタイル貼り・クロス全居室貼替・ハウスクリーニング≪リフォーム履歴あり≫・2022年6月頃 給湯器交換・2021年6月頃 屋根&外壁塗装実施・2025年6月頃 敷地内除草&坪庭庭木の剪定実施

東京都練馬区桜台2 7,980万円 4LDK

  • 中古住宅
  • 東京都練馬区桜台2 中古住宅
    間取り図
東京都練馬区桜台2
西武有楽町線 新桜台駅 徒歩7分
西武池袋線 桜台駅 徒歩10分
7,980
万円
4LDK
94.39m2
107.51m2 2013年3月(築13年3ヶ月)
  • 2階建て
  • 都市ガス
  • 駐車場あり
  • 所有権
おすすめポイント
■イトーピアホーム株式会社旧施工■2013年3月築■4LDK+カースペース■広々とした約16帖のLDK■個室にもリビングダイニングの続き間にも使える和室のあるプラン■人気のカウンターキッチン採用■収納に便利な小屋裏収納有り

東京都練馬区関町北3 8,880万円 3LDK

  • 中古住宅
  • 東京都練馬区関町北3 中古住宅
    間取り図
東京都練馬区関町北3
西武新宿線 武蔵関駅 徒歩7分
8,880
万円
3LDK
101.51m2
133.86m2 2002年4月(築24年2ヶ月)
  • 2階建て
  • 南道路
  • 都市ガス
  • システムキッチン
  • 浴室乾燥機
  • 所有権
おすすめポイント
■第一種低層住居専用地域の閑静な住宅街に立地 周辺は低層住宅の街並みが広がっております■土地:133.86m2(約40.40坪)■建物:101.51m2(約30.70坪) 木造地上二階建て 南向き■平成14年4月築三井ハウス施工の注文住宅です■南側幅員約6.0m公道に面するため、陽当り良好です■Life Information・セブンイレブン練馬関町北2丁目店 約470m・まいばすけっと武蔵関駅南口店 約550m・アキダイ関町本店 約800m・西友関町店 約840m・区立関町小学校 約460m・区立石神井西中学校 約1490m・武蔵関公園 約220m
チェックした物件を一括で
  • チェックした物件をまとめて
626
表示件数 12345 … 16 次へ

条件を選択

価格
間取り
建物面積
土地面積
築年数
駅からの時間
人気のこだわり条件

さらに詳しくこだわり条件を選択

建物構造
階数
立地・特徴
キッチン
設備
駐車場
条件
性能・評価
瑕疵保険
お得な条件
画像・動画
情報の新しさ
フリーワード

練馬区の住みやすさ情報

練馬区ってどんなところ?

練馬区は、都心へのアクセスが良く、自然と都市生活が調和した住みやすいエリアです。大小さまざまな公園が多い練馬区は、豊かな緑と静かな住環境が魅力で、ファミリー層に人気があります。また、商店街が活気に満ち、地域コミュニティも盛んで、地元住民とのつながりを感じやすい点も特徴です。
主要駅である練馬駅は、西武池袋線・西武豊島線・西武有楽町線・都営地下鉄大江戸線の4路線が通り、新宿までは約19分でアクセスできます。

街ガイド

高野 友樹

公認不動産コンサルティングマスター/相続対策専門士/宅地建物取引士/賃貸不動産経営管理士

不動産会社にて600件以上の仲介、6000戸の収益物件管理を経験。現在は株式会社高野不動産コンサルティングを設立し、不動産コンサルティングを行う。

一人暮らしの人に聞いた
練馬区の住みやすさTOP10

  1. 1位自然や公園が多い
  2. 2位都心に近い
  3. 3位スーパーやドラッグストアが充実している

夫婦・カップルに聞いた
練馬区の住みやすさTOP10

  1. 1位スーパーやドラッグストアが充実している
  2. 2位自然や公園が多い
  3. 3位都心に近い

ファミリーに聞いた
練馬区の住みやすさTOP10

  1. 1位閑静で落ち着きがある
  2. 2位自然や公園が多い
  3. 3位都心に近い

※対象エリア周辺に過去5年以内に住んだことのある10代~60代の人を対象としてアンケートを実施し、独自に集計しています。

練馬区の暮らしデータ

人口などの統計情報

世帯数 374485世帯
人口総数 745927人
転入者数 51313人
転入率(人口1000人当たり)
68.79人
転出者数 43753人
転出率(人口1000人当たり)
58.66人
土地平均価格
住宅地
437189円/m2
商業地
882917円/m2

結婚・育児の助成金

子育て関連の独自の取り組み (1)育児支援ヘルパー事業(2)産後ケア事業(3)子育てスタート応援券交付事業(4)第3子誕生祝金(5)母子保健オンライン相談(6)2ヶ月児相談(7)1歳児子育て相談(8)ねりますくすくアプリ(9)ねりま子育て応援アプリ(10)ねりま子育て応援ハンドブック(11)練馬こども園(12)外遊び型子育てのひろば事業(13)発達に不安がある親子を対象にしたひろば事業(14)練馬こどもカフェ(15)ねりまママパパてらす(16)障害児一時預かり事業。※区独自の制度のため事業名と制度名は同じ。
出産祝い あり
公立保育所数 59所(うち0歳児保育を実施している保育所:46所)
私立保育所数 142所(うち0歳児保育を実施している保育所:137所)
保育所入所待機児童数 0人
認定こども園数 4園 預かり保育実施園数 公立:3園 私立:34園
学校給食 【小学校】完全給食【中学校】完全給食
公立中学校の学校選択制 実施(新入学時のみ)
子ども・学生等医療費助成<通院>対象年齢 18歳3月末まで 子ども・学生等医療費助成<入院>対象年齢 18歳3月末まで

練馬区の治安・ごみ収集情報

公共料金・インフラ

ガス料金(22m3使用した場合の月額) 東京瓦斯株式会社(東京地区等)3926円
水道料金(口径20mmで20m3の月額) 東京都水道局2816円
下水道料金(20m3を使用した場合の月額) 東京都下水道局2068円
下水道普及率 100.0%

安心・安全

建物火災出火件数 88件
人口10000人当たり
1.17件
刑法犯認知件数 3480件
人口1000人当たり
4.62件
ハザード・防災マップ あり

医療

一般病院総数 17ヶ所
一般診療所総数 594ヶ所
小児科医師数 130人
小児人口10000人当たり
15.42人
産婦人科医師数 49人
15~49歳女性人口1万人当たり
2.87人
介護保険料基準額(月額) 6670円

ごみ

家庭ごみ収集(可燃ごみ) 無料
備考
一度に多量のごみを出す場合は有料。
家庭ごみの分別方式 3分別10種〔可燃ごみ 不燃ごみ 資源(古紙[新聞、雑誌・雑がみ、ダンボール、紙パック]、びん、缶、ペットボトル、容器包装プラスチック)〕 拠点回収:古布 廃食用油 乾電池 小型家電(13品目)
家庭ごみの戸別収集 一部実施(【練馬区戸別訪問収集】65歳以上の方のみの世帯または障害のある方のみの世帯で、世帯員自らごみを集積所へ持ち出すことが困難で、身近な人の協力が得られない世帯が対象)
粗大ごみ収集 あり
備考
有料。事前申込制(粗大ごみ受付センター)。
生ごみ処理機助成金制度 なし
上限金額
-
上限比率
-

練馬区の住まいの給付金

中古購入

利子補給制度 なし
補助/助成金制度 なし

増築・改築・改修

利子補給制度 あり
上限金額
(融資あっせん限度額)500万円
備考
【練馬区住宅修築資金融資あっせん】練馬区内にある住宅を修築する場合に資金の融資をあっせん。(a)住宅の修築・増築、年利2.0~0%。(b)ブロック塀などの改良、年利1.0%。※(a)の申込者負担分は世帯所得などにより異なる(2025年4月1日現在、数字は申込者負担分)。増築面積は20m2以下であることおよび増築後の床面積が175m2以下であること。
補助/助成金制度 あり
上限金額
(1)130万円(2)50万円
備考
(1)【住宅の耐震化助成】1981年5月までに建築された住宅(戸建住宅、小規模な長屋や共同住宅含む)または1981年6月から2000年5月までに建築された二階建て以下の木造住宅(在来軸組工法)を対象に、診断費用の3/4で上限金額12万円、設計費用の2/3で上限金額22万円、耐震補強工事費用の2/3で上限金額130万円を助成。なお、条件によって助成率や上限金額の拡充あり。(2)【耐震シェルター等設置助成】1981年5月までに建築された二階建て以下の木造住宅を対象に、工事費用の9/10で上限50万円を助成。
暮らしデータ提供元:生活ガイド.com
※行政機関により公表していない地域及びデータがございます。東京23区以外の政令指定都市は、市全体のデータとして表示しています。
※提供データには細心の注意を払っておりますが、調査後に変更がある場合があります。 最新の情報につきましては各市区役所までお問い合わせいただくか、自治体HPなどをご確認ください。

価格相場

練馬区の価格相場

  ワンルーム 1K・1DK 1LDK・2K・2DK 2LDK・3K・3DK 3LDK・4K・4DK
中古一戸建て - - 6,100万円 7,144万円 7,529万円

周辺エリアの価格相場

  和光市 中野区 杉並区 豊島区 板橋区
中古一戸建て 5,181万円 7,891万円 8,329万円 9,684万円 6,187万円
※このデータはgoo住宅・不動産に掲載されている中古一戸建ての平均価格(管理費・駐車場代などを除く)を算出したものです。ただし5戸以上の掲載があるものについてのみ対象とします。
※周辺エリアの価格相場は2LDK・3K・3DKの平均価格(管理費・駐車場代などを除く)を算出したものです。

東京都の人気の街アクセスランキング(中古一戸建て)

※このランキングは2026年04月01日~30日における各ページのアクセス数から算出しています。
アプリで簡単 物件探し 大手不動産サイトの情報から一括検!プッシュ通知で物件を見逃さない
App Storeからダウンロード Google Playで手に入れよう QRコード