アプリで簡単 物件探し 通知 共有 アプリならではの機能を使ってみる
中古マンション

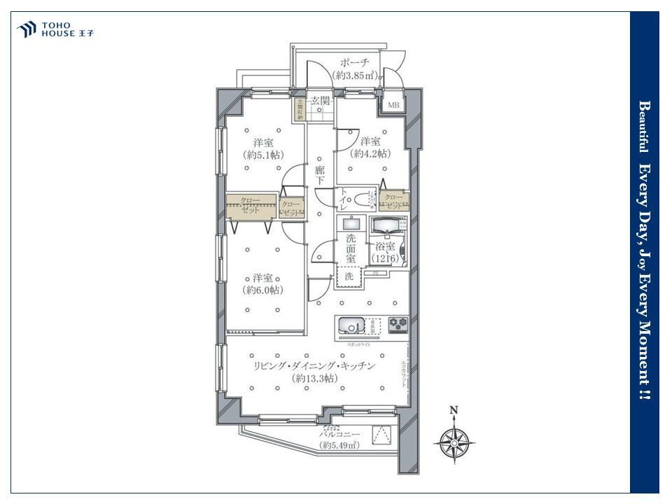
日神パレステージ光が丘 2階 3LDK

情報提供元
SUUMO
日神パレステージ光が丘 現地(2025年10月)撮影
価格 4280万円  (管理費等:1万3640円/月(委託(通勤)))
修繕積立金 16,700円
交通
所在地 東京都練馬区高松5周辺地図
間取り 3LDK 専有面積 62.02m2(18.76坪)(壁芯)
所在階/階数 2階/8階建 方位
築年月 1995年1月 築年数 築30年11ヶ月
おすすめポイント
ペット相談可・日当り良好・閑静な住宅街・バリアフリー・角部屋・管理人日勤・24時間ゴミ出し可
お問い合わせ先
東宝ハウスライフソリューションズグループ(株)東宝ハウス王子1課
物件を見たい、物件や住環境の詳しい情報やローン相談など、
お問い合わせ先
東宝ハウスライフソリューションズグループ(株)東宝ハウス王子1課

詳細情報

価格 4280万円 管理費等 1万3640円/月(委託(通勤))
駐車場 空無 修繕積立金 16,700円
所在地 東京都練馬区高松5周辺地図
交通
  • 都営大江戸線 光が丘駅 徒歩13分乗換案内
  • 西武池袋線 練馬高野台駅 徒歩25分乗換案内
  • 都営大江戸線 練馬春日町駅 徒歩23分乗換案内
物件名 日神パレステージ光が丘
築年月(築年数) 1995年1月(築30年11ヶ月) 間取り 3LDK
総戸数 22戸 専有面積 62.02m2(18.76坪)(壁芯)
所在階/階数 2階/8階建 バルコニー面積 5.49m2
方位 建物構造 RC
管理形態 委託管理
維持費等 土地権利 所有権
用途地域 1種住居 借地期間・地代
現況 引渡可能年月 相談
情報提供元 SUUMO [030Z78705734] 情報公開日
情報更新日 次回更新予定日 随時

設備など

ペット相談可 即入居可 - 南向き
角部屋 駐車場空き有り - トランクルーム -
オートロック - 宅配ボックス - 浴室乾燥機
床暖房 - ウォークインクローゼット - 管理人常駐 -
最上階 - 2階以上 タワーマンション -
設備 バルコニー・トイレ・収納スペース・洗面所・エレベーター・管理人日勤・浴室乾燥機・シャンプードレッサ・温水洗浄便座・システムキッチン・風呂・対面K・浄水器・衣類乾燥機・食器洗浄乾燥機・リフォーム・バイク置き場・駐輪場・リノベーション
リフォーム履歴 2025年11月完了予定
 水回り設備交換:キッチン・浴室・トイレ
 内装リフォーム:壁・床・全室
※年月は一番古いリフォーム箇所を表します
リノベーション履歴 -
備考 <物件名>日神パレステージ光が丘/<駐車場>空無/委託(日勤)/<土地権利>所有権/<間取り>3LDK/<リフォーム>●リフォーム:2025年11月完了予定(水回り設備交換:キッチン・浴室・トイレ、内装リフォーム:壁・床・全室)※年月は一番古いリフォーム箇所を表します/<特徴>■三方角部屋、陽当たり良好!■リノベーション済、設備充実■ペット飼育可、年内引渡可・2沿線以上利用可・テニスコートが近い・スーパー 徒歩10分以内・市街地が近い
販売戸数:1戸/管理費等帯:13640円/修繕積立金帯:16700円
特記事項 ペット相談可・日当り良好・閑静な住宅街・バリアフリー・角部屋・管理人日勤・24時間ゴミ出し可

省エネ性能

エネルギー消費性能 -
断熱性能 -
目安光熱費 -

東京都練馬区高松5 周辺地図情報

地図
※地図上に表示される物件の位置は付近住所に所在することを表すものであり、実際の物件所在地とは異なる場合がございます。
   正確な物件所在地は、取扱い不動産会社にお問い合わせください。
物件を見たい、物件や住環境の詳しい情報やローン相談など、
お問い合わせ先
東宝ハウスライフソリューションズグループ(株)東宝ハウス王子1課

不動産会社情報

お問い合わせ先 商号:東宝ハウスライフソリューションズグループ(株)東宝ハウス王子1課
免許番号:東京都知事(1)第110657号
所在地:東京都北区王子本町1-17-6
TEL:0120-661040
取引態様:媒介
管理コード:●小椎八重悦治
共有する
QRコード
物件を見たい、物件や住環境の詳しい情報やローン相談など、
お問い合わせ先
東宝ハウスライフソリューションズグループ(株)東宝ハウス王子1課

練馬区の暮らしデータ

人口などの統計情報

世帯数 374485世帯
人口総数 741540人
転入者数 49591人
転入率(人口1000人当たり)
66.88人
転出者数 44239人
転出率(人口1000人当たり)
59.66人
土地平均価格
住宅地
413757円/m2
商業地
816167円/m2

結婚・育児の助成金

子育て関連の独自の取り組み (1)第3子誕生祝金。(2)子育てスタート応援券。(3)外遊び型子育てのひろば(おひさまぴよぴよ)。(4)ねりますくすくアプリ(ねりすく)。(5)ねりま子育て応援ハンドブック。(6)父親の育児応援DVD。(7)1年保育(1歳児・2歳児)。(8)発達に不安がある親子を対象にしたひろば事業(のびのびひろば)。(9)産後ケア事業。(10)移動型外遊びの場提供事業「おひさま てくてく」。(11)2019年度から、練馬こどもカフェ(民間カフェ等と協働し、保護者が交流したり子どもと一緒にリラックスできる場を提供し、私立幼稚園や保育事業者の協力を得て子育て講座等を実施)を開始。(12)ねりま子育て応援アプリ。
出産祝い あり
公立保育所数 60所(うち0歳児保育を実施している保育所:50所)
私立保育所数 141所(うち0歳児保育を実施している保育所:136所)
保育所入所待機児童数 0人
認定こども園数 3園 預かり保育実施園数 公立:3園 私立:35園
学校給食 【小学校】完全給食【中学校】完全給食
公立中学校の学校選択制 実施(新入学時のみ)
子ども・学生等医療費助成<通院>対象年齢 18歳3月末まで 子ども・学生等医療費助成<入院>対象年齢 18歳3月末まで

練馬区の治安・ごみ収集情報

公共料金・インフラ

ガス料金(22m3使用した場合の月額) 東京瓦斯株式会社(東京地区等)3926円
水道料金(口径20mmで20m3の月額) 東京都水道局2816円
下水道料金(20m3を使用した場合の月額) 東京都下水道局2068円
下水道普及率 100.0%

安心・安全

建物火災出火件数 88件
人口10000人当たり
1.17件
刑法犯認知件数 3480件
人口1000人当たり
4.62件
ハザード・防災マップ あり

医療

一般病院総数 17ヶ所
一般診療所総数 593ヶ所
小児科医師数 125人
小児人口10000人当たり
14.71人
産婦人科医師数 40人
15~49歳女性人口1万人当たり
2.35人
介護保険料基準額(月額) 6670円

ごみ

家庭ごみ収集(可燃ごみ) 無料
備考
一度に多量のごみを出す場合は有料。
家庭ごみの分別方式 3分別10種〔可燃ごみ 不燃ごみ 資源(古紙[新聞、雑誌・雑紙、ダンボール、紙パック]、びん、缶、ペットボトル、容器包装プラスチック)〕 拠点回収:古布 廃食用油 乾電池 小型家電(13品目)
家庭ごみの戸別収集 一部実施(【練馬区戸別訪問収集実施要綱】65歳以上の方のみの世帯または障害のある方のみの世帯で、世帯員自らごみを集積所へ持ち出すことが困難で、身近な人の協力が得られない世帯が対象)
粗大ごみ収集 あり
備考
有料。事前申込制(粗大ごみ受付センター)。
生ごみ処理機助成金制度 なし
上限金額
-
上限比率
-

練馬区の住まいの給付金

中古購入

利子補給制度 なし
補助/助成金制度 なし

増築・改築・改修

利子補給制度 あり
上限金額
(融資あっせん限度額)500万円
備考
練馬区内にある住宅を修築する場合に資金の融資をあっせん。(a)住宅の修築・増築、年利2.0~0%。(b)ブロック塀などの改良、年利1.0%。※(a)の申込者負担分は世帯所得などにより異なる(2024年4月1日現在、数字は申込者負担分)。増築面積は20m2以下であることおよび増築後の床面積が175m2以下であること。
補助/助成金制度 あり
上限金額
(1)150万円(2)50万円
備考
(1)【住宅の耐震化助成】1981年5月までに建築された住宅(戸建住宅、小規模な長屋や共同住宅含む)または1981年6月から2000年5月までに建築された二階建て以下の木造住宅(在来軸組工法)で、診断費用の3/4で上限金額12万円、設計費用の2/3で上限金額22万円、耐震補強工事費用の2/3で上限金額130万円または4/5で上限金額150万円まで助成。なお、一部の地区では助成率や上限金額の拡充あり。(2)【耐震シェルター等設置助成】1981年5月までに建築された二階建て以下の木造住宅で、工事費用の9/10で上限金額50万円まで助成。ただし、他要件あり。
暮らしデータ提供元:生活ガイド.com
※行政機関により公表していない地域及びデータがございます。東京23区以外の政令指定都市は、市全体のデータとして表示しています。
※提供データには細心の注意を払っておりますが、調査後に変更がある場合があります。 最新の情報につきましては各市区役所までお問い合わせいただくか、自治体HPなどをご確認ください。

この物件を見た人はこんな物件も見ています

OCN×ドコモ光新規お申込みで合計最大137,280円相当おトク!特典の内訳・適用条件など詳細はこちら

住宅ローンの返済額一覧

物件価格 4280万円に対して、年率 で、頭金 の場合
↓ボーナス 35年間 30年間 25年間 20年間 15年間 10年間
0万円 98,123円/月 113,093円/月 134,065円/月 165,539円/月 218,017円/月 323,006円/月
5万円 89,037円/月 104,117円/月 125,198円/月 156,780円/月 209,365円/月 314,461円/月
10万円 79,952円/月 95,142円/月 116,331円/月 148,021円/月 200,714円/月 305,915円/月
15万円 70,866円/月 86,166円/月 107,464円/月 139,262円/月 192,062円/月 297,370円/月
20万円 61,781円/月 77,190円/月 98,598円/月 130,504円/月 183,411円/月 288,825円/月
25万円 52,695円/月 68,215円/月 89,731円/月 121,745円/月 174,759円/月 280,280円/月
30万円 ローン不可 59,239円/月 80,864円/月 112,986円/月 166,108円/月 271,735円/月
支払い利息合計 3,429,580円~ 2,932,200円~ 2,434,900円~ 1,941,600円~ 1,452,390円~ 966,940円~
※元利均等返済方式で試算しています。 「円」の単位以下の端数金額は「切り捨て」として計算しております。
※金利は、固定金利として計算しております。
※上記の住宅ローン返済額一覧は、あくまで試算であり、将来の金利動向により、実際のご返済額とは異なります。
※ボーナス支払総額が総支払額の50%を超えている場合、上記の表では「ローン不可」となります。
※住宅ローン返済額一覧の数値は、住宅ローンのお申し込みやご融資をお約束するものではございません。
物件を見たい、物件や住環境の詳しい情報やローン相談など、
お問い合わせ先
東宝ハウスライフソリューションズグループ(株)東宝ハウス王子1課

掲載情報の著作権は提供元企業等に帰属します。
Copyright:(C) 2025 Recruit Co., Ltd.
アプリで簡単 物件探し 大手不動産サイトの情報から一括検!プッシュ通知で物件を見逃さない
App Storeからダウンロード Google Playで手に入れよう QRコード