アプリで簡単 物件探し 通知 共有 アプリならではの機能を使ってみる
中古マンション

グランドメルシー駒沢 2階 2LDK

情報提供元
SUUMO
グランドメルシー駒沢 1988年に竣工した、オートロック・宅配ボックス付きの閑静な住宅街に佇むマンション。総戸数4戸で、ワンフロア2戸のプライベート感ある構造が魅力的です。
価格 11980万円  (管理費等:2万7380円/月(委託(管理員なし)))
修繕積立金 18,100円
交通
所在地 東京都世田谷区野沢4周辺地図
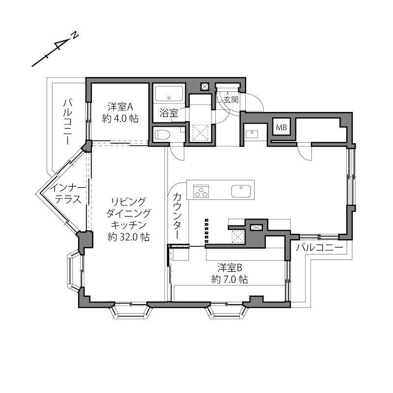
間取り 2LDK 専有面積 90.54m2(壁芯)
所在階/階数 2階/3階建 方位 南西
築年月 1988年11月 築年数 築37年2ヶ月
おすすめポイント
□暮らしの舞台は“駒沢エリア”■こちらの住まいは、まるで光と風の通り道。もともと一級建築士の夫婦の自邸として設計されただけあり、窓の配置を生かした動線のつくり方が独特で、ひとつの空間にいながらも “気分や時間帯によってムードが変わる感覚” を味わえそうな物件です。■LDKの広さは約32帖。ぐるりと回遊できるワンルームのような間取りで、LDKの中心に据えた大きなアイランドキッチン、ふたりで並んで使えるデスク、アトリエのように使える余白……など、暮らしのスタイルにあわせて主役の空間を選べることも、こちらの住まいの面白さです。
ペット相談可・角部屋
物件を見たい、物件や住環境の詳しい情報やローン相談など、
お問い合わせ先
(株)ツクルバ

詳細情報

価格 11980万円 管理費等 2万7380円/月(委託(管理員なし))
駐車場   修繕積立金 18,100円
所在地 東京都世田谷区野沢4周辺地図
交通
  • 東急田園都市線 駒沢大学駅 徒歩8分乗換案内
物件名 グランドメルシー駒沢
築年月(築年数) 1988年11月(築37年2ヶ月) 間取り 2LDK
総戸数 4戸 専有面積 90.54m2(壁芯)
所在階/階数 2階/3階建 バルコニー面積 7.3m2
方位 南西 建物構造 RC
管理形態
維持費等 土地権利 所有権
用途地域 1種低層 借地期間・地代
現況 引渡可能年月 相談
情報提供元 SUUMO [030Z78953314] 情報公開日
情報更新日 次回更新予定日 随時

設備など

ペット相談可 即入居可 - 南向き -
角部屋 駐車場空き有り - トランクルーム -
オートロック - 宅配ボックス 浴室乾燥機 -
床暖房 - ウォークインクローゼット - 管理人常駐 -
最上階 - 2階以上 タワーマンション -
設備 システムキッチン・対面K・IHクッキングヒータ・リフォーム・駐輪場・宅配BOX・リノベーション
リフォーム履歴 2022年2月完了
 水回り設備交換:キッチン・浴室・トイレ
 内装リフォーム:壁・床・全室
 その他:壁紙
※年月は一番古いリフォーム箇所を表します
リノベーション履歴 -
備考 <物件名>グランドメルシー駒沢/<土地権利>所有権/<間取り>2LDK/<リフォーム>●リフォーム:2022年2月完了(水回り設備交換:キッチン・浴室・トイレ、内装リフォーム:壁・床・全室、その他:壁紙)※年月は一番古いリフォーム箇所を表します/<特徴>落ち着いた「駒沢エリア」×2階南西向き角住戸2022年フルリノベーション、内装リフォーム・システムキッチン・角住戸・対面式キッチン・セキュリティ充実
販売戸数:1戸/管理費等帯:27380円/修繕積立金帯:18100円
特記事項 ペット相談可・角部屋

省エネ性能

エネルギー消費性能 -
断熱性能 -
目安光熱費 -

東京都世田谷区野沢4 周辺地図情報

地図
※地図上に表示される物件の位置は付近住所に所在することを表すものであり、実際の物件所在地とは異なる場合がございます。
   正確な物件所在地は、取扱い不動産会社にお問い合わせください。
物件を見たい、物件や住環境の詳しい情報やローン相談など、
お問い合わせ先
(株)ツクルバ

不動産会社情報

お問い合わせ先 商号:(株)ツクルバ
免許番号:東京都知事(3)第097398号
所在地:東京都渋谷区恵比寿4-3-14 恵比寿SSビル7階
TEL:050-5526-2929
取引態様:専任媒介
管理コード:cf00614
共有する
QRコード
物件を見たい、物件や住環境の詳しい情報やローン相談など、
お問い合わせ先
(株)ツクルバ

世田谷区の暮らしデータ

人口などの統計情報

世帯数 491717世帯
人口総数 918141人
転入者数 64326人
転入率(人口1000人当たり)
70.06人
転出者数 59597人
転出率(人口1000人当たり)
64.91人
土地平均価格
住宅地
676200円/m2
商業地
1209125円/m2

結婚・育児の助成金

子育て関連の独自の取り組み (1)産後ケア事業(産後の母子を対象に母体ケア、乳児ケア、育児相談・指導などを行う)。(2)新教科「日本語」教育(2007年より世田谷区立の全小・中学校にて実施)(3)せたがや0→1(ぜろいち)子育てエール(5ヶ月から11ヶ月の子供を育てる家庭への見守り訪問事業)(4)世田谷区バースデーサポート事業(1歳を迎える子供のいる家庭へ子育て支援用品等の購入に使用できるデジタルギフト贈呈。※条件あり)(5)子育てステーションの設置(利便性の高い駅前に点在。多機能子育て支援拠点施設)
出産祝い あり
公立保育所数 44所(うち0歳児保育を実施している保育所:20所)
私立保育所数 172所(うち0歳児保育を実施している保育所:158所)
保育所入所待機児童数 58人
認定こども園数 7園 預かり保育実施園数 公立:7園 私立:45園
学校給食 【小学校】完全給食【中学校】完全給食
公立中学校の学校選択制 未実施
子ども・学生等医療費助成<通院>対象年齢 18歳3月末まで 子ども・学生等医療費助成<入院>対象年齢 18歳3月末まで

世田谷区の治安・ごみ収集情報

公共料金・インフラ

ガス料金(22m3使用した場合の月額) 東京瓦斯株式会社(東京地区等)3926円
水道料金(口径20mmで20m3の月額) 東京都水道局2816円
下水道料金(20m3を使用した場合の月額) 東京都下水道局2068円
下水道普及率 99.9%

安心・安全

建物火災出火件数 141件
人口10000人当たり
1.49件
刑法犯認知件数 4084件
人口1000人当たり
4.33件
ハザード・防災マップ あり

医療

一般病院総数 27ヶ所
一般診療所総数 952ヶ所
小児科医師数 349人
小児人口10000人当たり
33.26人
産婦人科医師数 66人
15~49歳女性人口1万人当たり
3.00人
介護保険料基準額(月額) 6280円

ごみ

家庭ごみ収集(可燃ごみ) 無料
備考
-
家庭ごみの分別方式 3分別14種〔可燃ごみ 不燃ごみ(小型家電製品・金属類、ガラス陶磁器類、乾電池・白熱電球・LED電球類・割れた蛍光管、ライター) 資源ごみ(古紙[新聞、雑誌類、紙パック、ダンボール]、ガラスびん、缶、ペットボトル、蛍光管、スプレー缶・カセットボンベ)〕
家庭ごみの戸別収集 一部実施(65歳以上のひとり暮らし高齢者または高齢者のみの世帯で、世帯全員が介護保険法の要介護2または2程度、ひとり暮らしの障害者または障害者のみの世帯)
粗大ごみ収集 あり
備考
有料。戸別収集。事前申込制。粗大ごみ処理券を購入し、添付。持ち込みも可能。
生ごみ処理機助成金制度 なし
上限金額
-
上限比率
-

世田谷区の住まいの給付金

中古購入

利子補給制度 なし
補助/助成金制度 なし

増築・改築・改修

利子補給制度 なし
補助/助成金制度 あり
上限金額
(1)150万円(2)40万円
備考
(1)【木造住宅の耐震化事業】1981年5月31日までに着工した平屋または2階建ての木造住宅が対象。補強設計上限30万円、改修工事上限100万円、簡易改修工事上限80万円。一部地域で不燃化耐震改修工事助成、不燃化建て替え助成あり。ただし、改修工事、簡易改修工事は、補強設計の助成を受けている場合はその額を除く。(2)【世田谷区エコ住宅補助金】住宅リノベーション工事を単独の場合、経費の10%まで、上限20万円。外壁等の断熱改修を含む場合は上限40万円、太陽光発電システムを含む場合は上限30万円。
暮らしデータ提供元:生活ガイド.com
※行政機関により公表していない地域及びデータがございます。東京23区以外の政令指定都市は、市全体のデータとして表示しています。
※提供データには細心の注意を払っておりますが、調査後に変更がある場合があります。 最新の情報につきましては各市区役所までお問い合わせいただくか、自治体HPなどをご確認ください。
OCN×ドコモ光新規お申込みで合計最大137,280円相当おトク!特典の内訳・適用条件など詳細はこちら

住宅ローンの返済額一覧

物件価格 11980万円に対して、年率 で、頭金 の場合
↓ボーナス 35年間 30年間 25年間 20年間 15年間 10年間
0万円 298,004円/月 343,469円/月 407,161円/月 502,748円/月 662,126円/月 980,981円/月
5万円 288,918円/月 334,493円/月 398,294円/月 493,989円/月 653,474円/月 972,436円/月
10万円 279,833円/月 325,518円/月 389,427円/月 485,230円/月 644,823円/月 963,891円/月
15万円 270,747円/月 316,542円/月 380,560円/月 476,472円/月 636,171円/月 955,346円/月
20万円 261,662円/月 307,566円/月 371,694円/月 467,713円/月 627,520円/月 946,801円/月
25万円 252,576円/月 298,591円/月 362,827円/月 458,954円/月 618,868円/月 938,256円/月
30万円 243,491円/月 289,615円/月 353,960円/月 450,196円/月 610,217円/月 929,711円/月
支払い利息合計 10,383,450円~ 8,867,560円~ 7,363,700円~ 5,872,000円~ 4,392,010円~ 2,924,060円~
※元利均等返済方式で試算しています。 「円」の単位以下の端数金額は「切り捨て」として計算しております。
※金利は、固定金利として計算しております。
※上記の住宅ローン返済額一覧は、あくまで試算であり、将来の金利動向により、実際のご返済額とは異なります。
※ボーナス支払総額が総支払額の50%を超えている場合、上記の表では「ローン不可」となります。
※住宅ローン返済額一覧の数値は、住宅ローンのお申し込みやご融資をお約束するものではございません。
物件を見たい、物件や住環境の詳しい情報やローン相談など、
お問い合わせ先
(株)ツクルバ

掲載情報の著作権は提供元企業等に帰属します。
Copyright:(C) 2025 Recruit Co., Ltd.
アプリで簡単 物件探し 大手不動産サイトの情報から一括検!プッシュ通知で物件を見逃さない
App Storeからダウンロード Google Playで手に入れよう QRコード