アプリで簡単 物件探し 通知 共有 アプリならではの機能を使ってみる
中古マンション

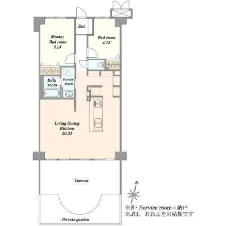
ネオコーポ浦和けやきの棟 1階 2LDK

情報提供元
SUUMO
ネオコーポ浦和けやきの棟 昭和56年6月建築、総戸数48戸のマンションです。
価格 700万円  (管理費等:9200円/月(委託(通勤)))
修繕積立金 12,900円
交通
所在地 埼玉県さいたま市南区内谷3周辺地図
間取り 2LDK 専有面積 59.33m2(17.94坪)(壁芯)
所在階/階数 1階/6階建 方位 南東
築年月 1981年6月 築年数 築44年5ヶ月
おすすめポイント
◆1階専用庭付住戸◆エントランスから比較的近い部屋位置◆上層階の苦手な高齢の方、小さなお子様のいらっしゃるご家族にお勧めです。◆リフォームのご相談も承ります。※告知事項有(詳細は担当までお問い合わせください)
管理人日勤
お問い合わせ先
大和ライフネクスト(株)資産管理サポート営業課
物件を見たい、物件や住環境の詳しい情報やローン相談など、
お問い合わせ先
大和ライフネクスト(株)資産管理サポート営業課

詳細情報

価格 700万円 管理費等 9200円/月(委託(通勤))
駐車場   修繕積立金 12,900円
所在地 埼玉県さいたま市南区内谷3周辺地図
交通
  • JR京浜東北線 南浦和駅 バス12分/「曲本」バス停 停歩5分乗換案内
物件名 ネオコーポ浦和けやきの棟
築年月(築年数) 1981年6月(築44年5ヶ月) 間取り 2LDK
総戸数 48戸 専有面積 59.33m2(17.94坪)(壁芯)
所在階/階数 1階/6階建 バルコニー面積 8.4m2
方位 南東 建物構造 RC
管理形態 委託管理
維持費等 専用庭使用料(月額)600円 土地権利 所有権
用途地域 1種住居 借地期間・地代
現況 引渡可能年月 即時
情報提供元 SUUMO [030Z78422389] 情報公開日
情報更新日 次回更新予定日 随時

設備など

ペット相談可 - 即入居可 南向き -
角部屋 - 駐車場空き有り - トランクルーム -
オートロック - 宅配ボックス - 浴室乾燥機 -
床暖房 - ウォークインクローゼット - 管理人常駐 -
最上階 - 2階以上 - タワーマンション -
設備 エレベーター・管理人日勤
リフォーム履歴 -
リノベーション履歴 -
備考 <物件名>ネオコーポ浦和けやきの棟/委託(日勤)/<土地権利>所有権/<間取り>2LDK/<特徴>陽当たり良好の1階専用庭付住戸、2沿線以上利用可・東南向き・エレベーター
販売戸数:1戸/管理費等帯:9200円/修繕積立金帯:12900円
特記事項 管理人日勤

省エネ性能

エネルギー消費性能 -
断熱性能 -
目安光熱費 -

埼玉県さいたま市南区内谷3 周辺地図情報

地図
※地図上に表示される物件の位置は付近住所に所在することを表すものであり、実際の物件所在地とは異なる場合がございます。
   正確な物件所在地は、取扱い不動産会社にお問い合わせください。
物件を見たい、物件や住環境の詳しい情報やローン相談など、
お問い合わせ先
大和ライフネクスト(株)資産管理サポート営業課

不動産会社情報

お問い合わせ先 商号:大和ライフネクスト(株)資産管理サポート営業課
免許番号:国土交通大臣(3)第008702号
所在地:東京都港区赤坂5-1-33
TEL:0120-901015
取引態様:専任媒介
管理コード:A50032(30648)
共有する
QRコード
物件を見たい、物件や住環境の詳しい情報やローン相談など、
お問い合わせ先
大和ライフネクスト(株)資産管理サポート営業課

さいたま市南区の暮らしデータ

人口などの統計情報

世帯数 581501世帯
人口総数 1345012人
転入者数 83362人
転入率(人口1000人当たり)
61.98人
転出者数 73089人
転出率(人口1000人当たり)
54.34人
土地平均価格
住宅地
205305円/m2
商業地
715276円/m2

結婚・育児の助成金

子育て関連の独自の取り組み (1)父親の子育て参加の推進(父親等の1日保育士・幼稚園教諭体験の実施、父親向け子育て応援冊子「父子手帖」の配布)。(2)のびのびルーム事業(3歳未満の子どもと保護者の集い・遊びの場として、放課後児童クラブの空き時間を開放)。(3)三世代子育て応援事業(「孫育て講座」の実施、祖父母と子育て世代の関係をより円滑にするため「祖父母手帳」の配布)。(4)子どもの社会参画推進事業(「子どもがつくるまち」の実施)。(5)のびのび赤ちゃん応援金、多子世帯子育て応援金の給付。
出産祝い あり
公立保育所数 59所(うち0歳児保育を実施している保育所:36所)
私立保育所数 268所(うち0歳児保育を実施している保育所:253所)
保育所入所待機児童数 0人
認定こども園数 17園 預かり保育実施園数 公立:- 私立:85園
学校給食 【小学校】完全給食【中学校】完全給食
公立中学校の学校選択制 一部実施(特定地域選択制)
子ども・学生等医療費助成<通院>対象年齢 18歳3月末まで 子ども・学生等医療費助成<入院>対象年齢 18歳3月末まで

さいたま市南区の治安・ごみ収集情報

公共料金・インフラ

ガス料金(22m3使用した場合の月額) 東京瓦斯株式会社(東京地区等)3926円
東彩ガス株式会社(越谷・春日部地区)4893円
水道料金(口径20mmで20m3の月額) さいたま市3498円
下水道料金(20m3を使用した場合の月額) さいたま市2459円
下水道普及率 95.1%

安心・安全

建物火災出火件数 176件
人口10000人当たり
1.33件
刑法犯認知件数 8745件
人口1000人当たり
6.60件
ハザード・防災マップ あり

医療

一般病院総数 35ヶ所
一般診療所総数 1028ヶ所
小児科医師数 318人
小児人口10000人当たり
18.64人
産婦人科医師数 80人
15~49歳女性人口1万人当たり
2.82人
介護保険料基準額(月額) 6406円

ごみ

家庭ごみ収集(可燃ごみ) 無料
備考
-
家庭ごみの分別方式 5分別17種〔資源物1類(びん、かん、ペットボトル、容器包装プラスチック) 資源物2類(新聞、ダンボール、牛乳パック、雑誌類、その他の紙、繊維) 有害危険ごみ(蛍光管、乾電池、スプレーかん・カートリッジ式ボンベ、水銀体温計、ライター) もえないごみ もえるごみ〕 拠点回収:使用済小型家電
家庭ごみの戸別収集 一部実施(ふれあい収集)
粗大ごみ収集 あり
備考
有料。戸別収集。事前申込制。納付券払。
生ごみ処理機助成金制度 あり
上限金額
20000円
上限比率
50.0%

さいたま市南区の住まいの給付金

中古購入

利子補給制度 なし
補助/助成金制度 なし

増築・改築・改修

利子補給制度 なし
補助/助成金制度 あり
上限金額
126.6万円
備考
【さいたま市既存建築物耐震補強等助成事業】耐震診断費用、上限6.6万円。耐震補強設計費用の2/3、上限20万円。耐震補強工事費用の1/2、上限120万円から耐震補強設計に係る助成金の額を減じた額。
暮らしデータ提供元:生活ガイド.com
※行政機関により公表していない地域及びデータがございます。東京23区以外の政令指定都市は、市全体のデータとして表示しています。
※提供データには細心の注意を払っておりますが、調査後に変更がある場合があります。 最新の情報につきましては各市区役所までお問い合わせいただくか、自治体HPなどをご確認ください。

この物件を見た人はこんな物件も見ています

OCN×ドコモ光新規お申込みで合計最大137,280円相当おトク!特典の内訳・適用条件など詳細はこちら

さいたま市南区内の各駅の住みやすさ

住宅ローンの返済額一覧

物件価格 700万円に対して、年率 で、頭金 の場合
↓ボーナス 35年間 30年間 25年間 20年間 15年間 10年間
0万円 5,191円/月 5,983円/月 7,093円/月 8,758円/月 11,535円/月 17,090円/月
5万円 ローン不可 ローン不可 ローン不可 ローン不可 ローン不可 8,545円/月
10万円 ローン不可 ローン不可 ローン不可 ローン不可 ローン不可 ローン不可
15万円 ローン不可 ローン不可 ローン不可 ローン不可 ローン不可 ローン不可
20万円 ローン不可 ローン不可 ローン不可 ローン不可 ローン不可 ローン不可
25万円 ローン不可 ローン不可 ローン不可 ローン不可 ローン不可 ローン不可
30万円 ローン不可 ローン不可 ローン不可 ローン不可 ローン不可 ローン不可
支払い利息合計 180,220円~ 153,880円~ 127,900円~ 101,920円~ 76,300円~ 51,840円~
※元利均等返済方式で試算しています。 「円」の単位以下の端数金額は「切り捨て」として計算しております。
※金利は、固定金利として計算しております。
※上記の住宅ローン返済額一覧は、あくまで試算であり、将来の金利動向により、実際のご返済額とは異なります。
※ボーナス支払総額が総支払額の50%を超えている場合、上記の表では「ローン不可」となります。
※住宅ローン返済額一覧の数値は、住宅ローンのお申し込みやご融資をお約束するものではございません。
物件を見たい、物件や住環境の詳しい情報やローン相談など、
お問い合わせ先
大和ライフネクスト(株)資産管理サポート営業課

掲載情報の著作権は提供元企業等に帰属します。
Copyright:(C) 2025 Recruit Co., Ltd.
アプリで簡単 物件探し 大手不動産サイトの情報から一括検!プッシュ通知で物件を見逃さない
App Storeからダウンロード Google Playで手に入れよう QRコード