アプリで簡単 物件探し 通知 共有 アプリならではの機能を使ってみる
中古住宅

東京都目黒区大岡山1 大岡山駅 中古一戸建て・中古住宅

情報提供元
SUUMO
東京都目黒区大岡山1 大岡山駅 中古一戸建て・中古住宅
価格 16500万円
交通
所在地 東京都目黒区大岡山1周辺地図
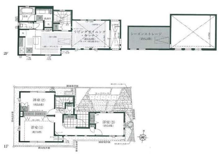
間取り 3LDK
建物面積 98.29m2 土地面積 82.29m2
築年月 2021年1月 築年数 築4年10ヶ月
おすすめポイント
◆物件情報◆中古戸建3LDK+車庫!東急目黒線・大井町線「大岡山」駅徒歩8分!2路線利用可能な便利な立地!スーパー、コンビニ、ドラッグストアが徒歩圏内で、日々のお買い物に便利◎保育園や小学校も近く、子育て環境としても良好!約5.3帖のシーズンストレージがあり、収納豊富♪大きく吹き抜けた開放感のあるリビングには、ルーフバルコニー付き!全室2面採光の明るい室内!食洗器や浴室乾燥機など嬉しい設備♪◆提携銀行多数完備、最適な住宅ローンのご提案、頭金0円でもご相談ください。(無料審査要)
物件を見たい、物件や住環境の詳しい情報やローン相談など、
お問い合わせ先
(株)リッツホーム

詳細情報

価格 16500万円
所在地 東京都目黒区大岡山1周辺地図
交通
間取り 3LDK 築年月(築年数) 2021年1月(築4年10ヶ月)
建物面積 98.29m2 建物構造・規模 木造2階建
土地面積 82.29m2 土地権利 所有権
私道面積 借地期間・地代
接道状況 駐車場
用途地域 都市計画
建ぺい率/容積率 60%/150% 現況
地目 引渡可能時期 相談
情報提供元 SUUMO [030Z78394639] 情報公開日
情報更新日 次回更新予定日 随時

設備など

1種低層地域 - 即入居可 - 売主・代理 -
駐車2台以上 - 平屋 - 本下水 -
都市ガス - カウンターキッチン - 床暖房 -
ウォークインクローゼット - バリアフリー -
設備 バルコニー・トイレ・浴室乾燥機・温水洗浄便座・システムキッチン・風呂・対面K・トイレ2ヶ所・衣類乾燥機・食器洗浄乾燥機
リフォーム履歴 -
リノベーション履歴 -
備考 <物件名>大岡山1(大岡山駅) 1億6500万円/<駐車場>カースペース/<土地権利>所有権/<間取り>3LDK/<特徴>来店不要*ご見学対応|現地やご希望の場所でお待ち合わせ! 、2沿線以上利用可・LDK18畳以上・システムキッチン・浴室乾燥機・対面式キッチン
販売戸数:1戸
特記事項

省エネ性能

エネルギー消費性能 -
断熱性能 -
目安光熱費 -

東京都目黒区大岡山1 周辺地図情報

地図
※地図上に表示される物件の位置は付近住所に所在することを表すものであり、実際の物件所在地とは異なる場合がございます。
   正確な物件所在地は、取扱い不動産会社にお問い合わせください。
物件を見たい、物件や住環境の詳しい情報やローン相談など、
お問い合わせ先
(株)リッツホーム

不動産会社情報

お問い合わせ先 商号:(株)リッツホーム
免許番号:東京都知事(3)第096295号
所在地:東京都目黒区自由が丘1-13-4ー606
TEL:03-5731-0567
取引態様:一般媒介
共有する
QRコード
物件を見たい、物件や住環境の詳しい情報やローン相談など、
お問い合わせ先
(株)リッツホーム

目黒区の暮らしデータ

人口などの統計情報

世帯数 155610世帯
人口総数 279520人
転入者数 26096人
転入率(人口1000人当たり)
93.36人
転出者数 24854人
転出率(人口1000人当たり)
88.92人
土地平均価格
住宅地
983667円/m2
商業地
1964286円/m2

結婚・育児の助成金

子育て関連の独自の取り組み (1)子どもの権利擁護委員制度(めぐろ はあと ねっと)。(2)子育てアプリ「めぐろ子育てホッ!とナビ」の運用。
出産祝い あり
公立保育所数 15所(うち0歳児保育を実施している保育所:15所)
私立保育所数 81所(うち0歳児保育を実施している保育所:74所)
保育所入所待機児童数 0人
認定こども園数 2園 預かり保育実施園数 公立:0園 私立:15園
学校給食 【小学校】完全給食【中学校】完全給食
公立中学校の学校選択制 実施(入学時のみ)
子ども・学生等医療費助成<通院>対象年齢 18歳3月末まで 子ども・学生等医療費助成<入院>対象年齢 18歳3月末まで

目黒区の治安・ごみ収集情報

公共料金・インフラ

ガス料金(22m3使用した場合の月額) 東京瓦斯株式会社(東京地区等)3926円
水道料金(口径20mmで20m3の月額) 東京都水道局2816円
下水道料金(20m3を使用した場合の月額) 東京都下水道局2068円
下水道普及率 100.0%

安心・安全

建物火災出火件数 51件
人口10000人当たり
1.77件
刑法犯認知件数 1346件
人口1000人当たり
4.67件
ハザード・防災マップ あり

医療

一般病院総数 9ヶ所
一般診療所総数 348ヶ所
小児科医師数 55人
小児人口10000人当たり
18.00人
産婦人科医師数 46人
15~49歳女性人口1万人当たり
6.55人
介護保険料基準額(月額) 6200円

ごみ

家庭ごみ収集(可燃ごみ) 無料
備考
一度に多量(45リットルの袋で5袋以上)のごみを出す場合は有料。
家庭ごみの分別方式 4分別7種〔燃やすごみ 燃やさないごみ 資源(プラスチック、ペットボトル、びん、缶) 水銀を含む製品〕 拠点回収:小型家電 電池類 紙パック 古着・古布 集団回収:古紙
家庭ごみの戸別収集 一部実施(集積所までごみを運び出すことが困難なひとり暮らしの高齢者及び障害者)
粗大ごみ収集 あり
備考
有料。事前申込制。処理手数料が必要。
生ごみ処理機助成金制度 なし
上限金額
-
上限比率
-

目黒区の住まいの給付金

中古購入

利子補給制度 なし
補助/助成金制度 なし

増築・改築・改修

利子補給制度 なし
補助/助成金制度 あり
上限金額
(1)60万円(2)60万円(3)300万円(4)10万円
備考
(1)【耐震診断助成】1981年5月31日以前に建築された住宅等。木造は診断費の3/5、非木造は診断費の1/2(上限60万円)。(2)【耐震補強設計助成】1981年5月31日以前に建築された住宅等。木造は設計費の1/2(上限20万円)、非木造は設計費の1/2(上限60万円)。(3)【耐震改修工事助成】1981年5月31日以前に建築された住宅等。木造は工事費の4/5(上限150万円、非課税世帯は上限180万円)、非木造は工事費の1/3(上限300万円)。(4)【住宅リフォーム助成】住宅リフォーム工事費用の一部を助成。一般リフォームについては費用の10%(上限10万円)。省エネリフォームについては費用の20%(上限20万円)。各制度他要件あり。
暮らしデータ提供元:生活ガイド.com
※行政機関により公表していない地域及びデータがございます。東京23区以外の政令指定都市は、市全体のデータとして表示しています。
※提供データには細心の注意を払っておりますが、調査後に変更がある場合があります。 最新の情報につきましては各市区役所までお問い合わせいただくか、自治体HPなどをご確認ください。

この物件を見た人はこんな物件も見ています

OCN×ドコモ光新規お申込みで合計最大137,280円相当おトク!特典の内訳・適用条件など詳細はこちら

目黒区内の各駅の住みやすさ

住宅ローンの返済額一覧

物件価格 16500万円に対して、年率 で、頭金 の場合
↓ボーナス 35年間 30年間 25年間 20年間 15年間 10年間
0万円 415,336円/月 478,703円/月 567,471円/月 700,694円/月 922,823円/月 1,367,222円/月
5万円 406,251円/月 469,727円/月 558,605円/月 691,935円/月 914,172円/月 1,358,676円/月
10万円 397,165円/月 460,751円/月 549,738円/月 683,176円/月 905,520円/月 1,350,131円/月
15万円 388,080円/月 451,776円/月 540,871円/月 674,418円/月 896,869円/月 1,341,586円/月
20万円 378,994円/月 442,800円/月 532,004円/月 665,659円/月 888,218円/月 1,333,041円/月
25万円 369,909円/月 433,824円/月 523,138円/月 656,900円/月 879,566円/月 1,324,496円/月
30万円 360,823円/月 424,849円/月 514,271円/月 648,142円/月 870,915円/月 1,315,951円/月
支払い利息合計 14,462,890円~ 12,351,800円~ 10,257,000円~ 8,179,040円~ 6,117,650円~ 4,072,860円~
※元利均等返済方式で試算しています。 「円」の単位以下の端数金額は「切り捨て」として計算しております。
※金利は、固定金利として計算しております。
※上記の住宅ローン返済額一覧は、あくまで試算であり、将来の金利動向により、実際のご返済額とは異なります。
※ボーナス支払総額が総支払額の50%を超えている場合、上記の表では「ローン不可」となります。
※住宅ローン返済額一覧の数値は、住宅ローンのお申し込みやご融資をお約束するものではございません。
物件を見たい、物件や住環境の詳しい情報やローン相談など、
お問い合わせ先
(株)リッツホーム

掲載情報の著作権は提供元企業等に帰属します。
Copyright:(C) 2025 Recruit Co., Ltd.
アプリで簡単 物件探し 大手不動産サイトの情報から一括検!プッシュ通知で物件を見逃さない
App Storeからダウンロード Google Playで手に入れよう QRコード