アプリで簡単 物件探し 通知 共有 アプリならではの機能を使ってみる
RSS

北上尾駅(埼玉県)の中古一戸建て・中古住宅 物件一覧

北上尾駅(埼玉県)の中古住宅、中古一軒家などの中古一戸建て物件をご紹介します。中古物件、中古一軒家、中古建売住宅などの中古一戸建て物件情報を探すならgoo住宅・不動産。価格・建物面積・土地面積・間取り・人気のこだわり条件から物件を簡単検索。理想のマイホーム探しをgoo住宅・不動産がサポートします。

167 並び替え
チェックした物件を一括で
選択 物件タイプ
画像
所在地/交通
(駅/バス 所要時間)
価格 間取り
建物面積
土地面積 築年月
築年数
new

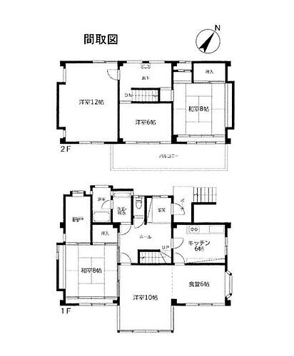
埼玉県上尾市中妻3 3,380万円 4LDK

  • 中古住宅
  • 埼玉県上尾市中妻3 中古住宅
    間取り図
埼玉県上尾市中妻3
JR高崎線 北上尾駅 徒歩14分
3,380
万円
4LDK
104.73m2
143.31m2 1994年11月(築31年7ヶ月)
  • 2階建て
  • 駐車場あり
  • 所有権
  • リフォームリノベーション
new

埼玉県北本市中丸5 2,090万円 4LDK

  • 中古住宅
  • 埼玉県北本市中丸5 中古住宅
    間取り図
埼玉県北本市中丸5
JR高崎線 北本駅 徒歩26分
JR高崎線 桶川駅 徒歩3.7km
JR高崎線 北上尾駅 徒歩5.5km
2,090
万円
4LDK
98.82m2
139.51m2 2006年4月(築20年2ヶ月)
  • 2階建て
  • 駐車場あり
  • 駐車3台
  • システムキッチン
  • オール電化
  • 浴室乾燥機
  • 所有権
  • リフォームリノベーション
おすすめポイント
穏やかな住宅街に佇む、太陽光発電付き・オール電化住宅です。全室6帖以上のゆとりある設計で、リビングは約17.5帖の広々空間。リビングクロスは落ち着いた色合いでまとめられ、家族が自然と集まる心地よい空間です。浴室には乾燥機能付きで、雨の日も快適に洗濯可能♪2階の各洋室から出入りできるバルコニーは使い勝手も良く、開放的で明るい暮らしを実現します。【おすすめポイント】・太陽光発電×オール電化で光熱費を賢く節約・全室6帖以上、家族がゆったり過ごせる間取り・最大3台駐車可能!来客時も安心・前面道路約5mで駐車ラクラク・2階全室から出入りできるバルコニー

埼玉県桶川市寿1 6,800万円 他

  • 中古住宅
  • 埼玉県桶川市寿1 中古住宅
    間取り図
埼玉県桶川市寿1
JR高崎線 桶川駅 徒歩1分
JR高崎線 北上尾駅 徒歩25分
埼玉新都市交通伊奈線 内宿駅 徒歩4.1km
6,800
万円

155.52m2
77.26m2 1965年11月(築60年7ヶ月)
  • 3階建て以上
  • 都市ガス
  • システムキッチン
  • 所有権
  • 即入居可
  • リフォームリノベーション
おすすめポイント
■令和6年6月に内装・外壁大規模改装工事済(鉄骨構造材及び内外壁耐震補強工事実施済)■外壁IG工業ガルバ鋼板仕様で地震に強く耐久性・断熱性に優れます■3戸分の専用宅配BOX有■各戸ライフラインも個別引込済で、二世帯住宅としてや賃貸利用など、多目的に使用できます

埼玉県上尾市浅間台1 1億1,880万円 7SLDK

  • 中古住宅
  • 埼玉県上尾市浅間台1 中古住宅
    間取り図
埼玉県上尾市浅間台1
JR高崎線 北上尾駅 徒歩5分
湘南新宿ライン高海 北上尾駅 徒歩5分
1億1,880
万円
7SLDK
237.24m2
354m2 2004年11月(築21年7ヶ月)
  • 2階建て
  • ルーフバルコニー
  • 駐車場あり
  • 駐車3台
  • システムキッチン
  • オール電化
  • 所有権
おすすめポイント
-物件のおすすめポイント-▼立地・高崎線・湘南新宿ライン「北上尾」徒歩5分・閑静な住宅街▼特徴・トヨタホーム施工(60年長期保証制度有)のメーターモジュール住宅・2階LDKは約24.4帖の広さ・WIC・WIP等、随所に収納有・浴室×2、洗面室×2、トイレ×3・ランドリースペースは約6帖・6台駐車可能(内4台は屋根付/車種による)▼設備・食洗機・玄関電気錠、窓施錠モニター(警報付)・EV・PHEV充電用コンセント(200V)※法22条区域■ ご希望の住まい探しをお手伝いします ━━━━━・・・物件の詳細・ご相談はお気軽にお問い合わせください。

埼玉県上尾市浅間台1 3,180万円 4LDK

  • 中古住宅
  • 埼玉県上尾市浅間台1 中古住宅
    間取り図
埼玉県上尾市浅間台1
JR高崎線 北上尾駅 徒歩6分
湘南新宿ライン高海 北上尾駅 徒歩6分
3,180
万円
4LDK
189.87m2
110.98m2 1990年5月(築36年1ヶ月)
  • 3階建て以上
  • 都市ガス
  • 駐車場あり
  • 駐車2台
  • 所有権
  • 即入居可
おすすめポイント
-物件のおすすめポイント-▼立地・JR高崎線・湘南新宿ライン「北上尾」徒歩6分・閑静な住宅街・南西・北西に接道、北西側前面道路は幅員約6.9m公道▼特徴・建物面積約57.43坪の軽量鉄骨造3階建・1階は6帖以上の応接室2室有・2・3階に玄関やキッチン含む水回りを配置・2階LDK約22.5帖のリビング部分に和室約8帖が隣接・南東・南西の2面ベランダ付・駐車2台可(車種による)・即引渡し可(残金精算後)▼周辺環境・ベルク上尾春日店 徒歩6分(約420m)■ ご希望の住まい探しをお手伝いします ━━━━━・・・物件の詳細・ご相談はお気軽にお問い合わせください。

埼玉県桶川市若宮2 2,480万円 3LDK

  • 中古住宅
  • 埼玉県桶川市若宮2 中古住宅
    間取り図
埼玉県桶川市若宮2
JR高崎線 桶川駅 徒歩8分
JR高崎線 北上尾駅 徒歩25分
JR高崎線 上尾駅 徒歩4.0km
2,480
万円
3LDK
80m2
107.67m2 1984年4月(築42年2ヶ月)
  • 2階建て
  • 都市ガス
  • 駐車場あり
  • 床暖房
  • 所有権
  • リフォームリノベーション
おすすめポイント
\介護用住宅仕様のバリアフリー設計が充実/・JR高崎線「桶川」駅まで徒歩8分の立地・バリアフリー設計(玄関スロープ・リビング玄関自動ドア・スイッチ低位置設置)・2016年3月にリフォーム実施済み(玄関・トイレ・洗面・浴室・クロス・給湯器ほか)・間口約11mの広々敷地・駐車スペース1台分確保・床暖房/一部二重サッシ/エアコン/照明付き・ドラッグストア・コンビニなど生活施設が徒歩5分圏内に充実・小学校まで徒歩13分・中学校まで徒歩14分の通学しやすい環境【~2016.3~リフォーム歴あり】玄関、トイレ、洗面、浴室、クロス、床、給湯器、玄関スロープ、ほか

埼玉県桶川市若宮2 2,680万円 3LDK

  • 中古住宅
  • 埼玉県桶川市若宮2 中古住宅
    間取り図
埼玉県桶川市若宮2
JR高崎線 桶川駅 徒歩9分
湘南新宿ライン高海 桶川駅 徒歩9分
JR高崎線 北上尾駅 徒歩21分
2,680
万円
3LDK
97.94m2
124.19m2 1991年6月(築35年)
  • 2階建て
  • オール電化
  • 所有権
おすすめポイント
■ おすすめポイント ━━━━━━━━━━━━━━━・・・・・ ○ JR「桶川」駅徒歩9分 〇 オール電化住宅 〇 駐車スペース有(車種による) 〇 TVモニター付きインターホン   〇 南東向きバルコニー、2部屋より出入り可能

埼玉県桶川市末広1 2,980万円 1LDK

  • 中古住宅
  • 埼玉県桶川市末広1 中古住宅
    間取り図
埼玉県桶川市末広1
JR高崎線 桶川駅 徒歩10分
JR高崎線 北上尾駅 徒歩30分
埼玉新都市交通伊奈線 内宿駅 徒歩3.4km
2,980
万円
1LDK
57.7m2
100.04m2 2019年11月(築6年7ヶ月)
  • 2階建て
  • 駐車場あり
  • システムキッチン
  • 浴室乾燥機
  • 所有権
  • 即入居可
おすすめポイント
■室内状況大変良好です■シャッター付カーポート(EV充電対応)■広々とした南東向きバルコニー・庭■充実した収納スペース■複層ガラス採用~周辺環境~■ヨークマート 桶川店 徒歩2分■ロピア 上尾ビバホーム店 徒歩10分■セブンイレブン 桶川東1丁目店 徒歩7分■スギドラッグ 桶川末広店 徒歩7分■小島医院 徒歩8分

埼玉県上尾市愛宕2 2,980万円 4LDK

  • 中古住宅
  • 埼玉県上尾市愛宕2 中古住宅
    間取り図
埼玉県上尾市愛宕2
JR高崎線 上尾駅 徒歩14分
JR高崎線 北上尾駅 徒歩35分
2,980
万円
4LDK
101.84m2
90.41m2 2003年4月(築23年2ヶ月)
  • 3階建て以上
  • 駐車場あり
  • システムキッチン
  • 所有権
おすすめポイント
■料理をしながらご家族との会話を楽しめる対面キッチン■全居室収納有り■カースペース有り(車種による)※埼玉県建築基準法施行条例第3条第1項ただし書きにより建築可能です。

埼玉県上尾市錦町 5,280万円 4LDK

  • 中古住宅
  • 埼玉県上尾市錦町 中古住宅
    間取り図
埼玉県上尾市錦町
JR高崎線 北上尾駅 徒歩15分
5,280
万円
4LDK
119.24m2
287.84m2 1978年9月(築47年9ヶ月)
  • 2階建て
  • システムキッチン
  • 所有権
おすすめポイント
┏□ アクセス ┗┻━━━━━━━━━━━━━━━━━・JR高崎線「北上尾」駅・徒歩15分┏□ 物件概要┗┻━━━━━━━━━━━━━━━━━・土地面積:287.84m2(87.07坪)・建物面積:119.24m2(36.07坪)・間取タイプ:4L・DK  ~全居室6畳以上有~・DK約6畳:出窓に面したシステムキッチン        吊戸棚、床下収納、勝手口有・リビング約9畳:南西側に掃き出し窓4枚を配し  明るく風通しの良い室内・納戸有(約2.5畳相当)・カースペース有・現況空家につき、ご都合に合わせてご案内可能です

埼玉県上尾市大字上 1,480万円 3LDK

  • 中古住宅
  • 埼玉県上尾市大字上 中古住宅
    間取り図
埼玉県上尾市大字上
JR高崎線 桶川駅 徒歩16分
JR高崎線 北上尾駅 徒歩38分
JR高崎線 上尾駅 徒歩4.9km
1,480
万円
3LDK
83.63m2
104.26m2 1987年6月(築39年)
  • 2階建て
  • 駐車場あり
  • システムキッチン
  • オール電化
  • 浴室乾燥機
  • 所有権
  • リフォームリノベーション
おすすめポイント
\暮らしやすさ、整っています◎リフォーム済・設備充実の中古戸建/・JR高崎線「桶川」駅から徒歩16分、利便性の高い住環境・4LDK対応可変間取り(2F洋室を2部屋に仕切ることが可能)・2016年に外壁・屋根塗装を実施 その後もトイレ交換・ウッドデッキ改修など継続的にリフォーム済・IHコンロ・食洗器・ウォシュレットトイレ・追い炊き・浴室暖房乾燥機 TVモニターホンなど室内設備が充実・1.25坪の広々とした浴室でゆったりくつろげる・南側にウッドデッキ付き・駐車場1台分確保(軽・小型車)・スーパー・コンビニなど生活施設が徒歩・近距離圏内~お気軽にお問い合わせください。

埼玉県上尾市中妻4 2,380万円 4LDK

  • 中古住宅
  • 埼玉県上尾市中妻4 中古住宅
    間取り図
埼玉県上尾市中妻4
JR高崎線 北上尾駅 徒歩17分
2,380
万円
4LDK
104.99m2
110.09m2 1998年11月(築27年7ヶ月)
  • 2階建て
  • 都市ガス
  • 駐車場あり
  • 駐車2台
  • システムキッチン
  • 所有権
  • バリアフリー
おすすめポイント
〇カースペース2台駐車可(車種による)〇都市ガス・本下水〇大石北小学校徒歩6分、お子様の通学も安心です。〇敷地約33坪の整形地です。〇前面道路幅員約6.0mにて駐車もスムーズ。〇2階リビングにて陽当たり・通風良好です。

埼玉県上尾市大字西門前 3,180万円 4LDK

  • 中古住宅
  • 埼玉県上尾市大字西門前 中古住宅
    間取り図
埼玉県上尾市大字西門前
JR高崎線 北上尾駅 徒歩17分
3,180
万円
4LDK
102.86m2
122.4m2 2017年4月(築9年2ヶ月)
  • 2階建て
  • システムキッチン
  • オール電化
  • 所有権
おすすめポイント
・JR高崎線「北上尾」駅・徒歩17分・土地面積:122.40m2(37.02坪)・建物面積:102.86m2(31.11坪)・間取タイプ:4LDK・2017年4月築・オール電化住宅・LDK約18.5畳 ~南東向き、3面採光につき   明るく風通しの良い室内です~・対面式キッチン:IHクッキングヒーター・給湯器:エコキュート・収納:全居室収納有、土間収納(玄関)    床下収納(キッチン)、トイレに収納有    玄関ホールにクローゼット有・南東向きバルコニー:屋根有・カースペース有・土地面積の他、ごみ置場面積1.21m2×持分1/4有・土地の一部に道路計画有り

埼玉県上尾市大字上 3,590万円 2SLDK

  • 中古住宅
  • 埼玉県上尾市大字上 中古住宅
    間取り図
埼玉県上尾市大字上
JR高崎線 桶川駅 徒歩17分
JR高崎線 北上尾駅 徒歩37分
埼玉新都市交通伊奈線 内宿駅 徒歩3.2km
3,590
万円
2SLDK
96.46m2
121.46m2 2023年12月(築2年6ヶ月)
  • 2階建て
  • 都市ガス
  • 駐車場あり
  • 駐車2台
  • システムキッチン
  • 所有権
おすすめポイント
東証プライム市場上場HOUSE DOの加盟店全国708店舗展開 ハウスドゥ 大宮宮原です~ハウスドゥ住まいのワンストップサービス~●提携金融機関のご紹介変動0.648%(最優遇)『スゴ団信』で大きな安心! *病気やケガで働けなくなった時、住宅ローン残高→0円! *ガンと診断された時、住宅ローン残高→半額!●火災保険&引越し業者&リフォーム等の全面サポート※ハウスドゥ専用割引あり●【頭金0円】からのご購入◎ご購入されるお客様をHOUSE DOと全面サポートします。物件について、ご見学希望のお客様はお気軽にご連絡下さい。専用フリーダイヤル 【0120-590-772】

埼玉県上尾市緑丘5 3,990万円 4LDK

  • 中古住宅
  • 埼玉県上尾市緑丘5 中古住宅
    間取り図
埼玉県上尾市緑丘5
JR高崎線 北上尾駅 徒歩18分
JR高崎線 上尾駅 徒歩26分
JR高崎線 桶川駅 徒歩3.3km
3,990
万円
4LDK
102.26m2
121.09m2 2021年12月(築4年6ヶ月)
  • 2階建て
  • 駐車場あり
  • 駐車2台
  • システムキッチン
  • オール電化
  • 浴室乾燥機
  • 所有権
おすすめポイント
東証プライム市場上場HOUSE DOの加盟店全国708店舗展開 ハウスドゥ 大宮宮原です~ハウスドゥ住まいのワンストップサービス~●提携金融機関のご紹介変動0.648%(最優遇)『スゴ団信』で大きな安心! *病気やケガで働けなくなった時、住宅ローン残高→0円! *ガンと診断された時、住宅ローン残高→半額!●火災保険&引越し業者&リフォーム等の全面サポート※ハウスドゥ専用割引あり●【頭金0円】からのご購入◎ご購入されるお客様をHOUSE DOと全面サポートします。物件について、ご見学希望のお客様はお気軽にご連絡下さい。専用フリーダイヤル 【0120-590-772】

埼玉県上尾市中妻5 2,450万円 3LDK

  • 中古住宅
  • 埼玉県上尾市中妻5 中古住宅
    間取り図
埼玉県上尾市中妻5
JR高崎線 北上尾駅 徒歩19分
JR高崎線 桶川駅 徒歩24分
JR高崎線 上尾駅 徒歩38分
2,450
万円
3LDK
84.87m2
117.14m2 1994年4月(築32年2ヶ月)
  • 2階建て
  • 都市ガス
  • 駐車場あり
  • システムキッチン
  • 所有権
  • リフォームリノベーション
おすすめポイント
◇物件の特徴◇■H25年11月リフォーム済み再生住宅■カースペース1台嬉しい設備がたくさんそろった空間で夢のマイホームを叶えましょう♪◇周辺環境◇大石北小学校まで  徒歩7分大石中学校まで  徒歩8分TAIRAYAまで  徒歩9分生活環境の整った満足な立地です☆〇●〇アップルホームの魅力〇●〇1)全員不動産経験豊富なプロ集団!お任せください2)ポータルサイトに掲載されていない物件情報も多数有!地域密着の担当スタッフにお気軽にご相談下さい!3)住宅ローン相談無料で受付致します!4)即日・平日・夜間のご対応も可能

埼玉県上尾市弁財1 2,480万円 3LDK

  • 中古住宅
  • 埼玉県上尾市弁財1 中古住宅
埼玉県上尾市弁財1
JR高崎線 上尾駅 徒歩19分
JR高崎線 北上尾駅 徒歩26分
湘南新宿ライン高海 上尾駅 徒歩19分
2,480
万円
3LDK
80.32m2
100.42m2 1994年6月(築32年)
  • 2階建て
  • 都市ガス
  • 駐車場あり
  • システムキッチン
  • 所有権
  • 即入居可
  • リフォームリノベーション
おすすめポイント
■料理をしながらご家族との会話を楽しめる対面キッチン■浄水器一体型のキッチン水栓■保温・洗浄付きのトイレ■来訪者を確認できるTVモニター付インターホン■季節物の収納に便利な小屋裏収納付(洋室6帖)お気軽にお問合せください

埼玉県上尾市井戸木4 1,750万円 5DK

  • 中古住宅
  • 埼玉県上尾市井戸木4 中古住宅
    間取り図
埼玉県上尾市井戸木4
JR高崎線 桶川駅 徒歩22分
JR高崎線 北上尾駅 徒歩25分
1,750
万円
5DK
104.3m2
106.25m2 1999年10月(築26年8ヶ月)
  • 2階建て
  • 駐車場あり
  • 所有権
おすすめポイント
◇延床面積:104.30㎡ 間取り:5DK+スカイバルコニー◇開放感あるスカイバルコニー付きのゆとりある5Dk◇各部屋に収納付き◇家族構成やライフスタイルに合わせて柔軟に使える間取です。リフォーム相談も承ります。◇60年長期サポート継承可能(5年毎の無償点検)◇既存住宅瑕疵保険 付保予定※建物設備修補責任免責※前面道路幅員4.0m未満のため、建替え時には幅員4.0m復元対応が必要です。(詳細は担当へ確認下さい)

埼玉県上尾市大字上 2,480万円 4LDK

  • 中古住宅
  • 埼玉県上尾市大字上 中古住宅
    間取り図
埼玉県上尾市大字上
JR高崎線 桶川駅 徒歩22分
JR高崎線 北上尾駅 徒歩36分
埼玉新都市交通伊奈線 内宿駅 徒歩3.2km
2,480
万円
4LDK
102.68m2
262.7m2 2014年10月(築11年8ヶ月)
  • 2階建て
  • 駐車場あり
  • 駐車3台
  • システムキッチン
  • オール電化
  • 所有権
おすすめポイント
\約80坪の敷地で叶える、庭のある豊かな暮らし/■駐車3台可&全室南西向きの4LDKサッカーやバスケも楽しめる自慢の広々ガーデン◎!南側が開けているため陽当たりも良好です。オール電化で家計にも優しく、のびのびと子育てを楽しみたいご家族にぴったりのお住まいです。■設備充実です!オール電化食器洗浄乾燥機IHクッキングヒーター温水洗浄便座浴室換気乾燥機■センチュリー21住タック■~上尾市周辺の不動産は住タックになんでもご相談ください~地域密着で創業20年以上~地元の情報にも強いです!些細な事でもご相談下さい。お気軽にお問い合わせお待ちしております!
チェックした物件を一括で

埼玉県上尾市大字小泉 2,590万円 3LDK

  • 中古住宅
  • 埼玉県上尾市大字小泉 中古住宅
    間取り図
埼玉県上尾市大字小泉
JR高崎線 北上尾駅 徒歩22分
2,590
万円
3LDK
79.48m2
102.28m2 2023年2月(築3年4ヶ月)
  • 2階建て
  • システムキッチン
  • 所有権
  • 即入居可
おすすめポイント
・JR高崎線「北上尾」駅 徒歩22分・土地面積:102.28m2(30.93坪)・建物面積:79.48m2(24.04坪)・3LDK・令和5年2月築・LDK16.0畳・全居室収納あり(LDを除く)広告要件備考その他:太陽光発電について対象不動産建物屋根部分には、太陽光発電パネルが設置されておりますが、東京電力株式会社と売主との間で電力受給契約が締結されておりません。買主は、対象不動産引渡し後、太陽光設備機器会社、東京電力ならびに経済産業省資源エネルギー庁への登録手続きが必要となります。また、太陽光発電設備については、保守・点検が必要となり、その際費用が発生します(買主負担)。

埼玉県上尾市大字上 1,250万円 4LDK

  • 中古住宅
  • 埼玉県上尾市大字上 中古住宅
    間取り図
埼玉県上尾市大字上
JR高崎線 北上尾駅 徒歩24分
1,250
万円
4LDK
89.01m2
115.71m2 1993年12月(築32年6ヶ月)
  • 2階建て
  • 所有権
  • 即入居可
おすすめポイント
・土地面積:115.71m2・建物面積:89.01m2・間取タイプ:4LDK・独立型キッチン:勝手口有、床下収納有 ~出窓に面した壁付キッチン~・キッチン⇔洗面室⇔廊下の2WAY動線 ~家事効率の良い動線~・1階和室約6畳は廊下側とLD側との2WAY ~客間としてもお使い頂けます~・各居室収納有※LDを除く・カースペース2台駐車可※駐車可能寸法に制限有広告要件備考:建築基準法の道路に接道していませんが、一括許可(包括同意)基準に適合するため、建築基準法第43条第2項第2号の許可を受けて再建築可能です。

埼玉県上尾市大字久保 1,480万円 4LDK

  • 中古住宅
  • 埼玉県上尾市大字久保 中古住宅
    間取り図
埼玉県上尾市大字久保
JR高崎線 桶川駅 徒歩24分
埼玉新都市交通伊奈線 内宿駅 徒歩32分
湘南新宿ライン高海 北上尾駅 徒歩3.2km
1,480
万円
4LDK
79.91m2
89.25m2 1993年1月(築33年5ヶ月)
  • 2階建て
  • 所有権
おすすめポイント
上尾市大字久保 中古住宅のご紹介です!!リフォームで快適な暮らしを実現♪【2026年3月リフォーム完成予定】・全室クロス張替え・畳表替え・建具調整、微調整・ハウスクリーニング◆国道17号線まで車で約6分多方面へのアクセス良好で、お出かけや通勤にも便利◎◎周辺施設・マミーマート桶川坂田店 約600m・カスミフードスクエアフレスポ桶川坂田店 約900m・スギドラッグ上尾上店 約400m・ミニストップ桶川小針領家店 約450m・ニトリ桶川店 約1,400m□■当店物件情報をご覧いただきありがとうございます■□

埼玉県桶川市末広3 2,780万円 4LDK

  • 中古住宅
  • 埼玉県桶川市末広3 中古住宅
    間取り図
埼玉県桶川市末広3
JR高崎線 桶川駅 徒歩24分
JR高崎線 北上尾駅 徒歩3.5km
埼玉新都市交通伊奈線 内宿駅 徒歩3.6km
2,780
万円
4LDK
92.32m2
175.94m2 2013年11月(築12年7ヶ月)
  • 2階建て
  • 駐車場あり
  • 駐車3台
  • システムキッチン
  • 所有権
  • リフォームリノベーション
おすすめポイント
【おすすめPoint】■全所有者が別荘として利用していたため、使用感があまり感じられません!■南東道路に面している為陽当り良好の明るい邸宅♪■スーパーやコンビニなどお買い物施設が充実した生活便利な立地です♪■国道17号線、桶川加納ICが近く車のアクセス良好です♪■全居室お手入れのしやすい洋室です♪■全居室2面採光につき陽当り・通風良好です♪【リフォーム内容】(令和7年9月完了)・クロス全室張替 ・給湯器交換 ・ベランダトップコート塗装 ・全室コンセントカバー交換 ・防蟻工事(2013年12月完了)・2階トイレ増設 ・庭全面コンクリート張り ・1F2F網戸シャッター施工

埼玉県上尾市小泉9 2,980万円 3LDK

  • 中古住宅
  • 埼玉県上尾市小泉9 中古住宅
    間取り図
埼玉県上尾市小泉9
JR高崎線 北上尾駅 徒歩24分
湘南新宿ライン高海 北上尾駅 徒歩24分
2,980
万円
3LDK
91.08m2
116.47m2 2007年6月(築19年)
  • 2階建て
  • 駐車場あり
  • 駐車2台
  • オール電化
  • 所有権
  • リフォームリノベーション
おすすめポイント
-物件のおすすめポイント-▼立地・区画整理完了地内の閑静な住宅街▼建物の特徴・オール電化・南西側公道に接道のため日当たり良好・1階はLDKのみを配置したゆとりある3LDK▼お部屋の特徴・広々としたLDKは約18.1帖・2面採光につき日当たり・通風良好▼設備・対面式キッチン・洗面所2か所・L字型バルコニー・駐車スペース2台分(車種制限有)▼リフォーム内容・全室クロス張替(2026年4月実施)・浴室、キッチン、洗面台、トイレ、 エコキュート、防水パン交換(2026年5月末完了予定)▼周辺環境・大石小学校まで約720m・天神公園まで約70m

埼玉県上尾市小泉8 2,980万円 4LDK

  • 中古住宅
  • 埼玉県上尾市小泉8 中古住宅
    間取り図
埼玉県上尾市小泉8
JR高崎線 北上尾駅 徒歩26分
2,980
万円
4LDK
101.02m2
126.21m2 2019年11月(築6年7ヶ月)
  • 2階建て
  • 都市ガス
  • システムキッチン
  • 浴室乾燥機
  • 所有権
おすすめポイント
・JR高崎線「北上尾」駅・徒歩26分・土地面積:126.21m2(38.17坪)・建物面積:101.02m2(30.55坪)・間取タイプ:4LDK・2019年11月築・全居室南向き!・北側約15.4m公道に面す  ~歩道が整備されています~・LDK約17畳有・対面式キッチン・1階和室はホール側とLD側との2WAY動線  ~客間としてもお使い頂けます~・収納:全居室収納有、ウォークインクローゼット    床下収納、トイレに収納有・インナーバルコニー  ~急な雨にもあわてず対応できます~・カーポート有・都市ガス・本下水

埼玉県上尾市大字小泉 7,980万円 3LDK

  • 中古住宅
  • 埼玉県上尾市大字小泉 中古住宅
    間取り図
埼玉県上尾市大字小泉
JR高崎線 北上尾駅 徒歩28分
湘南新宿ライン高海 北上尾駅 徒歩28分
7,980
万円
3LDK
152.55m2
301.53m2 2009年2月(築17年4ヶ月)
  • 2階建て
  • 南道路
  • 駐車場あり
  • 駐車2台
  • システムキッチン
  • 床暖房
  • 所有権
おすすめポイント
-物件のおすすめポイント-▼特徴・敷地面積約91.21坪、鉄骨造の住宅・3面採光のLDKは約27.9帖の広さ・コミュニケーションを育むリビングスルー階段・食洗機搭載の対面式キッチン、食品庫付・納戸やSC等、室内随所に収納を確保・LDに面したサンルーフ・ウッドデッキ有・広々としたお庭有・駐車場2台分有(車種による)▼設備・床暖房・ダブルボウル洗面化粧台・浴室TV▼周辺環境・上尾市立大石北小学校 徒歩6分(約450m)※敷地の一部は容積率100%■ ご希望の住まい探しをお手伝いします ━━━━━・・・物件の詳細・ご相談はお気軽にお問い合わせください。

埼玉県桶川市大字加納 2,980万円 4LDK

  • 中古住宅
  • 埼玉県桶川市大字加納 中古住宅
    間取り図
埼玉県桶川市大字加納
JR高崎線 桶川駅 徒歩29分
JR高崎線 北上尾駅 徒歩4.4km
2,980
万円
4LDK
111.58m2
191.69m2 2019年1月(築7年5ヶ月)
  • 2階建て
  • 南道路
  • 都市ガス
  • 駐車場あり
  • システムキッチン
  • 所有権
おすすめポイント
コンビニがすぐ近所はすごく嬉しいですよね! スーパーの買い忘れや、夜食のお買い物もできちゃいますね。 朝はコーヒーやカフェラテを買って出勤してみてはいかがですか?【弊社では以下の5つをお客様にお約束いたします】1.物件の善し悪しは全て正直にお話しします。2.無理な売り込みや契約の催促、突然の訪問等、しつこい営業は一切行いません。3.契約したら終わりではなくお引き渡し後、お引越し後もお客様のパートナーであること。4.ウソやおとり広告は一切使いません。(データ更新は迅速に行います。)5.お客様の個人情報は細心の注意を払って取り扱いします。

埼玉県上尾市小泉7 2,880万円 4LDK

  • 中古住宅
  • 埼玉県上尾市小泉7 中古住宅
    間取り図
埼玉県上尾市小泉7
JR高崎線 北上尾駅 徒歩30分
JR高崎線 上尾駅 徒歩35分
JR高崎線 桶川駅 徒歩3.8km
2,880
万円
4LDK
91.29m2
120.05m2 2022年2月(築4年4ヶ月)
  • 2階建て
  • 都市ガス
  • 駐車場あり
  • 駐車2台
  • システムキッチン
  • 浴室乾燥機
  • 所有権
おすすめポイント
■生活の中心となるLDKは15帖!ゆったりした広さで、家族団らんの温かい時間を過ごせます(^^)■リビングと和室が続き間設計なので、小さいお子様の遊び場には最適な間取りです。■オープンキッチンはリビングを見渡せるので、料理をしながらでも子供の様子に目が届いて安心です初めてのマイホーム探しは、地元のひだまりハウスにお任せください!◆お車でお越しの際は◆お客様駐車場も店舗敷地内にございます◆清潔・整理整頓のこころがけ◆除菌や清潔さを大切に、毎日の掃除・整理整頓をこころがけております。◆女性おひとりでも安心◆強引な接客なし。スタッフ一同お客様の立場で親身にご応対いたします♪

埼玉県上尾市小泉7 2,880万円 4LDK

  • 中古住宅
  • 埼玉県上尾市小泉7 中古住宅
    間取り図
埼玉県上尾市小泉7
JR高崎線 北上尾駅 徒歩30分
JR高崎線 上尾駅 徒歩35分
JR高崎線 桶川駅 徒歩3.8km
2,880
万円
4LDK
91.29m2
120.05m2 2022年2月(築4年4ヶ月)
  • 2階建て
  • 都市ガス
  • 駐車場あり
  • 駐車2台
  • システムキッチン
  • 浴室乾燥機
  • 所有権
  • 即入居可
おすすめポイント
\SUUMOからお問い合わせ・ご成約の方へAmazonギフト券10万円を進呈!♪/オススメポイント【♪浴室乾燥機や食洗機付きで家事の負担も軽減♪】新築戸建・一部中古物件(掲載外も対象)のご成約でAmazonギフト券を進呈!※対象条件あり。 当社はどの会社よりも住宅ローン審査に柔軟対応し、承認率も高水準!借換えやおまとめローンもご相談いただけます! さらに地域密着で多数のハウスメーカーと取引があるため、価格交渉も安心してお任せください! さいたま市・上尾市を含め、埼玉県全域に特化し、【宅地建物取引士】【住宅ローンアドバイザー】がお住まい探しを全力サポートいたします!

埼玉県桶川市大字加納 2,980万円 4LDK

  • 中古住宅
  • 埼玉県桶川市大字加納 中古住宅
    間取り図
埼玉県桶川市大字加納
JR高崎線 桶川駅 徒歩30分
JR高崎線 北本駅 徒歩3.6km
JR高崎線 北上尾駅 徒歩4.4km
2,980
万円
4LDK
111.58m2
191.69m2 2019年1月(築7年5ヶ月)
  • 2階建て
  • 南道路
  • 都市ガス
  • 駐車場あり
  • 駐車3台
  • システムキッチン
  • 所有権
おすすめポイント
■2WAY構造の和室は、玄関からも直接行き来可能で、スムーズな動線が確保できます(*^^*)■リビングと和室が続き間設計なので、小さいお子様の遊び場には最適な間取りです。■オープンキッチンで開放感のある帖のLDK。家事をしながらでもお子様の様子に目が届きます!初めてのマイホーム探しは、ひだまりハウスにお任せください!◆清潔・整理整頓のこころがけ◆除菌や清潔さを大切に、毎日の掃除・整理整頓をこころがけております。◆女性おひとりでも安心◆強引な接客なし。スタッフ一同お客様の立場で親身にご応対いたします♪◆キッズスペース完備◆

埼玉県上尾市中分6 1,180万円 4LDK

  • 中古住宅
  • 埼玉県上尾市中分6 中古住宅
    間取り図
埼玉県上尾市中分6
JR高崎線 桶川駅 徒歩33分
湘南新宿ライン高海 北上尾駅 徒歩30分
埼玉新都市交通伊奈線 内宿駅 徒歩6.7km
1,180
万円
4LDK
92.31m2
66.38m2 1998年12月(築27年6ヶ月)
  • 3階建て以上
  • 南道路
  • 所有権
おすすめポイント
上尾市中分の中古住宅のご紹介です。◆3階建て4LDK・2階ダイニングのため明るい空間でお食事ができます♪・全居室収納有り。お部屋もすっきりと整理整頓が可能です。・2階に上がる前に手洗いができるため衛生的です。・車1台分駐車可能◎(車種による)◆周辺施設充実車で10分圏内には日々の生活に必要なスーパーマーケット、コンビニ、ドラッグストアその他施設が充実!・TAIRAYA上尾中妻店まで車で約5分・ファミリーマート上尾泉台1丁目店まで車で約3分・ドラッグストア セキ小泉店まで車で約4分車で3分には上尾天然温泉「日々喜の湯」があり疲労回復にも◎

埼玉県桶川市大字下日出谷 1,380万円 4LDK

  • 中古住宅
  • 埼玉県桶川市大字下日出谷 中古住宅
    間取り図
埼玉県桶川市大字下日出谷
JR高崎線 桶川駅 徒歩33分
JR高崎線 北上尾駅 徒歩4.3km
JR高崎線 北本駅 徒歩5.7km
1,380
万円
4LDK
88.3m2
111.95m2 1989年7月(築36年11ヶ月)
  • 2階建て
  • 南道路
  • 都市ガス
  • 駐車場あり
  • システムキッチン
  • 所有権
おすすめポイント
ライフラインの整ったこちらの物件!都市ガス、本下水です。 都市ガスはお財布にも優しく、本下水は建て替えの際に浄化槽の故障などの心配がありません。【弊社では以下の5つをお客様にお約束いたします】1.物件の善し悪しは全て正直にお話しします。2.無理な売り込みや契約の催促、突然の訪問等、しつこい営業は一切行いません。3.契約したら終わりではなくお引き渡し後、お引越し後もお客様のパートナーであること。4.ウソやおとり広告は一切使いません。(データ更新は迅速に行います。)5.お客様の個人情報は細心の注意を払って取り扱いします。

埼玉県上尾市富士見2 4,280万円 3LDK

  • 中古住宅
  • 埼玉県上尾市富士見2 中古住宅
    間取り図
埼玉県上尾市富士見2
湘南新宿ライン高海 上尾駅 徒歩9分
JR高崎線 上尾駅 徒歩9分
湘南新宿ライン高海 北上尾駅 徒歩28分
4,280
万円
3LDK
81.14m2
102.07m2 2020年1月(築6年5ヶ月)
  • 2階建て
  • 駐車場あり
  • システムキッチン
  • 浴室乾燥機
  • 所有権
おすすめポイント
【即時予約可能】◆おすすめPOINT◆高崎線「上尾駅」まで徒歩約9分!2020年1月築の3LDK!【おすすめPOINT】■家計にも環境にも優しい省エネ給湯器エコジョーズ■15帖のLDKは家族が自然と集まる居心地の良い空間■時間の短縮や手荒れの悩みにも嬉しい食洗機付システムキッチン■ご家族のコミュニケーションも自然と増えるリビングイン階段■ワンフロアに水回りがまとまったコンパクトな家事動線【急な見学でも可能な限り対応させていただきます!】「下部カレンダー」からも簡単にネット予約が可能です!※当日のお問い合わせに関しては「048-859-3900」までお気軽にお電話ください

埼玉県上尾市中妻5 2,450万円 3LDK

  • 中古住宅
  • 埼玉県上尾市中妻5 中古住宅
    間取り図
埼玉県上尾市中妻5
湘南新宿ライン高海 北上尾駅 徒歩18分
2,450
万円
3LDK
84.87m2
117.14m2 1994年4月(築32年2ヶ月)
  • 2階建て
  • 都市ガス
  • 駐車場あり
  • システムキッチン
  • 浴室乾燥機
  • 所有権
  • 即入居可
おすすめポイント
【POINT】〇新規リフォーム中・1月完成予定!〇毎日の車通勤でも安心、カースペース1台付☆○料理好きも納得、キッチンリフォーム予定!○リフォームされた浴室で毎日リフレッシュ♪〇全居室収納あり・L字バルコニー■【0120-22-8282】へお気軽にお問い合わせください■■【ララハウス 大宮支店】で検索♪  最新情報を毎日更新中です!  弊社ホームページをご利用くださいませ☆☆

埼玉県上尾市弁財1 2,480万円 3SLDK

  • 中古住宅
  • 埼玉県上尾市弁財1 中古住宅
    間取り図
埼玉県上尾市弁財1
湘南新宿ライン高海 上尾駅 徒歩20分
湘南新宿ライン高海 北上尾駅 徒歩27分
湘南新宿ライン高海 桶川駅 徒歩4.0km
2,480
万円
3SLDK
80.32m2
100.42m2 1994年6月(築32年)
  • 2階建て
  • 駐車場あり
  • システムキッチン
  • オール電化
  • 所有権
  • 即入居可
おすすめポイント
【POINT】〇上尾駅徒歩21分。 東武バス「柏座下」停歩約6分。車約5分〇小学校まで徒歩約4分・中学校まで徒歩約8分 お子様の通学も安心☆○毎日の車通勤でも安心、カースペース1台付☆○料理好きも納得、キッチンリフォーム済!○リフォームされた浴室で毎日リフレッシュ♪ 浴室乾燥機付き!■【0120-22-8282】へお気軽にお問い合わせください■■【ララハウス 大宮支店】で検索♪  最新情報を毎日更新中です!  弊社ホームページをご利用くださいませ☆☆

埼玉県上尾市大字上 1,380万円 4LDK

  • 中古住宅
  • 埼玉県上尾市大字上 中古住宅
    間取り図
埼玉県上尾市大字上
湘南新宿ライン高海 桶川駅 徒歩24分
埼玉新都市交通伊奈線 内宿駅 徒歩34分
湘南新宿ライン高海 北上尾駅 徒歩3.2km
1,380
万円
4LDK
82.8m2
107.31m2 1996年6月(築30年)
  • 2階建て
  • システムキッチン
  • 所有権
おすすめポイント
【POINT】〇現況販売☆お好きにリフォームできます♪◆随時現地へのご案内受付中です♪ 「いまから見たい!」など、当日のご連絡も大歓迎です!◆ご希望の条件を遠慮なくお話し下さい。 ララハウスのホームページをご覧ください。「ララハウス大宮支店」で検索!◆【0120-22-8282】へお気軽にお問い合わせください。◆電車でお越しの方、現地までの行き方が不安という方、 ご希望ございましたら付近までお迎えにあがります。 お気軽にご相談くださいませ。  最新情報を毎日更新中です!  弊社ホームページをご利用くださいませ☆☆

埼玉県上尾市小泉8 2,480万円 4LDK

  • 中古住宅
  • 埼玉県上尾市小泉8 中古住宅
    間取り図
埼玉県上尾市小泉8
JR高崎線 北上尾駅 徒歩28分
2,480
万円
4LDK
105.99m2
146.35m2 2010年12月(築15年6ヶ月)
  • 2階建て
  • 都市ガス
  • 駐車場あり
  • 駐車2台
  • 所有権
おすすめポイント
〇駐車場2台分有り(車種による)〇平成22年12月築◯区画整理済◯小学校徒歩5分◆お気軽にお問い合わせください◆

埼玉県上尾市小泉7 2,880万円 3SLDK

  • 中古住宅
  • 埼玉県上尾市小泉7 中古住宅
    間取り図
埼玉県上尾市小泉7
湘南新宿ライン高海 北上尾駅 徒歩30分
湘南新宿ライン高海 上尾駅 徒歩35分
湘南新宿ライン高海 桶川駅 徒歩3.6km
2,880
万円
3SLDK
91.29m2
120.05m2 2022年2月(築4年4ヶ月)
  • 2階建て
  • 都市ガス
  • 駐車場あり
  • システムキッチン
  • 浴室乾燥機
  • 所有権
  • リフォームリノベーション
おすすめポイント
【POINT】〇北上尾駅徒歩30分・自転車11分! 上尾駅バス6分「大久保」停歩10分♪○新規リフォーム箇所あり! クロス張替え・畳表替え・玄関鍵交換・ハウスクリーニング○収納充実♪全居室収納あり〇食洗機・浴室乾燥機付■【0120-22-8282】へお気軽にお問い合わせください■■【ララハウス 大宮支店】で検索♪  最新情報を毎日更新中です!  弊社ホームページをご利用くださいませ☆☆

埼玉県上尾市中妻5 2,450万円 3LDK

  • 中古住宅
  • 埼玉県上尾市中妻5 中古住宅
    間取り図
埼玉県上尾市中妻5
湘南新宿ライン高海 北上尾駅 徒歩18分
湘南新宿ライン高海 桶川駅 徒歩20分
湘南新宿ライン高海 上尾駅 徒歩36分
2,450
万円
3LDK
84.87m2
117.14m2 1994年4月(築32年2ヶ月)
  • 2階建て
  • 都市ガス
  • 駐車場あり
  • システムキッチン
  • 所有権
  • リフォームリノベーション
おすすめポイント
■はじめてのお家探しは、まいほーむにお任せ下さい■【まいほーむ3つの魅力】①住宅ローン相談・・・現在のお借入れのある方も安心!最大500万円まで住宅ローンにまとめられる、提携ローンもございます。②地域を把握したスタッフ・・・お家の知識は勿論、周辺の買い物環境や公園、お子さまが通う学校についてなど地域を熟知したスタッフがご案内致します。③キッズスペース完備・・・おもちゃやDVDを各種取り揃え、お子さまが飽きてしまわないようなスペースをご用意しております。

埼玉県上尾市泉台2 3,780万円 4SDK

  • 中古住宅
  • 埼玉県上尾市泉台2 中古住宅
    間取り図
埼玉県上尾市泉台2
JR高崎線 桶川駅 徒歩20分
JR高崎線 北上尾駅 徒歩30分
3,780
万円
4SDK
119.62m2
259.01m2 1998年9月(築27年9ヶ月)
  • 2階建て
  • 南道路
  • 駐車場あり
  • 駐車3台
  • システムキッチン
  • 所有権
  • 即入居可
おすすめポイント
●イチオシPOINT●◎4DK+大型車庫+作業部屋、ファミリーでの利用にも満足な間取りです◎大型車庫あり!さらに駐車スペース3台以上◎2階各居室が広々としており収納も豊富なのでライフスタイルに合わせて様々な利用ができます◎車好きやバイク好きはもちろん!キャンプ用品の置き場にお困りの方にもオススメな大型ガレージ付き住宅です♪\物件内覧受付中/\今から見たいも大歓迎/イエトコなら、畳の表替え、壁紙交換、床の張替えなど各種内装工事を一括対応♪物件購入+リフォーム+ローンをまとめてサポートし、理想の住まいづくりをお手伝いします。
チェックした物件を一括で
  • チェックした物件をまとめて
167
表示件数 12345 次へ

条件を選択

価格
間取り
建物面積
土地面積
築年数
駅からの時間
人気のこだわり条件

さらに詳しくこだわり条件を選択

建物構造
階数
立地・特徴
キッチン
設備
駐車場
条件
性能・評価
瑕疵保険
お得な条件
画像・動画
情報の新しさ
フリーワード

上尾市の住みやすさ情報

上尾市ってどんなところ?

上尾市の魅力は、便利な生活環境と充実した子育て環境です。
中心地の上尾駅周辺には百貨店や商業施設、レストランがあり、便利な生活をサポートします。
子育て環境としては、保健センターや子育て支援センターなどが整備されているほか、公立学校では児童生徒1人に1台PCが用意されるといった学びの環境が提供されています。また、上尾運動公園では、豊かな自然の中でスポーツを楽しむことが可能です。

街ガイド

高野 友樹

公認不動産コンサルティングマスター/相続対策専門士/宅地建物取引士/賃貸不動産経営管理士

不動産会社にて600件以上の仲介、6000戸の収益物件管理を経験。現在は株式会社高野不動産コンサルティングを設立し、不動産コンサルティングを行う。

一人暮らしの人に聞いた
上尾市の住みやすさTOP10

  1. 1位スーパーやドラッグストアが充実している
  2. 2位必要なものが近場でそろう
  3. 3位自然や公園が多い

夫婦・カップルに聞いた
上尾市の住みやすさTOP10

  1. 1位スーパーやドラッグストアが充実している
  2. 2位閑静で落ち着きがある
  3. 3位自然や公園が多い

ファミリーに聞いた
上尾市の住みやすさTOP10

  1. 1位必要なものが近場でそろう
  2. 2位スーパーやドラッグストアが充実している
  3. 3位病院やクリニックが多い

※対象エリア周辺に過去5年以内に住んだことのある10代~60代の人を対象としてアンケートを実施し、独自に集計しています。

上尾市の暮らしデータ

人口などの統計情報

世帯数 96347世帯
人口総数 230066人
転入者数 10030人
転入率(人口1000人当たり)
43.60人
転出者数 8704人
転出率(人口1000人当たり)
37.83人
土地平均価格
住宅地
116600円/m2
商業地
354333円/m2

結婚・育児の助成金

子育て関連の独自の取り組み (1)民間保育所の設備整備を支援。(2)多子世帯への小・中学校の学校給食費を減免。(3)ひとり親家庭や生活困窮者学習支援。(4)ヤングケアラーコーディネーターの配置。(5)学校と図書館が連携し、子どもの読書活動を推進。(6)「こども・子育て応援ページ」を公開。(7)小児科・産婦人科オンライン相談。(8)オンライン子育てカウンセリングの実施。(9)from AGE-0(0歳から輝くまち)をスローガンに子育てのまちのプロモーション。(10)文部科学省「教育課程特例校」制度を活用した小学校1年生からの英語授業を実施。(11)小学生対象にイングリッシュパーティを開催。(12)休日の部活動地域移行の推進。
出産祝い なし
公立保育所数 12所(うち0歳児保育を実施している保育所:11所)
私立保育所数 30所(うち0歳児保育を実施している保育所:30所)
保育所入所待機児童数 0人
認定こども園数 5園 預かり保育実施園数 公立:- 私立:16園
学校給食 【小学校】完全給食【中学校】完全給食
公立中学校の学校選択制 一部実施(特定地域選択制)
子ども・学生等医療費助成<通院>対象年齢 18歳3月末まで 子ども・学生等医療費助成<入院>対象年齢 18歳3月末まで

上尾市の治安・ごみ収集情報

公共料金・インフラ

ガス料金(22m3使用した場合の月額) 東京瓦斯株式会社(東京地区等)3926円
水道料金(口径20mmで20m3の月額) 上尾市2970円
下水道料金(20m3を使用した場合の月額) 上尾市2156円
下水道普及率 86.4%

安心・安全

建物火災出火件数 28件
人口10000人当たり
1.23件
刑法犯認知件数 1385件
人口1000人当たり
6.10件
ハザード・防災マップ あり

医療

一般病院総数 4ヶ所
一般診療所総数 121ヶ所
小児科医師数 30人
小児人口10000人当たり
11.54人
産婦人科医師数 12人
15~49歳女性人口1万人当たり
2.74人
介護保険料基準額(月額) 6297円

ごみ

家庭ごみ収集(可燃ごみ) 無料
備考
一時多量ごみ等はごみ集積所に出さず、原則排出者本人または二親等以内の親族が直接環境センターへ搬入(有料)。もしくは一般廃棄物収集運搬業許可業者に依頼。
家庭ごみの分別方式 6分別10種〔可燃物(プラスチックを含む) 金属・陶器(リチウムイオン電池等) ペットボトル 飲料缶・スプレー缶 ガラス 紙類・布類(新聞紙、雑誌・雑紙、段ボール、布類)〕 拠点回収:有害ごみ(乾電池 蛍光管・水銀体温計) 使い捨てライター 小型家電 牛乳パック
家庭ごみの戸別収集 一部実施(【ふれあい収集】高齢者・障害者を対象)
粗大ごみ収集 あり
備考
有料。事前申込制(電話、電子申請)。月1回、3点まで。1点につき1m以内250円、1m超2m以内500円、2m超3m以内750円、処理困難物(スプリング入マットレス、ソファー)は、1点につき1,000円加算。
生ごみ処理機助成金制度 あり
上限金額
20000円
上限比率
50.0%

上尾市の住まいの給付金

中古購入

利子補給制度 なし
補助/助成金制度 なし

増築・改築・改修

利子補給制度 なし
補助/助成金制度 なし
暮らしデータ提供元:生活ガイド.com
※行政機関により公表していない地域及びデータがございます。東京23区以外の政令指定都市は、市全体のデータとして表示しています。
※提供データには細心の注意を払っておりますが、調査後に変更がある場合があります。 最新の情報につきましては各市区役所までお問い合わせいただくか、自治体HPなどをご確認ください。

価格相場

北上尾駅の価格相場

  ワンルーム 1K・1DK 1LDK・2K・2DK 2LDK・3K・3DK 3LDK・4K・4DK
中古一戸建て - - - 4,002万円 3,767万円

周辺駅の価格相場

  上尾 桶川 宮原 北本 大宮
中古一戸建て 4,032万円 2,675万円 3,770万円 2,659万円 4,068万円
※このデータはgoo住宅・不動産に掲載されている中古一戸建ての平均価格(管理費・駐車場代などを除く)を算出したものです。ただし5戸以上の掲載があるものについてのみ対象とします。
※周辺駅の価格相場は2LDK・3K・3DKの平均価格(管理費・駐車場代などを除く)を算出したものです。
アプリで簡単 物件探し 大手不動産サイトの情報から一括検!プッシュ通知で物件を見逃さない
App Storeからダウンロード Google Playで手に入れよう QRコード