鹿児島本線(熊本県)の4LDK以上の賃貸物件(賃貸マンション・アパート) 物件一覧(5ページ目)
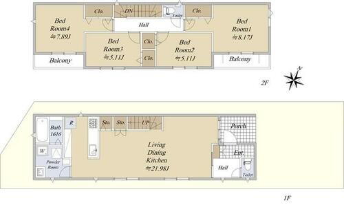
4人以上のファミリーや二世帯で住む方におすすめの4LDK。リビングとは別に4つのお部屋があるので、子ども部屋や夫婦の個室、世帯別の個室を確保できます。物件によってお部屋の配置場所が異なるので、内見前に間取りをチェックすることがおすすめです。ここでは、4人以上で住む方におすすめの4LDK物件を紹介します。
