アプリで簡単 物件探し 通知 共有 アプリならではの機能を使ってみる
中古住宅

東京都八王子市石川町 小宮駅 中古一戸建て・中古住宅

情報提供元
SUUMO
東京都八王子市石川町 小宮駅 中古一戸建て・中古住宅
価格 2397万円
交通
所在地 東京都八王子市石川町周辺地図
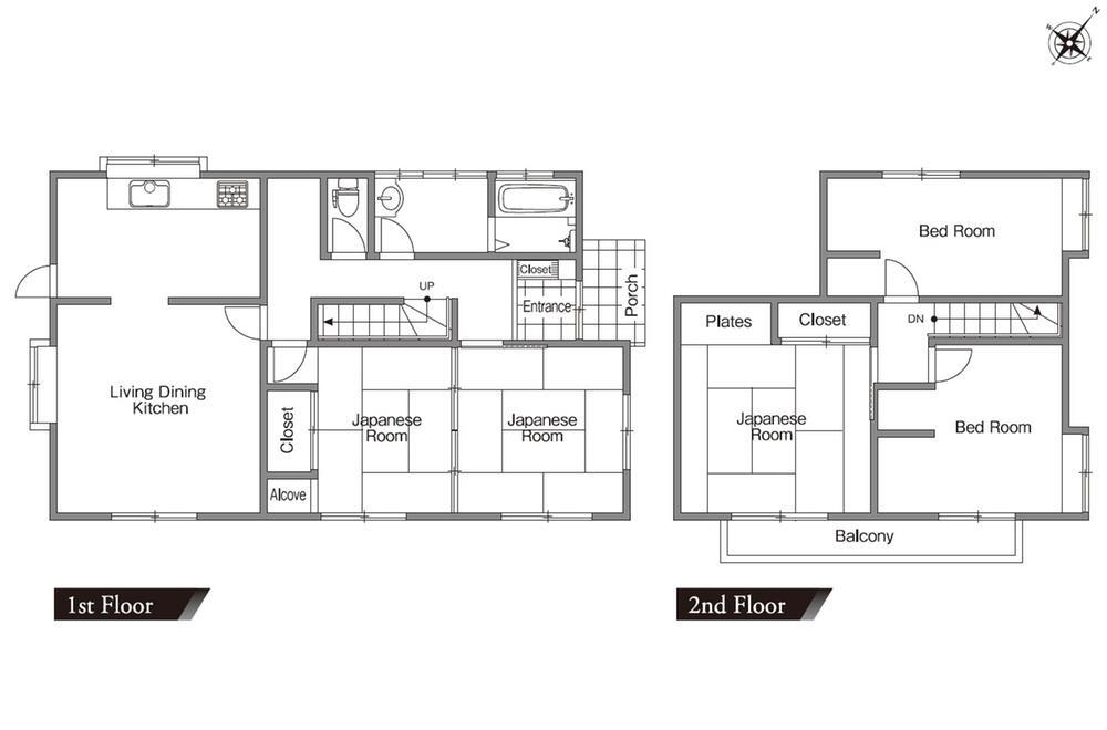
間取り 4LDK
建物面積 77.04m2 土地面積 103.26m2
築年月 1984年4月 築年数 築41年7ヶ月
おすすめポイント
『◆三方角地・日当たりの良い戸建です◆最寄り駅まで徒歩11分
閑静な住宅街・角地・整形地
物件を見たい、物件や住環境の詳しい情報やローン相談など、
お問い合わせ先
(株)ジェイビーハウス

詳細情報

価格 2397万円
所在地 東京都八王子市石川町周辺地図
交通
間取り 4LDK 築年月(築年数) 1984年4月(築41年7ヶ月)
建物面積 77.04m2 建物構造・規模 木造2階建
土地面積 103.26m2 土地権利 所有権
私道面積 借地期間・地代
接道状況 北西4.6m 北東4.4m 南東4.4m 二方道路 駐車場
用途地域 1種低層 都市計画
建ぺい率/容積率 40%/80% 現況
地目 引渡可能時期 即時
情報提供元 SUUMO [030Z78173602] 情報公開日
情報更新日 次回更新予定日 随時

設備など

1種低層地域 即入居可 売主・代理 -
駐車2台以上 - 平屋 - 本下水
都市ガス - カウンターキッチン - 床暖房 -
ウォークインクローゼット - バリアフリー -
設備 トイレ・収納スペース・洗面所・浴室乾燥機・シャンプードレッサ・温水洗浄便座・システムキッチン・モニタ付インターホン・風呂・庭・LPガス・対面K・トイレ2ヶ所・浄水器・衣類乾燥機・複層ガラス・上水道・本下水・リフォーム・フローリング・リノベーション
リフォーム履歴 2025年6月完了
 水回り設備交換:キッチン・浴室・トイレ
 内装リフォーム:壁・床・全室
2025年6月外装リフォーム完了
※年月は一番古いリフォーム箇所を表します
リノベーション履歴 -
備考 <物件名>石川町(小宮駅) 2397万円/<駐車場>カースペース/<土地権利>所有権/<間取り>4LDK/<リフォーム>●リフォーム:2025年6月完了(水回り設備交換:キッチン・浴室・トイレ、内装リフォーム:壁・床・全室)、2025年6月外装リフォーム完了※年月は一番古いリフォーム箇所を表します/<特徴>『◆三方角地・日当たりの良い戸建です◆最寄り駅まで徒歩11分、即引渡可・2沿線以上利用可・システムキッチン・浴室乾燥機・全居室収納
販売戸数:1戸
法令等制限:景観法、航空法
特記事項 閑静な住宅街・角地・整形地

省エネ性能

エネルギー消費性能 -
断熱性能 -
目安光熱費 -

東京都八王子市石川町 周辺地図情報

地図
※地図上に表示される物件の位置は付近住所に所在することを表すものであり、実際の物件所在地とは異なる場合がございます。
   正確な物件所在地は、取扱い不動産会社にお問い合わせください。
物件を見たい、物件や住環境の詳しい情報やローン相談など、
お問い合わせ先
(株)ジェイビーハウス

不動産会社情報

お問い合わせ先 商号:(株)ジェイビーハウス
免許番号:東京都知事(2)第100239号
所在地:東京都国立市西1-11-16
TEL:042-507-5327
取引態様:媒介
共有する
QRコード
物件を見たい、物件や住環境の詳しい情報やローン相談など、
お問い合わせ先
(株)ジェイビーハウス

八王子市の暮らしデータ

人口などの統計情報

世帯数 266549世帯
人口総数 560692人
転入者数 26354人
転入率(人口1000人当たり)
47.00人
転出者数 23488人
転出率(人口1000人当たり)
41.89人
土地平均価格
住宅地
130545円/m2
商業地
405286円/m2

結婚・育児の助成金

子育て関連の独自の取り組み (1)子育て応援サイト・妊娠・子育て支援LINE「すくすく☆メール」。(2)レンタルベビーカー。(3)学校サポーター認証制度・学校サポーター育成プログラム。(4)高尾山学園(不登校児童生徒のための小中一貫校)。(5)はちおうじっ子子育てほっとライン(妊娠出産子育て相談窓口)。(6)八王子版ネウボラ乳幼児手帳と保存のためのマイファイル配布。(7)子育て応援企業。(8)ベビーテント貸出。
出産祝い あり
公立保育所数 15所(うち0歳児保育を実施している保育所:4所)
私立保育所数 73所(うち0歳児保育を実施している保育所:70所)
保育所入所待機児童数 15人
認定こども園数 21園 預かり保育実施園数 公立:- 私立:25園
学校給食 【小学校】完全給食【中学校】完全給食
公立中学校の学校選択制 実施(新入学時、転入または転居により転校するとき)
子ども・学生等医療費助成<通院>対象年齢 18歳3月末まで 子ども・学生等医療費助成<入院>対象年齢 18歳3月末まで

八王子市の治安・ごみ収集情報

公共料金・インフラ

ガス料金(22m3使用した場合の月額) 東京瓦斯株式会社(東京地区等)3926円
水道料金(口径20mmで20m3の月額) 東京都水道局2816円
下水道料金(20m3を使用した場合の月額) 八王子市2068円
下水道普及率 99.4%

安心・安全

建物火災出火件数 98件
人口10000人当たり
1.69件
刑法犯認知件数 3197件
人口1000人当たり
5.52件
ハザード・防災マップ あり

医療

一般病院総数 28ヶ所
一般診療所総数 392ヶ所
小児科医師数 85人
小児人口10000人当たり
14.40人
産婦人科医師数 30人
15~49歳女性人口1万人当たり
2.80人
介護保険料基準額(月額) 5950円

ごみ

家庭ごみ収集(可燃ごみ) 有料
備考
可燃ごみ・不燃ごみが有料。
家庭ごみの分別方式 4分別13種〔可燃ごみ 不燃ごみ 有害ごみ 資源物(容器包装プラスチック、ペットボトル、びん、缶、紙類[新聞・チラシ、ダンボール、雑誌・雑紙、紙パック]、古着・古布、剪定枝)〕
家庭ごみの戸別収集 実施
粗大ごみ収集 あり
備考
有料。事前申込制。
生ごみ処理機助成金制度 なし
上限金額
-
上限比率
-

八王子市の住まいの給付金

中古購入

利子補給制度 なし
補助/助成金制度 なし

増築・改築・改修

利子補給制度 なし
補助/助成金制度 あり
上限金額
(1)100万円(2)15万円(3)30万円(4)5万円
備考
(1)【居住環境整備補助】補助率1/5~2/3(a)木造住宅耐震改修。上限100万円。(b)木造住宅簡易耐震改修。上限25万円。(c)耐震シェルター・防災ベッド設置。上限20万円。(d)台風対策改修。上限10万円。(e)分譲マンション止水板設置。上限50万円。(f)省エネルギー化改修。上限15万円(マンション共用部分LED化改修は上限50万円)。(g)長寿命化改修。上限5万円。(h)ワークスペース設置改修。上限10万円。(i)バリアフリー化改修。上限20万円。(2)【木造住宅耐震診断補助】補助率3/4、上限15万円。(3)【ブロック塀等撤去・新設補助】補助率5/6、上限30万円。(4)【ブロック塀診断補助】補助率1/2、上限5万円。
暮らしデータ提供元:生活ガイド.com
※行政機関により公表していない地域及びデータがございます。東京23区以外の政令指定都市は、市全体のデータとして表示しています。
※提供データには細心の注意を払っておりますが、調査後に変更がある場合があります。 最新の情報につきましては各市区役所までお問い合わせいただくか、自治体HPなどをご確認ください。

この物件を見た人はこんな物件も見ています

OCN×ドコモ光新規お申込みで合計最大137,280円相当おトク!特典の内訳・適用条件など詳細はこちら

他のエリアから探す

八王子市の詳細地域から一戸建て物件を探す

暁町石川町泉町犬目町上野町打越町宇津木町裏高尾町大塚大船町大谷町大横町大和田町小門町加住町片倉町叶谷町上壱分方町上恩方町上柚木川口町川町北野台北野町絹ケ丘清川町久保山町越野小比企町小宮町子安町左入町散田町下恩方町下柚木城山手諏訪町千人町高尾町高倉町館町丹木町台町大楽寺町寺田町寺町戸吹町中野上町中野山王中野町長沼町長房町七国楢原町南陽台西片倉西寺方町弐分方町狭間町初沢町東浅川町東中野兵衛富士見町別所堀之内本郷町本町松が谷松木丸山町みつい台緑町南浅川町南大沢みなみ野宮下町美山町めじろ台元八王子町元本郷町元横山町谷野町山田町鑓水横川町四谷町

近辺の市区から探す

立川市昭島市日野市国立市福生市武蔵村山市多摩市羽村市あきる野市西多摩郡瑞穂町西多摩郡日の出町相模原市緑区相模原市中央区

周辺の駅から探す

八高線
八王子北八王子小宮拝島東福生箱根ケ崎金子
中央本線
国分寺西国分寺国立立川日野豊田八王子西八王子高尾

住宅ローンの返済額一覧

物件価格 2397万円に対して、年率 で、頭金 の場合
↓ボーナス 35年間 30年間 25年間 20年間 15年間 10年間
0万円 49,243円/月 56,756円/月 67,280円/月 83,076円/月 109,412円/月 162,101円/月
5万円 40,157円/月 47,780円/月 58,414円/月 74,317円/月 100,760円/月 153,556円/月
10万円 31,072円/月 38,804円/月 49,547円/月 65,558円/月 92,109円/月 145,010円/月
15万円 ローン不可 29,829円/月 40,680円/月 56,800円/月 83,457円/月 136,465円/月
20万円 ローン不可 ローン不可 ローン不可 48,041円/月 74,806円/月 127,920円/月
25万円 ローン不可 ローン不可 ローン不可 ローン不可 66,154円/月 119,375円/月
30万円 ローン不可 ローン不可 ローン不可 ローン不可 57,503円/月 110,830円/月
支払い利息合計 1,719,270円~ 1,471,520円~ 1,221,850円~ 976,480円~ 733,490円~ 488,340円~
※元利均等返済方式で試算しています。 「円」の単位以下の端数金額は「切り捨て」として計算しております。
※金利は、固定金利として計算しております。
※上記の住宅ローン返済額一覧は、あくまで試算であり、将来の金利動向により、実際のご返済額とは異なります。
※ボーナス支払総額が総支払額の50%を超えている場合、上記の表では「ローン不可」となります。
※住宅ローン返済額一覧の数値は、住宅ローンのお申し込みやご融資をお約束するものではございません。
物件を見たい、物件や住環境の詳しい情報やローン相談など、
お問い合わせ先
(株)ジェイビーハウス

掲載情報の著作権は提供元企業等に帰属します。
Copyright:(C) 2025 Recruit Co., Ltd.
アプリで簡単 物件探し 大手不動産サイトの情報から一括検!プッシュ通知で物件を見逃さない
App Storeからダウンロード Google Playで手に入れよう QRコード