アプリで簡単 物件探し 通知 共有 アプリならではの機能を使ってみる
中古住宅

東京都練馬区石神井町8 石神井公園駅 中古一戸建て・中古住宅

情報提供元
SUUMO
東京都練馬区石神井町8 石神井公園駅 中古一戸建て・中古住宅
価格 11200万円
交通
所在地 東京都練馬区石神井町8周辺地図
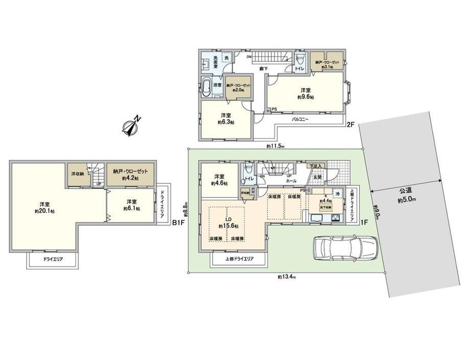
間取り 5LDK
建物面積 160.83m2(48.65坪)(登記) 土地面積 110.32m2(33.37坪)(登記)
築年月 2005年3月 築年数 築20年8ヶ月
おすすめポイント
-物件のおすすめポイント-▼特徴・建物面積約48.65坪の5LDK・LDKは広々とした約20.0帖、LDに床暖房有・地下に約20.1帖の洋室有、セカンドリビングとしても活用可能・浴室はゆったりくつろげる1818サイズ▼設備・食洗機・IHクッキングヒーター・ビルトインオーブン・浄水器一体型水栓・浴室暖房乾燥機▼周辺環境・スーパー「ライフ石神井公園店」徒歩7分(約560m)※建物構造は軽量鉄骨造・鉄筋コンクリート造スレート葺地下1階付2階建となります■ ご希望の住まい探しをお手伝いします ━━━━━・・・物件の詳細・ご相談はお気軽にお問い合わせください。
閑静な住宅街・オール電化・整形地・浴室1坪以上
お問い合わせ先
三井のリハウス石神井公園センター三井不動産リアルティ(株)
物件を見たい、物件や住環境の詳しい情報やローン相談など、
お問い合わせ先
三井のリハウス石神井公園センター三井不動産リアルティ(株)

詳細情報

価格 11200万円
所在地 東京都練馬区石神井町8周辺地図
交通
  • 西武池袋線 石神井公園駅 徒歩10分乗換案内
間取り 5LDK 築年月(築年数) 2005年3月(築20年8ヶ月)
建物面積 160.83m2(48.65坪)(登記) 建物構造・規模 軽量鉄骨地上2階地下1階建
土地面積 110.32m2(33.37坪)(登記) 土地権利 所有権
私道面積 借地期間・地代
接道状況 北東5m接面9m 駐車場
用途地域 1種低層 都市計画
建ぺい率/容積率 50%/100% 現況
地目 引渡可能時期 相談
情報提供元 SUUMO [030Z78442491] 情報公開日
情報更新日 次回更新予定日 随時

設備など

1種低層地域 即入居可 - 売主・代理 -
駐車2台以上 - 平屋 - 本下水
都市ガス - カウンターキッチン - 床暖房 -
ウォークインクローゼット バリアフリー -
設備 トイレ・収納スペース・浴室乾燥機・ウォークインクローゼット・温水洗浄便座・システムキッチン・風呂・トイレ2ヶ所・IHクッキングヒータ・浄水器・衣類乾燥機・食器洗浄乾燥機・上水道・本下水・フローリング
リフォーム履歴 -
リノベーション履歴 -
備考 <物件名>石神井町8(石神井公園駅) 1億1200万円/<駐車場>カースペース/<土地権利>所有権/<間取り>5LDK/<特徴>■三井のリハウス■パナホーム(株)施工の注文住宅WIC3ヶ所と収納豊富、LDK20畳以上・スーパー 徒歩10分以内・市街地が近い・システムキッチン・浴室乾燥機
販売戸数:1戸
法令等制限:構造は、軽量鉄骨造・鉄筋コンクリート造スレート葺地下1階付2階建となります。
特記事項 閑静な住宅街・オール電化・整形地・浴室1坪以上

省エネ性能

エネルギー消費性能 -
断熱性能 -
目安光熱費 -

東京都練馬区石神井町8 周辺地図情報

地図
※地図上に表示される物件の位置は付近住所に所在することを表すものであり、実際の物件所在地とは異なる場合がございます。
   正確な物件所在地は、取扱い不動産会社にお問い合わせください。
物件を見たい、物件や住環境の詳しい情報やローン相談など、
お問い合わせ先
三井のリハウス石神井公園センター三井不動産リアルティ(株)

不動産会社情報

お問い合わせ先 商号:三井のリハウス石神井公園センター三井不動産リアルティ(株)
免許番号:国土交通大臣(15)第000777号
所在地:東京都練馬区石神井町2-14-1 石神井公園ピアレスA棟2階
TEL:00786-01793747
取引態様:専任媒介
管理コード:F22ARA0B
共有する
QRコード
物件を見たい、物件や住環境の詳しい情報やローン相談など、
お問い合わせ先
三井のリハウス石神井公園センター三井不動産リアルティ(株)

練馬区の暮らしデータ

人口などの統計情報

世帯数 374485世帯
人口総数 741540人
転入者数 49591人
転入率(人口1000人当たり)
66.88人
転出者数 44239人
転出率(人口1000人当たり)
59.66人
土地平均価格
住宅地
413757円/m2
商業地
816167円/m2

結婚・育児の助成金

子育て関連の独自の取り組み (1)第3子誕生祝金。(2)子育てスタート応援券。(3)外遊び型子育てのひろば(おひさまぴよぴよ)。(4)ねりますくすくアプリ(ねりすく)。(5)ねりま子育て応援ハンドブック。(6)父親の育児応援DVD。(7)1年保育(1歳児・2歳児)。(8)発達に不安がある親子を対象にしたひろば事業(のびのびひろば)。(9)産後ケア事業。(10)移動型外遊びの場提供事業「おひさま てくてく」。(11)2019年度から、練馬こどもカフェ(民間カフェ等と協働し、保護者が交流したり子どもと一緒にリラックスできる場を提供し、私立幼稚園や保育事業者の協力を得て子育て講座等を実施)を開始。(12)ねりま子育て応援アプリ。
出産祝い あり
公立保育所数 60所(うち0歳児保育を実施している保育所:50所)
私立保育所数 141所(うち0歳児保育を実施している保育所:136所)
保育所入所待機児童数 0人
認定こども園数 3園 預かり保育実施園数 公立:3園 私立:35園
学校給食 【小学校】完全給食【中学校】完全給食
公立中学校の学校選択制 実施(新入学時のみ)
子ども・学生等医療費助成<通院>対象年齢 18歳3月末まで 子ども・学生等医療費助成<入院>対象年齢 18歳3月末まで

練馬区の治安・ごみ収集情報

公共料金・インフラ

ガス料金(22m3使用した場合の月額) 東京瓦斯株式会社(東京地区等)3926円
水道料金(口径20mmで20m3の月額) 東京都水道局2816円
下水道料金(20m3を使用した場合の月額) 東京都下水道局2068円
下水道普及率 100.0%

安心・安全

建物火災出火件数 88件
人口10000人当たり
1.17件
刑法犯認知件数 3480件
人口1000人当たり
4.62件
ハザード・防災マップ あり

医療

一般病院総数 17ヶ所
一般診療所総数 593ヶ所
小児科医師数 125人
小児人口10000人当たり
14.71人
産婦人科医師数 40人
15~49歳女性人口1万人当たり
2.35人
介護保険料基準額(月額) 6670円

ごみ

家庭ごみ収集(可燃ごみ) 無料
備考
一度に多量のごみを出す場合は有料。
家庭ごみの分別方式 3分別10種〔可燃ごみ 不燃ごみ 資源(古紙[新聞、雑誌・雑紙、ダンボール、紙パック]、びん、缶、ペットボトル、容器包装プラスチック)〕 拠点回収:古布 廃食用油 乾電池 小型家電(13品目)
家庭ごみの戸別収集 一部実施(【練馬区戸別訪問収集実施要綱】65歳以上の方のみの世帯または障害のある方のみの世帯で、世帯員自らごみを集積所へ持ち出すことが困難で、身近な人の協力が得られない世帯が対象)
粗大ごみ収集 あり
備考
有料。事前申込制(粗大ごみ受付センター)。
生ごみ処理機助成金制度 なし
上限金額
-
上限比率
-

練馬区の住まいの給付金

中古購入

利子補給制度 なし
補助/助成金制度 なし

増築・改築・改修

利子補給制度 あり
上限金額
(融資あっせん限度額)500万円
備考
練馬区内にある住宅を修築する場合に資金の融資をあっせん。(a)住宅の修築・増築、年利2.0~0%。(b)ブロック塀などの改良、年利1.0%。※(a)の申込者負担分は世帯所得などにより異なる(2024年4月1日現在、数字は申込者負担分)。増築面積は20m2以下であることおよび増築後の床面積が175m2以下であること。
補助/助成金制度 あり
上限金額
(1)150万円(2)50万円
備考
(1)【住宅の耐震化助成】1981年5月までに建築された住宅(戸建住宅、小規模な長屋や共同住宅含む)または1981年6月から2000年5月までに建築された二階建て以下の木造住宅(在来軸組工法)で、診断費用の3/4で上限金額12万円、設計費用の2/3で上限金額22万円、耐震補強工事費用の2/3で上限金額130万円または4/5で上限金額150万円まで助成。なお、一部の地区では助成率や上限金額の拡充あり。(2)【耐震シェルター等設置助成】1981年5月までに建築された二階建て以下の木造住宅で、工事費用の9/10で上限金額50万円まで助成。ただし、他要件あり。
暮らしデータ提供元:生活ガイド.com
※行政機関により公表していない地域及びデータがございます。東京23区以外の政令指定都市は、市全体のデータとして表示しています。
※提供データには細心の注意を払っておりますが、調査後に変更がある場合があります。 最新の情報につきましては各市区役所までお問い合わせいただくか、自治体HPなどをご確認ください。

この物件を見た人はこんな物件も見ています

OCN×ドコモ光新規お申込みで合計最大137,280円相当おトク!特典の内訳・適用条件など詳細はこちら

住宅ローンの返済額一覧

物件価格 11200万円に対して、年率 で、頭金 の場合
↓ボーナス 35年間 30年間 25年間 20年間 15年間 10年間
0万円 277,756円/月 320,132円/月 379,496円/月 468,589円/月 617,138円/月 914,329円/月
5万円 268,670円/月 311,157円/月 370,630円/月 459,830円/月 608,487円/月 905,784円/月
10万円 259,585円/月 302,181円/月 361,763円/月 451,071円/月 599,835円/月 897,239円/月
15万円 250,499円/月 293,205円/月 352,896円/月 442,313円/月 591,184円/月 888,694円/月
20万円 241,414円/月 284,230円/月 344,029円/月 433,554円/月 582,532円/月 880,149円/月
25万円 232,328円/月 275,254円/月 335,163円/月 424,795円/月 573,881円/月 871,604円/月
30万円 223,243円/月 266,278円/月 326,296円/月 416,037円/月 565,229円/月 863,058円/月
支払い利息合計 9,679,290円~ 8,266,240円~ 6,864,500円~ 5,473,840円~ 4,094,170円~ 2,725,700円~
※元利均等返済方式で試算しています。 「円」の単位以下の端数金額は「切り捨て」として計算しております。
※金利は、固定金利として計算しております。
※上記の住宅ローン返済額一覧は、あくまで試算であり、将来の金利動向により、実際のご返済額とは異なります。
※ボーナス支払総額が総支払額の50%を超えている場合、上記の表では「ローン不可」となります。
※住宅ローン返済額一覧の数値は、住宅ローンのお申し込みやご融資をお約束するものではございません。
物件を見たい、物件や住環境の詳しい情報やローン相談など、
お問い合わせ先
三井のリハウス石神井公園センター三井不動産リアルティ(株)

掲載情報の著作権は提供元企業等に帰属します。
Copyright:(C) 2025 Recruit Co., Ltd.
アプリで簡単 物件探し 大手不動産サイトの情報から一括検!プッシュ通知で物件を見逃さない
App Storeからダウンロード Google Playで手に入れよう QRコード