アプリで簡単 物件探し 通知 共有 アプリならではの機能を使ってみる
中古住宅

東京都杉並区高井戸東3 高井戸駅 中古一戸建て・中古住宅

情報提供元
SUUMO
東京都杉並区高井戸東3 高井戸駅 中古一戸建て・中古住宅
価格 11800万円
交通
所在地 東京都杉並区高井戸東3周辺地図
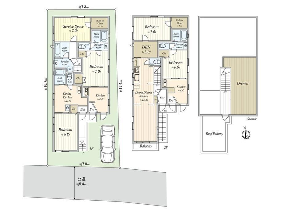
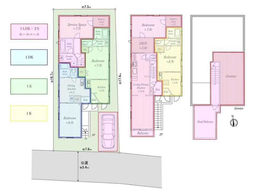
間取り 1SLDK
建物面積 153.22m2(46.34坪)(登記) 土地面積 129.55m2(39.18坪)(登記)
築年月 2005年12月 築年数 築19年11ヶ月
おすすめポイント
■ 賃貸併用住宅として利用の場合 ■〇1LDK・2S、小屋裏収納、ルーフバルコニー、カースペース※ご自身でお住まいになって頂いても、貸して頂いても大丈夫です〇1DK(1階)(賃貸中)賃貸借契約引継要〇1K (1階)(賃貸中)賃貸借契約引継要〇1K (2階)(賃貸中)賃貸借契約引継要・賃貸部分(3部屋)月額賃料:210000円  年間賃料:2520000円■ 1LDK・2S部分と駐車場も賃貸した場合 ■〇月額想定賃料(4部屋・駐車場):407000円  年間想定賃料:4884000円 想定利回り :4%■ 担当より ■〇住宅ローン利用できます(諸条件有)
日当り良好
お問い合わせ先
三井のリハウス高井戸センター三井不動産リアルティ(株)
物件を見たい、物件や住環境の詳しい情報やローン相談など、
お問い合わせ先
三井のリハウス高井戸センター三井不動産リアルティ(株)

詳細情報

価格 11800万円
所在地 東京都杉並区高井戸東3周辺地図
交通
間取り 1SLDK 築年月(築年数) 2005年12月(築19年11ヶ月)
建物面積 153.22m2(46.34坪)(登記) 建物構造・規模 木造2階建
土地面積 129.55m2(39.18坪)(登記) 土地権利 所有権
私道面積 借地期間・地代
接道状況 南5.4m接面7.8m 駐車場
用途地域 1種中高 都市計画
建ぺい率/容積率 60%/150% 現況
地目 引渡可能時期 相談
情報提供元 SUUMO [030Z78544043] 情報公開日
情報更新日 次回更新予定日 随時

設備など

1種低層地域 - 即入居可 - 売主・代理 -
駐車2台以上 - 平屋 - 本下水
都市ガス カウンターキッチン - 床暖房 -
ウォークインクローゼット バリアフリー -
設備 バルコニー・トイレ・収納スペース・都市ガス・ウォークインクローゼット・温水洗浄便座・システムキッチン・風呂・ルーフバルコニー・食器洗浄乾燥機・上水道・本下水
リフォーム履歴 -
リノベーション履歴 -
備考 <物件名>高井戸東3(高井戸駅) 1億1800万円/<駐車場>カースペース/<土地権利>所有権/<間取り>1LDK+S(納戸)/<特徴>■三井のリハウス■南側道路で陽当り良好ルーフバルコニー付の賃貸併用住宅、スーパー 徒歩10分以内・システムキッチン・陽当り良好・LDK15畳以上・3面採光
販売戸数:1戸
特記事項 日当り良好

省エネ性能

エネルギー消費性能 -
断熱性能 -
目安光熱費 -

東京都杉並区高井戸東3 周辺地図情報

地図
※地図上に表示される物件の位置は付近住所に所在することを表すものであり、実際の物件所在地とは異なる場合がございます。
   正確な物件所在地は、取扱い不動産会社にお問い合わせください。
物件を見たい、物件や住環境の詳しい情報やローン相談など、
お問い合わせ先
三井のリハウス高井戸センター三井不動産リアルティ(株)

不動産会社情報

お問い合わせ先 商号:三井のリハウス高井戸センター三井不動産リアルティ(株)
免許番号:国土交通大臣(15)第000777号
所在地:東京都杉並区高井戸西1-27-20 築山ビル1階
TEL:00786-01793795
取引態様:一般媒介
管理コード:FAIASA03
共有する
QRコード
物件を見たい、物件や住環境の詳しい情報やローン相談など、
お問い合わせ先
三井のリハウス高井戸センター三井不動産リアルティ(株)

杉並区の暮らしデータ

人口などの統計情報

世帯数 336103世帯
人口総数 572843人
転入者数 46818人
転入率(人口1000人当たり)
81.73人
転出者数 42748人
転出率(人口1000人当たり)
74.62人
土地平均価格
住宅地
664800円/m2
商業地
1196929円/m2

結婚・育児の助成金

子育て関連の独自の取り組み (1)杉並子育て応援券(有料の子育てサービスに利用できるチケット[アプリ]。妊婦1万円、出生0歳児3万円、1~2歳児1.5万円、小学生以下の第3子以降は各券に5,000円分上乗せした無償券を交付、0~5歳児は4,000円で1万円分の有償券を子ども1人につき最大3万円分まで購入可能)。(2)妊婦歯科健康診査(妊娠中に1回、指定医療機関で受診可)。(3)産婦健康診査(産後8週間以内に1回、区内指定医療機関で受診可)。(4)歯みがきデビュー教室(予約制、対象:上の前歯が生えた生後8ヶ月から1歳3ヶ月まで)。(5)0歳からの歯みがき・歯科健診(予約制、対象:0歳から4歳まで)。
出産祝い なし
公立保育所数 29所(うち0歳児保育を実施している保育所:20所)
私立保育所数 158所(うち0歳児保育を実施している保育所:116所)
保育所入所待機児童数 0人
認定こども園数 0園 預かり保育実施園数 公立:6園 私立:34園
学校給食 【小学校】完全給食【中学校】完全給食
公立中学校の学校選択制 未実施
子ども・学生等医療費助成<通院>対象年齢 18歳3月末まで 子ども・学生等医療費助成<入院>対象年齢 18歳3月末まで

杉並区の治安・ごみ収集情報

公共料金・インフラ

ガス料金(22m3使用した場合の月額) 東京瓦斯株式会社(東京地区等)3926円
水道料金(口径20mmで20m3の月額) 東京都水道局2816円
下水道料金(20m3を使用した場合の月額) 東京都下水道局2068円
下水道普及率 100.0%

安心・安全

建物火災出火件数 89件
人口10000人当たり
1.51件
刑法犯認知件数 2519件
人口1000人当たり
4.26件
ハザード・防災マップ あり

医療

一般病院総数 20ヶ所
一般診療所総数 542ヶ所
小児科医師数 107人
小児人口10000人当たり
17.91人
産婦人科医師数 56人
15~49歳女性人口1万人当たり
4.02人
介護保険料基準額(月額) 6400円

ごみ

家庭ごみ収集(可燃ごみ) 無料
備考
一度に多量のごみを出す場合は有料(45リットルの袋で4袋以上を排出する場合、46円/kg)。
家庭ごみの分別方式 3分別10種〔可燃ごみ 不燃ごみ 資源(びん、缶、プラスチック製容器包装、ペットボトル、古紙[新聞紙、雑紙・雑誌・書籍・包装紙等]、段ボール、紙パック)〕 拠点回収:使用済小型家電 水銀体温計 水銀血圧計 水銀温度計 衣類 廃食用油
家庭ごみの戸別収集 一部実施(【ふれあい収集】集積所まで運び出すことが困難なひとり暮らしの高齢者や障害のある方のみの世帯には、職員が戸別に玄関先まで訪問して、可燃ごみ、不燃ごみ、資源の収集を実施)
粗大ごみ収集 あり
備考
有料。事前申込制。最大辺が概ね30cmを超え、2.2m以下の大きなごみ。
生ごみ処理機助成金制度 あり
上限金額
20000円
上限比率
50.0%

杉並区の住まいの給付金

中古購入

利子補給制度 なし
補助/助成金制度 なし

増築・改築・改修

利子補給制度 あり
上限金額
(融資限度額)500万円
備考
自己所有の住宅の修繕・増築(改築は含まない)にかかる費用について、区と契約をしている金融機関へ融資のあっせんをし、取扱金融機関が決定した貸付金額に対して利子の一部を補給している。融資あっせん金額上限額は一般融資300万円(特別融資500万円)。本人負担利率は一般1.5%(特別利率1%)。償還期間は300万円以下の場合7年以内。300万円超の場合は10年以内。
補助/助成金制度 あり
上限金額
(1)100万円(2)100万円(3)100万円
備考
(1)【木造耐震助成】(a)診断は上限11万円。(b)改修は助成率1/2、上限100万円(簡易50万円)。(c)シェルター等設置は助成率9/10、上限50万円。(2)【新耐震基準木造耐震助成】(d)診断は上限11万円。(e)改修は助成率1/2、上限100万円。(3)【非木造耐震助成】(f)診断は、助成率1/2、上限30万円。(g)補強設計は助成率1/2、上限50万円。(h)改修は、(b)同様。※(b)・(h)で区指定のものは割増あり。
暮らしデータ提供元:生活ガイド.com
※行政機関により公表していない地域及びデータがございます。東京23区以外の政令指定都市は、市全体のデータとして表示しています。
※提供データには細心の注意を払っておりますが、調査後に変更がある場合があります。 最新の情報につきましては各市区役所までお問い合わせいただくか、自治体HPなどをご確認ください。

この物件を見た人はこんな物件も見ています

OCN×ドコモ光新規お申込みで合計最大137,280円相当おトク!特典の内訳・適用条件など詳細はこちら

杉並区内の各駅の住みやすさ

住宅ローンの返済額一覧

物件価格 11800万円に対して、年率 で、頭金 の場合
↓ボーナス 35年間 30年間 25年間 20年間 15年間 10年間
0万円 293,331円/月 338,084円/月 400,777円/月 494,865円/月 651,744円/月 965,600円/月
5万円 284,245円/月 329,108円/月 391,910円/月 486,106円/月 643,092円/月 957,055円/月
10万円 275,160円/月 320,132円/月 383,043円/月 477,347円/月 634,441円/月 948,510円/月
15万円 266,075円/月 311,157円/月 374,176円/月 468,589円/月 625,789円/月 939,965円/月
20万円 256,989円/月 302,181円/月 365,310円/月 459,830円/月 617,138円/月 931,420円/月
25万円 247,904円/月 293,205円/月 356,443円/月 451,071円/月 608,487円/月 922,874円/月
30万円 238,818円/月 284,230円/月 347,576円/月 442,313円/月 599,835円/月 914,329円/月
支払い利息合計 10,220,790円~ 8,728,960円~ 7,248,500円~ 5,780,080円~ 4,323,250円~ 2,878,220円~
※元利均等返済方式で試算しています。 「円」の単位以下の端数金額は「切り捨て」として計算しております。
※金利は、固定金利として計算しております。
※上記の住宅ローン返済額一覧は、あくまで試算であり、将来の金利動向により、実際のご返済額とは異なります。
※ボーナス支払総額が総支払額の50%を超えている場合、上記の表では「ローン不可」となります。
※住宅ローン返済額一覧の数値は、住宅ローンのお申し込みやご融資をお約束するものではございません。
物件を見たい、物件や住環境の詳しい情報やローン相談など、
お問い合わせ先
三井のリハウス高井戸センター三井不動産リアルティ(株)

掲載情報の著作権は提供元企業等に帰属します。
Copyright:(C) 2025 Recruit Co., Ltd.
アプリで簡単 物件探し 大手不動産サイトの情報から一括検!プッシュ通知で物件を見逃さない
App Storeからダウンロード Google Playで手に入れよう QRコード