

 
| 価格 | 14998万円 | ||
|---|---|---|---|
| 交通 | |||
| 所在地 | 東京都世田谷区上馬3周辺地図 | ||
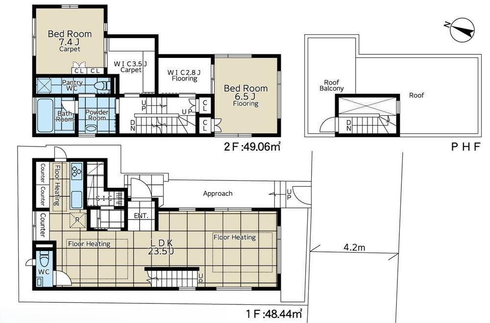
| 間取り | 2LDK | ||
| 建物面積 | 97.5m2(29.49坪)(登記) | 土地面積 | 83.11m2(25.14坪)(登記) | 
| 築年月 | 2013年11月 | 築年数 | 築12年1ヶ月 | 
| 価格 | 14998万円 | ||
|---|---|---|---|
| 所在地 | 東京都世田谷区上馬3周辺地図 | ||
| 交通 | 
 | ||
| 間取り | 2LDK | 築年月(築年数) | 2013年11月(築12年1ヶ月) | 
| 建物面積 | 97.5m2(29.49坪)(登記) | 建物構造・規模 | 木造2階建 | 
| 土地面積 | 83.11m2(25.14坪)(登記) | 土地権利 | 所有権 | 
| 私道面積 | 借地期間・地代 | ||
| 接道状況 | 東4.2m | 駐車場 | 有 | 
| 用途地域 | 1種低層 | 都市計画 | |
| 建ぺい率/容積率 | 60%/150% | 現況 | |
| 地目 | 引渡可能時期 | 即時 | |
| 情報提供元 | SUUMO [030Z78533228] | 情報公開日 | |
| 情報更新日 | 次回更新予定日 | 随時 | |

| 1種低層地域 | ○ | 即入居可 | ○ | 売主・代理 | - | 
|---|---|---|---|---|---|
| 駐車2台以上 | - | 平屋 | - | 本下水 | ○ | 
| 都市ガス | ○ | カウンターキッチン | - | 床暖房 | - | 
| ウォークインクローゼット | ○ | バリアフリー | - | ||
| 設備 | バルコニー・トイレ・収納スペース・都市ガス・浴室乾燥機・ウォークインクローゼット・システムキッチン・モニタ付インターホン・風呂・車庫・トイレ2ヶ所・ルーフバルコニー・浄水器・衣類乾燥機・食器洗浄乾燥機・上水道・本下水・リフォーム・シューズインクローク | ||||
| リフォーム履歴 | 2025年10月完了 水回り設備交換:トイレ 内装リフォーム:壁・床・全室 その他:屋根貼替 ※年月は一番古いリフォーム箇所を表します | ||||
| リノベーション履歴 | - | ||||
| 備考 | <物件名>上馬3(駒沢大学駅) 1億4998万円/<駐車場>カースペース/<土地権利>所有権/<間取り>2LDK/<リフォーム>●リフォーム:2025年10月完了(水回り設備交換:トイレ、内装リフォーム:壁・床・全室、その他:屋根貼替)※年月は一番古いリフォーム箇所を表します/<特徴>平成25年11月築・LDK大理石仕様の注文住宅です内装リフォーム実施、瑕疵保証付(不動産会社独自)・即引渡可・LDK20畳以上・内装リフォーム・システムキッチン 販売戸数:1戸 法令等制限:高度地区、準防火地域、景観地区、敷地面積最低限度有、日影制限有 | ||||
| 特記事項 | 日当り良好・閑静な住宅街・整形地・浴室1坪以上・瑕疵保証(不動産会社独自) | ||||
| エネルギー消費性能 | - | 
|---|---|
| 断熱性能 | - | 
| 目安光熱費 | - | 
| お問い合わせ先 | 商号:REDS(株)不動産流通システム 免許番号:国土交通大臣(2)第009770号 所在地:東京都新宿区西新宿1-8-1 新宿ビルディング9階 TEL:0120-022889 取引態様:一般媒介 管理コード:Re大西 | 共有する | 
 | 
|---|
| 世帯数 | 491717世帯 | 
|---|---|
| 人口総数 | 918141人 | 
| 転入者数 | 64326人 
 | 
| 転出者数 | 59597人 
 | 
| 土地平均価格 | 
 | 
| 子育て関連の独自の取り組み | (1)産後ケア事業(産後の母子を対象に母体ケア、乳児ケア、育児相談・指導などを行う)。(2)新教科「日本語」教育(2007年より世田谷区立の全小・中学校にて実施)(3)せたがや0→1(ぜろいち)子育てエール(5ヶ月から11ヶ月の子供を育てる家庭への見守り訪問事業)(4)世田谷区バースデーサポート事業(1歳を迎える子供のいる家庭へ子育て支援用品等の購入に使用できるデジタルギフト贈呈。※条件あり)(5)子育てステーションの設置(利便性の高い駅前に点在。多機能子育て支援拠点施設) | ||
|---|---|---|---|
| 出産祝い | あり | ||
| 公立保育所数 | 44所(うち0歳児保育を実施している保育所:20所) | ||
| 私立保育所数 | 172所(うち0歳児保育を実施している保育所:158所) | ||
| 保育所入所待機児童数 | 58人 | ||
| 認定こども園数 | 7園 | 預かり保育実施園数 | 公立:7園 私立:45園 | 
| 学校給食 | 【小学校】完全給食【中学校】完全給食 | ||
| 公立中学校の学校選択制 | 未実施 | ||
| 子ども・学生等医療費助成<通院>対象年齢 | 18歳3月末まで | 子ども・学生等医療費助成<入院>対象年齢 | 18歳3月末まで | 
| ガス料金(22m3使用した場合の月額) | 東京瓦斯株式会社(東京地区等)3926円 | 
|---|---|
| 水道料金(口径20mmで20m3の月額) | 東京都水道局2816円 | 
| 下水道料金(20m3を使用した場合の月額) | 東京都下水道局2068円 | 
| 下水道普及率 | 99.9% | 
| 建物火災出火件数 | 141件 
 | 
|---|---|
| 刑法犯認知件数 | 4084件 
 | 
| ハザード・防災マップ | あり | 
| 一般病院総数 | 27ヶ所 | 
|---|---|
| 一般診療所総数 | 952ヶ所 | 
| 小児科医師数 | 349人 
 | 
| 産婦人科医師数 | 66人 
 | 
| 介護保険料基準額(月額) | 6280円 | 
| 家庭ごみ収集(可燃ごみ) | 無料 
 | 
|---|---|
| 家庭ごみの分別方式 | 3分別14種〔可燃ごみ 不燃ごみ(小型家電製品・金属類、ガラス陶磁器類、乾電池・白熱電球・LED電球類・割れた蛍光管、ライター) 資源ごみ(古紙[新聞、雑誌類、紙パック、ダンボール]、ガラスびん、缶、ペットボトル、蛍光管、スプレー缶・カセットボンベ)〕 | 
| 家庭ごみの戸別収集 | 一部実施(65歳以上のひとり暮らし高齢者または高齢者のみの世帯で、世帯全員が介護保険法の要介護2または2程度、ひとり暮らしの障害者または障害者のみの世帯) | 
| 粗大ごみ収集 | あり 
 | 
| 生ごみ処理機助成金制度 | なし 
 | 
| 利子補給制度 | なし | 
|---|---|
| 補助/助成金制度 | なし | 
| 利子補給制度 | なし | 
|---|---|
| 補助/助成金制度 | あり 
 
 | 
 
 
 
 
 
 
 
 
 
 
 
 
 
 
 
 
 
 
 
 
 
 
 
 
 
 
 
 
 
 
 
 
 
 
 
 
 
 
 
 
赤堤|池尻|宇奈根|梅丘|大蔵|大原|岡本|奥沢|尾山台|粕谷|鎌田|上馬|上北沢|上祖師谷|上野毛|上用賀|北烏山|北沢|喜多見|砧|給田|経堂|駒沢|豪徳寺|桜|桜丘|桜上水|三軒茶屋|下馬|新町|成城|瀬田|世田谷|祖師谷|太子堂|玉川台|玉堤|代沢|代田|千歳台|弦巻|等々力|中町|野毛|野沢|八幡山|羽根木|東玉川|深沢|船橋|松原|三宿|南烏山|宮坂|用賀|若林
千代田区|中央区|港区|新宿区|文京区|品川区|目黒区|大田区|渋谷区|中野区|杉並区|豊島区|板橋区|練馬区|武蔵野市|三鷹市|調布市|狛江市|川崎市幸区|川崎市中原区|川崎市高津区|川崎市多摩区|川崎市宮前区
