アプリで簡単 物件探し 通知 共有 アプリならではの機能を使ってみる
RSS

塩竈市(宮城県)の中古一戸建て・中古住宅 物件一覧

宮城県塩竈市の中古住宅、中古一軒家などの中古一戸建て物件をご紹介します。中古物件、中古一軒家、中古建売住宅などの中古一戸建て物件情報を探すならgoo住宅・不動産。価格・建物面積・土地面積・間取り・人気のこだわり条件から物件を簡単検索。理想のマイホーム探しをgoo住宅・不動産がサポートします。

探したい物件のエリア・検索条件を変更して再検索

エリア
検索条件
87 並び替え
チェックした物件を一括で
選択 物件タイプ
画像
所在地/交通
(駅/バス 所要時間)
価格 間取り
建物面積
土地面積 築年月
築年数
new

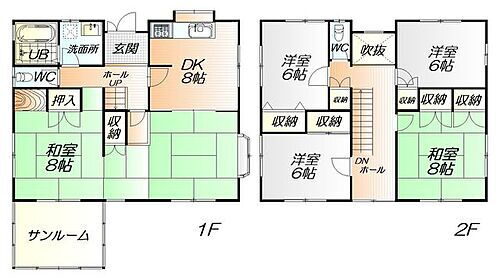
宮城県塩竈市長沢町 798万円 5SLDK

  • 中古住宅
  • 宮城県塩竈市長沢町 中古住宅
    間取り図
宮城県塩竈市長沢町
JR仙石線「本塩釜」2Km
798
万円
5SLDK
183.94m2
380.99m2 1989年12月(築36年5ヶ月)
  • 2階建て
  • 都市ガス
  • 駐車場あり
  • 駐車3台
  • システムキッチン
  • 所有権
おすすめポイント
■小・中学校も徒歩圏内でお子様の通学にも配慮された立地。落ち着いた住環境で子育て世帯にも適しています。■周辺には生活利便施設も点在し、日々のお買物や外食にも便利です。

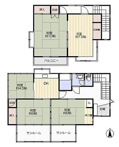
宮城県塩竈市港町2 2100万円 3LDK

  • 中古住宅
  • 宮城県塩竈市港町2 中古住宅
宮城県塩竈市港町2
JR仙石線 本塩釜駅 徒歩5分
JR仙石線 西塩釜駅 徒歩17分
JR仙石線 東塩釜駅 徒歩22分
2100
万円
3LDK
87.55m2
112.01m2 2009年10月(築16年7ヶ月)
  • 2階建て
  • 所有権
  • 即入居可
おすすめポイント
《おすすめポイント》JR本塩釜駅から徒歩5分以内という非常に利便性の高い立地にあり、事業用・店舗用としても高いポテンシャルを有しています。《ご予約・ご案内について》お仕事終わりや、ご出勤前などの早朝・夜間の営業時間外でもあなたのご要望に合わせて、ご対応させて頂きます!《ご相談・ご案内の目安》住宅ローン相談のみ 約30分ご希望の条件などのお打合せ 約1時間お家の見学 約1時間~約2時間 ※1件~3件ご見学の場合◎現地お待ち合わせでのご案内も対応可能♪

宮城県塩竈市西町 1100万円 7K

  • 中古住宅
  • 宮城県塩竈市西町 中古住宅
    間取り図
宮城県塩竈市西町
JR仙石線 本塩釜駅 徒歩10分
1100
万円
7K
229.88m2
165.2m2 1993年9月(築32年8ヶ月)
  • 2階建て
  • 都市ガス
  • 所有権
おすすめポイント
近隣商業施設多数有り!前道6m以上、南向き、和室、トイレ2ヶ所、2階建、小学校 徒歩10分以内

宮城県塩竈市袖野田町 3449万円 5LDK

  • 中古住宅
  • 宮城県塩竈市袖野田町 中古住宅
    間取り図
宮城県塩竈市袖野田町
JR東北本線 塩釜駅 徒歩10分
3449
万円
5LDK
337.72m2
499.72m2 1975年10月(築50年7ヶ月)
  • 2階建て
  • 駐車場あり
  • 駐車3台
  • システムキッチン
  • 所有権
  • 即入居可
  • リフォームリノベーション
おすすめポイント
4/30(木)~5/2(土)予約制見学会開催※当日予約OK。ご希望日をお知らせください。【リフォーム内容】●標準シロアリ防除工事、クリーニング、鍵交換、雨漏り点検●外構・外装外壁塗装●水回りシステムキッチン交換、ユニットバス交換、トイレ交換、洗面化粧台交換●内装クロス張替え、畳表替え●その他設備インターホン設置、火災警報器設置【おすすめポイント】・シロアリ防除工事施工後5年間保証・新品の照明器具設置済みなので入居後にすぐに生活が始められます・お客様に合わせたローンの組み方や金融機関をご提案。住宅ローンが初めての方でもお気軽にご

宮城県塩竈市玉川1 1600万円 5SLDK

  • 中古住宅
  • 宮城県塩竈市玉川1 中古住宅
    間取り図
宮城県塩竈市玉川1
JR東北本線 塩釜駅 徒歩11分
1600
万円
5SLDK
157.99m2
386.43m2 1985年4月(築41年1ヶ月)
  • 2階建て
  • 所有権
おすすめポイント
-物件のおすすめポイント-▼立地・JR東北本線「塩釜」駅 徒歩11分▼特徴・建物面積約47.79坪、仙台ミサワホーム施工の注文住宅・1階は生活・家事動線良好な回遊性のある間取り・2箇所の納戸等、豊富な収納量・多用途に利用可能なサンルーム付・お庭スペース有・室内保守状況良好▼周辺環境・玉川公園 徒歩5分(約340m)・塩釜市立玉川小学校 徒歩6分(約460m)・ローソン塩釜玉川一丁目店 徒歩6分(約460m)※土地面積の他に4.96平米の私道有■ ご希望の住まい探しをお手伝いします ━━━━━・・・物件の詳細・ご相談はお気軽にお問い合わせください。

宮城県塩竈市袖野田町 1780万円 5SLDK

  • 中古住宅
  • 宮城県塩竈市袖野田町 中古住宅
    間取り図
宮城県塩竈市袖野田町
JR東北本線 塩釜駅 徒歩11分
1780
万円
5SLDK
153.65m2
370.37m2 1983年12月(築42年5ヶ月)
  • 2階建て
  • 駐車場あり
  • 駐車2台
  • システムキッチン
  • オール電化
  • 浴室乾燥機
  • 所有権
  • リフォームリノベーション
おすすめポイント
-物件のおすすめポイント-▼特徴・建物面積約46.47坪の5SLDK・1階は回遊性のある間取り・ゆとりある南庭付・室内保守状況良好・駐車2台可能(車種制限有)▼内外装リフォーム履歴【2019年】・クロス張替(9月/1階和室3室・台所天井を除く) 等・浴室交換(11月)【2020年12月】・畳表替(1階南東側和室を除く)【2022年6月】・外壁・屋根塗装 他▼周辺環境・袖野田第4公園 徒歩1分(約60分)※前面道路幅員により容積率が制限されます■ ご希望の住まい探しをお手伝いします ━━━━━・・・物件の詳細・ご相談はお気軽にお問い合わせください。

宮城県塩竈市小松崎 290万円 4DK

  • 中古住宅
  • 宮城県塩竈市小松崎 中古住宅
    間取り図
宮城県塩竈市小松崎
JR仙石線 本塩釜駅 徒歩12分
JR仙石線 東塩釜駅 徒歩22分
JR仙石線 西塩釜駅 徒歩27分
290
万円
4DK
99.36m2
169.69m2 1986年7月(築39年10ヶ月)
  • 2階建て
  • 所有権
  • 即入居可
おすすめポイント
内覧希望の方はお気軽にご連絡ください♪住宅ローンのご相談も無料にて承ります。

宮城県塩竈市新富町 2149万円 4LDK

  • 中古住宅
  • 宮城県塩竈市新富町 中古住宅
    間取り図
宮城県塩竈市新富町
JR仙石線 西塩釜駅 徒歩14分
2149
万円
4LDK
124m2
189.98m2 1989年4月(築37年1ヶ月)
  • 2階建て
  • 都市ガス
  • 駐車場あり
  • 駐車2台
  • 所有権
  • リフォームリノベーション
おすすめポイント
4/30(木)~5/2(土)予約制見学会開催※当日予約OK。ご希望日をお知らせください。【リフォーム内容】●標準シロアリ防除工事、クリーニング、鍵交換、雨漏り点検、設備点検●外構・外装屋根塗装、植栽剪定、庭木伐採●水回りシステムキッチン交換、ユニットバス交換、トイレ交換、洗面化粧台交換●内装間取変更、室内ドア(一部)交換、床材上張り、シューズボックス交換、クロス張替え、畳表替え、障子・襖張替え●その他設備給湯器交換、インターホン設置、火災警報器設置、照明器具交換【おすすめポイント】・本物件は条件により住宅ローン減税が適用されます。

宮城県塩竈市芦畔町 3390万円 4LDK

  • 中古住宅
  • 宮城県塩竈市芦畔町 中古住宅
    間取り図
宮城県塩竈市芦畔町
JR仙石線 下馬駅 バス4分/「多賀城高校前」バス停 停歩10分
3390
万円
4LDK
110.72m2
181.91m2 2025年3月(築1年2ヶ月)
  • 2階建て
  • 所有権
おすすめポイント
・各居室6畳以上確保。また、各居室南側に窓が設けられているためどのお部屋も日当たりの良い居住空間となっています。・風通しの良い二面採光の居室。全居室二面採光の間取り設計となっており、どの居室も換気がしやすいのが特徴です。・2階7.5畳洋室には、ウォークインクローゼットが設置されています。スーツケース等の大きな荷物を収納することも可能です。・玄関にはシューズインクローゼットがあります。かさばるスーツケースやゴルフバックなどの収納にも便利です。・セカンドカーや来客用にうれしい3台分のカースペース有り。

宮城県塩竈市芦畔町 3590万円 4LDK

  • 中古住宅
  • 宮城県塩竈市芦畔町 中古住宅
    間取り図
宮城県塩竈市芦畔町
JR仙石線 下馬駅 バス4分/「多賀城高校前」バス停 停歩10分
3590
万円
4LDK
110.55m2
184.1m2 2025年2月(築1年3ヶ月)
  • 2階建て
  • 所有権
おすすめポイント
・各居室6畳以上確保。また、各居室南側に窓が設けられているためどのお部屋も日当たりの良い居住空間となっています。・風通しの良い二面採光の居室。全居室二面採光の間取り設計となっており、どの居室も換気がしやすいのが特徴です。・2階8畳洋室には、ウォークインクローゼットが設置されています。スーツケース等の大きな荷物を収納することも可能です。・玄関にはシューズインクローゼットがあります。かさばるスーツケースやゴルフバックなどの収納にも便利です。・南側にお庭があるため、室内は明るく開放的な印象です。・セカンドカーや来客用にうれしい3台分のカースペース有り。

宮城県塩竈市母子沢町 980万円 5LDK

  • 中古住宅
  • 宮城県塩竈市母子沢町 中古住宅
    間取り図
宮城県塩竈市母子沢町
JR東北本線 塩釜駅 徒歩15分
JR東北本線 国府多賀城駅 徒歩17分
JR仙石線 下馬駅 徒歩24分
980
万円
5LDK
117.88m2
249.6m2 1982年10月(築43年7ヶ月)
  • 2階建て
  • 駐車場あり
  • 駐車2台
  • 所有権
  • 即入居可
おすすめポイント
新築時・増改築時の設計図、駐車2台可、即引渡可、2沿線以上利用可、土地50坪以上、南向き、和室、シャワー付洗面化粧台、浴室1坪以上、2階建、温水洗浄便座、南庭、TVモニタ付インターホン、全居室6畳以上

宮城県塩竈市松陽台3 6510万円 9DK

  • 中古住宅
  • 宮城県塩竈市松陽台3 中古住宅
    間取り図
宮城県塩竈市松陽台3
JR仙石線 東塩釜駅 徒歩15分
6510
万円
9DK
368.55m2
1363.34m2 1981年12月(築44年5ヶ月)
  • 2階建て
  • 駐車場あり
  • 所有権
  • 即入居可
おすすめポイント
【+Point+】《塩竈市立杉の入小×塩竃市立第二中》《敷地412坪》《前道路6m幅》《食品庫》《納戸》《和室》《洋室》【+Life information+】■塩竈市立杉の入小学校 徒歩15分(1157m)■塩竃市立第二中学校 徒歩12分(947m)■藤倉保育所 徒歩8分(580m)■ウジエスーパー 塩釜店徒歩12分(964m)■イオンタウン塩釜 車で5分(1933m)

宮城県塩竈市貞山通3 2780万円 4LDK

  • 中古住宅
  • 宮城県塩竈市貞山通3 中古住宅
    間取り図
宮城県塩竈市貞山通3
JR仙石線 本塩釜駅 徒歩18分
2780
万円
4LDK
101.25m2
175.81m2 2022年2月(築4年3ヶ月)
  • 2階建て
  • 駐車場あり
  • 駐車3台
  • システムキッチン
  • オール電化
  • 浴室乾燥機
  • 所有権
おすすめポイント
~ライフインフォメーション~〇ローソン 塩釜舟入店 徒歩約6分〇ヤマザワ 塩釜中の島店 徒歩約6分〇Seria ヤマザワ塩釜中の島店 徒歩約6分〇ワークマンプラス 塩釜店 徒歩約7分〇ヨークベニマル 塩釜舟入店 徒歩約7分 〇業務スーパー 塩釜店 徒歩約7分〇ダイソー 塩釜舟入店  徒歩約7分〇ウエルシア 塩釜舟入店 徒歩約8分〇塩釜郵便局 徒歩約11分〇セブンイレブン 塩釜港町2丁目店 徒歩約11分〇イオンタウン塩釜 徒歩約17分〇DCM 塩釜店 徒歩約17分~小・中学校~〇塩竈市立第三小学校 徒歩約22分〇塩竈市立第三中学校 徒歩約28分

宮城県塩竈市大日向町 1480万円 3LDK

  • 中古住宅
  • 宮城県塩竈市大日向町 中古住宅
    間取り図
宮城県塩竈市大日向町
JR東北本線 塩釜駅 徒歩21分
1480
万円
3LDK
151.53m2
273.06m2 1992年4月(築34年1ヶ月)
  • 2階建て
  • 所有権
おすすめポイント
■━━━━━━━━━━━━━━━━━━■・東側道路に面するため、陽当り良好です。・約6畳の和室部分は、客間や寝室としてもお使えいただけるほか、リビングダイニングとの仕切りを全開にすることで広い空間をつくることも可能です。・敷地内に物置があります。スキーセットやゴルフバックなどの長尺もの、アウトドアグッズやガーデニング用品など室内で保管しにくいものの収納に便利です。・リビングダイニングからは南側の庭の植栽をが臨めます。また、庭部分は道路に面していないため、道路からの目線は気になりません。■━━━━━━━━━━━━━━━━━━■

宮城県塩竈市今宮町 1250万円 4SLDK

  • 中古住宅
  • 宮城県塩竈市今宮町 中古住宅
    間取り図
宮城県塩竈市今宮町
JR仙石線 本塩釜駅 徒歩23分
JR仙石線 東塩釜駅 徒歩25分
JR仙石線 西塩釜駅 徒歩30分
1250
万円
4SLDK
121.48m2
146.15m2 1994年8月(築31年9ヶ月)
  • 2階建て
  • 都市ガス
  • 浴室乾燥機
  • 所有権
おすすめポイント
☆おすすめポイント☆・南東角地につき日当たり良好!・全室南向きで明るい室内!・家計にやさしい太陽光発電あり!・収納力のある大型クローゼット!・リフォームも含めてご相談可能です♪宮城県・仙台市を中心に県内に根付いた強力なネットワーク体制で、お客様の「売りたい」「買いたい」を住まい選びのプロフェッショナルが全力でサポートさせていただきます!

宮城県塩竈市青葉ケ丘 1980万円 5SLDK

  • 中古住宅
  • 宮城県塩竈市青葉ケ丘 中古住宅
    間取り図
宮城県塩竈市青葉ケ丘
JR仙石線 東塩釜駅 徒歩24分
1980
万円
5SLDK
167.23m2
200.44m2 1995年5月(築31年)
  • 2階建て
  • 都市ガス
  • 所有権
おすすめポイント
┃▼リフォーム実施後引渡し(2026年6月初旬完成予定)●屋根・外壁・玄関ドア塗装●システムキッチン新品交換(食洗機付き)●造付食器棚新設●ユニットバス新品交換(浴室換気乾燥暖房機付)●洗面化粧台新品交換●トイレ1階・2階新品交換●ガス給湯器新品交換●フローリング上張り●クロス張替え●洗面所とトイレのCF張替え●和室畳表替え●襖・障子張替え●モニター付インターホン新設●全室LED照明器具新設●玄関カギ交換┃▼分譲・施工・構造・平成7年5月築の注文住宅です。┃▼現地状況・セカンドカーや来客用にうれしい並列2台分のカースペース有り。

宮城県塩竈市後楽町 2680万円 4LDK

  • 中古住宅
  • 宮城県塩竈市後楽町 中古住宅
    間取り図
宮城県塩竈市後楽町
JR東北本線 利府駅 徒歩25分
2680
万円
4LDK
111.37m2
181.89m2 2016年3月(築10年2ヶ月)
  • 2階建て
  • オール電化
  • 所有権
おすすめポイント
■━━━━━━━━━━━━━━━━━━■・前面道路はゆとりある幅員6.0mの道路です。・LDKは約20畳あります。・リビングダイニングは3面に窓を配し、明るく開放感ある空間を演出します。・2階8.12畳洋室には、納戸があります。スーツケース等の大きな荷物を収納することも可能です。・玄関には納戸があります。かさばるスーツケースやゴルフバックなどの収納にも便利です。・オール電化システムのため、ガス漏れの心配もいりません。またIHクッキングヒーターを設置しておりますので、お手入れもしやすいです。■━━━━━━━━━━━━━━━━━━■

宮城県塩竈市みのが丘 170万円 4DK

  • 中古住宅
  • 宮城県塩竈市みのが丘 中古住宅
宮城県塩竈市みのが丘
JR仙石線「本塩釜」1Km
170
万円
4DK
83.11m2
104.58m2 1959年1月(築67年4ヶ月)
  • 2階建て
  • 南道路
  • 都市ガス
  • 所有権
  • 即入居可
おすすめポイント
■徒歩圏に学校・買物施設・公園が揃い、生活のしやすさが魅力です。空家のため、ご都合に合わせて即入居も可能です。■気になる事がございましたら。詳細は担当までお問い合わせください。

宮城県塩竈市旭町 280万円 7DK

  • 中古住宅
  • 宮城県塩竈市旭町 中古住宅
    間取り図
宮城県塩竈市旭町
JR仙石線「西塩釜」1Km
280
万円
7DK
47.93m2
232.2m2 1964年11月(築61年6ヶ月)
  • 2階建て
  • 都市ガス
  • 所有権
  • 即入居可
おすすめポイント
■西塩竈駅まで徒歩5分と交通アクセスが良く、周辺には生活に便利なお店も揃っています。■明治39年築の平屋建て6DK住宅は、歴史を感じさせる趣のある佇まいです。
チェックした物件を一括で

宮城県塩竈市白菊町 434万円 5DK

  • 中古住宅
  • 宮城県塩竈市白菊町 中古住宅
    間取り図
宮城県塩竈市白菊町
JR東北本線「塩釜」2Km
434
万円
5DK
45.45m2
338.85m2 1960年1月(築66年4ヶ月)
  • 平屋
  • 駐車場あり
  • 所有権
  • 即入居可
おすすめポイント
■月見ケ丘小学校・玉川中学校が徒歩圏内にあり、子育て世帯にも安心ですね。■塩釜駅まで徒歩14分、車なら3分とアクセス良好。詳細は担当までお気軽にお問い合わせください。

宮城県塩竈市舟入1 780万円 3DK

  • 中古住宅
  • 宮城県塩竈市舟入1 中古住宅
    間取り図
宮城県塩竈市舟入1
JR仙石線「本塩釜」2Km
780
万円
3DK
54.2m2
174.35m2 1974年6月(築51年11ヶ月)
  • 平屋
  • 都市ガス
  • 駐車場あり
  • 駐車3台
  • 所有権
  • 即入居可
おすすめポイント
■JR「本塩釜」駅まで車で約3分と通勤通学にも配慮された立地です。■和室中心の間取りは、くつろぎの空間としても使いやすく、ご家族それぞれの時間を大切にできます。

宮城県塩竈市字伊保石 1448万円 3LDK

  • 中古住宅
  • 宮城県塩竈市字伊保石 中古住宅
    間取り図
宮城県塩竈市字伊保石
JR仙石線「本塩釜」4Km
1448
万円
3LDK
119.62m2
248.7m2 1989年12月(築36年5ヶ月)
  • 2階建て
  • 南道路
  • 駐車場あり
  • 所有権
おすすめポイント
■近隣には公園もあり、日々の散歩やお子様の遊び場にも便利な立地です。■自然と触れ合いながら、落ち着いた日常を過ごしたい方に適しています。

宮城県塩竈市松陽台3 1580万円 5DK

  • 中古住宅
  • 宮城県塩竈市松陽台3 中古住宅
    間取り図
宮城県塩竈市松陽台3
バス/「松陽台三丁目」バス停 停歩2分
1580
万円
5DK
166.86m2
264.79m2 1980年3月(築46年2ヶ月)
  • 2階建て
  • 都市ガス
  • 駐車場あり
  • 駐車2台
  • 所有権
  • 即入居可
おすすめポイント
パントリーあり、収納も豊富です!駐車2台可、即引渡可、土地50坪以上、南向き、前道6m以上、閑静な住宅地、和室、2階建、浴室に窓、パントリー(食器・食品の収納庫)、都市ガス

宮城県塩竈市千賀の台3 1980万円 4LDK

  • 中古住宅
  • 宮城県塩竈市千賀の台3 中古住宅
    間取り図
宮城県塩竈市千賀の台3
バス/「千賀の台北」バス停 停歩2分
1980
万円
4LDK
125m2
219.02m2 1990年6月(築35年11ヶ月)
  • 2階建て
  • 南道路
  • 駐車場あり
  • 駐車2台
  • システムキッチン
  • 所有権
  • 即入居可
  • リフォームリノベーション
おすすめポイント
■外壁、フローリング、水廻り設備一式フルリノベーション済み!■建物面積37.81坪のゆとりの広さ(各部屋がとにかく広い☆)■二階のバルコニーからは松島湾の島々が眺められます!⇒7月には塩竃みなとまつりの花火を家から見ながらビールを☆彡■南北に二間続きの和室をリノベーションで独立した和室と洋室に分離⇒南側は縁無しタタミのモダンな空間にイメージチェンジ⇒北側はフローリングを貼って洋室に変更

宮城県塩竈市越の浦2 2200万円 5SLDK

  • 中古住宅
  • 宮城県塩竈市越の浦2 中古住宅
    間取り図
宮城県塩竈市越の浦2
JR仙石線「東塩釜」2Km
2200
万円
5SLDK
181.97m2
260.25m2 1998年3月(築28年2ヶ月)
  • 2階建て
  • 都市ガス
  • 駐車場あり
  • 所有権
  • 即入居可
おすすめポイント
■駐車2台分を確保し、日常の利便性にも配慮。■太陽光発電システム搭載で、環境にも家計にもやさしい暮らしを実現します。

宮城県塩竈市北浜2 9980万円 5SLDK

  • 中古住宅
  • 宮城県塩竈市北浜2 中古住宅
    間取り図
宮城県塩竈市北浜2
JR仙石線 本塩釜駅 徒歩6分
JR東北本線 塩釜駅 徒歩25分
JR東北本線 国府多賀城駅 徒歩3.9km
9980
万円
5SLDK
233.75m2
2818.55m2 2012年10月(築13年7ヶ月)
  • 2階建て
  • 駐車場あり
  • 駐車3台
  • システムキッチン
  • オール電化
  • 浴室乾燥機
  • 所有権
  • 即入居可
おすすめポイント
◆室内状況良好、2012年築の中古邸宅◆高台に位置する開放的な立地◆敷地面積850坪超の広大な敷地◆建物面積約70坪2階建ての贅沢な造り◆敷地内収益駐車場34区画あり。年間想定賃料収入約246万円◆アウトドアリビング◆Dovre製薪ストーブ◆建物を囲む贅沢な庭園【上場企業グループの不動産部門・なんぼや不動産】お客様目線のお付き合いを追求し、メリット・デメリットも隠さずお伝えいたします。まずは資料から→オレンジの【資料請求する】ボタンから!気軽に予約→赤の【見学予約する】ボタンから!電話で相談→フリーダイヤル:0120-963-221(年中無休)

宮城県塩竈市藤倉3 3380万円 3SLDK

  • 中古住宅
  • 宮城県塩竈市藤倉3 中古住宅
    間取り図
宮城県塩竈市藤倉3
JR仙石線 東塩釜駅 徒歩3分
JR仙石線 本塩釜駅 徒歩16分
3380
万円
3SLDK
117.83m2
302.92m2 2019年12月(築6年5ヶ月)
  • 2階建て
  • 駐車場あり
  • 駐車3台
  • システムキッチン
  • オール電化
  • 浴室乾燥機
  • 所有権

宮城県塩竈市新浜町2 850万円 4DK

  • 中古住宅
  • 宮城県塩竈市新浜町2 中古住宅
    間取り図
宮城県塩竈市新浜町2
JR仙石線 東塩釜駅 徒歩11分
850
万円
4DK
72.45m2
119.01m2 1983年11月(築42年6ヶ月)
  • 2階建て
  • 駐車場あり
  • 所有権

宮城県塩竈市西玉川町 1200万円 4LDK

  • 中古住宅
  • 宮城県塩竈市西玉川町 中古住宅
宮城県塩竈市西玉川町
JR東北本線 塩釜駅 徒歩14分
JR仙石線 下馬駅 徒歩23分
1200
万円
4LDK
197m2
166.08m2 1977年10月(築48年7ヶ月)
  • 2階建て
  • 駐車場あり
  • 所有権

宮城県塩竈市杉の入1 2490万円 4LDK

  • 中古住宅
  • 宮城県塩竈市杉の入1 中古住宅
    間取り図
宮城県塩竈市杉の入1
JR仙石線 東塩釜駅 徒歩16分
JR仙石線 本塩釜駅 徒歩30分
JR仙石線 陸前浜田駅 徒歩36分
2490
万円
4LDK
154.21m2
254.57m2 1981年11月(築44年6ヶ月)
  • 2階建て
  • 駐車場あり
  • 駐車2台
  • 所有権
おすすめポイント
人生において一番高額なお買い物の【持ち家】そして裏を返せば決して【失敗できないお買い物】でもあります。その失敗できないお買い物を、本当にご満足してご購入できるかがグローイングスタッフの存在意義でございます。グローイングでは、住宅購入の時点で、すでにご売却した際の資産という点もじっくり想定したご対応を心掛けております。あらゆる可能性を想定しての住宅購入は、一番の安心材料でございます。当社は、ハウスメーカー、賃貸物件事業、不動産売買仲介を15年以上経験したスタッフのみのご対応でございますので、小さなご不安、ご不明点も遠慮なくぶつけてください!!

宮城県塩竈市越の浦2 2200万円 5LDK

  • 中古住宅
  • 宮城県塩竈市越の浦2 中古住宅
    間取り図
宮城県塩竈市越の浦2
JR仙石線 東塩釜駅 徒歩19分
JR仙石線 陸前浜田駅 徒歩3.6km
2200
万円
5LDK
181.97m2
260.25m2 1998年3月(築28年2ヶ月)
  • 2階建て
  • 駐車場あり
  • 駐車2台
  • システムキッチン
  • オール電化
  • 所有権
  • バリアフリー

宮城県塩竈市泉沢町 1980万円 3K

  • 中古住宅
  • 宮城県塩竈市泉沢町 中古住宅
    間取り図
宮城県塩竈市泉沢町
JR仙石線 本塩釜駅 徒歩22分
JR東北本線 塩釜駅 徒歩25分
1980
万円
3K
172.24m2
512.69m2 1996年11月(築29年6ヶ月)
  • 2階建て
  • 駐車場あり
  • 駐車3台
  • 所有権

宮城県塩竈市一森山 2780万円 4LDK

  • 中古住宅
  • 宮城県塩竈市一森山 中古住宅
    間取り図
宮城県塩竈市一森山
JR仙石線 本塩釜駅 徒歩22分
JR仙石線 西塩釜駅 徒歩35分
2780
万円
4LDK
102.67m2
241.93m2 2017年5月(築9年)
  • 2階建て
  • 駐車場あり
  • 駐車3台
  • システムキッチン
  • オール電化
  • 浴室乾燥機
  • 所有権

宮城県塩竈市一森山 2990万円 3LDK

  • 中古住宅
  • 宮城県塩竈市一森山 中古住宅
    間取り図
宮城県塩竈市一森山
JR仙石線 本塩釜駅 徒歩22分
2990
万円
3LDK
123.37m2
291.7m2 2017年5月(築9年)
  • 2階建て
  • 駐車場あり
  • 駐車3台
  • システムキッチン
  • オール電化
  • 所有権

宮城県塩竈市袖野田町 3399万円 5LDK

  • 中古住宅
  • 宮城県塩竈市袖野田町 中古住宅
    間取り図
宮城県塩竈市袖野田町
JR東北本線 塩釜駅 徒歩8分
JR仙石線 下馬駅 徒歩16分
JR仙石線 西塩釜駅 徒歩25分
3399
万円
5LDK
207.08m2
499.72m2 1993年9月(築32年8ヶ月)
  • 2階建て
  • 駐車場あり
  • 駐車3台
  • システムキッチン
  • 所有権
  • リフォームリノベーション
おすすめポイント
リフォームの内容◇シロアリ防除工事、クリーニング、鍵交換、雨漏り点検◇外壁塗装済◇システムキッチン交換、ユニットバス交換、トイレ交換、洗面化粧台交換◇クロス張替、畳表替済◇インターホン、火災警報器設置◇シロアリ防除工事施工後5年間保証

宮城県塩竈市玉川3 4000万円 3DK

  • 中古住宅
  • 宮城県塩竈市玉川3 中古住宅
    間取り図
宮城県塩竈市玉川3
JR東北本線 塩釜駅 徒歩10分
JR仙石線 西塩釜駅 徒歩20分
4000
万円
3DK
92m2
926.99m2 2012年7月(築13年10ヶ月)
  • 平屋
  • 駐車場あり
  • 駐車3台
  • システムキッチン
  • オール電化
  • 床暖房
  • 所有権
おすすめポイント
■JR東北本線 塩釜駅 徒歩10分!JR仙石線 西塩釜駅 徒歩20分!■高台に立地し日照良好!遠くまで望める眺望条件も魅力です!■H24年築の積水ハウス施工建物!人気の平屋建!三方角地!■オール電化仕様!多彩に活用可能な別棟物置もあり。■駐車場はらくらく10台以上が可能な魅力の敷地条件です。

宮城県塩竈市梅の宮 1499万円 3SK

  • 中古住宅
  • 宮城県塩竈市梅の宮 中古住宅
    間取り図
宮城県塩竈市梅の宮
JR仙石線 本塩釜駅 徒歩21分
1499
万円
3SK
89.22m2
221.41m2 1995年4月(築31年1ヶ月)
  • 平屋
  • 都市ガス
  • 駐車場あり
  • 駐車2台
  • システムキッチン
  • 所有権
  • リフォームリノベーション
おすすめポイント
~リフォーム内容~・キッチン交換・お風呂交換・トイレ交換・洗面台交換・クロス張替え・フローリング張替え・クッションフロア張替え・給湯器交換・建具交換・外壁・屋根塗装

宮城県塩竈市藤倉1 2500万円 1SLDK

  • 中古住宅
  • 宮城県塩竈市藤倉1 中古住宅
宮城県塩竈市藤倉1
JR仙石線 東塩釜駅 徒歩10分
JR仙石線 本塩釜駅 徒歩18分
JR仙石線 西塩釜駅 徒歩37分
2500
万円
1SLDK
49.68m2
167.45m2 2024年4月(築2年1ヶ月)
  • 平屋
  • 駐車場あり
  • 所有権

宮城県塩竈市松陽台1 1280万円 3LDK

  • 中古住宅
  • 宮城県塩竈市松陽台1 中古住宅
    間取り図
宮城県塩竈市松陽台1
JR仙石線 東塩釜駅 徒歩12分
1280
万円
3LDK
91m2
175.58m2 1982年5月(築44年)
  • 2階建て
  • 都市ガス
  • 駐車場あり
  • システムキッチン
  • 所有権
おすすめポイント
耐震基準適合証明書、土地50坪以上、スーパー 徒歩10分以内、市街地が近い、海まで2km以内、南向き、システムキッチン、陽当り良好、全居室収納、閑静な住宅地、前道6m以上、和室、2階建、全室南向き、オートバス、浴室に窓、TVモニタ付インターホン、通風良好、全居室6畳以上、全室2面採光、高台に立地、周辺交通量少なめ、スマートキー
new

宮城県塩竈市清水沢2丁目 700万円 4DK

  • 中古住宅
  • 宮城県塩竈市清水沢2丁目 中古住宅
    間取り図
宮城県塩竈市清水沢2丁目
東北本線 塩釜駅 バス10分/「清水沢アパート前下車」バス停 停歩8分
700
万円
4DK
63.61m2
215.75m2 1972年9月(築53年8ヶ月)
  • 平屋
  • 駐車場あり
  • 所有権
  • 即入居可
おすすめポイント
不動産のご購入を検討しているが不動産の知識がなくて不安だと思う方でも、経験豊富な当社スタッフがしっかりとサポートするので安心してご依頼下さい。
チェックした物件を一括で
  • チェックした物件をまとめて
87
表示件数 123 次へ

条件を選択

価格
間取り
建物面積
土地面積
築年数
駅からの時間
人気のこだわり条件

さらに詳しくこだわり条件を選択

建物構造
階数
立地・特徴
キッチン
設備
駐車場
条件
性能・評価
瑕疵保険
お得な条件
画像・動画
情報の新しさ
フリーワード

塩竈市の暮らしデータ

人口などの統計情報

世帯数 21151世帯
人口総数 51726人
転入者数 1891人
転入率(人口1000人当たり)
36.56人
転出者数 1645人
転出率(人口1000人当たり)
31.80人
土地平均価格
住宅地
38425円/m2
商業地
39533円/m2

結婚・育児の助成金

子育て関連の独自の取り組み (1)子育てリフレッシュ事業(就学前の児童を持つ保護者を対象に、心身のリフレッシュと育児負担の軽減を図るため一時保育が無料で利用できるもの)。(2)しおがま子育てサポート協力店事業(子育て中の家族が安心して外出できる環境整備を促進するため、親子が使いやすい設備やサービスを提供する店舗等をしおがま子育てサポート協力店として登録し、その所在を広く周知することで、子育て中の家族が安心して外出できる環境を地域社会全体で創出し、子どもの健やかな育成を支援するもの)。(3)地域のおしごと体験事業(市内の小学生を対象に普段接することが少ない塩竈の様々な職業や仕事を体験する機会を提供し、未来を担う子どもたちの郷土塩竈に対する誇りや愛着を深めていくもの)。
出産祝い あり
公立保育所数 4所(うち0歳児保育を実施している保育所:2所)
私立保育所数 7所(うち0歳児保育を実施している保育所:7所)
保育所入所待機児童数 0人
認定こども園数 3園 預かり保育実施園数 公立:- 私立:4園
学校給食 【小学校】完全給食【中学校】完全給食
公立中学校の学校選択制 一部実施(小中併設・小規模特認校[浦戸小中学校]は学区外からの児童生徒の受け入れ可能)
子ども・学生等医療費助成<通院>対象年齢 18歳3月末まで 子ども・学生等医療費助成<入院>対象年齢 18歳3月末まで

塩竈市の治安・ごみ収集情報

公共料金・インフラ

ガス料金(22m3使用した場合の月額) 塩釜ガス株式会社5157円
水道料金(口径20mmで20m3の月額) 塩竈市4268円
下水道料金(20m3を使用した場合の月額) 塩竈市3905円
下水道普及率 99.4%

安心・安全

建物火災出火件数 10件
人口10000人当たり
1.92件
刑法犯認知件数 223件
人口1000人当たり
4.27件
ハザード・防災マップ あり

医療

一般病院総数 3ヶ所
一般診療所総数 39ヶ所
小児科医師数 10人
小児人口10000人当たり
19.57人
産婦人科医師数 7人
15~49歳女性人口1万人当たり
7.92人
介護保険料基準額(月額) 6010円

ごみ

家庭ごみ収集(可燃ごみ) 無料
備考
指定ごみ袋は有料だが、袋代にごみ収集・処理料金等を含まず。多量により集積所に出せないものや指定の袋に入らないものは持込対応(100kgまで1,000円。50kgごと500円加算)又は、業者対応。
家庭ごみの分別方式 5分別12種〔可燃ごみ 不燃ごみ(使用済小型家電類) プラスチック製容器包装 資源ごみ(紙新聞紙・チラシ、ダンボール、雑誌類、牛乳パック、雑紙、ビン類・缶類、PETボトル) 有害ごみ(蛍光灯、乾電池)〕
家庭ごみの戸別収集 未実施
粗大ごみ収集 あり
備考
一辺が80cm以内であれば、粗大ごみとして集積所で収集。80cmを超えるものは大型ごみとして持込対応(100kgまで1,000円。50kgごと500円加算)又は、業者対応。
生ごみ処理機助成金制度 あり
上限金額
20000円
上限比率
50.0%

塩竈市の住まいの給付金

中古購入

利子補給制度 なし
補助/助成金制度 あり
上限金額
65万円
備考
【塩竈市子育て・三世代同居近居住宅取得支援事業】塩竈市内に転入する子育て世帯、三世代同居・近居世帯が中古住宅を購入する場合、売買契約額の3%(上限50万円)を補助。多子世帯加算として、義務教育修了前の子を2人養育している場合は5万円、3人以上養育している場合は15万円の補助額加算。

増築・改築・改修

利子補給制度 なし
補助/助成金制度 あり
上限金額
100万円
備考
【塩竈市木造住宅耐震改修工事助成】市の木造住宅耐震診断助成事業で作成した耐震改修計画に基づき、耐震改修工事等を行う住宅に対して助成。耐震改修工事のみの場合、工事費の16/25、限度額80万円。耐震改修工事とそれ以外の工事(10万円以上)も同時に行う場合、耐震改修工事費の4/5、限度額100万円。
暮らしデータ提供元:生活ガイド.com
※行政機関により公表していない地域及びデータがございます。東京23区以外の政令指定都市は、市全体のデータとして表示しています。
※提供データには細心の注意を払っておりますが、調査後に変更がある場合があります。 最新の情報につきましては各市区役所までお問い合わせいただくか、自治体HPなどをご確認ください。

価格相場

塩竈市の価格相場

  ワンルーム 1K・1DK 1LDK・2K・2DK 2LDK・3K・3DK 3LDK・4K・4DK
中古一戸建て - - - 2772万円 2545万円

周辺エリアの価格相場

  仙台市宮城野区 多賀城市 宮城郡松島町 宮城郡七ヶ浜町 宮城郡利府町
中古一戸建て 3982万円 - - - -
※このデータはgoo住宅・不動産に掲載されている中古一戸建ての平均価格(管理費・駐車場代などを除く)を算出したものです。ただし5戸以上の掲載があるものについてのみ対象とします。
※周辺エリアの価格相場は2LDK・3K・3DKの平均価格(管理費・駐車場代などを除く)を算出したものです。

宮城県の人気の街アクセスランキング(中古一戸建て)

※このランキングは2026年03月01日~31日における各ページのアクセス数から算出しています。
アプリで簡単 物件探し 大手不動産サイトの情報から一括検!プッシュ通知で物件を見逃さない
App Storeからダウンロード Google Playで手に入れよう QRコード