アプリで簡単 物件探し 通知 共有 アプリならではの機能を使ってみる
RSS

湘南新宿ライン高海(神奈川県)の中古一戸建て・中古住宅 物件一覧

湘南新宿ライン高海(神奈川県)の中古住宅、中古一軒家などの中古一戸建て物件をご紹介します。中古物件、中古一軒家、中古建売住宅などの中古一戸建て物件情報を探すならgoo住宅・不動産。価格・建物面積・土地面積・間取り・人気のこだわり条件から物件を簡単検索。理想のマイホーム探しをgoo住宅・不動産がサポートします。

5,000 並び替え
12345 … 125 次へ
チェックした物件を一括で
選択 物件タイプ
画像
所在地/交通
(駅/バス 所要時間)
価格 間取り
建物面積
土地面積 築年月
築年数
new

東京都渋谷区恵比寿南2 14億0,000万円 他

  • 中古住宅
  • 東京都渋谷区恵比寿南2 中古住宅
    間取り図
東京都渋谷区恵比寿南2
東京メトロ日比谷線 恵比寿駅 徒歩3分
JR山手線 恵比寿駅 徒歩5分
東急東横線 代官山駅 徒歩10分
14億0,000
万円

315.59m2
142.07m2 2014年2月(築12年4ヶ月)
  • 3階建て以上
  • システムキッチン
  • 浴室乾燥機
  • 所有権
おすすめポイント
※家具・家電付き販売* 検査済証 ・確定測量図 あり* EVあり(ホームEV3人乗り・各階毎の鍵付き) * 設計監理:アーキテクツパーク一級建築士事務所 *施工:(株)アイガー産業 * 登記面積:1階:84.55㎡ / 2階:84.17㎡ / 3階:70.17㎡ / 4階:66.67㎡ / 5階:26.60㎡ 合計:332.16㎡(100.48坪)設計・監理・施工:ユニオンテック(株) × 家具・ファニチャー・家電・植栽プロデュース:三井デザインテック(株)リノベーションで、1階 駐車場(3台)を増床(22.27㎡)改修済み ※増床の床面積・種類の変更登記済み
new

埼玉県北本市北本3 2,399万円 3LDK

  • 中古住宅
  • 埼玉県北本市北本3 中古住宅
    間取り図
埼玉県北本市北本3
JR高崎線 北本駅 徒歩7分
2,399
万円
3LDK
93.98m2
117.2m2 1998年2月(築28年4ヶ月)
  • 2階建て
  • 都市ガス
  • システムキッチン
  • 所有権
  • 即入居可
  • リフォームリノベーション
おすすめポイント
■価格と広さを両立した、ファミリーにちょうどいい住まい!■いつでも内覧できます!■中丸小学校徒歩約10分につき小さなお子様の通学も安心です!
new

群馬県高崎市並榎町 2,480万円 5SLDK

  • 中古住宅
  • 群馬県高崎市並榎町 中古住宅
    間取り図
群馬県高崎市並榎町
JR信越本線 北高崎駅 徒歩8分
JR上越線 高崎問屋町駅 徒歩33分
JR高崎線 高崎駅 徒歩3.4km
2,480
万円
5SLDK
149.88m2
207.87m2 2005年4月(築21年2ヶ月)
  • 2階建て
  • 駐車場あり
  • 駐車3台
  • システムキッチン
  • 浴室乾燥機
  • 所有権
  • 即入居可
おすすめポイント
安心に、安全に、ちょっとお得にお家探しをされたい方は三方舎まで!!■三方舎は地域密着度を重視しております■地元だから!少人数だがら!出来るご提案が必ずございます!ご案内~ご契約~お引渡し~アフターフォローまでお客様とマンツーマン体制!転勤等が無い為に担当が急に変わってしまう心配も無し!
new

神奈川県小田原市国府津4 7,180万円 1SLDK

  • 中古住宅
  • 神奈川県小田原市国府津4 中古住宅
    間取り図
神奈川県小田原市国府津4
JR東海道本線 国府津駅 徒歩8分
JR東海道本線 鴨宮駅 徒歩3.6km
JR御殿場線 下曽我駅 徒歩4.4km
7,180
万円
1SLDK
95.23m2
99.17m2 2023年11月(築2年7ヶ月)
  • 2階建て
  • 南道路
  • システムキッチン
  • オール電化
  • 所有権
おすすめポイント
建築は湘南エリアで高い人気を誇る山下建設施工。2023年築のデザイナーズ住宅で室内はまるでリゾートヴィラのよう。大きな窓の向こうには空と海が広がり、時間帯によって表情を変える景色が暮らしに彩りを添えてくれます。約26帖のLDKは「どこにいても光と景色を感じられる」開放的な設計。植物や家具の配置まで楽しみが広がる暮らしは、住むほどに愛着が深まっていきそうです。海と青空を独り占めできる大型ウッドバルコニーも魅力のひとつ。休日にはブランチを楽しんだり、夕暮れ時にグラスを片手にゆったり過ごしたり。駅徒歩3分という軽快なアクセスとは思えないほどの好ロケーション物件です!
new

神奈川県鎌倉市城廻 3,780万円 3LDK

  • 中古住宅
  • 神奈川県鎌倉市城廻 中古住宅
    間取り図
神奈川県鎌倉市城廻
JR横須賀線 大船駅 バス5分/「打越」バス停 停歩4分
3,780
万円
3LDK
110.16m2
88.3m2 2000年12月(築25年6ヶ月)
  • 3階建て以上
  • ルーフバルコニー
  • システムキッチン
  • 所有権
  • 即入居可
おすすめポイント
◇鉄筋コンクリート造のフルリノベーション戸建て!◇ルーフバルコニーは圧巻の39.3帖!◇カースペースはビルトイン車庫!・【本日見学可能!!】・住宅ローンにご不安はございませんか?多数の提携銀行から、最適なご提案をさせていただきます!・弊社提携のauじぶん銀行は+ガン保険加入でご利用可能です。・お車でのご来店もお気軽にお申し付けください!・将来のライフプランはすでに作られておりますか?提携会社による無料ファイナンシャルプラン面談を承っております。
new

東京都北区赤羽西4 7,480万円 1SLDK

  • 中古住宅
  • 東京都北区赤羽西4 中古住宅
東京都北区赤羽西4
JR京浜東北線 赤羽駅 徒歩9分
JR埼京線 赤羽駅 徒歩9分
東京メトロ南北線 赤羽岩淵駅 徒歩19分
7,480
万円
1SLDK
70.25m2
94.09m2 2022年8月(築3年10ヶ月)
  • 2階建て
  • 都市ガス
  • 駐車場あり
  • システムキッチン
  • 床暖房
  • 所有権
おすすめポイント
■令和4年8月築の中古戸建■リビングにはお部屋全体を足元から温める床暖房を完備■南東向きにつき、陽当り良好■カースペース有(駐車台数は車種によります)■会話が弾む対面式キッチン■保育園・小学校・スーパー・公園まで徒歩10分圏内で住環境良好です!
new

神奈川県小田原市国府津5 1,580万円 4SLDK

  • 中古住宅
  • 神奈川県小田原市国府津5 中古住宅
神奈川県小田原市国府津5
JR東海道本線 国府津駅 徒歩10分
1,580
万円
4SLDK
91.08m2
106.79m2 1997年10月(築28年8ヶ月)
  • 2階建て
  • 駐車場あり
  • 駐車2台
  • オール電化
  • 床暖房
  • 所有権
おすすめポイント
・JR国府津駅まで徒歩10分の立地・敷地内カースペース2台分有り(車種による)・オール電化住宅・南西側公道に接道
new

神奈川県藤沢市辻堂元町3 2,280万円 2LDK

  • 中古住宅
  • 神奈川県藤沢市辻堂元町3 中古住宅
神奈川県藤沢市辻堂元町3
JR東海道本線 辻堂駅 徒歩10分
2,280
万円
2LDK
64.9m2
40.11m2 2001年5月(築25年1ヶ月)
  • 3階建て以上
  • 都市ガス
  • 所有権
おすすめポイント
■アクセス・東海道線「辻堂」駅徒歩10分です。・駅まで平坦な道のりです。■ 立地・第一種低層住居専用地域の閑静な住宅街に立地。周辺は低層住宅の街並みが広がっております。■物件の特徴・店舗利用だけでなくセカンドハウス、別荘としても活用いただけます・螺旋階段があります。・カースペースがあります。・地下1階が洋室、地上2階が店舗部分です。
new

東京都渋谷区広尾2 11億8,000万円 6LDK

  • 中古住宅
  • 東京都渋谷区広尾2 中古住宅
東京都渋谷区広尾2
東京メトロ日比谷線 広尾駅 徒歩10分
JR山手線 恵比寿駅 徒歩14分
11億8,000
万円
6LDK
346.91m2
214.88m2 2015年12月(築10年6ヶ月)
  • 3階建て以上
  • 都市ガス
  • 所有権
おすすめポイント
〔交通アクセス〕◆2駅2路線利用可能・東京メトロ日比谷線「広尾」駅 徒歩10分・JR山手線「恵比寿」駅 徒歩14分〔物件概要〕・渋谷区広尾2丁目戸建●建物概要・建物面積:346.91㎡(104.94坪)建物面積には車庫40.99㎡を含みます。・築年月:2015年12月築・構造:鉄筋コンクリート造亜鉛メッキ鋼3階建・車庫2台分(車種による)●土地概要・土地面積(所有権)・土地面積(公簿):214.88㎡(65.00坪)・接道状況:北側公道、幅員約4.0mに約9.6m接する・現況:空室・用途地域:第1種低層住居専用地域・建ぺい率:60%・容積率:150%・地目:宅地
new

群馬県高崎市剣崎町 450万円 5K

  • 中古住宅
  • 群馬県高崎市剣崎町 中古住宅
    間取り図
群馬県高崎市剣崎町
JR信越本線 群馬八幡駅 徒歩11分
JR上越線 高崎問屋町駅 徒歩7.2km
JR高崎線 高崎駅 徒歩7.2km
450
万円
5K
91.91m2
202.64m2 1976年11月(築49年7ヶ月)
  • 2階建て
  • 南道路
  • 都市ガス
  • 駐車場あり
  • 駐車3台
  • 所有権
おすすめポイント
高崎市剣崎町の中古住宅のご紹介です。高台に立地し眺望良好!高崎花火等も鑑賞できます◎■交通アクセス良好!・国道406号線まで車で約2分・JR信越本線「群馬八幡」駅まで徒歩約11分(約850m)各方面への交通アクセス良好!通勤や通学にも便利な立地です。■周辺環境良好閑静な住宅地内にありながら最寄りのスーパー、コンビニ、ドラッグストアまでは車で約3分圏内と日々のお買い物も便利です。・居室5部屋の広々間取り・庭では家庭菜園や、ガーデニングも楽しめます♪陽当たり・通風も良好です。・都市ガスのため光熱費も抑えられます。☆リフォーム相談も受付けます!
new

埼玉県深谷市普済寺 2,180万円 4LDK

  • 中古住宅
  • 埼玉県深谷市普済寺 中古住宅
    間取り図
埼玉県深谷市普済寺
JR高崎線 岡部駅 徒歩13分
2,180
万円
4LDK
117.41m2
200.34m2 2014年3月(築12年3ヶ月)
  • 2階建て
  • 南道路
  • 駐車場あり
  • 駐車3台
  • システムキッチン
  • 所有権
おすすめポイント
■敷地約60坪 カースペース3台駐車可能■高台に立地し周辺は区画のきれいな住宅地■バーベキューの出来る屋根付きバルコニー■収納に便利な小屋裏収納付き■家族の繋がりが増えるリビング階段◎◎物件の詳細等担当≪ねづ≫までお気軽にお問い合わせください◎◎
new

埼玉県さいたま市浦和区神明2 1億2,000万円 他

  • 中古住宅
  • 埼玉県さいたま市浦和区神明2 中古住宅
    間取り図
埼玉県さいたま市浦和区神明2
JR京浜東北線 南浦和駅 徒歩13分
JR埼京線 武蔵浦和駅 徒歩15分
JR京浜東北線 浦和駅 徒歩19分
1億2,000
万円

151.65m2
100.37m2 2020年5月(築6年1ヶ月)
  • 3階建て以上
  • 都市ガス
  • 駐車場あり
  • システムキッチン
  • 所有権
おすすめポイント
◇JR京浜東北・根岸線「南浦和」まで徒歩約13分!→武蔵浦和駅・浦和駅も徒歩圏内◇2020年築4LDK+DK/家賃収入を得ながら居住可能な住まい♪→全居室2面採光→WIC付きで充実した収納♪※1階DK部分賃貸中(現行年間収入:756000円)※賃料収入は将来にわたって保証するものではありません。◇オーケー武蔵浦和店まで徒歩約6分(約450m) ファミリーマートさいたま白幡店まで徒歩約5分(約350m) スギ薬局浦和神明店まで徒歩約2分(約150m) 浦和神明郵便局まで徒歩約3分(約170m) 医療法人秋葉病院まで徒歩約10分(約750m)→充実した周辺環境
new

神奈川県中郡二宮町富士見が丘1 2,150万円 3LDK

  • 中古住宅
  • 神奈川県中郡二宮町富士見が丘1 中古住宅
    間取り図
神奈川県中郡二宮町富士見が丘1
JR東海道本線 二宮駅 徒歩17分
2,150
万円
3LDK
113.44m2
160.14m2 1991年1月(築35年5ヶ月)
  • 2階建て
  • 所有権
おすすめポイント
◆静かな住環境◆北東角地、カースペース1台あり(車種による)◆リフォーム履歴有(令和4年3月)・キッチン(IH)交換、・浴室交換、・外壁屋根塗装、・全室クロス張替え・トイレ交換、・洗面台交換、・全室フローリング上張り、室内クリーニング
new

神奈川県藤沢市本藤沢2 3,899万円 3LDK

  • 中古住宅
  • 神奈川県藤沢市本藤沢2 中古住宅
神奈川県藤沢市本藤沢2
小田急江ノ島線 藤沢本町駅 徒歩17分
小田急江ノ島線 善行駅 徒歩20分
JR東海道本線 藤沢駅 徒歩37分
3,899
万円
3LDK
80.11m2
105.95m2 1988年2月(築38年4ヶ月)
  • 2階建て
  • 都市ガス
  • 駐車場あり
  • 駐車2台
  • システムキッチン
  • 所有権
おすすめポイント
◆「令和8年4月内外装フルリノベーション。屋根・外壁塗装から水回りまで一新の再生美」◆「南東×南西の開放的な角地。陽当りと通風に恵まれた、軽量鉄骨造パナホーム施工の家」◆「カースペースは並列2台分を確保。来客時やセカンドカーにも対応可能なゆとりある敷地」◆「建物5年保証&既存住宅瑕疵保険加入予定。入居後の安心もセットにした高品質な住まい」◆「食洗機付きキッチンや給湯器交換など充実の設備。機能美と住み心地を徹底追求」◆「ウエルシア徒歩約4分、小学校も徒歩圏内。生活利便施設が身近に揃う閑静な住宅街」お問い合わせは【フリーダイヤル:0120-702-700】までお気軽にどうぞ♪
new

神奈川県横浜市栄区桂台西1 5,980万円 3SLDK

  • 中古住宅
  • 神奈川県横浜市栄区桂台西1 中古住宅
    間取り図
神奈川県横浜市栄区桂台西1
JR東海道本線 大船駅 バス14分/「北桂台」バス停 停歩3分
5,980
万円
3SLDK
159.71m2
221.94m2 2008年3月(築18年3ヶ月)
  • 2階建て
  • 南道路
  • 都市ガス
  • システムキッチン
  • 所有権
おすすめポイント
-物件のおすすめポイント-▼立地・第一種低層住居専用地域の区画の整った分譲地内・緑豊かで閑静な住宅地▼特徴・土地面積約67.13坪、建物面積約48.31坪・南接道につき陽当り・通風良好・ホームエレベーター付の住まい・ダイニング上部は吹抜け仕様・動線が短く作業がしやすいL字型の対面式キッチン・ガーデニングなどを楽しめるお庭・駐車スペース3台分有(車種による)▼設備・全館空調・全室樹脂ペアガラス仕様・食洗機/コンベックオーブン・1.25坪サイズの浴室■ ご希望の住まい探しをお手伝いします ━━━━━・・・物件の詳細・ご相談はお気軽にお問い合わせください。
new

神奈川県藤沢市辻堂東海岸2 6,599万円 2LDK

  • 中古住宅
  • 神奈川県藤沢市辻堂東海岸2 中古住宅
    間取り図
神奈川県藤沢市辻堂東海岸2
小田急江ノ島線 鵠沼海岸駅 徒歩18分
JR東海道本線 辻堂駅 徒歩23分
6,599
万円
2LDK
93.36m2
120.03m2 2022年2月(築4年4ヶ月)
  • 2階建て
  • 都市ガス
  • 設計住宅性能評価付
  • 建設住宅性能評価付
  • システムキッチン
  • 所有権
  • リフォームリノベーション
おすすめポイント
■令和4年築の住友林業施工の築浅中古注文住宅です■リビングに大きな窓がありますので明るい室内でお過ごしいただけます■住友林業(株)の60年建物保証システム継承■太陽光発電システムあり(オール電化住宅)■V2Hシステムあり(EVパワーステーション)■ビックフレーム工法、省令準耐火仕様の長期優良住宅■長期優良住宅、設計・建築住宅性能評価取得済■NTT都市開発株式会社「ウエリスコート辻堂東海岸」元分譲地
new

神奈川県小田原市久野 2,497万円 4LDK

  • 中古住宅
  • 神奈川県小田原市久野 中古住宅
    間取り図
神奈川県小田原市久野
小田急小田原線 小田原駅 バス17分/「区民会館前」バス停 停歩2分
2,497
万円
4LDK
107.65m2
222.53m2 1995年5月(築31年1ヶ月)
  • 2階建て
  • 駐車場あり
  • 駐車3台
  • システムキッチン
  • 浴室乾燥機
  • 所有権
おすすめポイント
■駐車は最大4台可能(現地でサイズ確認ねがいます。)■安心の保証付き物件*-*-*-*-* 大 原 建 設 *-*-*-*-*●おかげさまで(創業42年)を迎えました。引続き【安心・安全】のお取次ぎをさせて頂きます。●ご案内させて頂くスタッフは、【宅地建物取引士・住宅ローンアドバイザー】を保持しており不動産・住宅ローンの相談など何なりとご相談できます。 なお、弊社ではしつこい営業活動は一切行っておりません。
new

神奈川県中郡大磯町石神台2 1,700万円 5LDK

  • 中古住宅
  • 神奈川県中郡大磯町石神台2 中古住宅
神奈川県中郡大磯町石神台2
JR東海道本線 大磯駅 バス16分/「湘南大磯住宅入口」バス停 停歩6分
1,700
万円
5LDK
125.04m2
159.53m2 1988年10月(築37年8ヶ月)
  • 2階建て
  • 駐車場あり
  • システムキッチン
  • 所有権
おすすめポイント
■遮るもののない高台立地■相模湾を遠望■喧騒から離れた静寂さ■緑豊かな閑静な住宅街■収納多数■駐車場1台有(車種制限有)■約37坪の大きな邸宅
new

神奈川県平塚市花水台 7,980万円 4SLDK

  • 中古住宅
  • 神奈川県平塚市花水台 中古住宅
    間取り図
神奈川県平塚市花水台
JR東海道本線 平塚駅 徒歩22分
7,980
万円
4SLDK
266.23m2
341.31m2 1994年1月(築32年5ヶ月)
  • 2階建て
  • 南道路
  • 都市ガス
  • 所有権
おすすめポイント
平塚市花水台 戸建売主様が宮大工に依頼をして建てられた拘りの邸宅のご紹介でございます。四季折々の植物に囲まれた本邸宅は平成6年築の地下車庫付き4SLDK+WIC+お庭この機会に是非、ご検討ください。
チェックした物件を一括で
new

神奈川県藤沢市並木台1 5,299万円 5LDK

  • 中古住宅
  • 神奈川県藤沢市並木台1 中古住宅
    間取り図
神奈川県藤沢市並木台1
JR東海道本線 藤沢駅 バス19分/「渡内」バス停 停歩4分
5,299
万円
5LDK
110.25m2
142.56m2 1996年11月(築29年7ヶ月)
  • 2階建て
  • 都市ガス
  • 駐車場あり
  • 浴室乾燥機
  • 所有権
おすすめポイント
■東海道本線「藤沢」駅バス15分「並木台」停まで徒歩3分、  東海道本線「大船」駅バス16分「渡内」停まで徒歩4分の立地です。■並木台は、落ち着いた住宅地が広がる高台のエリアです。■第一種低層住居専用地域の閑静な住宅街に立地。周辺は低層住宅の街並みが広がっております。■北西・北東の角地です。採光・通風に優れ、開放感ある立地条件です。■宅地が道路面より約3m高いため、眺望良好、開放感もあります。■南向きバルコニーにつき、日当たり良好です。■2階の洋室からは海を臨むことができます。(天候による)
new

神奈川県茅ヶ崎市松が丘2 2,480万円 5LDK

  • 中古住宅
  • 神奈川県茅ヶ崎市松が丘2 中古住宅
    間取り図
神奈川県茅ヶ崎市松が丘2
JR東海道本線 茅ケ崎駅 徒歩24分
2,480
万円
5LDK
119.56m2
109.28m2 1991年3月(築35年3ヶ月)
  • 2階建て
  • 都市ガス
  • 駐車場あり
  • システムキッチン
  • 所有権
おすすめポイント
■人気の鉄砲道が生活圏。お洒落なカフェや小売店などでショッピングお楽しみいただけます♪■ラチエン通りを抜けて茅ヶ崎パーク(ヘッドランドビーチ)までお散歩はいかがでしょうか♪■カースペース1台、お庭付き♪-物件のおすすめポイント-・朝の渋滞をゼロに。洗面化粧台2台あり♪・家族の憩いとなるLDKは約15.8帖♪・趣きのある和室は客室としても利用可能♪・玄関ホールは開放感のある広さの間取り設計・庭スペースでは家庭菜園なども可能です♪・キッチンはLD全体が見渡せる対面仕様、床下収納有■ ご希望の住まい探しをお手伝いします物件の詳細・ご相談はお気軽にお問い合わせください。
new

埼玉県北本市中丸3 2,600万円 3LDK

  • 中古住宅
  • 埼玉県北本市中丸3 中古住宅
    間取り図
埼玉県北本市中丸3
JR高崎線 北本駅 徒歩25分
JR高崎線 桶川駅 徒歩4.0km
埼玉新都市交通伊奈線 内宿駅 徒歩6.1km
2,600
万円
3LDK
99.36m2
140.3m2 2018年3月(築8年3ヶ月)
  • 2階建て
  • 都市ガス
  • 駐車場あり
  • 駐車2台
  • システムキッチン
  • 浴室乾燥機
  • 所有権
おすすめポイント
~LDK20畳!広い空間でゆったりとした生活を送れます~ ~窓はシャッター付でプライベート空間の確保が可能~■Information・北本市立中丸東小学校  徒歩13分・北本市立東中学校     徒歩16分・コープみらい コープ北本店  徒歩7分・ファミリーマート北本中丸店 徒歩9分・ウエルシア北本中丸店     徒歩5分・北本二ツ家郵便局 徒歩17分・中丸緑地公園 徒歩3分・林田内科医院    徒歩7分・北本二ツ家郵便局 徒歩17分
new

埼玉県鴻巣市鴻巣 1,480万円 6DK

  • 中古住宅
  • 埼玉県鴻巣市鴻巣 中古住宅
埼玉県鴻巣市鴻巣
JR高崎線 鴻巣駅 徒歩30分
1,480
万円
6DK
154.16m2
1141.71m2 1978年1月(築48年5ヶ月)
  • 2階建て
  • 駐車場あり
  • 駐車3台
  • システムキッチン
  • 所有権
おすすめポイント
■ビッグ・エー 鴻巣天神店…徒歩14分■ローソン 鴻巣天神四丁目店…徒歩13分■ドラッグストアセキ 鴻巣免許センター前店…徒歩15分■ことね保育園…徒歩9分■鴻巣ひかり幼稚園…徒歩23分■鴻巣市立鴻巣中央小学校…徒歩10分■鴻巣市立鴻巣中学校…徒歩24分■山田ハートクリニック…徒歩5分
new

埼玉県さいたま市浦和区大東3 4,580万円 3DK

  • 中古住宅
  • 埼玉県さいたま市浦和区大東3 中古住宅
    間取り図
埼玉県さいたま市浦和区大東3
JR京浜東北線 北浦和駅 徒歩30分
JR京浜東北線 与野駅 徒歩35分
JR京浜東北線 浦和駅 徒歩3.5km
4,580
万円
3DK
93.97m2
154.76m2 2007年2月(築19年4ヶ月)
  • 2階建て
  • 都市ガス
  • 駐車場あり
  • 駐車2台
  • システムキッチン
  • 浴室乾燥機
  • 所有権
おすすめポイント
◇◆◇家どっと足立が選ばれる理由◆◇◆(1)低金利の住宅ローンの取扱い可能~ (変動金利35年 0.68%)(2)住宅ローンの知識が豊富でローンに強い~(3)ライフプランナーとの打合せが出来る~(無料)~【今のお客様のご状況をお聞かせください】~◆毎月支払う住居費って自分達はいくらなら大丈夫かな。◆歳を重ねてもずっと安心して暮らせる場所がいい!◆購入はしたいけど、手続きとか税金とか色々心配。期待も大きい反面、悩みや不安も多いと思います。不動産売買専門店でお客様と一緒に悩んできた数が多い私達だから解決出来る問題があります。
new

埼玉県東松山市大字大谷 850万円 4LDK

  • 中古住宅
  • 埼玉県東松山市大字大谷 中古住宅
    間取り図
埼玉県東松山市大字大谷
JR高崎線 熊谷駅 バス29分/「東松山病院前」バス停 停歩8分
850
万円
4LDK
121m2
486m2 1998年2月(築28年4ヶ月)
  • 2階建て
  • 駐車場あり
  • 駐車3台
  • システムキッチン
  • 所有権
おすすめポイント
機能的で使いやすいシステムキッチンは対面でご家族と談笑しながら料理ができます! お子様の宿題を見ながらや、パパの晩酌に付き合いながら等々。 オープンキッチンで明るく開放的です♪【弊社では以下の5つをお客様にお約束いたします】1.物件の善し悪しは全て正直にお話しします。2.無理な売り込みや契約の催促、突然の訪問等、しつこい営業は一切行いません。3.契約したら終わりではなくお引き渡し後、お引越し後もお客様のパートナーであること。4.ウソやおとり広告は一切使いません。(データ更新は迅速に行います。)5.お客様の個人情報は細心の注意を払って取り扱いします。
new

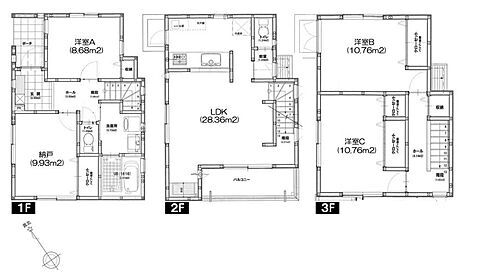
群馬県高崎市中泉町 3,680万円 5LDK

  • 中古住宅
  • 群馬県高崎市中泉町 中古住宅
    間取り図
群馬県高崎市中泉町
JR上越線 井野駅 徒歩37分
湘南新宿ライン高海 井野駅 徒歩37分
JR上越線 高崎問屋町駅 徒歩3.7km
3,680
万円
5LDK
192.28m2
362.39m2 1997年10月(築28年8ヶ月)
  • 2階建て
  • 所有権
  • 即入居可
おすすめポイント
■東南角地の開放感のある日当たり良好な立地■ハウスクリーニング済み■1階に居室2部屋■収納豊富な間取り■リビングに使い勝手の良い収納付き
new

神奈川県平塚市東中原1 2,180万円 4LDK

  • 中古住宅
  • 神奈川県平塚市東中原1 中古住宅
    間取り図
神奈川県平塚市東中原1
JR東海道本線 平塚駅 徒歩3.4km
JR相模線 寒川駅 徒歩5.8km
小田急小田原線 伊勢原駅 徒歩6.9km
2,180
万円
4LDK
90.24m2
110.83m2 2003年12月(築22年6ヶ月)
  • 2階建て
  • 都市ガス
  • 駐車場あり
  • システムキッチン
  • 浴室乾燥機
  • 所有権
おすすめポイント
▽△センチュリー21ヒューベストエステートへお問い合わせください△▽どんな物件だろう?詳細情報・物件状況を知りたい →〈資料請求する〉ちょっと見てみたい!現地・物件見学をご希望 →〈見学予約する〉お電話でのお問い合わせも大歓迎です!◆物件探し・住宅ローンのお悩みはありませんか?「どうやって物件を探したらいいのか分からない…」「住宅ローンが不安…」お客様の理想の住まいを“一緒に”お探しします!住まい探しのご不安なことは、ぜひ当社までご相談ください!◆小田原店:小田原市成田170-1、平塚店:平塚市四之宮2-9-25
new

埼玉県上尾市大字平方 2,080万円 5LDK

  • 中古住宅
  • 埼玉県上尾市大字平方 中古住宅
埼玉県上尾市大字平方
JR川越線 指扇駅 徒歩3.9km
JR高崎線 上尾駅 徒歩5.2km
2,080
万円
5LDK
130.83m2
123m2 2002年11月(築23年7ヶ月)
  • 2階建て
  • ルーフバルコニー
  • 駐車場あり
  • システムキッチン
  • 所有権
  • 即入居可
おすすめポイント
内装リフォーム、対面式キッチン、屋根裏収納、全居室6畳以上、ルーフバルコニー、即引渡可、南向き、システムキッチン、閑静な住宅地、和室、整形地、庭、シャワー付洗面化粧台、ワイドバルコニー、トイレ2ヶ所、浴室1坪以上、2階建、南面バルコニー、全室南向き、オートバス、温水洗浄便座、浴室に窓、TVモニタ付インターホン、小学校 徒歩10分以内、平坦地
new

埼玉県深谷市横瀬 1,680万円 3LDK

  • 中古住宅
  • 埼玉県深谷市横瀬 中古住宅
    間取り図
埼玉県深谷市横瀬
JR高崎線 岡部駅 徒歩4.4km
湘南新宿ライン高海 岡部駅 徒歩4.4km
1,680
万円
3LDK
89.5m2
258.11m2 2021年3月(築5年3ヶ月)
  • 平屋
  • 南道路
  • システムキッチン
  • 浴室乾燥機
  • 所有権
おすすめポイント
【おすすめポイント】☆シューズインクローク☆南道路に付き陽当たり良好☆令和3年3月新築【物件探しは全国店舗数944店舗(2025年12月末時点)のCENTURY21にお任せください】■当店はオープンから10年以上の実績■宅地建物取引士が対応■物件を短時間で見たい等ご要望に合わせた対応■住宅ローンに自信があります☆諸条件ご相談ください■物件のメリット・デメリットのご説明■提携火災保険の割引、提携引越し業者の割引有り■住宅ローン代行も無料で対応
new

神奈川県平塚市纒1 1,980万円 5LDK

  • 中古住宅
  • 神奈川県平塚市纒1 中古住宅
    間取り図
神奈川県平塚市纒1
JR東海道本線 大磯駅 徒歩4.7km
JR東海道本線 平塚駅 徒歩4.5km
1,980
万円
5LDK
101.02m2
135m2 1996年7月(築29年11ヶ月)
  • 2階建て
  • 都市ガス
  • 駐車場あり
  • 駐車2台
  • システムキッチン
  • 所有権
  • リフォームリノベーション
おすすめポイント
ー物件のおすすめポイントー・以前リフォームをしており、建物まだまだお使いいただけます♪・周辺に教育施設が点在しており、子育て環境充実♪・嬉しいカースペース2台可!ー生活が便利な周辺環境ー・クリエイトSD・・・・徒歩約4分・しまむらストアー・・・徒歩約4分・ローソン・・・・・・・徒歩約5分・セブンイレブン・・・・徒歩約6分・平塚市民病院・・・・・徒歩約12分・平塚旭郵便局・・・・・徒歩約6分※リフォーム内容:2018年8月 システムキッチン・ユニットバス・浴室・トイレ・洗面化粧台新設、フローリング張替、ハウスクリーニング、外壁屋根塗装、バルコニー防水工事等

神奈川県中郡二宮町二宮 3,480万円 7SDK

  • 中古住宅
  • 神奈川県中郡二宮町二宮 中古住宅
神奈川県中郡二宮町二宮
JR東海道本線 二宮駅 徒歩3分
3,480
万円
7SDK
147.89m2
210m2 1983年8月(築42年10ヶ月)
  • 2階建て
  • 所有権
おすすめポイント
JR「二宮」駅徒歩3分という利便性の高い立地にありながら、落ち着いた街並みに溶け込む和風邸宅。重厚感のある瓦屋根と塀、風情ある門構えが特徴で、昭和58年築の趣をしっかりと残しています。間取りは7DK+Sとゆとりがあり、家族の多いご家庭や二世帯利用にも対応可能。二宮小学校まで徒歩4分、二宮中学校まで徒歩16分と教育環境も整っています。敷地は平坦で生活動線も良好。便利さと落ち着きを兼ね備えた住まいです。

神奈川県小田原市鴨宮 3,610万円 9DK

  • 中古住宅
  • 神奈川県小田原市鴨宮 中古住宅
    間取り図
神奈川県小田原市鴨宮
JR東海道本線 鴨宮駅 徒歩3分
小田急小田原線 足柄駅 徒歩34分
JR東海道本線 国府津駅 徒歩3.6km
3,610
万円
9DK
164m2
231.66m2 1965年3月(築61年3ヶ月)
  • 2階建て
  • 南道路
  • 都市ガス
  • システムキッチン
  • 所有権
おすすめポイント
9DKKの大きい間取りにつき、大人数でもお住まいいただけます。お庭もありますので、駐車スペースとしてもご利用いただけますし、家庭菜園や庭園としてもご利用いただけます!

神奈川県茅ヶ崎市赤松町 3,980万円 3SDK

  • 中古住宅
  • 神奈川県茅ヶ崎市赤松町 中古住宅
神奈川県茅ヶ崎市赤松町
JR東海道本線 辻堂駅 徒歩3分
3,980
万円
3SDK
91.71m2
63.08m2 1989年10月(築36年8ヶ月)
  • 2階建て
  • 都市ガス
  • 所有権
おすすめポイント
-物件のおすすめポイント-▼立地・JR東海道本線「辻堂」徒歩3分▼特徴・1989年10月築、木造2階建・敷地面積約19.08坪、建物面積約27.74坪の3SDK※Sはサービススペース・納戸▼周辺環境・テラスモール湘南 徒歩7分(約500m)・ファミリーマート 辻堂駅西口店 徒歩2分(約130m)※テラスハウス(連棟式住宅)につき 本物件単独での建て替えは不可、中古戸建としてご検討ください 住宅ローン利用での購入は不可、詳細はお問い合わせください■ ご希望の住まい探しをお手伝いします ━━━━━・・・物件の詳細・ご相談はお気軽にお問い合わせください。

神奈川県川崎市中原区新丸子町 7,880万円 2SLDK

  • 中古住宅
  • 神奈川県川崎市中原区新丸子町 中古住宅
    間取り図
神奈川県川崎市中原区新丸子町
東急東横線 新丸子駅 徒歩3分
JR南武線 武蔵小杉駅 徒歩8分
東急東横線 武蔵小杉駅 徒歩8分
7,880
万円
2SLDK
78.33m2
48.99m2 2001年5月(築25年1ヶ月)
  • 3階建て以上
  • 都市ガス
  • 所有権
おすすめポイント
・東急東横線新丸子駅まで徒歩3分・隣駅の武蔵小杉駅からは、JR南武線・横須賀線の利用が可能です・駅周辺が商業地域であるのに対し、対象不動産周辺は戸建てが広がる住宅街。駅前の賑わいと閑静な暮らしを両方を享受できる立地です・各居室5.6畳以上確保。また、風通しの良い二面採光の居室。・LDは3面に窓を配し、明るく開放感ある空間を演出します。・キッチン・浴室・洗面室・お手洗いなど各種水回りには窓が設置されており換気良好です・ビルトイン車庫・2016年に浴室交換、キッチン交換、洗面台交換履歴あり私道:9.10m2のうち持分1/3、19.99m2のうち持分1/3

神奈川県川崎市中原区丸子通1 9,980万円 4LDK

  • 中古住宅
  • 神奈川県川崎市中原区丸子通1 中古住宅
    間取り図
神奈川県川崎市中原区丸子通1
東急東横線 新丸子駅 徒歩3分
JR南武線 武蔵小杉駅 徒歩9分
東急東横線 武蔵小杉駅 徒歩10分
9,980
万円
4LDK
148.54m2
64.69m2 2005年11月(築20年7ヶ月)
  • 3階建て以上
  • 南道路
  • 都市ガス
  • システムキッチン
  • 浴室乾燥機
  • 所有権
おすすめポイント
■□■東急東横線 「新丸子」駅 徒歩3分■□■■□■南武線 「武蔵小杉」駅 徒歩9分■□■■□■東急東横線 「武蔵小杉」駅 徒歩10分■□■■□■横須賀線 「武蔵小杉」駅 徒歩12分■□■■4LDK+LDK■南向き日当たり良好(屋上有)■土地面積64.69m2(19.57坪)■建物面積148.54m2(44.93坪)■2005年11月築の鉄骨造■容積率324%商業地域♪ ■南道路5.4m公道♪ ■整形地♪

東京都品川区大崎3 1億2,800万円 3LDK

  • 中古住宅
  • 東京都品川区大崎3 中古住宅
    間取り図
東京都品川区大崎3
JR山手線 大崎駅 徒歩3分
JR埼京線 大崎駅 徒歩3分
東急池上線 大崎広小路駅 徒歩6分
1億2,800
万円
3LDK
78.33m2
56.56m2 2000年7月(築25年11ヶ月)
  • 3階建て以上
  • 南道路
  • ルーフバルコニー
  • 駐車場あり
  • 所有権
おすすめポイント
-物件のおすすめポイント-▼立地・JR山手線/JR埼京線「大崎」徒歩3分 他・閑静な住宅街▼特徴・3面採光が確保された開放的な約15.0帖のLDK・作業効率の良いL字型キッチンを採用・1階和室は多用途に活用可能な独立配置・各洋室・和室に収納スペース有・駐車スペース1台分有(車種による)▼周辺環境・品川区立芳水小学校 徒歩5分(約360m)・ファミリーマートトキワ大崎店 徒歩2分(約150m)※容積率は前面道路幅員により160%に制限されます■ ご希望の住まい探しをお手伝いします ━━━━━・・・物件の詳細・ご相談はお気軽にお問い合わせください。

東京都渋谷区恵比寿西2 2億5,000万円 3LDK

  • 中古住宅
  • 東京都渋谷区恵比寿西2 中古住宅
    間取り図
東京都渋谷区恵比寿西2
東急東横線 代官山駅 徒歩3分
JR山手線 恵比寿駅 徒歩7分
東京メトロ日比谷線 恵比寿駅 徒歩6分
2億5,000
万円
3LDK
109.86m2
65.08m2 2020年11月(築5年7ヶ月)
  • 3階建て以上
  • 都市ガス
  • 駐車場あり
  • システムキッチン
  • 床暖房
  • 浴室乾燥機
おすすめポイント
ー渋谷区恵比寿西2丁目築浅戸建てー●土地面積: 64.34m2●建物面積: 109.86m2(※車庫面積:12.42m2含む)【おすすめポイント】■3LDK+WIC 南西角地■約20帖の広々としたLDK■カースペースあり■宅配ボックスあり■洗面ボウル2個付き洗面台■各居室クローゼットあり■スターツホーム株式会社施工【周辺施設】 ■ピーコックストア代官山店  徒歩4分 ■セブンイレブン代官山駅東店 徒歩3分 ■長谷戸小学校 徒歩4分 ■鉢山中学校 徒歩8分詳しい内容は、弊社ノムコムに記載しております。

東京都渋谷区恵比寿西2 2億5,000万円 3LDK

  • 中古住宅
  • 東京都渋谷区恵比寿西2 中古住宅
    間取り図
東京都渋谷区恵比寿西2
東急東横線 代官山駅 徒歩3分
JR山手線 恵比寿駅 徒歩7分
東京メトロ日比谷線 恵比寿駅 徒歩6分
2億5,000
万円
3LDK
109.86m2
65.08m2 2020年11月(築5年7ヶ月)
  • 3階建て以上
  • 都市ガス
  • 駐車場あり
  • システムキッチン
  • 浴室乾燥機
おすすめポイント
【POINT】◆南西角地のため、陽当たりが良好!!◆代官山駅から徒歩3分のため、周辺環境が充実!!◆セキュリティが充実!! カメラ、ボタンによる施錠が可能◆車庫スペース 有り◆室内仕様が充実でございます。 ライト、2重窓、浴室テレビ付き、キッチンにアイランドカウンター

東京都渋谷区恵比寿西2 2億5,000万円 3LDK

  • 中古住宅
  • 東京都渋谷区恵比寿西2 中古住宅
    間取り図
東京都渋谷区恵比寿西2
東急東横線 代官山駅 徒歩3分
東京メトロ日比谷線 恵比寿駅 徒歩6分
JR山手線 恵比寿駅 徒歩7分
2億5,000
万円
3LDK
109.86m2
65.08m2 2020年11月(築5年7ヶ月)
  • 3階建て以上
  • 南道路
  • 都市ガス
  • 駐車場あり
おすすめポイント
■ アクセス ━━━━━━・・・・・…東急東横線「代官山」駅徒歩3分… 東京メトロ日比谷線「恵比寿」駅徒歩6分… JR山手線「恵比寿」駅徒歩7分■ おすすめポイント ━━━━━・・・・・〇間取り :3LDK+WIC〇土地:65.08平米(約19.68坪)〇道路:南側公道約4m、西側公道約4m〇構造:木造3階建〇建物面積:109.86平米(約33.2坪)(車庫面積12.42平米含む)〇築年月:令和2年11月〇用途地域:第二種中高層住居専用地域〇建蔽率:60%〇容積率:160%〇設備:食器洗い乾燥機・浴室乾燥暖房機・床暖房(LD部分)〇駐車場:有〇宅配ボックス付

東京都渋谷区恵比寿西2 2億5,000万円 3LDK

  • 中古住宅
  • 東京都渋谷区恵比寿西2 中古住宅
    間取り図
東京都渋谷区恵比寿西2
東急東横線 代官山駅 徒歩3分
東京メトロ日比谷線 恵比寿駅 徒歩6分
JR山手線 恵比寿駅 徒歩7分
2億5,000
万円
3LDK
109.86m2
65.08m2 2020年11月(築5年7ヶ月)
  • 3階建て以上
  • 南道路
  • 都市ガス
  • 床暖房
おすすめポイント
-------------------------------------------------------------------◆南西角地につき日当り良好◆車庫有◆2020年築、3LDKタイプ◆浴室テレビ付き◆3階北側洋室部分二重窓◆キッチン部分にアイランドカウンター有(収納付)◆宅配ボックス有◆各居室に収納あり◆洗面所に洗面ボウル2つあり---------------------------------------------------------------
チェックした物件を一括で
  • チェックした物件をまとめて
5,000
表示件数 12345 … 125 次へ

条件を選択

価格
間取り
建物面積
土地面積
築年数
駅からの時間
人気のこだわり条件

さらに詳しくこだわり条件を選択

建物構造
階数
立地・特徴
キッチン
設備
駐車場
条件
性能・評価
瑕疵保険
お得な条件
画像・動画
情報の新しさ
フリーワード
アプリで簡単 物件探し 大手不動産サイトの情報から一括検!プッシュ通知で物件を見逃さない
App Storeからダウンロード Google Playで手に入れよう QRコード