アプリで簡単 物件探し 通知 共有 アプリならではの機能を使ってみる
RSS

東大和市(東京都)の中古一戸建て・中古住宅 物件一覧

東京都東大和市の中古住宅、中古一軒家などの中古一戸建て物件をご紹介します。中古物件、中古一軒家、中古建売住宅などの中古一戸建て物件情報を探すならgoo住宅・不動産。価格・建物面積・土地面積・間取り・人気のこだわり条件から物件を簡単検索。理想のマイホーム探しをgoo住宅・不動産がサポートします。

探したい物件のエリア・検索条件を変更して再検索

エリア
検索条件
149 並び替え
チェックした物件を一括で
選択 物件タイプ
画像
所在地/交通
(駅/バス 所要時間)
価格 間取り
建物面積
土地面積 築年月
築年数
new

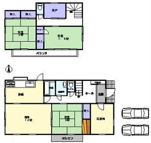
東京都東大和市中央4 4,399万円 4LDK

  • 中古住宅
  • 東京都東大和市中央4 中古住宅
    間取り図
東京都東大和市中央4
多摩都市モノレール 上北台駅 徒歩17分
西武拝島線 東大和市駅 徒歩20分
西武拝島線 玉川上水駅 徒歩28分
4,399
万円
4LDK
100.37m2
156.77m2 2014年7月(築11年11ヶ月)
  • 2階建て
  • 都市ガス
  • ルーフバルコニー
  • 駐車場あり
  • 駐車2台
  • システムキッチン
  • 所有権
  • 即入居可
おすすめポイント
・お車2台駐車可能!・現在空き家につき、お客様のご都合で内覧できます!・内覧予約随時受付中 お気軽にお問い合わせください!~リフォーム内容~・キッチン(IH・浄水器)・浴室(ミラー・水栓)・洗面室(洗面化粧台・洗濯用水栓)・トイレ(温水洗浄便座一体型便器)・床:フロアタイル貼(洗面室・トイレ)・壁、天井:クロス貼・ハウスクリーニング
new

東京都東大和市清水6 3,980万円 3SLDK

  • 中古住宅
  • 東京都東大和市清水6 中古住宅
    間取り図
東京都東大和市清水6
西武多摩湖線 武蔵大和駅 徒歩20分
西武拝島線 小川駅 徒歩27分
西武多摩湖線 八坂駅 徒歩22分
3,980
万円
3SLDK
93.57m2
126.56m2 2019年7月(築6年11ヶ月)
  • 2階建て
  • 南道路
  • 都市ガス
  • 駐車場あり
  • 駐車3台
  • システムキッチン
  • 所有権
おすすめポイント
\◇モアハウスのおすすめポイント◇/●LDKは広々20帖♪●2019年築の築浅物件☆彡●第六小・・・約800m  第三中・・・約950m●月々9万円台から(審査要件有)●駐車スペース3台◎【※車種による】《住まいの事ならモアハウスへ!》▽『これから見たい』にも大歓迎♪お気軽にご確認ください♪▽物件探しから住宅ローンの事までモアハウスがあなたをサポートします!【こんな事まで?】にお応えしています!▽内覧は1社にまとめてラクラクご見学♪当社で掲載していない物件でもご案内できます(^^)/▽ご予約いただければ営業時間外でも対応致します◎

東京都東大和市向原5 3,100万円 3LDK

  • 中古住宅
  • 東京都東大和市向原5 中古住宅
    間取り図
東京都東大和市向原5
西武拝島線 東大和市駅 徒歩8分
西武拝島線 小川駅 徒歩31分
西武拝島線 玉川上水駅 徒歩29分
3,100
万円
3LDK
101.69m2
107.93m2 1990年11月(築35年7ヶ月)
  • 2階建て
  • 都市ガス
  • 駐車場あり
  • システムキッチン
  • 浴室乾燥機
  • 所有権
  • バリアフリー
  • リフォームリノベーション
おすすめポイント
≪住宅ローン/将来設計≫♪住宅ローンアドバイザーによる丁寧な資金アドバイス&ローンシミュレーション。♪ファイナンシャルプランナーによる将来へのご提案。♪頭金0円からでも承ります!

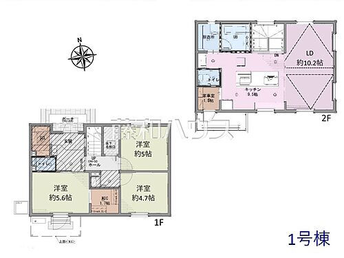
東京都東大和市芋窪5 5,980万円 3LDK

  • 中古住宅
  • 東京都東大和市芋窪5 中古住宅
    間取り図
東京都東大和市芋窪5
多摩都市モノレール 上北台駅 徒歩8分
多摩都市モノレール 玉川上水駅 徒歩18分
多摩都市モノレール 桜街道駅 徒歩27分
5,980
万円
3LDK
93.14m2
121.3m2 2023年12月(築2年6ヶ月)
  • 2階建て
  • システムキッチン
  • 所有権
おすすめポイント
-物件のおすすめポイント-▼立地・多摩都市モノレール「上北台」駅 徒歩8分・第一種低層住居専用地域▼特徴・2023年12月築のオール電化住宅・高気密・高断熱・ご家族との会話が弾む対面式キッチンを採用・WIC・SIC等の収納スペース有・駐車スペース有(車種制限有)▼設備・IHクッキングヒーター・食器洗乾燥機・太陽光発電システム・エコキュート▼周辺環境・東大和市立第七小学校 徒歩1分(約80m)・ミニストップ東大和芋窪店 徒歩3分(約240m)■ ご希望の住まい探しをお手伝いします ━━━━━・・・物件の詳細・ご相談はお気軽にお問い合わせください。

東京都東大和市芋窪5 5,980万円 3LDK

  • 中古住宅
  • 東京都東大和市芋窪5 中古住宅
    間取り図
東京都東大和市芋窪5
多摩都市モノレール 上北台駅 徒歩9分
多摩都市モノレール 桜街道駅 徒歩19分
5,980
万円
3LDK
93.14m2
121.3m2 2024年5月(築2年1ヶ月)
  • 2階建て
  • 都市ガス
  • 駐車場あり
  • システムキッチン
  • 浴室乾燥機
  • 所有権
  • 即入居可
おすすめポイント
☆未入居戸建・1号棟を女性目線でcheck☆■お料理がより楽しくなるアイランドキッチンオープンキッチンだからどこからでも作業しやすくお子さんのお手伝いやホームパーティーにも便利♪キッチン横には家事室があり、食材やキッチン用品などをしまっておく「パントリー」としてもお使いいただけます。■大型収納が充実の住まいSICやWIC、家事室など、あると嬉しい大型収納が住まいの各所に揃っています◎【設備・仕様】・木製サッシ3層ガラス窓・高気密、高断熱住宅・太陽光発電・エコキュート・IHクッキングヒーター・食器洗い乾燥機・熱交換型換気システム・エアコン2台…etc

東京都東大和市立野1 5,980万円 4SLDK

  • 中古住宅
  • 東京都東大和市立野1 中古住宅
    間取り図
東京都東大和市立野1
多摩都市モノレール 上北台駅 徒歩9分
5,980
万円
4SLDK
231.12m2
300.53m2 1985年3月(築41年3ヶ月)
  • 2階建て
  • 都市ガス
  • 所有権
  • リフォームリノベーション
おすすめポイント
現況空室のため、いつでもご内覧可能です。

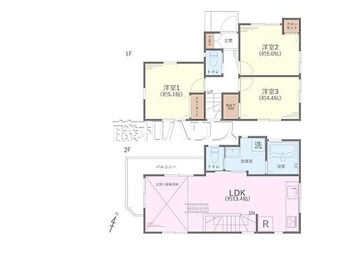
東京都東大和市上北台3 3,580万円 4LDK

  • 中古住宅
  • 東京都東大和市上北台3 中古住宅
    間取り図
東京都東大和市上北台3
多摩都市モノレール 桜街道駅 徒歩10分
多摩都市モノレール 上北台駅 徒歩11分
西武拝島線 玉川上水駅 徒歩20分
3,580
万円
4LDK
95.43m2
106.01m2 2009年9月(築16年9ヶ月)
  • 2階建て
  • 南道路
  • 都市ガス
  • 駐車場あり
  • システムキッチン
  • 所有権
おすすめポイント
☆東大和市上北台3丁目を女性目線で解説☆南道路接道で光がしっかり入るLDK14.2帖。対面キッチンから和室まで見渡せる“見守り動線”が魅力の4LDKです。さらに約3帖の小屋裏収納付きで、季節家電や思い出の品もまとめて収納!◎小学校徒歩5分の立地も子育て世帯に嬉しいポイントです。【さらに詳しい解説はHPで公開中】「ヒカリ企画」で検索、または下の詳細ページへ!【営業も含めスタッフは全員女性♪】カフェのような店内でおいしいお飲み物をご用意してお待ちしております。住まいに関するお悩みや心配事、小さく思えるようなこともご相談くださいませ。

東京都東大和市立野1 3,990万円 4LDK

  • 中古住宅
  • 東京都東大和市立野1 中古住宅
    間取り図
東京都東大和市立野1
多摩都市モノレール 上北台駅 徒歩10分
多摩都市モノレール 桜街道駅 徒歩13分
西武拝島線 東大和市駅 徒歩23分
3,990
万円
4LDK
100.44m2
113.24m2 2010年1月(築16年5ヶ月)
  • 2階建て
  • 駐車場あり
  • 駐車2台
  • システムキッチン
  • オール電化
  • 浴室乾燥機
  • 所有権
  • リフォームリノベーション
おすすめポイント
☆立野1丁目を女性目線で解説☆point1_駅徒歩10分×教育施設徒歩5分圏内の子育て安心立地多摩モノレール「上北台」駅徒歩10分。小学校徒歩3分・中学校徒歩5分で、毎日の通学負担を軽減できます。point2_収納豊富×オール電化の家事ラク住宅対面キッチンからリビング全体を見渡せるため、夕飯を作りながらお子さまの様子を見守りやすい間取り。平成22年築の注文住宅で、エコキュート・エアコン4台付きです!<リフォーム予定/R8年5月末予定>フローリング補修・クロス部分貼替・クリーニングなど【さらに詳しい解説はHPで公開中】「ヒカリ企画」で検索、または下の詳細ページへ!

東京都東大和市向原5 6,987万円 3LDK

  • 中古住宅
  • 東京都東大和市向原5 中古住宅
    間取り図
東京都東大和市向原5
西武拝島線 東大和市駅 徒歩10分
6,987
万円
3LDK
122.76m2
172.56m2 2020年4月(築6年2ヶ月)
  • 2階建て
  • システムキッチン
  • 所有権
おすすめポイント
-物件のおすすめポイント-▼立地・第一種低層住居専用地域内▼特徴・長期優良住宅取得、耐震等級3の構造・外壁にパワーボード、デュラ光触媒コート採用・上部吹抜け仕様のLDと中二階・LD横に畳スペースがあり、多用途に活用可能・中二階の下部に蔵収納、玄関にクロークを設置▼設備・太陽光4.6キロ、HEMSモニター・電気自動車用コンセント・軟水器導入・エコカラット・エアコン3台(ナノイー機能付)▼周辺環境・向原公園 徒歩5分(約330m)■ ご希望の住まい探しをお手伝いします ━━━━━・・・物件の詳細・ご相談はお気軽にお問い合わせください。

東京都東大和市狭山2 1,180万円 2LDK

  • 中古住宅
  • 東京都東大和市狭山2 中古住宅
    間取り図
東京都東大和市狭山2
西武多摩湖線 武蔵大和駅 徒歩12分
西武多摩湖線 多摩湖駅 徒歩18分
1,180
万円
2LDK
70.1m2
113.82m2 1984年7月(築41年11ヶ月)
  • 2階建て
  • システムキッチン
  • 浴室乾燥機
  • 所有権
  • リフォームリノベーション
おすすめポイント
物件のおすすめポイントはコチラ!1.西武多摩湖線「武蔵大和」駅徒歩12分 西武新宿線・国分寺線「東村山」駅バス10分停歩7分も利用可能。 徒歩10分圏内に東大和公園・狭山公園もあり、自然と触れ合えるエリアです♪2.採光・通風の良い2LDK 全居室2面採光(LDKは3面採光!)で明るく風通しの良い住宅です。 玄関を出るとウッドデッキが☆彡 プランター栽培をしたり、ティータイムも楽しめます♪3.内装リフォーム済みで水回りも綺麗です 2024年1月にクロス・床貼り替え、バス、トイレ、キッチン新規交換済み!  (東大和市立)第4小学校&第1中学校

東京都東大和市狭山4 2,480万円 5SLDK

  • 中古住宅
  • 東京都東大和市狭山4 中古住宅
    間取り図
東京都東大和市狭山4
西武多摩湖線 武蔵大和駅 徒歩12分
西武多摩湖線 多摩湖駅 徒歩27分
2,480
万円
5SLDK
140.58m2
246.35m2 1983年12月(築42年6ヶ月)
  • 2階建て
  • 都市ガス
  • 駐車場あり
  • 駐車3台
  • 所有権
おすすめポイント
物件のおすすめポイントはコチラ!1.西武多摩湖線「武蔵大和」駅徒歩12分 小学校徒歩5分、スーパー、コンビニ、ドラッグストア、保育園なども徒歩10分圏内! 遊具などもある東大和公園までも徒歩9分と子育て世帯にも嬉しいエリアです♪2.みんなで集まれる広大なお庭付! 敷地面積74坪超!!家庭菜園やガーデニングはもちろんお子様のプール、遊具なども置いて遊べます♪3.内装リフォームも承ります☆彡 お気軽にお問合せ下さい!  (東大和市立)第4小学校&第1中学校

東京都東大和市清水4 4,900万円 2SLDK

  • 中古住宅
  • 東京都東大和市清水4 中古住宅
    間取り図
東京都東大和市清水4
西武多摩湖線 武蔵大和駅 徒歩12分
4,900
万円
2SLDK
67.9m2
251.61m2 2016年7月(築9年11ヶ月)
  • 平屋
  • 都市ガス
  • 駐車場あり
  • 駐車2台
  • システムキッチン
  • 所有権
  • バリアフリー
おすすめポイント
☆東大和市清水・新築戸建を女性目線で解説☆point1 明るく開放感のある南西角地17帖のLDKは南と西から光が差し込み、日中は照明いらずの明るさ。さらにリビングに収納がしっかり備わっているから、散らかりがちな日用品やおもちゃもサッと片付き、生活感を抑えやすい空間に◎point2 ロフトで“置き場に困らない”安心感季節家電・おもちゃ・思い出の品など、普段使わない物をまるごとしまえるロフト付き。収納が家中に分散せず、1階・2階ともスッキリ見せやすいのが嬉しいポイントです。【載せきれなかった写真はHPにて公開中】「東大和市 ヒカリ企画」で検索、または下の詳細ページへ!

東京都東大和市狭山5 2,880万円 3LDK

  • 中古住宅
  • 東京都東大和市狭山5 中古住宅
    間取り図
東京都東大和市狭山5
西武多摩湖線 武蔵大和駅 徒歩13分
2,880
万円
3LDK
72.62m2
91.05m2 2015年10月(築10年8ヶ月)
  • 2階建て
  • 南道路
  • 都市ガス
  • 駐車場あり
  • 駐車2台
  • システムキッチン
  • 浴室乾燥機
  • 所有権
おすすめポイント
1.西武多摩湖線「武蔵大和」駅徒歩13分 西武拝島線「東大和市」駅、西武新宿線・国分寺線「東村山」駅もバス便利用可能。 徒歩15分圏内に東大和公園・狭山公園もあり、自然と触れ合えるエリアです♪2.陽当たりの良い3LDK 南側道路なので1階でも明るく居心地の良いリビング。床暖房完備で真冬でも足元からぽっかぽか♪ 固定階段式のグルニエもあり、収納もたっぷり♪3.充実した周辺環境 コンビニ・小学校徒歩5分圏内。スーパー・保育園・ドラッグストアなど徒歩10分圏内。 狭山湖や狭山公園・東大和公園など自然と触れ合えるエリアなのでのびのびと子育てが出来ますね♪  (東大和市立)第4小学校&第1中学校

東京都東大和市奈良橋6 3,490万円 4LDK

  • 中古住宅
  • 東京都東大和市奈良橋6 中古住宅
    間取り図
東京都東大和市奈良橋6
多摩都市モノレール 上北台駅 徒歩13分
3,490
万円
4LDK
110.12m2
71.02m2 2024年3月(築2年3ヶ月)
  • 3階建て以上
  • 都市ガス
  • 駐車場あり
  • 設計住宅性能評価付
  • システムキッチン
  • 浴室乾燥機
  • 所有権
  • 即入居可
おすすめポイント
■多摩モノレール「上北台」駅まで徒歩13分駅前にはスーパー「コープ」「ベルク」のほか、ドラッグストアや飲食店なども集まっています。モノレールで「玉川上水」や「立川北」駅で、西武拝島線やJR中央線などにも接続可能です。☆小中学校ともに徒歩10分圏☆「ビッグ・エー東大和奈良橋店」徒歩5分、「ローソン」徒歩5分など日常のお買物が便利。☆「内野医院」徒歩10分、「すこやか病児・病後児保育室」も徒歩10分。☆市役所・郵便局・中央図書館が徒歩圏内にそろい、暮らしをしっかり支えます。☆「奈良橋中央公園」徒歩5分、「芝中中央公園」徒歩6分。お散歩やお子さまの外遊びなど、身近で自然を感じられます

東京都東大和市南街1 4,480万円 3SLDK

  • 中古住宅
  • 東京都東大和市南街1 中古住宅
    間取り図
東京都東大和市南街1
西武拝島線 東大和市駅 徒歩13分
多摩都市モノレール 桜街道駅 徒歩24分
4,480
万円
3SLDK
145.26m2
104.96m2 2000年6月(築26年)
  • 2階建て
  • 駐車場あり
  • オール電化
  • 所有権
おすすめポイント
■セキスイハイム施工の防音付き!  プライベートスタジオや、シアター鑑賞等に最適です!■太陽光発電×蓄電池×オール電化■駐車スペース有(車種による)■3LDK+納戸+地下防音室■建物面積145.26m2(地下室45.88m2含む)■全居室収納有■全居室2面採光■浴室に窓有■各階にトイレ有

東京都東大和市南街1 4,480万円 3SLDK

  • 中古住宅
  • 東京都東大和市南街1 中古住宅
    間取り図
東京都東大和市南街1
西武拝島線 東大和市駅 徒歩13分
多摩都市モノレール 桜街道駅 徒歩24分
4,480
万円
3SLDK
145.26m2
104.96m2 2000年6月(築26年)
  • 2階建て
  • 駐車場あり
  • システムキッチン
  • オール電化
  • 浴室乾燥機
  • 所有権
おすすめポイント
◆『東大和市』駅徒歩15分!!◇平成12年築、セキスイハイムの注文住宅☆◆全面道路は一方通行の為静か◎◇本格的な防音室がある為ピアノ等も気軽に演奏可能です☆◆駐車スペースは1台ございます♪◇車通りも少ないため駐車が苦手な方でも安心です☆◆小中学校や商業施設徒歩圏内でございます◎まずは現地をご見学♪内覧ご希望&お問い合わせは、グループ創業57年GLOBALKOEIまで!!(TEL 0120-971-347)【受付時間】10:00~19:00【定休日】水曜

東京都東大和市奈良橋6 3,490万円 4LDK

  • 中古住宅
  • 東京都東大和市奈良橋6 中古住宅
    間取り図
東京都東大和市奈良橋6
多摩都市モノレール 上北台駅 徒歩14分
3,490
万円
4LDK
110.12m2
71.02m2 2023年12月(築2年6ヶ月)
  • 3階建て以上
  • 都市ガス
  • 駐車場あり
  • 所有権
  • 即入居可
おすすめポイント
■おすすめポイント━━━━━━━━━━━━・・・・・〇令和5年12月築・4LDK〇陽光にあふれたLDK約14.0帖〇南向きバルコニー2か所あり〇2階にはパントリーをはじめ収納機能充実〇ビルトインガレージ1台分あり※車種に制限あり《子育てに適した住環境》〇市立第一小学校まで約430m〇市立第一中学校まで約680m〇ビッグ・エー東大和奈良橋店まで約340m〇エコスTAIRAYA奈良橋店まで約780m〇セブンイレブン東大和奈良橋6丁目店まで約500m〇東大和公園まで約1400m〇アイエスクリニックまで約300m

東京都東大和市高木1 1,480万円 4LDK

  • 中古住宅
  • 東京都東大和市高木1 中古住宅
    間取り図
東京都東大和市高木1
西武多摩湖線 武蔵大和駅 徒歩16分
西武山口線 多摩湖駅 徒歩27分
1,480
万円
4LDK
81.56m2
165.73m2 1996年2月(築30年4ヶ月)
  • 2階建て
  • 南道路
  • 駐車場あり
  • システムキッチン
  • 所有権
おすすめポイント
物件のおすすめポイントはこちら!1.西武多摩湖線「武蔵大和」駅徒歩16分、自転車なら5分の距離 多摩都市モノレール始発駅「上北台」駅バス12分停歩9分も利用可能!2.土地面積はなんと165m2超!! 高台にある為見晴らしが良く、陽当たり・通風の良い住宅です♪3.ゆったり子育てが出来るエリア 小中学校、スーパー、コンビニ、ドラッグストアなどが徒歩10分圏内! 自然が豊かで四季の彩を感じられる東大和公園まで徒歩4分! 小さなお子様がいるご家庭にも嬉しい環境ですね♪  (東大和市立)第1小学校&第1中学校

東京都東大和市高木2 1,730万円 3LDK

  • 中古住宅
  • 東京都東大和市高木2 中古住宅
    間取り図
東京都東大和市高木2
西武多摩湖線 武蔵大和駅 徒歩16分
西武拝島線 東大和市駅 徒歩29分
多摩都市モノレール 上北台駅 徒歩27分
1,730
万円
3LDK
98.1m2
103.55m2 1997年5月(築29年1ヶ月)
  • 2階建て
  • 南道路
  • 駐車場あり
  • システムキッチン
  • 所有権
  • 即入居可
おすすめポイント
『◆西武多摩湖線「武蔵大和駅」徒歩16分◆南道路
チェックした物件を一括で

東京都東大和市中央4 4,499万円 4LDK

  • 中古住宅
  • 東京都東大和市中央4 中古住宅
    間取り図
東京都東大和市中央4
多摩都市モノレール 上北台駅 徒歩16分
西武拝島線 東大和市駅 徒歩19分
多摩都市モノレール 桜街道駅 徒歩18分
4,499
万円
4LDK
100.37m2
156.77m2 2014年7月(築11年11ヶ月)
  • 2階建て
  • 都市ガス
  • ルーフバルコニー
  • 駐車場あり
  • 駐車2台
  • システムキッチン
  • 浴室乾燥機
  • 所有権
おすすめポイント
たくさんのお客様からの感謝をお言葉を頂いております。これからも素敵なお家探しをお約束します。お家探しを始めてみようと思われたら【東宝ハウス武蔵野】までお気軽にご相談下さいませ。ご条件など何も決まっていなくても大丈夫です。まずはお客様の【夢】や【理想】をお聞かせ下さい。「行って良かった!会って良かった!そして楽しかった!」と思って頂けるようスタッフ一同【夢に!人に!住まいに本気です!!】【資料請求】又は【見学予約】ボタンをクリック又は東宝ハウス武蔵野【フリーダイヤル:0120-130-510】までお気軽にご連絡下さいませ。

東京都東大和市中央4 4,499万円 4LDK

  • 中古住宅
  • 東京都東大和市中央4 中古住宅
    間取り図
東京都東大和市中央4
多摩都市モノレール 上北台駅 徒歩16分
西武拝島線 東大和市駅 徒歩20分
多摩都市モノレール 桜街道駅 徒歩20分
4,499
万円
4LDK
100.37m2
156.77m2 2014年7月(築11年11ヶ月)
  • 2階建て
  • 都市ガス
  • ルーフバルコニー
  • 駐車場あり
  • 駐車2台
  • システムキッチン
  • 浴室乾燥機
  • 所有権
おすすめポイント
1.大家族にも嬉しい4LDK+カースペース2台 LDK横には上部吹き抜けで開放感のあるウッドデッキの中庭が♪ 家族がゆったりと過ごせる間取です 2.多摩モノレール「上北台」駅徒歩17分、西武拝島線「東大和市」駅徒歩20分 上北台駅は始発駅なので混雑する朝も座って通勤出来ますね。 東大和市駅前にはスケートやボーリングなどが楽しめる複合施設「BIX BOX東大和」をはじめ 飲食店などが立ち並び賑わっています♪3.周辺環境が充実 コンビニ、小学校徒歩5分圏内!スーパー、ドラッグストア、総合病院徒歩10分圏内。中学校徒歩11分。 子育て世帯にも嬉しいエリアです(東大和市)第2小学校&第4中学校

東京都東大和市高木3 1,680万円 4DK

  • 中古住宅
  • 東京都東大和市高木3 中古住宅
    間取り図
東京都東大和市高木3
西武多摩湖線 武蔵大和駅 徒歩17分
1,680
万円
4DK
76.79m2
103.4m2 1995年10月(築30年8ヶ月)
  • 2階建て
  • 駐車場あり
  • システムキッチン
  • 所有権
おすすめポイント
●高木公園まで約60m(徒歩1分)。 前面道路は交通量が多くないため、 子育てにもおすすめの住環境です。●東大和公園や狭山公園、多摩湖等 自然を感じられる大型公園等が 周辺にあり、四季を感じられる 閑静な住環境の低層住宅エリア。●新青梅街道沿いを中心に 商業店舗、飲食店等が充実しており、 生活しやすい立地です。〈スーパー〉・TAIRAYA 奈良橋店 :約740m(徒歩10分)〈コンビニ〉・ファミリーマート 東大和新青梅街道店 :約490m(徒歩7分)

東京都東大和市中央4 4,499万円 4LDK

  • 中古住宅
  • 東京都東大和市中央4 中古住宅
    間取り図
東京都東大和市中央4
多摩都市モノレール 上北台駅 徒歩17分
西武拝島線 東大和市駅 徒歩20分
4,499
万円
4LDK
100.37m2
156.77m2 2014年7月(築11年11ヶ月)
  • 2階建て
  • 都市ガス
  • ルーフバルコニー
  • 駐車場あり
  • 駐車2台
  • システムキッチン
  • 浴室乾燥機
  • 所有権
おすすめポイント
-物件のおすすめポイント-▼立地・第一種低層住居専用地域・南西側幅員約5.1m公道に接道▼特徴・会話が弾む対面式キッチン、食洗機付・玄関近くに和室を配置、客間など多彩に利用可能・全居室2面以上採光で通風良好・南西・南東向きの2面バルコニー仕様・駐車スペース並列2台分有(車種による)▼設備・浴室乾燥機・IHクッキングヒーター▼2025年12月室内リフォーム済【交換】キッチン、洗面台、トイレ1F・2F 等【その他】天井クロス張、ハウスクリーニング 他■ ご希望の住まい探しをお手伝いします ━━━━━・・・物件の詳細・ご相談はお気軽にお問い合わせください。

東京都東大和市中央4 4,499万円 4LDK

  • 中古住宅
  • 東京都東大和市中央4 中古住宅
    間取り図
東京都東大和市中央4
多摩都市モノレール 上北台駅 徒歩17分
4,499
万円
4LDK
100.37m2
156.77m2 2014年7月(築11年11ヶ月)
  • 2階建て
  • 都市ガス
  • 駐車場あり
  • 駐車2台
  • システムキッチン
  • 浴室乾燥機
  • 所有権
  • 即入居可
おすすめポイント
check1 LDKから続く中庭風ウッドデッキ朝のコーヒータイムや、お子さまの遊び場にぴったり。家にいながら外時間を楽しめ、暮らしにゆとりが生まれます。check2 徒歩5分には深夜営業で便利なドラッグストア。スーパーや複合商業施設も徒歩12分前後でお買い物に便利な立地。<リフォーム内容/R7年12月完了>・キッチン(IH・浄水器)・浴室(ミラー・水栓)・洗面室(洗面化粧台・洗濯用水栓)・トイレ(温水洗浄便座一体型便器)・床:フロアタイル貼(洗面室・トイレ)・壁、天井:クロス貼…etc【さらに詳しい解説はHPで公開中】「ヒカリ企画」で検索、または下の詳細ページへ!

東京都東大和市向原2 8,800万円 他

  • 中古住宅
  • 東京都東大和市向原2 中古住宅
    間取り図
東京都東大和市向原2
西武拝島線 東大和市駅 徒歩17分
8,800
万円

185.13m2
200.79m2 2017年5月(築9年1ヶ月)
  • 2階建て
  • 設計住宅性能評価付
  • 建設住宅性能評価付
  • システムキッチン
  • オール電化
  • 床暖房
  • 浴室乾燥機
  • 所有権
おすすめポイント
┏□アクセス ┗┻━━━━━━━━━━━━━━・西武拝島線「東大和市」駅 17分┏□物件の特徴┗┻━━━━━━━━━━━━━━・平成29年5月築【大和ハウス工業】の注文住宅、ジーヴォシグマシリーズです。・新築時設計・建設評価証明書取得済み・長期優良住宅認定済み・新築時の保証継承可能・太陽光発電、エネフォーム設置・床暖房、食洗機あり・2面バルコニーと1階部分はテラスとなっております。・玄関部分にシューズクロークあり・浴室内でミストサウナ、マイクロバブルが利用できます。・小屋根裏収納あり・カースペース3台あり(車種によります。)

東京都東大和市蔵敷1 1,080万円 4DK

  • 中古住宅
  • 東京都東大和市蔵敷1 中古住宅
    間取り図
東京都東大和市蔵敷1
多摩都市モノレール 上北台駅 徒歩18分
1,080
万円
4DK
77.83m2
97.16m2 1979年12月(築46年6ヶ月)
  • 2階建て
  • 駐車場あり
  • 所有権
  • 即入居可
おすすめポイント
物件のおすすめポイントはコチラ!1.多摩都市モノレール「上北台」駅徒歩18分♪ 駅前にはスーパーやコンビニ、飲食店もあり、お仕事帰りにも寄りやすいですね。2.2面バルコニーで明るい室内 2階全居室からバルコニーに出入りが出来るのでお布団も干しやすい♪ 玄関の上は吹抜になっていて開放感があります☆彡 3.自然とともにゆったりと過ごせます 竹林に囲まれた散歩道や遊具のある狭山緑地まで徒歩3分。 多摩湖や富士山の景色も楽しめます☆彡■(東大和市)第1小学校&第4中学校

東京都東大和市奈良橋5 3,350万円 4LDK

  • 中古住宅
  • 東京都東大和市奈良橋5 中古住宅
    間取り図
東京都東大和市奈良橋5
多摩都市モノレール 上北台駅 徒歩18分
3,350
万円
4LDK
89.37m2
120.09m2 2024年5月(築2年1ヶ月)
  • 2階建て
  • 南道路
  • 都市ガス
  • システムキッチン
  • 所有権
おすすめポイント
《アクセス》・多摩モノレール線「上北台」駅徒歩17分・西武拝島線「東大和市」駅バス9分「庚申塚」停徒歩5分《周辺環境・立地条件》・第一種低層住居専用地域の閑静な住宅街に立地。周辺は低層住宅の街並みが広がっております。・路地状敷地のため、表通りから一本入っており、人目が気にならないのが特徴です。《物件の特徴》・令和6年5月築・土地面積:120.09m2・建物面積:89.37m2

東京都東大和市仲原2 2,280万円 3LDK

  • 中古住宅
  • 東京都東大和市仲原2 中古住宅
    間取り図
東京都東大和市仲原2
西武多摩湖線 武蔵大和駅 徒歩19分
西武拝島線 東大和市駅 徒歩24分
2,280
万円
3LDK
83.12m2
84.46m2 2001年9月(築24年9ヶ月)
  • 2階建て
  • 都市ガス
  • システムキッチン
  • 所有権
おすすめポイント
~アクセス~ 西武多摩湖線「武蔵大和」駅 徒歩19分 西武拝島線「東大和市」駅 徒歩24分~物件情報~■土地面積:84.46㎡(25.54坪)■建物面積:83.12㎡(25.14坪)■間取り:3LDK■築年月:平成13(2001)年9月~Point~■開放感のあるLDK約15.6帖■太陽光発電システム■全居室収納有り■グルニエ■南面バルコニー■1、2階にトイレ有り■IHクッキングヒーター■カースペース有り■前面道路幅員約6.0m

東京都東大和市芋窪4 2,499万円 3LDK

  • 中古住宅
  • 東京都東大和市芋窪4 中古住宅
    間取り図
東京都東大和市芋窪4
多摩都市モノレール 上北台駅 徒歩19分
多摩都市モノレール 桜街道駅 徒歩28分
西武拝島線 玉川上水駅 徒歩3.2km
2,499
万円
3LDK
76.01m2
120.08m2 1996年10月(築29年8ヶ月)
  • 2階建て
  • 駐車場あり
  • 駐車2台
  • システムキッチン
  • 浴室乾燥機
  • 所有権
  • 即入居可
  • リフォームリノベーション
おすすめポイント
リビングに3面窓があり、開放感のある4LDKご条件など何も決まっていなくても大丈夫です。まずはお客様の【夢】や【理想】をお聞かせ下さい。「行って良かった!会って良かった!そして楽しかった!」と思って頂けるようスタッフ一同【夢に!人に!住まいに本気です!!】【資料請求】又は【見学予約】ボタンをクリック又は東宝ハウス武蔵野【フリーダイヤル:0120-60-4512】までお気軽にご連絡下さいませ

東京都東大和市新堀1 2,380万円 4SLDK

  • 中古住宅
  • 東京都東大和市新堀1 中古住宅
    間取り図
東京都東大和市新堀1
西武国分寺線 小川駅 徒歩20分
西武拝島線 東大和市駅 徒歩24分
2,380
万円
4SLDK
88.69m2
133.18m2 1986年12月(築39年6ヶ月)
  • 2階建て
  • 都市ガス
  • 駐車場あり
  • システムキッチン
  • 浴室乾燥機
  • 所有権
おすすめポイント
-物件のおすすめポイント-▼立地・第一種低層住居専用地域内▼特徴・全居室2面採光設計・各洋室・和室は6帖以上の広さを確保・料理に集中しやすい壁付けキッチン、3WAY仕様・キッチンと洗面室が近く、家事動線良好・2部屋から行き来可能な続きバルコニー・駐車場1台分有(車種による)▼設備・浴室乾燥機・屋根裏収納▼周辺環境・ヤオコー東大和清原店 徒歩8分(約620m)・東大和市立第三小学校 徒歩7分(約560m)※増築未登記部分有:2階納戸■ ご希望の住まい探しをお手伝いします ━━━━━・・・物件の詳細・ご相談はお気軽にお問い合わせください。

東京都東大和市中央1 2,680万円 4LDK

  • 中古住宅
  • 東京都東大和市中央1 中古住宅
    間取り図
東京都東大和市中央1
多摩都市モノレール 上北台駅 徒歩21分
西武拝島線 東大和市駅 徒歩22分
2,680
万円
4LDK
93.57m2
100m2 2005年3月(築21年3ヶ月)
  • 2階建て
  • システムキッチン
  • 所有権
  • リフォームリノベーション
おすすめポイント
-物件のおすすめポイント-▼特徴・会話が弾む対面式キッチン、配膳がスムーズなカウンター付・キッチンと洗面室が近く、家事動線に配慮・LD隣接の和室はお子様の遊び場としても活用可能・各洋室・和室に収納スペースを設置・1日の疲れを癒す浴室は1616サイズ・2024年1月 クロス(LDK・和室)貼替済・駐車スペース有(車種による)▼設備・トイレ(各階)・床下収納(キッチン・洗面室)・屋外水栓▼周辺環境・業務スーパー西武東大和店 徒歩10分(約790m)■ ご希望の住まい探しをお手伝いします ━━━━━・・・物件の詳細・ご相談はお気軽にお問い合わせください。

東京都東大和市中央2 3,180万円 3SLDK

  • 中古住宅
  • 東京都東大和市中央2 中古住宅
    間取り図
東京都東大和市中央2
西武拝島線 東大和市駅 徒歩21分
多摩都市モノレール 上北台駅 徒歩20分
3,180
万円
3SLDK
82.06m2
103.25m2 2002年5月(築24年1ヶ月)
  • 2階建て
  • 都市ガス
  • 駐車場あり
  • 駐車2台
  • 所有権
おすすめポイント
~周辺環境~◆東大和市第五小学校・・・・・約1400m◆東大和市第三中学校・・・・・約1200m◆エコスTAIRAYA奈良橋店・・・約850m◆ファミリーマート東大和青梅街道店・・約460m◆サンドラッグ東大和店・・・・・・・約590m

東京都東大和市芋窪1 3,690万円 5LDK

  • 中古住宅
  • 東京都東大和市芋窪1 中古住宅
東京都東大和市芋窪1
多摩都市モノレール 上北台駅 徒歩22分
3,690
万円
5LDK
150.51m2
300.82m2 1987年10月(築38年8ヶ月)
  • 2階建て
  • 南道路
  • 駐車場あり
  • 駐車2台
  • オール電化
  • 所有権
  • リフォームリノベーション
おすすめポイント
■地震に強いセキスイハイム施工の大型邸宅■2026年4月末 内外装リフォーム完了予定!■敷地面積 約90坪 × 建物面積 約45坪超のゆとりある住まい■部屋数豊富な【5LDK】でファミリーにもおすすめ■南向きの広々とした庭付きで、ガーデニングやBBQも楽しめます〇リフォーム内容〇■外壁塗装■屋根塗装■庭整地■洗面化粧台交換■トイレ(1F・2F)交換■クロス貼替■クッションフロア貼替■フロアタイル上張り■和室(畳・襖・障子)■リペア工事■水栓交換■照明交換■スイッチ交換■ハウスクリーニング■IH交換■エコキュート交換 等

東京都東大和市湖畔2 2,700万円 2SLDK

  • 中古住宅
  • 東京都東大和市湖畔2 中古住宅
    間取り図
東京都東大和市湖畔2
西武多摩湖線 武蔵大和駅 徒歩23分
多摩都市モノレール 上北台駅 徒歩29分
2,700
万円
2SLDK
147.19m2
244.16m2 1983年8月(築42年10ヶ月)
  • 2階建て
  • 都市ガス
  • 駐車場あり
  • システムキッチン
  • 所有権
おすすめポイント
-物件のおすすめポイント-▼立地・第一種低層住居専用地域の閑静な住宅街・高台、道路の向かいが公園につき開放感有▼特徴・玄関ホールは上部吹抜け仕様、坪庭有・リビングとDKは空間を分けて活用可能・作業スペースが広いコの字型キッチン、カウンター付・勝手口付のユーティリティを設置・各和室は約8.0帖、床の間・広縁付・敷地面積約73.85坪、お手入れされたお庭付・シャッター付車庫有(車種による)▼周辺環境・スーパー「TAIRAYA奈良橋店」徒歩6分(約470m)■ ご希望の住まい探しをお手伝いします ━━━━━・・・物件の詳細・ご相談はお気軽にお問い合わせください。

東京都東大和市湖畔2 3,480万円 4SLDK

  • 中古住宅
  • 東京都東大和市湖畔2 中古住宅
    間取り図
東京都東大和市湖畔2
西武多摩湖線 武蔵大和駅 徒歩25分
多摩都市モノレール 上北台駅 徒歩25分
3,480
万円
4SLDK
118.82m2
197.7m2 2002年10月(築23年8ヶ月)
  • 2階建て
  • 都市ガス
  • 駐車場あり
  • 駐車2台
  • 所有権
おすすめポイント
-物件のおすすめポイント-▼立地・第一種低層住居専用地域・自然豊かな住環境▼特徴・家族が自然と顔を合わせやすいリビング階段・会話が弾む対面式キッチン、勝手口有・各居室・ホール等、随所に収納を確保・各階にキッチン・トイレを設置・ルーバー窓付のロフト有・高麗芝が張られた南庭、実が生る梅の木有・2階にバーベキュー用テラス有・水栓付のシャッター付バイクガレージ・駐車場2台分有(車種による)▼周辺環境・スーパー「TAIRAYA奈良橋店」徒歩8分(約640m)■ ご希望の住まい探しをお手伝いします ━━━━━・・・物件の詳細・ご相談はお気軽にお問い合わせください。

東京都東大和市狭山4 2,480万円 4LDK

  • 中古住宅
  • 東京都東大和市狭山4 中古住宅
    間取り図
東京都東大和市狭山4
西武多摩湖線 武蔵大和駅 徒歩9分
西武多摩湖線 多摩湖駅 徒歩23分
西武山口線 西武園ゆうえんち駅 徒歩31分
2,480
万円
4LDK
87.48m2
109.63m2 1999年6月(築27年)
  • 2階建て
  • 都市ガス
  • 駐車場あり
  • システムキッチン
  • 所有権
  • 即入居可
  • バリアフリー
  • リフォームリノベーション
おすすめポイント
↓↓空家につき気兼ねなく ◎まずは下記の見学予約を気軽にClickください ↓↓2013年2月 外壁・屋根塗装工事済み♪LDKは2重サッシ設置済み!【LOCATION】・紫水保育園…徒歩5分・狭山ケ丘幼稚園…徒歩14分・業務スーパー西武東大和店…徒歩12分・セブンイレブン東大和高木1丁目店…徒歩8分・ココカラファイン東大和清水店…徒歩8分国分寺駅から中央線に乗り換え可能で都心へのアクセス良好です♪【ACCESS】・西武多摩湖線「武蔵大和」駅…徒歩約9分・市立第四小学校…徒歩約8分・市立第一中学校…徒歩約19分自己資金0円でも大丈夫?お気軽にお問合わせ下さい。

東京都東大和市狭山4 2,480万円 4LDK

  • 中古住宅
  • 東京都東大和市狭山4 中古住宅
    間取り図
東京都東大和市狭山4
西武多摩湖線 武蔵大和駅 徒歩9分
西武多摩湖線 多摩湖駅 徒歩23分
西武山口線 西武園ゆうえんち駅 徒歩31分
2,480
万円
4LDK
87.48m2
109.63m2 1999年6月(築27年)
  • 2階建て
  • 都市ガス
  • 駐車場あり
  • システムキッチン
  • 所有権
  • 即入居可
  • リフォームリノベーション
おすすめポイント
【ここがPoint!!】◆空家につきいつでも内見可能♪◆髄所に設置された収納豊富な間取り♪◆前面道路はお車通り抜けの無い安全な道路♪◆南側には物置も設置可能なゆったりとしたお庭♪*□□*□□**□□**株式会社つむぐホーム**□□**□□*□□*住まいの「売りたい」「買いたい」を本気で応援!お住まいにかかわる「ご不安」「お悩み」こそ是非つむぐホームにお話しください!元気なスタッフが全力でお客様のご希望・ご相談にお応えします♪

東京都東大和市南街3 3,690万円 4LDK

  • 中古住宅
  • 東京都東大和市南街3 中古住宅
    間取り図
東京都東大和市南街3
西武拝島線 東大和市駅 徒歩11分
多摩都市モノレール 桜街道駅 徒歩15分
3,690
万円
4LDK
99.78m2
125.42m2 2001年2月(築25年4ヶ月)
  • 2階建て
  • 南道路
  • 都市ガス
  • 駐車場あり
  • 駐車2台
  • システムキッチン
  • 所有権
おすすめポイント
建物は広々としたLDKが魅力の4LDK。南向きで陽の光もたっぷり入ります。ウォークインクローゼットや2ヶ所のトイレなど、家族みんなが快適に暮らせる設備も充実。駐車スペースも2台分確保。閑静な住宅地で、新しい生活を始めませんか。

東京都東大和市芋窪4 2,399万円 4DK

  • 中古住宅
  • 東京都東大和市芋窪4 中古住宅
    間取り図
東京都東大和市芋窪4
多摩都市モノレール 上北台駅 徒歩15分
多摩都市モノレール 桜街道駅 徒歩23分
西武狭山線 西武球場前駅 徒歩30分
2,399
万円
4DK
75.35m2
100.03m2 1987年8月(築38年10ヶ月)
  • 2階建て
  • 駐車場あり
  • 所有権
おすすめポイント
↓↓空家につき気兼ねなく ◎まずは下記の見学予約を気軽にClickください ↓↓【LOCATION】・ベルク・・・約1100m(徒歩約14分)・れんげ保育園・・・徒歩約7分・東大和芋窪緑地・・・徒歩約8分・村山中央病院・・・徒歩約14分・ファッションセンターしまむら中藤店・・・徒歩約14分・東大和芋窪郵便局・・・徒歩約4分・セブンイレブン武蔵村山神明3丁目店・・徒歩約8分・.いなげやむさし村山店・・徒歩約16分【ACCESS】・多摩都市モノレール「上北台」駅・・・徒歩約15分・市立第七小学校・・・約500m徒歩約6分・市立第一中学校・・・約850m徒歩約11分

東京都東大和市中央4 4,499万円 4LDK

  • 中古住宅
  • 東京都東大和市中央4 中古住宅
    間取り図
東京都東大和市中央4
多摩都市モノレール 上北台駅 徒歩16分
西武拝島線 東大和市駅 徒歩19分
西武拝島線 玉川上水駅 徒歩28分
4,499
万円
4LDK
100.37m2
156.77m2 2014年7月(築11年11ヶ月)
  • 2階建て
  • 都市ガス
  • ルーフバルコニー
  • 駐車場あり
  • 駐車2台
  • システムキッチン
  • 床暖房
  • 浴室乾燥機
おすすめポイント
おすすめポイント●プライベート空間のウッドデッキ●広々ルーフバルコニー●キッチンは統一感溢れるカップボード●浴室テレビ・ジェットバスつき●主寝室8.3帖
チェックした物件を一括で
  • チェックした物件をまとめて
149
表示件数 1234 次へ

条件を選択

価格
間取り
建物面積
土地面積
築年数
駅からの時間
人気のこだわり条件

さらに詳しくこだわり条件を選択

建物構造
階数
立地・特徴
キッチン
設備
駐車場
条件
性能・評価
瑕疵保険
お得な条件
画像・動画
情報の新しさ
フリーワード

東大和市の暮らしデータ

人口などの統計情報

世帯数 36291世帯
人口総数 84996人
転入者数 3540人
転入率(人口1000人当たり)
41.65人
転出者数 3079人
転出率(人口1000人当たり)
36.23人
土地平均価格
住宅地
173800円/m2
商業地
192500円/m2

結婚・育児の助成金

子育て関連の独自の取り組み (1)病児・病後児保育室の「お迎えサービス」(病児・病後児保育室の保育士等が保護者に代わって保育園に児童をお迎えに行き、ドクターの診察の上病児・病後児保育室で保育を行う。タクシー代無料)。(2)保育士の人材派遣会社からの紹介料の補助(紹介料[60万円程度]の半額)。(3)保育士等が通勤に利用する駐車場利用料を施設が負担している場合にその半額を補助(施設負担額の1/2、1施設最大5万円/月)。(4)保育に関する相談を行う保育コンシェルジュを配置。(5)学童保育所の開所時間を午後7時まで延長。また、学童保育所事業以外に児童館等でランドセル来館事業を実施している。
出産祝い なし
公立保育所数 1所(うち0歳児保育を実施している保育所:0所)
私立保育所数 16所(うち0歳児保育を実施している保育所:15所)
保育所入所待機児童数 0人
認定こども園数 2園 預かり保育実施園数 公立:- 私立:2園
学校給食 【小学校】完全給食【中学校】完全給食
公立中学校の学校選択制 未実施
子ども・学生等医療費助成<通院>対象年齢 18歳3月末まで 子ども・学生等医療費助成<入院>対象年齢 18歳3月末まで

東大和市の治安・ごみ収集情報

公共料金・インフラ

ガス料金(22m3使用した場合の月額) 東京瓦斯株式会社(東京地区等)3926円
水道料金(口径20mmで20m3の月額) 東京都水道局2816円
下水道料金(20m3を使用した場合の月額) 東大和市2017円
下水道普及率 100.0%

安心・安全

建物火災出火件数 9件
人口10000人当たり
1.07件
刑法犯認知件数 471件
人口1000人当たり
5.61件
ハザード・防災マップ あり

医療

一般病院総数 2ヶ所
一般診療所総数 54ヶ所
小児科医師数 24人
小児人口10000人当たり
24.07人
産婦人科医師数 1人
15~49歳女性人口1万人当たり
0.63人
介護保険料基準額(月額) 5400円

ごみ

家庭ごみ収集(可燃ごみ) 有料
備考
可燃ごみ・不燃ごみ及び容器包装プラスチックは有料。それ以外の資源物は無料。
家庭ごみの分別方式 4分別15種〔可燃ごみ 不燃ごみ 資源物(容器包装プラスチック、ペットボトル、びん、缶、新聞紙、雑誌・雑がみ、段ボール、布類、スプレー缶類) 有害ごみ(乾電池、蛍光管、ライター、水銀体温計等)〕 拠点回収:使用済小型家電 使用済インクカートリッジ 使用済携帯電話 紙パック 不用食器 缶 ペットボトル 乾電池 蛍光管 使い捨てコンタクトレンズ空ケース 使用済みプラスチック容器 雑貨類
家庭ごみの戸別収集 実施
粗大ごみ収集 あり
備考
有料。事前申込制。
生ごみ処理機助成金制度 あり
上限金額
20000円
上限比率
50.0%

東大和市の住まいの給付金

中古購入

利子補給制度 なし
補助/助成金制度 なし

増築・改築・改修

利子補給制度 なし
補助/助成金制度 あり
上限金額
(1)5万円(2)30万円(3)30万円
備考
(1)【木造住宅耐震診断費助成金】1981年5月31日以前に着工された木造2階建て以下の戸建て住宅を対象に耐震診断費用の一部を助成。費用の1/3(上限5万円)。他要件あり。(2)【木造住宅耐震改修費助成金】1981年5月31日以前に着工された木造2階建て以下の戸建て住宅を対象に耐震改修費用の一部を助成。費用の1/3(上限30万円)。他要件あり。(3)【木造住宅除去費助成金】1981年5月31日以前に着工された木造2階建て以下の戸建て住宅を対象に除去費用の一部を助成。費用の1/3(上限30万円)。他要件あり。
暮らしデータ提供元:生活ガイド.com
※行政機関により公表していない地域及びデータがございます。東京23区以外の政令指定都市は、市全体のデータとして表示しています。
※提供データには細心の注意を払っておりますが、調査後に変更がある場合があります。 最新の情報につきましては各市区役所までお問い合わせいただくか、自治体HPなどをご確認ください。

価格相場

東大和市の価格相場

  ワンルーム 1K・1DK 1LDK・2K・2DK 2LDK・3K・3DK 3LDK・4K・4DK
中古一戸建て - - - 3,631万円 3,741万円

周辺エリアの価格相場

  立川市 小平市 東村山市 国分寺市 武蔵村山市
中古一戸建て 5,329万円 5,564万円 3,302万円 5,499万円 2,315万円
※このデータはgoo住宅・不動産に掲載されている中古一戸建ての平均価格(管理費・駐車場代などを除く)を算出したものです。ただし5戸以上の掲載があるものについてのみ対象とします。
※周辺エリアの価格相場は2LDK・3K・3DKの平均価格(管理費・駐車場代などを除く)を算出したものです。

東京都の人気の街アクセスランキング(中古一戸建て)

※このランキングは2026年04月01日~30日における各ページのアクセス数から算出しています。

他のエリアから探す

東大和市の詳細地域から一戸建て物件を探す

芋窪上北台湖畔狭山清水新堀蔵敷高木立野中央仲原奈良橋南街向原

東大和市内の駅から探す

東大和市桜街道上北台

特集から探す

300万円以下500万円以下1,000万円以下1,500万円以下2,000万円以下3,000万円以下4,000万円以下5,000万円以下間取り図あり駅近・駅10分以内売主・代理第1種低層地域即入居可能駐車場2台分以上リフォーム・リノベーション済

アプリで簡単 物件探し 大手不動産サイトの情報から一括検!プッシュ通知で物件を見逃さない
App Storeからダウンロード Google Playで手に入れよう QRコード