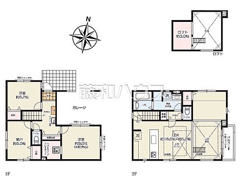
- 建築条件付土地
- 価格
- 5600万円・7900万円
土地価格のみ
- 住所
- 東京都練馬区上石神井1
- 交通
- 西武新宿線 上石神井駅 徒歩7分
JR中央線 吉祥寺駅 バス8分/東京三育小学校入口 停歩9分
西武新宿線 上井草駅 徒歩20分
- 間取り
- -
- 建物面積
- -
- 土地面積
- 108.81m2・115.74m2
- 総区画数
- 2区画
- おすすめポイント
- ♪ADCAST♪
◆練馬区上石神井1丁目!建築条件付 売地◆
- 新築一戸建て
- 価格
- 7280万円
- 住所
- 東京都練馬区上石神井3
- 交通
- 西武新宿線 上石神井駅 徒歩10分
西武新宿線 上井草駅 徒歩13分
練馬区コミュニティバス 上石神井二丁目 徒歩1分
- 間取り
- 3LDK
- 建物面積
- 89.32m2(27.01坪)
- 土地面積
- 98.89m2(29.91坪)
- 総戸数
- 2戸
- おすすめポイント
- 【アールギャラリー】■長期優良住宅■電動シャッター■ZEH水準
- 新築一戸建て
- 価格
- 6280万円・6580万円
- 住所
- 東京都練馬区上石神井4
- 交通
- 西武新宿線 上石神井駅 徒歩15分
西武新宿線 武蔵関駅 徒歩12分
西武新宿線 上井草駅 徒歩27分
- 間取り
- 3LDK・3LDK+S(納戸)
- 建物面積
- 86.11m2・101.85m2
- 土地面積
- 117.36m2・129.83m2
- 総戸数
- 12戸
- おすすめポイント
- ☆全2棟太陽光パネル搭載住宅☆彡
新規開発分譲地内の物件です!
申し訳ございません。条件にあう物件が少なかったため
以下は「春日町と上石神井南町」の物件情報を表示しています。
春日町と上石神井南町の新築一戸建て・新築住宅 物件一覧
- 新築一戸建て
- 価格
- 8880万円~9380万円
- 住所
- 東京都練馬区春日町5
- 交通
- 都営大江戸線 練馬春日町駅 徒歩5分
都営大江戸線 豊島園駅 徒歩19分
国際興業バス 練馬春日町駅 徒歩4分
- 間取り
- 3LDK+S(納戸)~4LDK
- 建物面積
- 91.93m2~93.17m2(27.80坪~28.18坪)
- 土地面積
- 91.31m2~94.44m2(27.62坪~28.56坪)
- 総戸数
- 3戸
- おすすめポイント
- 【アールギャラリー】■長期優良住宅■電動シャッター■ZEH水準
- 新築一戸建て
- 価格
- 7980万円~8380万円
- 住所
- 東京都練馬区春日町5
- 交通
- 都営大江戸線 練馬春日町駅 徒歩9分
西武池袋線 中村橋駅 徒歩17分
西武豊島線 豊島園駅 徒歩19分
- 間取り
- 3LDK
- 建物面積
- 93.15m2~94.76m2(28.17坪~28.66坪)
- 土地面積
- 94.01m2~99.5m2(28.43坪~30.09坪)
- 総戸数
- 3戸
- おすすめポイント
- 6m公道×4m公道 角地を含む全3棟
練馬春日町駅徒歩9分の好立地に誕生
- 建築条件付土地
- 価格
- 7850万円・8600万円
土地価格のみ
- 住所
- 東京都練馬区春日町5
- 交通
- 都営大江戸線 練馬春日町駅 徒歩10分
西武池袋線 中村橋駅 徒歩19分
都営大江戸線 豊島園駅 徒歩20分
- 間取り
- -
- 建物面積
- -
- 土地面積
- 115.27m2
- 総区画数
- 2区画
- おすすめポイント
- ◆◇建築プラン有◆◇駅徒歩10分
◇周辺買い物施設充実◆土地100m2越え
- 新築一戸建て
- 価格
- 9499万円
- 住所
- 東京都練馬区春日町2
- 交通
- 東京メトロ有楽町線 平和台駅 徒歩12分
東京メトロ副都心線 平和台駅 徒歩12分
都営大江戸線 練馬春日町駅 徒歩15分
- 間取り
- 2LDK+S(納戸):+WIC、ロフト、備蓄倉庫
- 建物面積
- 111.57m2
- 土地面積
- 97.15m2
- 総戸数
- 1戸
- 新築一戸建て
- 価格
- 7980万円~8380万円
- 住所
- 東京都練馬区春日町5
- 交通
- 都営大江戸線 練馬春日町駅 徒歩8分
西武池袋線 中村橋駅 徒歩19分
都営大江戸線 豊島園駅 徒歩20分
- 間取り
- 1LDK+2S(納戸)・2LDK+S(納戸)
- 建物面積
- 93.15m2~94.76m2
- 土地面積
- 94.01m2~99.5m2
- 総戸数
- 3戸
- おすすめポイント
- 【12月完成予定】 ☆駅徒歩8分♪☆角地×全室南向き♪☆光溢れるプラン♪
- 建築条件付土地
- 価格
- 7850万円~8600万円
土地価格のみ
- 住所
- 東京都練馬区春日町5
- 交通
- 都営大江戸線 練馬春日町駅 徒歩8分
西武池袋線 中村橋駅 徒歩20分
東京メトロ有楽町線 平和台駅 徒歩29分
- 間取り
- -
- 建物面積
- -
- 土地面積
- 115.27m234.86坪
- 総区画数
- 2区画
- 新築一戸建て
- 価格
- 1億800万円
- 住所
- 東京都練馬区春日町5
- 交通
- 都営大江戸線 練馬春日町駅 徒歩8分
- 間取り
- 2LDK
- 建物面積
- 95.67m2(28.94坪)
- 土地面積
- 100.06m2(30.26坪)
- 総戸数
- 12戸
- おすすめポイント
- 【住友林業の戸建分譲】【11/6更新】最寄駅までフラットアプローチ徒歩8~9分
- 建築条件付土地
- 価格
- 7770万円
土地価格のみ
- 住所
- 東京都練馬区春日町3
- 交通
- 都営大江戸線 練馬春日町駅 徒歩5分
東京メトロ有楽町線 平和台駅 徒歩20分
東京メトロ副都心線 平和台駅 徒歩20分
- 間取り
- -
- 建物面積
- -
- 土地面積
- 118.58m2
- 総区画数
- 2区画
- おすすめポイント
- 【三井ホーム】練馬春日町駅まで徒歩5分/小学校徒歩10分/利便施設充実
- 新築一戸建て
- 価格
- 8380万円
- 住所
- 東京都練馬区春日町5丁目
- 交通
- 都営地下鉄大江戸線 練馬春日町駅 徒歩8分
- 間取り
- 2SLDK
- 建物面積
- 93.96m2
- 土地面積
- 94.14m2
- 総戸数
- -
- おすすめポイント
- 小学校・中学校5分圏内!!!
- 新築一戸建て
- 価格
- 8080万円
- 住所
- 東京都練馬区春日町5丁目
- 交通
- 都営地下鉄大江戸線 練馬春日町駅 徒歩8分
- 間取り
- 1SLDK
- 建物面積
- 94.76m2
- 土地面積
- 99.5m2
- 総戸数
- -
- おすすめポイント
- 小学校・中学校5分圏内!!!
- 新築一戸建て
- 価格
- 7980万円
- 住所
- 東京都練馬区春日町5丁目
- 交通
- 都営地下鉄大江戸線 練馬春日町駅 徒歩8分
- 間取り
- 1SLDK
- 建物面積
- 93.15m2
- 土地面積
- 94.01m2
- 総戸数
- -
- おすすめポイント
- 小学校・中学校5分圏内!!!
- 新築一戸建て
- 価格
- 8380万円
- 住所
- 東京都練馬区春日町5丁目
- 交通
- 都営地下鉄大江戸線 練馬春日町駅 徒歩8分
西武池袋・豊島線 中村橋駅 徒歩19分
- 間取り
- 2SLDK
- 建物面積
- 93.96m2
- 土地面積
- 94.14m2
- 総戸数
- -
- おすすめポイント
- 弊社ではこちらの物件の諸費用が節約できます!詳しくは物件概要の備考欄をご覧下さい。物件のご案内や送迎は勿論、ご購入の流れや住宅ローン・諸費用内容・資金計画等詳しく説明・サポートさせて頂きます。
- 新築一戸建て
- 価格
- 8080万円
- 住所
- 東京都練馬区春日町5丁目
- 交通
- 都営地下鉄大江戸線 練馬春日町駅 徒歩8分
西武池袋・豊島線 中村橋駅 徒歩19分
- 間取り
- 1SLDK
- 建物面積
- 94.76m2
- 土地面積
- 99.5m2
- 総戸数
- -
- おすすめポイント
- 弊社ではこちらの物件の諸費用が節約できます!詳しくは物件概要の備考欄をご覧下さい。物件のご案内や送迎は勿論、ご購入の流れや住宅ローン・諸費用内容・資金計画等詳しく説明・サポートさせて頂きます。
- 新築一戸建て
- 価格
- 7980万円
- 住所
- 東京都練馬区春日町5丁目
- 交通
- 都営地下鉄大江戸線 練馬春日町駅 徒歩8分
西武池袋・豊島線 中村橋駅 徒歩19分
- 間取り
- 1SLDK
- 建物面積
- 93.15m2
- 土地面積
- 94.01m2
- 総戸数
- -
- おすすめポイント
- 弊社ではこちらの物件の諸費用が節約できます!詳しくは物件概要の備考欄をご覧下さい。物件のご案内や送迎は勿論、ご購入の流れや住宅ローン・諸費用内容・資金計画等詳しく説明・サポートさせて頂きます。
- 新築一戸建て
- 価格
- 9499万円
- 住所
- 東京都練馬区春日町2丁目
- 交通
- 東京メトロ副都心線 平和台駅 徒歩12分
都営地下鉄大江戸線 練馬春日町駅 徒歩15分
- 間取り
- 2SLDK
- 建物面積
- 111.57m2
- 土地面積
- 97.15m2
- 総戸数
- -
- おすすめポイント
- 都心へのアクセス豊富です!
- 新築一戸建て
- 価格
- 9499万円
- 住所
- 東京都練馬区春日町2丁目
- 交通
- 東京メトロ有楽町線 平和台駅 徒歩12分
都営地下鉄大江戸線 練馬春日町駅 徒歩15分
- 間取り
- 2SLDK
- 建物面積
- 111.57m2
- 土地面積
- 97.15m2
- 総戸数
- -
- おすすめポイント
- 弊社ではこちらの物件の諸費用が節約できます!詳しくは物件概要の備考欄をご覧下さい。物件のご案内や送迎は勿論、ご購入の流れや住宅ローン・諸費用内容・資金計画等詳しく説明・サポートさせて頂きます。
- 新築一戸建て
- 価格
- 9499万円
- 住所
- 東京都練馬区春日町2丁目
- 交通
- 東京メトロ有楽町線 平和台駅 徒歩12分
東京メトロ副都心線 平和台駅 徒歩12分
- 間取り
- 2SLDK
- 建物面積
- 111.57m2
- 土地面積
- 97.15m2
- 総戸数
- -
- おすすめポイント
- 完成済みの為即ご内覧可能となっております!まずはお気軽にお問い合わせくださいませ!
- 新築一戸建て
- 価格
- 9499万円
- 住所
- 東京都練馬区春日町2丁目
- 交通
- 東京メトロ副都心線 平和台駅 徒歩12分
都営地下鉄大江戸線 練馬春日町駅 徒歩15分
- 間取り
- 2SLDK
- 建物面積
- 111.57m2
- 土地面積
- 97.15m2
- 総戸数
- -
- おすすめポイント
- ZEH水準住宅 複数路線利用可
- 新築一戸建て
- 価格
- 4590万円
- 住所
- 東京都練馬区春日町5
- 交通
- 都営大江戸線 練馬春日町駅 徒歩10分
西武池袋線 中村橋駅 徒歩15分
都営大江戸線 豊島園駅 徒歩19分
- 間取り
- 2LDK
- 建物面積
- 51.4m2
- 土地面積
- 50.67m2
- 総戸数
- -
- おすすめポイント
- ◇物件情報◇〇堂々完成につきご内覧できます〇住環境良好なエリア〇小中学校徒歩4分以内〇2LDK+ロフト〇床暖房・食洗器・浴室乾燥機・カードキー・網戸等が標準装備
- 新築一戸建て
- 価格
- 12980万円
- 住所
- 東京都練馬区春日町3
- 交通
- 都営大江戸線 練馬春日町駅 徒歩5分
都営大江戸線 豊島園駅 徒歩19分
東京メトロ有楽町線 平和台駅 徒歩20分
- 間取り
- 5LDK
- 建物面積
- 121.72m2
- 土地面積
- 144.06m2
- 総戸数
- -
- おすすめポイント
- 都営大江戸線「練馬春日町」駅徒歩5分。土地43坪、建物36坪のゆとりある住まいに2台分の駐車スペースを備えました。1種低層住居専用地域の静かな住環境で、都心近接ながらも落ち着いた暮らしを叶えます。まずはお気軽にお問い合わせください!【ファミリー層が選ぶ5LDK住宅NO.1!】に選ばれました!※日本マーケティングリサーチ機構調べ(調査概要:2020年2月期-サイトのイメージ調査)■将来を見据えた「1階2LDK」&「2階3居室」の設計■建物はオール電化住宅、快適でエコな暮らしへ導く■上質なリビング風景を演出するダイナミックな吹抜■テレワークスペースにもなる、お洒落なカフェカウンター
- 新築一戸建て
- 価格
- 7980万円
- 住所
- 東京都練馬区春日町4
- 交通
- 都営大江戸線 練馬春日町駅 徒歩7分
東京メトロ有楽町線 平和台駅 徒歩17分
- 間取り
- 3LDK
- 建物面積
- 86.94m2
- 土地面積
- 87.04m2
- 総戸数
- -
- 新築一戸建て
- 価格
- 4790万円
- 住所
- 東京都練馬区春日町5
- 交通
- 都営大江戸線 練馬春日町駅 徒歩10分
西武豊島線 豊島園駅 徒歩17分
都営大江戸線 豊島園駅 徒歩18分
- 間取り
- 2LDK
- 建物面積
- 51.4m2
- 土地面積
- 50.67m2
- 総戸数
- -
- おすすめポイント
- 都営大江戸線【練馬春日町】駅まで徒歩10分、西武池袋線【中村橋】駅まで徒歩15分と2駅2路線の利用が可能です。●2025年9月完成予定の新築一戸建●2LDK+ロフト付●全居室2面採光●床暖房あり(LD)●南道路につき陽当たり良好《ライフインフォメーション》・サミットストア練馬春日町店・・約750m・ファミリーマート練馬高松一丁目店・・約500m・春日町西公園・・約250m・城址公園・・約450m・春日町保育園・・約130m・春日小学校・・約350m・練馬中学校・・約270m建築確認番号:第KBIーYKH25-10-0184号
- 新築一戸建て
- 価格
- 10890万円
- 住所
- 東京都練馬区春日町4
- 交通
- 都営大江戸線 練馬春日町駅 徒歩12分
東京メトロ有楽町線 平和台駅 徒歩14分
東京メトロ副都心線 平和台駅 徒歩14分
- 間取り
- 3LDK
- 建物面積
- 72.87m2
- 土地面積
- 112.3m2
- 総戸数
- -
- おすすめポイント
- 弊社営業マンの知恵と経験も反映した、常識にとらわれないクリエイティブな分譲住宅シリーズ。◆大型パントリーや備蓄倉庫など収納豊富!◆洗面2ボウルで朝の身支度もスムーズに。◆水回り集中配置の家事楽ラク動線♪◆床暖房、食器洗乾燥機、浴室乾燥機、網戸が標準搭載!◆ガス乾燥機設置可能!洗面室にガス栓あり☆◆田柄第二小学校、練馬東中学校が近く、子育て環境も充実。練馬春日町駅、平和台駅の2駅3路線利用可能な利便性。周辺のけやき公園をはじめとした、自然豊かな住環境。ゆとりある優雅な暮らしを< Infiar春日町 >☆やりとり不要で内覧確定可能!見学予約の赤いボタンから簡単予約☆
- 新築一戸建て
- 価格
- 9499万円
- 住所
- 東京都練馬区春日町2
- 交通
- 東京メトロ有楽町線 平和台駅 徒歩12分
都営大江戸線 練馬春日町駅 徒歩15分
東京メトロ有楽町線 地下鉄赤塚駅 徒歩18分
- 間取り
- 2SLDK
- 建物面積
- 111.57m2
- 土地面積
- 97.15m2
- 総戸数
- -
- おすすめポイント
- □LDK23帖超□2SLDK+車庫□即日見学可能です。□周辺には、スーパーやコンビニがございます。□諸条件相談可能◆先着申込受付中◆Always By Your Side ~いつもあなたのそばに~株式会社マーベラス 本店 TEL03-5790-5411
- 新築一戸建て
- 価格
- 8990万円
- 住所
- 東京都練馬区春日町3
- 交通
- 都営大江戸線 練馬春日町駅 徒歩4分
都営大江戸線 豊島園駅 徒歩14分
東京メトロ有楽町線 平和台駅 徒歩23分
- 間取り
- 4LDK
- 建物面積
- 124.06m2
- 土地面積
- 93.07m2
- 総戸数
- -
- おすすめポイント
- ◇物件情報◇〇ルーフバルコニーあり〇建物プレゼンテーション受付中〇住環境良好な希少エリア〇省エネ対応物件〇春日小学校
- 新築一戸建て
- 価格
- 9499万円
- 住所
- 東京都練馬区春日町2丁目
- 交通
- 東京メトロ有楽町線 平和台駅 徒歩12分
都営地下鉄大江戸線 練馬春日町駅 徒歩15分
- 間取り
- 2SLDK
- 建物面積
- 111.57m2
- 土地面積
- 97.15m2
- 総戸数
- -
- おすすめポイント
- 【練馬区エリア】は城北不動産にお任せください! 地域密着でお客様のお家探しを全力でサポート致します。
- 新築一戸建て
- 価格
- 8990万円
- 住所
- 東京都練馬区春日町3丁目
- 交通
- 都営地下鉄大江戸線 練馬春日町駅 徒歩4分
- 間取り
- 3SLDK
- 建物面積
- 124.06m2
- 土地面積
- 93.07m2
- 総戸数
- -
- 新築一戸建て
- 価格
- 9499万円
- 住所
- 東京都練馬区春日町2丁目
- 交通
- 東京メトロ副都心線 平和台駅 徒歩12分
都営地下鉄大江戸線 練馬春日町駅 徒歩15分
- 間取り
- 2SLDK
- 建物面積
- 111.57m2
- 土地面積
- 97.15m2
- 総戸数
- -
- おすすめポイント
- 暮らしを彩る設備充実、ZEH水準、建物面積:111.57平米の2階建て3LDKタイプ! 4LDKタイプへ変更可能! 前面道路は東側5m公道で開放感あり! 副都心線「平和台」駅徒歩12分!
- 新築一戸建て
- 価格
- 10890万円
- 住所
- 東京都練馬区春日町4丁目
- 交通
- 都営地下鉄大江戸線 練馬春日町駅 徒歩12分
東京メトロ有楽町線 平和台駅 徒歩14分
- 間取り
- 3LDK
- 建物面積
- 134.46m2
- 土地面積
- 112.3m2
- 総戸数
- -
- おすすめポイント
- 都営大江戸線「練馬春日町」駅 徒歩12分×新宿まで最短21分でアクセス可能な利便性。大型パントリーや備蓄倉庫など収納豊富な間取り×開放感いっぱいBBQやプールも楽しめる屋上庭園。
- 新築一戸建て
- 価格
- 7980万円
- 住所
- 東京都練馬区春日町5丁目
- 交通
- 都営地下鉄大江戸線 練馬春日町駅 徒歩9分
西武池袋・豊島線 中村橋駅 徒歩17分
- 間取り
- 3LDK
- 建物面積
- 93.15m2
- 土地面積
- 94.01m2
- 総戸数
- -
- おすすめポイント
- 【練馬エリア】は城北不動産にお任せください! 地域密着でお客様のお家探しを全力でサポート致します。
練馬区の住みやすさ情報
練馬区ってどんなところ?
練馬区は、都心へのアクセスが良く、自然と都市生活が調和した住みやすいエリアです。大小さまざまな公園が多い練馬区は、豊かな緑と静かな住環境が魅力で、ファミリー層に人気があります。また、商店街が活気に満ち、地域コミュニティも盛んで、地元住民とのつながりを感じやすい点も特徴です。
主要駅である練馬駅は、西武池袋線・西武豊島線・西武有楽町線・都営地下鉄大江戸線の4路線が通り、新宿までは約19分でアクセスできます。
街ガイド
公認不動産コンサルティングマスター/相続対策専門士/宅地建物取引士/賃貸不動産経営管理士
不動産会社にて600件以上の仲介、6000戸の収益物件管理を経験。現在は株式会社高野不動産コンサルティングを設立し、不動産コンサルティングを行う。
一人暮らしの人に聞いた
練馬区の住みやすさTOP10
自然や公園が多い
都心に近い
スーパーやドラッグストアが充実している- 4位以下を見る
夫婦・カップルに聞いた
練馬区の住みやすさTOP10
スーパーやドラッグストアが充実している
自然や公園が多い
都心に近い- 4位以下を見る
ファミリーに聞いた
練馬区の住みやすさTOP10
閑静で落ち着きがある
自然や公園が多い
都心に近い- 4位以下を見る
※対象エリア周辺に過去5年以内に住んだことのある10代~60代の人を対象としてアンケートを実施し、独自に集計しています。
練馬区の暮らしデータ
人口などの統計情報
| 世帯数 | 374485世帯 |
|---|---|
| 人口総数 | 741540人 |
| 転入者数 | 49591人
|
| 転出者数 | 44239人
|
| 土地平均価格 |
|
結婚・育児の助成金
| 子育て関連の独自の取り組み | (1)第3子誕生祝金。(2)子育てスタート応援券。(3)外遊び型子育てのひろば(おひさまぴよぴよ)。(4)ねりますくすくアプリ(ねりすく)。(5)ねりま子育て応援ハンドブック。(6)父親の育児応援DVD。(7)1年保育(1歳児・2歳児)。(8)発達に不安がある親子を対象にしたひろば事業(のびのびひろば)。(9)産後ケア事業。(10)移動型外遊びの場提供事業「おひさま てくてく」。(11)2019年度から、練馬こどもカフェ(民間カフェ等と協働し、保護者が交流したり子どもと一緒にリラックスできる場を提供し、私立幼稚園や保育事業者の協力を得て子育て講座等を実施)を開始。(12)ねりま子育て応援アプリ。 | ||
|---|---|---|---|
| 出産祝い | あり | ||
| 公立保育所数 | 60所(うち0歳児保育を実施している保育所:50所) | ||
| 私立保育所数 | 141所(うち0歳児保育を実施している保育所:136所) | ||
| 保育所入所待機児童数 | 0人 | ||
| 認定こども園数 | 3園 | 預かり保育実施園数 | 公立:3園 私立:35園 |
| 学校給食 | 【小学校】完全給食【中学校】完全給食 | ||
| 公立中学校の学校選択制 | 実施(新入学時のみ) | ||
| 子ども・学生等医療費助成<通院>対象年齢 | 18歳3月末まで | 子ども・学生等医療費助成<入院>対象年齢 | 18歳3月末まで |
練馬区の治安・ごみ収集情報
公共料金・インフラ
| ガス料金(22m3使用した場合の月額) | 東京瓦斯株式会社(東京地区等)3926円 |
|---|---|
| 水道料金(口径20mmで20m3の月額) | 東京都水道局2816円 |
| 下水道料金(20m3を使用した場合の月額) | 東京都下水道局2068円 |
| 下水道普及率 | 100.0% |
安心・安全
| 建物火災出火件数 |
88件
|
|---|---|
| 刑法犯認知件数 |
3480件
|
| ハザード・防災マップ | あり |
医療
| 一般病院総数 | 17ヶ所 |
|---|---|
| 一般診療所総数 | 593ヶ所 |
| 小児科医師数 |
125人
|
| 産婦人科医師数 |
40人
|
| 介護保険料基準額(月額) | 6670円 |
ごみ
| 家庭ごみ収集(可燃ごみ) |
無料
|
|---|---|
| 家庭ごみの分別方式 | 3分別10種〔可燃ごみ 不燃ごみ 資源(古紙[新聞、雑誌・雑紙、ダンボール、紙パック]、びん、缶、ペットボトル、容器包装プラスチック)〕 拠点回収:古布 廃食用油 乾電池 小型家電(13品目) |
| 家庭ごみの戸別収集 | 一部実施(【練馬区戸別訪問収集実施要綱】65歳以上の方のみの世帯または障害のある方のみの世帯で、世帯員自らごみを集積所へ持ち出すことが困難で、身近な人の協力が得られない世帯が対象) |
| 粗大ごみ収集 |
あり
|
| 生ごみ処理機助成金制度 |
なし
|
練馬区の住まいの給付金
新築購入
| 利子補給制度 | なし |
|---|---|
| 補助/助成金制度 | なし |
※提供データには細心の注意を払っておりますが、調査後に変更がある場合があります。 最新の情報につきましては各市区役所までお問い合わせいただくか、自治体HPなどをご確認ください。
価格相場
練馬区の価格相場
| ワンルーム | 1K/DK/LDK(+S) | 2K/DK/LDK(+S) | 3K/DK/LDK(+S) | 4K/DK/LDK(+S) | |
|---|---|---|---|---|---|
| 新築一戸建て | - | 7027万円 | 7051万円 | 6886万円 | 7300万円 |
周辺エリアの価格相場
| 和光市 | 中野区 | 杉並区 | 豊島区 | 板橋区 | |
|---|---|---|---|---|---|
| 新築一戸建て | - | - | - | - | - |
※周辺エリアの価格相場はワンルームの平均価格(管理費・駐車場代などを除く)を算出したものです。

















































































