アプリで簡単 物件探し 通知 共有 アプリならではの機能を使ってみる
RSS

加太駅(和歌山県)の中古一戸建て・中古住宅 物件一覧

加太駅(和歌山県)の中古住宅、中古一軒家などの中古一戸建て物件をご紹介します。中古物件、中古一軒家、中古建売住宅などの中古一戸建て物件情報を探すならgoo住宅・不動産。価格・建物面積・土地面積・間取り・人気のこだわり条件から物件を簡単検索。理想のマイホーム探しをgoo住宅・不動産がサポートします。

探したい物件の路線・検索条件を変更して再検索

路線
検索条件
25 並び替え
チェックした物件を一括で
選択 物件タイプ
画像
所在地/交通
(駅/バス 所要時間)
価格 間取り
建物面積
土地面積 築年月
築年数

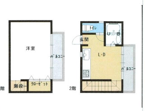
和歌山県和歌山市加太 370万円 7LDK

  • 中古住宅
  • 和歌山県和歌山市加太 中古住宅
    間取り図
和歌山県和歌山市加太
南海加太線 加太駅 徒歩9分
370
万円
7LDK
173.79m2
240.2m2 1966年5月(築60年1ヶ月)
  • 2階建て
  • 所有権
  • 即入居可
おすすめポイント
敷地の目の前に平面月極駐車場もあります。こだわりで選びたい方におすすめ。和歌山市エリアで住まいをお探しなら「加太字出口 戸建」。和歌山市立加太小学校が徒歩2分のところにあり、お子様の通学も便利です。また、物件の目の前に月極駐車場が御座いますのでマイカーをお持ちの方にもご検討いただけます。建物面積173.79㎡の物件で部屋数も多く広々してます。駅まで徒歩9分の物件です。不動産をお探しなら、当社をご用命ください。あなたのこだわりの条件に合った不動産がきっと見つかります。ぜひご検討くださいませ。

和歌山県和歌山市つつじが丘1 1,380万円 1LDK

  • 中古住宅
  • 和歌山県和歌山市つつじが丘1 中古住宅
和歌山県和歌山市つつじが丘1
南海加太線 磯ノ浦駅 徒歩19分
南海加太線 二里ヶ浜駅 徒歩25分
南海加太線 加太駅 徒歩30分
1,380
万円
1LDK
59.62m2
171.83m2 2008年6月(築18年)
  • 平屋
  • 所有権
おすすめポイント
【お問い合わせについて】※※際が掲載していない物件でもご紹介可能です!※※⇒気になる物件まとめてご案内します!新築&リフォームのご相談も承ります!◎資料請求、メールでのお問い合わせは24時間受付中♪◎18時以降のご見学ご相談・オンライン対応・女性スタッフ対応も可能♪詳細資料のご請求・物件見学のご依頼はお気軽に「お電話」または「資料請求ボタン」からお問い合わせください!【住宅ローン相談会開催中】初めてでご不安な方、各借入限度額を知りたい方資金・支払い計画を立てたい方、住み替えをお考えの方無料相談受付中です♪お気軽にお電話ください!

和歌山県和歌山市磯の浦 200万円 4DK

  • 中古住宅
  • 和歌山県和歌山市磯の浦 中古住宅
    間取り図
和歌山県和歌山市磯の浦
南海加太線 加太駅 徒歩22分
200
万円
4DK
73.68m2
105.98m2 1975年5月(築51年1ヶ月)
  • 2階建て
  • 都市ガス
  • 所有権
  • 即入居可

和歌山県和歌山市加太 880万円 4SLDK

  • 中古住宅
  • 和歌山県和歌山市加太 中古住宅
    間取り図
和歌山県和歌山市加太
南海加太線 加太駅 徒歩6分
南海加太線 磯ノ浦駅 徒歩38分
880
万円
4SLDK
135.45m2
165.28m2 1993年4月(築33年2ヶ月)
  • 2階建て
  • 駐車場あり
  • 駐車3台
  • システムキッチン
  • オール電化
  • 所有権
おすすめポイント
■土地面積も50坪とゆとりがあり、車も3台駐車可能です!■加太駅まで6分で海も近く別荘地にもオススメです。■庭スペースもあり、家庭菜園も楽しめます!●大阪・和歌山市での取り扱い件数多数! お客様のご希望の物件を紹介します。●住宅ローンの相談だけでも構いません! 今お持ちのローンを最大500万まで住宅ローンと一本化が可能! おまとめローン&頭金0円フルローン可能! 提携銀行にて最大優遇金利0.6%台・最大40年でローン組めます!●ご所有の不動産の売却査定や住み替え等お気軽にご相談ください!

和歌山県和歌山市磯の浦 200万円 4DK

  • 中古住宅
  • 和歌山県和歌山市磯の浦 中古住宅
    間取り図
和歌山県和歌山市磯の浦
南海電鉄加太支線 加太駅 徒歩28分
200
万円
4DK
73.68m2
105.98m2 1975年5月(築51年1ヶ月)
  • 2階建て
  • 都市ガス
  • 駐車場あり
  • 所有権
おすすめポイント
磯の浦ネオポリス住宅街! 都市ガス完備!

和歌山県和歌山市加太 1,400万円 2SLDK

  • 中古住宅
  • 和歌山県和歌山市加太 中古住宅
和歌山県和歌山市加太
南海電鉄加太支線 加太駅 徒歩24分
南海電鉄加太支線 磯ノ浦駅 徒歩4.4km
1,400
万円
2SLDK
115.93m2
204.41m2 1990年7月(築35年11ヶ月)
  • 2階建て
  • 駐車場あり
  • 所有権
おすすめポイント
■サニータウンのメイン道路に面する戸建です ■平成31年頃リビング・2階和室リフォーム済み

和歌山県和歌山市磯の浦 1,675万円 2LDK

  • 中古住宅
  • 和歌山県和歌山市磯の浦 中古住宅
    間取り図
和歌山県和歌山市磯の浦
南海電鉄加太支線 加太駅 徒歩20分
南海電鉄加太支線 磯ノ浦駅 徒歩24分
1,675
万円
2LDK
122.34m2
176.4m2 2017年9月(築8年9ヶ月)
  • 2階建て
  • 駐車場あり
  • 所有権
おすすめポイント
■ミサワホームのオール電化住宅! ■3LDKに間取り変更可能!

和歌山県和歌山市加太 100万円 2DK

  • 中古住宅
  • 和歌山県和歌山市加太 中古住宅
    間取り図
和歌山県和歌山市加太
南海電鉄加太支線 加太駅 徒歩3.2km
南海電鉄加太支線 磯ノ浦駅 徒歩5.8km
100
万円
2DK
51.8m2
92m2 1977年12月(築48年6ヶ月)
  • 2階建て
  • 南道路
  • 駐車場あり
  • 所有権
  • 即入居可
おすすめポイント
加太自然の郷! 別荘・セカンドハウスにいかがでしょう! 海が近いので釣り好きの方もオススメです! 年間管理費90 000円必要となります

和歌山県和歌山市加太 1,050万円 2SDK

  • 中古住宅
  • 和歌山県和歌山市加太 中古住宅
    間取り図
和歌山県和歌山市加太
南海電鉄加太支線 加太駅 徒歩4.0km
南海電鉄加太支線 磯ノ浦駅 徒歩6.4km
1,050
万円
2SDK
57.96m2
100.17m2 2002年10月(築23年8ヶ月)
  • 2階建て
  • 駐車場あり
  • 所有権
  • 即入居可
おすすめポイント
加太自然の郷内別荘! 別荘地内で木々に囲まれ、バルコニーからはオーシャンビューも楽しめます!

和歌山県和歌山市加太 500万円 7DK

  • 中古住宅
  • 和歌山県和歌山市加太 中古住宅
和歌山県和歌山市加太
南海電鉄加太支線 加太駅 徒歩3分
南海電鉄加太支線 磯ノ浦駅 徒歩3.1km
500
万円
7DK
147.12m2
222.82m2 1978年8月(築47年10ヶ月)
  • 2階建て
  • 南道路
  • 駐車場あり
  • 所有権
  • 即入居可

和歌山県和歌山市加太 500万円 7DK

  • 中古住宅
  • 和歌山県和歌山市加太 中古住宅
和歌山県和歌山市加太
南海電鉄加太支線 加太駅 徒歩5分
500
万円
7DK
147.12m2
222.82m2 1978年8月(築47年10ヶ月)
  • 2階建て
  • 南道路
  • 駐車場あり
  • 駐車2台
  • 所有権
  • 即入居可

和歌山県和歌山市加太 1,100万円 1LDK

  • 中古住宅
  • 和歌山県和歌山市加太 中古住宅
    間取り図
和歌山県和歌山市加太
南海電鉄加太支線 加太駅 徒歩37分
1,100
万円
1LDK
27.98m2
462.01m2 2002年1月(築24年5ヶ月)
  • 平屋
  • 駐車場あり
  • 所有権
おすすめポイント
■海の見える素敵な1軒屋です!■約139坪の土地にお庭付き平屋建て!!■セカンドハウスとしても可能

兵庫県洲本市上物部 2,720万円 4LDK

  • 中古住宅
  • 兵庫県洲本市上物部 中古住宅
    間取り図
兵庫県洲本市上物部
南海電鉄加太支線 加太駅 徒歩8.0km
2,720
万円
4LDK
95.57m2
163.34m2 2024年9月(築1年9ヶ月)
  • 2階建て
  • 駐車場あり
  • 駐車3台
  • カウンターキッチン
  • オール電化
  • 所有権
おすすめポイント
◆南東向きで陽当たり良好! ◆洲本第三小学校まで徒歩約10分! ◆オール電化住宅です!

和歌山県和歌山市加太 2,290万円 2SLDK

  • 中古住宅
  • 和歌山県和歌山市加太 中古住宅
    間取り図
和歌山県和歌山市加太
南海電鉄加太支線 加太駅 徒歩26分
南海電鉄加太支線 磯ノ浦駅 徒歩4.5km
2,290
万円
2SLDK
101.84m2
236.23m2 2008年12月(築17年6ヶ月)
  • 2階建て
  • 駐車場あり
  • 駐車2台
  • システムキッチン
  • 床暖房
  • 所有権
おすすめポイント
■住友林業施工のお家!室内大変綺麗にお使いです!■室内から一望できる海は圧巻の絶景です!

和歌山県和歌山市加太 398万円 1DK

  • 中古住宅
  • 和歌山県和歌山市加太 中古住宅
    間取り図
和歌山県和歌山市加太
南海電鉄加太支線 加太駅 徒歩3.4km
398
万円
1DK
34.7m2
107m2 2002年4月(築24年2ヶ月)
  • 2階建て
  • 駐車場あり
  • 所有権
おすすめポイント
■別荘地【加太自然の郷】内■2022年8月室内一部リフォーム済み

和歌山県和歌山市加太 5,200万円 3LDK

  • 中古住宅
  • 和歌山県和歌山市加太 中古住宅
    間取り図
和歌山県和歌山市加太
南海電鉄加太支線 加太駅 徒歩25分
5,200
万円
3LDK
161.77m2
794.62m2 2013年8月(築12年10ヶ月)
  • 2階建て
  • 駐車場あり
  • 駐車3台
  • 所有権
おすすめポイント
◆ハウスドゥ天六店駅販売窓口♪◆オーシャンビューのセカンドハウスや別荘にお勧め♪

和歌山県和歌山市磯の浦 200万円 4DK

  • 中古住宅
  • 和歌山県和歌山市磯の浦 中古住宅
    間取り図
和歌山県和歌山市磯の浦
南海電鉄加太支線 加太駅 徒歩22分
南海電鉄加太支線 磯ノ浦駅 徒歩23分
200
万円
4DK
73.68m2
105.98m2 1975年5月(築51年1ヶ月)
  • 2階建て
  • 都市ガス
  • 所有権
  • 即入居可
おすすめポイント
サーフィンの拠点に最適 収益物件などにも是非

和歌山県和歌山市加太 960万円 3LDK

  • 中古住宅
  • 和歌山県和歌山市加太 中古住宅
    間取り図
和歌山県和歌山市加太
南海電鉄加太支線 加太駅 徒歩25分
960
万円
3LDK
134.72m2
187.41m2 1994年3月(築32年3ヶ月)
  • 南道路
  • 所有権
  • 即入居可

和歌山県和歌山市加太 780万円 1LDK

  • 中古住宅
  • 和歌山県和歌山市加太 中古住宅
    間取り図
和歌山県和歌山市加太
南海電鉄加太支線 加太駅 徒歩3.2km
780
万円
1LDK
41.4m2
200m2 2002年8月(築23年10ヶ月)
  • 所有権
  • 即入居可
おすすめポイント
高台より太平洋一望・景色の良い物件です。
チェックした物件を一括で

和歌山県和歌山市加太 1,650万円 4LDK

  • 中古住宅
  • 和歌山県和歌山市加太 中古住宅
    間取り図
和歌山県和歌山市加太
南海電鉄加太支線 加太駅 徒歩35分
1,650
万円
4LDK
139.53m2
510m2 1997年2月(築29年4ヶ月)
  • 所有権

和歌山県和歌山市加太 620万円 2K

  • 中古住宅
  • 和歌山県和歌山市加太 中古住宅
    間取り図
和歌山県和歌山市加太
南海電鉄加太支線 加太駅 徒歩35分
620
万円
2K
59.62m2
99m2 2002年4月(築24年2ヶ月)
  • 所有権
  • 即入居可

和歌山県和歌山市加太 300万円 1LDK

  • 中古住宅
  • 和歌山県和歌山市加太 中古住宅
    間取り図
和歌山県和歌山市加太
南海電鉄加太支線 加太駅 徒歩3.2km
300
万円
1LDK
38.9m2
72m2 2002年1月(築24年5ヶ月)
  • 平屋
  • 所有権
おすすめポイント
街の喧騒から少し離れた和歌山市加太。気軽に持てる平屋のセカンドハウスがあります。コンパクトな1LDKは掃除や管理も楽で、思い立った時にすぐ使えるのが魅力。週末の気分転換や趣味の拠点としてもぴったり。

和歌山県和歌山市加太 458万円 1LDK

  • 中古住宅
  • 和歌山県和歌山市加太 中古住宅
    間取り図
和歌山県和歌山市加太
南海電鉄加太支線 加太駅 徒歩3.4km
南海電鉄加太支線 磯ノ浦駅 徒歩6.0km
458
万円
1LDK
34.78m2
107m2 2002年4月(築24年2ヶ月)
  • 2階建て
  • 所有権
  • リフォームリノベーション
おすすめポイント
別荘地【加太自然の郷】内!釣りやマリンレジャーの拠点としていかがですか?室内一部リフォーム済み!

和歌山県和歌山市加太 790万円 3SLDK

  • 中古住宅
  • 和歌山県和歌山市加太 中古住宅
    間取り図
和歌山県和歌山市加太
南海電鉄加太支線 加太駅 徒歩3.6km
790
万円
3SLDK
136.68m2
107.22m2 2003年3月(築23年3ヶ月)
  • 3階建て以上
  • 南道路
  • 駐車場あり
  • システムキッチン
  • 所有権
おすすめポイント
◆山頂にあるリゾート地! ◆築20年でまだまだ使える鉄骨造! ◆緑と海に囲まれた生活を是非!

和歌山県和歌山市加太 930万円 2LDK

  • 中古住宅
  • 和歌山県和歌山市加太 中古住宅
    間取り図
和歌山県和歌山市加太
南海電鉄加太支線 加太駅 徒歩35分
930
万円
2LDK
85.74m2
196m2 1993年3月(築33年3ヶ月)
  • 所有権
  • 即入居可
  • リフォームリノベーション
おすすめポイント
建物は海岸線の上に建つ海景色のよい物件です
チェックした物件を一括で
  • チェックした物件をまとめて
25
表示件数

条件を選択

価格
間取り
建物面積
土地面積
築年数
駅からの時間
人気のこだわり条件

さらに詳しくこだわり条件を選択

建物構造
階数
立地・特徴
キッチン
設備
駐車場
条件
性能・評価
瑕疵保険
お得な条件
画像・動画
情報の新しさ
フリーワード

和歌山市の暮らしデータ

人口などの統計情報

世帯数 157310世帯
人口総数 352941人
転入者数 8426人
転入率(人口1000人当たり)
23.87人
転出者数 8745人
転出率(人口1000人当たり)
24.78人
土地平均価格
住宅地
73890円/m2
商業地
141553円/m2

結婚・育児の助成金

子育て関連の独自の取り組み (1)小・中学生で交通事故による遺児等に対して、中学校卒業まで積立金を積立て。〔和歌山市がんばれ預金〕(2)三世代で新たに同居又は近居する住宅の取得や同居のための住宅をリフォームする場合、費用の一部を助成。(3)子育てを支えるサービスの情報提供や紹介、子育ての悩み(保育園選びなど)の相談を実施。
出産祝い あり
公立保育所数 14所(うち0歳児保育を実施している保育所:10所)
私立保育所数 17所(うち0歳児保育を実施している保育所:17所)
保育所入所待機児童数 18人
認定こども園数 30園 預かり保育実施園数 公立:0園 私立:9園
学校給食 【小学校】完全給食【中学校】完全給食 家庭弁当等との選択制/デリバリー形式[運搬:ランチボックス、内容:完全給食]
公立中学校の学校選択制 実施(小規模特認校[加太中学校])
子ども・学生等医療費助成<通院>対象年齢 18歳3月末まで 子ども・学生等医療費助成<入院>対象年齢 18歳3月末まで

和歌山市の治安・ごみ収集情報

公共料金・インフラ

ガス料金(22m3使用した場合の月額) 大阪瓦斯株式会社4544円
水道料金(口径20mmで20m3の月額) 和歌山市3399円
下水道料金(20m3を使用した場合の月額) 和歌山市3139円
下水道普及率 38.7%

安心・安全

建物火災出火件数 66件
人口10000人当たり
1.85件
刑法犯認知件数 2050件
人口1000人当たり
5.75件
ハザード・防災マップ あり

医療

一般病院総数 34ヶ所
一般診療所総数 415ヶ所
小児科医師数 90人
小児人口10000人当たり
22.51人
産婦人科医師数 59人
15~49歳女性人口1万人当たり
9.35人
介護保険料基準額(月額) 6800円

ごみ

家庭ごみ収集(可燃ごみ) 無料
備考
指定ごみ袋あり。
家庭ごみの分別方式 2分別11種〔一般ごみ 資源(かん、びん、ペットボトル、紙[新聞、雑誌、ダンボール、紙パック]、布、小型家電等、割れていない蛍光管等)〕 拠点回収:白色トレイ
家庭ごみの戸別収集 一部実施(ふれあい収集)
粗大ごみ収集 あり
備考
無料。事前申込制。
生ごみ処理機助成金制度 なし
上限金額
-
上限比率
-

和歌山市の住まいの給付金

中古購入

利子補給制度 なし
補助/助成金制度 なし

増築・改築・改修

利子補給制度 なし
補助/助成金制度 あり
上限金額
(1)8.9万円(2)131.6万円(3)20万円
備考
(1)【耐震診断助成】木造は無料(4.8万円~6.3万円相当分)、非木造は上限8.9万円の助成。(2)【耐震改修助成】耐震性が低いと判定された住宅の耐震改修費(設計費及び工事費)の一部を助成。(3)【リフォーム工事助成】2000年5月31日以前に建築された住宅の改修工事と同時に行うリフォーム工事が対象。費用の1/2。他要件あり。
暮らしデータ提供元:生活ガイド.com
※行政機関により公表していない地域及びデータがございます。東京23区以外の政令指定都市は、市全体のデータとして表示しています。
※提供データには細心の注意を払っておりますが、調査後に変更がある場合があります。 最新の情報につきましては各市区役所までお問い合わせいただくか、自治体HPなどをご確認ください。

価格相場

加太駅の価格相場

  ワンルーム 1K・1DK 1LDK・2K・2DK 2LDK・3K・3DK 3LDK・4K・4DK
中古一戸建て - - 713万円 1,469万円 1,375万円

周辺駅の価格相場

  磯ノ浦 二里ヶ浜 西ノ庄 八幡前 中松江
中古一戸建て 1,643万円 - 1,255万円 - -
※このデータはgoo住宅・不動産に掲載されている中古一戸建ての平均価格(管理費・駐車場代などを除く)を算出したものです。ただし5戸以上の掲載があるものについてのみ対象とします。
※周辺駅の価格相場は2LDK・3K・3DKの平均価格(管理費・駐車場代などを除く)を算出したものです。

加太駅(南海電鉄加太支線)で他のジャンルから探す

アプリで簡単 物件探し 大手不動産サイトの情報から一括検!プッシュ通知で物件を見逃さない
App Storeからダウンロード Google Playで手に入れよう QRコード