アプリで簡単 物件探し 通知 共有 アプリならではの機能を使ってみる
賃貸マンション

クレセントプラザ笹塚 笹塚駅 ワンルーム 賃貸(賃貸マンション・アパート)

情報提供元
アットホーム
クレセントプラザ笹塚
賃料 12万円  (管理費等:15000円)
礼金・敷金 なし / なし 保証金/敷引・償却 なし / -
交通
所在地 東京都渋谷区笹塚1丁目周辺地図
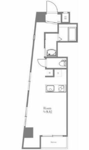
間取り ワンルーム 専有面積 30.69m2
築年月 1984年3月 築年数 築41年10ヶ月
おすすめポイント
分譲タイプ・24時間換気システム・保証人不要/代行 ・初期費用カード決済可

詳細情報

賃料 12万円 管理費等 15000円
敷金 なし 礼金 なし
保証金 なし 敷引・償却 -
更新料 新賃料の1ヶ月分 契約期間 2年
カード決済 初期費用カード決済可
所在地 東京都渋谷区笹塚1丁目周辺地図
交通
建物名 クレセントプラザ笹塚 
間取り ワンルーム 築年月(築年数) 1984年3月(築41年10ヶ月)
専有面積 30.69㎡ 所在階/階数 6階/地上10階地下1階建
建物構造 RC  方位  
現況 空  駐車場 無    近くの駐車場を探す
入居可能時期 相談 住宅保険 あり 2年 20000円
情報提供元 アットホーム[1187116502] 情報公開日
情報更新日 - 次回更新予定日 随時

設備など

2階以上 最上階 - 角部屋 -
駐車場(近隣含) - エアコン付き バス・トイレ別
室内洗濯機置き場 追焚機能 - オートロック付き -
モニタ付インターホン - フローリング バルコニー
ガスコンロ可 - 浴室乾燥機 24時間セキュリティ -
宅配ボックス - ペット相談可 - 二人入居可 -
設備 エアコン・バルコニー・バス・トイレ別・洗濯機置場・室内洗濯機置き場・エレベーター・フローリング・浴室乾燥機・温水洗浄便座・システムキッチン・駐輪場・洗面所独立・インターネット対応 
リフォーム履歴 -
リノベーション履歴 -
備考 当物件は「住まいのリライフ」で取り扱っております。リライフは首都圏25店舗のネットワークで豊富な物件情報をお客様へご提供します。当物件に類似した未公開物件なども合わせてご提案可能です。お気軽にお問合せください。違約金有:1年未満:賃料2ヶ月分更新事務費用:1.65万円/駆けつけサポート24:1.65万円/入居時抗菌費用:1.32万円入居時期相談内容:詳細はお問い合わせください。・賃貸保証等:加入要(原則:初回50%~)・鍵交換代:あり33,000円~・当物件はオンラインまたはお近くの店舗でご相談お申込を承ります・駐輪場:有/事務手数料 11000円/24時間サポート 16500円/室内抗菌費用 13200円 
特記事項 分譲タイプ・24時間換気システム・保証人不要/代行 ・初期費用カード決済可

省エネ性能

エネルギー消費性能 -
断熱性能 -
目安光熱費 -

東京都渋谷区笹塚1丁目 周辺地図情報

地図
※地図上に表示される物件の位置は付近住所に所在することを表すものであり、実際の物件所在地とは異なる場合がございます。
   正確な物件所在地は、取扱い不動産会社にお問い合わせください。
アピールポイント
室内見学承ります・お客様のご都合に合わせてオンラインまたはお近くの店舗でご提案可・初期費用分割払い可・クレジットカード利用可・引越業者割引・初期費用のお見積や入居日のご相談もお気軽にお問合せください

不動産会社情報

お問い合わせ先 商号:(株)リライフ 下北沢店
免許番号:国土交通大臣免許(1)第10792号
所在地:世田谷区北沢2丁目25-18サンティエアイリス2階
TEL:03-6372-7812
取引態様:仲介
管理コード:s200001b71215r450267
所属協会など:(公社)東京都宅地建物取引業協会会員、(公社)首都圏不動産公正取引協議会加盟
共有する
QRコード

    渋谷区の暮らしデータ

    人口などの統計情報

    世帯数 149856世帯
    人口総数 230609人
    転入者数 24064人
    転入率(人口1000人当たり)
    104.35人
    転出者数 22282人
    転出率(人口1000人当たり)
    96.62人
    土地平均価格
    住宅地
    1394400円/m2
    商業地
    6619444円/m2

    結婚・育児の助成金

    子育て関連の独自の取り組み (1)待機児解消のため区立保育室を2ヶ所設置。(2)認可外保育施設に待機児専用の受入枠を23名分確保。(3)スマートフォンアプリ「LINE」を活用した子育て情報の配信サービス。(4)渋谷区子育てネウボラ事業。妊娠から出産そして子育てまでの切れ目のない支援を行う、フィンランド発祥の出産・子育て支援の場「ネウボラ」にならい、それらの支援機能を担う関係所管を「渋谷区子育てネウボラ」に集約。保健師をはじめとするさまざまな専門職員や関係職員が連携して、妊娠、出産、子育て期のさまざまな悩み、不安等の相談に応じたり、健診を行ったり、地域のみんなで子育てをする場として設けている。
    出産祝い あり
    公立保育所数 18所(うち0歳児保育を実施している保育所:13所)
    私立保育所数 39所(うち0歳児保育を実施している保育所:30所)
    保育所入所待機児童数 0人
    認定こども園数 11園 預かり保育実施園数 公立:5園 私立:13園
    学校給食 【小学校】完全給食【中学校】完全給食
    公立中学校の学校選択制 実施(選択希望制)
    子ども・学生等医療費助成<通院>対象年齢 18歳3月末まで 子ども・学生等医療費助成<入院>対象年齢 18歳3月末まで

    渋谷区の治安・ごみ収集情報

    公共料金・インフラ

    ガス料金(22m3使用した場合の月額) 東京瓦斯株式会社(東京地区等)3926円
    水道料金(口径20mmで20m3の月額) 東京都水道局2816円
    下水道料金(20m3を使用した場合の月額) 東京都下水道局2068円
    下水道普及率 100.0%

    安心・安全

    建物火災出火件数 110件
    人口10000人当たり
    4.51件
    刑法犯認知件数 3388件
    人口1000人当たり
    13.89件
    ハザード・防災マップ あり

    医療

    一般病院総数 15ヶ所
    一般診療所総数 722ヶ所
    小児科医師数 70人
    小児人口10000人当たり
    29.57人
    産婦人科医師数 68人
    15~49歳女性人口1万人当たり
    11.68人
    介護保険料基準額(月額) 6170円

    ごみ

    家庭ごみ収集(可燃ごみ) 無料
    備考
    可燃ごみ・不燃ごみ・資源のうち、一時大量排出については有料。
    家庭ごみの分別方式 3分別13種〔可燃ごみ 不燃ごみ(金属類、割れ物・刃物などの危険物、ライター) 資源(新聞、雑誌、段ボール、びん、缶、ペットボトル、スプレー缶・カセットボンベ、蛍光管、プラスチック)〕 拠点回収:小型家電 衣類 紙パック 食品用発泡スチロールトレイ 食用油 おもちゃ 食器・調理器具 集団回収:新聞 雑誌 段ボール 紙パック 布類 びん 缶 ペットボトル
    家庭ごみの戸別収集 一部実施
    粗大ごみ収集 あり
    備考
    事前申込制(一辺の長さが30cmを超えるもの)。
    生ごみ処理機助成金制度 あり
    上限金額
    20000円
    上限比率
    50.0%
    暮らしデータ提供元:生活ガイド.com
    ※行政機関により公表していない地域及びデータがございます。東京23区以外の政令指定都市は、市全体のデータとして表示しています。
    ※提供データには細心の注意を払っておりますが、調査後に変更がある場合があります。 最新の情報につきましては各市区役所までお問い合わせいただくか、自治体HPなどをご確認ください。
    OCN×ドコモ光新規お申込みで合計最大137,280円相当おトク!特典の内訳・適用条件など詳細はこちら

    渋谷区内の各駅の住みやすさ

    他のエリアから探す

    渋谷区の詳細地域から賃貸物件を探す

    上原鶯谷町宇田川町恵比寿恵比寿西恵比寿南大山町神山町桜丘町笹塚猿楽町渋谷松濤神泉町神宮前神南千駄ヶ谷代官山町富ヶ谷道玄坂南平台町西原幡ヶ谷鉢山町初台広尾本町円山町元代々木町代々木

    近辺の市区から探す

    千代田区中央区港区新宿区文京区台東区墨田区江東区品川区目黒区大田区世田谷区中野区杉並区豊島区北区荒川区板橋区練馬区三鷹市狛江市川崎市中原区川崎市高津区

    周辺の駅から探す

    京王電鉄京王線
    新宿初台幡ヶ谷笹塚代田橋明大前下高井戸桜上水
    小田急電鉄小田原線
    参宮橋代々木八幡代々木上原東北沢下北沢世田谷代田梅ヶ丘豪徳寺経堂

    マンションライブラリーを見る

    クレセントプラザ笹塚

    東京都渋谷区で他のジャンルから探す


    掲載情報の著作権は提供元企業等に帰属します。
    Copyright:(C) 2025 At Home Co.,Ltd
    アプリで簡単 物件探し 大手不動産サイトの情報から一括検!プッシュ通知で物件を見逃さない
    App Storeからダウンロード Google Playで手に入れよう QRコード