アプリで簡単 物件探し 通知 共有 アプリならではの機能を使ってみる
中古マンション

小金井ハイツ 3階 2LDK

情報提供元
SUUMO
小金井ハイツ 住む人を映し出す洗練された佇まいは、いつまでも輝き続けながらいつしか街の風景に溶け込んでいきます。
価格 3180万円  (管理費等:7000円/月(委託(巡回)))
修繕積立金 12,300円
交通
所在地 東京都小金井市本町4周辺地図
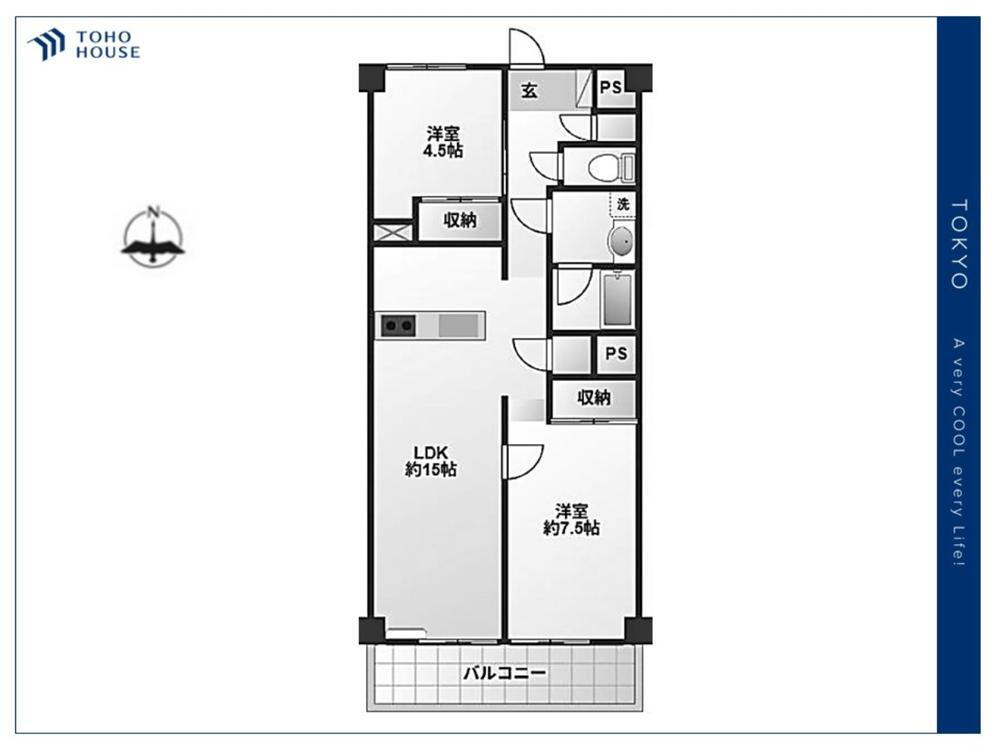
間取り 2LDK 専有面積 61.42m2(壁芯)
所在階/階数 3階/7階建 方位
築年月 1970年11月 築年数 築55年
おすすめポイント
□□ A very COOL every LIFE ! □□ご購入後の「おウチ」と「お金」のご相談窓口をご用意しております!・金利上昇時のリスクヘッジ、借換え相談、繰上返済のタイミング、各種保険の見直し・・・etc・おウチの設備保証や定期点検、駆け付けサービス・・・etcまずはお気軽に現地をご覧下さいませ。物件の詳細について、ご見学希望のお客様は下記番号までお気軽にご連絡下さい。お問い合わせ専用フリーダイヤル :0120-135-004
ペット相談可・日当り良好・閑静な住宅街・管理人巡回
お問い合わせ先
東宝ハウスライフソリューションズグループ(株)東宝ハウス練馬
物件を見たい、物件や住環境の詳しい情報やローン相談など、
お問い合わせ先
東宝ハウスライフソリューションズグループ(株)東宝ハウス練馬

詳細情報

価格 3180万円 管理費等 7000円/月(委託(巡回))
駐車場   修繕積立金 12,300円
所在地 東京都小金井市本町4周辺地図
交通
  • JR中央線 武蔵小金井駅 徒歩8分乗換案内
  • JR中央線 東小金井駅 徒歩24分乗換案内
  • 西武多摩川線 新小金井駅 徒歩3.2km乗換案内
物件名 小金井ハイツ
築年月(築年数) 1970年11月(築55年) 間取り 2LDK
総戸数 56戸 専有面積 61.42m2(壁芯)
所在階/階数 3階/7階建 バルコニー面積 6.3m2
方位 建物構造 RC
管理形態 委託管理
維持費等 土地権利 所有権
用途地域 借地期間・地代
現況 引渡可能年月 即時
情報提供元 SUUMO [030Z78672338] 情報公開日
情報更新日 次回更新予定日 随時

設備など

ペット相談可 即入居可 南向き
角部屋 - 駐車場空き有り - トランクルーム -
オートロック - 宅配ボックス - 浴室乾燥機
床暖房 - ウォークインクローゼット - 管理人常駐 -
最上階 - 2階以上 タワーマンション -
設備 バルコニー・トイレ・収納スペース・洗面所・エレベーター・浴室乾燥機・シャンプードレッサ・温水洗浄便座・システムキッチン・モニタ付インターホン・風呂・対面K・浄水器・衣類乾燥機・リフォーム・駐輪場
リフォーム履歴 2025年10月完了予定
 水回り設備交換:キッチン・浴室・トイレ
 内装リフォーム:壁・床・全室
※年月は一番古いリフォーム箇所を表します
リノベーション履歴 -
備考 <物件名>小金井ハイツ/委託(巡回)/<土地権利>所有権の共有/<間取り>2LDK/<リフォーム>●リフォーム:2025年10月完了予定(水回り設備交換:キッチン・浴室・トイレ、内装リフォーム:壁・床・全室)※年月は一番古いリフォーム箇所を表します/<特徴>商業施設が充実した人気駅から徒歩8分。住んでみたい街!、即引渡可・スーパー 徒歩10分以内・市街地が近い・内装リフォーム・南向き
販売戸数:1戸/管理費等帯:7000円/修繕積立金帯:12300円
特記事項 ペット相談可・日当り良好・閑静な住宅街・管理人巡回

省エネ性能

エネルギー消費性能 -
断熱性能 -
目安光熱費 -

東京都小金井市本町4 周辺地図情報

地図
※地図上に表示される物件の位置は付近住所に所在することを表すものであり、実際の物件所在地とは異なる場合がございます。
   正確な物件所在地は、取扱い不動産会社にお問い合わせください。
物件を見たい、物件や住環境の詳しい情報やローン相談など、
お問い合わせ先
東宝ハウスライフソリューションズグループ(株)東宝ハウス練馬

不動産会社情報

お問い合わせ先 商号:東宝ハウスライフソリューションズグループ(株)東宝ハウス練馬
免許番号:東京都知事(2)第098694号
所在地:東京都練馬区東大泉1-27-22 光和ビル2F
TEL:0120-135004
取引態様:媒介
管理コード:4課
共有する
QRコード
物件を見たい、物件や住環境の詳しい情報やローン相談など、
お問い合わせ先
東宝ハウスライフソリューションズグループ(株)東宝ハウス練馬

小金井市の暮らしデータ

人口などの統計情報

世帯数 63140世帯
人口総数 124614人
転入者数 8366人
転入率(人口1000人当たり)
67.14人
転出者数 8391人
転出率(人口1000人当たり)
67.34人
土地平均価格
住宅地
367000円/m2
商業地
1155000円/m2

結婚・育児の助成金

子育て関連の独自の取り組み (1)愛育手当(公的補助のない無認可幼児教育・保育施設に在籍している3~5歳児が対象)。(2)小金井教育の日(PTAとの合同実施)。(3)読書感想文コンクール。(4)オーケストラ鑑賞教室(小学校6年生)、合唱鑑賞教室(中学校2年生)。(5)移動式赤ちゃん休憩室(ベビーテント)貸出事業。(6)子どもの権利条例の制定と子どもオンブズパーソンの設置。
出産祝い なし
公立保育所数 5所(うち0歳児保育を実施している保育所:3所)
私立保育所数 39所(うち0歳児保育を実施している保育所:35所)
保育所入所待機児童数 0人
認定こども園数 1園 預かり保育実施園数 公立:- 私立:5園
学校給食 【小学校】完全給食【中学校】完全給食
公立中学校の学校選択制 未実施
子ども・学生等医療費助成<通院>対象年齢 18歳3月末まで 子ども・学生等医療費助成<入院>対象年齢 18歳3月末まで

小金井市の治安・ごみ収集情報

公共料金・インフラ

ガス料金(22m3使用した場合の月額) 東京瓦斯株式会社(東京地区等)3926円
水道料金(口径20mmで20m3の月額) 東京都水道局2816円
下水道料金(20m3を使用した場合の月額) 小金井市1309円
下水道普及率 100.0%

安心・安全

建物火災出火件数 26件
人口10000人当たり
2.06件
刑法犯認知件数 568件
人口1000人当たり
4.51件
ハザード・防災マップ あり

医療

一般病院総数 4ヶ所
一般診療所総数 94ヶ所
小児科医師数 18人
小児人口10000人当たり
11.48人
産婦人科医師数 8人
15~49歳女性人口1万人当たり
2.89人
介護保険料基準額(月額) 6400円

ごみ

家庭ごみ収集(可燃ごみ) 有料
備考
資源物・枝木・雑草類・落ち葉、おむつ等は無料。
家庭ごみの分別方式 12分別17種〔可燃ごみ 不燃ごみ プラスチックごみ ビン スプレー缶 ペットボトル 空き缶 金属 古紙(雑紙、新聞、雑誌、段ボール、紙パック、シュレッダー紙) 布 有害ごみ 枝木・雑草類・落ち葉〕
家庭ごみの戸別収集 実施
粗大ごみ収集 あり
備考
有料。事前申込制。粗大ごみ処理券(シール)を購入。生活保護受給世帯は手数料免除。り災ごみは手数料一部減免。
生ごみ処理機助成金制度 あり
上限金額
30000円
上限比率
50.0%

小金井市の住まいの給付金

中古購入

利子補給制度 なし
補助/助成金制度 なし

増築・改築・改修

利子補給制度 なし
補助/助成金制度 あり
上限金額
60万円
備考
【木造住宅耐震改修助成金】木造住宅耐震診断を行った結果、総合評点が1.0未満と判定された住宅を1.0以上となるよう耐震改修を行う場合に、費用の一部を助成。現に居住の用に供されている住宅の所有者が対象。耐震改修に要した費用の1/2以内の額(上限60万円)を助成。
暮らしデータ提供元:生活ガイド.com
※行政機関により公表していない地域及びデータがございます。東京23区以外の政令指定都市は、市全体のデータとして表示しています。
※提供データには細心の注意を払っておりますが、調査後に変更がある場合があります。 最新の情報につきましては各市区役所までお問い合わせいただくか、自治体HPなどをご確認ください。

この物件を見た人はこんな物件も見ています

OCN×ドコモ光新規お申込みで合計最大137,280円相当おトク!特典の内訳・適用条件など詳細はこちら

小金井市内の各駅の住みやすさ

住宅ローンの返済額一覧

物件価格 3180万円に対して、年率 で、頭金 の場合
↓ボーナス 35年間 30年間 25年間 20年間 15年間 10年間
0万円 69,568円/月 80,182円/月 95,051円/月 117,366円/月 154,573円/月 229,009円/月
5万円 60,483円/月 71,207円/月 86,184円/月 108,607円/月 145,921円/月 220,464円/月
10万円 51,397円/月 62,231円/月 77,318円/月 99,848円/月 137,270円/月 211,919円/月
15万円 42,312円/月 53,255円/月 68,451円/月 91,090円/月 128,618円/月 203,374円/月
20万円 ローン不可 44,280円/月 59,584円/月 82,331円/月 119,967円/月 194,829円/月
25万円 ローン不可 ローン不可 50,717円/月 73,572円/月 111,315円/月 186,284円/月
30万円 ローン不可 ローン不可 ローン不可 64,814円/月 102,664円/月 177,738円/月
支払い利息合計 2,429,620円~ 2,078,240円~ 1,728,200円~ 1,380,320円~ 1,032,470円~ 687,300円~
※元利均等返済方式で試算しています。 「円」の単位以下の端数金額は「切り捨て」として計算しております。
※金利は、固定金利として計算しております。
※上記の住宅ローン返済額一覧は、あくまで試算であり、将来の金利動向により、実際のご返済額とは異なります。
※ボーナス支払総額が総支払額の50%を超えている場合、上記の表では「ローン不可」となります。
※住宅ローン返済額一覧の数値は、住宅ローンのお申し込みやご融資をお約束するものではございません。
物件を見たい、物件や住環境の詳しい情報やローン相談など、
お問い合わせ先
東宝ハウスライフソリューションズグループ(株)東宝ハウス練馬

掲載情報の著作権は提供元企業等に帰属します。
Copyright:(C) 2025 Recruit Co., Ltd.
アプリで簡単 物件探し 大手不動産サイトの情報から一括検!プッシュ通知で物件を見逃さない
App Storeからダウンロード Google Playで手に入れよう QRコード