アプリで簡単 物件探し 通知 共有 アプリならではの機能を使ってみる
中古マンション

アーデル両国 2階 3LDK

情報提供元
SUUMO
アーデル両国 【現況】<BR>飽きのこないシンプルモダンな外観です。
価格 9480万円  (管理費等:1万4300円/月(委託(通勤)))
修繕積立金 18,300円
交通
所在地 東京都墨田区緑1周辺地図
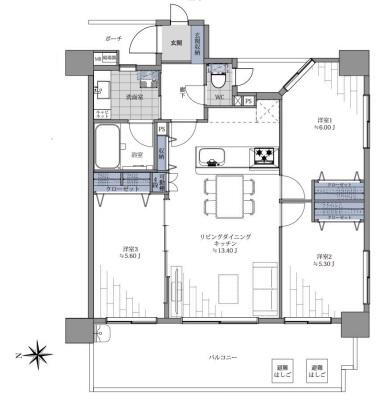
間取り 3LDK 専有面積 70.03m2(壁芯)
所在階/階数 2階/11階建 方位 西
築年月 2006年2月 築年数 築19年9ヶ月
おすすめポイント
『口が上手い営業マンに押し売りされたくない!』『大きなお買い物だから失敗したくない!』『資格の有る専門の人に相談したい!』◆不動産売買専門、実績・経験多数の有資格者のエージェントが、お客様お一人お一人のお考えを大切にします。■頭金0円からのご購入可能です■(諸費用もOK)【東宝ハウス東京】提携住宅ローン 下記が全て付帯(金利上乗せ無し)(1) 【がん団体生命保険】(2) 【金消契約時の印紙代不要】【ガン100%保障団信】+【全疾病保障】 ※金融機関との提携で驚きの低金利と保障を実現しました。
ペット相談可・日当り良好・閑静な住宅街・バリアフリー・角部屋・管理人日勤・24時間ゴミ出し可・瑕疵保証(不動産会社独自)・フラット35S適合
お問い合わせ先
東宝ハウスライフソリューションズグループ(株)東宝ハウス東京3課
物件を見たい、物件や住環境の詳しい情報やローン相談など、
お問い合わせ先
東宝ハウスライフソリューションズグループ(株)東宝ハウス東京3課

詳細情報

価格 9480万円 管理費等 1万4300円/月(委託(通勤))
駐車場 敷地内(2万9000円~3万2000円/月) 修繕積立金 18,300円
所在地 東京都墨田区緑1周辺地図
交通
物件名 アーデル両国
築年月(築年数) 2006年2月(築19年9ヶ月) 間取り 3LDK
総戸数 29戸 専有面積 70.03m2(壁芯)
所在階/階数 2階/11階建 バルコニー面積 16.85m2
方位 西 建物構造 RC
管理形態 委託管理
維持費等 町会費500円 土地権利 所有権
用途地域 借地期間・地代
現況 引渡可能年月 相談
情報提供元 SUUMO [030Z78648752] 情報公開日
情報更新日 次回更新予定日 随時

設備など

ペット相談可 即入居可 - 南向き -
角部屋 駐車場空き有り トランクルーム -
オートロック - 宅配ボックス 浴室乾燥機
床暖房 - ウォークインクローゼット - 管理人常駐 -
最上階 - 2階以上 タワーマンション -
設備 バルコニー・トイレ・収納スペース・洗面所・エレベーター・管理人日勤・浴室乾燥機・シャンプードレッサ・温水洗浄便座・システムキッチン・モニタ付インターホン・風呂・対面K・浄水器・衣類乾燥機・食器洗浄乾燥機・リフォーム・省エネ給湯器・高速ネット対応・宅配BOX・リノベーション
リフォーム履歴 2026年1月完了予定
 水回り設備交換:キッチン・浴室・トイレ
 内装リフォーム:壁・床
※年月は一番古いリフォーム箇所を表します
リノベーション履歴 -
備考 <物件名>アーデル両国/<駐車場>敷地内/委託(日勤)/<土地権利>所有権の共有/<間取り>3LDK/<リフォーム>●リフォーム:2026年1月完了予定(水回り設備交換:キッチン・浴室・トイレ、内装リフォーム:壁・床)※年月は一番古いリフォーム箇所を表します/<特徴>≪いまからのご見学可能です≫ご自宅送迎によるご来店・ご内覧サービス実施中、耐震基準適合証明書・建築確認完了検査済証・瑕疵保証付(不動産会社独自)・フラット35・S適合証明書・修繕・点検の記録
販売戸数:1戸/管理費等帯:14300円/修繕積立金帯:18300円
特記事項 ペット相談可・日当り良好・閑静な住宅街・バリアフリー・角部屋・管理人日勤・24時間ゴミ出し可・瑕疵保証(不動産会社独自)・フラット35S適合

省エネ性能

エネルギー消費性能 -
断熱性能 -
目安光熱費 -

東京都墨田区緑1 周辺地図情報

地図
※地図上に表示される物件の位置は付近住所に所在することを表すものであり、実際の物件所在地とは異なる場合がございます。
   正確な物件所在地は、取扱い不動産会社にお問い合わせください。
物件を見たい、物件や住環境の詳しい情報やローン相談など、
お問い合わせ先
東宝ハウスライフソリューションズグループ(株)東宝ハウス東京3課

不動産会社情報

お問い合わせ先 商号:東宝ハウスライフソリューションズグループ(株)東宝ハウス東京3課
免許番号:東京都知事(1)第112286号
所在地:東京都中央区八重洲1-5-17
TEL:0120-104403
取引態様:媒介
共有する
QRコード
物件を見たい、物件や住環境の詳しい情報やローン相談など、
お問い合わせ先
東宝ハウスライフソリューションズグループ(株)東宝ハウス東京3課

墨田区の暮らしデータ

人口などの統計情報

世帯数 145609世帯
人口総数 284555人
転入者数 28109人
転入率(人口1000人当たり)
98.78人
転出者数 22671人
転出率(人口1000人当たり)
79.67人
土地平均価格
住宅地
501800円/m2
商業地
808000円/m2

結婚・育児の助成金

子育て関連の独自の取り組み (1)保護者等の急な残業等の場合に、1時間単位で利用を承認する「スポット延長保育」を実施。(2)子育て安心ステーション事業の実施(地域の保育園等が、育児相談や保育園見学・体験等を行う)。(3)墨田区公式LINEから各種子育て情報を発信する。(4)MR定期接種の機会を逃した方へMR任意接種の費用を全額助成(高校3年生相当年齢まで)。(5)骨髄移植手術等により既に接種済みの定期予防接種の効果が期待できず再接種が必要と医師に判断され、再接種を受ける場合の再接種費用を助成。(6)1歳以上就学前の子へ、おたふくかぜ任意予防接種費用の一部(3,000円)を助成。(7)生後6ヶ月から15歳の子へ、インフルエンザ予防接種費用の一部(最大2,000円)を助成。
出産祝い あり
公立保育所数 23所(うち0歳児保育を実施している保育所:12所)
私立保育所数 56所(うち0歳児保育を実施している保育所:52所)
保育所入所待機児童数 8人
認定こども園数 4園 預かり保育実施園数 公立:0園 私立:8園
学校給食 【小学校】完全給食【中学校】完全給食
公立中学校の学校選択制 実施
子ども・学生等医療費助成<通院>対象年齢 18歳3月末まで 子ども・学生等医療費助成<入院>対象年齢 18歳3月末まで

墨田区の治安・ごみ収集情報

公共料金・インフラ

ガス料金(22m3使用した場合の月額) 東京瓦斯株式会社(東京地区等)3926円
水道料金(口径20mmで20m3の月額) 東京都水道局2816円
下水道料金(20m3を使用した場合の月額) 東京都下水道局2068円
下水道普及率 100.0%

安心・安全

建物火災出火件数 72件
人口10000人当たり
2.65件
刑法犯認知件数 2137件
人口1000人当たり
7.85件
ハザード・防災マップ あり

医療

一般病院総数 13ヶ所
一般診療所総数 245ヶ所
小児科医師数 85人
小児人口10000人当たり
30.84人
産婦人科医師数 40人
15~49歳女性人口1万人当たり
5.64人
介護保険料基準額(月額) 6600円

ごみ

家庭ごみ収集(可燃ごみ) 無料
備考
一度に排出されるごみが45リットルごみ袋5袋までは、無料。
家庭ごみの分別方式 3分別11種〔可燃ごみ 不燃ごみ 資源物(新聞、段ボール、紙パック、雑誌、雑がみ、缶、びん、ペットボトル、プラスチック)〕 拠点回収:廃食油 乾電池 使用済小型家電 歯ブラシ ペットボトルキャップ
家庭ごみの戸別収集 一部実施(【ふれあい収集】一部地域のみ実施)
粗大ごみ収集 あり
備考
有料。事前申込制。高齢者等に一部運び出しのサービスあり。
生ごみ処理機助成金制度 なし
上限金額
-
上限比率
-

墨田区の住まいの給付金

中古購入

利子補給制度 あり
上限金額
50万円
備考
【すみだ住宅取得利子補助制度】区内の住宅を取得した中学生以下の子どもがいる子育て世帯及び夫婦いずれもが40歳未満の若年夫婦世帯を対象に、住宅ローンの利子の一部を年間10万円を上限に5年間で最大50万円補助。条件あり。条件あり。
補助/助成金制度 なし

増築・改築・改修

利子補給制度 なし
補助/助成金制度 あり
上限金額
(1)170万円(2)160万円
備考
(1)【木造住宅耐震改修促進助成】1981年5月31日以前に着工の木造住宅耐震改修費用の1/2~3/4、上限60~150万円。高齢者等の居住又は福祉住宅改修助成事業併用等で助成率5/6、上限100~170万円。(2)【防火・耐震化改修促進助成】防火・耐震化改修促進区域において防火性能と耐震性能を向上させる改修工事に上限100万円の助成。特定区域で防火・耐震化改修は30万円、特定区域内で隣接する建物が同時に協調し防災上の配慮された改修を行う場合30万円加算。
暮らしデータ提供元:生活ガイド.com
※行政機関により公表していない地域及びデータがございます。東京23区以外の政令指定都市は、市全体のデータとして表示しています。
※提供データには細心の注意を払っておりますが、調査後に変更がある場合があります。 最新の情報につきましては各市区役所までお問い合わせいただくか、自治体HPなどをご確認ください。

この物件を見た人はこんな物件も見ています

OCN×ドコモ光新規お申込みで合計最大137,280円相当おトク!特典の内訳・適用条件など詳細はこちら

墨田区内の各駅の住みやすさ

住宅ローンの返済額一覧

物件価格 9480万円に対して、年率 で、頭金 の場合
↓ボーナス 35年間 30年間 25年間 20年間 15年間 10年間
0万円 233,107円/月 268,672円/月 318,493円/月 393,264円/月 517,934円/月 767,353円/月
5万円 224,022円/月 259,696円/月 309,626円/月 384,505円/月 509,283円/月 758,808円/月
10万円 214,936円/月 250,720円/月 300,760円/月 375,747円/月 500,631円/月 750,263円/月
15万円 205,851円/月 241,745円/月 291,893円/月 366,988円/月 491,980円/月 741,718円/月
20万円 196,765円/月 232,769円/月 283,026円/月 358,229円/月 483,329円/月 733,172円/月
25万円 187,680円/月 223,793円/月 274,159円/月 349,471円/月 474,677円/月 724,627円/月
30万円 178,594円/月 214,818円/月 265,293円/月 340,712円/月 466,026円/月 716,082円/月
支払い利息合計 8,126,710円~ 6,940,640円~ 5,763,600円~ 4,595,840円~ 3,437,630円~ 2,288,580円~
※元利均等返済方式で試算しています。 「円」の単位以下の端数金額は「切り捨て」として計算しております。
※金利は、固定金利として計算しております。
※上記の住宅ローン返済額一覧は、あくまで試算であり、将来の金利動向により、実際のご返済額とは異なります。
※ボーナス支払総額が総支払額の50%を超えている場合、上記の表では「ローン不可」となります。
※住宅ローン返済額一覧の数値は、住宅ローンのお申し込みやご融資をお約束するものではございません。
物件を見たい、物件や住環境の詳しい情報やローン相談など、
お問い合わせ先
東宝ハウスライフソリューションズグループ(株)東宝ハウス東京3課

掲載情報の著作権は提供元企業等に帰属します。
Copyright:(C) 2025 Recruit Co., Ltd.
アプリで簡単 物件探し 大手不動産サイトの情報から一括検!プッシュ通知で物件を見逃さない
App Storeからダウンロード Google Playで手に入れよう QRコード