アプリで簡単 物件探し 通知 共有 アプリならではの機能を使ってみる
中古マンション

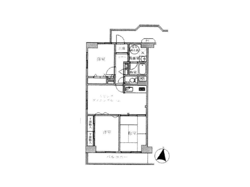
川越サンハイツ 9階 3LDK

情報提供元
SUUMO
川越サンハイツ 3LDK、価格2350万円、専有面積64.41m<sup>2</sup>、バルコニー面積6.93m<sup>2</sup>
価格 2350万円  (管理費等:1万775円/月(委託(常駐)))
修繕積立金 15,210円
交通
所在地 埼玉県川越市仲町周辺地図
間取り 3LDK 専有面積 64.41m2(壁芯)
所在階/階数 9階/11階建 方位 南西
築年月 1980年4月 築年数 築45年7ヶ月
おすすめポイント
◆◇◆◇◆◇◆◇◆◇◆◇◆◇令和6年大規模修繕工事実施令和2年室内全面リフォーム済◆◇◆◇◆◇◆◇◆◇◆◇◆◇詳細はお気軽にお問い合わせください!!
管理人常駐

詳細情報

価格 2350万円 管理費等 1万775円/月(委託(常駐))
駐車場 空無 修繕積立金 15,210円
所在地 埼玉県川越市仲町周辺地図
交通
物件名 川越サンハイツ
築年月(築年数) 1980年4月(築45年7ヶ月) 間取り 3LDK
総戸数 76戸 専有面積 64.41m2(壁芯)
所在階/階数 9階/11階建 バルコニー面積 6.93m2
方位 南西 建物構造 SRC
管理形態 委託管理
維持費等 自治会費600円 土地権利 所有権
用途地域 商業地域 借地期間・地代
現況 引渡可能年月 即時
情報提供元 SUUMO [030Z78563814] 情報公開日
情報更新日 次回更新予定日 随時

設備など

ペット相談可 - 即入居可 南向き -
角部屋 - 駐車場空き有り - トランクルーム -
オートロック - 宅配ボックス - 浴室乾燥機 -
床暖房 - ウォークインクローゼット - 管理人常駐
最上階 - 2階以上 タワーマンション -
設備 トイレ・管理人常駐・温水洗浄便座・リフォーム
リフォーム履歴 2020年1月内装リフォーム完了
リノベーション履歴 -
備考 <物件名>川越サンハイツ/<駐車場>空無/委託(常駐)/<土地権利>所有権/<間取り>3LDK/<リフォーム>●リフォーム:2020年1月内装リフォーム完了/<特徴>南西角部屋!眺望良好!!、2沿線以上利用可・市街地が近い・温水洗浄便座・南西向き
販売戸数:1戸/管理費等帯:10775円/修繕積立金帯:15210円
特記事項 管理人常駐

省エネ性能

エネルギー消費性能 -
断熱性能 -
目安光熱費 -

埼玉県川越市仲町 周辺地図情報

地図
※地図上に表示される物件の位置は付近住所に所在することを表すものであり、実際の物件所在地とは異なる場合がございます。
   正確な物件所在地は、取扱い不動産会社にお問い合わせください。
物件を見たい、物件や住環境の詳しい情報やローン相談など、
お問い合わせ先
イセトー(株)

不動産会社情報

お問い合わせ先 商号:イセトー(株)
免許番号:埼玉県知事(2)第023789号
所在地:埼玉県東松山市箭弓町1-13-15 さくらビル1階
TEL:0493-21-1000
取引態様:代理
共有する
QRコード
物件を見たい、物件や住環境の詳しい情報やローン相談など、
お問い合わせ先
イセトー(株)

川越市の暮らしデータ

人口などの統計情報

世帯数 153192世帯
人口総数 352717人
転入者数 15762人
転入率(人口1000人当たり)
44.69人
転出者数 14055人
転出率(人口1000人当たり)
39.85人
土地平均価格
住宅地
140900円/m2
商業地
376000円/m2

結婚・育児の助成金

子育て関連の独自の取り組み (1)川越市遺児手当(父母のいない15歳の年度末までのこどもを養育している方に支給)。(2)児童虐待防止SOSセンターを設置し、専門相談員が対応。(3)NPO法人との協働による子育て情報誌の発行。(4)ホームスタート(家庭訪問型子育て支援事業)。
出産祝い あり
公立保育所数 20所(うち0歳児保育を実施している保育所:19所)
私立保育所数 37所(うち0歳児保育を実施している保育所:36所)
保育所入所待機児童数 10人
認定こども園数 10園 預かり保育実施園数 公立:- 私立:21園
学校給食 【小学校】完全給食【中学校】完全給食
公立中学校の学校選択制 未実施
子ども・学生等医療費助成<通院>対象年齢 18歳3月末まで 子ども・学生等医療費助成<入院>対象年齢 18歳3月末まで

川越市の治安・ごみ収集情報

公共料金・インフラ

ガス料金(22m3使用した場合の月額) 武州瓦斯株式会社4281円
角栄ガス株式会社(川越・坂戸地区)4801円
坂戸ガス株式会社4522円
水道料金(口径20mmで20m3の月額) 川越市2288円
下水道料金(20m3を使用した場合の月額) 川越市1595円
下水道普及率 87.2%

安心・安全

建物火災出火件数 40件
人口10000人当たり
1.13件
刑法犯認知件数 2388件
人口1000人当たり
6.73件
ハザード・防災マップ あり

医療

一般病院総数 18ヶ所
一般診療所総数 220ヶ所
小児科医師数 101人
小児人口10000人当たり
24.64人
産婦人科医師数 64人
15~49歳女性人口1万人当たり
9.25人
介護保険料基準額(月額) 5830円

ごみ

家庭ごみ収集(可燃ごみ) 無料
備考
施設への自己搬入においては、50円/10kgの処理手数料が必要。ただし、50kg未満の場合は無料。
家庭ごみの分別方式 8分別13種〔可燃ごみ 不燃ごみ 有害ごみ(乾電池・水銀体温計、蛍光管等) プラスチック製容器包装 びん・かん(びん・かん、スプレー缶) ペットボトル 紙類(新聞、ダンボール、紙パック、雑紙) 布類〕
家庭ごみの戸別収集 一部実施(ごみ出しのできない高齢者世帯・一人暮らしの障害者)
粗大ごみ収集 あり
備考
有料。戸別収集。事前申込制。
生ごみ処理機助成金制度 あり
上限金額
18000円
上限比率
50.0%

川越市の住まいの給付金

中古購入

利子補給制度 なし
補助/助成金制度 なし

増築・改築・改修

利子補給制度 なし
補助/助成金制度 あり
上限金額
(1)30万円(2)5万円
備考
(1)【耐震改修補助制度】1981年5月31日以前着工のもので、その他条件を満たす建築物について、耐震改修にかかる費用の一部を補助。(2)【令和6年度川越市住宅改修補助金制度】市内に住宅を所有し、かつその住宅に居住している市民に対し、市内施工業者が行う工事の住宅改修に係る費用の一部を補助。対象となる施工費用(税抜価格)の5%(上限5万円)。他要件あり。
暮らしデータ提供元:生活ガイド.com
※行政機関により公表していない地域及びデータがございます。東京23区以外の政令指定都市は、市全体のデータとして表示しています。
※提供データには細心の注意を払っておりますが、調査後に変更がある場合があります。 最新の情報につきましては各市区役所までお問い合わせいただくか、自治体HPなどをご確認ください。

この物件を見た人はこんな物件も見ています

OCN×ドコモ光新規お申込みで合計最大137,280円相当おトク!特典の内訳・適用条件など詳細はこちら

川越市内の各駅の住みやすさ

住宅ローンの返済額一覧

物件価格 2350万円に対して、年率 で、頭金 の場合
↓ボーナス 35年間 30年間 25年間 20年間 15年間 10年間
0万円 48,023円/月 55,350円/月 65,613円/月 81,017円/月 106,701円/月 158,085円/月
5万円 38,937円/月 46,374円/月 56,747円/月 72,259円/月 98,050円/月 149,539円/月
10万円 29,852円/月 37,398円/月 47,880円/月 63,500円/月 89,398円/月 140,994円/月
15万円 ローン不可 28,423円/月 39,013円/月 54,741円/月 80,747円/月 132,449円/月
20万円 ローン不可 ローン不可 ローン不可 45,983円/月 72,095円/月 123,904円/月
25万円 ローン不可 ローン不可 ローン不可 ローン不可 63,444円/月 115,359円/月
30万円 ローン不可 ローン不可 ローン不可 ローン不可 54,792円/月 106,814円/月
支払い利息合計 1,676,870円~ 1,435,360円~ 1,191,750円~ 952,560円~ 715,510円~ 476,420円~
※元利均等返済方式で試算しています。 「円」の単位以下の端数金額は「切り捨て」として計算しております。
※金利は、固定金利として計算しております。
※上記の住宅ローン返済額一覧は、あくまで試算であり、将来の金利動向により、実際のご返済額とは異なります。
※ボーナス支払総額が総支払額の50%を超えている場合、上記の表では「ローン不可」となります。
※住宅ローン返済額一覧の数値は、住宅ローンのお申し込みやご融資をお約束するものではございません。
物件を見たい、物件や住環境の詳しい情報やローン相談など、
お問い合わせ先
イセトー(株)

掲載情報の著作権は提供元企業等に帰属します。
Copyright:(C) 2025 Recruit Co., Ltd.
アプリで簡単 物件探し 大手不動産サイトの情報から一括検!プッシュ通知で物件を見逃さない
App Storeからダウンロード Google Playで手に入れよう QRコード