アプリで簡単 物件探し 通知 共有 アプリならではの機能を使ってみる
中古住宅

東京都八王子市下恩方町 西八王子駅 中古一戸建て・中古住宅

情報提供元
LIFULL HOME'S
東京都八王子市下恩方町 西八王子駅 中古一戸建て・中古住宅
価格 1980万円
交通
所在地 東京都八王子市下恩方町周辺地図
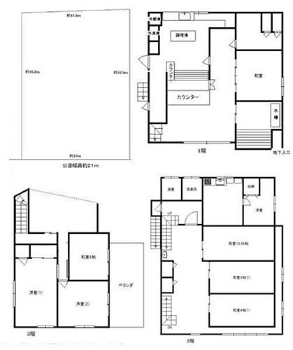
間取り 5LDK
建物面積 104.93m2 土地面積 180.59m2(公簿)
築年月 1993年9月 築年数 築32年2ヶ月
おすすめポイント
スーパーや小学校が徒歩10分圏内。子育てがしやすい住環境。キッチンなど一部内装のリフォームを実施済。
駐車場3台分以上・オール電化
物件を見たい、物件や住環境の詳しい情報やローン相談など、
お問い合わせ先
センチュリー21ココカラ

詳細情報

価格 1980万円
所在地 東京都八王子市下恩方町周辺地図
交通
  • 中央本線 西八王子駅 バス18分/「元木」バス停 停歩5分乗換案内
間取り 5LDK 築年月(築年数) 1993年9月(築32年2ヶ月)
建物面積 104.93m2 建物構造・規模 木造2階建
土地面積 180.59m2(公簿) 土地権利 所有権
私道面積 借地期間・地代
接道状況 北2.5m 一方道路 駐車場 空有 (3台) 無料
用途地域 1種低層 都市計画 市街化区域
建ぺい率/容積率 40%/80% 現況 居住中
地目 宅地 引渡可能時期 相談
情報提供元 LIFULL HOME'S [91240000473] 情報公開日
情報更新日 次回更新予定日 2025年11月9日

設備など

1種低層地域 即入居可 - 売主・代理 -
駐車2台以上 平屋 - 本下水
都市ガス - カウンターキッチン - 床暖房 -
ウォークインクローゼット - バリアフリー -
設備 リフォーム・上水道・プロパンガス・本下水・シャワー・IHクッキングヒータ・コンロ2口以上・システムキッチン・追焚機能・シャンプードレッサ・床下収納・バルコニー・温水洗浄便座・洗面所独立・クローゼット・シューズボックス・オートバス
リフォーム履歴 ■水回り
2024年09月実施
キッチン
■内装
2024年09月実施
2階和室を洋室に変更
・備考
2階和室を洋室に変更、フローリング張替
※実施年月は、施工箇所の中で最も古いものを表示しています
リノベーション履歴 -
備考 【物件周辺の生活情報】
・学校
元木小学校(407m)、恩方中学校(3,381m)
・買い物
スーパー(742m)
・その他施設
公園(1,427m)、ラーレ八王子諏訪(3,542m)
[物件コード]004102-121063、契約不適合責任免責
国土法届出:不要
述べ床面積:104.93m2/南
法令等制限:契約不適合責任免責
特記事項 駐車場3台分以上・オール電化

省エネ性能

エネルギー消費性能 -
断熱性能 -
目安光熱費 -

東京都八王子市下恩方町 周辺地図情報

地図
※地図上に表示される物件の位置は付近住所に所在することを表すものであり、実際の物件所在地とは異なる場合がございます。
   正確な物件所在地は、取扱い不動産会社にお問い合わせください。
物件を見たい、物件や住環境の詳しい情報やローン相談など、
お問い合わせ先
センチュリー21ココカラ

不動産会社情報

お問い合わせ先 商号:センチュリー21ココカラ
免許番号:東京都知事(9)第50689号
所在地:東京都八王子市寺町69
取引態様:専任媒介
管理コード:473
所属協会など:(公社)首都圏不動産公正取引協議会、(公社)東京都宅地建物取引業協会
共有する
QRコード

お電話でのお問い合わせ

電話をかける(携帯・PHS可)
お問い合わせダイヤル
通話無料0037-634-35683
営業時間 09:00~18:00 (定休日:火曜日、水曜日、GW・夏季・年末年始)
音声案内に従って数字を入力
お問い合わせ番号
98521-2972
不動産会社につながります
不動産会社のスタッフと
直接電話で話せます。
※不動産会社がお電話に出られなかった場合、株式会社LIFULLは電話会社が提供するサービスを介してお客様の発信者番号を受領後、折り返し専用の電話番号を発番してお問合せの不動産会社に通知します(お客様の発信者番号がお問合せの不動産会社に通知されることはございません)
※光IP電話、及びIP電話からはご利用になれません
※0037で始まる電話番号に携帯電話からお問合せいただいた方には、ショートメッセージ(SMS)によるお問合せ完了通知をお届けする場合があります
物件を見たい、物件や住環境の詳しい情報やローン相談など、
お問い合わせ先
センチュリー21ココカラ

八王子市の暮らしデータ

人口などの統計情報

世帯数 266549世帯
人口総数 560692人
転入者数 26354人
転入率(人口1000人当たり)
47.00人
転出者数 23488人
転出率(人口1000人当たり)
41.89人
土地平均価格
住宅地
130545円/m2
商業地
405286円/m2

結婚・育児の助成金

子育て関連の独自の取り組み (1)子育て応援サイト・妊娠・子育て支援LINE「すくすく☆メール」。(2)レンタルベビーカー。(3)学校サポーター認証制度・学校サポーター育成プログラム。(4)高尾山学園(不登校児童生徒のための小中一貫校)。(5)はちおうじっ子子育てほっとライン(妊娠出産子育て相談窓口)。(6)八王子版ネウボラ乳幼児手帳と保存のためのマイファイル配布。(7)子育て応援企業。(8)ベビーテント貸出。
出産祝い あり
公立保育所数 15所(うち0歳児保育を実施している保育所:4所)
私立保育所数 73所(うち0歳児保育を実施している保育所:70所)
保育所入所待機児童数 15人
認定こども園数 21園 預かり保育実施園数 公立:- 私立:25園
学校給食 【小学校】完全給食【中学校】完全給食
公立中学校の学校選択制 実施(新入学時、転入または転居により転校するとき)
子ども・学生等医療費助成<通院>対象年齢 18歳3月末まで 子ども・学生等医療費助成<入院>対象年齢 18歳3月末まで

八王子市の治安・ごみ収集情報

公共料金・インフラ

ガス料金(22m3使用した場合の月額) 東京瓦斯株式会社(東京地区等)3926円
水道料金(口径20mmで20m3の月額) 東京都水道局2816円
下水道料金(20m3を使用した場合の月額) 八王子市2068円
下水道普及率 99.4%

安心・安全

建物火災出火件数 98件
人口10000人当たり
1.69件
刑法犯認知件数 3197件
人口1000人当たり
5.52件
ハザード・防災マップ あり

医療

一般病院総数 28ヶ所
一般診療所総数 392ヶ所
小児科医師数 85人
小児人口10000人当たり
14.40人
産婦人科医師数 30人
15~49歳女性人口1万人当たり
2.80人
介護保険料基準額(月額) 5950円

ごみ

家庭ごみ収集(可燃ごみ) 有料
備考
可燃ごみ・不燃ごみが有料。
家庭ごみの分別方式 4分別13種〔可燃ごみ 不燃ごみ 有害ごみ 資源物(容器包装プラスチック、ペットボトル、びん、缶、紙類[新聞・チラシ、ダンボール、雑誌・雑紙、紙パック]、古着・古布、剪定枝)〕
家庭ごみの戸別収集 実施
粗大ごみ収集 あり
備考
有料。事前申込制。
生ごみ処理機助成金制度 なし
上限金額
-
上限比率
-

八王子市の住まいの給付金

中古購入

利子補給制度 なし
補助/助成金制度 なし

増築・改築・改修

利子補給制度 なし
補助/助成金制度 あり
上限金額
(1)100万円(2)15万円(3)30万円(4)5万円
備考
(1)【居住環境整備補助】補助率1/5~2/3(a)木造住宅耐震改修。上限100万円。(b)木造住宅簡易耐震改修。上限25万円。(c)耐震シェルター・防災ベッド設置。上限20万円。(d)台風対策改修。上限10万円。(e)分譲マンション止水板設置。上限50万円。(f)省エネルギー化改修。上限15万円(マンション共用部分LED化改修は上限50万円)。(g)長寿命化改修。上限5万円。(h)ワークスペース設置改修。上限10万円。(i)バリアフリー化改修。上限20万円。(2)【木造住宅耐震診断補助】補助率3/4、上限15万円。(3)【ブロック塀等撤去・新設補助】補助率5/6、上限30万円。(4)【ブロック塀診断補助】補助率1/2、上限5万円。
暮らしデータ提供元:生活ガイド.com
※行政機関により公表していない地域及びデータがございます。東京23区以外の政令指定都市は、市全体のデータとして表示しています。
※提供データには細心の注意を払っておりますが、調査後に変更がある場合があります。 最新の情報につきましては各市区役所までお問い合わせいただくか、自治体HPなどをご確認ください。

この物件を見た人はこんな物件も見ています

OCN×ドコモ光新規お申込みで合計最大137,280円相当おトク!特典の内訳・適用条件など詳細はこちら

他のエリアから探す

八王子市の詳細地域から一戸建て物件を探す

暁町石川町泉町犬目町上野町打越町宇津木町裏高尾町大塚大船町大谷町大横町大和田町小門町加住町片倉町叶谷町上壱分方町上恩方町上柚木川口町川町北野台北野町絹ケ丘清川町久保山町越野小比企町小宮町子安町左入町散田町下恩方町下柚木城山手諏訪町千人町高尾町高倉町館町丹木町台町大楽寺町寺田町寺町戸吹町中野上町中野山王中野町長沼町長房町七国楢原町南陽台西片倉西寺方町弐分方町狭間町初沢町東浅川町東中野兵衛富士見町別所堀之内本郷町本町松が谷松木丸山町みつい台緑町南浅川町南大沢みなみ野宮下町美山町めじろ台元八王子町元本郷町元横山町谷野町山田町鑓水横川町四谷町

近辺の市区から探す

立川市昭島市日野市国立市福生市武蔵村山市多摩市羽村市あきる野市西多摩郡瑞穂町西多摩郡日の出町相模原市緑区相模原市中央区

周辺の駅から探す

中央本線
立川日野豊田八王子西八王子高尾相模湖藤野

住宅ローンの返済額一覧

物件価格 1980万円に対して、年率 で、頭金 の場合
↓ボーナス 35年間 30年間 25年間 20年間 15年間 10年間
0万円 38,418円/月 44,280円/月 52,491円/月 64,814円/月 85,361円/月 126,468円/月
5万円 29,333円/月 35,304円/月 43,624円/月 56,055円/月 76,709円/月 117,922円/月
10万円 20,247円/月 26,328円/月 34,757円/月 47,296円/月 68,058円/月 109,377円/月
15万円 ローン不可 ローン不可 ローン不可 38,538円/月 59,406円/月 100,832円/月
20万円 ローン不可 ローン不可 ローン不可 ローン不可 50,755円/月 92,287円/月
25万円 ローン不可 ローン不可 ローン不可 ローン不可 ローン不可 83,742円/月
30万円 ローン不可 ローン不可 ローン不可 ローン不可 ローン不可 75,197円/月
支払い利息合計 1,342,770円~ 1,146,800円~ 952,300円~ 761,600円~ 571,190円~ 382,380円~
※元利均等返済方式で試算しています。 「円」の単位以下の端数金額は「切り捨て」として計算しております。
※金利は、固定金利として計算しております。
※上記の住宅ローン返済額一覧は、あくまで試算であり、将来の金利動向により、実際のご返済額とは異なります。
※ボーナス支払総額が総支払額の50%を超えている場合、上記の表では「ローン不可」となります。
※住宅ローン返済額一覧の数値は、住宅ローンのお申し込みやご融資をお約束するものではございません。
物件を見たい、物件や住環境の詳しい情報やローン相談など、
お問い合わせ先
センチュリー21ココカラ

掲載情報の著作権は提供元企業等に帰属します。
Copyright:(C) 2025 LIFULL Co.,Ltd.
アプリで簡単 物件探し 大手不動産サイトの情報から一括検!プッシュ通知で物件を見逃さない
App Storeからダウンロード Google Playで手に入れよう QRコード