申し訳ございません。条件にあう物件が見つかりませんでした。
再度条件を設定して、検索をしてください。
以下は「牟呂公文町と牟呂町」の物件情報を表示しています。
牟呂公文町と牟呂町の新築一戸建て・新築住宅 物件一覧
- 新築一戸建て
- 価格
- 3980万円・4030万円
- 住所
- 愛知県豊橋市牟呂町字東里
- 交通
- 豊橋鉄道渥美線 柳生橋駅 徒歩22分
名鉄名古屋本線 豊橋駅 徒歩26分
豊鉄バス 西部団地 徒歩5分
- 間取り
- 5LDK
- 建物面積
- 140.2m2~141.72m2(42.41坪~42.87坪)
- 土地面積
- 154.01m2・164.13m2(46.58坪・49.64坪)
- 総戸数
- 10戸
- おすすめポイント
- ◆広さの体感日 対象物件
◆並列3台駐車可
◆周辺商業施設充実の立地
(株)エサキホーム豊橋支店
- 新築一戸建て
- 価格
- 3998万円~4250万円
- 住所
- 愛知県豊橋市牟呂町字坂津
- 交通
- JR東海道本線 豊橋駅 バス20分/外神 停歩7分
- 間取り
- 3LDK
- 建物面積
- 97.7m2
- 土地面積
- 154.92m2~156.54m2
- 総戸数
- 3戸
- おすすめポイント
- 【ダイワハウス】区画整理地内の住宅地、家族で遊べる広いお庭が特徴
大和ハウス工業 岡崎支店 豊橋営業所
- 建築条件付土地
- 価格
- 1727万円~1893万円
土地価格のみ
- 住所
- 愛知県豊橋市牟呂公文町
- 交通
- JR東海道本線 豊橋駅 徒歩31分
豊鉄バス 公文 徒歩4分
豊橋鉄道渥美線 新豊橋駅 徒歩31分
- 間取り
- -
- 建物面積
- -
- 土地面積
- 156.53m2~158.63m247.35坪~47.98坪
- 総区画数
- 5区画
トヨタホーム名古屋(株) 豊橋南展示場
- 新築一戸建て
- 価格
- 3190万円・3350万円
- 住所
- 愛知県豊橋市牟呂町字北汐田
- 交通
- 豊橋鉄道渥美線 小池駅 徒歩32分
豊鉄バス 東脇 徒歩8分
JR東海道本線 豊橋駅 車利用 4.2km
- 間取り
- 4LDK
- 建物面積
- 100.83m2・107.67m230.50坪・32.57坪
- 土地面積
- 143.23m2・158.54m243.32坪・47.95坪
- 総戸数
- 2戸
ハウスドゥ 豊橋向山(株)夢のおてつだい
- 新築一戸建て
- 価格
- 3150万円・3200万円
- 住所
- 愛知県豊橋市牟呂町字奥山新田
- 交通
- 豊橋鉄道渥美線 柳生橋駅 徒歩35分
豊鉄バス 小浜 徒歩7分
JR東海道本線 豊橋駅 車利用 4.3km
- 間取り
- 4LDK・4LDK+S(納戸)
- 建物面積
- 96.05m2・102.26m229.05坪・30.93坪
- 土地面積
- 141.27m2・153.82m242.73坪・46.53坪
- 総戸数
- 2戸
ハウスドゥ 豊橋向山(株)夢のおてつだい
- 新築一戸建て
- 価格
- 3150万円
- 住所
- 愛知県豊橋市牟呂町字奥山新田
- 交通
- JR東海道本線 豊橋駅 バス28分/「小浜」 停歩8分
東海道新幹線 豊橋駅 車利用 3.8km
豊橋鉄道渥美線 新豊橋駅 車利用 3.8km
- 間取り
- 4LDK
- 建物面積
- 96.05m2
- 土地面積
- 141.27m2
- 総戸数
- 2戸
飯田グループホールディングス ホームトレードセンター(株)浜松営業所
- 建築条件付土地
- 価格
- 980万円
土地価格のみ
- 住所
- 愛知県豊橋市牟呂町字奥山新田
- 交通
- 豊橋鉄道渥美線 愛知大学前駅 徒歩37分
豊橋鉄道渥美線 南栄駅 徒歩37分
豊橋鉄道渥美線 高師駅 徒歩38分
- 間取り
- -
- 建物面積
- -
- 土地面積
- 136.16m2(41.18坪)(登記)
- 総区画数
- 6区画
- おすすめポイント
- 【セキスイハイム】≪土地分譲最終1区画≫見学予約で街本プレゼント!
セキスイハイム中部(株)
- 新築一戸建て
- 価格
- 3190万円・3350万円
- 住所
- 愛知県豊橋市牟呂町字北汐田
- 交通
- JR東海道本線 豊橋駅 徒歩38分
東海道新幹線 豊橋駅 徒歩38分
豊橋鉄道渥美線 新豊橋駅 徒歩38分
- 間取り
- 4LDK
- 建物面積
- 53.15m2・57.14m2
- 土地面積
- 143.23m2・158.54m2
- 総戸数
- 2戸
- おすすめポイント
- ◆即予約&本日見学&モデルルーム案内可◇飯田GHDホームトレードセンタ-
飯田グループホールディングス ホームトレードセンター(株)浜松営業所
- 新築一戸建て
- 価格
- 3998万円・4250万円
- 住所
- 愛知県豊橋市牟呂町字坂津
- 交通
- JR東海道本線 豊橋駅 車利用 2.2km
豊鉄バス 外神 徒歩7分
豊橋鉄道渥美線 柳生橋駅 車利用 3.3km
- 間取り
- 3LDK
- 建物面積
- 97.7m229.55坪
- 土地面積
- 154.92m2・156.54m246.86坪・47.35坪
- 総戸数
- 3戸
ハウスドゥ 豊橋向山(株)夢のおてつだい
- 新築一戸建て
- 価格
- 3190万円・3350万円
- 住所
- 愛知県豊橋市牟呂町字北汐田
- 交通
- 豊橋鉄道渥美線 小池駅 徒歩32分
豊鉄バス 東脇 徒歩8分
JR東海道本線 豊橋駅 車利用 3.4km
- 間取り
- 4LDK
- 建物面積
- 100.83m2・107.67m2(30.50坪・32.57坪)
- 土地面積
- 143.23m2・158.54m2(43.32坪・47.95坪)
- 総戸数
- 2戸
- おすすめポイント
- ◎長期優良住宅♪
◆汐田小・牟呂中◆子育て最適!周辺環境良好♪
ハウスドゥ 豊橋藤沢(株)夢のおてつだい
- 新築一戸建て
- 価格
- 3150万円・3200万円
- 住所
- 愛知県豊橋市牟呂町字奥山新田
- 交通
- 豊橋鉄道渥美線 柳生橋駅 徒歩35分
豊鉄バス 小浜 徒歩7分
JR東海道本線 豊橋駅 車利用 3.7km
- 間取り
- 4LDK・4LDK+S(納戸)
- 建物面積
- 96.05m2・102.26m229.05坪・30.93坪
- 土地面積
- 141.27m2・153.82m242.73坪・46.53坪
- 総戸数
- 2戸
ハウスドゥ 豊橋藤沢(株)夢のおてつだい
- 新築一戸建て
- 価格
- 3998万円・4250万円
- 住所
- 愛知県豊橋市牟呂町字坂津
- 交通
- JR東海道本線 豊橋駅 車利用 2.2km
豊鉄バス 外神 徒歩7分
豊橋鉄道渥美線 柳生橋駅 車利用 3.3km
- 間取り
- 3LDK
- 建物面積
- 97.7m229.55坪
- 土地面積
- 154.92m2・156.54m246.86坪・47.35坪
- 総戸数
- 3戸
ハウスドゥ 豊橋藤沢(株)夢のおてつだい
- 新築一戸建て
- 価格
- 3200万円
- 住所
- 愛知県豊橋市牟呂町字奥山新田
- 交通
- JR東海道本線 豊橋駅 バス28分/「小浜」 停歩8分
東海道新幹線 豊橋駅 車利用 3.8km
豊橋鉄道渥美線 新豊橋駅 車利用 3.8km
- 間取り
- 4LDK
- 建物面積
- 102.26m2
- 土地面積
- 153.82m2
- 総戸数
- 2戸
飯田グループホールディングス ホームトレードセンター(株)浜松営業所
- 新築一戸建て
- 価格
- 3350万円
- 住所
- 愛知県豊橋市牟呂町字北汐田
- 交通
- JR東海道本線 豊橋駅 徒歩38分
東海道新幹線 豊橋駅 徒歩38分
豊橋鉄道渥美線 新豊橋駅 徒歩38分
- 間取り
- 4LDK
- 建物面積
- 57.14m2
- 土地面積
- 158.54m2
- 総戸数
- 2戸
飯田グループホールディングス ホームトレードセンター(株)浜松営業所
- 新築一戸建て
- 価格
- 3190万円
- 住所
- 愛知県豊橋市牟呂町字北汐田
- 交通
- JR東海道本線 豊橋駅 徒歩38分
東海道新幹線 豊橋駅 徒歩38分
豊橋鉄道渥美線 新豊橋駅 徒歩38分
- 間取り
- 4LDK
- 建物面積
- 53.15m2
- 土地面積
- 143.23m2
- 総戸数
- 2戸
飯田グループホールディングス ホームトレードセンター(株)浜松営業所
- 建築条件付土地
- 価格
- 1620万円
土地価格のみ
- 住所
- 愛知県豊橋市牟呂公文町
- 交通
- JR東海道本線 豊橋駅 徒歩32分
名鉄名古屋本線 豊橋駅 徒歩32分
豊橋鉄道東田本線 駅前駅 徒歩37分
- 間取り
- -
- 建物面積
- -
- 土地面積
- 165.29m250.00坪
- 総区画数
- 6区画
旭化成不動産レジデンス(株)西日本・東海営業部東海営業課
- 建築条件付土地
- 価格
- 1695万円
土地価格のみ
- 住所
- 愛知県豊橋市牟呂町
- 交通
- 豊鉄バス 小向町 徒歩7分
JR東海道本線 豊橋駅 バス13分/豊鉄バス市民病院線「小向町」停 停歩7分
- 間取り
- -
- 建物面積
- -
- 土地面積
- 165.3m2(50.00坪)
- 総区画数
- 2区画
- おすすめポイント
- 【住友林業】
敷地面積約50坪×自由設計対応!
公園まで徒歩3分の立地◎
住友林業株式会社 豊橋支店
- 新築一戸建て
- 価格
- 3350万円
- 住所
- 愛知県豊橋市牟呂町字北汐田
- 交通
- 東海道本線 豊橋駅 バス8分/「東脇」バス停 停歩7分
豊橋鉄道渥美線 小池駅 徒歩32分
- 間取り
- 4LDK
- 建物面積
- 107.67m2
- 土地面積
- 158.54m2
- 総戸数
- -
- おすすめポイント
- ウォークインクローゼット等収納豊富な間取り◎広々リビングは日当たり良好
株式会社アイデムホーム 浜松店
- 新築一戸建て
- 価格
- 3190万円
- 住所
- 愛知県豊橋市牟呂町字北汐田
- 交通
- 東海道本線 豊橋駅 バス8分/「東脇」バス停 停歩7分
豊橋鉄道渥美線 小池駅 徒歩32分
- 間取り
- 4LDK
- 建物面積
- 100.83m2
- 土地面積
- 143.23m2
- 総戸数
- -
- おすすめポイント
- ウォークインクローゼット等収納豊富な間取り◎広々リビングは日当たり良好
株式会社アイデムホーム 浜松店
- 新築一戸建て
- 価格
- 3350万円
- 住所
- 愛知県豊橋市牟呂町字北汐田
- 交通
- 豊橋鉄道渥美線 小池駅 徒歩32分
豊橋鉄道渥美線 愛知大学前駅 徒歩33分
- 間取り
- 4LDK
- 建物面積
- 107.67m2
- 土地面積
- 158.54m2
- 総戸数
- -
- おすすめポイント
- \豊橋市牟呂町 新築戸建/家を売るのも買うのもハウスドゥ豊橋藤沢・向山・岩田にお任せください♪
ハウスドゥ 豊橋向山 株式会社夢のおてつだい
- 新築一戸建て
- 価格
- 3350万円
- 住所
- 愛知県豊橋市牟呂町字北汐田
- 交通
- 豊橋鉄道渥美線 小池駅 徒歩32分
豊橋鉄道渥美線 愛知大学前駅 徒歩33分
- 間取り
- 4LDK
- 建物面積
- 107.67m2
- 土地面積
- 158.54m2
- 総戸数
- -
- おすすめポイント
- \豊橋市牟呂町 新築戸建/家を売るのも買うのもハウスドゥ豊橋藤沢・向山・岩田にお任せください♪
ハウスドゥ 豊橋岩田 株式会社夢のおてつだい
- 新築一戸建て
- 価格
- 3350万円
- 住所
- 愛知県豊橋市牟呂町字北汐田
- 交通
- 豊橋鉄道渥美線 小池駅 徒歩32分
豊橋鉄道渥美線 愛知大学前駅 徒歩33分
- 間取り
- 4LDK
- 建物面積
- 107.67m2
- 土地面積
- 158.54m2
- 総戸数
- -
- おすすめポイント
- \豊橋市牟呂町 新築戸建/家を売るのも買うのもハウスドゥ豊橋藤沢・向山・岩田にお任せください♪
ハウスドゥ 豊橋藤沢 株式会社夢のおてつだい
- 新築一戸建て
- 価格
- 3190万円
- 住所
- 愛知県豊橋市牟呂町字北汐田
- 交通
- 豊橋鉄道渥美線 小池駅 徒歩32分
豊橋鉄道渥美線 愛知大学前駅 徒歩33分
- 間取り
- 4LDK
- 建物面積
- 100.83m2
- 土地面積
- 143.23m2
- 総戸数
- -
- おすすめポイント
- \豊橋市牟呂町 新築戸建/家を売るのも買うのもハウスドゥ豊橋藤沢・向山・岩田にお任せください♪
ハウスドゥ 豊橋向山 株式会社夢のおてつだい
- 新築一戸建て
- 価格
- 3190万円
- 住所
- 愛知県豊橋市牟呂町字北汐田
- 交通
- 豊橋鉄道渥美線 小池駅 徒歩32分
豊橋鉄道渥美線 愛知大学前駅 徒歩33分
- 間取り
- 4LDK
- 建物面積
- 100.83m2
- 土地面積
- 143.23m2
- 総戸数
- -
- おすすめポイント
- \豊橋市牟呂町 新築戸建/家を売るのも買うのもハウスドゥ豊橋藤沢・向山・岩田にお任せください♪
ハウスドゥ 豊橋岩田 株式会社夢のおてつだい
- 新築一戸建て
- 価格
- 3190万円
- 住所
- 愛知県豊橋市牟呂町字北汐田
- 交通
- 豊橋鉄道渥美線 小池駅 徒歩32分
豊橋鉄道渥美線 愛知大学前駅 徒歩33分
- 間取り
- 4LDK
- 建物面積
- 100.83m2
- 土地面積
- 143.23m2
- 総戸数
- -
- おすすめポイント
- \豊橋市牟呂町 新築戸建/家を売るのも買うのもハウスドゥ豊橋藤沢・向山・岩田にお任せください♪
ハウスドゥ 豊橋藤沢 株式会社夢のおてつだい
- 新築一戸建て
- 価格
- 3350万円
- 住所
- 愛知県豊橋市牟呂町字北汐田
- 交通
- 東海道本線 豊橋駅 バス13分/「東脇」バス停 停歩7分
豊橋鉄道渥美線 柳生橋駅 徒歩33分
- 間取り
- 4LDK
- 建物面積
- 107.67m2
- 土地面積
- 158.54m2
- 総戸数
- -
- おすすめポイント
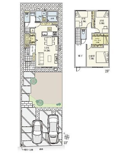
- ■2階に4部屋確保の「4LDK」■汐田小学校まで徒歩3分■主寝室にはウォークインクローゼット完備!■パントリー完備!■ランドリールーム付!■長期優良住宅■柳生川が目の前にあり、自然を身近に感じられます
家デパ豊橋店 松屋不動産販売株式会社
- 新築一戸建て
- 価格
- 3190万円
- 住所
- 愛知県豊橋市牟呂町字北汐田
- 交通
- 東海道本線 豊橋駅 バス13分/「東脇」バス停 停歩7分
豊橋鉄道渥美線 柳生橋駅 徒歩33分
- 間取り
- 4LDK
- 建物面積
- 100.83m2
- 土地面積
- 143.23m2
- 総戸数
- -
- おすすめポイント
- ■全居室収納付き「4LDK」■長期優良住宅■「耐震性」と「耐久性」を備えた安心住宅■リビング16.75帖■リビング階段■汐田小学校まで徒歩3分!■買い物施設が徒歩圏内!■バス停「東脇」まで徒歩7分!
家デパ豊橋店 松屋不動産販売株式会社
- 新築一戸建て
- 価格
- 3380万円
- 住所
- 愛知県豊橋市牟呂町字奥山新田
- 交通
- 豊橋鉄道渥美線 南栄駅 徒歩33分
豊橋鉄道渥美線 愛知大学前駅 徒歩35分
- 間取り
- 4LDK
- 建物面積
- 102.26m2
- 土地面積
- 153.82m2
- 総戸数
- -
- おすすめポイント
- 【期間限定!来店予約とローン審査された方限定♪】商品券1万円分プレゼント!(毎月先着10名様)
センチュリー21架け橋不動産豊橋店
- 新築一戸建て
- 価格
- 3280万円
- 住所
- 愛知県豊橋市牟呂町字奥山新田
- 交通
- 豊橋鉄道渥美線 南栄駅 徒歩33分
豊橋鉄道渥美線 愛知大学前駅 徒歩35分
- 間取り
- 4LDK
- 建物面積
- 96.05m2
- 土地面積
- 141.27m2
- 総戸数
- -
- おすすめポイント
- 【期間限定!来店予約とローン審査された方限定♪】商品券1万円分プレゼント!(毎月先着10名様)
センチュリー21架け橋不動産豊橋店
- 新築一戸建て
- 価格
- 3200万円
- 住所
- 愛知県豊橋市牟呂町字奥山新田
- 交通
- 東海道・山陽新幹線 豊橋駅 バス28分/「小浜」バス停 停歩8分
豊橋鉄道渥美線 愛知大学前駅 徒歩33分
- 間取り
- 4LDK
- 建物面積
- 102.26m2
- 土地面積
- 153.82m2
- 総戸数
- -
- おすすめポイント
- ◆長期優良住宅◆ウォークインクローゼット等収納豊富な間取り♪
株式会社アイデムホーム 浜松店
- 新築一戸建て
- 価格
- 3150万円
- 住所
- 愛知県豊橋市牟呂町字奥山新田
- 交通
- 東海道・山陽新幹線 豊橋駅 バス28分/「小浜」バス停 停歩8分
豊橋鉄道渥美線 愛知大学前駅 徒歩33分
- 間取り
- 4LDK
- 建物面積
- 96.05m2
- 土地面積
- 141.27m2
- 総戸数
- -
- おすすめポイント
- ◆長期優良住宅◆ウォークインクローゼット等収納豊富な間取り♪
株式会社アイデムホーム 浜松店
- 新築一戸建て
- 価格
- 3200万円
- 住所
- 愛知県豊橋市牟呂町字奥山新田
- 交通
- 東海道本線 豊橋駅 バス28分/「小浜」バス停 停歩8分
豊橋鉄道渥美線 南栄駅 徒歩32分
- 間取り
- 4SLDK
- 建物面積
- 102.26m2
- 土地面積
- 153.82m2
- 総戸数
- -
- おすすめポイント
- ■ファミリークローゼット完備の「4LDK」■シューズクローク完備で玄関スッキリ!■汐田小学校まで徒歩10分圏内!■全居室収納付き■買い物施設が徒歩圏内!■近くに複数の公園があり、お子様の遊び場に便利
家デパ豊橋店 松屋不動産販売株式会社
- 新築一戸建て
- 価格
- 3150万円
- 住所
- 愛知県豊橋市牟呂町字奥山新田
- 交通
- 東海道本線 豊橋駅 バス28分/「小浜」バス停 停歩8分
豊橋鉄道渥美線 南栄駅 徒歩32分
- 間取り
- 4LDK
- 建物面積
- 96.05m2
- 土地面積
- 141.27m2
- 総戸数
- -
- おすすめポイント
- ■豊橋市牟呂町に新築分譲「全2棟」の誕生です!■断熱性・気密性・換気性に優れた「ZEH水準」■耐震性に優れたI.D.S工法■広々収納とラクラク家事動線の家■全居室収納付き■開放感のある折下天井■商業施
家デパ豊橋店 松屋不動産販売株式会社
- 新築一戸建て
- 価格
- 3200万円
- 住所
- 愛知県豊橋市牟呂町字奥山新田
- 交通
- 東海道本線 豊橋駅 徒歩37分
豊橋鉄道渥美線 柳生橋駅 徒歩35分
- 間取り
- 4SLDK
- 建物面積
- 102.26m2
- 土地面積
- 153.82m2
- 総戸数
- -
- おすすめポイント
- \豊橋市牟呂町 新築戸建/家を売るのも買うのもハウスドゥ豊橋藤沢・向山・岩田にお任せください♪
ハウスドゥ 豊橋岩田 株式会社夢のおてつだい
- 新築一戸建て
- 価格
- 3200万円
- 住所
- 愛知県豊橋市牟呂町字奥山新田
- 交通
- 東海道本線 豊橋駅 徒歩37分
豊橋鉄道渥美線 柳生橋駅 徒歩35分
- 間取り
- 4SLDK
- 建物面積
- 102.26m2
- 土地面積
- 153.82m2
- 総戸数
- -
- おすすめポイント
- \豊橋市牟呂町 新築戸建/家を売るのも買うのもハウスドゥ豊橋藤沢・向山・岩田にお任せください♪
ハウスドゥ 豊橋向山 株式会社夢のおてつだい
- 新築一戸建て
- 価格
- 3200万円
- 住所
- 愛知県豊橋市牟呂町字奥山新田
- 交通
- 東海道本線 豊橋駅 徒歩37分
豊橋鉄道渥美線 柳生橋駅 徒歩35分
- 間取り
- 4SLDK
- 建物面積
- 102.26m2
- 土地面積
- 153.82m2
- 総戸数
- -
- おすすめポイント
- \豊橋市牟呂町 新築戸建/家を売るのも買うのもハウスドゥ豊橋藤沢・向山・岩田にお任せください♪
ハウスドゥ 豊橋藤沢 株式会社夢のおてつだい
- 新築一戸建て
- 価格
- 3150万円
- 住所
- 愛知県豊橋市牟呂町字奥山新田
- 交通
- 東海道本線 豊橋駅 徒歩37分
豊橋鉄道渥美線 柳生橋駅 徒歩35分
- 間取り
- 4LDK
- 建物面積
- 96.05m2
- 土地面積
- 141.27m2
- 総戸数
- -
- おすすめポイント
- \豊橋市牟呂町 新築戸建/家を売るのも買うのもハウスドゥ豊橋藤沢・向山・岩田にお任せください♪
ハウスドゥ 豊橋向山 株式会社夢のおてつだい
- 新築一戸建て
- 価格
- 3150万円
- 住所
- 愛知県豊橋市牟呂町字奥山新田
- 交通
- 東海道本線 豊橋駅 徒歩37分
豊橋鉄道渥美線 柳生橋駅 徒歩35分
- 間取り
- 4LDK
- 建物面積
- 96.05m2
- 土地面積
- 141.27m2
- 総戸数
- -
- おすすめポイント
- \豊橋市牟呂町 新築戸建/家を売るのも買うのもハウスドゥ豊橋藤沢・向山・岩田にお任せください♪
ハウスドゥ 豊橋岩田 株式会社夢のおてつだい
- 新築一戸建て
- 価格
- 3150万円
- 住所
- 愛知県豊橋市牟呂町字奥山新田
- 交通
- 東海道本線 豊橋駅 徒歩37分
豊橋鉄道渥美線 柳生橋駅 徒歩35分
- 間取り
- 4LDK
- 建物面積
- 96.05m2
- 土地面積
- 141.27m2
- 総戸数
- -
- おすすめポイント
- \豊橋市牟呂町 新築戸建/家を売るのも買うのもハウスドゥ豊橋藤沢・向山・岩田にお任せください♪
ハウスドゥ 豊橋藤沢 株式会社夢のおてつだい
- 新築一戸建て
- 価格
- 3998万円
- 住所
- 愛知県豊橋市牟呂町字坂津
- 交通
- 東海道・山陽新幹線 豊橋駅 徒歩29分
東海道本線 豊橋駅 徒歩29分
- 間取り
- 3LDK
- 建物面積
- 97.7m2
- 土地面積
- 180.35m2
- 総戸数
- -
- おすすめポイント
- 【期間限定!来店予約とローン審査された方限定♪】商品券1万円分プレゼント!(毎月先着10名様)
センチュリー21架け橋不動産豊橋店
豊橋市の暮らしデータ
人口などの統計情報
| 世帯数 | 151163世帯 |
|---|---|
| 人口総数 | 368686人 |
| 転入者数 | 13467人
|
| 転出者数 | 13480人
|
| 土地平均価格 |
|
結婚・育児の助成金
| 子育て関連の独自の取り組み | 豊橋市母子父子福祉手当(ひとり親家庭等の母・父または養育者へ、支給要件にあてはまる18歳以下[18歳に達した年度末まで]の児童を養育されている方に支給する。ただし所得制限あり。また受給期間制限あり[一定の要件に該当する場合は期間延長する場合あり])。 | ||
|---|---|---|---|
| 出産祝い | なし | ||
| 公立保育所数 | 4所(うち0歳児保育を実施している保育所:4所) | ||
| 私立保育所数 | 37所(うち0歳児保育を実施している保育所:37所) | ||
| 保育所入所待機児童数 | 0人 | ||
| 認定こども園数 | 25園 | 預かり保育実施園数 | 公立:- 私立:16園 |
| 学校給食 | 【小学校】完全給食【中学校】完全給食 | ||
| 公立中学校の学校選択制 | 未実施 | ||
| 子ども・学生等医療費助成<通院>対象年齢 | 18歳3月末まで | 子ども・学生等医療費助成<入院>対象年齢 | 18歳3月末まで |
豊橋市の治安・ごみ収集情報
公共料金・インフラ
| ガス料金(22m3使用した場合の月額) | サーラエナジー株式会社5880円 |
|---|---|
| 水道料金(口径20mmで20m3の月額) | 豊橋市2519円 |
| 下水道料金(20m3を使用した場合の月額) | 豊橋市2277円 豊橋市(特定環境保全公共下水道)2640円 |
| 下水道普及率 | 75.6% |
安心・安全
| 建物火災出火件数 |
54件
|
|---|---|
| 刑法犯認知件数 |
1887件
|
| ハザード・防災マップ | あり |
医療
| 一般病院総数 | 17ヶ所 |
|---|---|
| 一般診療所総数 | 252ヶ所 |
| 小児科医師数 |
79人
|
| 産婦人科医師数 |
36人
|
| 介護保険料基準額(月額) | 4930円 |
ごみ
| 家庭ごみ収集(可燃ごみ) |
無料
|
|---|---|
| 家庭ごみの分別方式 | 9分別10種〔もやすごみ 生ごみ びん・カン プラマークごみ ペットボトル 危険ごみ(蛍光管・水銀含有物、スプレー缶類) こわすごみ 布類 うめるごみ〕 拠点回収:古紙 |
| 家庭ごみの戸別収集 | 一部実施(【ふれあい収集】所定の場所まで持ち出すことが困難な人が対象) |
| 粗大ごみ収集 |
あり
|
| 生ごみ処理機助成金制度 |
なし
|
豊橋市の住まいの給付金
新築購入
| 利子補給制度 | なし |
|---|---|
| 補助/助成金制度 | なし |
暮らしデータ提供元:生活ガイド.com
※行政機関により公表していない地域及びデータがございます。東京23区以外の政令指定都市は、市全体のデータとして表示しています。
※提供データには細心の注意を払っておりますが、調査後に変更がある場合があります。 最新の情報につきましては各市区役所までお問い合わせいただくか、自治体HPなどをご確認ください。
※提供データには細心の注意を払っておりますが、調査後に変更がある場合があります。 最新の情報につきましては各市区役所までお問い合わせいただくか、自治体HPなどをご確認ください。




























![【新築戸建】豊橋市牟呂町字北汐田[全2棟]](https://img.house.goo.ne.jp/suumo/gazo/bukken/050/N010000/img/933/78502933/78502933_0684.jpg?200)











































































