アプリで簡単 物件探し 通知 共有 アプリならではの機能を使ってみる
RSS

相模原市中央区(神奈川県) の建築条件なしの土地(宅地・分譲地・売地) 物件一覧

神奈川県相模原市中央区の建築条件なしの土地、分譲地、売地、宅地などの土地物件をご紹介します。売り地、分譲土地、住宅用土地などの土地情報を探すならgoo住宅・不動産。価格・土地面積・建築条件・立地・人気のこだわり条件から物件を簡単検索。理想の物件探しをgoo住宅・不動産がサポートします。

建築条件なしの土地物件特集
注文住宅を建てる土地を探している方におすすめの建築条件なしの土地を紹介します。土地に建築条件が定められていると、条件を満たす住宅しか作れません。建築条件なしの土地を購入すれば、自由度の高い注文住宅を建てられるため、家族全員の理想を叶えるマイホームができあがりますよ。土地の購入費用や周辺環境をチェックして、好みの場所にある土地を購入しましょう。

建築条件なしの土地物件特集

探したい物件のエリア・検索条件を変更して再検索

エリア
検索条件 建築条件:建築条件なし
375 並び替え
12345 … 10 次へ
チェックした物件を一括で
選択 物件タイプ
画像
所在地/交通
(駅/バス 所要時間)
価格
坪単価
土地面積 用途地域
建築条件
建ぺい率
容積率
new

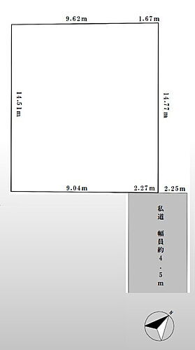
神奈川県相模原市中央区相生3丁目 土地

  • 土地
  • 神奈川県相模原市中央区相生3丁目 土地
    間取り図
神奈川県相模原市中央区相生3丁目
横浜線 淵野辺駅 徒歩17分
3790
万円

83.4万円
150.24m2 1種中高
なし
60%
200%
  • 建築条件なし
  • 本下水
  • 都市ガス
  • 即引渡し可
おすすめポイント
建築条件ありませんので思い描いた理想の住まいを! 周辺環境充実♪淵野辺駅へのアクセス良好!
朝日土地建物株式会社 橋本支店 営業1課
new

神奈川県相模原市中央区相生3丁目 土地

  • 土地
  • 神奈川県相模原市中央区相生3丁目 土地
    間取り図
神奈川県相模原市中央区相生3丁目
横浜線 淵野辺駅 徒歩17分
横浜線 矢部駅 徒歩20分
3790
万円

83.39万円
150.24m2 1種中高
なし
60%
200%
  • 建築条件なし
  • 更地
  • 本下水
  • 都市ガス
おすすめポイント
●JR横浜線「淵野辺」駅 徒歩17分●「建築条件なし」なので一生に一度のマイホームならではのこだわりを実現できます!●生活利便施設周辺多数あり♪
株式会社クリップ クリップハウジング 八王子支店

神奈川県相模原市中央区東淵野辺5丁目 土地

  • 土地
  • 神奈川県相模原市中央区東淵野辺5丁目 土地
神奈川県相模原市中央区東淵野辺5丁目
横浜線 淵野辺駅 徒歩19分
横浜線 古淵駅 徒歩20分
3180
万円

106.22万円
99m2 1種住居
なし
60%
200%
  • 建築条件なし
  • 南道路
  • 本下水
  • 上物有り
おすすめポイント
☆南道路・整形地・前面道路6m・陽当たり良好・更地渡し・前面道路に都市ガス管有・お好きなハウスメーカーで建築できます☆
株式会社アートハウジング

神奈川県相模原市中央区陽光台1丁目 土地

  • 土地
  • 神奈川県相模原市中央区陽光台1丁目 土地
神奈川県相模原市中央区陽光台1丁目
相模線 上溝駅 徒歩7分
1950
万円

72.17万円
89.35m2 1種低層
なし
60%
100%
  • 建築条件なし
  • 更地
  • 本下水
  • 都市ガス
  • 角地
  • 即引渡し可
  • 1種低層地域
おすすめポイント
☆北西角地・北側前面道路6m・都市ガスエリア・小学校近くお子様の登下校も安心・更地につき即建築可能・ご家族の夢を自由に叶える「建築条件なし」お好きなハウスメーカーで建築できます☆
株式会社アートハウジング

神奈川県相模原市中央区上溝 土地

  • 土地
  • 神奈川県相模原市中央区上溝 土地
    間取り図
神奈川県相模原市中央区上溝
相模線 上溝駅 徒歩17分
相模線 番田駅 徒歩14分
1480
万円

29.55万円
165.59m2 2種中高
なし
60%
200%
  • 建築条件なし
  • 更地
  • 本下水
おすすめポイント
☆更地につき古屋解体費用不要で諸費用を抑えられます!災害が起こっても即座に復旧しやすいプロパンガス・ご家族の夢を自由に叶える「建築条件なし」お好きなハウスメーカーで建築できます☆
株式会社アートハウジング

神奈川県相模原市中央区上溝 土地

  • 土地
  • 神奈川県相模原市中央区上溝 土地
神奈川県相模原市中央区上溝
相模線 上溝駅 徒歩16分
相模線 番田駅 徒歩18分
1580
万円

31.55万円
165.59m2 2種中高
なし
60%
180%
  • 建築条件なし
  • 更地
  • 平坦地
  • 本下水
  • 即引渡し可
おすすめポイント
■売地■土地50坪■整形地■建築条件なし、お好きなハウスメーカー様で建築ができます
朝日土地建物株式会社 相模原支店営業2課

神奈川県相模原市中央区上溝 土地

  • 土地
  • 神奈川県相模原市中央区上溝 土地
    間取り図
神奈川県相模原市中央区上溝
相模線 上溝駅 徒歩17分
相模線 番田駅 徒歩14分
1480
万円

29.55万円
165.59m2 2種中高
なし
60%
200%
  • 建築条件なし
  • 更地
  • 本下水
  • 即引渡し可
おすすめポイント
建築条件無し売地 お好きなハウスメーカーで建てられます 小・中学校が徒歩6分圏内にあり 整形地
株式会社 東宝ハウス町田

神奈川県相模原市中央区青葉1丁目 土地

  • 土地
  • 神奈川県相模原市中央区青葉1丁目 土地
    間取り図
神奈川県相模原市中央区青葉1丁目
横浜線 淵野辺駅 徒歩33分
2900
万円

49.01万円
195.67m2 1種中高
なし
60%
200%
  • 建築条件なし
  • 平坦地
  • 本下水
  • 上物有り
株式会社住まいの広場TOWNS

神奈川県相模原市中央区横山4丁目 土地

  • 土地
  • 神奈川県相模原市中央区横山4丁目 土地
    間取り図
神奈川県相模原市中央区横山4丁目
相模線 上溝駅 徒歩15分
横浜線 相模原駅 徒歩28分
4960
万円

79.99万円
205.01m2 1種中高
なし
60%
200%
  • 建築条件なし
  • 平坦地
  • 本下水
  • 都市ガス
  • 上物有り
  • 角地
株式会社住まいの広場TOWNS

神奈川県相模原市中央区上溝3丁目 土地

  • 土地
  • 神奈川県相模原市中央区上溝3丁目 土地
神奈川県相模原市中央区上溝3丁目
相模線 上溝駅 徒歩17分
1800
万円

35.02万円
169.95m2 1種住居
なし
60%
200%
  • 建築条件なし
  • 更地
  • 本下水
  • 都市ガス
おすすめポイント
全てお任せ下さい!親切丁寧モットーの 0120-141-033(津久井ハウジングセンターへ)
株式会社日本物産

神奈川県相模原市中央区上溝3丁目 土地

  • 土地
  • 神奈川県相模原市中央区上溝3丁目 土地
神奈川県相模原市中央区上溝3丁目
相模線 上溝駅 徒歩17分
1750
万円

35.38万円
163.52m2 1種住居
なし
60%
200%
  • 建築条件なし
  • 更地
  • 本下水
  • 都市ガス
おすすめポイント
全てお任せ下さい!親切丁寧モットーの 0120-141-033(津久井ハウジングセンターへ)
株式会社日本物産

神奈川県相模原市中央区上溝 土地

  • 土地
  • 神奈川県相模原市中央区上溝 土地
神奈川県相模原市中央区上溝
相模線 番田駅 徒歩5分
2980
万円

64.79万円
152.06m2 2種中高
なし
60%
160%
  • 建築条件なし
  • 平坦地
  • 本下水
  • 上物有り
  • 角地
おすすめポイント
全てお任せ下さい!親切丁寧モットーの 0120-141-033(津久井ハウジングセンターへ)
株式会社日本物産

神奈川県相模原市中央区青葉1丁目 土地

  • 土地
  • 神奈川県相模原市中央区青葉1丁目 土地
神奈川県相模原市中央区青葉1丁目
横浜線 淵野辺駅 バス12分/「和泉短大前」バス停 停歩4分
2600
万円

72.69万円
118.27m2 1種中高
なし
60%
160%
  • 建築条件なし
  • 更地
  • 本下水
  • 都市ガス
おすすめポイント
☆間取りや設計の自由度が高い整形地・場所を取らず環境にも家計にも優しい都市ガス♪ご家族のスタイルに合った住まいを叶える「建築条件なし」お好きなハウスメーカーで建築できます☆
株式会社アートハウジング

神奈川県相模原市中央区上溝3丁目 土地

  • 土地
  • 神奈川県相模原市中央区上溝3丁目 土地
神奈川県相模原市中央区上溝3丁目
相模線 上溝駅 徒歩17分
1700
万円

43.26万円
129.91m2 1種住居
なし
60%
200%
  • 建築条件なし
  • 更地
  • 本下水
  • 都市ガス
おすすめポイント
全てお任せ下さい!親切丁寧モットーの 0120-141-033(津久井ハウジングセンターへ)
株式会社日本物産

神奈川県相模原市中央区田名 土地

  • 土地
  • 神奈川県相模原市中央区田名 土地
神奈川県相模原市中央区田名
横浜線 相模原駅 バス22分/「四ツ谷」バス停 停歩6分
1480
万円

40.12万円
121.92m2 1種中高
なし
60%
150%
  • 建築条件なし
  • 更地
  • 本下水
ハウスドゥ!相模原横山台店 夢のなかまたち株式会社

神奈川県相模原市中央区上溝3丁目 土地

  • 土地
  • 神奈川県相模原市中央区上溝3丁目 土地
    間取り図
神奈川県相模原市中央区上溝3丁目
相模線 上溝駅 徒歩17分
1750
万円

35.39万円
163.52m2 1種住居
なし
60%
200%
  • 建築条件なし
  • 更地
  • 本下水
  • 都市ガス
おすすめポイント
☆売地全4区画・閑静な住宅街・家計に優しい都市ガス・更地につき即建築可能・コンビニ近くお買い物に便利な住環境・お好きなハウスメーカーでこだわりの住まいを実現できます☆
株式会社アートハウジング

神奈川県相模原市中央区上溝3丁目 土地

  • 土地
  • 神奈川県相模原市中央区上溝3丁目 土地
    間取り図
神奈川県相模原市中央区上溝3丁目
相模線 上溝駅 徒歩17分
1800
万円

35.02万円
169.95m2 1種住居
なし
60%
200%
  • 建築条件なし
  • 更地
  • 本下水
  • 都市ガス
おすすめポイント
☆売地全4区画・閑静な住宅街・家計に優しい都市ガス・更地につき即建築可能・コンビニ近くお買い物に便利な住環境・お好きなハウスメーカーでこだわりの住まいを実現できます☆
株式会社アートハウジング

神奈川県相模原市中央区宮下本町1丁目 土地

  • 土地
  • 神奈川県相模原市中央区宮下本町1丁目 土地
    間取り図
神奈川県相模原市中央区宮下本町1丁目
横浜線 相模原駅 徒歩21分
京王電鉄相模原線 多摩境駅 徒歩33分
2380
万円

71.48万円
110.1m2 1種中高
なし
60%
200%
  • 建築条件なし
  • 上物有り
  • 角地
  • 即引渡し可
おすすめポイント
住宅用地なので住みやすい環境が整っており、戸建てをお考えの方におすすめです。相模原市の不動産情報は当社にお任せください。地域を愛する、情報通のスタッフが揃っております。ご連絡をお待ちしております。
株式会社アートハウジング

神奈川県相模原市中央区宮下本町2丁目 土地

  • 土地
  • 神奈川県相模原市中央区宮下本町2丁目 土地
    間取り図
神奈川県相模原市中央区宮下本町2丁目
京王電鉄相模原線 多摩境駅 徒歩15分
横浜線 相模原駅 徒歩21分
2480
万円

76.13万円
107.7m2 1種低層
なし
50%
80%
  • 建築条件なし
  • 更地
  • 本下水
  • 1種低層地域
おすすめポイント
建築条件無し売地 お好きなハウスメーカーで建てられます 公営水道 公共下水
株式会社 東宝ハウス町田
チェックした物件を一括で

神奈川県相模原市中央区田名 土地

  • 土地
  • 神奈川県相模原市中央区田名 土地
    間取り図
神奈川県相模原市中央区田名
横浜線 橋本駅 バス16分/「上四ツ谷」バス停 停歩7分
1680
万円

39.52万円
140.59m2 工業地域
なし
60%
200%
  • 建築条件なし
  • 本下水
  • 上物有り
おすすめポイント
■南東道路のため、陽当り良好です■建築条件なし・お好きなハウスメーカーで建てられます ■区画が整った開発分譲地内に御座います
セイケンホーム株式会社 古淵店

神奈川県相模原市中央区横山6丁目 土地

  • 土地
  • 神奈川県相模原市中央区横山6丁目 土地
    間取り図
神奈川県相模原市中央区横山6丁目
横浜線 相模原駅 バス10分/「星が丘住宅前」バス停 停歩5分
相模線 上溝駅 徒歩8分
3380
万円

71.82万円
155.58m2 2種住居
なし
60%
200%
  • 建築条件なし
  • 更地
  • 平坦地
  • 都市ガス
  • 即引渡し可
おすすめポイント
《実際のお部屋、すぐにご案内可能!》 整形地×LDK20帖参考プラン付き!
株式会社東宝ハウス調布

神奈川県相模原市中央区光が丘2丁目 土地

  • 土地
  • 神奈川県相模原市中央区光が丘2丁目 土地
    間取り図
神奈川県相模原市中央区光が丘2丁目
相模線 上溝駅 徒歩22分
横浜線 淵野辺駅 徒歩25分
2280
万円

77.61万円
97.15m2 1種低層
なし
50%
100%
  • 建築条件なし
  • 更地
  • 平坦地
  • 1種低層地域
株式会社住まいの広場TOWNS

神奈川県相模原市中央区光が丘2丁目 土地

  • 土地
  • 神奈川県相模原市中央区光が丘2丁目 土地
    間取り図
神奈川県相模原市中央区光が丘2丁目
横浜線 淵野辺駅 徒歩25分
相模線 上溝駅 徒歩24分
2280
万円

77.59万円
97.15m2 1種低層
なし
50%
100%
  • 建築条件なし
  • 更地
  • 本下水
  • 即引渡し可
  • 1種低層地域
おすすめポイント
建築条件なしのため、お好きな建築メーカーで建てられます。 前面道路幅員8メートルのため、駐車もラクラクです。
朝日土地建物株式会社 橋本支店 営業1課

神奈川県相模原市中央区青葉1丁目 土地

  • 土地
  • 神奈川県相模原市中央区青葉1丁目 土地
    間取り図
神奈川県相模原市中央区青葉1丁目
横浜線 淵野辺駅 バス13分/「和泉短大前」バス停 停歩4分
2600
万円

72.68万円
118.27m2 1種中高
なし
60%
160%
  • 建築条件なし
  • 更地
  • 本下水
  • 都市ガス
  • 即引渡し可
おすすめポイント
淵野辺駅バス12分。118m2整形地。閑静な住宅街の一画 買い物便利!夢のマイホームを実現しませんか!
朝日土地建物株式会社 橋本支店 営業1課

神奈川県相模原市中央区横山6丁目 土地

  • 土地
  • 神奈川県相模原市中央区横山6丁目 土地
    間取り図
神奈川県相模原市中央区横山6丁目
相模線 上溝駅 徒歩7分
3380
万円

71.82万円
155.58m2 2種住居
なし
60%
200%
  • 建築条件なし
  • 更地
  • 平坦地
  • 都市ガス
  • 即引渡し可
おすすめポイント
選べるe-GIFT10000円分>初来場&アンケート回答でプレゼント
住宅情報館株式会社 相模原中央店

神奈川県相模原市中央区淵野辺本町3丁目 土地

  • 土地
  • 神奈川県相模原市中央区淵野辺本町3丁目 土地
神奈川県相模原市中央区淵野辺本町3丁目
横浜線 淵野辺駅 徒歩21分
横浜線 矢部駅 徒歩32分
2180
万円

54.08万円
133.26m2 1種低層
なし
50%
80%
  • 建築条件なし
  • 更地
  • 本下水
  • 都市ガス
  • 1種低層地域
おすすめポイント
建築条件無し売地 お好きなハウスメーカーで建てられます コンビニが徒歩5分圏内 ショッピング施設が徒歩10分圏内にあり 都市ガス
株式会社 東宝ハウス町田

神奈川県相模原市中央区淵野辺本町3丁目 土地

  • 土地
  • 神奈川県相模原市中央区淵野辺本町3丁目 土地
神奈川県相模原市中央区淵野辺本町3丁目
横浜線 淵野辺駅 徒歩21分
横浜線 矢部駅 徒歩32分
2480
万円

66.89万円
122.57m2 1種低層
なし
50%
80%
  • 建築条件なし
  • 更地
  • 南道路
  • 本下水
  • 都市ガス
  • 1種低層地域
おすすめポイント
建築条件無し売地 お好きなハウスメーカーで建てられます コンビニが徒歩5分圏内 ショッピング施設が徒歩10分圏内にあり 都市ガス
株式会社 東宝ハウス町田

神奈川県相模原市中央区淵野辺本町3丁目 土地

  • 土地
  • 神奈川県相模原市中央区淵野辺本町3丁目 土地
神奈川県相模原市中央区淵野辺本町3丁目
横浜線 淵野辺駅 徒歩21分
横浜線 矢部駅 徒歩32分
2580
万円

70.97万円
120.19m2 1種低層
なし
50%
80%
  • 建築条件なし
  • 更地
  • 本下水
  • 都市ガス
  • 1種低層地域
おすすめポイント
建築条件無し売地 お好きなハウスメーカーで建てられます コンビニが徒歩5分圏内 ショッピング施設が徒歩10分圏内にあり 都市ガス
株式会社 東宝ハウス町田

神奈川県相模原市中央区淵野辺本町3丁目 土地

  • 土地
  • 神奈川県相模原市中央区淵野辺本町3丁目 土地
神奈川県相模原市中央区淵野辺本町3丁目
横浜線 淵野辺駅 徒歩21分
横浜線 矢部駅 徒歩32分
2780
万円

73.13万円
125.67m2 1種低層
なし
50%
80%
  • 建築条件なし
  • 更地
  • 南道路
  • 本下水
  • 都市ガス
  • 1種低層地域
おすすめポイント
建築条件無し売地 お好きなハウスメーカーで建てられます コンビニが徒歩5分圏内 ショッピング施設が徒歩10分圏内にあり 都市ガス
株式会社 東宝ハウス町田

神奈川県相模原市中央区横山5丁目 土地

  • 土地
  • 神奈川県相模原市中央区横山5丁目 土地
    間取り図
神奈川県相模原市中央区横山5丁目
相模線 上溝駅 バス16分/「横山団地」バス停 停歩5分
相模線 南橋本駅 徒歩31分
4300
万円

73.54万円
193.32m2 1種中高
なし
60%
200%
  • 建築条件なし
  • 本下水
  • 都市ガス
  • 上物有り
  • 角地
おすすめポイント
★穏やかな環境と角地の開放感。心地よい暮らしをこの街で★横山公園ほど近くの閑静な住宅地です♪★近隣にはスーパーやコンビニなど商業施設多数あり★
株式会社Mスタイルプランニング

神奈川県相模原市中央区青葉1丁目 土地

  • 土地
  • 神奈川県相模原市中央区青葉1丁目 土地
    間取り図
神奈川県相模原市中央区青葉1丁目
横浜線 淵野辺駅 徒歩34分
2600
万円

72.69万円
118.27m2 1種中高
なし
60%
160%
  • 建築条件なし
  • 更地
  • 本下水
  • 都市ガス
株式会社住まいの広場TOWNS

神奈川県相模原市中央区田名 土地

  • 土地
  • 神奈川県相模原市中央区田名 土地
    間取り図
神奈川県相模原市中央区田名
相模線 上溝駅 徒歩37分
2480
万円

35万円
234.27m2 1種中高
なし
60%
150%
  • 建築条件なし
  • 更地
  • 平坦地
株式会社住まいの広場TOWNS

神奈川県相模原市中央区相生2丁目 土地

  • 土地
  • 神奈川県相模原市中央区相生2丁目 土地
    間取り図
神奈川県相模原市中央区相生2丁目
横浜線 淵野辺駅 徒歩14分
2680
万円

97.92万円
90.5m2 1種中高
なし
60%
200%
  • 建築条件なし
  • 上物有り
株式会社住まいの広場TOWNS

神奈川県相模原市中央区相生2丁目 土地

  • 土地
  • 神奈川県相模原市中央区相生2丁目 土地
    間取り図
神奈川県相模原市中央区相生2丁目
横浜線 淵野辺駅 徒歩14分
2680
万円

97.92万円
90.5m2 1種中高
なし
60%
200%
  • 建築条件なし
  • 上物有り
株式会社住まいの広場TOWNS

神奈川県相模原市中央区相生2丁目 土地

  • 土地
  • 神奈川県相模原市中央区相生2丁目 土地
    間取り図
神奈川県相模原市中央区相生2丁目
横浜線 淵野辺駅 徒歩14分
2980
万円

108.09万円
91.15m2 1種中高
なし
60%
200%
  • 建築条件なし
  • 上物有り
株式会社住まいの広場TOWNS

神奈川県相模原市中央区上溝3丁目 土地

  • 土地
  • 神奈川県相模原市中央区上溝3丁目 土地
    間取り図
神奈川県相模原市中央区上溝3丁目
相模線 上溝駅 徒歩17分
1750
万円

35.38万円
163.52m2 1種住居
なし
60%
200%
  • 建築条件なし
  • 更地
  • 本下水
  • 都市ガス
おすすめポイント
選べるe-GIFT10000円分>初来場&アンケート回答でプレゼント
住宅情報館株式会社 相模原中央店

神奈川県相模原市中央区上溝3丁目 土地

  • 土地
  • 神奈川県相模原市中央区上溝3丁目 土地
    間取り図
神奈川県相模原市中央区上溝3丁目
相模線 上溝駅 徒歩17分
1800
万円

35.02万円
169.95m2 1種住居
なし
60%
200%
  • 建築条件なし
  • 更地
  • 本下水
  • 都市ガス
おすすめポイント
選べるe-GIFT10000円分>初来場&アンケート回答でプレゼント
住宅情報館株式会社 相模原中央店

神奈川県相模原市中央区上溝3丁目 土地

  • 土地
  • 神奈川県相模原市中央区上溝3丁目 土地
    間取り図
神奈川県相模原市中央区上溝3丁目
相模線 上溝駅 徒歩17分
1750
万円

35.38万円
163.52m2 1種住居
なし
60%
200%
  • 建築条件なし
  • 更地
  • 本下水
  • 都市ガス
オリバーの売買 株式会社オリバー

神奈川県相模原市中央区上溝3丁目 土地

  • 土地
  • 神奈川県相模原市中央区上溝3丁目 土地
    間取り図
神奈川県相模原市中央区上溝3丁目
相模線 上溝駅 徒歩17分
1800
万円

35.02万円
169.95m2 1種住居
なし
60%
200%
  • 建築条件なし
  • 更地
  • 本下水
  • 都市ガス
オリバーの売買 株式会社オリバー

神奈川県相模原市中央区田名 土地

  • 土地
  • NO PHOTO
神奈川県相模原市中央区田名
相模線 上溝駅 バス20分/「田名バスターミナル」バス停 停歩10分
6393
万円

27.55万円
766.99m2 1種中高
なし
60%
150%
  • 建築条件なし
  • 更地
ハウスドゥ!相模原横山台店 夢のなかまたち株式会社
チェックした物件を一括で
  • チェックした物件をまとめて
375
表示件数 12345 … 10 次へ
OCN×ドコモ光新規お申込みで合計最大137,280円相当おトク!特典の内訳・適用条件など詳細はこちら

条件を選択

価格
土地面積
駅からの時間
建築条件
現況
立地・特徴
条件
画像・動画
情報の新しさ
フリーワード
相模原市中央区のおすすめ新築一戸建て

相模原市中央区の新築一戸建て情報をもっと見る

相模原市中央区の住みやすさ情報

相模原市中央区ってどんなところ?

相模原市中央区は相模原市の中心で、市役所などの公的機関が集中する場所。区内には桜並木が多数あり、区のシンボルとなっています。特に相模原市立横山公園は、桜のほかにも広大な緑地に四季折々の花が咲き、家族連れに人気です。
交通手段としてはJR横浜線と相模線が利用でき、相模原駅から横浜駅までは乗り換えなしで約45分です。

街ガイド

高野 友樹

公認不動産コンサルティングマスター/相続対策専門士/宅地建物取引士/賃貸不動産経営管理士

不動産会社にて600件以上の仲介、6000戸の収益物件管理を経験。現在は株式会社高野不動産コンサルティングを設立し、不動産コンサルティングを行う。

一人暮らしの人に聞いた
相模原市中央区の住みやすさTOP10

  1. 1位スーパーやドラッグストアが充実している
  2. 2位必要なものが近場でそろう
  3. 3位住居費(家賃や物件購入費)が安い

夫婦・カップルに聞いた
相模原市中央区の住みやすさTOP10

  1. 1位スーパーやドラッグストアが充実している
  2. 2位必要なものが近場でそろう
  3. 3位自然や公園が多い

ファミリーに聞いた
相模原市中央区の住みやすさTOP10

  1. 1位自然や公園が多い
  2. 2位スーパーやドラッグストアが充実している
  3. 3位病院やクリニックが多い

※対象エリア周辺に過去5年以内に住んだことのある10代~60代の人を対象としてアンケートを実施し、独自に集計しています。

相模原市中央区の暮らしデータ

人口などの統計情報

世帯数 332249世帯
人口総数 717861人
転入者数 35065人
転入率(人口1000人当たり)
48.85人
転出者数 31817人
転出率(人口1000人当たり)
44.32人
土地平均価格
住宅地
158342円/m2
商業地
275407円/m2

結婚・育児の助成金

子育て関連の独自の取り組み (1)妊婦健診(16回助成)。(2)電子母子健康手帳アプリ(「さがプリコ」)。(3)さがみはら子育てきずなLINE(メールマガジン)。(4)新生児聴覚検査事業。(5)ふれあい親子サロン育児相談、身体計測、栄養相談、親子あそび等。(6)ブックスタート・セカンドブック事業(4ヶ月児、2歳6ヶ月児親子に絵本をプレゼント)。(7)産婦等を対象とした家事の支援を行う訪問支援事業(2022年10月から)。(8)移動式子どもの遊び場。(9)子育て世帯等中古住宅購入・改修費補助事業(子育て世帯や若年世帯が中古住宅を購入する場合や親世帯との同居に伴い親世帯が所有する住宅の改修を行った場合に補助金を支給)。(10)さがみはら休日一時保育事業。(11)子どもの施設使用料等の無料化。
出産祝い なし
公立保育所数 22所(うち0歳児保育を実施している保育所:17所)
私立保育所数 72所(うち0歳児保育を実施している保育所:72所)
保育所入所待機児童数 7人
認定こども園数 74園 預かり保育実施園数 公立:- 私立:17園
学校給食 【小学校】完全給食【中学校】完全給食 家庭弁当等との選択制/デリバリー形式[運搬:ランチボックス、内容:完全給食]
公立中学校の学校選択制 一部実施(学校選択制の分類の一つである「特定地域選択制」に相当する「指定変更許可区域」を導入)
子ども・学生等医療費助成<通院>対象年齢 18歳3月末まで 子ども・学生等医療費助成<入院>対象年齢 18歳3月末まで

相模原市中央区の治安・ごみ収集情報

公共料金・インフラ

ガス料金(22m3使用した場合の月額) 東京瓦斯株式会社(東京地区等)3926円
日本瓦斯株式会社(もえぎ野地区)6358円
水道料金(口径20mmで20m3の月額) 相模原市(牧野中央 簡易水道)2685円
相模原市(葛原 簡易水道)2685円
相模原市(青根 簡易水道)1760円
神奈川県営水道2988円
下水道料金(20m3を使用した場合の月額) 相模原市2036円
下水道普及率 97.5%

安心・安全

建物火災出火件数 98件
人口10000人当たり
1.35件
刑法犯認知件数 4250件
人口1000人当たり
5.86件
ハザード・防災マップ あり

医療

一般病院総数 32ヶ所
一般診療所総数 453ヶ所
小児科医師数 135人
小児人口10000人当たり
17.05人
産婦人科医師数 62人
15~49歳女性人口1万人当たり
4.44人
介護保険料基準額(月額) 6650円

ごみ

家庭ごみ収集(可燃ごみ) 無料
備考
一時多量ごみ等の清掃工場に直接持ち込まれた家庭ごみについては有料。
家庭ごみの分別方式 3分別15種〔一般ごみ 乾電池 資源(びん類、かん類、金物類、布類、蛍光管・水銀体温計、使用済食用油、紙類[新聞、雑誌・雑がみ、段ボール、紙パック、紙製容器包装]、容器包装プラ[プラ製容器包装、ペットボトル])〕 拠点回収:使用済小型家電
家庭ごみの戸別収集 一部実施(相模原市の主要駅9駅の周辺において、夜間戸別収集を実施。[小田急相模原駅、上溝駅、相模大野駅、相模原駅、相武台前駅、橋本駅、東林間駅、淵野辺駅、矢部駅])
粗大ごみ収集 あり
備考
有料。事前申込制。
生ごみ処理機助成金制度 あり
上限金額
20000円
上限比率
50.0%

相模原市中央区の住まいの給付金

新築建築

利子補給制度 あり
上限金額
(年額)33.18万円
備考
【勤労者住宅資金利子補給金】借入金の利子補給金を交付。補給対象借入額の上限は600万円、貸付利率の上限は年3%。補給期間は償還開始月から24ヶ月間。その他条件あり。
補助/助成金制度 なし

新築購入

利子補給制度 あり
上限金額
(年額)33.18万円
備考
【勤労者住宅資金利子補給金】借入金の利子補給金を交付。補給対象借入額の上限は600万円、貸付利率の上限は年3%。補給期間は償還開始月から24ヶ月間。その他条件あり。
補助/助成金制度 なし
暮らしデータ提供元:生活ガイド.com
※行政機関により公表していない地域及びデータがございます。東京23区以外の政令指定都市は、市全体のデータとして表示しています。
※提供データには細心の注意を払っておりますが、調査後に変更がある場合があります。 最新の情報につきましては各市区役所までお問い合わせいただくか、自治体HPなどをご確認ください。

価格相場

更新日:2025年11月17日

相模原市中央区の価格相場

  50㎡~80㎡ 80㎡~100㎡ 100㎡~150㎡ 150㎡~200㎡ 200㎡以上
土地 1289万円 2131万円 2048万円 2715万円 4828万円

周辺エリアの価格相場

  町田市 相模原市緑区 相模原市南区 座間市 愛甲郡愛川町
土地 - 2083万円 1636万円 1538万円 -
※このデータはgoo住宅・不動産に掲載されている土地の平均価格(管理費・駐車場代などを除く)を算出したものです。ただし5戸以上の掲載があるものについてのみ対象とします。
※周辺エリアの価格相場は広さ50㎡~80㎡の平均価格(管理費・駐車場代などを除く)を算出したものです。

神奈川県の人気の街アクセスランキング(土地)

※このランキングは2025年10月01日~31日における各ページのアクセス数から算出しています。

神奈川県相模原市中央区の人気の特集から土地物件を探す

特徴

他のエリアから探す

相模原市中央区の詳細地域から土地物件を探す

相生青葉小山上溝上矢部相模原下九沢水郷田名すすきの町清新高根田名中央千代田並木光が丘氷川町東淵野辺富士見淵野辺淵野辺本町星が丘松が丘緑が丘宮下本町弥栄矢部陽光台横山横山台由野台

相模原市中央区内の駅から探す

淵野辺矢部相模原南橋本上溝番田

アプリで簡単 物件探し 大手不動産サイトの情報から一括検!プッシュ通知で物件を見逃さない
App Storeからダウンロード Google Playで手に入れよう QRコード