アプリで簡単 物件探し 通知 共有 アプリならではの機能を使ってみる
RSS

揖斐郡大野町(岐阜県) の建築条件なしの土地(宅地・分譲地・売地) 物件一覧

岐阜県揖斐郡大野町の建築条件なしの土地、分譲地、売地、宅地などの土地物件をご紹介します。売り地、分譲土地、住宅用土地などの土地情報を探すならgoo住宅・不動産。価格・土地面積・建築条件・立地・人気のこだわり条件から物件を簡単検索。理想の物件探しをgoo住宅・不動産がサポートします。

建築条件なしの土地物件特集
注文住宅を建てる土地を探している方におすすめの建築条件なしの土地を紹介します。土地に建築条件が定められていると、条件を満たす住宅しか作れません。建築条件なしの土地を購入すれば、自由度の高い注文住宅を建てられるため、家族全員の理想を叶えるマイホームができあがりますよ。土地の購入費用や周辺環境をチェックして、好みの場所にある土地を購入しましょう。

建築条件なしの土地物件特集

探したい物件のエリア・検索条件を変更して再検索

エリア
検索条件 建築条件:建築条件なし
18 並び替え
チェックした物件を一括で
選択 物件タイプ
画像
所在地/交通
(駅/バス 所要時間)
価格
坪単価
土地面積 用途地域
建築条件
建ぺい率
容積率

岐阜県揖斐郡大野町大字野 土地

  • 土地
  • 岐阜県揖斐郡大野町大字野 土地
    間取り図
岐阜県揖斐郡大野町大字野
近鉄・岐阜・コミュバス「大野バスセンター」下車 徒歩29分
266.79
万円

2.99万円
294m2 無指定
なし
70%
400%
  • 建築条件なし
おすすめポイント
緑豊かなのどかな環境。約90坪の広々敷地!!
ハウスドゥ 本巣 株式会社ウエノ

岐阜県揖斐郡大野町大字黒野 土地

  • 土地
  • 岐阜県揖斐郡大野町大字黒野 土地
    間取り図
岐阜県揖斐郡大野町大字黒野
岐阜バス「黒野八幡町」下車 徒歩2分
760
万円

6.92万円
363.06m2 無指定
なし
70%
400%
  • 建築条件なし
  • 更地
おすすめポイント
バス停まで徒歩2分!病院やドラッグストア、スーパーも近くて生活に便利な場所です♪
ハウスドゥ 本巣 株式会社ウエノ

岐阜県揖斐郡大野町大字公郷 土地

  • 土地
  • 岐阜県揖斐郡大野町大字公郷 土地
    間取り図
岐阜県揖斐郡大野町大字公郷
近鉄バス「小衣斐」下車 徒歩18分
264
万円

4.99万円
174.68m2 無指定
なし
80%
400%
  • 建築条件なし
  • 更地
ハウスドゥ 本巣 株式会社ウエノ

岐阜県揖斐郡大野町大字黒野 土地

  • 土地
  • 岐阜県揖斐郡大野町大字黒野 土地
    間取り図
岐阜県揖斐郡大野町大字黒野
東海道本線 岐阜駅 バス53分/「黒野八幡町」バス停 停歩7分
2180
万円

1.98万円
3654.61m2 無指定
なし
70%
400%
  • 建築条件なし
  • 更地
  • 角地
おすすめポイント
商業用地にいかがでしょうか。
鵜飼不動産株式会社

岐阜県揖斐郡大野町大字西方 土地

  • 土地
  • 岐阜県揖斐郡大野町大字西方 土地
    間取り図
岐阜県揖斐郡大野町大字西方
東海道本線 岐阜駅 バス54分/「大野バスセンター」バス停 停歩14分
350
万円

7.01万円
165.06m2 無指定
なし
70%
400%
  • 建築条件なし
  • 更地
  • 即引渡し可
おすすめポイント
静かな環境です♪
鵜飼不動産株式会社

岐阜県揖斐郡大野町大字黒野 土地

  • 土地
  • 岐阜県揖斐郡大野町大字黒野 土地
    間取り図
岐阜県揖斐郡大野町大字黒野
岐阜バス「黒野八幡町」下車 徒歩2分
108
万円

3万円
119m2 無指定
なし
70%
400%
  • 建築条件なし
  • 更地
ハウスドゥ 本巣 株式会社ウエノ

岐阜県揖斐郡大野町大字黒野 土地

  • 土地
  • 岐阜県揖斐郡大野町大字黒野 土地
    間取り図
岐阜県揖斐郡大野町大字黒野
岐阜バス「黒野八幡町」下車 徒歩2分
550
万円

9.18万円
198m2 無指定
なし
70%
400%
  • 建築条件なし
  • 更地
ハウスドゥ 本巣 株式会社ウエノ

岐阜県揖斐郡大野町大字大野 土地

  • 土地
  • 岐阜県揖斐郡大野町大字大野 土地
    間取り図
岐阜県揖斐郡大野町大字大野
岐阜バス「黒野八幡町」下車 徒歩16分
130
万円

3.38万円
127m2 無指定
なし
70%
400%
  • 建築条件なし
  • 更地
おすすめポイント
小学校、中学校まで約10分です。
ハウスドゥ 本巣 株式会社ウエノ

岐阜県揖斐郡大野町大字上磯 土地

  • 土地
  • 岐阜県揖斐郡大野町大字上磯 土地
    間取り図
岐阜県揖斐郡大野町大字上磯
近鉄バス 「南小学校前」下車 徒歩9分
258
万円

7.98万円
106.76m2 無指定
なし
77%
240%
  • 建築条件なし
  • 更地
  • 角地
ハウスドゥ 本巣 株式会社ウエノ

岐阜県揖斐郡大野町大字五之里 土地

  • 土地
  • 岐阜県揖斐郡大野町大字五之里 土地
    間取り図
岐阜県揖斐郡大野町大字五之里
-「近鉄バス 五の里停」下車 徒歩1分
365.46
万円

5.99万円
201.37m2 無指定
なし
80%
264%
  • 建築条件なし
  • 更地
ハウスドゥ 本巣 株式会社ウエノ

岐阜県揖斐郡大野町大字上磯 土地

  • 土地
  • 岐阜県揖斐郡大野町大字上磯 土地
    間取り図
岐阜県揖斐郡大野町大字上磯
近鉄バス「南小学校前」下車 徒歩9分
436
万円

8万円
180.13m2 無指定
なし
77%
240%
  • 建築条件なし
  • 更地
  • 南道路
ハウスドゥ 本巣 株式会社ウエノ

岐阜県揖斐郡大野町大字西方 土地

  • 土地
  • 岐阜県揖斐郡大野町大字西方 土地
    間取り図
岐阜県揖斐郡大野町大字西方
-「近鉄バス大野バスセンター」下車 徒歩18分
568.7
万円

5万円
376m2 無指定
なし
70%
228%
  • 建築条件なし
  • 更地
ハウスドゥ 本巣 株式会社ウエノ

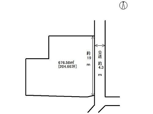
岐阜県揖斐郡大野町大字南方 土地

  • 土地
  • 岐阜県揖斐郡大野町大字南方 土地
    間取り図
岐阜県揖斐郡大野町大字南方
-「近鉄バス [南方]」下車 徒歩3分
716.31
万円

3.49万円
676.58m2 無指定
なし
70%
400%
  • 建築条件なし
ハウスドゥ 本巣 株式会社ウエノ

岐阜県揖斐郡大野町大字公郷 土地

  • 土地
  • 岐阜県揖斐郡大野町大字公郷 土地
    間取り図
岐阜県揖斐郡大野町大字公郷
-「近鉄バス [五之里]」下車 徒歩20分
800
万円

7.54万円
350.68m2 無指定
なし
70%
400%
  • 建築条件なし
  • 更地
ハウスドゥ 本巣 株式会社ウエノ

岐阜県揖斐郡大野町大字黒野 土地

  • 土地
  • 岐阜県揖斐郡大野町大字黒野 土地
    間取り図
岐阜県揖斐郡大野町大字黒野
-「大野バスセンター」下車 徒歩21分
820
万円

5.97万円
454m2 無指定
なし
70%
400%
  • 建築条件なし
  • 更地
ハウスドゥ 本巣 株式会社ウエノ

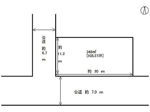
岐阜県揖斐郡大野町大字瀬古 土地

  • 土地
  • 岐阜県揖斐郡大野町大字瀬古 土地
    間取り図
岐阜県揖斐郡大野町大字瀬古
-「近鉄バス [中之元]」下車 徒歩2分
840
万円

7.97万円
348m2 無指定
なし
70%
400%
  • 建築条件なし
  • 南道路
  • 角地
ハウスドゥ 本巣 株式会社ウエノ

岐阜県揖斐郡大野町大字大野 土地

  • 土地
  • 岐阜県揖斐郡大野町大字大野 土地
    間取り図
岐阜県揖斐郡大野町大字大野
バス/「黒野八幡町」バス停 停歩15分
400
万円

7.31万円
181m2 無指定
なし
70%
400%
  • 建築条件なし
  • 更地
  • 南道路
  • 平坦地
  • 即引渡し可
おすすめポイント
南向きです
株式会社蒼天

岐阜県揖斐郡大野町大字公郷 土地

  • 土地
  • 岐阜県揖斐郡大野町大字公郷 土地
岐阜県揖斐郡大野町大字公郷
バス/「五の里」バス停 停歩21分
800
万円

7.55万円
350.68m2 無指定
なし
70%
400%
  • 建築条件なし
  • 更地
  • 角地
株式会社コムズ
チェックした物件を一括で
  • チェックした物件をまとめて
18
表示件数
OCN×ドコモ光新規お申込みで合計最大137,280円相当おトク!特典の内訳・適用条件など詳細はこちら

条件を選択

価格
土地面積
駅からの時間
建築条件
現況
立地・特徴
条件
画像・動画
情報の新しさ
フリーワード

価格相場

更新日:2025年11月17日

揖斐郡大野町の価格相場

  50㎡~80㎡ 80㎡~100㎡ 100㎡~150㎡ 150㎡~200㎡ 200㎡以上
土地 - - - 400万円 812万円

周辺エリアの価格相場

  本巣市 安八郡神戸町 揖斐郡揖斐川町 揖斐郡池田町 本巣郡北方町
土地 - - - - -
※このデータはgoo住宅・不動産に掲載されている土地の平均価格(管理費・駐車場代などを除く)を算出したものです。ただし5戸以上の掲載があるものについてのみ対象とします。
※周辺エリアの価格相場は広さ50㎡~80㎡の平均価格(管理費・駐車場代などを除く)を算出したものです。

岐阜県の人気の街アクセスランキング(土地)

※このランキングは2025年10月01日~31日における各ページのアクセス数から算出しています。

岐阜県揖斐郡大野町の人気の特集から土地物件を探す

特徴

他のエリアから探す

揖斐郡大野町の詳細地域から土地物件を探す

大字大野大字上磯大字公郷大字黒野大字五之里大字瀬古大字西方大字野大字南方

岐阜県揖斐郡大野町で他のジャンルから探す

アプリで簡単 物件探し 大手不動産サイトの情報から一括検!プッシュ通知で物件を見逃さない
App Storeからダウンロード Google Playで手に入れよう QRコード