RSS

市川駅(千葉県)の賃貸店舗・賃貸事務所・月極駐車場 物件一覧

市川駅(千葉県)の貸店舗、貸事務所、月極駐車場などの店舗・事業用物件をご紹介します。貸オフィス、貸ビル、貸倉庫、貸工場などの店舗・事業用物件情報を探すならgoo住宅・不動産。賃料・広さ・間取り・写真・人気のこだわり条件から物件を簡単検索。理想の物件探しをgoo住宅・不動産がサポートします。

78 並び替え
チェックした物件を一括で
選択 物件タイプ
画像
所在地/交通
(駅/バス 所要時間)
賃料
管理費等
礼金/敷金
保証金/敷引・償却
使用部分面積
土地面積
築年月
築年数
new

千葉県市川市市川南1丁目

  • 貸店舗(建物一部)
  • 千葉県市川市市川南1丁目
    間取り図
千葉県市川市市川南1丁目
JR総武本線 市川駅 徒歩1分
50.6
万円

22,000円
なし / なし
なし / -
62.15m2
-
1990年12月(築35年)
  • 1階
  • 即引き渡し可
  • 飲食店可
  • 駅から徒歩1分以内
NAVI HOME(株)

市川メトロプラザ5

  • 貸事務所
  • 市川メトロプラザ5
    間取り図
千葉県市川市市川1丁目
JR総武・中央緩行線 市川駅 徒歩1分
京成本線 市川真間駅 徒歩9分
都営新宿線 本八幡駅 徒歩26分
21.14
万円

25,361円
1ヶ月 / なし
4ヶ月 / 解約時1.00ヶ月償却
50.82m2
-
2008年9月(築17年3ヶ月)
  • 即引き渡し可
  • 駅から徒歩1分以内
  • 2階以上
  • エレベーター
(株)きめたハウジング 新宿営業所

大杉書店ビル

  • 貸店舗(建物一部)
  • 大杉書店ビル
千葉県市川市市川1丁目
JR総武本線 市川駅 徒歩2分
JR総武・中央緩行線 市川駅 徒歩4分
京成本線 市川真間駅 徒歩7分
66
万円

-
1ヶ月 / なし
8ヶ月 / -
95.87m2
-
1962年8月(築63年4ヶ月)
  • 駅から徒歩5分以内
  • 2階以上
(株)エース・プランニング

THREEGATE BLDG

  • 貸店舗(建物一部)
  • THREEGATE BLDG
    間取り図
千葉県市川市新田5丁目
JR総武本線 市川駅 徒歩3分
JR総武・中央緩行線 市川駅 徒歩3分
京成本線 市川真間駅 徒歩6分
52.1
万円

33,000円
2ヶ月 / なし
6ヶ月 / 解約時10.00%償却
90.65m2
-
2023年8月(築2年4ヶ月)
  • 即引き渡し可
  • 飲食店可
  • 築3年以内
  • 駅から徒歩5分以内
  • 2階以上
(株)アセットナビ

市川3丁目店舗

  • 貸店舗(建物一部)
  • 市川3丁目店舗
    間取り図
千葉県市川市市川3丁目
JR総武本線 市川駅 徒歩14分
京成本線 国府台駅 徒歩5分
京成本線 市川真間駅 徒歩12分
8.8
万円

-
1ヶ月 / 3ヶ月
なし / 1ヶ月
41.81m2
-
1972年4月(築53年8ヶ月)
  • 1階
  • 即引き渡し可
  • 駐車場(近隣含)
  • 駅から徒歩5分以内
(株)大川

ライオンズステーションプラザ市川国府台

  • 貸店舗・事務所
  • ライオンズステーションプラザ市川国府台
    間取り図
千葉県市川市市川3丁目
JR総武本線 市川駅 徒歩17分
京成本線 国府台駅 徒歩1分
京成本線 市川真間駅 徒歩15分
16.5
万円

-
1ヶ月 / なし
5ヶ月 / 解約時2.00ヶ月償却
62.55m2
-
1995年10月(築30年2ヶ月)
  • 1階
  • 駅から徒歩1分以内
吉田不動産(株) 西船橋駅南口店

ザ・タワーズ・ウエスト

  • 貸店舗・事務所
  • ザ・タワーズ・ウエスト
    間取り図
千葉県市川市市川南1丁目
JR総武・中央緩行線 市川駅 徒歩1分
JR総武本線 市川駅 徒歩1分
京成本線 市川真間駅 徒歩11分
123.2
万円

110,000円
1ヶ月 / なし
5ヶ月 / 解約時1.00ヶ月償却
188.79m2
-
2009年1月(築16年11ヶ月)
  • 飲食店可
  • 駅から徒歩1分以内
  • 2階以上
(株)総合店舗開発

千葉県市川市新田4丁目

  • 貸駐車場
  • 千葉県市川市新田4丁目
千葉県市川市新田4丁目
JR総武・中央緩行線 市川駅 徒歩8分
京成本線 市川真間駅 徒歩13分
1.5
万円

-
なし / 1ヶ月
なし / -
-
-
-
  • 駅から徒歩10分以内
青山コーポレーション(株)

千葉県市川市市川南2丁目

  • 貸駐車場
  • NO PHOTO
千葉県市川市市川南2丁目
JR総武・中央緩行線 市川駅 徒歩11分
1.4
万円

-
なし / なし
なし / -
-
-
-
  • 駅から徒歩15分以内
長谷川宅建(株)

京成市川ビル

  • 貸店舗・事務所
  • 京成市川ビル
千葉県市川市市川1丁目
JR総武・中央緩行線 市川駅 徒歩1分
京成本線 市川真間駅 徒歩8分
京成本線 菅野駅 徒歩15分
41.07
万円

なし
なし / 6ヶ月
なし / -
68.56m2
-
1987年3月(築38年9ヶ月)
  • 1階
  • 即引き渡し可
  • 駅から徒歩1分以内
(株)シンキング

東京都江戸川区篠崎町7丁目

  • 貸倉庫
  • 東京都江戸川区篠崎町7丁目
    間取り図
東京都江戸川区篠崎町7丁目
JR総武・中央緩行線 市川駅 徒歩5.1km
都営新宿線 篠崎駅 徒歩7分
都営新宿線 瑞江駅 徒歩26分
66
万円

なし
2ヶ月 / なし
4ヶ月 / 2ヶ月
202.13m2
337.17m2
1991年3月(築34年9ヶ月)
  • 即引き渡し可
  • 駐車場(近隣含)
  • 駅から徒歩7分以内
(株)ステージ

千葉県市川市真間2丁目

  • 貸店舗・事務所
  • 千葉県市川市真間2丁目
    間取り図
千葉県市川市真間2丁目
JR総武・中央緩行線 市川駅 徒歩8分
京成本線 市川真間駅 徒歩7分
京成本線 国府台駅 徒歩9分
19.8
万円

11,000円
1ヶ月 / 3ヶ月
なし / 解約時1.00ヶ月償却
59.5m2
-
1973年1月(築52年11ヶ月)
  • 即引き渡し可
  • 駅から徒歩7分以内
  • 2階以上
トップクォーター(株)

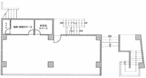
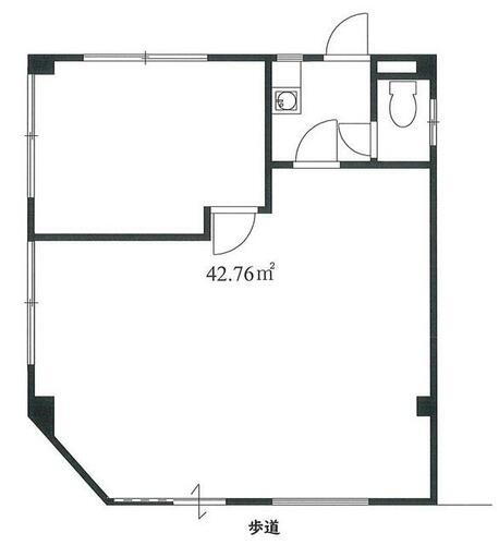
「ロードサイド店舗 県道6号線 12.93坪の1F店舗 事務所仕様」

  • 貸店舗・事務所
  • 「ロードサイド店舗 県道6号線 12.93坪の1F店舗 事務所仕様」
    間取り図
千葉県市川市稲荷木1丁目
JR総武・中央緩行線 市川駅 徒歩34分
JR総武・中央緩行線 本八幡駅 徒歩14分
JR総武・中央緩行線 下総中山駅 徒歩26分
16.5
万円

-
1ヶ月 / 2ヶ月
なし / -
42.76m2
-
1989年7月(築36年5ヶ月)
  • 1階
  • 駅から徒歩15分以内
リフィックス・コンサルティング(株)

千葉県市川市市川南1丁目

  • 貸店舗(建物一部)
  • NO PHOTO
千葉県市川市市川南1丁目
JR総武本線 市川駅 徒歩1分
39.6
万円

55,000円
2ヶ月 / なし
6ヶ月 / 更新時10.00%償却
74.36m2
-
2008年1月(築17年11ヶ月)
  • 1階
  • 駅から徒歩1分以内
(株)メインランド

千葉県市川市市川4丁目

  • 貸店舗(建物一部)
  • 千葉県市川市市川4丁目
千葉県市川市市川4丁目
JR総武本線 市川駅 徒歩20分
京成本線 国府台駅 徒歩5分
22
万円

なし
1ヶ月 / 3ヶ月
なし / 1ヶ月
69.56m2
-
1983年11月(築42年1ヶ月)
  • 1階
  • 即引き渡し可
  • 飲食店可
  • 駅から徒歩5分以内
(有)清幸ハウジング

千葉県市川市国分2丁目

  • 貸店舗・事務所
  • 千葉県市川市国分2丁目
    間取り図
千葉県市川市国分2丁目
JR総武本線 市川駅 バス10分/「国分角」バス停 停歩1分
18.7
万円

5,000円
1ヶ月 / 2ヶ月
なし / -
49.48m2
-
1978年4月(築47年8ヶ月)
  • 1階
春日住宅(株)

ザ・タワーズ・ウエスト

  • 貸店舗(建物一部)
  • ザ・タワーズ・ウエスト
    間取り図
千葉県市川市市川南1丁目
JR総武本線 市川駅 徒歩1分
118.8
万円

110,000円
1ヶ月 / なし
5ヶ月 / 解約時1.00ヶ月償却
188.79m2
10440.88m2
2009年1月(築16年11ヶ月)
  • 駅から徒歩1分以内
  • 2階以上
(株)南柏リビング

ザ・タワーズ・ウエスト

  • 貸店舗(建物一部)
  • ザ・タワーズ・ウエスト
    間取り図
千葉県市川市市川南1丁目
JR総武本線 市川駅 徒歩1分
118.8
万円

110,000円
1ヶ月 / なし
5ヶ月 / 解約時1.00ヶ月償却
188.79m2
10440.88m2
2009年1月(築16年11ヶ月)
  • 駅から徒歩1分以内
  • 2階以上
ミレニアムプロジェクト(有)

ザ・タワーズ・ウエスト

  • 貸店舗(建物一部)
  • ザ・タワーズ・ウエスト
    間取り図
千葉県市川市市川南1丁目
JR総武本線 市川駅 徒歩1分
118.8
万円

110,000円
1ヶ月 / なし
5ヶ月 / 解約時1.00ヶ月償却
188.79m2
10440.88m2
2009年1月(築16年11ヶ月)
  • 駅から徒歩1分以内
  • 2階以上
ロジソーコ ゼクス(株)
チェックした物件を一括で

竹田駐車場

  • 貸駐車場
  • NO PHOTO
千葉県市川市大洲3丁目
JR総武・中央緩行線 市川駅 徒歩17分
1.65
万円

-
なし / 1ヶ月
なし / -
-
-
-
  • 駅から徒歩20分以内
(有)南口不動産

千葉県市川市市川4丁目

  • 貸事務所
  • 千葉県市川市市川4丁目
    間取り図
千葉県市川市市川4丁目
JR総武本線 市川駅 徒歩21分
JR総武・中央緩行線 市川駅 徒歩23分
京成本線 国府台駅 徒歩6分
4.95
万円

5,500円
2ヶ月 / なし
なし / -
21.45m2
82.81m2
1988年5月(築37年7ヶ月)
  • 1階
  • 駅から徒歩7分以内
(株)宅建

クオーレプロバンス篠崎

  • 貸店舗・事務所
  • クオーレプロバンス篠崎
    間取り図
東京都江戸川区篠崎町2丁目
JR総武・中央緩行線 市川駅 徒歩5.1km
都営新宿線 篠崎駅 徒歩1分
都営新宿線 瑞江駅 徒歩27分
22.96
万円

なし
なし / 6ヶ月
なし / -
45.98m2
-
1993年3月(築32年9ヶ月)
  • 駅から徒歩1分以内
  • 2階以上
  • エレベーター
(株)シンキング

京成市川ビル

  • 貸店舗・事務所
  • 京成市川ビル
    間取り図
千葉県市川市市川1丁目
JR総武本線 市川駅 徒歩2分
京成本線 市川真間駅 徒歩4分
京成本線 菅野駅 徒歩14分
41.07
万円

なし
1ヶ月 / 6ヶ月
なし / -
68.57m2
-
1987年3月(築38年9ヶ月)
  • 1階
  • 即引き渡し可
  • 駅から徒歩5分以内
  • エレベーター
(株)クイックコンサルティング

千葉県市川市市川南1丁目

  • 貸店舗・事務所
  • 千葉県市川市市川南1丁目
    間取り図
千葉県市川市市川南1丁目
JR総武・中央緩行線 市川駅 徒歩2分
JR総武本線 市川駅 徒歩4分
京成本線 市川真間駅 徒歩10分
118.8
万円

110,000円
1ヶ月 / なし
540万円 / -
188.79m2
-
2009年1月(築16年11ヶ月)
  • 即引き渡し可
  • 駅から徒歩5分以内
  • 2階以上
  • エレベーター
(株)リブート

アルファグランデ市川国府台 小型ロールーフ車室

  • 貸駐車場
  • NO PHOTO
千葉県市川市市川3丁目
JR総武・中央緩行線 市川駅 徒歩16分
京成本線 国府台駅 徒歩2分
1.05
万円

-
なし / なし
なし / -
-
-
-
  • 駅から徒歩5分以内
(株)エリア・パーキング

大杉書店ビル

  • 貸店舗(建物一部)
  • 大杉書店ビル
千葉県市川市市川1丁目
JR総武本線 市川駅 徒歩2分
JR総武・中央緩行線 市川駅 徒歩4分
京成本線 市川真間駅 徒歩7分
66
万円

-
1ヶ月 / なし
8ヶ月 / -
95.87m2
-
1962年8月(築63年4ヶ月)
  • 駅から徒歩5分以内
  • 2階以上
(株)クイックリアル

大杉書店ビル

  • 貸店舗(建物一部)
  • 大杉書店ビル
千葉県市川市市川1丁目
JR総武本線 市川駅 徒歩2分
JR総武・中央緩行線 市川駅 徒歩4分
京成本線 市川真間駅 徒歩7分
66
万円

-
1ヶ月 / なし
8ヶ月 / -
95.87m2
-
1962年8月(築63年4ヶ月)
  • 駅から徒歩5分以内
  • 2階以上
ロジソーコ ゼクス(株)

THREEGATE BLDG.

  • 貸店舗・事務所
  • THREEGATE BLDG.
    間取り図
千葉県市川市新田5丁目
JR総武本線 市川駅 徒歩2分
京成本線 市川真間駅 徒歩5分
京成本線 菅野駅 徒歩14分
66
万円

33,000円
2ヶ月 / 2ヶ月
なし / 10%
100m2
-
2023年8月(築2年4ヶ月)
  • 即引き渡し可
  • 飲食店可
  • 築3年以内
  • 駅から徒歩5分以内
  • 2階以上
  • エレベーター
(株)クイックコンサルティング

THREEGATE BLDG.

  • 貸店舗・事務所
  • THREEGATE BLDG.
    間取り図
千葉県市川市新田5丁目
JR総武本線 市川駅 徒歩2分
京成本線 市川真間駅 徒歩5分
京成本線 菅野駅 徒歩14分
66
万円

33,000円
2ヶ月 / 2ヶ月
なし / 10%
100m2
-
2023年8月(築2年4ヶ月)
  • 即引き渡し可
  • 飲食店可
  • 築3年以内
  • 駅から徒歩5分以内
  • 2階以上
  • エレベーター
(株)クイックコンサルティング

THREEGATE BLDG.

  • 貸店舗・事務所
  • THREEGATE BLDG.
    間取り図
千葉県市川市新田5丁目
JR総武本線 市川駅 徒歩2分
京成本線 市川真間駅 徒歩5分
京成本線 菅野駅 徒歩14分
132
万円

66,000円
2ヶ月 / 2ヶ月
なし / 10%
200m2
-
2023年8月(築2年4ヶ月)
  • 即引き渡し可
  • 飲食店可
  • 築3年以内
  • 駅から徒歩5分以内
  • 2階以上
  • エレベーター
(株)クイックコンサルティング

千葉県市川市新田5丁目

  • 貸店舗・事務所
  • 千葉県市川市新田5丁目
    間取り図
千葉県市川市新田5丁目
JR総武本線 市川駅 徒歩7分
京成本線 市川真間駅 徒歩7分
京成本線 菅野駅 徒歩10分
26.4
万円

22,000円
1ヶ月 / なし
150万円 / 解約時30.00%償却
69.73m2
-
1990年1月(築35年11ヶ月)
  • 1階
  • 即引き渡し可
  • 飲食店可
  • 駅から徒歩7分以内
(株)リブート

千葉県市川市市川1丁目

  • 貸店舗・事務所
  • 千葉県市川市市川1丁目
    間取り図
千葉県市川市市川1丁目
JR総武・中央緩行線 市川駅 徒歩2分
41.07
万円

なし
なし / 6ヶ月
なし / -
68.56m2
-
1987年3月(築38年9ヶ月)
  • 1階
  • 即引き渡し可
  • 駐車場(近隣含)
  • 駅から徒歩5分以内
トップクォーター(株)

たちばな駐車場

  • 貸駐車場
  • たちばな駐車場
千葉県市川市市川南1丁目
JR総武・中央緩行線 市川駅 徒歩3分
2.42
万円

-
1ヶ月 / なし
なし / -
-
-
-
  • 駅から徒歩5分以内
(株)墨田地所

曙駐車場

  • 貸駐車場
  • NO PHOTO
千葉県市川市市川南1丁目
JR総武・中央緩行線 市川駅 徒歩5分
1.87
万円

-
なし / 1.87万円
なし / -
-
-
-
  • 即引き渡し可
  • 駅から徒歩5分以内
長谷川宅建(株)

Y・K駐車場

  • 貸駐車場
  • Y・K駐車場
千葉県市川市市川南2丁目
JR総武・中央緩行線 市川駅 徒歩8分
1.82
万円

-
1ヶ月 / なし
なし / -
-
-
-
  • 駅から徒歩10分以内
(株)墨田地所

クボデラ駐車場

  • 貸駐車場
  • クボデラ駐車場
千葉県市川市新田2丁目
JR総武・中央緩行線 市川駅 徒歩9分
1.43
万円

なし
1ヶ月 / なし
なし / -
-
-
-
  • 駅から徒歩10分以内
(株)墨田地所

THREEGATE BLDG

  • 貸店舗・事務所
  • THREEGATE BLDG
    間取り図
千葉県市川市新田5丁目
JR総武・中央緩行線 市川駅 徒歩2分
60
万円

33,000円
2ヶ月 / なし
6ヶ月 / 更新時10.00%償却
100m2
-
2023年9月(築2年3ヶ月)
  • 築3年以内
  • 駅から徒歩5分以内
  • 2階以上
(株)宅建

千葉県市川市市川1丁目

  • 貸店舗・事務所
  • 千葉県市川市市川1丁目
    間取り図
千葉県市川市市川1丁目
JR総武・中央緩行線 市川駅 徒歩2分
京成本線 市川真間駅 徒歩6分
京成本線 国府台駅 徒歩16分
66
万円

なし
1ヶ月 / なし
8ヶ月 / -
95.87m2
-
1962年8月(築63年4ヶ月)
  • 駅から徒歩5分以内
  • 2階以上
(株)ステージ

ままがーでん 2階 貸店舗・事務所

  • 貸店舗(建物一部)
  • ままがーでん 2階 貸店舗・事務所
千葉県市川市新田5丁目
JR総武本線 市川駅 徒歩8分
JR総武・中央緩行線 市川駅 徒歩8分
京成本線 市川真間駅 徒歩2分
88
万円

なし
1ヶ月 / なし
6ヶ月 / 更新時30.00%償却
134.33m2
-
1974年8月(築51年4ヶ月)
  • 駅から徒歩5分以内
  • 2階以上
  • エレベーター
(株)宅建

千葉県市川市市川1丁目

  • 貸店舗(建物一部)
  • 千葉県市川市市川1丁目
    間取り図
千葉県市川市市川1丁目
JR総武本線 市川駅 徒歩4分
京成本線 市川真間駅 徒歩5分
11
万円

なし
1ヶ月 / なし
66万円 / 解約時2.00ヶ月償却
20.47m2
-
1971年3月(築54年9ヶ月)
  • 1階
  • 駅から徒歩5分以内
(株)HKPM
チェックした物件を一括で
  • チェックした物件をまとめて
78
表示件数 12 次へ
OCN×ドコモ光新規お申込みで合計最大137,280円相当おトク!特典の内訳・適用条件など詳細はこちら

条件を選択

賃料
広さ
物件タイプ
築年数
駅からの時間
こだわり条件
画像
情報の新しさ
フリーワード

市川駅の住みやすさ情報

市川駅ってどんなところ?

市川駅はJR総武線が乗り入れる駅で、徒歩10分程の位置にある市川真間駅から京成本線も利用できます。乗り換えなしで東京駅まで約20分、千葉駅まで約21分とアクセスの良さが魅力。
駅直結のシャポー市川のほか、駅周辺にスーパーも多く買い物の利便性は抜群。飲食店もそろいます。
駅の近くを江戸川が流れ、河川敷の緑地でリフレッシュできるなど自然を感じられるエリア。夏の市川市民納涼花火大会には各地から多くの人が集まります。

駅ガイド

小池 正也

二級建築士/宅地建物取引士/マンション管理士など

建築業・不動産仲介業で約20年のキャリアを持ち、不動産にまつわるさまざまな相談に対応。一期一会を大切に、中立的・多角的なアドバイスを行う。

市川市の暮らしデータ

人口などの統計情報

世帯数 242637世帯
人口総数 492895人
転入者数 30850人
転入率(人口1000人当たり)
62.59人
転出者数 28100人
転出率(人口1000人当たり)
57.01人
土地平均価格
住宅地
296711円/m2
商業地
1488000円/m2

市川市の治安・ごみ収集情報

公共料金・インフラ

ガス料金(22m3使用した場合の月額) 京葉瓦斯株式会社4515円
水道料金(口径20mmで20m3の月額) 千葉県営水道3250円
下水道料金(20m3を使用した場合の月額) 市川市2634円
下水道普及率 79.0%

安心・安全

建物火災出火件数 44件
人口10000人当たり
0.89件
刑法犯認知件数 2719件
人口1000人当たり
5.47件
ハザード・防災マップ あり

医療

一般病院総数 10ヶ所
一般診療所総数 321ヶ所
小児科医師数 55人
小児人口10000人当たり
9.82人
産婦人科医師数 31人
15~49歳女性人口1万人当たり
2.88人
介護保険料基準額(月額) 6200円

ごみ

家庭ごみ収集(可燃ごみ) 無料
備考
指定ごみ袋は有料だが、袋代にごみ収集・処理料金等を含まず。
家庭ごみの分別方式 6分別12種〔燃やすごみ 燃やさないごみ 有害ごみ プラスチック製容器包装類 紙類・布類(新聞、雑誌、ダンボール、紙パック、布類) ビン カン 剪定枝〕
家庭ごみの戸別収集 未実施
粗大ごみ収集 あり
備考
有料。戸別収集。事前申込制。大型ごみ専用電話に申し込み。処理券を貼付。
生ごみ処理機助成金制度 なし
上限金額
-
上限比率
-
暮らしデータ提供元:生活ガイド.com
※行政機関により公表していない地域及びデータがございます。東京23区以外の政令指定都市は、市全体のデータとして表示しています。
※提供データには細心の注意を払っておりますが、調査後に変更がある場合があります。 最新の情報につきましては各市区役所までお問い合わせいただくか、自治体HPなどをご確認ください。

家賃相場

更新日:2025年11月10日

市川駅の家賃相場

  50㎡~80㎡ 80㎡~100㎡ 100㎡~150㎡ 150㎡~200㎡ 200㎡以上
貸事務所 32.9万円 - 59.5万円 - -
貸店舗 32万円 60.8万円 63.3万円 119.7万円 190.7万円
貸土地 - - - - -
貸ビル・貸倉庫・その他 - - - - -
  月極駐車場
月極駐車場 1.6万円

周辺駅の家賃相場

  本八幡 小岩 下総中山 新小岩 西船橋
貸事務所 16.7万円 17.9万円 18.6万円 33.3万円 23.5万円
貸店舗 24.3万円 17.6万円 - 36.7万円 -
貸土地 - - - - -
貸ビル・貸倉庫・その他 - - - - -
月極駐車場 1.5万円 1.5万円 0.6万円 1.9万円 1.3万円
※このデータはgoo住宅・不動産に掲載されている店舗の平均賃料(管理費・駐車場代などを除く)を算出したものです。ただし5戸以上の掲載があるものについてのみ対象とします。
※周辺駅の家賃相場は広さ50㎡~80㎡と駐車場の平均賃料を算出したものです。

千葉県の人気の街アクセスランキング(店舗・事業用)

※このランキングは2025年10月01日~31日における各ページのアクセス数から算出しています。
アプリで簡単 物件探し 大手不動産サイトの情報から一括検!プッシュ通知で物件を見逃さない
App Storeからダウンロード Google Playで手に入れよう QRコード