アプリで簡単 物件探し 通知 共有 アプリならではの機能を使ってみる
RSS

倉賀野駅(群馬県)の賃貸物件(賃貸マンション・アパート) 物件一覧

倉賀野駅(群馬県)の賃貸マンション、アパート、賃貸一戸建て、借家などの賃貸物件をご紹介します。賃貸マンション・賃貸アパートなどの賃貸物件情報を探すならgoo住宅・不動産。賃料・専有面積・間取り・写真・人気のこだわり条件から物件を簡単検索。理想の部屋探しをgoo住宅・不動産がサポートします。

探したい物件の路線・検索条件を変更して再検索

路線
検索条件 間取り:2LDK(+S) 物件タイプ:一戸建て
16 並び替え
チェックした物件を一括で
シャンドフルール II

シャンドフルール II

群馬県高崎市綿貫町

八高線 北藤岡駅 徒歩33分
高崎線 倉賀野駅 徒歩3.2km
賃貸一戸建て築7年11ヶ月
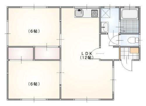
  間取り図賃料管理費等敷/礼/保証/敷引・償却間取り/広さ  
  • 1階
間取り図8.5万円4,500円なし / 1ヶ月
- / -
2LDK
59.72m2
  • 敷金なし
  • 二人暮らし
  • バス・トイレ別
  • 駐車場(近隣含)
  • 角部屋
  • モニタ付インターホン
  • 収納スペース
  • 室内洗濯機置き場
おすすめポイント
お部屋探しはLIXIL賃貸ショップ コガネイハウジングへ!
野村貸住宅

野村貸住宅

群馬県佐波郡玉村町大字上新田

高崎線 新町駅 徒歩4.6km
高崎線 倉賀野駅 徒歩6.0km
賃貸一戸建て築34年4ヶ月
  間取り図賃料管理費等敷/礼/保証/敷引・償却間取り/広さ  
  • 1階
間取り図5.5万円-1ヶ月 / なし
- / -
2LDK
52.99m2
  • 礼金なし
  • 二人暮らし
  • バス・トイレ別
  • 駐車場(近隣含)
  • モニタ付インターホン
  • エアコン付き
  • 洗面所独立
  • 見学予約可
おすすめポイント
全居室フローリング☆駐車場2台付き♪
群馬県高崎市綿貫町 1階建 築7年1ヶ月

群馬県高崎市綿貫町 築7年1ヶ月 1階建

群馬県高崎市綿貫町

JR八高線 北藤岡駅 徒歩27分
JR高崎線 倉賀野駅 徒歩37分
JR高崎線 新町駅 徒歩4.7km
賃貸一戸建て築7年1ヶ月
  間取り図賃料管理費等敷/礼/保証/敷引・償却間取り/広さ  
  • 1階
間取り図8.5万円4,500円なし / 1ヶ月
なし / -
2LDK
59.72m2
動画あり
  • 敷金なし
  • 二人暮らし
  • バス・トイレ別
  • 駐車場(近隣含)
  • 最上階
  • 角部屋
  • 南向き
  • モニタ付インターホン
おすすめポイント
二人入居可・駐車場2台分・角部屋・最上階・浴室1坪以上・日当り良好・閑静な住宅街・デザイナーズ物件・保証人不要/代行 ・初期費用カード決済可
シャンドフルール II

シャンドフルール II

群馬県高崎市綿貫町

JR八高線 北藤岡駅 徒歩27分
JR高崎線 倉賀野駅 徒歩37分
JR高崎線 新町駅 徒歩4.7km
賃貸一戸建て築7年1ヶ月
  間取り図賃料管理費等敷/礼/保証/敷引・償却間取り/広さ  
  • 1階
間取り図8.5万円4,500円なし / 1ヶ月
なし / -
2LDK
59.72m2
  • 敷金なし
  • 二人暮らし
  • バス・トイレ別
  • 駐車場(近隣含)
  • 最上階
  • 角部屋
  • モニタ付インターホン
  • 収納スペース
おすすめポイント
角部屋・最上階・浴室1坪以上・初期費用カード決済可
間取り図8.5万円4,500円なし / 1ヶ月
なし / -
2LDK
59.72m2
  • 敷金なし
  • 二人暮らし
  • バス・トイレ別
  • 駐車場(近隣含)
  • 最上階
  • 角部屋
  • 24時間セキュリティ
  • モニタ付インターホン
おすすめポイント
角部屋・24時間セキュリティ・最上階・初期費用カード決済可
シャンドフルールII

シャンドフルールII

群馬県高崎市綿貫町

JR八高線 北藤岡駅 徒歩28分
JR高崎線 倉賀野駅 徒歩35分
JR高崎線 新町駅 徒歩4.8km
賃貸一戸建て築7年1ヶ月
  間取り図賃料管理費等敷/礼/保証/敷引・償却間取り/広さ  
  • 1階
間取り図8.5万円4,500円なし / 8.5万円
なし / -
2LDK
59.72m2
  • 敷金なし
  • 二人暮らし
  • バス・トイレ別
  • 駐車場(近隣含)
  • 角部屋
  • 南向き
  • モニタ付インターホン
  • 収納スペース
おすすめポイント
二人入居可・角部屋・浴室1坪以上・日当り良好・閑静な住宅街
群馬県高崎市綿貫町 1階建 築7年1ヶ月

群馬県高崎市綿貫町 築7年1ヶ月 1階建

群馬県高崎市綿貫町

JR高崎線 倉賀野駅 徒歩37分
JR高崎線 新町駅 徒歩4.7km
JR八高線 北藤岡駅 徒歩27分
賃貸一戸建て築7年1ヶ月
  間取り図賃料管理費等敷/礼/保証/敷引・償却間取り/広さ  
  • 1階
間取り図8.5万円4,500円なし / 1ヶ月
なし / -
2LDK
59.72m2
動画あり
  • 敷金なし
  • 二人暮らし
  • バス・トイレ別
  • 駐車場(近隣含)
  • 最上階
  • 角部屋
  • 南向き
  • モニタ付インターホン
おすすめポイント
二人入居可・駐車場2台分・角部屋・管理人巡回・最上階・浴室1坪以上・閑静な住宅街・デザイナーズ物件・保証人不要/代行 ・ルームシェア可
間取り図8.5万円4,500円なし / 1ヶ月
なし / -
2LDK
59.72m2
  • 敷金なし
  • 二人暮らし
  • バス・トイレ別
  • 駐車場(近隣含)
  • 最上階
  • 角部屋
  • 南向き
  • 24時間セキュリティ
おすすめポイント
二人入居可・閑静な住宅街・駐車場2台分・角部屋・管理人巡回・24時間換気システム・24時間セキュリティ・最上階・デザイナーズ物件・保証人不要/代行
ヴィラ ルミエールB

ヴィラ ルミエールB

群馬県佐波郡玉村町大字上之手

JR高崎線 新町駅 徒歩3.7km
JR八高線 北藤岡駅 徒歩4.1km
JR高崎線 倉賀野駅 徒歩6.3km
賃貸一戸建て築16年12ヶ月
  間取り図賃料管理費等敷/礼/保証/敷引・償却間取り/広さ  
  • 1階
間取り図6.7万円6,000円なし / 6.7万円
なし / -
2LDK
52.62m2
動画あり
  • 敷金なし
  • 二人暮らし
  • バス・トイレ別
  • 駐車場(近隣含)
  • 最上階
  • 角部屋
  • 南向き
  • モニタ付インターホン
おすすめポイント
駐車場2台分・角部屋・最上階
群馬県佐波郡玉村町大字上之手 1階建 築36年11ヶ月

群馬県佐波郡玉村町大字上之手 築36年11ヶ月 1階建

群馬県佐波郡玉村町大字上之手

JR高崎線 新町駅 徒歩4.0km
JR八高線 北藤岡駅 徒歩4.1km
JR高崎線 倉賀野駅 徒歩6.3km
賃貸一戸建て築36年11ヶ月
  間取り図賃料管理費等敷/礼/保証/敷引・償却間取り/広さ  
間取り図4.8万円なし1ヶ月 / なし
なし / -
2LDK
48.6m2
  • 礼金なし
  • 二人暮らし
  • バス・トイレ別
  • 駐車場(近隣含)
  • 南向き
  • 室内洗濯機置き場
  • エアコン付き
  • 洗面所独立
おすすめポイント
駐車場2台分・日当り良好
野村住宅

野村住宅

群馬県佐波郡玉村町大字上新田

JR高崎線 新町駅 徒歩4.4km
JR八高線 北藤岡駅 徒歩4.5km
JR高崎線 倉賀野駅 徒歩6.0km
賃貸一戸建て築32年11ヶ月
  間取り図賃料管理費等敷/礼/保証/敷引・償却間取り/広さ  
間取り図5.5万円なし1ヶ月 / なし
なし / -
2LDK
52.25m2
  • 礼金なし
  • 二人暮らし
  • バス・トイレ別
  • 駐車場(近隣含)
  • 南向き
  • 室内洗濯機置き場
  • エアコン付き
  • 洗面所独立
おすすめポイント
駐車場3台分以上・日当り良好
群馬県佐波郡玉村町大字上新田 1階建 築34年4ヶ月

群馬県佐波郡玉村町大字上新田 築34年4ヶ月 1階建

群馬県佐波郡玉村町大字上新田

JR高崎線 新町駅 徒歩4.6km
JR高崎線 倉賀野駅 徒歩6.0km
JR八高線 群馬藤岡駅 徒歩7.2km
賃貸一戸建て築34年4ヶ月
  間取り図賃料管理費等敷/礼/保証/敷引・償却間取り/広さ  
  • 1階
間取り図5.5万円なし1ヶ月 / なし
なし / -
2LDK
52.99m2
  • 礼金なし
  • 二人暮らし
  • バス・トイレ別
  • 駐車場(近隣含)
  • 最上階
  • モニタ付インターホン
  • 収納スペース
  • エアコン付き
おすすめポイント
二人入居可・駐車場3台分以上・最上階・保証人不要/代行 ・初期費用カード決済可
間取り図5.5万円なし1ヶ月 / なし
なし / -
2LDK
52.99m2
  • 礼金なし
  • 二人暮らし
  • バス・トイレ別
  • 駐車場(近隣含)
  • モニタ付インターホン
  • エアコン付き
  • 洗面所独立
  • 温水洗浄便座
おすすめポイント
二人入居可・駐車場2台分・保証人不要/代行 ・初期費用カード決済可
チェックした物件を一括で
  • チェックした物件をまとめて
16
表示建物数
OCN×ドコモ光新規お申込みで合計最大137,280円相当おトク!特典の内訳・適用条件など詳細はこちら

条件を指定する

賃料

    

          

専有面積
築年数
駅徒歩
間取り
物件タイプ
人気のこだわり条件

さらに詳しくこだわり条件を指定する

建物構造
位置
セキュリティ
バス・トイレ
キッチン
収納
室内設備
建物設備
駐車場・駐輪場
入居条件
契約条件
特徴
テレビ・通信
お得な条件
フリーワード
画像・動画
情報の新しさ
オンライン予約

高崎市の暮らしデータ

人口などの統計情報

世帯数 160565世帯
人口総数 367861人
転入者数 14201人
転入率(人口1000人当たり)
38.60人
転出者数 13039人
転出率(人口1000人当たり)
35.45人
土地平均価格
住宅地
51829円/m2
商業地
138042円/m2

結婚・育児の助成金

子育て関連の独自の取り組み 【高崎市子育てなんでもセンター】子育て中の人や妊娠中の人が、1ヶ所で子育て支援、就労支援、託児等のさまざまな相談ができ、必要な支援を受けられる子育て支援の拠点であり、安心して子どもを産み、育てることができるよう、市・関係機関・NPO団体等が一体となって運営している。特に、同センター内にある託児施設「高崎キッズサポートかしの木」は、子育て中のリフレッシュとして、買い物や映画鑑賞等の際に気軽な利用が可能で、大変好評を頂いている。さらに、人口増加地域である群馬地域において、託児施設「高崎キッズサポートけやき」を開設し、子育て環境の充実を図っている(利用料:1時間300円)。
出産祝い あり
公立保育所数 21所(うち0歳児保育を実施している保育所:21所)
私立保育所数 32所(うち0歳児保育を実施している保育所:32所)
保育所入所待機児童数 0人
認定こども園数 53園 預かり保育実施園数 公立:8園 私立:7園
学校給食 【小学校】完全給食【中学校】完全給食
公立中学校の学校選択制 一部実施
子ども・学生等医療費助成<通院>対象年齢 18歳3月末まで 子ども・学生等医療費助成<入院>対象年齢 18歳3月末まで

高崎市の治安・ごみ収集情報

公共料金・インフラ

ガス料金(22m3使用した場合の月額) 東京瓦斯株式会社(群馬地区)3648円
東京瓦斯株式会社(群馬南地区)3451円
水道料金(口径20mmで20m3の月額) 高崎市(倉渕地域)1450円
高崎市(吉井地域)2678円
高崎市(新町地域)2075円
高崎市(榛名地域)2408円
高崎市(箕郷地域)2311円
高崎市(群馬地域)1870円
高崎市(高崎地域)2506円
下水道料金(20m3を使用した場合の月額) 高崎市(吉井地域)2310円
高崎市(新町地域)2090円
高崎市(榛名地域)2420円
高崎市(箕郷地域)2311円
高崎市(群馬地域)2090円
高崎市(高崎地域)2173円
下水道普及率 77.3%

安心・安全

建物火災出火件数 52件
人口10000人当たり
1.39件
刑法犯認知件数 2200件
人口1000人当たり
5.90件
ハザード・防災マップ あり

医療

一般病院総数 24ヶ所
一般診療所総数 353ヶ所
小児科医師数 61人
小児人口10000人当たり
14.07人
産婦人科医師数 29人
15~49歳女性人口1万人当たり
4.17人
介護保険料基準額(月額) 6592円

ごみ

家庭ごみ収集(可燃ごみ) 無料
備考
-
家庭ごみの分別方式 【高崎地域・吉井地域・榛名地域・箕郷地域・群馬地域・倉渕地域】3分別16種〔可燃ごみ 不燃ごみ 資源ごみ(飲料缶、びん類[無色透明のびん、茶色のびん、その他の色びん]、ペットボトル、古紙類[新聞紙、段ボール、紙パック、雑誌・古本、雑紙、シュレッダー]、危険物[スプレー缶・カセットボンベ・ライター、乾電池、蛍光灯])〕 【新町地域】3分別17種〔可燃ごみ 不燃ごみ 資源ごみ(飲料缶、びん類[無色透明のびん、茶色のびん、その他の色びん]、ペットボトル、古紙類[新聞紙、段ボール、紙パック、雑誌・古本、雑紙、シュレッダー]、危険物[スプレー缶・カセットボンベ・ライター、乾電池、蛍光灯]、白色トレイ)〕
家庭ごみの戸別収集 一部実施(高齢者ごみ出しSOS)
粗大ごみ収集 あり
備考
有料。戸別収集。事前申込制。
生ごみ処理機助成金制度 あり
上限金額
30000円
上限比率
50.0%
暮らしデータ提供元:生活ガイド.com
※行政機関により公表していない地域及びデータがございます。東京23区以外の政令指定都市は、市全体のデータとして表示しています。
※提供データには細心の注意を払っておりますが、調査後に変更がある場合があります。 最新の情報につきましては各市区役所までお問い合わせいただくか、自治体HPなどをご確認ください。

家賃相場

更新日:2025年12月01日

倉賀野駅の家賃相場

  ワンルーム 1K・1DK 1LDK・2K・2DK 2LDK・3K・3DK 3LDK・4K・4DK
マンション 4.6万円 4.3万円 6.6万円 7.6万円 8.2万円
アパート 4.9万円 4.6万円 6.3万円 7万円 5.8万円
一戸建て - - - 6.8万円 12.9万円

周辺駅の家賃相場

  新町 高崎 神保原 本庄 岡部
マンション - 5万円 - 4.8万円 5.5万円
アパート 4.4万円 5.5万円 3.7万円 4.2万円 4.1万円
一戸建て - - - - -
※このデータはgoo住宅・不動産に掲載されている賃貸の平均賃料(管理費・駐車場代などを除く)を算出したものです。ただし10戸以上の掲載があるものについてのみ対象とします。
※周辺駅の家賃相場はワンルームの平均賃料(管理費・駐車場代などを除く)を算出したものです。

群馬県の人気の街アクセスランキング(賃貸)

※このランキングは2025年11月01日~30日における各ページのアクセス数から算出しています。
アプリで簡単 物件探し 大手不動産サイトの情報から一括検!プッシュ通知で物件を見逃さない
App Storeからダウンロード Google Playで手に入れよう QRコード