RSS

さいたま市の貸店舗 物件一覧

埼玉県さいたま市の貸店舗などの店舗・事業用物件をご紹介します。貸オフィス、貸ビル、貸倉庫、貸工場などの店舗・事業用物件情報を探すならgoo住宅・不動産。賃料・広さ・間取り・写真・人気のこだわり条件から物件を簡単検索。理想の物件探しをgoo住宅・不動産がサポートします。

貸店舗の店舗・事業用物件特集
事業で使える店舗をお探しの方にチェックしてほしい、貸店舗物件を紹介します。貸店舗は、物件別にエアコンや照明の有無、使える用途などが異なります。物件の間取りやすでにある設備を確認したうえで、内見を申し込むことがおすすめです。店舗の家賃は間取りや立地によって異なるので、物件別の特徴を見ておきましょう。

貸店舗の店舗・事業用物件特集

814 並び替え
12345 … 21 次へ
チェックした物件を一括で
選択 物件タイプ
画像
所在地/交通
(駅/バス 所要時間)
賃料
管理費等
礼金/敷金
保証金/敷引・償却
使用部分面積
土地面積
築年月
築年数
new

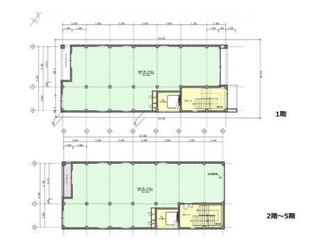
IDA TECHNOS XI

  • 貸店舗・事務所
  • IDA TECHNOS XI
    間取り図
埼玉県さいたま市中央区大字下落合
JR京浜東北・根岸線 与野駅 徒歩1分
35.3
万円

42,960円
なし / なし
96.27万円 / -
85.92m2
-
1983年6月(築42年6ヶ月)
  • 1階
  • 即引き渡し可
  • 駅から徒歩1分以内
  • エレベーター
オレンジホーム南浦和店 ((有)オレンジホーム南浦和店)
new

リュウジンマンション

  • 貸店舗・事務所
  • リュウジンマンション
    間取り図
埼玉県さいたま市大宮区桜木町2丁目
JR京浜東北・根岸線 大宮駅 徒歩3分
東武野田線 北大宮駅 徒歩22分
埼玉新都市交通 鉄道博物館(大成)駅 徒歩21分
7.15
万円

3,300円
なし / なし
2ヶ月 / -
15.3m2
-
1995年2月(築30年10ヶ月)
  • 駅から徒歩5分以内
  • 2階以上
佃不動産 (株)TUKUDAコーポレーション
new

埼玉県さいたま市南区南浦和2丁目

  • 貸店舗・事務所
  • NO PHOTO
埼玉県さいたま市南区南浦和2丁目
JR京浜東北・根岸線 南浦和駅 徒歩3分
JR京浜東北・根岸線 南浦和駅 徒歩2分
JR東北本線 浦和駅 徒歩21分
29.7
万円

-
1ヶ月 / 3ヶ月
なし / -
65.87m2
-
1988年6月(築37年6ヶ月)
  • 1階
  • 駐車場(近隣含)
  • 駅から徒歩5分以内
京王建設(株)
new

フォレナ東浦和

  • 貸店舗・事務所
  • フォレナ東浦和
    間取り図
埼玉県さいたま市緑区東浦和1丁目
JR武蔵野線 東浦和駅 徒歩3分
32.56
万円

22,000円
1ヶ月 / 2ヶ月
なし / -
60.99m2
-
2020年1月(築5年11ヶ月)
  • 1階
  • 即引き渡し可
  • 築10年以内
  • 駅から徒歩5分以内
センチュリー21 (株)エステル 大宮支店
new

仲町シロタビルEAST

  • 貸店舗・事務所
  • 仲町シロタビルEAST
    間取り図
埼玉県さいたま市大宮区仲町2丁目
JR京浜東北・根岸線 大宮駅 徒歩4分
埼玉新都市交通 大宮駅 徒歩6分
JR東北新幹線 大宮駅 徒歩6分
75.33
万円

78,540円
2ヶ月 / なし
10ヶ月 / -
94.32m2
-
2012年6月(築13年6ヶ月)
  • 即引き渡し可
  • 駐車場(近隣含)
  • 駅から徒歩5分以内
  • 2階以上
  • エレベーター
タイセーホームズ (株)大成総合不動産
new

埼玉県さいたま市北区宮原町3丁目

  • 貸店舗
  • 埼玉県さいたま市北区宮原町3丁目
    間取り図
埼玉県さいたま市北区宮原町3丁目
湘南新宿ライン(前橋~小田原) 宮原駅 徒歩5分
JR高崎線 宮原駅 徒歩5分
埼玉新都市交通 東宮原駅 徒歩12分
56.98
万円

なし
1ヶ月 / 6ヶ月
なし / -
182.28m2
-
1981年3月(築44年9ヶ月)
  • 即引き渡し可
  • 駅から徒歩5分以内
(株)バンダイ
new

埼玉県さいたま市大宮区吉敷町1丁目

  • 貸店舗(建物一部)
  • 埼玉県さいたま市大宮区吉敷町1丁目
    間取り図
埼玉県さいたま市大宮区吉敷町1丁目
JR京浜東北・根岸線 大宮駅 徒歩8分
JR京浜東北・根岸線 さいたま新都心駅 徒歩17分
35.2
万円

54,000円
1ヶ月 / なし
6ヶ月 / -
66.12m2
-
1999年9月(築26年3ヶ月)
  • 1階
  • 駐車場(近隣含)
  • 駅から徒歩10分以内
  • エレベーター
オレンジホーム南浦和店 ((有)オレンジホーム南浦和店)
new

埼玉県さいたま市緑区大字大崎

  • 貸店舗・事務所
  • 埼玉県さいたま市緑区大字大崎
埼玉県さいたま市緑区大字大崎
埼玉高速鉄道 浦和美園駅 バス15分/「浦和大学入り口」バス停 停歩1分
16.5
万円

なし
1ヶ月 / 2ヶ月
なし / -
113.4m2
213.41m2
2002年4月(築23年8ヶ月)
  • 駐車場(近隣含)
  • 2階以上
(株)オノデラ不動産
new

埼玉県さいたま市緑区大字大崎

  • 貸店舗・事務所
  • 埼玉県さいたま市緑区大字大崎
    間取り図
埼玉県さいたま市緑区大字大崎
埼玉高速鉄道 浦和美園駅 バス15分/「浦和大学入口」バス停 停歩1分
16.5
万円

なし
1ヶ月 / 2ヶ月
なし / -
113.4m2
213.41m2
2002年4月(築23年8ヶ月)
  • 駐車場(近隣含)
  • 2階以上
(株)メディコム
new

ブランバーチ ネロ

  • 貸店舗(建物一部)
  • ブランバーチ ネロ
    間取り図
埼玉県さいたま市北区別所町
JR高崎線 上尾駅 徒歩25分
19.8
万円

4,400円
1ヶ月 / 4ヶ月
なし / -
76.75m2
-
2025年11月
新築
  • 1階
  • 即引き渡し可
  • 飲食店可
  • 駐車場(近隣含)
  • 築1年以内
(有)ヒロックス

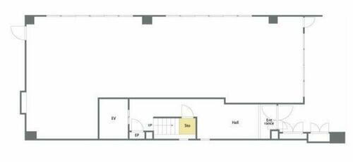
岩崎ビル

  • 貸店舗・事務所
  • 岩崎ビル
    間取り図
埼玉県さいたま市浦和区北浦和4丁目
JR京浜東北・根岸線 北浦和駅 徒歩1分
JR埼京線 南与野駅 徒歩19分
JR京浜東北・根岸線 与野駅 徒歩20分
29.7
万円

29,700円
2ヶ月 / 3ヶ月
なし / -
70.98m2
-
1989年3月(築36年9ヶ月)
  • 24時間セキュリティ
  • 即引き渡し可
  • 駅から徒歩1分以内
  • 2階以上
  • エレベーター
(株)クイックコンサルティング

埼玉県さいたま市中央区大字下落合

  • 貸店舗・事務所
  • 埼玉県さいたま市中央区大字下落合
    間取り図
埼玉県さいたま市中央区大字下落合
JR京浜東北・根岸線 与野駅 徒歩1分
32.09
万円

42,960円
なし / なし
96.27万円 / -
85.92m2
-
1983年6月(築42年6ヶ月)
  • 24時間セキュリティ
  • 1階
  • 飲食店可
  • 駅から徒歩1分以内
  • エレベーター
(株)オノデラ不動産

埼玉県さいたま市中央区大字下落合

  • 貸店舗・事務所
  • 埼玉県さいたま市中央区大字下落合
    間取り図
埼玉県さいたま市中央区大字下落合
JR京浜東北・根岸線 与野駅 徒歩1分
33.88
万円

47,256円
なし / なし
92.4万円 / 解約時1.00ヶ月償却
85.92m2
-
1983年6月(築42年6ヶ月)
  • 24時間セキュリティ
  • 駅から徒歩1分以内
  • 2階以上
  • エレベーター
(株)オノデラ不動産

岩崎ビル

  • 貸店舗・事務所
  • 岩崎ビル
    間取り図
埼玉県さいたま市浦和区北浦和4丁目
JR京浜東北・根岸線 北浦和駅 徒歩1分
JR埼京線 南与野駅 徒歩19分
JR京浜東北・根岸線 与野駅 徒歩20分
44
万円

44,000円
2ヶ月 / 3ヶ月
なし / -
103.97m2
-
1989年3月(築36年9ヶ月)
  • 24時間セキュリティ
  • 即引き渡し可
  • 駅から徒歩1分以内
  • 2階以上
  • エレベーター
(株)クイックコンサルティング

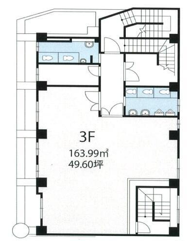
埼玉県さいたま市南区南浦和2丁目

  • 貸店舗・事務所
  • 埼玉県さいたま市南区南浦和2丁目
    間取り図
埼玉県さいたま市南区南浦和2丁目
JR京浜東北・根岸線 南浦和駅 徒歩1分
JR武蔵野線 南浦和駅 徒歩6分
JR東北本線 浦和駅 徒歩23分
73.5
万円

48,000円
1ヶ月 / 3ヶ月
なし / 解約時1.00ヶ月償却
163.99m2
-
1985年12月(築40年)
  • 即引き渡し可
  • 駅から徒歩1分以内
  • 2階以上
センチュリー21 (株)エステル 大宮支店

埼玉県さいたま市見沼区大字風渡野

  • 貸店舗・事務所
  • 埼玉県さいたま市見沼区大字風渡野
    間取り図
埼玉県さいたま市見沼区大字風渡野
東武野田線 七里駅 徒歩2分
12
万円

-
1ヶ月 / 2ヶ月
なし / -
40.13m2
-
2002年1月(築23年11ヶ月)
  • 1階
  • 飲食店可
  • 駅から徒歩5分以内
(株)オノデラ不動産

埼玉県さいたま市浦和区上木崎1丁目

  • 貸店舗・事務所
  • 埼玉県さいたま市浦和区上木崎1丁目
    間取り図
埼玉県さいたま市浦和区上木崎1丁目
JR京浜東北・根岸線 与野駅 徒歩2分
JR京浜東北・根岸線 さいたま新都心駅 徒歩17分
JR埼京線 北与野駅 徒歩18分
19.25
万円

-
なし / なし
5.5ヶ月 / -
38.76m2
-
2025年9月
新築
  • 築1年以内
  • 駅から徒歩5分以内
  • 2階以上
(同)与野福 与野福不動産

埼玉県さいたま市浦和区東仲町

  • 貸店舗・事務所
  • 埼玉県さいたま市浦和区東仲町
    間取り図
埼玉県さいたま市浦和区東仲町
JR京浜東北・根岸線 浦和駅 徒歩2分
JR高崎線 浦和駅 徒歩2分
JR東北本線 浦和駅 徒歩2分
25.3
万円

33,000円
1ヶ月 / 3ヶ月
なし / -
49.59m2
-
2008年10月(築17年2ヶ月)
  • 駅から徒歩5分以内
  • 2階以上
  • エレベーター
アスワンハウジング(株)

安田ビル

  • 貸店舗・事務所
  • 安田ビル
埼玉県さいたま市浦和区北浦和3丁目
JR京浜東北・根岸線 北浦和駅 徒歩2分
26.4
万円

33,000円
1ヶ月 / 200万円
なし / 1ヶ月
88.43m2
-
1979年11月(築46年1ヶ月)
  • 即引き渡し可
  • 駅から徒歩5分以内
  • 2階以上
  • エレベーター
(株)高商
チェックした物件を一括で

岩崎ビル

  • 貸店舗・事務所
  • 岩崎ビル
    間取り図
埼玉県さいたま市浦和区北浦和4丁目
JR京浜東北・根岸線 北浦和駅 徒歩2分
JR埼京線 南与野駅 徒歩20分
JR京浜東北・根岸線 与野駅 徒歩23分
29.7
万円

29,700円
2ヶ月 / なし
3ヶ月 / -
52.92m2
-
1989年3月(築36年9ヶ月)
  • 即引き渡し可
  • 駅から徒歩5分以内
  • 2階以上
センチュリー21 (株)エステル 大宮支店

AXIS宮原駅前ビル

  • 貸店舗・事務所
  • AXIS宮原駅前ビル
    間取り図
埼玉県さいたま市北区宮原町2丁目
湘南新宿ライン(前橋~小田原) 宮原駅 徒歩2分
埼玉新都市交通 東宮原駅 徒歩11分
埼玉新都市交通 加茂宮駅 徒歩12分
31.1
万円

38,874円
1ヶ月 / なし
6ヶ月 / 解約時20.00%償却
58.42m2
-
2015年11月(築10年1ヶ月)
  • 1階
  • 即引き渡し可
  • 築10年以内
  • 駅から徒歩5分以内
センチュリー21 (株)エステル 大宮支店

埼玉県さいたま市浦和区北浦和4丁目

  • 貸店舗(建物一部)
  • 埼玉県さいたま市浦和区北浦和4丁目
    間取り図
埼玉県さいたま市浦和区北浦和4丁目
JR京浜東北・根岸線 北浦和駅 徒歩2分
JR埼京線 南与野駅 徒歩23分
39.6
万円

11,000円
3ヶ月 / 3ヶ月
なし / -
44.1m2
-
2023年3月(築2年9ヶ月)
  • 1階
  • 即引き渡し可
  • 築3年以内
  • 駅から徒歩5分以内
M.A.P.ESTATE(株)

第七大雄ビル

  • 貸店舗・事務所
  • 第七大雄ビル
    間取り図
埼玉県さいたま市南区南本町1丁目
JR武蔵野線 南浦和駅 徒歩2分
JR東北本線 浦和駅 徒歩25分
100.28
万円

22,000円
1ヶ月 / 6ヶ月
なし / -
150.68m2
-
2024年3月(築1年9ヶ月)
  • 飲食店可
  • 築3年以内
  • 駅から徒歩5分以内
  • 2階以上
  • エレベーター
センチュリー21 (株)エステル 大宮支店

埼玉県さいたま市北区東大成町1丁目

  • 貸店舗
  • 埼玉県さいたま市北区東大成町1丁目
    間取り図
埼玉県さいたま市北区東大成町1丁目
東武野田線 北大宮駅 徒歩3分
埼玉新都市交通 鉄道博物館(大成)駅 徒歩12分
東武野田線 大宮公園駅 徒歩13分
5
万円

-
1ヶ月 / なし
4ヶ月 / -
62.06m2
-
1979年7月(築46年5ヶ月)
  • 飲食店可
  • 駅から徒歩5分以内
(株)三建

サンハイツ高橋

  • 貸店舗(建物一部)
  • サンハイツ高橋
    間取り図
埼玉県さいたま市南区辻8丁目
JR埼京線 北戸田駅 徒歩3分
31.35
万円

11,000円
1ヶ月 / 3ヶ月
なし / -
59.4m2
-
1987年7月(築38年5ヶ月)
  • 1階
  • 即引き渡し可
  • 駅から徒歩5分以内
センチュリー21 (株)エステル 大宮支店

シティプラザ宮原

  • 貸店舗・事務所
  • シティプラザ宮原
    間取り図
埼玉県さいたま市北区宮原町3丁目
JR高崎線 宮原駅 徒歩3分
埼玉新都市交通 加茂宮駅 徒歩13分
埼玉新都市交通 東宮原駅 徒歩14分
35
万円

-
1ヶ月 / 3ヶ月
なし / -
130m2
-
1986年7月(築39年5ヶ月)
  • 駐車場(近隣含)
  • 駅から徒歩5分以内
  • 2階以上
(株)エムズ・ウエスト

新正ビル

  • 貸店舗・事務所
  • 新正ビル
    間取り図
埼玉県さいたま市北区宮原町2丁目
JR高崎線 宮原駅 徒歩3分
埼玉新都市交通 東宮原駅 徒歩10分
埼玉新都市交通 加茂宮駅 徒歩12分
36.69
万円

-
1ヶ月 / 3ヶ月
なし / -
95.9m2
-
1998年10月(築27年2ヶ月)
  • 駅から徒歩5分以内
  • 2階以上
  • エレベーター
センチュリー21 (株)エステル 大宮支店

大徳細沼ビル

  • 貸店舗・事務所
  • 大徳細沼ビル
    間取り図
埼玉県さいたま市見沼区大和田町2丁目
東武野田線 大和田駅 徒歩3分
JR東北本線 土呂駅 徒歩22分
41.09
万円

102,712円
1ヶ月 / なし
6ヶ月 / -
123.5m2
-
1995年1月(築30年11ヶ月)
  • 即引き渡し可
  • 駅から徒歩5分以内
  • 2階以上
センチュリー21 (株)エステル 大宮支店

風渡野第一ビル

  • 貸店舗・事務所
  • 風渡野第一ビル
    間取り図
埼玉県さいたま市見沼区大字風渡野
東武野田線 七里駅 徒歩3分
東武野田線 大和田駅 徒歩24分
48.66
万円

11,000円
1ヶ月 / 4ヶ月
なし / 1ヶ月
171.72m2
-
1990年3月(築35年9ヶ月)
  • 即引き渡し可
  • 駅から徒歩5分以内
  • 2階以上
(株)七里ハウジング

南浦和朝日ビル

  • 貸店舗・事務所
  • 南浦和朝日ビル
    間取り図
埼玉県さいたま市南区南本町1丁目
JR武蔵野線 南浦和駅 徒歩3分
JR京浜東北・根岸線 南浦和駅 徒歩6分
JR東北本線 浦和駅 徒歩27分
75.35
万円

44,000円
1ヶ月 / なし
6ヶ月 / 解約時20.00%償却
132.31m2
-
1986年5月(築39年7ヶ月)
  • 1階
  • 即引き渡し可
  • 飲食店可
  • 駅から徒歩5分以内
センチュリー21 (株)エステル 大宮支店

MiRiスクエア大宮

  • 貸店舗(建物一部)
  • MiRiスクエア大宮
    間取り図
埼玉県さいたま市大宮区大門町2丁目
JR京浜東北・根岸線 大宮駅 徒歩3分
JR埼京線 大宮駅 徒歩6分
東武野田線 大宮駅 徒歩7分
151.51
万円

91,828円
1ヶ月 / 10ヶ月
なし / -
137.99m2
-
2025年11月
新築
  • 即引き渡し可
  • 飲食店可
  • 築1年以内
  • 駅から徒歩5分以内
  • 2階以上
センチュリー21 (株)エステル 大宮支店

第二レジデンス

  • 貸店舗・事務所
  • 第二レジデンス
    間取り図
埼玉県さいたま市見沼区大字東門前
東武野田線 七里駅 徒歩4分
東武野田線 大和田駅 徒歩21分
19.8
万円

なし
なし / 4ヶ月
なし / -
68.8m2
-
1998年2月(築27年10ヶ月)
  • 1階
  • 駐車場(近隣含)
  • 駅から徒歩5分以内
(株)七里ハウジング

松岡STビル

  • 貸店舗・事務所
  • 松岡STビル
    間取り図
埼玉県さいたま市浦和区北浦和1丁目
JR京浜東北・根岸線 北浦和駅 徒歩4分
30.69
万円

なし
61.38万円 / なし
83.7万円 / -
117.88m2
-
1992年2月(築33年10ヶ月)
  • 駅から徒歩5分以内
  • 2階以上
(株)大和不動産 浦和店

埼玉県さいたま市浦和区元町3丁目

  • 貸店舗・事務所
  • 埼玉県さいたま市浦和区元町3丁目
    間取り図
埼玉県さいたま市浦和区元町3丁目
JR京浜東北・根岸線 北浦和駅 徒歩4分
JR京浜東北・根岸線 与野駅 徒歩22分
JR埼京線 南与野駅 徒歩28分
49.5
万円

なし
なし / 4ヶ月
なし / 20%
141.13m2
-
1988年2月(築37年10ヶ月)
  • 1階
  • 飲食店可
  • 駐車場(近隣含)
  • 駅から徒歩5分以内
(株)オノデラ不動産

グローバルビュー浦和

  • 貸店舗(建物一部)
  • グローバルビュー浦和
    間取り図
埼玉県さいたま市浦和区高砂2丁目
JR京浜東北・根岸線 浦和駅 徒歩4分
JR東北本線 浦和駅 徒歩4分
115.92
万円

なし
なし / 6ヶ月
なし / -
139.34m2
-
1998年9月(築27年3ヶ月)
  • 1階
  • 即引き渡し可
  • 駐車場(近隣含)
  • 駅から徒歩5分以内
(株)クイックコンサルティング

セレッソ・アクア・三上

  • 貸店舗・事務所
  • セレッソ・アクア・三上
    間取り図
埼玉県さいたま市大宮区桜木町1丁目
JR東北新幹線 大宮駅 徒歩5分
JR東北本線 さいたま新都心駅 徒歩23分
35.2
万円

22,000円
1ヶ月 / 3ヶ月
なし / -
41.02m2
-
2026年1月
新築
  • 1階
  • 築1年以内
  • 駅から徒歩5分以内
センチュリー21 (株)エステル 大宮支店

ホテルグローバルビュー浦和

  • 貸店舗・事務所
  • ホテルグローバルビュー浦和
    間取り図
埼玉県さいたま市浦和区高砂2丁目
JR京浜東北・根岸線 浦和駅 徒歩5分
JR武蔵野線 武蔵浦和駅 徒歩24分
49.3
万円

-
1ヶ月 / 6ヶ月
なし / -
92.6m2
-
1998年9月(築27年3ヶ月)
  • 1階
  • 即引き渡し可
  • 飲食店可
  • 駐車場(近隣含)
  • 駅から徒歩5分以内
センチュリー21 (株)エステル 大宮支店

大宮サクラスクエアモール

  • 貸店舗・事務所
  • 大宮サクラスクエアモール
    間取り図
埼玉県さいたま市大宮区桜木町2丁目
JR埼京線 大宮駅 徒歩5分
湘南新宿ライン(宇都宮~逗子) 大宮駅 徒歩5分
JR京浜東北・根岸線 大宮駅 徒歩5分
51.15
万円

79,200円
1ヶ月 / 6ヶ月
なし / 解約時30.00%償却
81.34m2
-
2024年7月(築1年5ヶ月)
  • 即引き渡し可
  • 飲食店可
  • 築3年以内
  • 駅から徒歩5分以内
  • 2階以上
  • エレベーター
(株)ジャスティ

埼玉県さいたま市大宮区桜木町2丁目

  • 貸店舗・事務所
  • 埼玉県さいたま市大宮区桜木町2丁目
    間取り図
埼玉県さいたま市大宮区桜木町2丁目
JR京浜東北・根岸線 大宮駅 徒歩5分
63.68
万円

27,500円
1ヶ月 / なし
460万円 / -
136.71m2
-
1993年4月(築32年8ヶ月)
  • 即引き渡し可
  • 駅から徒歩5分以内
  • 2階以上
  • エレベーター
(同)県民ホーム

錦町1階

  • 貸店舗(建物一部)
  • 錦町1階
    間取り図
埼玉県さいたま市大宮区錦町
JR京浜東北・根岸線 大宮駅 徒歩6分
44
万円

-
1ヶ月 / なし
10ヶ月 / -
85.32m2
-
1968年10月(築57年2ヶ月)
  • 1階
  • 即引き渡し可
  • 飲食店可
  • 駅から徒歩7分以内
(同)県民ホーム
チェックした物件を一括で
  • チェックした物件をまとめて
814
表示件数 12345 … 21 次へ
OCN×ドコモ光新規お申込みで合計最大137,280円相当おトク!特典の内訳・適用条件など詳細はこちら

条件を選択

賃料
広さ
物件タイプ
築年数
駅からの時間
こだわり条件
画像
情報の新しさ
フリーワード

埼玉県の人気の街アクセスランキング(店舗・事業用)

※このランキングは2025年10月01日~31日における各ページのアクセス数から算出しています。

人気の特集から店舗・事業用物件を探す

特徴

アプリで簡単 物件探し 大手不動産サイトの情報から一括検!プッシュ通知で物件を見逃さない
App Storeからダウンロード Google Playで手に入れよう QRコード