賃貸マンション
東京都渋谷区西原3 代々木上原駅 1LDK 賃貸(賃貸マンション・アパート)
| 賃料 |
13.8万円 (管理費等:なし) |
| 礼金・敷金 |
1ヶ月 / 1ヶ月 |
保証金/敷引・償却 |
なし / - |
| 交通 |
|
| 所在地 |
東京都渋谷区西原3周辺地図
|
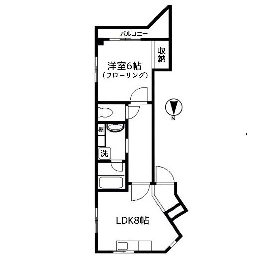
| 間取り |
1LDK |
専有面積 |
38m2 |
| 築年月 |
1982年1月 |
築年数 |
築43年10ヶ月 |
- おすすめポイント
- 改装済!事務所相談!最上階!38平米の1LDK! 改装済!事務所相談!最上階!38平米の1LDK!
| 賃料 |
13.8万円 |
管理費等 |
なし |
| 敷金 |
1ヶ月 |
礼金 |
1ヶ月 |
| 保証金 |
なし |
敷引・償却 |
- |
| 更新料 |
- |
契約期間 |
|
| カード決済 |
- |
| 所在地 |
東京都渋谷区西原3周辺地図
|
| 交通 |
- 小田急線 代々木上原駅 徒歩2分乗換案内
- 東京メトロ千代田線 代々木公園駅 徒歩8分乗換案内
- 京王新線 幡ヶ谷駅 徒歩14分乗換案内
|
| 建物名 |
|
| 間取り |
1LDK(洋6 LDK8) |
築年月(築年数) |
1982年1月(築43年10ヶ月)
|
| 専有面積 |
38㎡ |
所在階/階数 |
4階/4階建
|
| 建物構造 |
RC |
方位 |
|
| 現況 |
|
駐車場 |
無 近くの駐車場を探す
|
| 入居可能時期 |
即時 |
住宅保険 |
あり 2年 15000円 |
| 情報提供元 |
SUUMO[030H100467845950] |
情報公開日 |
|
| 情報更新日 |
|
次回更新予定日 |
随時 |
設備など
| 2階以上 |
○ |
最上階 |
○ |
角部屋 |
○ |
| 駐車場(近隣含) |
- |
エアコン付き |
○ |
バス・トイレ別 |
○ |
| 室内洗濯機置き場 |
○ |
追焚機能 |
- |
オートロック付き |
- |
| モニタ付インターホン |
○ |
フローリング |
○ |
バルコニー |
○ |
| ガスコンロ可 |
○ |
浴室乾燥機 |
- |
24時間セキュリティ |
- |
| 宅配ボックス |
- |
ペット相談可 |
- |
二人入居可 |
○ |
| 設備 |
冷房・暖房・エアコン・バルコニー・バス・トイレ別・トイレ・収納スペース・洗濯機置場・洗面所・フローリング・ガスコンロ可・モニタ付インターホン・クローゼット・都市ガス・浴トイレ別・洗面所独立・コンロ2口以上・シューズボックス・リフォーム・室内洗濯機置き場 |
| リフォーム履歴 |
- |
| リノベーション履歴 |
- |
| 備考 |
鍵交換費:16500円 事務所使用時:条件変更有り/保証会社利用必:指定あり/普通借家2年/単身者可/二人入居可/事務所利用相談/ルームシェア相談/バストイレ別/バルコニー/エアコン/ガスコンロ対応/クロゼット/フローリング/TVインターホン/室内洗濯置/陽当り良好/シューズボックス/南向き/角住戸/洗面所独立/洗面化粧台/2口コンロ/押入/即入居可/2面採光/最上階/全居室洋室/単身者相談/敷金1ヶ月/二人入居相談/全居室フローリング/2沿線利用可/エアコン2台/キッチンに窓/内装リフォーム済/エアコン全室/事務所相談/天袋/ルームシェア相談/学生相談/3方角住戸/全室2面採光/2駅利用可/3駅以上利用可/駅徒歩5分以内/全居室6畳以上/都市ガス/年内入居可/年度内入居可/礼金1ヶ月/保証会社利用可/リフォーム:()/アコルデ代々木上原まで416m/カルディコーヒーファーム代々木まで225m/アコルデ代々木上原(ショッピングセンター)まで416m/カルディコーヒーファーム代々木上原店(スーパー)まで225m/セブンイレブン代々木上原駅前店(コンビニ)まで203m/ココカラファイン代々木上原店(ドラッグストア)まで59m/三菱UFJ銀行代々木上原支店(銀行)まで200m/代々木大山公園(公園)まで882m |
| 特記事項 |
二人入居可・角部屋・事務所使用可・最上階・日当り良好・ルームシェア可 |
東京都渋谷区西原3 周辺地図情報
※地図上に表示される物件の位置は付近住所に所在することを表すものであり、実際の物件所在地とは異なる場合がございます。
正確な物件所在地は、取扱い不動産会社にお問い合わせください。
不動産会社情報
| お問い合わせ先 |
商号:富ヶ谷不動産(株)ナスワークス 免許番号:東京都知事(3)第93493号 所在地:東京都渋谷区富ヶ谷1-9-15 TEL:03-5738-2807 取引態様:仲介 管理コード:20251017F 所属協会など:(公社)首都圏不動産公正取引協議会加盟、(公社)全日本不動産協会東京都本部会員
|
共有する |
|
人口などの統計情報
| 世帯数 |
149856世帯 |
| 人口総数 |
230609人 |
| 転入者数 |
24064人
- 転入率(人口1000人当たり)
- 104.35人
|
| 転出者数 |
22282人
- 転出率(人口1000人当たり)
- 96.62人
|
| 土地平均価格 |
- 住宅地
- 1394400円/m2
- 商業地
- 6619444円/m2
|
結婚・育児の助成金
| 子育て関連の独自の取り組み |
(1)待機児解消のため区立保育室を2ヶ所設置。(2)認可外保育施設に待機児専用の受入枠を23名分確保。(3)スマートフォンアプリ「LINE」を活用した子育て情報の配信サービス。(4)渋谷区子育てネウボラ事業。妊娠から出産そして子育てまでの切れ目のない支援を行う、フィンランド発祥の出産・子育て支援の場「ネウボラ」にならい、それらの支援機能を担う関係所管を「渋谷区子育てネウボラ」に集約。保健師をはじめとするさまざまな専門職員や関係職員が連携して、妊娠、出産、子育て期のさまざまな悩み、不安等の相談に応じたり、健診を行ったり、地域のみんなで子育てをする場として設けている。 |
| 出産祝い |
あり |
| 公立保育所数 |
18所(うち0歳児保育を実施している保育所:13所) |
| 私立保育所数 |
39所(うち0歳児保育を実施している保育所:30所) |
| 保育所入所待機児童数 |
0人 |
| 認定こども園数 |
11園 |
預かり保育実施園数 |
公立:5園 私立:13園 |
| 学校給食 |
【小学校】完全給食【中学校】完全給食 |
| 公立中学校の学校選択制 |
実施(選択希望制) |
| 子ども・学生等医療費助成<通院>対象年齢 |
18歳3月末まで |
子ども・学生等医療費助成<入院>対象年齢 |
18歳3月末まで |
渋谷区の治安・ごみ収集情報
公共料金・インフラ
| ガス料金(22m3使用した場合の月額) |
東京瓦斯株式会社(東京地区等)3926円 |
| 水道料金(口径20mmで20m3の月額) |
東京都水道局2816円 |
| 下水道料金(20m3を使用した場合の月額) |
東京都下水道局2068円 |
| 下水道普及率 |
100.0% |
安心・安全
| 建物火災出火件数 |
110件
- 人口10000人当たり
- 4.51件
|
| 刑法犯認知件数 |
3388件
- 人口1000人当たり
- 13.89件
|
| ハザード・防災マップ |
あり |
医療
| 一般病院総数 |
15ヶ所 |
| 一般診療所総数 |
722ヶ所 |
| 小児科医師数 |
70人
- 小児人口10000人当たり
- 29.57人
|
| 産婦人科医師数 |
68人
- 15~49歳女性人口1万人当たり
- 11.68人
|
| 介護保険料基準額(月額) |
6170円 |
ごみ
| 家庭ごみ収集(可燃ごみ) |
無料
|
| 家庭ごみの分別方式 |
3分別13種〔可燃ごみ 不燃ごみ(金属類、割れ物・刃物などの危険物、ライター) 資源(新聞、雑誌、段ボール、びん、缶、ペットボトル、スプレー缶・カセットボンベ、蛍光管、プラスチック)〕 拠点回収:小型家電 衣類 紙パック 食品用発泡スチロールトレイ 食用油 おもちゃ 食器・調理器具 集団回収:新聞 雑誌 段ボール 紙パック 布類 びん 缶 ペットボトル |
| 家庭ごみの戸別収集 |
一部実施 |
| 粗大ごみ収集 |
あり
|
| 生ごみ処理機助成金制度 |
あり
- 上限金額
- 20000円
- 上限比率
- 50.0%
|
※行政機関により公表していない地域及びデータがございます。東京23区以外の政令指定都市は、市全体のデータとして表示しています。
※提供データには細心の注意を払っておりますが、調査後に変更がある場合があります。 最新の情報につきましては各市区役所までお問い合わせいただくか、自治体HPなどをご確認ください。
渋谷区の暮らしデータをもっと見る