アプリで簡単 物件探し 通知 共有 アプリならではの機能を使ってみる
賃貸マンション

東京都八王子市横川町 西八王子駅 3DK 賃貸(賃貸マンション・アパート)

情報提供元
アットホーム
賃料 7.9万円  (管理費等:3000円)
礼金・敷金 なし / 1ヶ月 保証金/敷引・償却 なし / -
交通
所在地 東京都八王子市横川町周辺地図
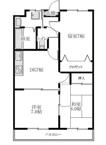
間取り 3DK 専有面積 58.8m2
築年月 1997年6月 築年数 築28年7ヶ月
おすすめポイント
ペット相談可・閑静な住宅街

詳細情報

賃料 7.9万円 管理費等 3000円
敷金 1ヶ月 礼金 なし
保証金 なし 敷引・償却 -
更新料 新賃料の1ヶ月分 契約期間 2年
カード決済 -
所在地 東京都八王子市横川町周辺地図
交通
  • JR中央本線 西八王子駅 バス6分/「三村橋」バス停 停歩6分乗換案内
建物名  
間取り 3DK(和 6 洋 7・7 DK 7) 築年月(築年数) 1997年6月(築28年7ヶ月)
専有面積 58.8㎡ 所在階/階数 1階/3階建
建物構造 RC  方位 南 
現況 空  駐車場 有 7,000円
入居可能時期 即時 住宅保険 なし
情報提供元 アットホーム[6985939410] 情報公開日
情報更新日 - 次回更新予定日 随時

設備など

2階以上 - 最上階 - 角部屋 -
駐車場(近隣含) エアコン付き バス・トイレ別
室内洗濯機置き場 追焚機能 オートロック付き -
モニタ付インターホン フローリング バルコニー
ガスコンロ可 - 浴室乾燥機 - 24時間セキュリティ -
宅配ボックス - ペット相談可 二人入居可 -
設備 エアコン・給湯・バルコニー・バス・トイレ別・トイレ・収納スペース・洗濯機置場・室内洗濯機置き場・洗面所・シャワー・CATV・追焚機能・都市ガス・洗面台・フローリング・システムキッチン・モニタ付インターホン・駐輪場・クローゼット・洗面所独立・バイク置き場・シューズボックス・光ファイバー(ブロードバンド) 
リフォーム履歴 -
リノベーション履歴 -
備考 賃貸保証等:加入要(初回賃料総額の50% 月額保証料:2650円※家財保険+緊急サポート費込み+保証 口座振替440円)・鍵交換代:あり22,000円~・ペット条件:小型犬可/猫可/礼金1か月プラス・お財布喜ぶ!礼金0円。お探しの方には嬉しいペット(小型犬)相談可。自転車通勤者に便利な駐輪場有なので、ちょっとした外出も自転車さえあればハードル低めになるかも。・バイク置場:有(無料)・駐輪場:有(無料) 
特記事項 ペット相談可・閑静な住宅街

省エネ性能

エネルギー消費性能 -
断熱性能 -
目安光熱費 -

東京都八王子市横川町 周辺地図情報

地図
※地図上に表示される物件の位置は付近住所に所在することを表すものであり、実際の物件所在地とは異なる場合がございます。
   正確な物件所在地は、取扱い不動産会社にお問い合わせください。
アピールポイント
探されていたのはこういう耳寄りなお話では?礼金0円。お探しの方には嬉しいペット(小型犬)相談可。自転車通勤者に便利な駐輪場有なので、ちょっとした外出も自転車さえあればハードル低めになるかも。また閑静な住宅街の住戸で、その上無駄のない造りのシステムキッチンなので、日々のお料理が楽しくはかどります。ちなみに南向の住居です。家族が帰宅を焦がれる3DK。是非その目でお確かめください。

不動産会社情報

お問い合わせ先 商号:(株)グッドフィールド
免許番号:東京都知事免許(3)第94689号
所在地:八王子市暁町1丁目35-10 208
TEL:042-655-3151
取引態様:仲介
管理コード:
所属協会など:(公社)全日本不動産協会会員、(公社)首都圏不動産公正取引協議会加盟
共有する
QRコード

八王子市の暮らしデータ

人口などの統計情報

世帯数 266549世帯
人口総数 560692人
転入者数 26354人
転入率(人口1000人当たり)
47.00人
転出者数 23488人
転出率(人口1000人当たり)
41.89人
土地平均価格
住宅地
130545円/m2
商業地
405286円/m2

結婚・育児の助成金

子育て関連の独自の取り組み (1)子育て応援サイト・妊娠・子育て支援LINE「すくすく☆メール」。(2)レンタルベビーカー。(3)学校サポーター認証制度・学校サポーター育成プログラム。(4)高尾山学園(不登校児童生徒のための小中一貫校)。(5)はちおうじっ子子育てほっとライン(妊娠出産子育て相談窓口)。(6)八王子版ネウボラ乳幼児手帳と保存のためのマイファイル配布。(7)子育て応援企業。(8)ベビーテント貸出。
出産祝い あり
公立保育所数 15所(うち0歳児保育を実施している保育所:4所)
私立保育所数 73所(うち0歳児保育を実施している保育所:70所)
保育所入所待機児童数 15人
認定こども園数 21園 預かり保育実施園数 公立:- 私立:25園
学校給食 【小学校】完全給食【中学校】完全給食
公立中学校の学校選択制 実施(新入学時、転入または転居により転校するとき)
子ども・学生等医療費助成<通院>対象年齢 18歳3月末まで 子ども・学生等医療費助成<入院>対象年齢 18歳3月末まで

八王子市の治安・ごみ収集情報

公共料金・インフラ

ガス料金(22m3使用した場合の月額) 東京瓦斯株式会社(東京地区等)3926円
水道料金(口径20mmで20m3の月額) 東京都水道局2816円
下水道料金(20m3を使用した場合の月額) 八王子市2068円
下水道普及率 99.4%

安心・安全

建物火災出火件数 98件
人口10000人当たり
1.69件
刑法犯認知件数 3197件
人口1000人当たり
5.52件
ハザード・防災マップ あり

医療

一般病院総数 28ヶ所
一般診療所総数 392ヶ所
小児科医師数 85人
小児人口10000人当たり
14.40人
産婦人科医師数 30人
15~49歳女性人口1万人当たり
2.80人
介護保険料基準額(月額) 5950円

ごみ

家庭ごみ収集(可燃ごみ) 有料
備考
可燃ごみ・不燃ごみが有料。
家庭ごみの分別方式 4分別13種〔可燃ごみ 不燃ごみ 有害ごみ 資源物(容器包装プラスチック、ペットボトル、びん、缶、紙類[新聞・チラシ、ダンボール、雑誌・雑紙、紙パック]、古着・古布、剪定枝)〕
家庭ごみの戸別収集 実施
粗大ごみ収集 あり
備考
有料。事前申込制。
生ごみ処理機助成金制度 なし
上限金額
-
上限比率
-
暮らしデータ提供元:生活ガイド.com
※行政機関により公表していない地域及びデータがございます。東京23区以外の政令指定都市は、市全体のデータとして表示しています。
※提供データには細心の注意を払っておりますが、調査後に変更がある場合があります。 最新の情報につきましては各市区役所までお問い合わせいただくか、自治体HPなどをご確認ください。
OCN×ドコモ光新規お申込みで合計最大137,280円相当おトク!特典の内訳・適用条件など詳細はこちら

他のエリアから探す

八王子市の詳細地域から賃貸物件を探す

暁町旭町東町石川町泉町犬目町上野町打越町宇津木町梅坪町裏高尾町追分町大塚大船町大谷町大横町大和田町小門町尾崎町鹿島加住町片倉町叶谷町上壱分方町上川町上柚木川口町川町北野台北野町絹ケ丘清川町椚田町久保山町越野小比企町小宮町子安町左入町散田町下恩方町下柚木新町諏訪町千人町平町高尾町高倉町滝山町館町田町丹木町台町大楽寺町寺田町寺町天神町廿里町戸吹町中町中野上町中野山王中野町中山長沼町長房町七国並木町楢原町南陽台西浅川町西片倉西寺方町弐分方町狭間町八幡町初沢町東浅川町東中野兵衛日吉町平岡町富士見町別所堀之内本郷町本町松が谷松木丸山町三崎町緑町南大沢南新町南町みなみ野宮下町美山町明神町めじろ台元八王子町元本郷町元横山町八木町谷野町山田町鑓水八日町横川町横山町四谷町万町

近辺の市区から探す

立川市昭島市日野市国立市福生市武蔵村山市多摩市羽村市あきる野市西多摩郡瑞穂町西多摩郡日の出町相模原市緑区相模原市中央区

周辺の駅から探す

中央本線
立川日野豊田八王子西八王子高尾相模湖藤野

掲載情報の著作権は提供元企業等に帰属します。
Copyright:(C) 2025 At Home Co.,Ltd
アプリで簡単 物件探し 大手不動産サイトの情報から一括検!プッシュ通知で物件を見逃さない
App Storeからダウンロード Google Playで手に入れよう QRコード