アプリで簡単 物件探し 通知 共有 アプリならではの機能を使ってみる
テラスハウス

グランソフィアめじろ台 めじろ台駅 3LDK 賃貸(賃貸マンション・アパート)

情報提供元
アットホーム
グランソフィアめじろ台
賃料 14.5万円  (管理費等:なし)
礼金・敷金 1ヶ月 / 1ヶ月 保証金/敷引・償却 なし / -
交通
所在地 東京都八王子市めじろ台3丁目周辺地図
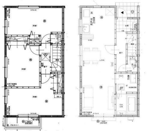
間取り 3LDK 専有面積 77m2
築年月 2025年11月 築年数 新築
おすすめポイント
ペット相談可・二人入居可・振分・角部屋・事務所使用可・初期費用カード決済可
お問い合わせ先
アエラス立川店 (株)アエラス.ER
お問い合わせ先
アエラス立川店 (株)アエラス.ER

詳細情報

賃料 14.5万円 管理費等 なし
敷金 1ヶ月 礼金 1ヶ月
保証金 なし 敷引・償却 -
更新料 - 契約期間 2年
カード決済 初期費用カード決済可
所在地 東京都八王子市めじろ台3丁目周辺地図
交通
建物名 グランソフィアめじろ台 
間取り 3LDK(和室6.8洋室6.5洋室5.6) 築年月(築年数) 2025年11月 新築
専有面積 77㎡ 所在階/階数 2階建
建物構造 木造  方位 南 
現況 未完成  駐車場 有 無料
入居可能時期 2025年12月上旬 住宅保険 あり
情報提供元 アットホーム[1139381916] 情報公開日
情報更新日 - 次回更新予定日 随時

設備など

2階以上 - 最上階 - 角部屋
駐車場(近隣含) エアコン付き バス・トイレ別
室内洗濯機置き場 追焚機能 オートロック付き -
モニタ付インターホン フローリング バルコニー
ガスコンロ可 - 浴室乾燥機 24時間セキュリティ -
宅配ボックス - ペット相談可 二人入居可
設備 エアコン・給湯・バルコニー・バス・トイレ別・トイレ・収納スペース・洗濯機置場・室内洗濯機置き場・シャワー・追焚機能・都市ガス・洗面台・フローリング・浴室乾燥機・シャンプードレッサ・温水洗浄便座・システムキッチン・モニタ付インターホン・駐輪場・IHクッキングヒータ・オートバス・洗面所独立・バイク置き場・光ファイバー(ブロードバンド)・インターネット対応・3口以上コンロ 
リフォーム履歴 -
リノベーション履歴 -
備考 保険等加入 加入要 / 2年間 20000円 スマートキー1650円月額/短期解約違約金(1年未満/1ヶ月分賃料)/ペット飼育時敷金1ヶ月積み増し有り(頭数種類は要相談)/退去時清掃費105000円その他一時金 ホームマイスター2416500円鍵交換代借主負担・賃貸保証等:加入要(初回:賃料等の100%、継続保証料:年毎に賃料等の15%)・オンラインで申込から契約手続き、LINEでのご相談も可能です/当物件は初期費用分割払い可(クレジットカード決済も可)/お客様のご希望に合わせた方法(店頭、オンライン等)で物件をご提案いたします・バイク置場:有(無料)・駐輪場:有(無料)/ホームマイスター24 16500円 
特記事項 ペット相談可・二人入居可・振分・角部屋・事務所使用可・初期費用カード決済可

省エネ性能

エネルギー消費性能 -
断熱性能 -
目安光熱費 -

東京都八王子市めじろ台3丁目 周辺地図情報

地図
※地図上に表示される物件の位置は付近住所に所在することを表すものであり、実際の物件所在地とは異なる場合がございます。
   正確な物件所在地は、取扱い不動産会社にお問い合わせください。
お問い合わせ先
アエラス立川店 (株)アエラス.ER
アピールポイント
☆当店の強みをお伝えします☆①クレジットカードの初期費用分割払いを、喜んでお受けいたします(クレジットカード以外もOK)②他社様がネットに掲載されている物件は、全てお調べし、【好条件】でご紹介いたします他社様で「お申込み」された物件でも、【好条件】でご紹介できる場合がございます③「審査が不安…」「保証人がいない…」「値段交渉をして欲しい…」などなど、どのようなご条件でも、遠慮なくご相談いただけます④ご検討されている「エリア」「沿線」が「広範囲」「複数」でも、一度で漏れなくお探しいただけますポータルサイトや他社サイトで気になるお部屋がございましたらお気軽にご相談くださいお客様のご来店を心よりお待ちしております

不動産会社情報

お問い合わせ先 商号:アエラス立川店 (株)アエラス.ER
免許番号:国土交通大臣免許(1)第10724号
所在地:立川市曙町2丁目12-16サワー第一ビル 6階
TEL:042-548-0805
取引態様:仲介
管理コード:68331437-1
所属協会など:(公社)全日本不動産協会会員、(公社)首都圏不動産公正取引協議会加盟
共有する
QRコード
お問い合わせ先
アエラス立川店 (株)アエラス.ER

八王子市の暮らしデータ

人口などの統計情報

世帯数 266549世帯
人口総数 560692人
転入者数 26354人
転入率(人口1000人当たり)
47.00人
転出者数 23488人
転出率(人口1000人当たり)
41.89人
土地平均価格
住宅地
130545円/m2
商業地
405286円/m2

結婚・育児の助成金

子育て関連の独自の取り組み (1)子育て応援サイト・妊娠・子育て支援LINE「すくすく☆メール」。(2)レンタルベビーカー。(3)学校サポーター認証制度・学校サポーター育成プログラム。(4)高尾山学園(不登校児童生徒のための小中一貫校)。(5)はちおうじっ子子育てほっとライン(妊娠出産子育て相談窓口)。(6)八王子版ネウボラ乳幼児手帳と保存のためのマイファイル配布。(7)子育て応援企業。(8)ベビーテント貸出。
出産祝い あり
公立保育所数 15所(うち0歳児保育を実施している保育所:4所)
私立保育所数 73所(うち0歳児保育を実施している保育所:70所)
保育所入所待機児童数 15人
認定こども園数 21園 預かり保育実施園数 公立:- 私立:25園
学校給食 【小学校】完全給食【中学校】完全給食
公立中学校の学校選択制 実施(新入学時、転入または転居により転校するとき)
子ども・学生等医療費助成<通院>対象年齢 18歳3月末まで 子ども・学生等医療費助成<入院>対象年齢 18歳3月末まで

八王子市の治安・ごみ収集情報

公共料金・インフラ

ガス料金(22m3使用した場合の月額) 東京瓦斯株式会社(東京地区等)3926円
水道料金(口径20mmで20m3の月額) 東京都水道局2816円
下水道料金(20m3を使用した場合の月額) 八王子市2068円
下水道普及率 99.4%

安心・安全

建物火災出火件数 98件
人口10000人当たり
1.69件
刑法犯認知件数 3197件
人口1000人当たり
5.52件
ハザード・防災マップ あり

医療

一般病院総数 28ヶ所
一般診療所総数 392ヶ所
小児科医師数 85人
小児人口10000人当たり
14.40人
産婦人科医師数 30人
15~49歳女性人口1万人当たり
2.80人
介護保険料基準額(月額) 5950円

ごみ

家庭ごみ収集(可燃ごみ) 有料
備考
可燃ごみ・不燃ごみが有料。
家庭ごみの分別方式 4分別13種〔可燃ごみ 不燃ごみ 有害ごみ 資源物(容器包装プラスチック、ペットボトル、びん、缶、紙類[新聞・チラシ、ダンボール、雑誌・雑紙、紙パック]、古着・古布、剪定枝)〕
家庭ごみの戸別収集 実施
粗大ごみ収集 あり
備考
有料。事前申込制。
生ごみ処理機助成金制度 なし
上限金額
-
上限比率
-
暮らしデータ提供元:生活ガイド.com
※行政機関により公表していない地域及びデータがございます。東京23区以外の政令指定都市は、市全体のデータとして表示しています。
※提供データには細心の注意を払っておりますが、調査後に変更がある場合があります。 最新の情報につきましては各市区役所までお問い合わせいただくか、自治体HPなどをご確認ください。

この物件を見た人はこんな物件も見ています

OCN×ドコモ光新規お申込みで合計最大137,280円相当おトク!特典の内訳・適用条件など詳細はこちら

他のエリアから探す

八王子市の詳細地域から賃貸物件を探す

暁町旭町東町石川町泉町犬目町上野町打越町宇津木町梅坪町裏高尾町追分町大塚大船町大谷町大横町大和田町小門町尾崎町鹿島加住町片倉町叶谷町上壱分方町上川町上柚木川口町川町北野台北野町絹ケ丘清川町椚田町久保山町越野小比企町小宮町子安町左入町散田町下恩方町下柚木新町諏訪町千人町平町高尾町高倉町滝山町館町田町丹木町台町大楽寺町寺田町寺町天神町廿里町戸吹町中町中野上町中野山王中野町中山長沼町長房町七国並木町楢原町南陽台西浅川町西片倉西寺方町弐分方町狭間町八幡町初沢町東浅川町東中野兵衛日吉町平岡町富士見町別所堀之内本郷町本町松が谷松木三崎町緑町南大沢南新町南町みなみ野宮下町美山町明神町めじろ台元八王子町元本郷町元横山町八木町谷野町山田町鑓水八日町横川町横山町四谷町万町

近辺の市区から探す

立川市昭島市日野市国立市福生市武蔵村山市多摩市羽村市あきる野市西多摩郡瑞穂町西多摩郡日の出町相模原市緑区相模原市中央区

周辺の駅から探す

京王電鉄高尾線
北野京王片倉山田めじろ台狭間高尾高尾山口

掲載情報の著作権は提供元企業等に帰属します。
Copyright:(C) 2025 At Home Co.,Ltd
アプリで簡単 物件探し 大手不動産サイトの情報から一括検!プッシュ通知で物件を見逃さない
App Storeからダウンロード Google Playで手に入れよう QRコード