アプリで簡単 物件探し 通知 共有 アプリならではの機能を使ってみる
中古マンション

南向き×陽当たり良好×富士山望む開放の3LDK【フォルスコート調布】 5階 3LDK

情報提供元
SUUMO
南向き×陽当たり良好×富士山望む開放の3LDK【フォルスコート調布】 【住まいの先に】<BR>忙しく過ぎゆく日常を置き去るほど、ゆったりした時間が流れる住環境です。『快適』は「家」と「街」と「環境」が調和した時に訪れるのだと改めて感じさせてくれます。
価格 4998万円  (管理費等:1万円/月(委託(通勤)))
修繕積立金 15,310円
交通
所在地 東京都調布市多摩川3周辺地図
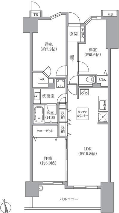
間取り 3LDK 専有面積 79.53m2(壁芯)
所在階/階数 5階/11階建 方位
築年月 2004年1月 築年数 築21年10ヶ月
おすすめポイント
京王多摩川駅徒歩11分。総戸数100戸の大規模マンション「フォルスコート調布」南向き5階部分。リビングには柔らかな陽が差し込み、バルコニーからは富士山を望む心地よい眺望(天候による)。新耐震基準の安心構造とオートロック・宅配ボックス完備で、日々を安全・快適に支えます。ペットは小型犬・猫2匹まで飼育可能(細則あり)。敷地内駐車場100%でカーライフも快適。周辺にはスーパー・公園・学校が徒歩圏内に揃い、暮らしやすさにも優れた立地です。2004年築・既存住宅売買瑕疵保険適合物件、リフォーム済で即入居可。光と風を感じながら、家族が心地よく暮らせる住まいです。
ペット相談可・日当り良好・閑静な住宅街・管理人日勤
お問い合わせ先
東宝ハウスライフソリューションズグループ(株)東宝ハウス調布
物件を見たい、物件や住環境の詳しい情報やローン相談など、
お問い合わせ先
東宝ハウスライフソリューションズグループ(株)東宝ハウス調布

詳細情報

価格 4998万円 管理費等 1万円/月(委託(通勤))
駐車場 敷地内(3900円~1万1000円/月) 修繕積立金 15,310円
所在地 東京都調布市多摩川3周辺地図
交通
物件名 南向き×陽当たり良好×富士山望む開放の3LDK【フォルスコート調布】
築年月(築年数) 2004年1月(築21年10ヶ月) 間取り 3LDK
総戸数 100戸 専有面積 79.53m2(壁芯)
所在階/階数 5階/11階建 バルコニー面積 10.98m2
方位 建物構造 RC
管理形態 委託管理
維持費等 土地権利 所有権
用途地域 準工業 借地期間・地代
現況 引渡可能年月 即時
情報提供元 SUUMO [030Z78631448] 情報公開日
情報更新日 次回更新予定日 随時

設備など

ペット相談可 即入居可 南向き
角部屋 - 駐車場空き有り トランクルーム -
オートロック - 宅配ボックス 浴室乾燥機
床暖房 - ウォークインクローゼット 管理人常駐 -
最上階 - 2階以上 タワーマンション -
設備 バルコニー・トイレ・洗面所・エレベーター・管理人日勤・浴室乾燥機・ウォークインクローゼット・シャンプードレッサ・温水洗浄便座・システムキッチン・モニタ付インターホン・風呂・対面K・浄水器・衣類乾燥機・食器洗浄乾燥機・リフォーム・バイク置き場・駐輪場・宅配BOX・リノベーション
リフォーム履歴 2025年5月完了
 水回り設備交換:キッチン・浴室・トイレ
 内装リフォーム:壁・床
 その他:洗面室、建具 等
※年月は一番古いリフォーム箇所を表します
リノベーション履歴 -
備考 <物件名>南向き×陽当たり良好×富士山望む開放の3LDK【フォルスコート調布】/<駐車場>敷地内/委託(日勤)/<土地権利>所有権の共有/<間取り>3LDK/<リフォーム>●リフォーム:2025年5月完了(水回り設備交換:キッチン・浴室・トイレ、内装リフォーム:壁・床、その他:洗面室、建具 等)※年月は一番古いリフォーム箇所を表します/<特徴>《実際のお部屋、すぐにご案内可能!》穏やかな光に包まれる、上質な日常を。、即引渡可・2沿線以上利用可・山が見える・ゴルフ場が近い・テニスコートが近い
販売戸数:1戸/管理費等帯:10000円/修繕積立金帯:15310円
法令等制限:※バイク置場:月額300円~1000円 ※駐輪場:無償
特記事項 ペット相談可・日当り良好・閑静な住宅街・管理人日勤

省エネ性能

エネルギー消費性能 -
断熱性能 -
目安光熱費 -

東京都調布市多摩川3 周辺地図情報

地図
※地図上に表示される物件の位置は付近住所に所在することを表すものであり、実際の物件所在地とは異なる場合がございます。
   正確な物件所在地は、取扱い不動産会社にお問い合わせください。
物件を見たい、物件や住環境の詳しい情報やローン相談など、
お問い合わせ先
東宝ハウスライフソリューションズグループ(株)東宝ハウス調布

不動産会社情報

お問い合わせ先 商号:東宝ハウスライフソリューションズグループ(株)東宝ハウス調布
免許番号:東京都知事(1)第110111号
所在地:東京都調布市小島町1-36-16
TEL:0120-009138
取引態様:媒介
共有する
QRコード
物件を見たい、物件や住環境の詳しい情報やローン相談など、
お問い合わせ先
東宝ハウスライフソリューションズグループ(株)東宝ハウス調布

調布市の暮らしデータ

人口などの統計情報

世帯数 120790世帯
人口総数 238774人
転入者数 14489人
転入率(人口1000人当たり)
60.68人
転出者数 13418人
転出率(人口1000人当たり)
56.20人
土地平均価格
住宅地
390750円/m2
商業地
747600円/m2

結婚・育児の助成金

子育て関連の独自の取り組み (1)子育て支援に関する制度や事業を掲載した子育て支援情報誌「元気に育て!!調布っ子」の配布およびWeb版赤ちゃんおでかけ安心まっぷ事業を実施。(2)ベビーシッター等及び家事・育児支援サービスを利用した保護者に対して、利用料の一部を助成。(3)多胎児がいる児童育成手当受給世帯、就学援助対象世帯、非課税世帯に対して育児用品等の購入を支援する給付金を交付。
出産祝い あり
公立保育所数 8所(うち0歳児保育を実施している保育所:8所)
私立保育所数 64所(うち0歳児保育を実施している保育所:64所)
保育所入所待機児童数 13人
認定こども園数 0園 預かり保育実施園数 公立:- 私立:13園
学校給食 【小学校】完全給食【中学校】完全給食
公立中学校の学校選択制 一部実施(新入学時のみ)
子ども・学生等医療費助成<通院>対象年齢 18歳3月末まで 子ども・学生等医療費助成<入院>対象年齢 18歳3月末まで

調布市の治安・ごみ収集情報

公共料金・インフラ

ガス料金(22m3使用した場合の月額) 東京瓦斯株式会社(東京地区等)3926円
水道料金(口径20mmで20m3の月額) 東京都水道局2816円
下水道料金(20m3を使用した場合の月額) 調布市1276円
下水道普及率 100.0%

安心・安全

建物火災出火件数 27件
人口10000人当たり
1.11件
刑法犯認知件数 1097件
人口1000人当たり
4.52件
ハザード・防災マップ あり

医療

一般病院総数 6ヶ所
一般診療所総数 211ヶ所
小児科医師数 26人
小児人口10000人当たり
9.02人
産婦人科医師数 12人
15~49歳女性人口1万人当たり
2.27人
介護保険料基準額(月額) 5900円

ごみ

家庭ごみ収集(可燃ごみ) 有料
備考
指定ごみ袋有料。おむつ、地域清掃は無料。枝草葉は一定量無料。
家庭ごみの分別方式 4分別14種〔燃やせるごみ 燃やせないごみ 有害ごみ 資源(容器包装プラスチック、古紙[新聞、ダンボール、雑紙、牛乳パック]、古布、ビン、カン、ペットボトル、シュレッダーごみ、枝・草・葉)〕 拠点回収:使用済小型家電 牛乳パック(飲料用紙パック)
家庭ごみの戸別収集 実施(障がい者、要介護者等を対象に、玄関前に定期的に収集に伺う「ふれあい収集」も併せて実施)
粗大ごみ収集 あり
備考
有料。事前申込制。特定廃棄物処理券を使用(持ち込み可。持ち込む場合は、従量制による現金での支払い)。
生ごみ処理機助成金制度 あり
上限金額
20000円
上限比率
50.0%

調布市の住まいの給付金

中古購入

利子補給制度 なし
補助/助成金制度 なし

増築・改築・改修

利子補給制度 なし
補助/助成金制度 あり
上限金額
(1)80万円(2)10万円(3)30万円(4)10万円
備考
(1)1981年5月31日以前に建築された木造住宅の耐震改修工事について、対象工事費の1/2補助(上限80万円)。(2)バリアフリーに適応した住宅の改修をした際に、対象工事費の1/2補助、上限10万円(1,000円未満切捨)。他要件有。(3)耐震性が十分でない木造住宅の1階に耐震シェルターを設置した際に、対象工事費の9/10(上限30万円)。(4)ブロック塀の撤去等工事をした際、(a)撤去工事費の1/2又は1万円×撤去延長(メートル)のいずれか低い額、(b)撤去後の新設工事費の1/2又は1万円×新設延長(m)のいずれか低い額、(c)(b)において木塀を設置した場合は、追加加算※いずれも上限10万円。
暮らしデータ提供元:生活ガイド.com
※行政機関により公表していない地域及びデータがございます。東京23区以外の政令指定都市は、市全体のデータとして表示しています。
※提供データには細心の注意を払っておりますが、調査後に変更がある場合があります。 最新の情報につきましては各市区役所までお問い合わせいただくか、自治体HPなどをご確認ください。

この物件を見た人はこんな物件も見ています

OCN×ドコモ光新規お申込みで合計最大137,280円相当おトク!特典の内訳・適用条件など詳細はこちら

調布市内の各駅の住みやすさ

住宅ローンの返済額一覧

物件価格 4998万円に対して、年率 で、頭金 の場合
↓ボーナス 35年間 30年間 25年間 20年間 15年間 10年間
0万円 116,761円/月 134,575円/月 159,530円/月 196,982円/月 259,428円/月 384,360円/月
5万円 107,676円/月 125,599円/月 150,663円/月 188,223円/月 250,777円/月 375,815円/月
10万円 98,590円/月 116,624円/月 141,797円/月 179,465円/月 242,125円/月 367,270円/月
15万円 89,505円/月 107,648円/月 132,930円/月 170,706円/月 233,474円/月 358,724円/月
20万円 80,419円/月 98,672円/月 124,063円/月 161,947円/月 224,822円/月 350,179円/月
25万円 71,334円/月 89,697円/月 115,196円/月 153,189円/月 216,171円/月 341,634円/月
30万円 62,248円/月 80,721円/月 106,330円/月 144,430円/月 207,520円/月 333,089円/月
支払い利息合計 4,081,390円~ 3,485,720円~ 2,894,700円~ 2,308,160円~ 1,726,550円~ 1,149,420円~
※元利均等返済方式で試算しています。 「円」の単位以下の端数金額は「切り捨て」として計算しております。
※金利は、固定金利として計算しております。
※上記の住宅ローン返済額一覧は、あくまで試算であり、将来の金利動向により、実際のご返済額とは異なります。
※ボーナス支払総額が総支払額の50%を超えている場合、上記の表では「ローン不可」となります。
※住宅ローン返済額一覧の数値は、住宅ローンのお申し込みやご融資をお約束するものではございません。
物件を見たい、物件や住環境の詳しい情報やローン相談など、
お問い合わせ先
東宝ハウスライフソリューションズグループ(株)東宝ハウス調布

掲載情報の著作権は提供元企業等に帰属します。
Copyright:(C) 2025 Recruit Co., Ltd.
アプリで簡単 物件探し 大手不動産サイトの情報から一括検!プッシュ通知で物件を見逃さない
App Storeからダウンロード Google Playで手に入れよう QRコード