アプリで簡単 物件探し 通知 共有 アプリならではの機能を使ってみる
中古マンション

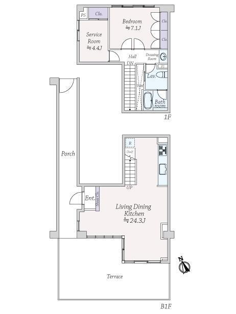
OPUS 地下1階 1SLDK

情報提供元
SUUMO
OPUS 建物外観
価格 7980万円  (管理費等:1万7580円/月(委託(管理員なし)))
修繕積立金 18,690円
交通
所在地 東京都武蔵野市吉祥寺北町2周辺地図
間取り 1SLDK 専有面積 79.53m2(壁芯)
所在階/階数 地下1階/地上3階地下1階建 方位 南西
築年月 2003年2月 築年数 築22年9ヶ月
おすすめポイント
・中央本線 吉祥寺駅より徒歩16分、通勤通学に便利な立地・周辺環境は第一種低層住居専用地域内の閑静な住宅地・ペット飼育可能 使用細則あり・オートロック、宅配ボックス有り
ペット相談可・閑静な住宅街・角部屋・メゾネット
お問い合わせ先
(株)大京穴吹不動産吉祥寺店/電話受付→本社:東京
物件を見たい、物件や住環境の詳しい情報やローン相談など、
お問い合わせ先
(株)大京穴吹不動産吉祥寺店/電話受付→本社:東京

詳細情報

価格 7980万円 管理費等 1万7580円/月(委託(管理員なし))
駐車場   修繕積立金 18,690円
所在地 東京都武蔵野市吉祥寺北町2周辺地図
交通
物件名 OPUS
築年月(築年数) 2003年2月(築22年9ヶ月) 間取り 1SLDK
総戸数 35戸 専有面積 79.53m2(壁芯)
所在階/階数 地下1階/地上3階地下1階建 バルコニー面積
方位 南西 建物構造 RC
管理形態
維持費等 土地権利 所有権
用途地域 1種低層 借地期間・地代
現況 引渡可能年月 相談
情報提供元 SUUMO [030Z78499570] 情報公開日
情報更新日 次回更新予定日 随時

設備など

ペット相談可 即入居可 - 南向き -
角部屋 駐車場空き有り - トランクルーム -
オートロック - 宅配ボックス 浴室乾燥機
床暖房 ウォークインクローゼット - 管理人常駐 -
最上階 - 2階以上 タワーマンション -
設備 バルコニー・トイレ・収納スペース・エレベーター・浴室乾燥機・温水洗浄便座・システムキッチン・モニタ付インターホン・風呂・テラス・浄水器・床暖房・衣類乾燥機・食器洗浄乾燥機・宅配BOX
リフォーム履歴 -
リノベーション履歴 -
備考 <物件名>OPUS/<土地権利>所有権の共有/<間取り>1LDK+S(納戸)/<特徴>テラス付きのメゾネットタイプ・南西向きの角住戸、スーパー 徒歩10分以内・システムキッチン・浴室乾燥機・角住戸・閑静な住宅地
販売戸数:1戸/管理費等帯:17580円/修繕積立金帯:18690円
特記事項 ペット相談可・閑静な住宅街・角部屋・メゾネット

省エネ性能

エネルギー消費性能 ★なし(省エネ基準未達成)
断熱性能 -
目安光熱費 -

東京都武蔵野市吉祥寺北町2 周辺地図情報

地図
※地図上に表示される物件の位置は付近住所に所在することを表すものであり、実際の物件所在地とは異なる場合がございます。
   正確な物件所在地は、取扱い不動産会社にお問い合わせください。
物件を見たい、物件や住環境の詳しい情報やローン相談など、
お問い合わせ先
(株)大京穴吹不動産吉祥寺店/電話受付→本社:東京

不動産会社情報

お問い合わせ先 商号:(株)大京穴吹不動産吉祥寺店/電話受付→本社:東京
免許番号:国土交通大臣(8)第004139号
所在地:東京都武蔵野市吉祥寺本町1-15-9 岩崎吉祥寺ビル4階
TEL:0120-984841
取引態様:専任媒介
管理コード:MHF86214
共有する
QRコード
物件を見たい、物件や住環境の詳しい情報やローン相談など、
お問い合わせ先
(株)大京穴吹不動産吉祥寺店/電話受付→本社:東京

武蔵野市の暮らしデータ

人口などの統計情報

世帯数 77966世帯
人口総数 147809人
転入者数 10871人
転入率(人口1000人当たり)
73.55人
転出者数 10604人
転出率(人口1000人当たり)
71.74人
土地平均価格
住宅地
570250円/m2
商業地
2518143円/m2

結婚・育児の助成金

子育て関連の独自の取り組み (1)ベビーカー貸出しサービス事業(吉祥寺駅周辺を散策してもらうためのベビーカーを無料で貸し出すサービス)。(2)共助による子育てひろば事業(民間団体がコミュニティセンター等で子育てひろば事業を実施する際の運営費補助)。(3)おたふくかぜ予防接種の一部助成。(4)麻しん、風しん予防接種行政措置。(5)ひとり親家庭等住宅費助成(月額1万円上限、所得制限などの要件あり)。
出産祝い あり
公立保育所数 4所(うち0歳児保育を実施している保育所:4所)
私立保育所数 32所(うち0歳児保育を実施している保育所:32所)
保育所入所待機児童数 0人
認定こども園数 1園 預かり保育実施園数 公立:- 私立:12園
学校給食 【小学校】完全給食【中学校】家庭弁当等との選択制[内容:完全給食]
公立中学校の学校選択制 未実施
子ども・学生等医療費助成<通院>対象年齢 18歳3月末まで 子ども・学生等医療費助成<入院>対象年齢 18歳3月末まで

武蔵野市の治安・ごみ収集情報

公共料金・インフラ

ガス料金(22m3使用した場合の月額) 東京瓦斯株式会社(東京地区等)3926円
水道料金(口径20mmで20m3の月額) 武蔵野市2731円
下水道料金(20m3を使用した場合の月額) 武蔵野市1246円
下水道普及率 100.0%

安心・安全

建物火災出火件数 43件
人口10000人当たり
2.86件
刑法犯認知件数 1265件
人口1000人当たり
8.42件
ハザード・防災マップ あり

医療

一般病院総数 8ヶ所
一般診療所総数 227ヶ所
小児科医師数 39人
小児人口10000人当たり
22.45人
産婦人科医師数 30人
15~49歳女性人口1万人当たり
8.96人
介護保険料基準額(月額) 6600円

ごみ

家庭ごみ収集(可燃ごみ) 有料
備考
指定ごみ袋有料。資源ごみ、危険・有害ごみ、落ち葉、剪定枝、おむつは無料。
家庭ごみの分別方式 9分別13種〔燃やすごみ 燃やさないごみ 古紙(新聞・チラシ、雑誌・古本・ノート類、段ボール、ざつがみ、シュレッダー紙) 古着 びん 缶 ペットボトル プラスチック製容器包装 危険・有害ごみ〕 拠点回収:使用済小型家電 紙パック
家庭ごみの戸別収集 実施
粗大ごみ収集 あり
備考
有料。シール券により事前申込制。手数料を徴収。生活保護受給世帯は手数料免除。リ災ごみは手数料一部減免。
生ごみ処理機助成金制度 なし
上限金額
-
上限比率
-

武蔵野市の住まいの給付金

中古購入

利子補給制度 なし
補助/助成金制度 なし

増築・改築・改修

利子補給制度 なし
補助/助成金制度 あり
上限金額
150万円
備考
【民間住宅・マンション耐震化促進事業助成制度】(a)1981年5月31日以前に着工された住宅。耐震診断費用2/3、上限木造9万円、非木造50万円。補強設計費用2/3、上限木造9万円、非木造50万円。耐震改修(マンション除く)費用1/2、上限木造100万円、非木造150万円。除去費用1/2、上限木造50万円、非木造75万円。(b)1981年6月1日以降で2000年5月31日以前に着工された2階建て以下の木造住宅。耐震診断助成費用2/3、上限9万円。補強設計費用2/3、上限9万円。耐震改修費用1/2、上限100万円。他要件あり。
暮らしデータ提供元:生活ガイド.com
※行政機関により公表していない地域及びデータがございます。東京23区以外の政令指定都市は、市全体のデータとして表示しています。
※提供データには細心の注意を払っておりますが、調査後に変更がある場合があります。 最新の情報につきましては各市区役所までお問い合わせいただくか、自治体HPなどをご確認ください。

この物件を見た人はこんな物件も見ています

OCN×ドコモ光新規お申込みで合計最大137,280円相当おトク!特典の内訳・適用条件など詳細はこちら

武蔵野市内の各駅の住みやすさ

住宅ローンの返済額一覧

物件価格 7980万円に対して、年率 で、頭金 の場合
↓ボーナス 35年間 30年間 25年間 20年間 15年間 10年間
0万円 194,169円/月 223,793円/月 265,293円/月 327,574円/月 431,420円/月 639,176円/月
5万円 185,084円/月 214,818円/月 256,426円/月 318,815円/月 422,768円/月 630,631円/月
10万円 175,998円/月 205,842円/月 247,559円/月 310,057円/月 414,117円/月 622,086円/月
15万円 166,913円/月 196,866円/月 238,692円/月 301,298円/月 405,465円/月 613,540円/月
20万円 157,827円/月 187,891円/月 229,826円/月 292,539円/月 396,814円/月 604,995円/月
25万円 148,742円/月 178,915円/月 220,959円/月 283,781円/月 388,162円/月 596,450円/月
30万円 139,656円/月 169,939円/月 212,092円/月 275,022円/月 379,511円/月 587,905円/月
支払い利息合計 6,772,750円~ 5,784,200円~ 4,803,300円~ 3,830,240円~ 2,864,930円~ 1,907,340円~
※元利均等返済方式で試算しています。 「円」の単位以下の端数金額は「切り捨て」として計算しております。
※金利は、固定金利として計算しております。
※上記の住宅ローン返済額一覧は、あくまで試算であり、将来の金利動向により、実際のご返済額とは異なります。
※ボーナス支払総額が総支払額の50%を超えている場合、上記の表では「ローン不可」となります。
※住宅ローン返済額一覧の数値は、住宅ローンのお申し込みやご融資をお約束するものではございません。
物件を見たい、物件や住環境の詳しい情報やローン相談など、
お問い合わせ先
(株)大京穴吹不動産吉祥寺店/電話受付→本社:東京

掲載情報の著作権は提供元企業等に帰属します。
Copyright:(C) 2025 Recruit Co., Ltd.
アプリで簡単 物件探し 大手不動産サイトの情報から一括検!プッシュ通知で物件を見逃さない
App Storeからダウンロード Google Playで手に入れよう QRコード