

 
| 価格 | 5780万円 | 管理費等 | 1万2510円/月(委託(通勤)) | 
|---|---|---|---|
| 駐車場 | 修繕積立金 | 17,000円 | |
| 所在地 | 東京都板橋区宮本町周辺地図 | ||
| 交通 | |||
| 物件名 | 日神パレステージ板橋本町第6 | ||
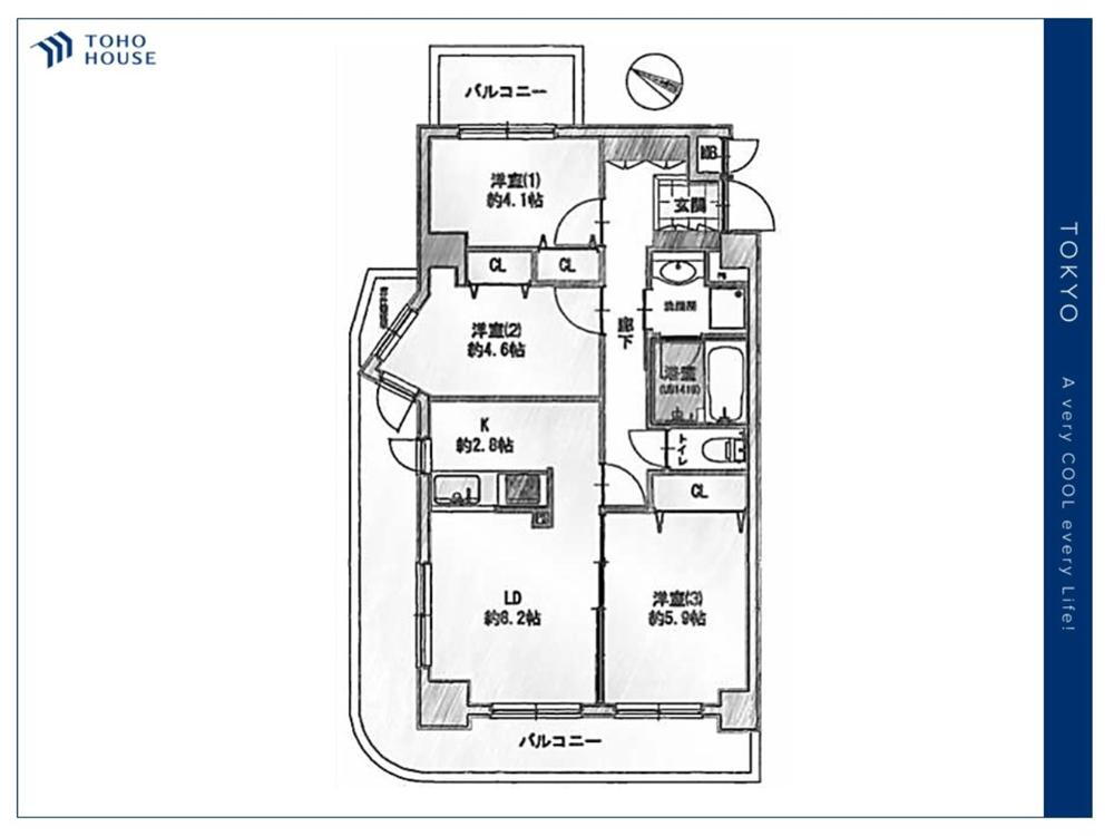
| 築年月(築年数) | 1997年6月(築28年6ヶ月) | 間取り | 3LDK | 
| 総戸数 | 44戸 | 専有面積 | 60.9m2(壁芯) | 
| 所在階/階数 | 5階/12階建 | バルコニー面積 | 18.72m2 | 
| 方位 | 南西 | 建物構造 | SRC | 
| 管理形態 | 委託管理 | ||
| 維持費等 | 土地権利 | 所有権 | |
| 用途地域 | 商業地域 | 借地期間・地代 | |
| 現況 | 引渡可能年月 | 即時 | |
| 情報提供元 | SUUMO [030Z78651736] | 情報公開日 | |
| 情報更新日 | 次回更新予定日 | 随時 | |

| ペット相談可 | - | 即入居可 | ○ | 南向き | - | 
|---|---|---|---|---|---|
| 角部屋 | ○ | 駐車場空き有り | - | トランクルーム | - | 
| オートロック | - | 宅配ボックス | ○ | 浴室乾燥機 | ○ | 
| 床暖房 | - | ウォークインクローゼット | - | 管理人常駐 | - | 
| 最上階 | - | 2階以上 | ○ | タワーマンション | - | 
| 設備 | バルコニー・トイレ・収納スペース・洗面所・エレベーター・管理人日勤・浴室乾燥機・シャンプードレッサ・温水洗浄便座・システムキッチン・モニタ付インターホン・風呂・対面K・浄水器・2面バルコニー・衣類乾燥機・食器洗浄乾燥機・複層ガラス・リフォーム・高速ネット対応・バイク置き場・駐輪場・宅配BOX・リノベーション | ||||
| リフォーム履歴 | 2025年10月完了 水回り設備交換:キッチン・浴室・トイレ 内装リフォーム:壁・床・全室 その他:ハウスクリーニング ※年月は一番古いリフォーム箇所を表します | ||||
| リノベーション履歴 | - | ||||
| 備考 | <物件名>日神パレステージ板橋本町第6/委託(日勤)/<土地権利>所有権の共有/<間取り>3LDK/<リフォーム>●リフォーム:2025年10月完了(水回り設備交換:キッチン・浴室・トイレ、内装リフォーム:壁・床・全室、その他:ハウスクリーニング)※年月は一番古いリフォーム箇所を表します/<特徴>躍動と静穏。都市の利便を享受しながら、家族の未来を育むレジデンス。、即引渡可・2沿線以上利用可・山が見える・スーパー 徒歩10分以内・市街地が近い 販売戸数:1戸/管理費等帯:12510円/修繕積立金帯:17000円 | ||||
| 特記事項 | 日当り良好・閑静な住宅街・角部屋・管理人日勤・浴室1坪以上・24時間ゴミ出し可 | ||||
| エネルギー消費性能 | - | 
|---|---|
| 断熱性能 | - | 
| 目安光熱費 | - | 
| お問い合わせ先 | 商号:東宝ハウスライフソリューションズグループ(株)東宝ハウス練馬 免許番号:東京都知事(2)第098694号 所在地:東京都練馬区東大泉1-27-22 光和ビル2F TEL:0120-068101 取引態様:媒介 管理コード:河野 | 共有する | 
 | 
|---|
| 世帯数 | 314133世帯 | 
|---|---|
| 人口総数 | 572927人 | 
| 転入者数 | 46136人 
 | 
| 転出者数 | 37895人 
 | 
| 土地平均価格 | 
 | 
| 子育て関連の独自の取り組み | (1)すくすくカード事業。(2)赤ちゃんの駅事業。(3)児童館における乳幼児親子向けプログラム及び相談事業の拡充。(4)乳幼児親子専用のお部屋「すくすくサロン」の児童館全館設置。(5)発達が気になる乳幼児親子向け事業「ほっとプログラム」の実施、その親子が安心して過ごせるお部屋「ほっとサロン」の設置。(6)東京家政大学内の緑豊かで安全な環境で実施される「森のサロン」(地域子育て支援拠点事業)。(7)子育て出張相談。(8)いたばし子育て応援アプリの配信。 | ||
|---|---|---|---|
| 出産祝い | あり | ||
| 公立保育所数 | 37所(うち0歳児保育を実施している保育所:30所) | ||
| 私立保育所数 | 105所(うち0歳児保育を実施している保育所:97所) | ||
| 保育所入所待機児童数 | 0人 | ||
| 認定こども園数 | 3園 | 預かり保育実施園数 | 公立:1園 私立:29園 | 
| 学校給食 | 【小学校】完全給食【中学校】完全給食 | ||
| 公立中学校の学校選択制 | 実施(新入学時) | ||
| 子ども・学生等医療費助成<通院>対象年齢 | 18歳3月末まで | 子ども・学生等医療費助成<入院>対象年齢 | 18歳3月末まで | 
| ガス料金(22m3使用した場合の月額) | 東京瓦斯株式会社(東京地区等)3926円 | 
|---|---|
| 水道料金(口径20mmで20m3の月額) | 東京都水道局2816円 | 
| 下水道料金(20m3を使用した場合の月額) | 東京都下水道局2068円 | 
| 下水道普及率 | 100.0% | 
| 建物火災出火件数 | 104件 
 | 
|---|---|
| 刑法犯認知件数 | 2916件 
 | 
| ハザード・防災マップ | あり | 
| 一般病院総数 | 41ヶ所 | 
|---|---|
| 一般診療所総数 | 399ヶ所 | 
| 小児科医師数 | 181人 
 | 
| 産婦人科医師数 | 87人 
 | 
| 介護保険料基準額(月額) | 6520円 | 
| 家庭ごみ収集(可燃ごみ) | 無料 
 | 
|---|---|
| 家庭ごみの分別方式 | 3分別11種〔可燃ごみ 不燃ごみ 資源(古紙[新聞、雑誌、段ボール、紙パック、紙箱・紙袋・OA用紙]、びん、缶、ペットボトル、プラスチック)〕 拠点回収:廃食用油 古布・古着 使用済小型家電 食品用トレイ 紙パック ボトル容器 乾電池、ハブラシ | 
| 家庭ごみの戸別収集 | 一部実施(【板橋区高齢者・障害者ごみ戸別収集サービス】障がい者・高齢者のみ実施) | 
| 粗大ごみ収集 | あり 
 | 
| 生ごみ処理機助成金制度 | なし 
 | 
| 利子補給制度 | なし | 
|---|---|
| 補助/助成金制度 | なし | 
| 利子補給制度 | なし | 
|---|---|
| 補助/助成金制度 | あり 
 
 | 
相生町|赤塚|赤塚新町|小豆沢|板橋|稲荷台|大原町|大谷口|大谷口上町|大谷口北町|大山金井町|大山町|大山西町|大山東町|加賀|上板橋|熊野町|小茂根|幸町|栄町|坂下|桜川|清水町|志村|新河岸|高島平|大門|東新町|常盤台|徳丸|中板橋|仲宿|中台|仲町|中丸町|成増|西台|蓮沼町|蓮根|氷川町|東坂下|東山町|富士見町|双葉町|舟渡|本町|前野町|三園|南町|南常盤台|宮本町|向原|大和町|弥生町|四葉|若木
さいたま市南区|川口市|草加市|蕨市|戸田市|朝霞市|和光市|千代田区|中央区|港区|新宿区|文京区|台東区|墨田区|目黒区|世田谷区|渋谷区|中野区|杉並区|豊島区|北区|荒川区|練馬区|足立区|葛飾区
