アプリで簡単 物件探し 通知 共有 アプリならではの機能を使ってみる
RSS

東武練馬駅(東京都)の中古マンション 物件一覧

東武練馬駅(東京都)の中古売マンション、中古分譲マンションなどの中古マンション物件をご紹介します。中古マンション物件情報を探すならgoo住宅・不動産。価格・広さ・間取り・写真・人気のこだわり条件から物件を簡単検索。理想の物件探しをgoo住宅・不動産がサポートします。

探したい物件の路線・検索条件を変更して再検索

路線
検索条件
248 並び替え
チェックした物件を一括で

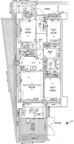
セザール平和台ガーデン

セザール平和台ガーデン
東京都練馬区平和台4
東京メトロ有楽町線 平和台駅 徒歩7分
東武東上線 東武練馬駅 徒歩20分
東京メトロ有楽町線 氷川台駅 徒歩20分
築29年3ヶ月
8階建
間取り図
価格
4,780万円
間取り
2LDK
広さ
51.43m2
階数
8階
方位
北西
  • 駐車場あり
  • 最上階
  • モニタ付インターホン
  • 浴室乾燥機
  • 即入居可
  • 所有権
  • リフォームリノベーション
  • システムキッチン
おすすめポイント
”帰りたくなる家がここにある”セザール平和台ガーデンでゆとりある毎日を

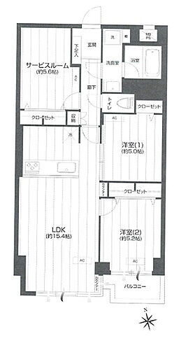
東武練馬第2ローヤルコーポ

東武練馬第2ローヤルコーポ
東京都練馬区北町3
東武東上線 東武練馬駅 徒歩8分
東京メトロ有楽町線 地下鉄赤塚駅 徒歩14分
東武東上線 下赤塚駅 徒歩16分
築43年8ヶ月
6階建
間取り図
価格
2,880万円
間取り
3DK
広さ
55.89m2
階数
2階
方位
  • 南向き
  • 角部屋
  • モニタ付インターホン
  • 浴室乾燥機
  • 所有権
  • システムキッチン
  • エレベーター
  • 2階以上
おすすめポイント
南向き リノベ

イニシア練馬北町

イニシア練馬北町
東京都練馬区北町2
東武東上線 東武練馬駅 徒歩2分
東京メトロ有楽町線 平和台駅 徒歩24分
東武東上線 上板橋駅 徒歩19分
築10年1ヶ月
8階建
間取り図
価格
6,880万円
間取り
3LDK
広さ
70m2
階数
1階
方位
南東
  • 専用庭
  • 角部屋
  • オートロック
  • 防犯カメラ
  • モニタ付インターホン
  • 浴室乾燥機
  • 床暖房
  • 所有権
おすすめポイント
《角部屋×ペット可×3LDK》 専用庭付きの開放的な住まい。 大切なペットと一緒に充実な暮らしを。

東京都板橋区徳丸2丁目 6階建

東京都板橋区徳丸2丁目 6階建
東京都板橋区徳丸2丁目
東武鉄道東上線 東武練馬駅 徒歩5分
東武鉄道東上線 下赤塚駅 徒歩21分
築25年5ヶ月
6階建
間取り図
価格
8,890万円
間取り
4SLDK
広さ
98.8m2
階数
5階
方位
南東
  • 駐車場あり
  • 角部屋
  • 防犯カメラ
  • モニタ付インターホン
  • 即入居可
  • 床暖房
  • 所有権
  • リフォームリノベーション
おすすめポイント
≪当日内見予約可能≫ 現地に立つとバルコニーからの空の広さに感動します。リノベーションで一新されたLDKは、約16.7畳もあり家具配置も自在。家族全員がゆったり寛げる理想の住まいをぜひ体感してください

マナーズフォート・ノーブルテラス

マナーズフォート・ノーブルテラス
東京都板橋区徳丸3
東武東上線 東武練馬駅 徒歩9分
東武東上線 下赤塚駅 徒歩16分
東京メトロ有楽町線 地下鉄赤塚駅 徒歩16分
築24年5ヶ月
14階建
間取り図
価格
6,980万円
間取り
3LDK
広さ
71.03m2
階数
1階
方位
  • 駐車場あり
  • 専用庭
  • オートロック
  • 浴室乾燥機
  • 床暖房
  • 所有権
  • リフォームリノベーション
  • ペット相談可
おすすめポイント
私たち東宝ハウス城東は不動産売買を通じて、お客様一人一人と誠実に向き合い、これからの暮らしに「安心」と「満足」をお届けし続けていきます。
間取り図
価格
7,790万円
間取り
3LDK
広さ
92.7m2
階数
6階
方位
  • 南向き
  • 駐車場あり
  • モニタ付インターホン
  • 所有権
  • ペット相談可
  • エレベーター
  • 2階以上
  • 宅配ボックス
おすすめポイント
-物件のおすすめポイント-▼特徴・専有面積92.7平米、3LDKの間取り・作業効率の良いL字型キッチン・陽当り・通風良好な南向きバルコニー、スロップシンク付・全居室6帖以上、収納を確保・1620サイズのゆとりある浴室・玄関前アルコーブ付・コンシェルジュサービス有・ペット2匹飼育可(細則有)▼設備・オートロック・宅配ボックス▼周辺環境・スーパー「Hanamasa Plus+東武練馬店」徒歩8分(約640m)・板橋区立北野小学校 徒歩5分(約370m)■ ご希望の住まい探しをお手伝いします ━━━━━・・・物件の詳細・ご相談はお気軽にお問い合わせください。

ライオンズマンション板橋徳丸

ライオンズマンション板橋徳丸
東京都板橋区徳丸2
東武東上線 東武練馬駅 徒歩11分
都営三田線 高島平駅 徒歩24分
東京メトロ有楽町線 地下鉄赤塚駅 徒歩25分
築27年11ヶ月
7階建
間取り図
価格
5,190万円
間取り
3LDK
広さ
60m2
階数
2階
方位
  • 南向き
  • 駐車場あり
  • オートロック
  • 防犯カメラ
  • モニタ付インターホン
  • 浴室乾燥機
  • 所有権
  • システムキッチン
おすすめポイント
私たち東宝ハウス城東は不動産売買を通じて、お客様一人一人と誠実に向き合い、これからの暮らしに「安心」と「満足」をお届けし続けていきます。

AZEST板橋

AZEST板橋
東京都板橋区上板橋2
東武東上線 上板橋駅 徒歩7分
東武東上線 東武練馬駅 徒歩15分
東京メトロ有楽町線 氷川台駅 徒歩25分
築16年5ヶ月
4階建
間取り図
価格
5,380万円
間取り
1LDK
広さ
51.66m2
階数
4階
方位
  • 南向き
  • 駐車場あり
  • 最上階
  • 角部屋
  • オートロック
  • 防犯カメラ
  • モニタ付インターホン
  • 浴室乾燥機
おすすめポイント
~おすすめポイント~ ◆室内フルリノベーション済み ◆防犯カメラ・エレベーター ◆徒歩圏内にスーパーや生活施設あり! ◆オートロック ◆食洗器 ◆エアコン2台つき

東武サンライズマンション

東武サンライズマンション
東京都板橋区徳丸2丁目
東武鉄道東上線 東武練馬駅 徒歩6分
東武鉄道東上線 下赤塚駅 徒歩26分
築45年5ヶ月
地上4階地下2階建
間取り図
価格
2,080万円
間取り
1LDK
広さ
39.4m2
階数
3階
方位
  • 南向き
  • 角部屋
  • モニタ付インターホン
  • 浴室乾燥機
  • 即入居可
  • 所有権
  • リフォームリノベーション
  • ペット相談可
おすすめポイント
私たち東宝ハウス城東は不動産売買を通じて、お客様一人一人と誠実に向き合い、これからの暮らしに「安心」と「満足」をお届けし続けていきます。

日神パレステージ東武練馬台東館

日神パレステージ東武練馬台東館
東京都板橋区西台3
東武東上線 東武練馬駅 徒歩11分
東武東上線 上板橋駅 徒歩23分
都営三田線 西台駅 徒歩25分
築21年10ヶ月
地上5階地下1階建
間取り図
価格
4,480万円
間取り
2LDK
広さ
59.03m2
階数
2階
方位
南西
  • オートロック
  • モニタ付インターホン
  • 浴室乾燥機
  • 即入居可
  • 所有権
  • リフォームリノベーション
  • システムキッチン
  • 2階以上
new間取り図
価格
5,300万円
間取り
2SLDK
広さ
75.55m2
階数
1階
方位
南西
  • 駐車場あり
  • 角部屋
  • モニタ付インターホン
  • 浴室乾燥機
  • 所有権
  • システムキッチン
  • エレベーター
  • 宅配ボックス
おすすめポイント
都心部へのアクセス良好!最寄り駅から池袋まで15分(乗換無)

ときわ第一マンション

ときわ第一マンション
東京都板橋区上板橋3
東武東上線 上板橋駅 徒歩2分
東武東上線 東武練馬駅 徒歩17分
東武東上線 ときわ台駅 徒歩18分
築59年4ヶ月
9階建
間取り図
価格
2,780万円
間取り
2LDK
広さ
47.51m2
階数
2階
方位
  • 南向き
  • 防犯カメラ
  • モニタ付インターホン
  • 浴室乾燥機
  • 即入居可
  • 所有権
  • リフォームリノベーション
  • システムキッチン
おすすめポイント
【上板橋2分】昭和42年築の貫禄×2LDK。駅前利便を「使い倒す」賢い選択

マンション東武練馬

マンション東武練馬
東京都板橋区徳丸3
東武東上線 東武練馬駅 徒歩10分
東武東上線 下赤塚駅 徒歩22分
東京メトロ有楽町線 地下鉄赤塚駅 徒歩23分
築45年11ヶ月
8階建
間取り図
価格
2,998万円
間取り
2LDK
広さ
55.86m2
階数
5階
方位
西
  • 駐車場あり
  • 角部屋
  • モニタ付インターホン
  • 浴室乾燥機
  • 即入居可
  • 所有権
  • リフォームリノベーション
  • システムキッチン
おすすめポイント
■東武練馬駅徒歩13分!■三面採光で明るい室内!■イオン板橋まで徒歩10分!◆10時〜18時までの『ご見学予約』や『お問い合わせ』はお電話がスムーズです。◆
間取り図
価格
2,998万円
間取り
1LDK
広さ
41.07m2
階数
5階
方位
西
  • 駐車場あり
  • 角部屋
  • ルーフバルコニー
  • モニタ付インターホン
  • 浴室乾燥機
  • 即入居可
  • 所有権
  • リフォームリノベーション
おすすめポイント
▼▼不動産のご購入、お困りじゃないですか?▼▼◆ 住宅ローンの審査はは通るのかなぁ?◆ 物件の選びはこれでいいのかな・・・◆ 探しはじめたばかりで、急いで無いんだけど。。。◆ 結局、購入と賃貸どちらがいいのだろう!?▲▲▲▲▲▲▲▲▲▲▲▲▲▲▲▲▲▲▲▲▲▲▲そんなお悩み、何でもご相談ください!!!『ローン』 『資金計画』 『物件選び』まずはお気軽にご相談ください!『とりあえず内見だけ・・・・』大歓迎です!◎複数物件でもお車でご案内可能です!※チャイルドシート対応、送迎可能その他ご要望なんでもご相談ください♪

ライオンズマンション平和台第3

ライオンズマンション平和台第3
東京都練馬区平和台2
東京メトロ有楽町線 平和台駅 徒歩8分
東京メトロ副都心線 平和台駅 徒歩8分
東武東上線 東武練馬駅 徒歩17分
築37年7ヶ月
9階建
間取り図
価格
5,490万円
間取り
3LDK
広さ
63.55m2
階数
4階
方位
  • 南向き
  • 駐車場あり
  • 角部屋
  • オートロック
  • 防犯カメラ
  • モニタ付インターホン
  • 浴室乾燥機
  • 所有権
おすすめポイント
私たち東宝ハウス城東は不動産売買を通じて、お客様一人一人と誠実に向き合い、これからの暮らしに「安心」と「満足」をお届けし続けていきます。

ローヤルシティ東武練馬・徳丸

ローヤルシティ東武練馬・徳丸
東京都板橋区徳丸2
東武東上線 東武練馬駅 徒歩2分
東武東上線 上板橋駅 徒歩20分
東京メトロ有楽町線 平和台駅 徒歩28分
築22年7ヶ月
8階建
間取り図
価格
6,999万円
間取り
3LDK
広さ
67.9m2
階数
6階
方位
  • 南向き
  • 所有権
  • リフォームリノベーション
  • ペット相談可
  • システムキッチン
  • エレベーター
  • 2階以上
  • 間取り図有り
おすすめポイント
◆東武東上線「東武練馬」駅徒歩2分の駅近マンション ◆南向き×6階部分で陽当り・通風良好 ◆2026年3月フルリノベーション済の切れな室内 ◆ペット飼育可(細則有)

ライオンズガーデン東武練馬壱番館

ライオンズガーデン東武練馬壱番館
東京都板橋区徳丸2
東武東上線 東武練馬駅 徒歩5分
東京メトロ副都心線 地下鉄赤塚駅 徒歩20分
東京メトロ有楽町線 地下鉄赤塚駅 徒歩20分
築25年5ヶ月
6階建
間取り図
価格
8,890万円
間取り
4LDK
広さ
98.8m2
階数
5階
方位
南東
  • 駐車場あり
  • 角部屋
  • 防犯カメラ
  • モニタ付インターホン
  • 浴室乾燥機
  • 床暖房
  • 所有権
  • リフォームリノベーション
おすすめポイント
私たち東宝ハウス城東は不動産売買を通じて、お客様一人一人と誠実に向き合い、これからの暮らしに「安心」と「満足」をお届けし続けていきます。

シティースター練馬

シティースター練馬
東京都練馬区錦2丁目
東武鉄道東上線 上板橋駅 徒歩11分
東武鉄道東上線 東武練馬駅 徒歩12分
築8年1ヶ月
8階建
間取り図
価格
2,960万円
間取り
2K
広さ
31.68m2
階数
6階
方位
  • 所有権
  • システムキッチン
  • 2階以上
  • 間取り図有り
おすすめポイント
◆東武東上線「上板橋」駅まで徒歩11分の新耐震基準マンション◆スーパー、コンビニが徒歩圏内で住環境良好◆各居室にクローゼット完備

レーベンハイム東武練馬

レーベンハイム東武練馬
東京都板橋区徳丸4
東武東上線 東武練馬駅 徒歩11分
東京メトロ副都心線 地下鉄赤塚駅 徒歩14分
東京メトロ有楽町線 平和台駅 徒歩25分
築27年2ヶ月
6階建
間取り図
価格
3,899万円
間取り
1SLDK
広さ
55.73m2
階数
1階
方位
  • オートロック
  • 浴室乾燥機
  • 即入居可
  • 所有権
  • システムキッチン
  • 間取り図有り

ライオンズマンション徳丸

ライオンズマンション徳丸
東京都板橋区徳丸6
東武東上線 東武練馬駅 徒歩14分
都営三田線 高島平駅 徒歩21分
都営三田線 新高島平駅 徒歩30分
築39年8ヶ月
5階建
間取り図
価格
3,390万円
間取り
2SLDK
広さ
66.71m2
階数
4階
方位
  • 南向き
  • 駐車場あり
  • モニタ付インターホン
  • 即入居可
  • 所有権
  • リフォームリノベーション
  • システムキッチン
  • エレベーター
おすすめポイント
マイホーム探しには、生活費、教育費、老後費、人生の三大支出も加味した、将来の家計を考慮することが大切です。弊社では住宅FPアドバイザーが、お客様の将来設計を見据えたコンサルティングを実施します。

若木原公園サニーハイツ

若木原公園サニーハイツ
東京都板橋区若木1
東武東上線 上板橋駅 徒歩8分
東武東上線 東武練馬駅 徒歩12分
都営三田線 志村三丁目駅 徒歩32分
築43年
6階建
間取り図
価格
3,280万円
間取り
2DK
広さ
45.92m2
階数
6階
方位
南西
  • 駐車場あり
  • 最上階
  • 所有権
  • エレベーター
  • 2階以上
  • 宅配ボックス
  • 間取り図有り
おすすめポイント
『The Grand Residence』 ~威厳と品格を纏う重厚な邸宅~ ◆最上階 ◆南西向き ◆大型バルコニー ◆陽当たり・眺望良好

上板橋ハウス

上板橋ハウス
東京都板橋区上板橋3
東武東上線 上板橋駅 徒歩3分
東武東上線 東武練馬駅 徒歩17分
都営三田線 志村三丁目駅 徒歩26分
築54年9ヶ月
7階建
間取り図
価格
4,080万円
間取り
2SLDK
広さ
70.42m2
階数
4階
方位
南西
  • 駐車場あり
  • 角部屋
  • モニタ付インターホン
  • 所有権
  • リフォームリノベーション
  • システムキッチン
  • カウンターキッチン
  • エレベーター
おすすめポイント
私たち東宝ハウス城東は不動産売買を通じて、お客様一人一人と誠実に向き合い、これからの暮らしに「安心」と「満足」をお届けし続けていきます。

東京都板橋区徳丸2丁目 8階建

東京都板橋区徳丸2丁目 8階建
東京都板橋区徳丸2丁目
東武鉄道東上線 東武練馬駅 徒歩2分
東武鉄道東上線 上板橋駅 徒歩20分
築22年7ヶ月
8階建
間取り図
価格
6,999万円
間取り
3LDK
広さ
67.9m2
階数
6階
方位
  • 南向き
  • 駐車場あり
  • モニタ付インターホン
  • 浴室乾燥機
  • 所有権
  • ペット相談可
  • システムキッチン
  • カウンターキッチン
おすすめポイント
駅徒歩2分、南向き、ペット可

東京都板橋区西台3丁目 地上5階地下1階建

東京都板橋区西台3丁目 地上5階地下1階建
東京都板橋区西台3丁目
東武鉄道東上線 東武練馬駅 徒歩11分
築21年10ヶ月
地上5階地下1階建
間取り図
価格
4,480万円
間取り
2LDK
広さ
59.03m2
階数
2階
方位
南西
  • 駐車場あり
  • オートロック
  • モニタ付インターホン
  • 即入居可
  • 所有権
  • リフォームリノベーション
  • システムキッチン
  • 2階以上
おすすめポイント
南西向きで陽当たり良好、新規リフォーム済み

ライオンズマンション徳丸 (成増店)

NO PHOTO
東京都板橋区徳丸6丁目
東武鉄道東上線 東武練馬駅 徒歩14分
都営地下鉄三田線 高島平駅 徒歩21分
築39年8ヶ月
5階建
間取り図
価格
3,390万円
間取り
2SLDK
広さ
66.71m2
階数
4階
方位
  • 南向き
  • 駐車場あり
  • モニタ付インターホン
  • 即入居可
  • 所有権
  • リフォームリノベーション
  • システムキッチン
  • 2階以上
おすすめポイント
●徒歩約10分圏内にお買い物施設多く生活に便利な環境 ●リフォーム済ですので、すぐにでも新しい生活をはじめることができます ●充実したサービス保証付き

東京都練馬区平和台4丁目 8階建

東京都練馬区平和台4丁目 8階建
東京都練馬区平和台4丁目
東京メトロ有楽町線 平和台駅 徒歩7分
東武鉄道東上線 東武練馬駅 徒歩18分
築29年3ヶ月
8階建
間取り図
価格
4,780万円
間取り
2LDK
広さ
51.43m2
階数
8階
方位
北西
  • 駐車場あり
  • 最上階
  • 角部屋
  • オートロック
  • 防犯カメラ
  • モニタ付インターホン
  • 即入居可
  • 所有権
おすすめポイント
■□セザール平和台ガーデン□■ ◆最上階の角住戸につき解放感・陽当たり良好な住空間◆アクセントクロスが際立つデザインの内装◆周辺に商業施設が多数で買い物利便性も良好◆公園・学校近く子育て環境も良好

東京都板橋区徳丸6丁目 5階建

東京都板橋区徳丸6丁目 5階建
東京都板橋区徳丸6丁目
東武鉄道東上線 東武練馬駅 徒歩14分
都営地下鉄三田線 高島平駅 徒歩20分
築39年8ヶ月
5階建
間取り図
価格
3,390万円
間取り
2SLDK
広さ
66.71m2
階数
4階
方位
  • 南向き
  • 駐車場あり
  • 防犯カメラ
  • モニタ付インターホン
  • 浴室乾燥機
  • 所有権
  • リフォームリノベーション
  • システムキッチン
おすすめポイント
■ライオンズマンション徳丸■家族みんなが納得して住まえる2SLDK/スーパー・コンビニ・小学校・公園など、生活に必要な施設が徒歩10分圏内に揃います/落ち着きのあるエリアで子育てに適した住環境です◇

レーベンハイム東武練馬 (成増店)

レーベンハイム東武練馬 (成増店)
東京都板橋区徳丸4丁目
東武鉄道東上線 東武練馬駅 徒歩11分
東武鉄道東上線 下赤塚駅 徒歩11分
築27年3ヶ月
6階建
間取り図
価格
3,899万円
間取り
1SLDK
広さ
55.73m2
階数
1階
方位
  • 専用庭
  • オートロック
  • モニタ付インターホン
  • 浴室乾燥機
  • 即入居可
  • 所有権
  • リフォームリノベーション
  • システムキッチン
おすすめポイント
●東武東上線「東武練馬」駅徒歩約11分の近さ ●リフォーム済ですので、すぐにでも新しい生活をはじめることができます ●専用庭付きの為、ガーデニングなど楽しむことができます

東京都板橋区徳丸4丁目 6階建

東京都板橋区徳丸4丁目 6階建
東京都板橋区徳丸4丁目
東武鉄道東上線 東武練馬駅 徒歩11分
東京メトロ有楽町線 地下鉄赤塚駅 徒歩14分
築27年3ヶ月
6階建
間取り図
価格
3,899万円
間取り
1SLDK
広さ
55.73m2
階数
1階
方位
  • 専用庭
  • オートロック
  • モニタ付インターホン
  • 浴室乾燥機
  • 即入居可
  • 所有権
  • リフォームリノベーション
  • システムキッチン
おすすめポイント
専用庭付きの為、ガーデニング等をお楽しみいただけます!全居室エアコン設置可能!(機種による) オンライン内見対応可

グラーヴェ城北・貴欧館

グラーヴェ城北・貴欧館
東京都練馬区北町1
東武東上線 東武練馬駅 徒歩10分
東武東上線 上板橋駅 徒歩12分
築35年9ヶ月
地上5階地下1階建
new間取り図
価格
4,680万円
間取り
2LDK
広さ
73.85m2
階数
2階
方位
  • 南向き
  • 駐車場あり
  • モニタ付インターホン
  • 即入居可
  • 所有権
  • システムキッチン
  • エレベーター
  • 2階以上
おすすめポイント
公園、コンビニ、スーパーが徒歩圏内。室内はとても綺麗です。分譲駐車場付住戸、賃貸収入15,000円/月(2026年4月現在)ご見学希望はお気軽にお問い合わせください。◆南向きで日当り良好◆周辺は生活利便施設多数。◆オートロック、モニター付き。◆安心の新耐震基準。◆高級感のあるタイル貼りの外観とエントランス◆管理人によるコンシェルジュサービス
間取り図
価格
4,180万円
間取り
2LDK
広さ
67.72m2
階数
1階
方位
北東
  • 駐車場あり
  • 角部屋
  • 所有権
  • エレベーター
  • 間取り図有り

ときわ第1マンション

ときわ第1マンション
東京都板橋区上板橋3
東武東上線 上板橋駅 徒歩3分
東武東上線 東武練馬駅 徒歩18分
都営三田線 志村三丁目駅 徒歩32分
築59年3ヶ月
7階建
間取り図
価格
2,780万円
間取り
2LDK
広さ
47.51m2
階数
2階
方位
  • 南向き
  • 所有権
  • リフォームリノベーション
  • ペット相談可
  • システムキッチン
  • 2階以上
  • 間取り図有り
おすすめポイント
◆東武東上線「上板橋」駅まで徒歩約3分と駅までのアクセス良好◆フルリノベーションで水回り設備や建具等の内装を一新(2026年5月)◆エアコン3台新設で初期費用を抑え、入居後すぐに快適な室温管理が可能◆南向きバルコニーからの採光が期待できる約10帖のLDK◆空間を有効的に使える壁付けタイプのシステムキッチン◆全居室に収納が備わり、スッキリとした住空間◆全居室6帖以上でプライベート空間も充実◆「上板橋第四小学校」まで徒歩約7分、「上板橋第三中学校」まで徒歩約9分とお子様でも無理なく通学可能◆「まいばすけっと上板橋駅西店」まで徒歩約7分とお買い物施設も充実◆ペット飼育可(細則有)

コスモ東武練馬シティフォルム

コスモ東武練馬シティフォルム
東京都板橋区徳丸1
東武東上線 東武練馬駅 徒歩3分
東武東上線 上板橋駅 徒歩19分
東武東上線 下赤塚駅 徒歩22分
築30年9ヶ月
5階建
間取り図
価格
5,980万円
間取り
3LDK
広さ
65.72m2
階数
3階
方位
  • 南向き
  • 駐車場あり
  • 所有権
  • エレベーター
  • 2階以上
  • 宅配ボックス
  • 間取り図有り
おすすめポイント
-物件のおすすめポイント-▼立地・東武東上線「東武練馬」徒歩3分▼特徴・会話を楽しめる対面式キッチン・足を伸ばしてくつろげる和室がLDに隣接・各洋室はカウンター付・全居室に収納スペース有・2部屋に面する南向きバルコニー▼設備・オートロック・宅配ボックス▼周辺環境・イオン板橋ショッピングセンター 徒歩4分(約260m)・まいばすけっと東武練馬駅南口店 徒歩6分(約410m)・板橋区立徳丸小学校 徒歩6分(約430m)※内覧は2026年3月末以降■ ご希望の住まい探しをお手伝いします ━━━━━・・・物件の詳細・ご相談はお気軽にお問い合わせください。

エコヴィレッジ練馬北町

エコヴィレッジ練馬北町
東京都練馬区北町2
東武東上線 東武練馬駅 徒歩3分
築21年10ヶ月
8階建
間取り図
価格
6,380万円
間取り
2LDK
広さ
75.44m2
階数
6階
方位
  • ルーフバルコニー
  • モニタ付インターホン
  • 浴室乾燥機
  • 所有権
  • ペット相談可
  • システムキッチン
  • エレベーター
  • 2階以上
おすすめポイント
・7階部分にルーフバルコニー有り・カウンター付きキッチン・浴室に窓有り、キッチンに窓有り・不在時に荷物を受け取れる宅配ボックス有り・ペット飼育可(飼育細則有り・犬猫2匹まで)

シルクハイツ徳丸

シルクハイツ徳丸
東京都板橋区徳丸2
東武東上線 東武練馬駅 徒歩4分
東武東上線 上板橋駅 徒歩21分
東武東上線 下赤塚駅 徒歩23分
築43年7ヶ月
3階建
間取り図
価格
1,790万円
間取り
ワンルーム
広さ
34.37m2
階数
2階
方位
  • 南向き
  • 即入居可
  • 所有権
  • 2階以上
  • 間取り図有り
おすすめポイント
-物件のおすすめポイント-▼立地・東武東上線「東武練馬」駅 徒歩4分▼特徴・新耐震基準マンション・専有面積34.37平米のワンルーム・3面からの採光有・お掃除しやすい3点ユニットバス・投資用としても検討可能▼周辺環境・イオンスタイル板橋 徒歩5分(約350m)・スーパー「Hanamasa Plus+東武練馬店」徒歩7分(約490m)・セブンイレブン東武練馬駅北口店 徒歩5分(約330m)※本マンションは毎月徴収される管理費・修繕積立金はございません■ ご希望の住まい探しをお手伝いします ━━━━━・・・物件の詳細・ご相談はお気軽にお問い合わせください。

イニシア練馬北町レジデンス

イニシア練馬北町レジデンス
東京都練馬区北町2
東武東上線 東武練馬駅 徒歩4分
東京メトロ有楽町線 平和台駅 徒歩19分
東武東上線 下赤塚駅 徒歩20分
築3年10ヶ月
6階建
間取り図
価格
4,198万円
間取り
1LDK
広さ
35.07m2
階数
2階
方位
西
  • モニタ付インターホン
  • 浴室乾燥機
  • 床暖房
  • 所有権
  • ペット相談可
  • システムキッチン
  • エレベーター
  • 2階以上
おすすめポイント
グッドデザイン賞23回受賞歴のある総合不動産ディベロッパー(株)コスモスイニシア分譲マンションです●お部屋の魅力お部屋のポイントは4つ①趣味を活かす土間空間観葉植物を置いてカフェテラス風にしたり、ロードバイクやアウトドアグッズを飾ったり、自由に楽しめるプラスαの土間。②豊富な玄関収納玄関収納の隣にクロゼットも完備。コートや傘のほか、アウトドアグッズも収納OK。③ダイニング兼作業台壁に料理のレシピを貼って、じっくり研究しながら作業することもできます。④トールスライドウォール間仕切りの開閉によって、生活のオンオフを切り替えやすく快適に暮らせます。是非一度ご内覧下さい!

ヴェレーナ練馬北町

ヴェレーナ練馬北町
東京都練馬区北町2
東武東上線 東武練馬駅 徒歩5分
東京メトロ副都心線 平和台駅 徒歩20分
東京メトロ有楽町線 平和台駅 徒歩20分
築9年10ヶ月
8階建
間取り図
価格
8,830万円
間取り
3LDK
広さ
83.75m2
階数
7階
方位
  • 角部屋
  • 浴室乾燥機
  • 即入居可
  • 床暖房
  • 所有権
  • リフォームリノベーション
  • システムキッチン
  • エレベーター
おすすめポイント
■2016年築、2025年9月リフォーム済物件・ペット飼育可能(飼育細則有)・不在時に便利な宅配ボックス・安心のモニター付きオートロック・近隣に大型スーパーやコンビニあり<周辺環境>・まいばすけっと練馬北町商店街店…徒歩3分(約170m)・ファミリーマート練馬北町二丁目店…徒歩3分(約240m)・ローソン練馬北町二丁目店…徒歩5分(約370m)・イオン板橋ショッピングセンター店…徒歩6分(約470m)・リフォーム内容・天井、壁クロス全張替・ガスコンロ交換・浴室乾燥機交換・トイレ新規交換・給湯器交換・ハウスクリーニング

ウエストハイツ高島平

ウエストハイツ高島平
東京都板橋区高島平1
都営三田線 西台駅 徒歩5分
東武東上線 東武練馬駅 徒歩31分
JR埼京線 浮間舟渡駅 徒歩33分
築43年9ヶ月
5階建
間取り図
価格
3,590万円
間取り
3LDK
広さ
58.35m2
階数
3階
方位
  • 南向き
  • 駐車場あり
  • モニタ付インターホン
  • 所有権
  • リフォームリノベーション
  • システムキッチン
  • 2階以上
  • 間取り図有り
おすすめポイント
▼▼▼▼  注目ポイント! ▼▼▼▼☆月9万4626円・金利0.59%☆☆提携銀行・最優遇時・ボーナス0円・35年◆三田線「西台」駅徒歩5分!◆安心の新耐震基準マンション!◆オートロックもありセキュリティ充実!◆3LDK 室内フルリノベーション施工◆3階部分の南向き!◆「もっと安い住宅ローン」が見つかる!  提携の金融機関は55社以上!◆「勤続期間が短い」「諸費用まで借りたい」 さまざまな条件下でのローンご相談ください!◆「即!見学!」&「車で送迎」サービス実施

ライオンズマンション練馬北町

ライオンズマンション練馬北町
東京都練馬区北町2
東武東上線 東武練馬駅 徒歩6分
東京メトロ有楽町線 地下鉄赤塚駅 徒歩13分
東京メトロ副都心線 地下鉄赤塚駅 徒歩13分
築26年6ヶ月
8階建
間取り図
価格
4,880万円
間取り
2SLDK
広さ
61.8m2
階数
4階
方位
  • 南向き
  • モニタ付インターホン
  • 所有権
  • リフォームリノベーション
  • エレベーター
  • 2階以上
  • 宅配ボックス
  • 食器洗浄乾燥機
おすすめポイント
-リフォーム履歴 -(2020年4月実施)・3LDKから2LDKへ間取り変更・システムキッチン交換・洗面化粧台交換 ・トイレ交換 ・洗濯機用防水パン交換 ・洋室(1)(2)床フローリング張り替え

パークホームズ上板橋

パークホームズ上板橋
東京都板橋区上板橋2
東武東上線 上板橋駅 徒歩6分
東武東上線 東武練馬駅 徒歩13分
新築
地上9階地下1階建
NO PHOTO
価格
1億1,780万円
間取り
3LDK
広さ
81.33m2
階数
7階
方位
西
  • 駐車場あり
  • 新築
  • 角部屋
  • モニタ付インターホン
  • 即入居可
  • 所有権
  • システムキッチン
  • エレベーター
おすすめポイント
・81.33m2  3LDK+WIC・2025年6月築の新築未入居!・「上板橋」駅徒歩6分・西・北方向の角部屋・食器洗浄乾燥機付きで家事の時短に!・生ゴミ処理に便利なディスポーザー・床暖房付きで足元からポカポカ・宅配ボックス付きで不在時も荷物受け取り可能・オートロックセキュリティ●都市ガス●浄水器●食器洗浄乾燥機●ディスポーザー●温水洗浄便座●室内洗濯機置場●床暖房●エレベータ●宅配ボックス●オートロック
間取り図
価格
1億2,280万円
間取り
3LDK
広さ
84.46m2
階数
6階
方位
西
  • 駐車場あり
  • 新築
  • 角部屋
  • ルーフバルコニー
  • モニタ付インターホン
  • 即入居可
  • 所有権
  • システムキッチン
おすすめポイント
・84.46m2  3LDK+WIC・2025年6月築の新築未入居!・「上板橋」駅徒歩6分・29.35m2のルーフバルコニー・西・北方向の角部屋・食器洗浄乾燥機付きで家事の時短に!・生ゴミ処理に便利なディスポーザー・床暖房付きで足元からポカポカ・宅配ボックス付きで不在時も荷物受け取り可能・オートロックセキュリティ●都市ガス●浄水器●食器洗浄乾燥機●ディスポーザー●温水洗浄便座●室内洗濯機置場●床暖房●エレベータ●宅配ボックス●オートロック

ハイラーク高島平

ハイラーク高島平
東京都板橋区高島平9
都営三田線 西台駅 徒歩7分
JR埼京線 浮間舟渡駅 徒歩28分
東武東上線 東武練馬駅 徒歩3.3km
築52年5ヶ月
14階建
間取り図
価格
3,190万円
間取り
2LDK
広さ
53.2m2
階数
2階
方位
  • 南向き
  • 駐車場あり
  • 角部屋
  • 所有権
  • リフォームリノベーション
  • ペット相談可
  • システムキッチン
  • エレベーター
おすすめポイント
▼▼▼▼  注目ポイント! ▼▼▼▼☆月8万4082円・金利0.59%☆☆提携銀行・最優遇時・ボーナス0円・35年◆ペット飼育可能(2匹まで飼育OK)◆2024年に大規模修繕工事を実施◆三田線「西台」駅から徒歩7分◆隣の敷地にはセブンイレブンあり◆内装新規フルリノベーション施工◆「もっと安い住宅ローン」が見つかる!  提携の金融機関は55社以上!◆「勤続期間が短い」「諸費用まで借りたい」 さまざまな条件下でのローンご相談ください!◆「即!見学!」&「車で送迎」サービス実施

サンリヤン練馬北町

サンリヤン練馬北町
東京都練馬区北町1
東武東上線 東武練馬駅 徒歩7分
東武東上線 上板橋駅 徒歩14分
築3年6ヶ月
8階建
間取り図
価格
4,850万円
間取り
1LDK
広さ
43.06m2
階数
5階
方位
南東
  • 角部屋
  • ルーフバルコニー
  • モニタ付インターホン
  • 浴室乾燥機
  • 床暖房
  • 所有権
  • システムキッチン
  • エレベーター
おすすめポイント
落ち着いた雰囲気の外壁に縦のラインが強調された端正で上品な佇まいの2022年12月に竣工された地上8階建て総戸数90戸のマンション。植栽が周囲を取り囲んで、それが程良い目隠しにもなり緑が目にも優しく感じられます。マンションの敷地内には駐車場、駐輪場、バイク置き場などが備わっています。マンションから徒歩1分のところには電車の見える公園があり、広くて気持ちがよく、遊具も備わっています。お部屋について◆5階部分南東・北東角住戸につき陽当り・通風良好◆9.55m2のルーフバルコニー◆便利な0.4m2のトランクルーム

アゼスト板橋

アゼスト板橋
東京都板橋区上板橋2
東武東上線 上板橋駅 徒歩7分
東武東上線 東武練馬駅 徒歩15分
築16年5ヶ月
4階建
間取り図
価格
5,380万円
間取り
1LDK
広さ
51.66m2
階数
4階
方位
南西
  • 最上階
  • モニタ付インターホン
  • 浴室乾燥機
  • 所有権
  • ペット相談可
  • システムキッチン
  • エレベーター
  • 2階以上
おすすめポイント
◆1LDK+WIC◆広々とした約16.2帖のLDK◆2026年1月新規内装リフォーム・システムキッチン新規交換・浴室新規交換・洗面化粧台新規交換・トイレ新規交換・給湯器新規交換・洗濯機パン・洗濯水栓新規交換・建具新規交換・新規フローリング張替・全室天井、壁クロス貼替・各照明器具新規交換・エアコン2基交換・ハウスクリーニング◆充実の室内設備<キッチン>・システムキッチン・食器洗浄乾燥機<浴室・トイレ>・浴室暖房乾燥機・温水洗浄便座

ドミール上板橋

ドミール上板橋
東京都板橋区中台1
東武東上線 上板橋駅 徒歩7分
東武東上線 ときわ台駅 徒歩20分
東武東上線 東武練馬駅 徒歩20分
築39年7ヶ月
地上5階地下1階建
間取り図
価格
5,480万円
間取り
3LDK
広さ
74.36m2
階数
3階
方位
西
  • 角部屋
  • 所有権
  • リフォームリノベーション
  • システムキッチン
  • エレベーター
  • 2階以上
  • 宅配ボックス
  • 間取り図有り
おすすめポイント
-物件のおすすめポイント-▼立地・東武東上線「上板橋」徒歩7分▼特徴・LDKは約14.1帖、隣接する和室は多用途に利用可能・2WAY動線が確保されたキッチン・各洋室・和室等に収納有▼室内リフォーム履歴【2022年8月】コンロ交換【2015年9月】UB・トイレ交換【2013年11月】キッチン交換【2011年12月】トイレ換気扇交換【2010年1月】洗面化粧台交換、洗面室壁・天井クロス貼替▼周辺環境・ベルクス板橋中台店 徒歩1分(約50m)■ ご希望の住まい探しをお手伝いします ━━━━━・・・物件の詳細・ご相談はお気軽にお問い合わせください。
チェックした物件を一括で
  • チェックした物件をまとめて
248
表示建物数 123 次へ

条件を選択

価格
間取り
広さ
築年数
駅からの時間
人気のこだわり条件

さらに詳しくこだわり条件を選択

位置
  • new
部屋環境
建物設備
収納
セキュリティ
駐車場・駐輪場
条件
特徴
性能・評価
瑕疵保険
お得な条件
画像・動画
情報の新しさ
フリーワード
東武練馬駅のおすすめ新築マンション

東武練馬駅の新築マンション情報をもっと見る

板橋区の住みやすさ情報

板橋区ってどんなところ?

板橋区はファミリー向けの住宅地として人気のエリア。物件価格が手頃なだけでなく、医療機関が充実していたり、日常の買い物に困らない大きな商店街があったりと、子育てしやすい環境が整っています。
池袋・新宿・渋谷・大手町など、都心の主要駅へのアクセスが良いのも魅力。東武東上線、都営地下鉄三田線、JR埼京線、東京メトロ有楽町線・副都心線といった5つの路線が通り、都心と埼玉県方面を結んでいます。

街ガイド

高野 友樹

公認不動産コンサルティングマスター/相続対策専門士/宅地建物取引士/賃貸不動産経営管理士

不動産会社にて600件以上の仲介、6000戸の収益物件管理を経験。現在は株式会社高野不動産コンサルティングを設立し、不動産コンサルティングを行う。

一人暮らしの人に聞いた
板橋区の住みやすさTOP10

  1. 1位都心に近い
  2. 2位必要なものが近場でそろう
  3. 3位大きな商店街がある

夫婦・カップルに聞いた
板橋区の住みやすさTOP10

  1. 1位都心に近い
  2. 2位公共の交通機関が充実している
  3. 3位自然や公園が多い

ファミリーに聞いた
板橋区の住みやすさTOP10

  1. 1位都心に近い
  2. 2位公共の交通機関が充実している
  3. 3位自然や公園が多い

※対象エリア周辺に過去5年以内に住んだことのある10代~60代の人を対象としてアンケートを実施し、独自に集計しています。

板橋区の暮らしデータ

人口などの統計情報

世帯数 314133世帯
人口総数 578914人
転入者数 48183人
転入率(人口1000人当たり)
83.23人
転出者数 38612人
転出率(人口1000人当たり)
66.70人
土地平均価格
住宅地
528105円/m2
商業地
950000円/m2

結婚・育児の助成金

子育て関連の独自の取り組み (1)すくすくカード事業。(2)赤ちゃんの駅事業。(3)児童館における乳幼児親子向けプログラム及び相談事業の拡充。(4)乳幼児親子専用のお部屋「すくすくサロン」の児童館全館設置。(5)発達が気になる乳幼児親子向け事業「ほっとプログラム」の実施、その親子が安心して過ごせるお部屋「ほっとサロン」の設置。(6)東京家政大学内の緑豊かで安全な環境で実施される「森のサロン」(地域子育て支援拠点事業)。(7)子育て出張相談。(8)いたばし子育て応援アプリの配信。
出産祝い あり
公立保育所数 34所(うち0歳児保育を実施している保育所:28所)
私立保育所数 110所(うち0歳児保育を実施している保育所:103所)
保育所入所待機児童数 7人
認定こども園数 4園 預かり保育実施園数 公立:1園 私立:28園
学校給食 【小学校】完全給食【中学校】完全給食
公立中学校の学校選択制 実施(新入学時)
子ども・学生等医療費助成<通院>対象年齢 18歳3月末まで 子ども・学生等医療費助成<入院>対象年齢 18歳3月末まで

板橋区の治安・ごみ収集情報

公共料金・インフラ

ガス料金(22m3使用した場合の月額) 東京瓦斯株式会社(東京地区等)3926円
水道料金(口径20mmで20m3の月額) 東京都水道局2816円
下水道料金(20m3を使用した場合の月額) 東京都下水道局2068円
下水道普及率 100.0%

安心・安全

建物火災出火件数 104件
人口10000人当たり
1.78件
刑法犯認知件数 2916件
人口1000人当たり
4.99件
ハザード・防災マップ あり

医療

一般病院総数 40ヶ所
一般診療所総数 409ヶ所
小児科医師数 174人
小児人口10000人当たり
30.33人
産婦人科医師数 81人
15~49歳女性人口1万人当たり
5.94人
介護保険料基準額(月額) 6520円

ごみ

家庭ごみ収集(可燃ごみ) 無料
備考
引越しなどで、1日に10kg以上の資源、可燃ごみ、不燃ごみを出す場合は、通常とは別に臨時に有料にて収集を行う(家庭から出るもので、分別されたものに限る)。
家庭ごみの分別方式 3分別11種〔可燃ごみ 不燃ごみ 資源(古紙[新聞、雑誌、段ボール、紙パック、紙箱・紙袋・OA用紙]、びん、缶、ペットボトル、プラスチック)〕 拠点回収:廃食用油 古布・古着 使用済小型家電、ハブラシ 集団回収:古紙(新聞、雑誌、段ボール、紙パックその他古紙) 布類、缶(スチール缶、アルミ缶) びん(リターナブルびん、ワンウェイびん)
家庭ごみの戸別収集 一部実施(【板橋区高齢者・障害者ごみ戸別収集サービス】障がい者・高齢者のみ実施)
粗大ごみ収集 あり
備考
有料。事前申込制。
生ごみ処理機助成金制度 なし
上限金額
-
上限比率
-

板橋区の住まいの給付金

中古購入

利子補給制度 なし
補助/助成金制度 なし

増築・改築・改修

利子補給制度 なし
補助/助成金制度 あり
上限金額
220万円
備考
【耐震改修工事助成】工事費の9/10で上限220万円(1981年5月31日以前に建築された木造住宅[2階建て以下]が対象)。工事費の2/3で上限160万円(1981年6月1日から2000年5月31日までに建築された木造住宅[2階建て以下]が対象)。個人の建物所有者等、区民税等を滞納していない、国認定の耐震診断法による評点が1.0未満で、その診断結果に基づいた評点1.0以上の耐震計画の補強工事である、建築基準法における重大な違反がない等の条件あり。
暮らしデータ提供元:生活ガイド.com
※行政機関により公表していない地域及びデータがございます。東京23区以外の政令指定都市は、市全体のデータとして表示しています。
※提供データには細心の注意を払っておりますが、調査後に変更がある場合があります。 最新の情報につきましては各市区役所までお問い合わせいただくか、自治体HPなどをご確認ください。

価格相場

東武練馬駅の価格相場

  ワンルーム 1K・1DK 1LDK・2K・2DK 2LDK・3K・3DK 3LDK・4K・4DK
中古マンション - - 3,886万円 3,876万円 6,547万円

周辺駅の価格相場

  上板橋 下赤塚 ときわ台 成増 中板橋
中古マンション 3,140万円 3,311万円 2,441万円 - 2,818万円
※このデータはgoo住宅・不動産に掲載されている中古マンションの平均価格(管理費・駐車場代などを除く)を算出したものです。ただし5戸以上の掲載があるものについてのみ対象とします。
※周辺駅の価格相場は1LDK・2K・2DKの平均価格(管理費・駐車場代などを除く)を算出したものです。

東京都の人気の街アクセスランキング(中古マンション)

※このランキングは2026年04月01日~30日における各ページのアクセス数から算出しています。

他のエリアから探す

特集から探す

間取り図ありタワーマンション大規模マンションペット可・ペット相談可即入居可能駐車場空き有り専有面積100平米以上売主・代理2LDK3LDK4LDK以上リフォーム・リノベーション済

アプリで簡単 物件探し 大手不動産サイトの情報から一括検!プッシュ通知で物件を見逃さない
App Storeからダウンロード Google Playで手に入れよう QRコード