アプリで簡単 物件探し 通知 共有 アプリならではの機能を使ってみる
中古マンション

ザ・タワー十条 26階 3LDK

情報提供元
SUUMO
ザ・タワー十条 陽当たり、眺望が最高なお部屋です
価格 17500万円  (管理費等:2万9800円/月(委託(巡回)))
修繕積立金 8,300円
交通
所在地 東京都北区上十条2周辺地図
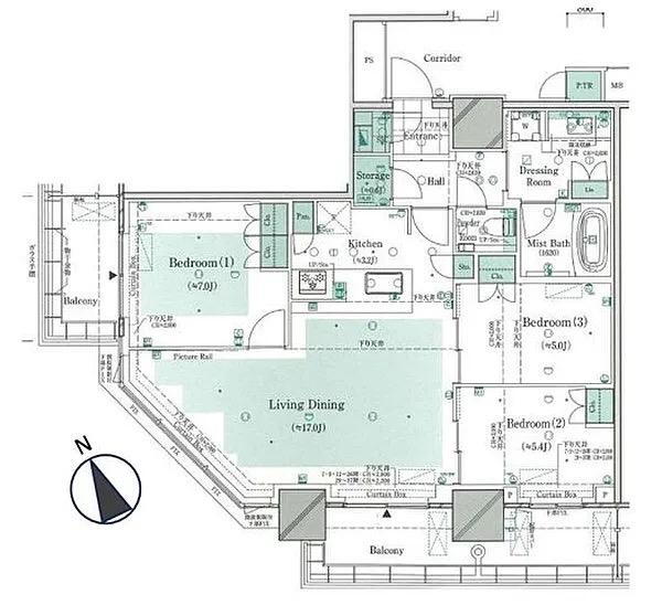
間取り 3LDK 専有面積 83.03m2(壁芯)
所在階/階数 26階/地上39階地下2階建 方位 南西
築年月 2024年9月 築年数 築1年2ヶ月
おすすめポイント
駅から徒歩1分のタワーマンション〇高級感溢れるお洒落な内装〇開放感のあるリビングと食卓の会話を楽しく演出する対面式キッチン〇南西向きで陽当たり良好〇
角部屋・管理人巡回・24時間ゴミ出し可
物件を見たい、物件や住環境の詳しい情報やローン相談など、
お問い合わせ先
(株)アセットビルダー

詳細情報

価格 17500万円 管理費等 2万9800円/月(委託(巡回))
駐車場   修繕積立金 8,300円
所在地 東京都北区上十条2周辺地図
交通
物件名 ザ・タワー十条
築年月(築年数) 2024年9月(築1年2ヶ月) 間取り 3LDK
総戸数 578戸 専有面積 83.03m2(壁芯)
所在階/階数 26階/地上39階地下2階建 バルコニー面積 10m2
方位 南西 建物構造 RC
管理形態 委託管理
維持費等 インターネットに係る費用/定額費用550円 土地権利 所有権
用途地域 借地期間・地代
現況 引渡可能年月 相談
情報提供元 SUUMO [030Z78224728] 情報公開日
情報更新日 次回更新予定日 随時

設備など

ペット相談可 - 即入居可 - 南向き -
角部屋 駐車場空き有り - トランクルーム -
オートロック - 宅配ボックス 浴室乾燥機
床暖房 ウォークインクローゼット - 管理人常駐 -
最上階 - 2階以上 タワーマンション
設備 トイレ・収納スペース・エレベーター・浴室乾燥機・温水洗浄便座・システムキッチン・モニタ付インターホン・風呂・対面K・床暖房・衣類乾燥機・食器洗浄乾燥機・宅配BOX・シューズインクローク
リフォーム履歴 -
リノベーション履歴 -
備考 <物件名>ザ・タワー十条/委託(巡回)/<土地権利>所有権/<間取り>3LDK/<特徴>83.03㎡の収納が充実した暮らしやすい間取り〇アクセス良好〇、システムキッチン・浴室乾燥機・角住戸・共有施設充実・全居室収納
販売戸数:1戸/管理費等帯:29800円/修繕積立金帯:8300円
特記事項 角部屋・管理人巡回・24時間ゴミ出し可

省エネ性能

エネルギー消費性能 -
断熱性能 -
目安光熱費 -

東京都北区上十条2 周辺地図情報

地図
※地図上に表示される物件の位置は付近住所に所在することを表すものであり、実際の物件所在地とは異なる場合がございます。
   正確な物件所在地は、取扱い不動産会社にお問い合わせください。
物件を見たい、物件や住環境の詳しい情報やローン相談など、
お問い合わせ先
(株)アセットビルダー

不動産会社情報

お問い合わせ先 商号:(株)アセットビルダー
免許番号:東京都知事(2)第103971号
所在地:東京都豊島区東池袋1-34-2 スエル池袋7階
TEL:0120-125134
取引態様:媒介
管理コード:B108
共有する
QRコード
物件を見たい、物件や住環境の詳しい情報やローン相談など、
お問い合わせ先
(株)アセットビルダー

北区の暮らしデータ

人口などの統計情報

世帯数 189579世帯
人口総数 357701人
転入者数 34161人
転入率(人口1000人当たり)
95.50人
転出者数 27589人
転出率(人口1000人当たり)
77.13人
土地平均価格
住宅地
588417円/m2
商業地
1236700円/m2

結婚・育児の助成金

子育て関連の独自の取り組み (1)子育て福袋事業(安心ママパパヘルパー事業等の案内)。(2)みんなでお祝い輝きバースデー事業。(3)子どもかがやき顕彰。(4)ひとり親家庭等相談支援事業。(5)子どもの居場所づくり(子ども食堂)支援事業。(6)生活困窮世帯・ひとり親世帯等の小学生、中学生への学習支援。(7)区立学校給食費補助金制度(給食費無償化)。
出産祝い なし
公立保育所数 42所(うち0歳児保育を実施している保育所:36所)
私立保育所数 55所(うち0歳児保育を実施している保育所:45所)
保育所入所待機児童数 8人
認定こども園数 3園 預かり保育実施園数 公立:0園 私立:21園
学校給食 【小学校】完全給食【中学校】完全給食
公立中学校の学校選択制 未実施
子ども・学生等医療費助成<通院>対象年齢 18歳3月末まで 子ども・学生等医療費助成<入院>対象年齢 18歳3月末まで

北区の治安・ごみ収集情報

公共料金・インフラ

ガス料金(22m3使用した場合の月額) 東京瓦斯株式会社(東京地区等)3926円
水道料金(口径20mmで20m3の月額) 東京都水道局2816円
下水道料金(20m3を使用した場合の月額) 東京都下水道局2068円
下水道普及率 100.0%

安心・安全

建物火災出火件数 58件
人口10000人当たり
1.63件
刑法犯認知件数 2052件
人口1000人当たり
5.78件
ハザード・防災マップ あり

医療

一般病院総数 17ヶ所
一般診療所総数 294ヶ所
小児科医師数 97人
小児人口10000人当たり
26.35人
産婦人科医師数 23人
15~49歳女性人口1万人当たり
2.82人
介護保険料基準額(月額) 6290円

ごみ

家庭ごみ収集(可燃ごみ) 無料
備考
日量10kgを超える場合又は臨時ごみは有料。
家庭ごみの分別方式 5分別10種〔可燃ごみ 不燃ごみ 古紙(新聞、雑誌、ダンボール、雑紙) 資源物(ビン、カン、ペットボトル) プラスチック〕 拠点回収:紙パック 発泡トレイ 古布 廃食油 水銀入り乾電池
家庭ごみの戸別収集 一部実施(北区内一部地域と、ご自身で集積所までごみを運び出すことが困難であり、身近な人の協力を得ることができない65歳以上又は障害のある方で、北区清掃事務所に申し出のあった方が対象)
粗大ごみ収集 あり
備考
有料。事前申込制。
生ごみ処理機助成金制度 あり
上限金額
20000円
上限比率
50.0%

北区の住まいの給付金

中古購入

利子補給制度 なし
補助/助成金制度 あり
上限金額
20万円
備考
【親元近居助成】子育てや介護等を共助しあうため、北区内に住む親世帯に近居して住宅を取得するファミリー世帯に対し、取得時の登記費用の一部(上限20万円)を助成する。

増築・改築・改修

利子補給制度 なし
補助/助成金制度 あり
上限金額
(1)10万円(2)30万円
備考
(1)【住まい改修支援事業】住宅の長寿命化・定住化の促進と地域経済の活性化のため、区民が区内中小事業者を利用して自己所有の住宅の改修工事を行った場合に、工事費の20%(上限10万円)を助成。(2)【三世代住宅建設等助成】三世代(祖父母・父母・子など)が同居し、祖父母(高齢者)等に配慮した住宅に改修する場合に、改修費用の一部を助成する(要事前申請)。助成額は1棟につき改修費用の50%(上限20万円)、ただし、義務教育修了前の子どもが2人以上いる場合は、上限30万円。
暮らしデータ提供元:生活ガイド.com
※行政機関により公表していない地域及びデータがございます。東京23区以外の政令指定都市は、市全体のデータとして表示しています。
※提供データには細心の注意を払っておりますが、調査後に変更がある場合があります。 最新の情報につきましては各市区役所までお問い合わせいただくか、自治体HPなどをご確認ください。

この物件を見た人はこんな物件も見ています

OCN×ドコモ光新規お申込みで合計最大137,280円相当おトク!特典の内訳・適用条件など詳細はこちら

北区内の各駅の住みやすさ

住宅ローンの返済額一覧

物件価格 17500万円に対して、年率 で、頭金 の場合
↓ボーナス 35年間 30年間 25年間 20年間 15年間 10年間
0万円 441,295円/月 508,622円/月 602,938円/月 744,487円/月 980,500円/月 1,452,673円/月
5万円 432,209円/月 499,646円/月 594,072円/月 735,728円/月 971,848円/月 1,444,128円/月
10万円 423,124円/月 490,670円/月 585,205円/月 726,970円/月 963,197円/月 1,435,583円/月
15万円 414,038円/月 481,695円/月 576,338円/月 718,211円/月 954,546円/月 1,427,038円/月
20万円 404,953円/月 472,719円/月 567,471円/月 709,452円/月 945,894円/月 1,418,492円/月
25万円 395,867円/月 463,743円/月 558,605円/月 700,694円/月 937,243円/月 1,409,947円/月
30万円 386,782円/月 454,768円/月 549,738円/月 691,935円/月 928,591円/月 1,401,402円/月
支払い利息合計 15,365,670円~ 13,122,640円~ 10,897,100円~ 8,689,360円~ 6,499,330円~ 4,326,980円~
※元利均等返済方式で試算しています。 「円」の単位以下の端数金額は「切り捨て」として計算しております。
※金利は、固定金利として計算しております。
※上記の住宅ローン返済額一覧は、あくまで試算であり、将来の金利動向により、実際のご返済額とは異なります。
※ボーナス支払総額が総支払額の50%を超えている場合、上記の表では「ローン不可」となります。
※住宅ローン返済額一覧の数値は、住宅ローンのお申し込みやご融資をお約束するものではございません。
物件を見たい、物件や住環境の詳しい情報やローン相談など、
お問い合わせ先
(株)アセットビルダー

掲載情報の著作権は提供元企業等に帰属します。
Copyright:(C) 2025 Recruit Co., Ltd.
アプリで簡単 物件探し 大手不動産サイトの情報から一括検!プッシュ通知で物件を見逃さない
App Storeからダウンロード Google Playで手に入れよう QRコード