中古住宅
東京都世田谷区等々力5 尾山台駅 中古一戸建て・中古住宅
| 価格 |
22000万円
|
| 交通 |
|
| 所在地 |
東京都世田谷区等々力5周辺地図
|
| 間取り |
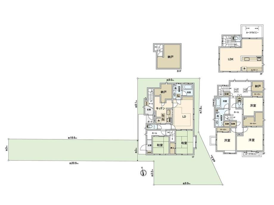
4SLDK |
| 建物面積 |
176.57m2(53.41坪)(登記) |
土地面積 |
198.14m2(59.93坪)(登記) |
| 築年月 |
2002年9月 |
築年数 |
築23年2ヶ月 |
- おすすめポイント
- -物件のおすすめポイント-▼立地・東急大井町線「尾山台」駅 徒歩6分・第一種低層住居専用地域・前面道路は北西側幅員約6.0mの公道▼特徴・道路から奥まっているためプライバシーを保ちやすい土地形状・建物面積は176.57平米(約53.41坪)・庭付きの4SLDK・駐車スペース有(車種による)▼周辺環境・スーパーオオゼキ尾山台店 徒歩4分(約310m)・世田谷区立尾山台小学校 徒歩8分(約580m)・世田谷区立ねこじゃらし公園 徒歩6分(約430m)■ ご希望の住まい探しをお手伝いします ━━━━━・・・物件の詳細・ご相談はお気軽にお問い合わせください。
- お問い合わせ先
- 三井のリハウス自由が丘センター三井不動産リアルティ(株)
物件を見たい、物件や住環境の詳しい情報やローン相談など、
- お問い合わせ先
- 三井のリハウス自由が丘センター三井不動産リアルティ(株)
| 価格 |
22000万円 |
| 所在地 |
東京都世田谷区等々力5周辺地図
|
| 交通 |
|
| 間取り |
4SLDK |
築年月(築年数) |
2002年9月(築23年2ヶ月) |
| 建物面積 |
176.57m2(53.41坪)(登記) |
建物構造・規模 |
木造3階建
|
| 土地面積 |
198.14m2(59.93坪)(登記) |
土地権利 |
所有権 |
| 私道面積 |
|
借地期間・地代 |
|
| 接道状況 |
北西6m接面3m |
駐車場 |
有 |
| 用途地域 |
1種低層 |
都市計画 |
|
| 建ぺい率/容積率 |
50%/100% |
現況 |
|
| 地目 |
|
引渡可能時期 |
相談 |
| 情報提供元 |
SUUMO [030Z78554050] |
情報公開日 |
|
| 情報更新日 |
|
次回更新予定日 |
随時 |
設備など
| 1種低層地域 |
○ |
即入居可 |
- |
売主・代理 |
- |
| 駐車2台以上 |
- |
平屋 |
- |
本下水 |
○ |
| 都市ガス |
○ |
カウンターキッチン |
- |
床暖房 |
- |
| ウォークインクローゼット |
- |
バリアフリー |
- |
|
|
| 設備 |
都市ガス・上水道・本下水 |
| リフォーム履歴 |
- |
| リノベーション履歴 |
- |
| 備考 |
<物件名>等々力5(尾山台駅) 2億2000万円/<駐車場>カースペース/<土地権利>所有権/<間取り>4LDK+S(納戸)/<特徴>■三井のリハウス■二世帯住宅としての利用も可能スーパーまで徒歩4分、土地50坪以上・スーパー 徒歩10分以内・前道6m以上・セキュリティ充実・都市ガス 販売戸数:1戸 |
| 特記事項 |
|
東京都世田谷区等々力5 周辺地図情報
※地図上に表示される物件の位置は付近住所に所在することを表すものであり、実際の物件所在地とは異なる場合がございます。
正確な物件所在地は、取扱い不動産会社にお問い合わせください。
物件を見たい、物件や住環境の詳しい情報やローン相談など、
- お問い合わせ先
- 三井のリハウス自由が丘センター三井不動産リアルティ(株)
不動産会社情報
| お問い合わせ先 |
商号:三井のリハウス自由が丘センター三井不動産リアルティ(株)
免許番号:国土交通大臣(15)第000777号 所在地:東京都目黒区自由が丘2-10-4 ミルシェ自由が丘2階 TEL:00786-01793687 取引態様:専任媒介 管理コード:F08ASA04 |
共有する |
|
物件を見たい、物件や住環境の詳しい情報やローン相談など、
- お問い合わせ先
- 三井のリハウス自由が丘センター三井不動産リアルティ(株)
人口などの統計情報
| 世帯数 |
491717世帯 |
| 人口総数 |
918141人 |
| 転入者数 |
64326人
- 転入率(人口1000人当たり)
- 70.06人
|
| 転出者数 |
59597人
- 転出率(人口1000人当たり)
- 64.91人
|
| 土地平均価格 |
- 住宅地
- 676200円/m2
- 商業地
- 1209125円/m2
|
結婚・育児の助成金
| 子育て関連の独自の取り組み |
(1)産後ケア事業(産後の母子を対象に母体ケア、乳児ケア、育児相談・指導などを行う)。(2)新教科「日本語」教育(2007年より世田谷区立の全小・中学校にて実施)(3)せたがや0→1(ぜろいち)子育てエール(5ヶ月から11ヶ月の子供を育てる家庭への見守り訪問事業)(4)世田谷区バースデーサポート事業(1歳を迎える子供のいる家庭へ子育て支援用品等の購入に使用できるデジタルギフト贈呈。※条件あり)(5)子育てステーションの設置(利便性の高い駅前に点在。多機能子育て支援拠点施設) |
| 出産祝い |
あり |
| 公立保育所数 |
44所(うち0歳児保育を実施している保育所:20所) |
| 私立保育所数 |
172所(うち0歳児保育を実施している保育所:158所) |
| 保育所入所待機児童数 |
58人 |
| 認定こども園数 |
7園 |
預かり保育実施園数 |
公立:7園 私立:45園 |
| 学校給食 |
【小学校】完全給食【中学校】完全給食 |
| 公立中学校の学校選択制 |
未実施 |
| 子ども・学生等医療費助成<通院>対象年齢 |
18歳3月末まで |
子ども・学生等医療費助成<入院>対象年齢 |
18歳3月末まで |
世田谷区の治安・ごみ収集情報
公共料金・インフラ
| ガス料金(22m3使用した場合の月額) |
東京瓦斯株式会社(東京地区等)3926円 |
| 水道料金(口径20mmで20m3の月額) |
東京都水道局2816円 |
| 下水道料金(20m3を使用した場合の月額) |
東京都下水道局2068円 |
| 下水道普及率 |
99.9% |
安心・安全
| 建物火災出火件数 |
141件
- 人口10000人当たり
- 1.49件
|
| 刑法犯認知件数 |
4084件
- 人口1000人当たり
- 4.33件
|
| ハザード・防災マップ |
あり |
医療
| 一般病院総数 |
27ヶ所 |
| 一般診療所総数 |
952ヶ所 |
| 小児科医師数 |
349人
- 小児人口10000人当たり
- 33.26人
|
| 産婦人科医師数 |
66人
- 15~49歳女性人口1万人当たり
- 3.00人
|
| 介護保険料基準額(月額) |
6280円 |
ごみ
| 家庭ごみ収集(可燃ごみ) |
無料
|
| 家庭ごみの分別方式 |
3分別14種〔可燃ごみ 不燃ごみ(小型家電製品・金属類、ガラス陶磁器類、乾電池・白熱電球・LED電球類・割れた蛍光管、ライター) 資源ごみ(古紙[新聞、雑誌類、紙パック、ダンボール]、ガラスびん、缶、ペットボトル、蛍光管、スプレー缶・カセットボンベ)〕 |
| 家庭ごみの戸別収集 |
一部実施(65歳以上のひとり暮らし高齢者または高齢者のみの世帯で、世帯全員が介護保険法の要介護2または2程度、ひとり暮らしの障害者または障害者のみの世帯) |
| 粗大ごみ収集 |
あり
|
| 生ごみ処理機助成金制度 |
なし
- 上限金額
- -
- 上限比率
- -
|
世田谷区の住まいの給付金
中古購入
増築・改築・改修
| 利子補給制度 |
なし |
| 補助/助成金制度 |
あり
- 上限金額
- (1)150万円(2)40万円
|
※行政機関により公表していない地域及びデータがございます。東京23区以外の政令指定都市は、市全体のデータとして表示しています。
※提供データには細心の注意を払っておりますが、調査後に変更がある場合があります。 最新の情報につきましては各市区役所までお問い合わせいただくか、自治体HPなどをご確認ください。
世田谷区の暮らしデータをもっと見る
物件を見たい、物件や住環境の詳しい情報やローン相談など、
- お問い合わせ先
- 三井のリハウス自由が丘センター三井不動産リアルティ(株)