アプリで簡単 物件探し 通知 共有 アプリならではの機能を使ってみる
RSS

糟屋郡粕屋町(福岡県)の中古一戸建て・中古住宅 物件一覧

福岡県糟屋郡粕屋町の中古住宅、中古一軒家などの中古一戸建て物件をご紹介します。中古物件、中古一軒家、中古建売住宅などの中古一戸建て物件情報を探すならgoo住宅・不動産。価格・建物面積・土地面積・間取り・人気のこだわり条件から物件を簡単検索。理想のマイホーム探しをgoo住宅・不動産がサポートします。

探したい物件のエリア・検索条件を変更して再検索

エリア
検索条件
26 並び替え
チェックした物件を一括で
選択 物件タイプ
画像
所在地/交通
(駅/バス 所要時間)
価格 間取り
建物面積
土地面積 築年月
築年数

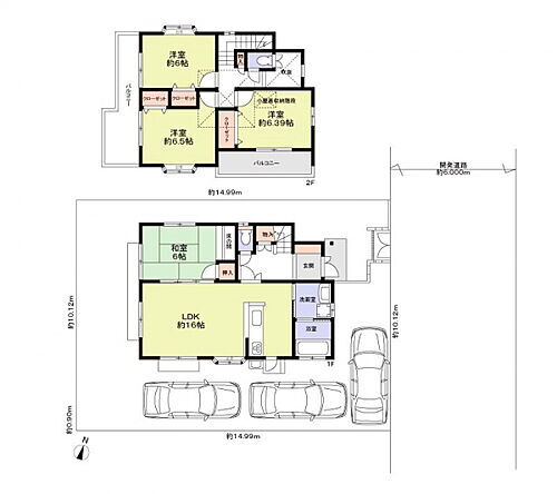
福岡県糟屋郡粕屋町長者原西1 5520万円 3SLDK

  • 中古住宅
  • 福岡県糟屋郡粕屋町長者原西1 中古住宅
    間取り図
福岡県糟屋郡粕屋町長者原西1
JR香椎線 伊賀駅 徒歩1分
JR香椎線 長者原駅 徒歩13分
JR篠栗線 原町駅 徒歩13分
5520
万円
3SLDK
120.7m2
176.29m2 2000年8月(築25年4ヶ月)
  • 2階建て
  • 駐車場あり
  • 駐車3台
  • 所有権
おすすめポイント
粕屋町長者原西1丁目 中古住宅の登場です!お気軽にお問い合わせください♪----- オススメ ポイント!! -----〇土地約53.33坪♪〇JR香椎線「伊賀」駅前♪〇角地♪陽当たり良好♪〇子育て世代に嬉しい大川小まで徒歩約8分♪平日、土・日・祝 いつでもご案内可能です!!賃貸より安く、マイホームを賢く購入する方法お教えします♪物件探し、資金計画など何でもご相談下さい。
センチュリー21 (株)よしなが企画糟屋支店

福岡県糟屋郡粕屋町酒殿4 5670万円 2LDK

  • 中古住宅
  • 福岡県糟屋郡粕屋町酒殿4 中古住宅
    間取り図
福岡県糟屋郡粕屋町酒殿4
JR香椎線 酒殿駅 徒歩3分
JR香椎線 長者原駅 徒歩21分
JR篠栗線 原町駅 徒歩26分
5670
万円
2LDK
86.95m2
207.06m2 2021年8月(築4年4ヶ月)
  • 平屋
  • 南道路
  • 都市ガス
  • システムキッチン
  • 床暖房
  • 浴室乾燥機
  • 所有権
おすすめポイント
香椎線「酒殿」駅まで徒歩3分という立地です。令和3年8月築の物件で、住友林業ならではの木の温もりを感じる造りが魅力。2LDKの平屋は、開放的なLDKと家事動線の良い間取りが特徴で、夫婦2人暮らしや少人数世帯にも最適です。土地面積約62.63坪で駐車スペースも確保。徒歩圏内に買い物施設が整い、子育て、シニアの方にも暮らしやすいロケーションです。~設備・仕様~■構法:【マルチバランス構法】■断熱仕様:【省エネルギー対策等級4】■防耐火仕様:【省令準耐火仕様】■リビング・ダイニング:【床暖房】■システムキッチン:【ガスコンロ・食洗器】
住友林業ホームサービス(株)九州売買仲介営業部福岡第2センター

福岡県糟屋郡粕屋町原町3 1100万円 6DK

  • 中古住宅
  • 福岡県糟屋郡粕屋町原町3 中古住宅
福岡県糟屋郡粕屋町原町3
JR篠栗線 原町駅 徒歩5分
JR香椎線 伊賀駅 徒歩10分
1100
万円
6DK
103.9m2
186.62m2 1966年8月(築59年4ヶ月)
  • 2階建て
  • 所有権
おすすめポイント
◇購入条件などお気軽にお声かけくださいませ。■スーパーまで徒歩7分!コンビニまで徒歩5分!お買い物が便利な立地☆■前面道路は法定外道路になります。■S62年に2階増改築あり^^ ■西鉄バス原町停まで徒歩5分!JR篠栗線・香椎線の2沿線利用可能◎◇小学校:徒歩約7分◇中学校:徒歩約23分☆年間1600件の相談実績☆頭金0円可能!月々の返済がご不安な方!もっと良い条件を引き出したい方!すでにお借入のある方!など、住宅ローンのお悩みをこれまでにたくさんお受けしてきました^^ぜひ一度ご相談下さい^^
ヤマダ不動産 福岡志免店グラングッド不動産(株)

福岡県糟屋郡粕屋町原町3 4990万円 4LDK

  • 中古住宅
  • 福岡県糟屋郡粕屋町原町3 中古住宅
    間取り図
福岡県糟屋郡粕屋町原町3
JR篠栗線 原町駅 徒歩7分
4990
万円
4LDK
108.99m2
161.28m2 2022年9月(築3年3ヶ月)
  • 2階建て
  • 駐車場あり
  • 駐車3台
  • オール電化
  • 浴室乾燥機
  • 所有権
おすすめポイント
◆敷地面積:161.28㎡(48.78坪)◆建物面積:108.99㎡(32.96坪)、4LDK◆2022年9月築◆駐車場3台可(車種による)◆オール電化住宅◆1階にオープンクローゼットあり◆約20.9帖のLDK◆食器洗浄乾燥機付き対面式のフラットキッチン◆IHクッキングヒーター◆浴室換気乾燥暖房機能付きのユニットバス◆トイレは照明自動点灯機能、便座フタ自動開閉機能付き・手洗いカウンターあり◆和室・洗面室に室内物干あり◆リビングから出入り可能なテラスあり◆宅配ボックス付きの機能門柱◆TVモニター付きインターホン
住友不動産ステップ(株)千早営業センター

福岡県糟屋郡粕屋町長者原東4 3780万円 4LDK

  • 中古住宅
  • 福岡県糟屋郡粕屋町長者原東4 中古住宅
    間取り図
福岡県糟屋郡粕屋町長者原東4
JR香椎線 伊賀駅 徒歩8分
JR香椎線 長者原駅 徒歩14分
3780
万円
4LDK
121.03m2
165.54m2 2011年2月(築14年10ヶ月)
  • 2階建て
  • 駐車場あり
  • 駐車2台
  • システムキッチン
  • オール電化
  • 浴室乾燥機
  • 所有権
おすすめポイント
◇ 閑静な住宅地/生活利便性良好◇ JR香椎線「伊賀」駅まで徒歩8分◇ 小・中学校まで徒歩8分♪◇ 2011年2月築の注文住宅/オール電化◇ 収納量豊富な4LDK  ⇒ 2階に約4.5帖の納戸とウォークインクローゼット有◇ リビング階段  ⇒ ご家族のコミュニケーションが促進されます。◇ 駐車スペース2台分(車種による)
住友不動産ステップ(株)福岡営業センター

福岡県糟屋郡粕屋町原町4 3480万円 4LDK

  • 中古住宅
  • 福岡県糟屋郡粕屋町原町4 中古住宅
    間取り図
福岡県糟屋郡粕屋町原町4
JR篠栗線 原町駅 徒歩10分
JR香椎線 長者原駅 徒歩19分
3480
万円
4LDK
98.88m2
165.3m2 2005年3月(築20年9ヶ月)
  • 2階建て
  • 駐車場あり
  • 駐車3台
  • システムキッチン
  • 浴室乾燥機
  • 所有権
おすすめポイント
■敷地内駐車場3台分有(※車種によります。現地要確認)■2階には南東・南西側の2面バルコニー有。 南西側バルコニーからは、九州大学原町農場跡地が見えます。■追い焚き・浴室乾燥機付のバスルーム■建物 1階55.48㎡、2階43.40㎡・4LDKの間取。屋根裏部屋有■土地 165.30㎡(約50.00坪)■徒歩圏内に学業・公共・商業施設御座います。〇青葉はるまち保育園・・・約919m〇粕屋中央小学校・・・・約1452m〇粕屋中学校・・・・約1371m〇ザ・ビッグ エクスプレス粕屋店・・・約766m
住友林業ホームサービス(株)九州売買仲介営業部福岡第1センター

福岡県糟屋郡粕屋町原町4 4598万円 4LDK

  • 中古住宅
  • 福岡県糟屋郡粕屋町原町4 中古住宅
福岡県糟屋郡粕屋町原町4
JR篠栗線 原町駅 徒歩10分
4598
万円
4LDK
96.88m2
254.15m2 2020年6月(築5年6ヶ月)
  • 平屋
  • 駐車場あり
  • 駐車2台
  • システムキッチン
  • オール電化
  • 浴室乾燥機
  • 所有権
おすすめポイント
◆敷地面積:254.15㎡(76.88坪)◆建物面積:96.88㎡(29.30坪)◆アエラホーム施工・平屋建て4LDKの注文住宅◆駐車スペース有り(車種による)◆オール電化、太陽光発電システム(5.5KW)◆洋室(約7.0帖)にウォークインクローゼットあり◆IHクッキングヒーター・食器洗浄乾燥機付きシステムキッチン◆玄関にシューズインクローゼットあり
住友不動産ステップ(株)千早営業センター

福岡県糟屋郡粕屋町駕与丁2 19800万円 4SLDK

  • 中古住宅
  • 福岡県糟屋郡粕屋町駕与丁2 中古住宅
    間取り図
福岡県糟屋郡粕屋町駕与丁2
JR篠栗線 長者原駅 徒歩14分
19800
万円
4SLDK
258.72m2
515.33m2 2020年7月(築5年5ヶ月)
  • 3階建て以上
  • 駐車場あり
  • 駐車3台
  • オール電化
  • 浴室乾燥機
  • 所有権
おすすめポイント
◆☆物件の特徴☆◆〇駕与丁公園が一望できます。〇令和2年7月築・駐車スペース10台可能。〇旭化成へーベルハウス・鉄骨造3階建て。〇別棟・鉄骨造2階建(事務所・シャッター付きガレージ)〇太陽光発電パネル・オール電化エコキュート。〇ホームエレベーター付き。〇仲原小学校・粕屋中学校■ご見学は直接スタッフへお気軽にどうぞ■※スタッフ もりやま(090-7923-8532)
(株)コムス

福岡県糟屋郡粕屋町大字大隈 2000万円 4LDK

  • 中古住宅
  • 福岡県糟屋郡粕屋町大字大隈 中古住宅
福岡県糟屋郡粕屋町大字大隈
JR篠栗線 門松駅 徒歩16分
2000
万円
4LDK
193.1m2
247.05m2 1995年5月(築30年7ヶ月)
  • 2階建て
  • 駐車場あり
  • 所有権
  • 即入居可
エステートホームズ(株)

福岡県糟屋郡粕屋町大字仲原 3830万円 4LDK

  • 中古住宅
  • 福岡県糟屋郡粕屋町大字仲原 中古住宅
    間取り図
福岡県糟屋郡粕屋町大字仲原
JR篠栗線 原町駅 徒歩9分
JR篠栗線 長者原駅 徒歩20分
3830
万円
4LDK
96.05m2
174.74m2 2011年7月(築14年5ヶ月)
  • 2階建て
  • 駐車場あり
  • 駐車3台
  • システムキッチン
  • オール電化
  • 浴室乾燥機
  • 所有権
  • リフォームリノベーション
おすすめポイント
□■--物件情報-------------□■□□リフォーム済オール電化物件♪□粕屋西小学校・粕屋中学校も徒歩圏内で通学安心♪□■--周辺環境-------------□■□□JR篠栗線「原町駅」まで徒歩9分♪□西鉄バス「四軒屋」バス停まで徒歩9分♪□スーパー「業務スーパー粕屋仲原店」まで徒歩14分♪□コンビニ「セブンイレブン粕屋仲原3丁目店」まで徒歩6分♪□ホームセンター「スーパービバホーム福岡東店」まで徒歩24分♪□ドラッグストア「ドラッグストアモリ空港東店」まで徒歩18分♪□粕屋町立粕屋西小学校まで徒歩11分♪□粕屋町立粕屋中学校まで徒歩14分♪
ADDRESS(株)

福岡県糟屋郡粕屋町大字仲原 3830万円 4LDK

  • 中古住宅
  • 福岡県糟屋郡粕屋町大字仲原 中古住宅
    間取り図
福岡県糟屋郡粕屋町大字仲原
JR篠栗線 原町駅 徒歩9分
JR篠栗線 長者原駅 徒歩20分
JR香椎線 伊賀駅 徒歩26分
3830
万円
4LDK
96.05m2
174.74m2 2011年7月(築14年5ヶ月)
  • 2階建て
  • 駐車場あり
  • 駐車3台
  • システムキッチン
  • 浴室乾燥機
  • 所有権
  • 即入居可
  • リフォームリノベーション
おすすめポイント
当社の強みは、リフォーム会社としての豊富な経験と知識です!建物の構造から、水回り設備一つひとつに至るまで、専門家ならではの視点でメリット・デメリットを丁寧にお伝えいたします。「新築は予算的に難しいけれど、このエリアで理想の住まいを見つけたい」「中古物件を購入して、自分好みの空間にリフォームしたい」そうお考えのお客様に、寄り添ったご提案をさせていただきます。「このエリアでマンションを探している」「中古の一戸建てが欲しい」といった、漠然としたご相談も大歓迎です♪しつこい電話営業は一切ございませんので、どうぞお気軽にお問合せください♪
パワーハウス(株)

福岡県糟屋郡粕屋町大字仲原 3830万円 4LDK

  • 中古住宅
  • 福岡県糟屋郡粕屋町大字仲原 中古住宅
    間取り図
福岡県糟屋郡粕屋町大字仲原
JR篠栗線 柚須駅 徒歩13分
3830
万円
4LDK
96.05m2
174.74m2 2011年7月(築14年5ヶ月)
  • 2階建て
  • 駐車場あり
  • 駐車3台
  • システムキッチン
  • 浴室乾燥機
  • 所有権
  • 即入居可
  • リフォームリノベーション
おすすめポイント
▼▽周辺環境▽▼スーパー/イオン福岡東店:徒歩12分(944m)コンビニ/セブンイレブン粕屋仲原郵便局前店:徒歩3分(225m)ドラッグストア/ディスカウントドラッグコスモス柚須店:徒歩11分(840m)ホームセンター/MrMax粕屋店:徒歩14分(1084m)小学校/粕屋町立粕屋西小学校:徒歩12分(932m)中学校/粕谷町立粕谷中学校:徒歩27分(2109m)幼稚園/粕屋町立西幼稚園:徒歩8分(629m)銀行/西日本シティ銀行イオン福岡東出張所:徒歩11分(870m)郵便局/粕屋仲原郵便局:徒歩3分(209m)
(株)晴栄不動産

福岡県糟屋郡粕屋町大字大隈 2980万円 3LDK

  • 中古住宅
  • 福岡県糟屋郡粕屋町大字大隈 中古住宅
    間取り図
福岡県糟屋郡粕屋町大字大隈
JR篠栗線 門松駅 徒歩16分
JR篠栗線 長者原駅 徒歩21分
JR香椎線 伊賀駅 徒歩25分
2980
万円
3LDK
75.35m2
165.42m2 2014年9月(築11年3ヶ月)
  • 平屋
  • 駐車場あり
  • 駐車2台
  • オール電化
  • 床暖房
  • 所有権
おすすめポイント
◎JR篠栗線線「門松」駅 徒歩16分・小学校ともに徒歩圏内!・スーパー 徒歩15分◆一条工務店施工で夏涼しく、冬は暖かく快適に暮らせます♪◇太陽光パネル付き屋根、オール電化で省エネ性能バツグン◎◆リビングエアコン完備で快適な室内♪◇床暖房であったかぬくぬく☆◆カウンターキッチンでおしゃべりもはずみます!◇吹き抜けリビングで室内広々♪◆全居室収納やシューズクロークで収納設備充実♪◇2台縦列駐車可能!(駐車台数は車種による)◆前面道路は行き止まりで交通量が少なく車の出入りらくらく♪◆駐車場は縦列ですが、玄関横に一時駐車は可能◇太陽光パネル14kWで売電収入が見込めます
住むばい (株)平和地建

福岡県糟屋郡粕屋町大字仲原 3830万円 4LDK

  • 中古住宅
  • 福岡県糟屋郡粕屋町大字仲原 中古住宅
    間取り図
福岡県糟屋郡粕屋町大字仲原
JR篠栗線 柚須駅 徒歩10分
3830
万円
4LDK
96.05m2
174.74m2 2011年7月(築14年5ヶ月)
  • 2階建て
  • 駐車場あり
  • 駐車3台
  • システムキッチン
  • 所有権
  • 即入居可
おすすめポイント
【最短2分で見学予約 赤色の見学予約ボタンをクリック】お子様も一緒のご内覧も大歓迎♪1.赤色の見学予約ボタンから、ご希望の見学日時をお選びください。(「今から見たい!」という場合はお電話がスムーズです)2.集合場所をお選びください。(現地集合の他、送迎もご相談ください)3.連絡事項には来場予定の人数などをご記入ください。*他の気になる物件、「どこかのサイトで見た。」「チラシで見た。」といった物件との比較見学も可能です。ご希望の物件名やエリア、条件などを連絡事項欄にご記入ください。<予約完了!>*第3候補まで日時指定できます。*定休日は事前予約で対応可能な場合があります。
ハウスドゥ 博多ミスト(株)フォロー

福岡県糟屋郡粕屋町内橋東1 3980万円 4LDK

  • 中古住宅
  • 福岡県糟屋郡粕屋町内橋東1 中古住宅
    間取り図
福岡県糟屋郡粕屋町内橋東1
JR香椎線 伊賀駅 徒歩14分
JR香椎線 土井駅 徒歩25分
JR篠栗線 原町駅 徒歩25分
3980
万円
4LDK
149.1m2
250.17m2 1997年3月(築28年9ヶ月)
  • 2階建て
  • 駐車場あり
  • 駐車2台
  • システムキッチン
  • 床暖房
  • 所有権
おすすめポイント
◆頭金0円OK!◆“借りれる額”と“無理なく返せる額”は違う!◆住宅ローンアドバイザーが最適な返済計画をご提案♪☆‥…━━━━☆‥…━━━━☆‥…━━━━☆~◆◇新築戸建もご紹介可能◇◆~新築でも中古でも実績のある弊社だからこそできる!それぞれのメリット・デメリットを把握し、じっくり比較検討することができます♪内見したい物件をツアー形式でまわることも可能♪お住み替え相談も承ります♪☆‥…━━━━☆‥…━━━━☆‥…━━━━☆~◆◇リフォーム・リノベーション承ります◇◆~弊社にてご注文いただくと、住宅ローンに組み込み可能♪豊富なメニューを取り揃えております♪
スマイル不動産福岡(株)黒川屋

福岡県糟屋郡粕屋町酒殿3 9300万円 6SLDK

  • 中古住宅
  • 福岡県糟屋郡粕屋町酒殿3 中古住宅
    間取り図
福岡県糟屋郡粕屋町酒殿3
JR香椎線 酒殿駅 徒歩5分
9300
万円
6SLDK
266.96m2
697.52m2 1986年3月(築39年9ヶ月)
  • 2階建て
  • 南道路
  • 駐車場あり
  • 駐車3台
  • システムキッチン
  • オール電化
  • 浴室乾燥機
  • 所有権
おすすめポイント
新築時・増改築時の設計図、駐車3台以上可、LDK20畳以上、土地100坪以上、山が見える、スーパー 徒歩10分以内、市街地が近い、内外装リフォーム、南向き、システムキッチン、浴室乾燥機、陽当り良好、駅まで平坦、南側道路面す、閑静な住宅地、和室、整形地、田園風景、庭、シャワー付洗面化粧台、バリアフリー、トイレ2ヶ所、自然素材使用、2階建、オートバス、温水洗浄便座、浴室に窓、TVモニタ付インターホン、リノベーション、節水型トイレ、緑豊かな住宅地、前面棟無、通風良好、天井高2.5m以上、全居室6畳以上、IHクッキングヒーター、ジェットバス、平坦地、屋根裏収納、古民家風、納戸、食器洗乾燥機、隣家との間隔が大
入江不動産(株)宇美店

福岡県糟屋郡粕屋町大字仲原 3830万円 4LDK

  • 中古住宅
  • 福岡県糟屋郡粕屋町大字仲原 中古住宅
    間取り図
福岡県糟屋郡粕屋町大字仲原
JR篠栗線 柚須駅 徒歩13分
地下鉄空港線 福岡空港駅 徒歩31分
JR篠栗線 原町駅 徒歩25分
3830
万円
4LDK
96.05m2
174.74m2 2011年7月(築14年5ヶ月)
  • 2階建て
  • 駐車場あり
  • 駐車3台
  • システムキッチン
  • オール電化
  • 浴室乾燥機
  • 所有権
  • 即入居可
おすすめポイント
■2025年9月リフォーム完了♪☆‥…━━━━☆‥…━━━━☆‥…━━━━☆~◆◇新築戸建もご紹介可能◇◆~新築でも中古でも実績のある弊社だからこそできる!それぞれのメリット・デメリットを把握し、じっくり比較検討することができます♪内見したい物件をツアー形式でまわることも可能♪お住み替え相談も承ります♪☆‥…━━━━☆‥…━━━━☆‥…━━━━☆◆ご内覧は土日祝・当日も対応可能♪◆頭金0円OK!◆追加リフォームもワンストップで承ります♪◆“借りれる額”と“無理なく返せる額”は違う!◆住宅ローンアドバイザーが最適な返済計画をご提案♪
スマイル不動産福岡(株)黒川屋

福岡県糟屋郡粕屋町内橋東1 3980万円 5LDK

  • 中古住宅
  • 福岡県糟屋郡粕屋町内橋東1 中古住宅
    間取り図
福岡県糟屋郡粕屋町内橋東1
JR香椎線 伊賀駅 徒歩16分
JR篠栗線 原町駅 徒歩21分
JR香椎線 土井駅 徒歩25分
3980
万円
5LDK
149.05m2
276.43m2 1979年3月(築46年9ヶ月)
  • 2階建て
  • 駐車場あり
  • 駐車3台
  • システムキッチン
  • オール電化
  • 浴室乾燥機
  • 所有権
  • 即入居可
おすすめポイント
■2018年1月リフォーム完了♪☆‥…━━━━☆‥…━━━━☆‥…━━━━☆~◆◇新築戸建もご紹介可能◇◆~新築でも中古でも実績のある弊社だからこそできる!それぞれのメリット・デメリットを把握し、じっくり比較検討することができます♪内見したい物件をツアー形式でまわることも可能♪お住み替え相談も承ります♪☆‥…━━━━☆‥…━━━━☆‥…━━━━☆◆ご内覧は土日祝・当日も対応可能♪◆頭金0円OK!◆追加リフォームもワンストップで承ります♪◆“借りれる額”と“無理なく返せる額”は違う!◆住宅ローンアドバイザーが最適な返済計画をご提案♪
スマイル不動産福岡(株)黒川屋

福岡県糟屋郡粕屋町仲原3 4980万円 4LDK

  • 中古住宅
  • 福岡県糟屋郡粕屋町仲原3 中古住宅
    間取り図
福岡県糟屋郡粕屋町仲原3
JR篠栗線 原町駅 徒歩9分
4980
万円
4LDK
109.3m2
182.77m2 2020年3月(築5年9ヶ月)
  • 2階建て
  • 駐車場あり
  • 駐車3台
  • システムキッチン
  • オール電化
  • 浴室乾燥機
  • 所有権
おすすめポイント
違う路線のバス停が近くに2カ所あります◎通勤通学にとっても便利です◎蓄電池で太陽光を賢く使えます◎<周辺施設>◎仲原小学校…769m◎粕屋中学校…1100m◎熊崎バス停…84m◎原町西バス停…240m■□■ご案内方法■□■カエルの看板でお馴染みのユーミーネットはJR酒殿駅より徒歩1分!ご案内は全て現地待ち合せ可能なので、平日のお仕事終わりでもご内覧可能です♪注文住宅経験+女性営業マンならではの視点でご案内いたします(^^)/お問合せはお気軽に担当森川(もりかわ)【090-1900-2175】まで!
ユーミーらいふ福岡エリアセンター(株)ユーミーネットパートナーズ
チェックした物件を一括で

福岡県糟屋郡粕屋町内橋東1 3980万円 5SLDK

  • 中古住宅
  • 福岡県糟屋郡粕屋町内橋東1 中古住宅
    間取り図
福岡県糟屋郡粕屋町内橋東1
JR香椎線 伊賀駅 徒歩16分
JR篠栗線 原町駅 徒歩21分
JR香椎線 土井駅 徒歩25分
3980
万円
5SLDK
149.05m2
276.43m2 1979年3月(築46年9ヶ月)
  • 2階建て
  • 駐車場あり
  • 駐車3台
  • システムキッチン
  • オール電化
  • 浴室乾燥機
  • 所有権
  • 即入居可
おすすめポイント
広々とした土地と部屋で、多様なライフスタイルを実現しませんか? お子様の遊び場、BBQスペースにも使える広大な庭・敷地。 荷物が多いご家庭も安心の3台以上駐車可能なカースペースを完備。 大型倉庫は、DIYスペース、趣味のガレージ、季節用品の収納など、アイデア次第で使い方が広がります。
(株)OLD wide

福岡県糟屋郡粕屋町大字仲原 1900万円 5LDK

  • 中古住宅
  • 福岡県糟屋郡粕屋町大字仲原 中古住宅
    間取り図
福岡県糟屋郡粕屋町大字仲原
篠栗線 柚須駅 徒歩13分
篠栗線 原町駅 徒歩25分
1900
万円
5LDK
131.24m2
165.55m2 1987年6月(築38年6ヶ月)
  • 2階建て
  • 駐車場あり
  • 所有権
おすすめポイント
表面利回り6%、投資用物件です。
株式会社三好不動産 吉塚売買センター

福岡県糟屋郡粕屋町大字仲原 3830万円 4LDK

  • 中古住宅
  • 福岡県糟屋郡粕屋町大字仲原 中古住宅
    間取り図
福岡県糟屋郡粕屋町大字仲原
篠栗線 柚須駅 徒歩13分
福岡市空港線 福岡空港駅 徒歩31分
3830
万円
4LDK
96.05m2
174.74m2 2011年7月(築14年5ヶ月)
  • 2階建て
  • 駐車場あり
  • 駐車3台
  • カウンターキッチン
  • システムキッチン
  • オール電化
  • 浴室乾燥機
  • 所有権
おすすめポイント
■中古も新築もお任せ!最適な選択肢をご提案■中古物件も新築戸建も豊富にご紹介可能!両方のメリット・デメリットを徹底比較し、あなたに最適な住まい選びをサポート。住替えのご相談もお気軽にどうぞ!
株式会社黒川屋 スマイル不動産福岡

福岡県糟屋郡粕屋町内橋東1丁目 3980万円 5LDK

  • 中古住宅
  • 福岡県糟屋郡粕屋町内橋東1丁目 中古住宅
    間取り図
福岡県糟屋郡粕屋町内橋東1丁目
香椎線 伊賀駅 徒歩16分
篠栗線 原町駅 徒歩21分
3980
万円
5LDK
149.05m2
276.43m2 1979年3月(築46年9ヶ月)
  • 2階建て
  • 駐車場あり
  • 駐車3台
  • システムキッチン
  • オール電化
  • 浴室乾燥機
  • 所有権
  • 即入居可
おすすめポイント
■中古も新築もお任せ!最適な選択肢をご提案■中古物件も新築戸建も豊富にご紹介可能!両方のメリット・デメリットを徹底比較し、あなたに最適な住まい選びをサポート。住替えのご相談もお気軽にどうぞ!
株式会社黒川屋 スマイル不動産福岡

福岡県糟屋郡粕屋町内橋東1丁目 3980万円 4LDK

  • 中古住宅
  • 福岡県糟屋郡粕屋町内橋東1丁目 中古住宅
    間取り図
福岡県糟屋郡粕屋町内橋東1丁目
香椎線 伊賀駅 徒歩14分
香椎線 土井駅 徒歩25分
3980
万円
4LDK
149.1m2
250.17m2 1997年3月(築28年9ヶ月)
  • 2階建て
  • 駐車場あり
  • 駐車2台
  • カウンターキッチン
  • システムキッチン
  • 床暖房
  • 所有権
おすすめポイント
■中古も新築もお任せ!最適な選択肢をご提案■中古物件も新築戸建も豊富にご紹介可能!両方のメリット・デメリットを徹底比較し、あなたに最適な住まい選びをサポート。住替えのご相談もお気軽にどうぞ!
株式会社黒川屋 スマイル不動産福岡

福岡県糟屋郡粕屋町原町4丁目 3480万円 4LDK

  • 中古住宅
  • 福岡県糟屋郡粕屋町原町4丁目 中古住宅
    間取り図
福岡県糟屋郡粕屋町原町4丁目
篠栗線 原町駅 徒歩10分
香椎線 長者原駅 徒歩19分
3480
万円
4LDK
98.88m2
165.3m2 2005年3月(築20年9ヶ月)
  • 2階建て
  • 駐車場あり
  • カウンターキッチン
  • システムキッチン
  • 浴室乾燥機
  • 所有権
住友林業ホームサービス株式会社 九州売買仲介営業部 福岡第1センター

福岡県糟屋郡粕屋町原町3丁目 1100万円 6DK

  • 中古住宅
  • 福岡県糟屋郡粕屋町原町3丁目 中古住宅
    間取り図
福岡県糟屋郡粕屋町原町3丁目
篠栗線 原町駅 徒歩5分
香椎線 伊賀駅 徒歩10分
1100
万円
6DK
103.9m2
186.62m2 1966年8月(築59年4ヶ月)
  • 2階建て
  • 所有権
おすすめポイント
当社にてご成約していただいたお客様に、ヤマダデンキで使える家電の「特別優待割引券」をプレゼント^^★
グラングッド不動産株式会社 ヤマダ不動産福岡志免店
チェックした物件を一括で
  • チェックした物件をまとめて
26
表示件数
OCN×ドコモ光新規お申込みで合計最大137,280円相当おトク!特典の内訳・適用条件など詳細はこちら

条件を選択

価格
間取り
建物面積
土地面積
築年数
駅からの時間
人気のこだわり条件

さらに詳しくこだわり条件を選択

建物構造
階数
立地・特徴
キッチン
設備
駐車場
条件
性能・評価
瑕疵保険
お得な条件
画像・動画
情報の新しさ
フリーワード

価格相場

更新日:2025年11月17日

糟屋郡粕屋町の価格相場

  ワンルーム 1K・1DK 1LDK・2K・2DK 2LDK・3K・3DK 3LDK・4K・4DK
中古一戸建て - - - - 4346万円

周辺エリアの価格相場

  糟屋郡宇美町 糟屋郡篠栗町 糟屋郡志免町 糟屋郡須惠町 糟屋郡久山町
中古一戸建て - - - - -
※このデータはgoo住宅・不動産に掲載されている中古一戸建ての平均価格(管理費・駐車場代などを除く)を算出したものです。ただし5戸以上の掲載があるものについてのみ対象とします。
※周辺エリアの価格相場はワンルームの平均価格(管理費・駐車場代などを除く)を算出したものです。

福岡県の人気の街アクセスランキング(中古一戸建て)

※このランキングは2025年10月01日~31日における各ページのアクセス数から算出しています。

他のエリアから探す

糟屋郡粕屋町の詳細地域から一戸建て物件を探す

内橋東大字大隈大字仲原駕与丁酒殿長者原西長者原東仲原原町

糟屋郡粕屋町内の駅から探す

伊賀長者原酒殿柚須原町門松

特集から探す

間取り図あり駅近・駅10分以内売主・代理第1種低層地域即入居可能駐車場2台分以上リフォーム・リノベーション済

アプリで簡単 物件探し 大手不動産サイトの情報から一括検!プッシュ通知で物件を見逃さない
App Storeからダウンロード Google Playで手に入れよう QRコード