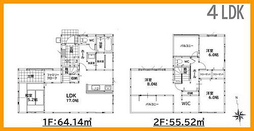
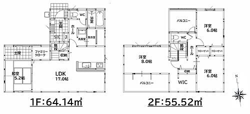
15件
表示件数 並び替え
- 新築一戸建て
- 価格
- 3798万円
- 住所
- 福岡県北九州市八幡西区泉ケ浦3
- 交通
- JR筑豊本線 東水巻駅 徒歩24分
西鉄バス 泉ヶ浦三丁目 徒歩2分
西鉄バス 松寿山団地第三 徒歩2分
- 間取り
- 4LDK
- 建物面積
- 114.24m2(34.55坪)(登記)
- 土地面積
- 199.32m2(60.29坪)(登記)
- 総戸数
- 1戸
- おすすめポイント
- ■11月9日写真更新♪
■コネクトホーム5周年記念キャンペーン実施中♪
(株)connect home
- 新築一戸建て
- 価格
- 3898万円
- 住所
- 福岡県北九州市八幡西区泉ケ浦1
- 交通
- JR筑豊本線 東水巻駅 徒歩25分
筑豊電気鉄道 今池駅 徒歩30分
JR鹿児島本線 折尾駅 徒歩31分
- 間取り
- 4LDK
- 建物面積
- 119.66m2
- 土地面積
- 277.6m2
- 総戸数
- 1戸
ダイシン住宅販売 北九州営業所ダイシン都市開発(株)
- 新築一戸建て
- 価格
- 3898万円
- 住所
- 福岡県北九州市八幡西区泉ケ浦1
- 交通
- JR筑豊本線 東水巻駅 徒歩25分
西鉄バス 泉ヶ浦三丁目 徒歩5分
西鉄バス 八枝二丁目 徒歩7分
- 間取り
- 4LDK
- 建物面積
- 119.66m236.19坪
- 土地面積
- 277.6m283.97坪
- 総戸数
- 2戸
(株)connect home
- 新築一戸建て
- 価格
- 3998万円
- 住所
- 福岡県北九州市八幡西区泉ケ浦1丁目
- 交通
- 筑豊本線 東水巻駅 徒歩25分
筑豊電気鉄道 永犬丸駅 徒歩29分
- 間取り
- 4LDK
- 建物面積
- 119.66m2
- 土地面積
- 277.6m2
- 総戸数
- -
- おすすめポイント
- 八児小学校徒歩13分!永犬丸中学校徒歩約19分!スピナ鷹見台店徒歩約9分!
センチュリー21APリファレンス
- 新築一戸建て
- 価格
- 3898万円
- 住所
- 福岡県北九州市八幡西区泉ケ浦1丁目
- 交通
- 筑豊本線 東水巻駅 徒歩25分
- 間取り
- 4LDK
- 建物面積
- 119.66m2
- 土地面積
- 277.6m2
- 総戸数
- -
- おすすめポイント
- 2025年11中旬完成予定!LDK17.0帖、広々とした間取りは家族団欒の憩いの空間♪ 洋室8.0帖には、大容量収納可能なWIC付♪バルコニーに面している明るいお部屋です。 駐車台数4台(並列可)♪
LIXIL不動産ショップ イオン戸畑店 株式会社エンジョイプラン
- 新築一戸建て
- 価格
- 3898万円
- 住所
- 福岡県北九州市八幡西区泉ケ浦1丁目
- 交通
- 鹿児島本線 折尾駅 徒歩29分
筑豊電気鉄道 永犬丸駅 徒歩30分
- 間取り
- 4LDK
- 建物面積
- 119.66m2
- 土地面積
- 277.6m2
- 総戸数
- -
- おすすめポイント
- 【駐車場3台以上】スマートキー♪モニター付きインターホン♪複層ガラス♪スーパーまで徒歩10分圏内♪
ハウスドゥ 八幡西 グリーンシップ株式会社
- 新築一戸建て
- 価格
- 3798万円
- 住所
- 福岡県北九州市八幡西区泉ケ浦3丁目
- 交通
- 筑豊本線 東水巻駅 徒歩22分
筑豊電気鉄道 永犬丸駅 徒歩32分
- 間取り
- 4LDK
- 建物面積
- 114.24m2
- 土地面積
- 199.32m2
- 総戸数
- -
- おすすめポイント
- 【閑静な住宅街】八幡西区泉ケ浦の新築戸建て♪八枝小・永犬丸中学校♪駐車スペース3台分♪都市ガス♪
ハウスドゥ 八幡西 グリーンシップ株式会社
- 新築一戸建て
- 価格
- 3998万円
- 住所
- 福岡県北九州市八幡西区泉ケ浦1
- 交通
- JR筑豊本線 東水巻駅 徒歩25分
筑豊電気鉄道 今池駅 徒歩31分
JR鹿児島本線 折尾駅 徒歩31分
- 間取り
- 4LDK
- 建物面積
- 119.66m2
- 土地面積
- 277.6m2
- 総戸数
- -
- おすすめポイント
- 【住宅ローンでお困りの方】頭金0円からでもご購入可能です。自動車ローンやカードローン等、他にお借入れのある方など何でもご相談ください!おまとめローンもご提案できます。ローン承認実績、多数!住宅ローンのことならお任せください。◇周辺環境が充実しており子育てもしやすい環境です♪≪追加リフォーム承ります!!≫・カーポートが欲しい・クロスの色を変更したい・オール電化にしたい …など お気軽にお申し付けください☆
(株)KOTOBUKI
- 新築一戸建て
- 価格
- 3898万円
- 住所
- 福岡県北九州市八幡西区泉ケ浦1
- 交通
- JR筑豊本線 東水巻駅 徒歩25分
筑豊電気鉄道 今池駅 徒歩30分
JR鹿児島本線 折尾駅 徒歩31分
- 間取り
- 4LDK
- 建物面積
- 119.66m2
- 土地面積
- 277.6m2
- 総戸数
- -
- おすすめポイント
- 薄利営業のふくろうホーム(株)■■ 物件の特徴 ■■・ 子育てグリーン住宅 40万円適用物件・ 新築 4LDK 3,898万円 月々 8.1万円台・ 八枝小学校・ 永犬丸中学校 エリア・ 東水巻駅まで、徒歩 25分・ フラット35S・ 住宅ローン控除適用・ 駐車場 3台以上可能【資料請求】・ローン相談・その他、住宅のご相談は下記までお願いします.◇◆◇ 会社情報 ◇◆◇新築建売専門♪ ふくろうホーム(株)【新築 建売り】 物件多数あり住宅診断士・2級FP・赤外線診断師・住宅ローンアドバイザー在籍【お問い合わせ】⇒093-622-1331 まで
ふくろうホーム(株)
- 新築一戸建て
- 価格
- 3898万円
- 住所
- 福岡県北九州市八幡西区泉ケ浦1
- 交通
- JR筑豊本線 東水巻駅 徒歩25分
筑豊電気鉄道 永犬丸駅 徒歩29分
筑豊電気鉄道 森下駅 徒歩30分
- 間取り
- 4LDK
- 建物面積
- 119.66m2
- 土地面積
- 277.6m2
- 総戸数
- -
- おすすめポイント
- ◆◆今だけ!QUOカードプレゼント◆◆ご来店のご予約を頂きアンケートにお答え頂いたお客様にQUOカード3000円プレゼント!1組様1回限りです♪【センチュリー21】■ 世界85の国と地域に、14000店舗、15万人もの営業スタッフ (2022年9月末時点)。これが世界最大級の不動産ネットワーク 「センチュリー21」です!■「安心」と「信頼」をモットーに店舗ネットワークを拡大し、 北海道から沖縄までの993店舗、6709人のスタッフ (2022年9月末時点)が住まい選びのお手伝いをしています。
センチュリー21(株)ドリームパートナー福岡
- 新築一戸建て
- 価格
- 3898万円
- 住所
- 福岡県北九州市八幡西区泉ケ浦1
- 交通
- JR筑豊本線 東水巻駅 徒歩25分
- 間取り
- 4SLDK
- 建物面積
- 119.66m2
- 土地面積
- 277.6m2
- 総戸数
- -
- おすすめポイント
- 2009年よりコスパ仲介を継続中詳しくは「不動産のエラン」を検索または、諸費用欄をチェック■プレゼント企画よりお得なコスパ仲介システム新築物件全てコスパ仲介対象♪■ネット銀行も提携専用金利で0.5%台より利用可能♪■子育てグリーン住宅支援ご見学・相談は無料通話0800-805-0657又はinfo@elan-de.net平日週末問わず24時間ご案内可能。まずはご予約下さい専門家が無料相談承り中・行政書士(補助金申請の国家資格・建物検査士(Home Inspector)・FP技能士・住宅ローンアドバイザー・相続診断士・火災保険調査員・地震保険調査士他
エランデ法務グループ (有)エラン
- 新築一戸建て
- 価格
- 3898万円
- 住所
- 福岡県北九州市八幡西区泉ケ浦1
- 交通
- JR筑豊本線 東水巻駅 徒歩25分
- 間取り
- 4LDK
- 建物面積
- 119.66m2
- 土地面積
- 277.6m2
- 総戸数
- -
- おすすめポイント
- 洋室3部屋と和室1部屋の4LDKです。和室の畳は、フローリングよりもクッション性が高く、お子様が転んでもけがの心配が少ないです。リビングから和室が見渡せるので、お互いの顔を見ながら、安心して過ごせます。コミュニケーションも取りやすいですね。2025年11月中旬完成予定ですが、同仕様物件のご見学が可能です。完成前でも、お気軽にお問い合わせください。また、お探しのご条件をお伝えいただければ、未公開物件も含めご紹介が可能です。「ネットに情報がない...」という方も、まずはお気軽にご相談ください。北九州の物件情報に詳しいスタッフがお探しいたします。皆様からのご相談をお待ちしております。
LIXIL不動産ショップ (株)エンジョイプランイオン戸畑店
- 新築一戸建て
- 価格
- 3898万円
- 住所
- 福岡県北九州市八幡西区泉ケ浦1
- 交通
- JR筑豊本線 東水巻駅 徒歩25分
筑豊電気鉄道 今池駅 徒歩30分
JR鹿児島本線 折尾駅 徒歩32分
- 間取り
- 4LDK
- 建物面積
- 119.66m2
- 土地面積
- 277.6m2
- 総戸数
- -
- おすすめポイント
- ☆子育てグリーン支援事業☆40万円が給付される対象物件です♪詳細はこちら↓https://kosodate-green.mlit.go.jp/housing-purchase/☆☆☆ 物 件 情 報 ☆☆☆八幡西区泉ヶ浦1丁目 【新築戸建て4LDK】 【駐車並列4台可!】 ☆価格:3,898万円☆ ⇒ お支払いは ボーナスなしの 月々9.6万円台より!◆安全・安心の新築住宅!◆気になる方、まずはお気軽にお問合せください♪093-883-8218【ジャッジ(株)】八幡店 「ジャッジ」は24時間、365日、年中無休で営業中!
ジャッジ(株)
- 新築一戸建て
- 価格
- 3898万円
- 住所
- 福岡県北九州市八幡西区泉ケ浦1
- 交通
- JR筑豊本線 東水巻駅 徒歩25分
筑豊電気鉄道 今池駅 徒歩34分
JR筑豊本線 折尾駅 徒歩31分
- 間取り
- 4SLDK
- 建物面積
- 119.66m2
- 土地面積
- 277.6m2
- 総戸数
- -
- おすすめポイント
- WEB予約は【下部のオレンジ色資料請求ボタン】から!TEL予約は【0120-178-870】から!(通話料無料)お家探しを始めてみようと思われたら【よかネットクラウド直方営業所】までお気軽にご相談下さい♪実際に建売住宅を購入したスタッフ、注文住宅出身のスタッフがいるからこそできるご提案をさせていただきます。事前に希望条件をお聞かせ頂ければ、ネット掲載不可の未公開情報や新規公開予定の物件も一緒にご紹介できます。\住宅ローンもお任せ下さい!/資金計画、最適な金融機関のご紹介、事前審査から本申込までサポートさせていただきます。
(株)よかネットクラウド福岡直方営業所
- 新築一戸建て
- 価格
- 3898万円
- 住所
- 福岡県北九州市八幡西区泉ケ浦1丁目
- 交通
- バス/「泉ケ浦三丁目」バス停 停歩4分
- 間取り
- 4LDK
- 建物面積
- 119.66m2
- 土地面積
- 277.6m2
- 総戸数
- -
- おすすめポイント
- 【ご案内受付中】 敷地広々83坪で駐車並列4台可!小学校徒歩13分の子育てに優しい閑静な住宅街♪「スピナ」徒歩8分で買い物便利♪各部屋広々、収納豊富な間取りの4LDK!
株式会社情報サービス福岡
15件
表示件数
北九州市八幡西区の暮らしデータ
人口などの統計情報
| 世帯数 | 435364世帯 |
|---|---|
| 人口総数 | 921241人 |
| 転入者数 | 42666人
|
| 転出者数 | 42812人
|
| 土地平均価格 |
|
結婚・育児の助成金
| 子育て関連の独自の取り組み | (1)大規模な屋内プレイパーク「子育てふれあい交流プラザ」「子どもの館」の運営。(2)子どもの遊び場&親同士の交流の場「親子ふれあいルーム」の全区設置。(3)授乳やオムツ替えのできる施設「赤ちゃんの駅」の官民協働実施(全国初)。(4)毎月第2日曜日に市内の登録店舗で様々な特典を受けられる「わらべの日」の実施。(5)小学校3~4年生、中学校1~3年生を対象に、放課後等を活用した学習機会を提供する「ひまわり教室」の実施。 | ||
|---|---|---|---|
| 出産祝い | あり | ||
| 公立保育所数 | 17所(うち0歳児保育を実施している保育所:17所) | ||
| 私立保育所数 | 106所(うち0歳児保育を実施している保育所:106所) | ||
| 保育所入所待機児童数 | 0人 | ||
| 認定こども園数 | 65園 | 預かり保育実施園数 | 公立:0園 私立:70園 |
| 学校給食 | 【小学校】完全給食【中学校】完全給食 | ||
| 公立中学校の学校選択制 | 未実施 | ||
| 子ども・学生等医療費助成<通院>対象年齢 | 18歳3月末まで | 子ども・学生等医療費助成<入院>対象年齢 | 18歳3月末まで |
北九州市八幡西区の治安・ごみ収集情報
公共料金・インフラ
| ガス料金(22m3使用した場合の月額) | 西部瓦斯株式会社(福岡・北九州)6239円 直方ガス株式会社6503円 |
|---|---|
| 水道料金(口径20mmで20m3の月額) | 北九州市2442円 |
| 下水道料金(20m3を使用した場合の月額) | 北九州市2248円 |
| 下水道普及率 | 99.9% |
安心・安全
| 建物火災出火件数 |
115件
|
|---|---|
| 刑法犯認知件数 |
6044件
|
| ハザード・防災マップ | あり |
医療
| 一般病院総数 | 76ヶ所 |
|---|---|
| 一般診療所総数 | 941ヶ所 |
| 小児科医師数 |
224人
|
| 産婦人科医師数 |
122人
|
| 介護保険料基準額(月額) | 6590円 |
ごみ
| 家庭ごみ収集(可燃ごみ) |
有料
|
|---|---|
| 家庭ごみの分別方式 | 4分別〔家庭ごみ かん・びん ペットボトル プラスチック〕 拠点回収:トレイ 紙パック 蛍光管 水銀体温計など 小物金属 小型電子機器 電池類(充電式電池等含む) 古紙 古着 使用済み食用油 インクカートリッジ |
| 家庭ごみの戸別収集 | 一部実施(【ふれあい収集】ごみステーションに家庭ごみを出すことが困難な世帯を対象に、ご自宅の玄関先でのごみ収集を実施[利用条件あり]) |
| 粗大ごみ収集 |
あり
|
| 生ごみ処理機助成金制度 |
なし
|
北九州市八幡西区の住まいの給付金
新築購入
| 利子補給制度 | なし |
|---|---|
| 補助/助成金制度 | あり
|
暮らしデータ提供元:生活ガイド.com
※行政機関により公表していない地域及びデータがございます。東京23区以外の政令指定都市は、市全体のデータとして表示しています。
※提供データには細心の注意を払っておりますが、調査後に変更がある場合があります。 最新の情報につきましては各市区役所までお問い合わせいただくか、自治体HPなどをご確認ください。
※提供データには細心の注意を払っておりますが、調査後に変更がある場合があります。 最新の情報につきましては各市区役所までお問い合わせいただくか、自治体HPなどをご確認ください。
価格相場
更新日:2025年11月03日
北九州市八幡西区の価格相場
| ワンルーム | 1K/DK/LDK(+S) | 2K/DK/LDK(+S) | 3K/DK/LDK(+S) | 4K/DK/LDK(+S) | |
|---|---|---|---|---|---|
| 新築一戸建て | - | - | - | 3099万円 | 3251万円 |
周辺エリアの価格相場
| 北九州市若松区 | 北九州市戸畑区 | 北九州市八幡東区 | 中間市 | 遠賀郡水巻町 | |
|---|---|---|---|---|---|
| 新築一戸建て | - | - | - | - | - |
※このデータはgoo住宅・不動産に掲載されている新築一戸建ての平均価格(管理費・駐車場代などを除く)を算出したものです。ただし5戸以上の掲載があるものについてのみ対象とします。
※周辺エリアの価格相場はワンルームの平均価格(管理費・駐車場代などを除く)を算出したものです。
※周辺エリアの価格相場はワンルームの平均価格(管理費・駐車場代などを除く)を算出したものです。









































