アプリで簡単 物件探し 通知 共有 アプリならではの機能を使ってみる
RSS

上新庄駅(大阪府)の中古一戸建て・中古住宅 物件一覧

上新庄駅(大阪府)の中古住宅、中古一軒家などの中古一戸建て物件をご紹介します。中古物件、中古一軒家、中古建売住宅などの中古一戸建て物件情報を探すならgoo住宅・不動産。価格・建物面積・土地面積・間取り・人気のこだわり条件から物件を簡単検索。理想のマイホーム探しをgoo住宅・不動産がサポートします。

112 並び替え
チェックした物件を一括で
選択 物件タイプ
画像
所在地/交通
(駅/バス 所要時間)
価格 間取り
建物面積
土地面積 築年月
築年数

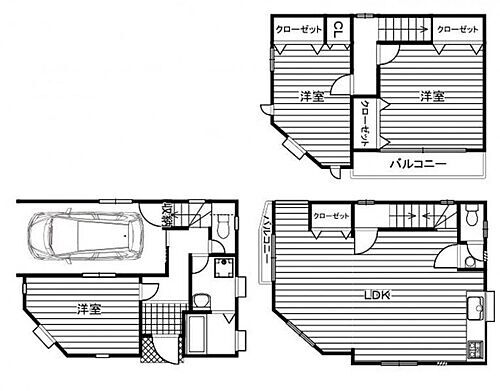
大阪府大阪市東淀川区小松5 1,980万円 4SLDK

  • 中古住宅
  • 大阪府大阪市東淀川区小松5 中古住宅
    間取り図
大阪府大阪市東淀川区小松5
地下鉄今里筋線 瑞光四丁目駅 徒歩3分
阪急京都線 上新庄駅 徒歩17分
地下鉄今里筋線 井高野駅 徒歩11分
1,980
万円
4SLDK
93.21m2
44.15m2 1993年6月(築33年)
  • 3階建て以上
  • 南道路
  • 都市ガス
  • 駐車場あり
  • システムキッチン
  • 所有権
  • 即入居可
  • リフォームリノベーション
おすすめポイント
---イチ押しポイント---■R7年9月リフォーム済!■大阪メトロ今里筋線瑞光四丁目駅徒歩3分!■☆南西角地!RC造!■前道8.0m---周辺環境---■大阪市営地下鉄今里線 瑞光四丁目店まで徒歩3分■大隅西小学校まで徒歩4分■瑞光中学校まで徒歩3分■ライフ江口店まで徒歩6分※当社では他社様が掲載している物件もご紹介、ご案内が可能です!あわせて内覧を希望される際は、お問い合わせの際希望の物件名をお申し付けくださいませ!

大阪府大阪市東淀川区上新庄2 1,980万円 4DK

  • 中古住宅
  • 大阪府大阪市東淀川区上新庄2 中古住宅
    間取り図
大阪府大阪市東淀川区上新庄2
阪急京都線 上新庄駅 徒歩4分
1,980
万円
4DK
79.24m2
61.17m2 1984年12月(築41年6ヶ月)
  • 2階建て
  • 都市ガス
  • 所有権
おすすめポイント
■阪急京都線「上新庄」駅徒歩4分!■阪急千里線「下新庄」駅徒歩15分!■2沿線利用可能な立地!■周辺買い物施設等多数!■南方角地につき、採光良好です!■建築用地としてもご検討いただけます!■リフォームプラン・建築プランのご提案も可能!・新庄小学校・・・徒歩3分(240m)・新東淀中学校・・・徒歩17分(1360m)・グルメシティ上新庄駅前店・・・徒歩5分(400m)・関西スーパー瑞光店・・・徒歩7分(560m)・瑞光寺公園・・・徒歩11分(880m)・神崎川・・・徒歩13分(1040m)

大阪府大阪市東淀川区相川2 2,980万円 4LDK

  • 中古住宅
  • 大阪府大阪市東淀川区相川2 中古住宅
大阪府大阪市東淀川区相川2
阪急京都線 相川駅 徒歩4分
阪急京都線 上新庄駅 徒歩12分
JR東海道本線 吹田駅 徒歩20分
2,980
万円
4LDK
102.65m2
56.16m2 2004年2月(築22年4ヶ月)
  • 3階建て以上
  • 都市ガス
  • 駐車場あり
  • システムキッチン
  • 浴室乾燥機
  • 所有権
  • リフォームリノベーション
おすすめポイント
☆鉄骨造3階建・4LDK・駐車1台可!・便利な屋根裏収納付☆小松小学校へ徒歩8分-------------【リフォーム内容について(一部)】・外壁塗装工事・ベランダ、その他各所塗装工事・クロス、床材、巾木貼替・システムキッチン・ユニットバス新調・洗面台、洗濯パン・トイレ新調など…【その他】☆住宅ローンについても広い視野と豊富な知識でご提案致します!・提携銀行が多数ある為、より条件が良い銀行をご提案できます・頭金ゼロでもマイホームを買いたい!・住宅ローンが通るかどうか不安…などお気軽にお問い合わせください。☆『資金計画書』の無料作成も実施中☆

大阪府大阪市東淀川区上新庄2 3,680万円 3LDK

  • 中古住宅
  • 大阪府大阪市東淀川区上新庄2 中古住宅
    間取り図
大阪府大阪市東淀川区上新庄2
阪急京都線 上新庄駅 徒歩4分
阪急千里線 下新庄駅 徒歩14分
地下鉄今里筋線 瑞光四丁目駅 徒歩20分
3,680
万円
3LDK
65.07m2
52.62m2 2025年4月(築1年2ヶ月)
  • 2階建て
  • 都市ガス
  • 駐車場あり
  • システムキッチン
  • 所有権
  • 即入居可
おすすめポイント
値下げしました!最終売切り価格です!!【5月末までに売れない場合は販売中止し賃貸運用となります!】■耐久性やデザイン性・高性能といった要素に加え、長期にわたる維持管理のしやすさ、ペットへの配慮やウイルス・花粉対策にも考慮し設計されたこだわりの詰まった物件です!■耐震等級3■断熱性能等級5■全室換気システム完備■建築コンペティションにて多数受賞歴があるデザイナーが担当■上新庄駅⇒大阪梅田駅まで13分でアクセス可■周辺施設ローソン 上新庄三丁目店まで約170mグルメシティ上新庄駅前店まで約525mオーケー薬局まで約180mイオン スタイル 東淀川まで約1120m

大阪府大阪市東淀川区大桐2 2,980万円 4LDK

  • 中古住宅
  • 大阪府大阪市東淀川区大桐2 中古住宅
    間取り図
大阪府大阪市東淀川区大桐2
地下鉄今里筋線 だいどう豊里駅 徒歩5分
阪急京都線 上新庄駅 徒歩17分
2,980
万円
4LDK
117.99m2
71.35m2 1998年5月(築28年1ヶ月)
  • 3階建て以上
  • 都市ガス
  • 所有権
おすすめポイント
担当:角垣のおすすめポイント◆カースペースあり(車種による)◆間取り4LDK◆前面道路幅員約8.0m◆大阪メトロ今里筋線「だいどう豊里」駅 徒歩5分♪■周辺環境*大桐小学校 徒歩7分(約490m)*大桐中学校 徒歩7分(約530m)*ローソン東淀川大桐一丁目店 徒歩1分(約60m)*マツモトキヨシかみしんプラザ店 徒歩6分(約450m)*今在家公園 徒歩1分(約40m)*東淀川大桐郵便局 徒歩1分(約40m)

大阪府大阪市東淀川区下新庄4 3,780万円 4LDK

  • 中古住宅
  • 大阪府大阪市東淀川区下新庄4 中古住宅
    間取り図
大阪府大阪市東淀川区下新庄4
阪急千里線 下新庄駅 徒歩5分
阪急京都線 上新庄駅 徒歩20分
JRおおさか東線 JR淡路駅 徒歩13分
3,780
万円
4LDK
101.76m2
51.6m2 1995年4月(築31年2ヶ月)
  • 3階建て以上
  • 所有権
  • 即入居可
おすすめポイント
---イチ押しポイント---■角地につき二面採光で日当たり良好◎■2026年3月水回り、内装全面フルリフォーム済み■雨の日も安心のビルドインガレージ■阪急千里線「下新庄」駅 徒歩5分---周辺環境---■下新庄小学校まで徒歩8分(約630m)■ファミリマート小浦下新庄駅前店まで徒歩4分(約250m)■東淀川下新庄四郵便局まで徒歩4分(約270m)■サンディ 下新庄店まで徒歩6分(約460m)■ファミリマート小浦下新庄駅前店まで徒歩4分(約250m)※当社では他社様が掲載している物件もご紹介、ご案内が可能です!あわせて内覧を希望される際は、お問い合わせの際希望の物件…

大阪府大阪市東淀川区大道南1 1,430万円 3DK

  • 中古住宅
  • 大阪府大阪市東淀川区大道南1 中古住宅
    間取り図
大阪府大阪市東淀川区大道南1
地下鉄今里筋線 だいどう豊里駅 徒歩6分
地下鉄谷町線 太子橋今市駅 徒歩15分
阪急京都線 上新庄駅 徒歩22分
1,430
万円
3DK
71.46m2
42.26m2 1981年10月(築44年8ヶ月)
  • 3階建て以上
  • 駐車場あり
  • システムキッチン
  • オール電化
  • 所有権
  • リフォームリノベーション
おすすめポイント
ーおすすめポイントー□平成25年1月フルリフォーム施工済で室内状況良好□人気の大道南1丁目、周辺環境整っております□オール電化住宅で、火災の心配も少ないです。 ご高齢の方も、子育て世代の方も安心の住環境◎□令和7年10月に電気温水器を入れ替え済!■大阪metoro「だいどう豊里駅」徒歩6分 大阪metoro「太子橋今市駅」徒歩15分 阪急京都線「上新庄駅」徒歩22分 売主様お住まい中につき、内見には調整を要します。その他、諸条件相談下さい!

大阪府大阪市東淀川区豊新3 1,480万円 3DK

  • 中古住宅
  • 大阪府大阪市東淀川区豊新3 中古住宅
    間取り図
大阪府大阪市東淀川区豊新3
阪急京都線 上新庄駅 徒歩7分
1,480
万円
3DK
49.41m2
40.95m2 1975年8月(築50年10ヶ月)
  • 2階建て
  • 都市ガス
  • 所有権
おすすめポイント
◇◆◇◆◇◇◆◇◆◇◇◆◇◆◇◇◆◇◆◇◇◆◇◆◇◇◆◇◆◇◇◆◇◆◇◇◆◇◆◇■阪急京都線「上新庄」駅まで徒歩7分おおさか東線「JR淡路」駅まで徒歩16分阪急千里線「下新庄」駅まで徒歩16分大阪メトロ今里筋線「だいどう豊里」駅まで徒歩17分●豊新小学校まで約570m●東淀中学校まで約800m■周辺施設幼保連携型認定こども園豊新聖愛園まで約170mファミリーマート 豊新三丁目店まで約180mグルメシティ上新庄駅前店まで約270mIEON STYLE(イオン スタイル) 東淀川まで約670m大阪市東淀川区役所まで約590m

大阪府大阪市東淀川区大桐3 3,380万円 2LDK

  • 中古住宅
  • 大阪府大阪市東淀川区大桐3 中古住宅
    間取り図
大阪府大阪市東淀川区大桐3
地下鉄今里筋線 瑞光四丁目駅 徒歩7分
地下鉄今里筋線 だいどう豊里駅 徒歩11分
阪急京都線 上新庄駅 徒歩18分
3,380
万円
2LDK
91.53m2
58.9m2 2015年12月(築10年6ヶ月)
  • 3階建て以上
  • 都市ガス
  • 駐車場あり
  • システムキッチン
  • 所有権
おすすめポイント
◇◆◇◆◇◇◆◇◆◇◇◆◇◆◇◇◆◇◆◇◇◆◇◆◇◇◆◇◆◇◇◆◇◆◇◇◆◇◆◇■大阪メトロ今里筋線「瑞光四丁目」駅まで徒歩7分大阪メトロ今里筋線「だいどう豊里駅」まで徒歩11分阪急京都線「上新庄」駅まで徒歩18分●大桐小学校まで約190m●大桐中学校まで約215m■周辺施設セブンイレブン 大阪大桐3丁目店まで約160mライフ江口店まで約750mかみしんプラザまで約570m大阪市東淀川区役所まで約2110m瑞光寺公園まで約905m◎見学カレンダーから予約できます◎赤い見学ボタンをクリック♪お電話でのお問い合わせもお待ちしております!

大阪府大阪市東淀川区上新庄2 3,680万円 4LDK

  • 中古住宅
  • 大阪府大阪市東淀川区上新庄2 中古住宅
    間取り図
大阪府大阪市東淀川区上新庄2
阪急京都線 上新庄駅 徒歩7分
3,680
万円
4LDK
96.3m2
45.15m2 1998年1月(築28年5ヶ月)
  • 3階建て以上
  • 都市ガス
  • 所有権
  • リフォームリノベーション
おすすめポイント
-物件のおすすめポイント-▼特徴・LDKを2階に配置、広さは約14.5帖・作業に集中しやすい壁付キッチン・LD部分に収納有・シャッター付車庫有(車種による)▼2026年5月内外装リフォーム内容【新調】UB、洗面化粧台、トイレ 等【その他】全室クロス貼替、外壁塗装、外構施工 他▼周辺環境・大阪市立新庄小学校 徒歩5分(約340m)・グルメシティ上新庄駅前店 徒歩6分(約450m)※建物構造:木・鉄筋コンクリート造※建物面積に車庫面積15.30平米含む■ ご希望の住まい探しをお手伝いします ━━━━━・・・物件の詳細・ご相談はお気軽にお問い合わせください。

大阪府大阪市東淀川区下新庄6 4,780万円 5LDK

  • 中古住宅
  • 大阪府大阪市東淀川区下新庄6 中古住宅
    間取り図
大阪府大阪市東淀川区下新庄6
阪急千里線 下新庄駅 徒歩7分
阪急京都線 上新庄駅 徒歩10分
JRおおさか東線 JR淡路駅 徒歩14分
4,780
万円
5LDK
110.21m2
76.83m2 2005年6月(築21年)
  • 3階建て以上
  • 都市ガス
  • 駐車場あり
  • 駐車3台
  • システムキッチン
  • 浴室乾燥機
  • 所有権
  • リフォームリノベーション
おすすめポイント
【弊社専任物件】下新庄6丁目□■□内覧予約をご希望の方は、お気軽にお問い合わせ下さい!□■□ センチュリー21 ハウスマイスター上新庄店は地域密着で地元に強く、お客様の立場に立ち、お客様にとって最適な提案を心がけています。 一度、実際にご覧になってみませんか? 暮らしやすい周辺環境も含め、スタッフがご案内いたします。 お家探しの第一歩としてでも大丈夫です♪ お気軽にお問い合わせ下さい。 その他、お家に関する事はなんでも売買専門店の「センチュリー21ハウスマイスター」へ!

大阪府大阪市東淀川区豊里7 5,680万円 3LDK

  • 中古住宅
  • 大阪府大阪市東淀川区豊里7 中古住宅
    間取り図
大阪府大阪市東淀川区豊里7
地下鉄今里筋線 だいどう豊里駅 徒歩7分
阪急京都線 上新庄駅 徒歩17分
地下鉄今里筋線 瑞光四丁目駅 徒歩19分
5,680
万円
3LDK
93.98m2
115.4m2 2021年11月(築4年7ヶ月)
  • 2階建て
  • 南道路
  • 都市ガス
  • 駐車場あり
  • 駐車2台
  • システムキッチン
  • 浴室乾燥機
  • 所有権
おすすめポイント
◆約18帖のゆとりのLDK・対面式システムキッチンでお料理中もリビングと会話が弾みます♪◇1階部分に水回りがまとまっており家事動線もスムーズです! 湿気の籠りやすいバスルーム・洗面所にも開口部がございます♪◆全居室収納付きで季節のお片付けも安心! 大容量のWIC・玄関SICあり♪◇ご質問・内覧のご希望などございましたらお気軽にお問合せください♪

大阪府大阪市東淀川区大桐4 2,480万円 5DK

  • 中古住宅
  • 大阪府大阪市東淀川区大桐4 中古住宅
    間取り図
大阪府大阪市東淀川区大桐4
地下鉄今里筋線 だいどう豊里駅 徒歩8分
阪急京都線 上新庄駅 徒歩21分
地下鉄今里筋線 瑞光四丁目駅 徒歩13分
2,480
万円
5DK
84.35m2
159.92m2 1970年11月(築55年7ヶ月)
  • 2階建て
  • 都市ガス
  • 所有権
おすすめポイント
☆納屋があり、農具の管理、ペットルームとしてもご利用頂けます。

大阪府大阪市東淀川区豊里4 3,180万円 4LDK

  • 中古住宅
  • 大阪府大阪市東淀川区豊里4 中古住宅
大阪府大阪市東淀川区豊里4
地下鉄今里筋線 だいどう豊里駅 徒歩8分
阪急京都線 上新庄駅 徒歩20分
地下鉄今里筋線 瑞光四丁目駅 徒歩20分
3,180
万円
4LDK
100.23m2
57.78m2 2007年11月(築18年7ヶ月)
  • 3階建て以上
  • 都市ガス
  • 駐車場あり
  • システムキッチン
  • 床暖房
  • 所有権
  • 即入居可
  • リフォームリノベーション
おすすめポイント
◇見るだけ大歓迎です◇無料送迎可能 ・リフォーム済み物件!・平成19年建築3階建て・2階リビング&水回り集中・動線便利な間取り・空き家につき即入居可・住環境良好・周辺環境充実・安心の住宅保証付◆レスポンスは迅速に◆交渉は全力です◆‐多忙なお客様の「面倒だな」をフルサポート致します‐◆「とりあえず見たい」「他社でローンをを断られた」「他社の物件もまとめて見てみたい」「相談だけしてみたい」「しっかり交渉してほしい」「無駄を省きたい」等お気軽にご連絡下さいませ。

大阪府大阪市東淀川区大桐3 3,380万円 2SLDK

  • 中古住宅
  • 大阪府大阪市東淀川区大桐3 中古住宅
    間取り図
大阪府大阪市東淀川区大桐3
地下鉄今里筋線 瑞光四丁目駅 徒歩8分
地下鉄今里筋線 だいどう豊里駅 徒歩12分
阪急京都線 上新庄駅 徒歩19分
3,380
万円
2SLDK
91.53m2
58.9m2 2015年12月(築10年6ヶ月)
  • 3階建て以上
  • 都市ガス
  • 駐車場あり
  • システムキッチン
  • 所有権
おすすめポイント
---イチ押しポイント---■ウォークインクローゼットもあり、収納充実です♪■1階、2階にトイレがあるので便利です!■リビングが17.5帖もあるのでゆったり過ごせます◎■居住中ですが、大変綺麗にお使いです♪---周辺環境---■大桐小学校・・・徒歩5分■大桐中学校・・・徒歩4分■コンビニ・・・徒歩2分■スーパー・・・徒歩10分※当社では他社様が掲載している物件もご紹介、ご案内が可能です!あわせて内覧を希望される際は、お問い合わせの際希望の物件名をお申し付けください

大阪府大阪市東淀川区大桐3 3,380万円 2LDK

  • 中古住宅
  • 大阪府大阪市東淀川区大桐3 中古住宅
    間取り図
大阪府大阪市東淀川区大桐3
地下鉄今里筋線 瑞光四丁目駅 徒歩8分
地下鉄今里筋線 だいどう豊里駅 徒歩12分
阪急京都線 上新庄駅 徒歩20分
3,380
万円
2LDK
91.53m2
58.9m2 2015年12月(築10年6ヶ月)
  • 3階建て以上
  • 都市ガス
  • 駐車場あり
  • システムキッチン
  • 所有権
おすすめポイント
ーおすすめポイントー□平成27年建築の築浅で室内状況良好□人気の大桐3丁目、周辺環境整っております□「小学校・中学校」両方徒歩4分以内で 子育て世代の方も安心の住環境◎■大阪metoro「瑞光四丁目駅」徒歩8分 大阪metoro「だいどう豊里駅」徒歩12分 阪急京都線「上新庄駅」徒歩20分 □約17.5帖の広々したリビングで家族団らん!売主様お住まい中につき、内見には調整を要します。その他、諸条件相談下さい!

大阪府大阪市東淀川区大桐3 3,380万円 2SLDK

  • 中古住宅
  • 大阪府大阪市東淀川区大桐3 中古住宅
    間取り図
大阪府大阪市東淀川区大桐3
地下鉄今里筋線 瑞光四丁目駅 徒歩8分
地下鉄今里筋線 だいどう豊里駅 徒歩12分
阪急京都線 上新庄駅 徒歩20分
3,380
万円
2SLDK
91.53m2
58.9m2 2015年12月(築10年6ヶ月)
  • 3階建て以上
  • 都市ガス
  • 駐車場あり
  • システムキッチン
  • 浴室乾燥機
  • 所有権
おすすめポイント
≪ご見学について≫電話、またはお問合せ画面より、見学ご希望の日時をお伝えください。物件によっては当日のご案内が可能です。事前に鍵の手配が必要な場合がございまので、お早目にご連絡をいただけますとスムーズにご案内が可能です。≪センチュリー21ライズについて≫大阪メトロ谷町線・堺筋線「天神橋筋六丁目」駅6番出口より徒歩約5分!営業時間:10:00~20:00(火曜日・水曜日定休日※祝日は営業)■住宅ローンのご相談、不動産のご購入でご不安なことは何でもお気軽にお問い合わせください。■リフォームのご相談も承っております。■お客様の大切なお住まい探しを全力でサポートいたします。

大阪府大阪市東淀川区大桐3 3,380万円 2LDK

  • 中古住宅
  • 大阪府大阪市東淀川区大桐3 中古住宅
    間取り図
大阪府大阪市東淀川区大桐3
地下鉄今里筋線 瑞光四丁目駅 徒歩8分
地下鉄今里筋線 だいどう豊里駅 徒歩11分
阪急京都線 上新庄駅 徒歩18分
3,380
万円
2LDK
91.53m2
58.9m2 2015年12月(築10年6ヶ月)
  • 3階建て以上
  • 都市ガス
  • 駐車場あり
  • システムキッチン
  • 浴室乾燥機
  • 所有権
  • 即入居可
  • バリアフリー
おすすめポイント
◇大阪メトロ今里筋線【瑞光四丁目駅】徒歩8分 通勤通学にも便利な立地です♪◆人気の対面式システムキッチン採用! フラットな造りでお掃除もラクラク・お料理中もリビングと会話が弾みます♪◇南東向きバルコニーで日当たりも◎ 湿気の籠りやすいバスルーム・洗面所にも窓がございます♪◆ご質問・内覧のご希望などございましたらお気軽にお問合せくださいませ♪

大阪府大阪市東淀川区大桐3 3,380万円 2SLDK

  • 中古住宅
  • 大阪府大阪市東淀川区大桐3 中古住宅
大阪府大阪市東淀川区大桐3
地下鉄今里筋線 瑞光四丁目駅 徒歩8分
地下鉄今里筋線 だいどう豊里駅 徒歩12分
阪急京都線 上新庄駅 徒歩20分
3,380
万円
2SLDK
91.53m2
47.2m2 2015年12月(築10年6ヶ月)
  • 3階建て以上
  • 都市ガス
  • 駐車場あり
  • システムキッチン
  • 所有権
おすすめポイント
◆内覧予約は06-4255-3477へお問合せ下さい♪◆購入を諦めていたお客様も是非お問合せ下さい◆頭金0円より購入可 ◆物件の特徴・ゆったり過ごせる約17.5帖の広々LDK!・トイレ2ヶ所あり・WICあり!収納スペース充実!・周辺環境充実・駅近で通勤・通学にも便利♪◆見るだけ大歓迎◆接客対応品質に自信があり◆夜間早朝もお気軽にご連絡ください!◆無料送迎可「購入するか分からないけど見るだけ見たい」「他社の物件もまとめて見てみたい」等 ご購入をご検討中のお客様にとって、より良い条件でご購入頂く為に精一杯サポート致します不動産の事なら何でもお気軽にご相談下さい!
チェックした物件を一括で

大阪府大阪市東淀川区豊里6 3,780万円 他

  • 中古住宅
  • 大阪府大阪市東淀川区豊里6 中古住宅
    間取り図
大阪府大阪市東淀川区豊里6
地下鉄今里筋線 だいどう豊里駅 徒歩8分
阪急京都線 上新庄駅 徒歩19分
地下鉄今里筋線 瑞光四丁目駅 徒歩21分
3,780
万円

171.81m2
96.1m2 1977年1月(築49年5ヶ月)
  • 3階建て以上
  • 都市ガス
  • ルーフバルコニー
  • 駐車場あり
  • 駐車2台
  • システムキッチン
  • 所有権
おすすめポイント
◇見るだけ大歓迎です◇無料送迎可能 ・2世帯住宅におすすめ物件・丈夫な鉄骨造の3階建て・ビルトインガレージ付き・広々とした屋上ルーフバルコニー付き・住環境良好・生活便利な周辺環境◆レスポンスは迅速に◆交渉は全力です◆‐多忙なお客様の「面倒だな」をフルサポート致します‐◆「とりあえず見たい」「他社でローンをを断られた」「他社の物件もまとめて見てみたい」「相談だけしてみたい」「しっかり交渉してほしい」「無駄を省きたい」等お気軽にご連絡下さいませ。

大阪府大阪市東淀川区豊里6 3,780万円 3LDK

  • 中古住宅
  • 大阪府大阪市東淀川区豊里6 中古住宅
    間取り図
大阪府大阪市東淀川区豊里6
地下鉄今里筋線 だいどう豊里駅 徒歩8分
阪急京都線 上新庄駅 徒歩18分
JRおおさか東線 JR淡路駅 徒歩29分
3,780
万円
3LDK
171.81m2
96.1m2 1977年1月(築49年5ヶ月)
  • 3階建て以上
  • ルーフバルコニー
  • 駐車場あり
  • 駐車3台
  • 所有権
おすすめポイント
---イチ押しポイント---■車庫が広く普通車2台+軽2台停められます!■ルーフバルコニー付きで眺望良好です♪■2世帯住宅におすすめの物件です!---周辺環境---■地下鉄今里筋線「だいどう豊里」駅・・・徒歩8分■豊里小学校・・・徒歩5分■東淀中学校・・・徒歩7分■コンビニ・・・徒歩3分■スーパー・・・徒歩3分※当社では他社様が掲載している物件もご紹介、ご案内が可能です!あわせて内覧を希望される際は、お問い合わせの際希望の物件名をお申し付けくださいませ!

大阪府大阪市東淀川区豊里6 3,780万円 3LDK

  • 中古住宅
  • 大阪府大阪市東淀川区豊里6 中古住宅
    間取り図
大阪府大阪市東淀川区豊里6
地下鉄今里筋線 だいどう豊里駅 徒歩8分
阪急京都線 上新庄駅 徒歩19分
地下鉄今里筋線 瑞光四丁目駅 徒歩22分
3,780
万円
3LDK
171.81m2
96.1m2 1977年1月(築49年5ヶ月)
  • 3階建て以上
  • 都市ガス
  • ルーフバルコニー
  • 駐車場あり
  • 駐車2台
  • システムキッチン
  • 所有権
おすすめポイント
■2階リビングのプラン!■車2台駐車可!(車種によります)■2沿線利用可能!■南東付け道路につき日当たり良好!■弊社の特徴について・駐車場完備。お車でのご来場も可能です。・キッズスペースもございますので、小さなお子様がいらっしゃるご家族もお気軽にご来場ください。【営業日】定休日はございません。水曜日も営業しております。【営業時間】10:00~19:00※上記時間はお電話が繋がりやすくなっております。・物件担当、リフォーム担当、ローン担当がチームとなりお客様をサポートします。

大阪府大阪市東淀川区豊里6 3,780万円 3LDK

  • 中古住宅
  • 大阪府大阪市東淀川区豊里6 中古住宅
    間取り図
大阪府大阪市東淀川区豊里6
地下鉄今里筋線 だいどう豊里駅 徒歩8分
阪急京都線 上新庄駅 徒歩22分
地下鉄今里筋線 瑞光四丁目駅 徒歩21分
3,780
万円
3LDK
171.81m2
96.1m2 1977年1月(築49年5ヶ月)
  • 3階建て以上
  • 都市ガス
  • ルーフバルコニー
  • 駐車場あり
  • 駐車3台
  • 所有権
おすすめポイント
■間取:3LLDDKK■周辺施設充実■大阪メトロ今里筋線「だいどう豊里駅」歩8分■大阪市立豊里小学校 約496m(7分)■大阪市立東淀中学校 約651m(9分)■ライフ 豊里店 約190m(3分)■最寄駅の大阪メトロ今里筋線「だいどう豊里」駅から「東梅田」駅へ約16分で到着するので通勤・通学・ショッピングに便利な住環境。

大阪府大阪市東淀川区豊里6 3,780万円 他

  • 中古住宅
  • 大阪府大阪市東淀川区豊里6 中古住宅
    間取り図
大阪府大阪市東淀川区豊里6
地下鉄今里筋線 だいどう豊里駅 徒歩8分
阪急京都線 上新庄駅 徒歩19分
地下鉄今里筋線 瑞光四丁目駅 徒歩21分
3,780
万円

171.81m2
96.1m2 1977年1月(築49年5ヶ月)
  • 3階建て以上
  • 都市ガス
  • ルーフバルコニー
  • 駐車場あり
  • 駐車3台
  • システムキッチン
  • 所有権
おすすめポイント
◆内覧予約は06-4255-3477へお問合せ下さい♪◆購入を諦めていたお客様も是非お問合せ下さい◆頭金0円より購入可 ◆物件の特徴・ルーフバルコニー付きの戸建て物件!・複数路線利用可◎・2階と3階に玄関あり、2世帯住宅にもおすすめ♪・車庫付き、4台駐車可能・丈夫な鉄骨造◆見るだけ大歓迎◆接客対応品質に自信があり◆夜間早朝もお気軽にご連絡ください◆無料送迎可「購入するか分からないけど見るだけ見たい」「他社の物件もまとめて見てみたい」等 ご購入をご検討中のお客様にとって、より良い条件でご購入頂く為に精一杯サポート致します不動産の事なら何でもお気軽にご相談下さい

大阪府大阪市東淀川区豊里6 3,780万円 他

  • 中古住宅
  • 大阪府大阪市東淀川区豊里6 中古住宅
    間取り図
大阪府大阪市東淀川区豊里6
地下鉄今里筋線 だいどう豊里駅 徒歩8分
阪急京都線 上新庄駅 徒歩19分
地下鉄今里筋線 瑞光四丁目駅 徒歩21分
3,780
万円

171.81m2
96.1m2 1977年1月(築49年5ヶ月)
  • 3階建て以上
  • 都市ガス
  • ルーフバルコニー
  • 駐車場あり
  • 駐車3台
  • 所有権
おすすめポイント
◇◆◇◆◇◇◆◇◆◇◇◆◇◆◇◇◆◇◆◇◇◆◇◆◇◇◆◇◆◇◇◆◇◆◇◇◆◇◆◇■大阪メトロ御堂筋線「だいどう豊里」駅まで徒歩8分阪急京都線「上新庄」駅まで徒歩19分■周辺施設ミニストップ 東淀川豊里4丁目店まで約190mライフ豊里店まで約190m◎見学カレンダーから予約できます◎赤い見学ボタンをクリック♪お電話でのお問い合わせもお待ちしております!

大阪府大阪市東淀川区豊里6 3,780万円 他

  • 中古住宅
  • 大阪府大阪市東淀川区豊里6 中古住宅
    間取り図
大阪府大阪市東淀川区豊里6
地下鉄今里筋線 だいどう豊里駅 徒歩8分
阪急京都線 上新庄駅 徒歩19分
地下鉄今里筋線 瑞光四丁目駅 徒歩20分
3,780
万円

171.81m2
96.1m2 1977年1月(築49年5ヶ月)
  • 3階建て以上
  • 都市ガス
  • ルーフバルコニー
  • 駐車場あり
  • 駐車2台
  • 所有権
  • 即入居可
おすすめポイント
◇1階部分は車庫の他、作業場や趣味の空間としてもご利用頂けます♪◆大阪メトロ今里筋線【だいどう豊里駅】徒歩8分♪◇1LDK+2LDKで2世帯住宅におすすめです!収益用としてもご検討ください♪◆すべての居室が6帖以上のゆとりある間取りとなっております♪◇前面道路も約7.0mとしっかり幅員がございます・お車の出入りもスムーズ♪◆駐車スペースは嬉しい約2台分♪(駐車台数は車種による) 自転車・バイク置き場としても♪◇ご質問・内覧のご希望などございましたらお気軽にお問合せくださいませ♪

大阪府大阪市東淀川区瑞光2 3,280万円 3SLDK

  • 中古住宅
  • 大阪府大阪市東淀川区瑞光2 中古住宅
    間取り図
大阪府大阪市東淀川区瑞光2
阪急京都線 上新庄駅 徒歩9分
地下鉄今里筋線 瑞光四丁目駅 徒歩9分
阪急京都線 相川駅 徒歩15分
3,280
万円
3SLDK
96.5m2
40.15m2 1999年9月(築26年9ヶ月)
  • 3階建て以上
  • 都市ガス
  • 駐車場あり
  • システムキッチン
  • 浴室乾燥機
  • 所有権
  • リフォームリノベーション
おすすめポイント
☆阪急『上新庄』駅徒歩9分・生活至便な住環境・今里筋線『瑞光4丁目』駅徒歩9分!2WAYアクセス利用可!☆現況空家につき即日ご内覧可\当社より徒歩圏内!ご案内スムーズです/『リフォーム内容(一部)』・システムキッチン(食洗機付)・UB(追炊き・浴室乾燥付)・洗面化粧台・洗濯パン、洗濯水栓・温水洗浄機能付きトイレ・給湯器・クロス、床材張替・その他:畳表替・障子、網戸張替など☆住宅ローンについて・提携銀行が多数ある為、より条件が良い銀行をご提案できます・頭金ゼロでもマイホームを買いたいなどお気軽にお問い合わせください☆『資金計画書』の無料作成も実施中

大阪府大阪市東淀川区豊里6 3,780万円 4LDK

  • 中古住宅
  • 大阪府大阪市東淀川区豊里6 中古住宅
    間取り図
大阪府大阪市東淀川区豊里6
地下鉄今里筋線 だいどう豊里駅 徒歩9分
阪急京都線 上新庄駅 徒歩18分
地下鉄今里筋線 瑞光四丁目駅 徒歩21分
3,780
万円
4LDK
171.81m2
96.1m2 1977年1月(築49年5ヶ月)
  • 2階建て
  • 都市ガス
  • 所有権

大阪府大阪市東淀川区小松3 4,480万円 2SLDK

  • 中古住宅
  • 大阪府大阪市東淀川区小松3 中古住宅
    間取り図
大阪府大阪市東淀川区小松3
地下鉄今里筋線 瑞光四丁目駅 徒歩9分
阪急京都線 上新庄駅 徒歩10分
阪急京都線 相川駅 徒歩10分
4,480
万円
2SLDK
108.66m2
51.58m2 2019年4月(築7年2ヶ月)
  • 3階建て以上
  • 都市ガス
  • 駐車場あり
  • システムキッチン
  • 所有権
おすすめポイント
◆阪急【上新庄駅】徒歩10分 大阪メトロ今里筋線【瑞光四丁目駅】徒歩9分◇2WAY可能で便利な立地! 敷地内駐車スペースあり・通勤通学にも♪◆納戸やパントリーなど充実の収納&ロフト付きで季節のお片付けも安心です♪◇広々としたリビングは家族みんなのくつろぎ空間! 対面式システムキッチンでお料理中もリビングと会話が弾みます♪◆ご質問・内覧のご希望などございましたらお気軽にお問合せ下さい♪

大阪府大阪市東淀川区瑞光5 2,898万円 3LDK

  • 中古住宅
  • 大阪府大阪市東淀川区瑞光5 中古住宅
大阪府大阪市東淀川区瑞光5
地下鉄今里筋線 瑞光四丁目駅 徒歩10分
地下鉄今里筋線 井高野駅 徒歩13分
阪急京都線 上新庄駅 徒歩24分
2,898
万円
3LDK
103.53m2
57.2m2 1992年9月(築33年9ヶ月)
  • 3階建て以上
  • 都市ガス
  • 駐車場あり
  • システムキッチン
  • 所有権
  • リフォームリノベーション
おすすめポイント
~センチュリー21ランド阿波座店のおすすめポイント!~ご覧頂き誠にありがとうございます!本物件のおすすめポイントはこちら!<物件について>●周辺施設充実!●1階・2階にトイレ有り●収納充実!納戸・各居室に収納有り<立地>●大阪メトロ今里筋線「瑞光四丁目」駅より徒歩約10分お気軽にお問い合わせください!<センチュリー21ランドについて>●センチュリー21ランド阿波座店は・・・ お客様のニーズに寄り添い、大切なお住まいのご購入に最後まで伴走いたします!●リフォームのご相談も承っております。●不動産に関するお悩み等、なんでもお気軽にご相談くださいませ!

大阪府大阪市東淀川区大桐4 3,480万円 4SLDK

  • 中古住宅
  • 大阪府大阪市東淀川区大桐4 中古住宅
    間取り図
大阪府大阪市東淀川区大桐4
地下鉄今里筋線 瑞光四丁目駅 徒歩10分
阪急京都線 上新庄駅 徒歩20分
地下鉄今里筋線 だいどう豊里駅 徒歩11分
3,480
万円
4SLDK
101.24m2
60.11m2 2007年5月(築19年1ヶ月)
  • 3階建て以上
  • 都市ガス
  • 駐車場あり
  • システムキッチン
  • 浴室乾燥機
  • 所有権
  • 即入居可
  • リフォームリノベーション
おすすめポイント
●おすすめポイント●◇水回り2階に集約され家事導線もラクラクです♪◆開発分譲区内で交通量も少なく閑静な住宅街です♪◇大阪メトロ今里筋線『瑞光四丁目駅』徒歩10分♪■リフォーム内容■・キッチン新調・浴室新調・洗面化粧台新調・トイレ新調・全室クロス張替・全室フロアタイル張替・ハウスクリーニング等●学校●◇小学校 大阪市立大桐小学校 徒歩5分◆中学校 大阪市立大桐中学校 徒歩3分☆周辺環境☆・スーパー ライフ江口店 徒歩10分■住宅ローンのご相談は当社へ!頭金0円購入応援致します♪■現地ご内覧もしていただけます!お気軽にお問合せ下さい♪

大阪府大阪市東淀川区大桐4 1,700万円 5DK

  • 中古住宅
  • 大阪府大阪市東淀川区大桐4 中古住宅
    間取り図
大阪府大阪市東淀川区大桐4
地下鉄今里筋線 だいどう豊里駅 徒歩11分
阪急京都線 上新庄駅 徒歩24分
1,700
万円
5DK
71.78m2
65.51m2 1978年1月(築48年5ヶ月)
  • 2階建て
  • 所有権
おすすめポイント
■大阪メトロ今里筋線「ダイドウ豊里」駅徒歩11分♪■5DK■前面道路幅員 約4m■複数アクセス可■空家にて室内ゆっくりご内覧頂けます♪お客様のご要望をしっかり伺い、物件を一緒にお選びしたいと思っております!大事なマイホームのお探し全力でお手伝いさせて頂きます♪ローン、リフォームのご相談など、何でもお気軽にご連絡下さい!まずは室内を是非ご内覧ください♪

大阪府大阪市東淀川区豊里2 2,580万円 4LDK

  • 中古住宅
  • 大阪府大阪市東淀川区豊里2 中古住宅
    間取り図
大阪府大阪市東淀川区豊里2
阪急京都線 上新庄駅 徒歩11分
地下鉄今里筋線 だいどう豊里駅 徒歩13分
地下鉄今里筋線 瑞光四丁目駅 徒歩19分
2,580
万円
4LDK
130.35m2
50m2 2001年2月(築25年4ヶ月)
  • 3階建て以上
  • 都市ガス
  • ルーフバルコニー
  • 駐車場あり
  • システムキッチン
  • 浴室乾燥機
  • 所有権
  • 即入居可
おすすめポイント
◇阪急電鉄京都線【上新庄駅】徒歩13分 大阪メトロ今里筋線【だいどう豊里駅】徒歩13分◆2WAY利用可能 大阪の中心部へもアクセス良好で便利な立地です♪◇前面道路は幅員約15mでお車の出入りも楽々! 見通しもよく歩道もしっかり整備されておりますので安心ですね♪◆大容量のロフト付きで家財の多いご家庭にも! 現況空家につき室内ゆっくりご覧頂けます♪◇ご質問・内覧のご希望などございましたらお気軽にお問合せくださいませ♪

大阪府大阪市東淀川区大桐4 4,980万円 4SLDK

  • 中古住宅
  • 大阪府大阪市東淀川区大桐4 中古住宅
    間取り図
大阪府大阪市東淀川区大桐4
地下鉄今里筋線 だいどう豊里駅 徒歩11分
地下鉄今里筋線 瑞光四丁目駅 徒歩14分
阪急京都線 上新庄駅 徒歩24分
4,980
万円
4SLDK
102.87m2
121.06m2 2020年7月(築5年11ヶ月)
  • 3階建て以上
  • 都市ガス
  • ルーフバルコニー
  • 駐車場あり
  • 駐車2台
  • システムキッチン
  • 浴室乾燥機
  • 所有権
おすすめポイント
築5年目、築浅物件内覧可能(要予約)◆設備内容【給湯器(リンナイ)】2019年7月製造、24号【玄関】プッシュプルハンドル、シューズインクローク、姿見付きシューズボックス【ウォークインクローゼット×3】【廊下洗面台】【システムキッチン(タカラスタンダード)】ビルトイン浄水器、食器洗浄乾燥機【TVモニター付きインターホン(パナソニック)】くらしモード【シャワートイレ(リクシル)】タンク一体型【洗面化粧台(タカラスタンダード)】くもり防止ミラー、ビルトイン水栓【浴室(タカラスタンダード)】浴室暖房乾燥機、追い焚き【シーリングファン】※お車は縦列駐車になります

大阪府大阪市東淀川区大道南1 2,780万円 3LDK

  • 中古住宅
  • 大阪府大阪市東淀川区大道南1 中古住宅
    間取り図
大阪府大阪市東淀川区大道南1
地下鉄今里筋線 だいどう豊里駅 徒歩12分
地下鉄今里筋線 瑞光四丁目駅 徒歩19分
阪急京都線 上新庄駅 徒歩26分
2,780
万円
3LDK
113.23m2
49.77m2 1994年9月(築31年9ヶ月)
  • 3階建て以上
  • 都市ガス
  • 駐車場あり
  • 所有権
  • 即入居可
  • リフォームリノベーション
おすすめポイント
---イチ押しポイント---■2025年8月フルリフォーム済物件!■室内全面■キッチン新設■浴室新設■トイレ新設---周辺環境---■大阪市営地下鉄今里線 だいどう豊里駅まで 徒歩12分■大道南小学校まで 徒歩4分■大桐中学校まで 徒歩11分■スーパーまで 徒歩10分※当社では他社様が掲載している物件もご紹介、ご案内が可能です!あわせて内覧を希望される際は、お問い合わせの際希望の物件名をお申し付けくださいませ!

大阪府大阪市東淀川区大道南1 2,780万円 3LDK

  • 中古住宅
  • 大阪府大阪市東淀川区大道南1 中古住宅
    間取り図
大阪府大阪市東淀川区大道南1
地下鉄今里筋線 だいどう豊里駅 徒歩12分
地下鉄今里筋線 瑞光四丁目駅 徒歩19分
阪急京都線 上新庄駅 徒歩30分
2,780
万円
3LDK
113.23m2
49.77m2 1994年8月(築31年10ヶ月)
  • 3階建て以上
  • 都市ガス
  • 駐車場あり
  • システムキッチン
  • 所有権
  • 即入居可
  • リフォームリノベーション
おすすめポイント
◇リフォーム内容:間取り変更、クロス貼替、フローリング上貼り、キッチン・バス・トイレ・洗面台交換◆敷地内駐車スペースあり! 前面道路は幅員約6mでお車の出入りもスムーズです♪◇開口部多く通風良好◎ 湿気の籠りやすいバスルーム・洗面所にも窓がございます♪◆綺麗な室内をぜひ一度ご覧ください! ご質問・内覧のご希望などございましたらお気軽にお問合せくださいませ♪

大阪府吹田市内本町3 3,480万円 4SLDK

  • 中古住宅
  • 大阪府吹田市内本町3 中古住宅
    間取り図
大阪府吹田市内本町3
JR東海道本線 吹田駅 徒歩12分
阪急千里線 吹田駅 徒歩15分
阪急京都線 上新庄駅 徒歩15分
3,480
万円
4SLDK
98.64m2
52.47m2 1996年3月(築30年3ヶ月)
  • 3階建て以上
  • 南道路
  • 都市ガス
  • 駐車場あり
  • システムキッチン
  • 浴室乾燥機
  • 所有権
  • 即入居可
おすすめポイント
◆ダウンライト新設・給湯器新調◆外壁塗装済み◆バルコニー2箇所あり陽当たり良好♪【お買い物施設】・業務スーパー吹田店:徒歩7分・セブンイレブン吹田元町店:徒歩8分・Foods Market satake朝日町本店:徒歩9分・ダイコクドラッグJR吹田駅前店:徒歩9分・ジョーシン吹田上新庄店:徒歩15分【教育施設】・吹田市立吹一保育園:徒歩9分・吹田市立吹田第一小学校:徒歩9分・吹田市立第三中学校:徒歩13分◆現地見学・内覧をご希望の際は下記の見学カレンダーまたはお電話でお気軽にご予約ください♪

大阪府吹田市内本町3 3,480万円 4SLDK

  • 中古住宅
  • 大阪府吹田市内本町3 中古住宅
    間取り図
大阪府吹田市内本町3
JR東海道本線 吹田駅 徒歩13分
阪急京都線 相川駅 徒歩12分
阪急京都線 上新庄駅 徒歩14分
3,480
万円
4SLDK
98.64m2
52.47m2 1996年3月(築30年3ヶ月)
  • 3階建て以上
  • 南道路
  • 都市ガス
  • システムキッチン
  • 所有権
  • 即入居可
  • リフォームリノベーション
おすすめポイント
R8年4月リフォーム済。お気持ち良くご入居いただけます。南向きにつき陽当たり・通風良好。毎日のお洗濯もはかどります。現況空家につき即時お引渡し可能。新しい生活をすぐに始められます。ご内覧のご希望など、お気軽にお問い合わせください!※R8年4月リフォーム済 塗装:外壁・ベランダ・玄関特殊 間取り変更工事 新調…システムキッチン・キッチンパネル・洗面台・洗濯パン・トイレ・給湯器・モニターフォン・ダウンライト・ポスト 張替…クロス・フロアタイル・CF・網戸一部・畳・襖・障子 ハウスクリーニング

大阪府大阪市東淀川区豊里2 2,180万円 3LDK

  • 中古住宅
  • 大阪府大阪市東淀川区豊里2 中古住宅
    間取り図
大阪府大阪市東淀川区豊里2
地下鉄今里筋線 だいどう豊里駅 徒歩16分
阪急京都線 上新庄駅 徒歩21分
JRおおさか東線 JR淡路駅 徒歩26分
2,180
万円
3LDK
92.24m2
40m2 1998年11月(築27年7ヶ月)
  • 3階建て以上
  • 都市ガス
  • システムキッチン
  • 浴室乾燥機
  • 所有権
  • リフォームリノベーション
おすすめポイント
高利回りと安定性を兼ね備えた、1棟収益戸建てのご紹介です。■投資の決め手・表面利回り約8.2%の好条件・2024年5月に内外装フルリフォーム済み・10年間の定期借家契約中で長期の空室リスクを低減■物件のポテンシャル・専有面積90㎡超のゆとりある3LDK+ロフト・ハイルーフ車対応の駐車場完備・外壁から水回りまで一新、将来の修繕不安も払拭■充実の周辺環境・スーパー「ライフ」徒歩5分、コンビニ徒歩3分・生活利便性が高く、ファミリー層の賃貸需要が絶えない立地管理の手間を抑えつつ、着実に資産形成を図りたい投資家様に最適な一台です。

大阪府大阪市東淀川区豊里2 3,880万円 3SLDK

  • 中古住宅
  • 大阪府大阪市東淀川区豊里2 中古住宅
    間取り図
大阪府大阪市東淀川区豊里2
地下鉄今里筋線 だいどう豊里駅 徒歩16分
阪急京都線 上新庄駅 徒歩18分
JRおおさか東線 JR淡路駅 徒歩23分
3,880
万円
3SLDK
97.74m2
61.24m2 2021年2月(築5年4ヶ月)
  • 3階建て以上
  • 都市ガス
  • 駐車場あり
  • システムキッチン
  • 床暖房
  • 浴室乾燥機
  • 所有権
おすすめポイント
◇築4年のため、リフォーム不要でお住まいいただけます♪◇全12区画の開発分譲地のため、子育て世帯に特にオススメです♪◇駐車場はインナーガレージになっており、車好きの方にもオススメです♪◇床暖房やシューズクロークなど、人気の設備がしっかりついております♪―――――――――――――――――――――――――――――――■ウエルシア豊里店・・・・・・徒歩約15分■ライフ豊里店・・・・・・・・・徒歩約8分■セブンイレブン菅原2丁目店・・・徒歩約15分◇◆実際に室内をご覧いただけます。お気軽にお問い合わせ下さい!◆◇ローンの事やお家探しのご相談は(株)ワイズワンホームにお任せください!
チェックした物件を一括で
  • チェックした物件をまとめて
112
表示件数 123 次へ

条件を選択

価格
間取り
建物面積
土地面積
築年数
駅からの時間
人気のこだわり条件

さらに詳しくこだわり条件を選択

建物構造
階数
立地・特徴
キッチン
設備
駐車場
条件
性能・評価
瑕疵保険
お得な条件
画像・動画
情報の新しさ
フリーワード

大阪市東淀川区の暮らしデータ

人口などの統計情報

世帯数 1464615世帯
人口総数 2778917人
転入者数 238778人
転入率(人口1000人当たり)
85.92人
転出者数 195331人
転出率(人口1000人当たり)
70.29人
土地平均価格
住宅地
288103円/m2
商業地
2171101円/m2

結婚・育児の助成金

子育て関連の独自の取り組み (1)子ども・子育てプラザ(在宅での子育て家庭や地域での子育て活動を支援し、また乳幼児期の親子や子育て支援者、就学期の子どもが集い交流する機会を提供する等、地域福祉活動の推進を図る)。(2)習い事・塾代助成事業(学習塾や家庭教師、文化・スポーツ教室等学校外教育にかかる費用を、1人当たり月額1万円まで助成。所得制限あり)。
出産祝い なし
公立保育所数 77所(うち0歳児保育を実施している保育所:69所)
私立保育所数 393所(うち0歳児保育を実施している保育所:-)
保育所入所待機児童数 0人
認定こども園数 139園 預かり保育実施園数 公立:51園 私立:0園
学校給食 【小学校】完全給食【中学校】完全給食
公立中学校の学校選択制 実施
子ども・学生等医療費助成<通院>対象年齢 18歳3月末まで 子ども・学生等医療費助成<入院>対象年齢 18歳3月末まで

大阪市東淀川区の治安・ごみ収集情報

公共料金・インフラ

ガス料金(22m3使用した場合の月額) 大阪瓦斯株式会社4544円
水道料金(口径20mmで20m3の月額) 大阪市2112円
下水道料金(20m3を使用した場合の月額) 大阪市1276円
下水道普及率 100.0%

安心・安全

建物火災出火件数 553件
人口10000人当たり
2.01件
刑法犯認知件数 39408件
人口1000人当たり
14.32件
ハザード・防災マップ あり

医療

一般病院総数 172ヶ所
一般診療所総数 3807ヶ所
小児科医師数 659人
小児人口10000人当たり
23.08人
産婦人科医師数 366人
15~49歳女性人口1万人当たり
5.86人
介護保険料基準額(月額) 9249円

ごみ

家庭ごみ収集(可燃ごみ) 無料
備考
-
家庭ごみの分別方式 4分別11種〔普通ごみ(普通ごみ、危険ごみ[竹串、ガラス片、カミソリの刃]) 資源ごみ(空き缶・空きびん・金属製の生活用品・ペットボトル、スプレー缶・カセットボンベ) プラスチック資源 古紙・衣類(新聞紙・折込チラシ、段ボール、紙パック、雑誌、衣類、その他の紙類)〕
家庭ごみの戸別収集 一部実施(【ふれあい収集】65歳以上の一人暮らしの高齢者または高齢者だけの世帯、障がいがある方が居住される家庭で、ごみ出しが困難な人が対象)
粗大ごみ収集 あり
備考
有料。戸別収集。事前申込制。申込時に収集日を決定。
生ごみ処理機助成金制度 なし
上限金額
-
上限比率
-

大阪市東淀川区の住まいの給付金

中古購入

利子補給制度 あり
上限金額
50万円
備考
【大阪市新婚・子育て世帯向け分譲住宅購入融資利子補給制度】新婚世帯(夫婦ともに満40歳未満かつ婚姻届出後5年以内の世帯)または子育て世帯(小学校6年生以下の子どもがいる世帯)で、市内で住宅を民間金融機関などの融資を受けて初めて建築・取得したものが対象。住宅ローンに対して年0.5%以内(融資利率を上限とする)、最長5年間の利子補給を行う。
補助/助成金制度 なし

増築・改築・改修

利子補給制度 なし
補助/助成金制度 あり
上限金額
115万円
備考
【民間戸建住宅等の耐震診断・改修等補助制度】2000年5月31日以前に建築された住宅が対象。耐震診断は費用の10/11、1戸上限5万円。耐震改修設計は費用の2/3、1戸上限10万円。耐震改修工事は費用の1/2、1戸上限100万円。
暮らしデータ提供元:生活ガイド.com
※行政機関により公表していない地域及びデータがございます。東京23区以外の政令指定都市は、市全体のデータとして表示しています。
※提供データには細心の注意を払っておりますが、調査後に変更がある場合があります。 最新の情報につきましては各市区役所までお問い合わせいただくか、自治体HPなどをご確認ください。

価格相場

上新庄駅の価格相場

  ワンルーム 1K・1DK 1LDK・2K・2DK 2LDK・3K・3DK 3LDK・4K・4DK
中古一戸建て - - - 2,942万円 3,498万円

周辺駅の価格相場

  相川 淡路 正雀 崇禅寺 摂津市
中古一戸建て 2,771万円 3,059万円 1,448万円 - -
※このデータはgoo住宅・不動産に掲載されている中古一戸建ての平均価格(管理費・駐車場代などを除く)を算出したものです。ただし5戸以上の掲載があるものについてのみ対象とします。
※周辺駅の価格相場は2LDK・3K・3DKの平均価格(管理費・駐車場代などを除く)を算出したものです。
アプリで簡単 物件探し 大手不動産サイトの情報から一括検!プッシュ通知で物件を見逃さない
App Storeからダウンロード Google Playで手に入れよう QRコード