春日部市(埼玉県)の土地(宅地・分譲地・売地) 物件一覧

地域

春日部市

変更する

条件

指定なし

変更する
364が該当しました。

  • 埼玉県春日部市牛島 1380万円

    1380万円

    (坪単価:43.79万円)

    土地面積 104.19m2
    用途地域 1種中高
    建ぺい率 60%
    容積率 184%
    建築条件 なし
    • 最寄り駅東武鉄道野田線 藤の牛島駅 徒歩5分
    その他の交通
    住所埼玉県春日部市牛島
    • 建築条件なし
    • 更地
    • 南道路
    • 本下水
    • 都市ガス

  • 埼玉県春日部市樋籠 650万円

    650万円

    (坪単価:25.05万円)

    土地面積 85.79m2
    用途地域 無指定
    建ぺい率 60%
    容積率 200%
    建築条件 なし
    • 最寄り駅東武鉄道野田線 藤の牛島駅 徒歩18分
    • 東武伊勢崎・大師線 春日部駅 徒歩36分
    その他の交通
    住所埼玉県春日部市樋籠
    • 建築条件なし
    • 平坦地
    • 都市ガス
    • 上物有り
    東武アーバンパークライン「藤の牛島」駅徒歩18分。 自由設計で夢のマイホームはいかがでしょうか!希望の間取りが叶いやすい整形地! 教育・商業施設が整った暮らしやすい住環境です。

  • 埼玉県春日部市豊町5丁目 2680万円

    2680万円

    (坪単価:64.09万円)

    土地面積 138.25m2
    用途地域 1種中高
    建ぺい率 70%
    容積率 200%
    建築条件 なし
    • 最寄り駅東武鉄道野田線 八木崎駅 徒歩21分
    • 東武鉄道野田線 豊春駅 徒歩21分
    その他の交通
    住所埼玉県春日部市豊町5丁目
    • 建築条件なし
    • 更地
    • 南道路
    • 本下水
    • 都市ガス
    • 角地
    ご見学にあわせて無料の外部FP相談をご利用頂けます。マイホーム購入だけでなく、老後の資金計画・お子様の教育資金等のライフシュミレーションを考慮した上で、無理のない返済計画をご提案いたします。

  • 埼玉県春日部市赤沼 980万円

    980万円

    (坪単価:20.22万円)

    土地面積 160.27m2
    用途地域 無指定
    建ぺい率 60%
    容積率 200%
    建築条件 あり
    • 最寄り駅東武伊勢崎・大師線 せんげん台駅 徒歩3.6km
    • 東武伊勢崎・大師線 武里駅 徒歩3.6km
    その他の交通
    住所埼玉県春日部市赤沼
    • 平坦地
    • 上物有り
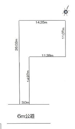
    ■確定測量済みです!■お好きな間取りで建築可能です!■豊野小学校まで徒歩26分(約2010m)・豊野中学校まで徒歩31分(約2480m)

  • 埼玉県春日部市大枝 2190万円

    2190万円

    (坪単価:71.14万円)

    土地面積 101.78m2
    用途地域 1種住居
    建ぺい率 60%
    容積率 200%
    建築条件 なし
    • 最寄り駅東武伊勢崎・大師線 せんげん台駅 徒歩10分
    • 東武伊勢崎・大師線 武里駅 徒歩16分
    その他の交通
    住所埼玉県春日部市大枝
    • 建築条件なし
    • 平坦地
    • 本下水
    • 都市ガス
    見学予約受付中!(株)エステート白馬 越谷店 当日のご見学もご相談ください。

  • 埼玉県春日部市粕壁東6丁目 1980万円

    1980万円

    (坪単価:44.73万円)

    土地面積 146.35m2
    用途地域 1種住居
    建ぺい率 60%
    容積率 200%
    建築条件 なし
    • 最寄り駅東武鉄道野田線 藤の牛島駅 徒歩13分
    • 東武伊勢崎・大師線 春日部駅 徒歩25分
    その他の交通
    住所埼玉県春日部市粕壁東6丁目
    • 建築条件なし
    • 更地
    • 本下水
    • 都市ガス
    全10区画 建築条件なし・お好きなハウスメーカーで建築可能です!自由設計で夢のマイホームはいかがでしょうか!ベルクまで徒歩約10分(800m)、お買い物に便利です!当社無料の間取り作成も承ります。

  • 埼玉県春日部市粕壁東6丁目 1980万円

    1980万円

    (坪単価:46.77万円)

    土地面積 139.99m2
    用途地域 1種住居
    建ぺい率 60%
    容積率 200%
    建築条件 なし
    • 最寄り駅東武鉄道野田線 藤の牛島駅 徒歩13分
    • 東武伊勢崎・大師線 春日部駅 徒歩25分
    その他の交通
    住所埼玉県春日部市粕壁東6丁目
    • 建築条件なし
    • 更地
    • 本下水
    • 都市ガス
    全10区画 建築条件なし・お好きなハウスメーカーで建築可能です!自由設計で夢のマイホームはいかがでしょうか!ベルクまで徒歩約10分(800m)、お買い物に便利です!当社無料の間取り作成も承ります。

  • 埼玉県春日部市粕壁東6丁目 1980万円

    1980万円

    (坪単価:45.4万円)

    土地面積 144.21m2
    用途地域 1種住居
    建ぺい率 60%
    容積率 200%
    建築条件 なし
    • 最寄り駅東武鉄道野田線 藤の牛島駅 徒歩13分
    • 東武伊勢崎・大師線 春日部駅 徒歩25分
    その他の交通
    住所埼玉県春日部市粕壁東6丁目
    • 建築条件なし
    • 更地
    • 本下水
    • 都市ガス
    全10区画 建築条件なし・お好きなハウスメーカーで建築可能です!自由設計で夢のマイホームはいかがでしょうか!ベルクまで徒歩約10分(800m)、お買い物に便利です!当社無料の間取り作成も承ります。

  • 埼玉県春日部市粕壁東6丁目 2180万円

    2180万円

    (坪単価:57.25万円)

    土地面積 125.9m2
    用途地域 1種住居
    建ぺい率 60%
    容積率 200%
    建築条件 なし
    • 最寄り駅東武鉄道野田線 藤の牛島駅 徒歩13分
    • 東武伊勢崎・大師線 春日部駅 徒歩25分
    その他の交通
    住所埼玉県春日部市粕壁東6丁目
    • 建築条件なし
    • 更地
    • 本下水
    • 都市ガス
    全10区画 建築条件なし・お好きなハウスメーカーで建築可能です!自由設計で夢のマイホームはいかがでしょうか!ベルクまで徒歩約10分(800m)、お買い物に便利です!当社無料の間取り作成も承ります。

  • 埼玉県春日部市粕壁東6丁目 2180万円

    2180万円

    (坪単価:54.99万円)

    土地面積 131.09m2
    用途地域 1種住居
    建ぺい率 60%
    容積率 200%
    建築条件 なし
    • 最寄り駅東武鉄道野田線 藤の牛島駅 徒歩13分
    • 東武伊勢崎・大師線 春日部駅 徒歩25分
    その他の交通
    住所埼玉県春日部市粕壁東6丁目
    • 建築条件なし
    • 更地
    • 本下水
    • 都市ガス
    全10区画 建築条件なし・お好きなハウスメーカーで建築可能です!自由設計で夢のマイホームはいかがでしょうか!ベルクまで徒歩約10分(800m)、お買い物に便利です!当社無料の間取り作成も承ります。

dカードGOLD入会&利用さらに対象公共料金などすべて支払いで合計最大dポイント(期間・用途限定)7000ポイントプレゼント

  • 埼玉県春日部市粕壁東6丁目 2180万円

    2180万円

    (坪単価:55.26万円)

    土地面積 130.42m2
    用途地域 1種住居
    建ぺい率 60%
    容積率 200%
    建築条件 なし
    • 最寄り駅東武鉄道野田線 藤の牛島駅 徒歩13分
    • 東武伊勢崎・大師線 春日部駅 徒歩25分
    その他の交通
    住所埼玉県春日部市粕壁東6丁目
    • 建築条件なし
    • 更地
    • 本下水
    • 都市ガス
    全10区画 建築条件なし・お好きなハウスメーカーで建築可能です!自由設計で夢のマイホームはいかがでしょうか!ベルクまで徒歩約10分(800m)、お買い物に便利です!当社無料の間取り作成も承ります。

  • 埼玉県春日部市粕壁東6丁目 2480万円

    2480万円

    (坪単価:53.26万円)

    土地面積 153.96m2
    用途地域 1種住居
    建ぺい率 60%
    容積率 200%
    建築条件 なし
    • 最寄り駅東武鉄道野田線 藤の牛島駅 徒歩13分
    • 東武伊勢崎・大師線 春日部駅 徒歩25分
    その他の交通
    住所埼玉県春日部市粕壁東6丁目
    • 建築条件なし
    • 更地
    • 南道路
    • 本下水
    • 都市ガス
    全10区画 建築条件なし・お好きなハウスメーカーで建築可能です!自由設計で夢のマイホームはいかがでしょうか!ベルクまで徒歩約10分(800m)、お買い物に便利です!当社無料の間取り作成も承ります。

  • 埼玉県春日部市粕壁東6丁目 2580万円

    2580万円

    (坪単価:54.15万円)

    土地面積 157.53m2
    用途地域 1種住居
    建ぺい率 60%
    容積率 200%
    建築条件 なし
    • 最寄り駅東武鉄道野田線 藤の牛島駅 徒歩13分
    • 東武伊勢崎・大師線 春日部駅 徒歩25分
    その他の交通
    住所埼玉県春日部市粕壁東6丁目
    • 建築条件なし
    • 更地
    • 南道路
    • 本下水
    • 都市ガス
    全10区画 建築条件なし・お好きなハウスメーカーで建築可能です!自由設計で夢のマイホームはいかがでしょうか!ベルクまで徒歩約10分(800m)、お買い物に便利です!当社無料の間取り作成も承ります。

  • 埼玉県春日部市粕壁東6丁目 2580万円

    2580万円

    (坪単価:53.96万円)

    土地面積 158.1m2
    用途地域 1種住居
    建ぺい率 60%
    容積率 200%
    建築条件 なし
    • 最寄り駅東武鉄道野田線 藤の牛島駅 徒歩13分
    • 東武伊勢崎・大師線 春日部駅 徒歩25分
    その他の交通
    住所埼玉県春日部市粕壁東6丁目
    • 建築条件なし
    • 更地
    • 南道路
    • 本下水
    • 都市ガス
    全10区画 建築条件なし・お好きなハウスメーカーで建築可能です!自由設計で夢のマイホームはいかがでしょうか!ベルクまで徒歩約10分(800m)、お買い物に便利です!当社無料の間取り作成も承ります。

  • 埼玉県春日部市粕壁東6丁目 2580万円

    2580万円

    (坪単価:54.13万円)

    土地面積 157.59m2
    用途地域 1種住居
    建ぺい率 60%
    容積率 200%
    建築条件 なし
    • 最寄り駅東武鉄道野田線 藤の牛島駅 徒歩13分
    • 東武伊勢崎・大師線 春日部駅 徒歩25分
    その他の交通
    住所埼玉県春日部市粕壁東6丁目
    • 建築条件なし
    • 更地
    • 南道路
    • 本下水
    • 都市ガス
    全10区画 建築条件なし・お好きなハウスメーカーで建築可能です!自由設計で夢のマイホームはいかがでしょうか!ベルクまで徒歩約10分(800m)、お買い物に便利です!当社無料の間取り作成も承ります。

  • 埼玉県春日部市赤沼 980万円

    980万円

    (坪単価:20.22万円)

    土地面積 160.27m2
    用途地域 無指定
    建ぺい率 60%
    容積率 200%
    建築条件 あり
    • 最寄り駅東武伊勢崎・大師線 せんげん台駅 徒歩3.6km
    • 東武伊勢崎・大師線 武里駅 徒歩3.6km
    その他の交通
    住所埼玉県春日部市赤沼
    • 平坦地
    • 上物有り
    敷地約48坪!自由設計で夢のマイホームはいかがでしょうか!当社無料の間取り作成も承ります!お気軽にお問い合わせください!

  • 埼玉県春日部市粕壁東6丁目 1980万円

    1980万円

    (坪単価:44.73万円)

    土地面積 146.35m2
    用途地域 1種住居
    建ぺい率 60%
    容積率 200%
    建築条件 なし
    • 最寄り駅東武鉄道野田線 藤の牛島駅 徒歩13分
    • 東武伊勢崎・大師線 春日部駅 徒歩26分
    その他の交通
    住所埼玉県春日部市粕壁東6丁目
    • 建築条件なし
    • 更地
    • 平坦地
    • 本下水
    • 都市ガス
    【9区画】土地面積約44.2坪!自由設計で夢のマイホームはいかがでしょうか! お好きなハウスメーカーで建築可能です!建築士による無料のプラン作成承ります! 東武野田線「藤の牛島」駅まで徒歩13分!

  • 埼玉県春日部市粕壁東6丁目 1980万円

    1980万円

    (坪単価:45.4万円)

    土地面積 144.21m2
    用途地域 1種住居
    建ぺい率 60%
    容積率 200%
    建築条件 なし
    • 最寄り駅東武鉄道野田線 藤の牛島駅 徒歩13分
    • 東武伊勢崎・大師線 春日部駅 徒歩26分
    その他の交通
    住所埼玉県春日部市粕壁東6丁目
    • 建築条件なし
    • 更地
    • 平坦地
    • 本下水
    • 都市ガス
    【7区画】土地面積約43.6坪!自由設計で夢のマイホームはいかがでしょうか! お好きなハウスメーカーで建築可能です!建築士による無料のプラン作成承ります! 東武野田線「藤の牛島」駅まで徒歩13分!

  • 埼玉県春日部市粕壁東6丁目 1980万円

    1980万円

    (坪単価:46.77万円)

    土地面積 139.99m2
    用途地域 1種住居
    建ぺい率 60%
    容積率 200%
    建築条件 なし
    • 最寄り駅東武鉄道野田線 藤の牛島駅 徒歩13分
    • 東武伊勢崎・大師線 春日部駅 徒歩26分
    その他の交通
    住所埼玉県春日部市粕壁東6丁目
    • 建築条件なし
    • 更地
    • 平坦地
    • 本下水
    • 都市ガス
    【5区画】土地面積約42.3坪!自由設計で夢のマイホームはいかがでしょうか! お好きなハウスメーカーで建築可能です!建築士による無料のプラン作成承ります! 東武野田線「藤の牛島」駅まで徒歩13分!

  • 埼玉県春日部市粕壁東6丁目 2180万円

    2180万円

    (坪単価:54.99万円)

    土地面積 131.09m2
    用途地域 1種住居
    建ぺい率 60%
    容積率 200%
    建築条件 なし
    • 最寄り駅東武鉄道野田線 藤の牛島駅 徒歩13分
    • 東武伊勢崎・大師線 春日部駅 徒歩26分
    その他の交通
    住所埼玉県春日部市粕壁東6丁目
    • 建築条件なし
    • 更地
    • 平坦地
    • 本下水
    • 都市ガス
    【6区画】土地面積約39.6坪!自由設計で夢のマイホームはいかがでしょうか! お好きなハウスメーカーで建築可能です!希望の間取りが叶いやすい整形地! 無料のプラン作成承ります!「藤の牛島」駅徒歩13分

【ドコモでんき】毎月の電気代でdポイントをためよう。最短5分でお申し込み。詳しく見る

  • 埼玉県春日部市粕壁東6丁目 2180万円

    2180万円

    (坪単価:55.26万円)

    土地面積 130.42m2
    用途地域 1種住居
    建ぺい率 60%
    容積率 200%
    建築条件 なし
    • 最寄り駅東武鉄道野田線 藤の牛島駅 徒歩13分
    • 東武伊勢崎・大師線 春日部駅 徒歩26分
    その他の交通
    住所埼玉県春日部市粕壁東6丁目
    • 建築条件なし
    • 更地
    • 平坦地
    • 本下水
    • 都市ガス
    【10区画】土地面積約39坪!自由設計で夢のマイホームはいかがでしょうか! お好きなハウスメーカーで建築可能です!希望の間取りが叶いやすい整形地! 無料のプラン作成承ります!「藤の牛島」駅徒歩13分!

  • 埼玉県春日部市粕壁東6丁目 2180万円

    2180万円

    (坪単価:57.25万円)

    土地面積 125.9m2
    用途地域 1種住居
    建ぺい率 60%
    容積率 200%
    建築条件 なし
    • 最寄り駅東武鉄道野田線 藤の牛島駅 徒歩13分
    • 東武伊勢崎・大師線 春日部駅 徒歩26分
    その他の交通
    住所埼玉県春日部市粕壁東6丁目
    • 建築条件なし
    • 更地
    • 平坦地
    • 本下水
    • 都市ガス
    【8区画】土地面積約38坪!自由設計で夢のマイホームはいかがでしょうか! お好きなハウスメーカーで建築可能です!希望の間取りが叶いやすい整形地! 無料のプラン作成承ります!「藤の牛島」駅徒歩13分!

  • 埼玉県春日部市粕壁東6丁目 2480万円

    2480万円

    (坪単価:53.26万円)

    土地面積 153.96m2
    用途地域 1種住居
    建ぺい率 60%
    容積率 200%
    建築条件 なし
    • 最寄り駅東武鉄道野田線 藤の牛島駅 徒歩13分
    • 東武伊勢崎・大師線 春日部駅 徒歩26分
    その他の交通
    住所埼玉県春日部市粕壁東6丁目
    • 建築条件なし
    • 更地
    • 平坦地
    • 本下水
    • 都市ガス
    【4区画】土地面積約46.5坪!自由設計で夢のマイホームはいかがでしょうか! お好きなハウスメーカーで建築可能です!南東向きで陽当たり良好! 建築士による無料のプラン作成承ります!

  • 埼玉県春日部市粕壁東6丁目 2580万円

    2580万円

    (坪単価:53.96万円)

    土地面積 158.1m2
    用途地域 1種住居
    建ぺい率 60%
    容積率 200%
    建築条件 なし
    • 最寄り駅東武鉄道野田線 藤の牛島駅 徒歩13分
    • 東武伊勢崎・大師線 春日部駅 徒歩26分
    その他の交通
    住所埼玉県春日部市粕壁東6丁目
    • 建築条件なし
    • 更地
    • 平坦地
    • 本下水
    • 都市ガス
    【3区画】土地面積約47.8坪!自由設計で夢のマイホームはいかがでしょうか! お好きなハウスメーカーで建築可能です!南東向きで陽当たり良好! 希望の間取りが叶いやすい整形地!無料のプラン作成承ります!

  • 埼玉県春日部市粕壁東6丁目 2580万円

    2580万円

    (坪単価:54.13万円)

    土地面積 157.59m2
    用途地域 1種住居
    建ぺい率 60%
    容積率 200%
    建築条件 なし
    • 最寄り駅東武鉄道野田線 藤の牛島駅 徒歩13分
    • 東武伊勢崎・大師線 春日部駅 徒歩26分
    その他の交通
    住所埼玉県春日部市粕壁東6丁目
    • 建築条件なし
    • 更地
    • 平坦地
    • 本下水
    • 都市ガス
    【1区画】土地面積約47.6坪!自由設計で夢のマイホームはいかがでしょうか! お好きなハウスメーカーで建築可能です!南東向きで陽当たり良好! 希望の間取りが叶いやすい整形地!無料のプラン作成承ります!

  • 埼玉県春日部市粕壁東6丁目 2580万円

    2580万円

    (坪単価:54.15万円)

    土地面積 157.53m2
    用途地域 1種住居
    建ぺい率 60%
    容積率 200%
    建築条件 なし
    • 最寄り駅東武鉄道野田線 藤の牛島駅 徒歩13分
    • 東武伊勢崎・大師線 春日部駅 徒歩26分
    その他の交通
    住所埼玉県春日部市粕壁東6丁目
    • 建築条件なし
    • 更地
    • 平坦地
    • 本下水
    • 都市ガス
    【2区画】土地面積約47.6坪!自由設計で夢のマイホームはいかがでしょうか! お好きなハウスメーカーで建築可能です!南東向きで陽当たり良好! 希望の間取りが叶いやすい整形地!無料のプラン作成承ります!

  • 埼玉県春日部市粕壁東6丁目 1980万円

    1980万円

    (坪単価:46.76万円)

    土地面積 139.99m2
    用途地域 1種住居
    建ぺい率 60%
    容積率 200%
    建築条件 なし
    • 最寄り駅東武鉄道野田線 藤の牛島駅 徒歩13分
    • 東武伊勢崎・大師線 春日部駅 徒歩25分
    その他の交通
    住所埼玉県春日部市粕壁東6丁目
    • 建築条件なし
    • 更地
    • 平坦地
    • 本下水
    • 都市ガス
    ご見学にあわせて無料の外部FP相談をご利用頂けます。マイホーム購入だけでなく、老後の資金計画・お子様の教育資金等のライフシュミレーションを考慮した上で、無理のない返済計画をご提案いたします。

  • 埼玉県春日部市粕壁東6丁目 1980万円

    1980万円

    (坪単価:44.73万円)

    土地面積 146.35m2
    用途地域 1種住居
    建ぺい率 60%
    容積率 200%
    建築条件 なし
    • 最寄り駅東武鉄道野田線 藤の牛島駅 徒歩13分
    • 東武伊勢崎・大師線 春日部駅 徒歩25分
    その他の交通
    住所埼玉県春日部市粕壁東6丁目
    • 建築条件なし
    • 更地
    • 平坦地
    • 本下水
    • 都市ガス
    ご見学にあわせて無料の外部FP相談をご利用頂けます。マイホーム購入だけでなく、老後の資金計画・お子様の教育資金等のライフシュミレーションを考慮した上で、無理のない返済計画をご提案いたします。

  • 埼玉県春日部市粕壁東6丁目 1980万円

    1980万円

    (坪単価:45.39万円)

    土地面積 144.21m2
    用途地域 1種住居
    建ぺい率 60%
    容積率 200%
    建築条件 なし
    • 最寄り駅東武鉄道野田線 藤の牛島駅 徒歩13分
    • 東武伊勢崎・大師線 春日部駅 徒歩25分
    その他の交通
    住所埼玉県春日部市粕壁東6丁目
    • 建築条件なし
    • 更地
    • 平坦地
    • 本下水
    • 都市ガス
    ご見学にあわせて無料の外部FP相談をご利用頂けます。マイホーム購入だけでなく、老後の資金計画・お子様の教育資金等のライフシュミレーションを考慮した上で、無理のない返済計画をご提案いたします。

  • 埼玉県春日部市粕壁東6丁目 2180万円

    2180万円

    (坪単価:55.26万円)

    土地面積 130.42m2
    用途地域 1種住居
    建ぺい率 60%
    容積率 200%
    建築条件 なし
    • 最寄り駅東武鉄道野田線 藤の牛島駅 徒歩13分
    • 東武伊勢崎・大師線 春日部駅 徒歩25分
    その他の交通
    住所埼玉県春日部市粕壁東6丁目
    • 建築条件なし
    • 更地
    • 平坦地
    • 本下水
    • 都市ガス
    ご見学にあわせて無料の外部FP相談をご利用頂けます。マイホーム購入だけでなく、老後の資金計画・お子様の教育資金等のライフシュミレーションを考慮した上で、無理のない返済計画をご提案いたします。

dカードGOLD入会&利用さらに対象公共料金などすべて支払いで合計最大dポイント(期間・用途限定)7000ポイントプレゼント

  • 埼玉県春日部市粕壁東6丁目 2180万円

    2180万円

    (坪単価:54.98万円)

    土地面積 131.09m2
    用途地域 1種住居
    建ぺい率 60%
    容積率 200%
    建築条件 なし
    • 最寄り駅東武鉄道野田線 藤の牛島駅 徒歩13分
    • 東武伊勢崎・大師線 春日部駅 徒歩25分
    その他の交通
    住所埼玉県春日部市粕壁東6丁目
    • 建築条件なし
    • 更地
    • 平坦地
    • 本下水
    • 都市ガス
    ご見学にあわせて無料の外部FP相談をご利用頂けます。マイホーム購入だけでなく、老後の資金計画・お子様の教育資金等のライフシュミレーションを考慮した上で、無理のない返済計画をご提案いたします。

  • 埼玉県春日部市粕壁東6丁目 2180万円

    2180万円

    (坪単価:57.25万円)

    土地面積 125.9m2
    用途地域 1種住居
    建ぺい率 60%
    容積率 200%
    建築条件 なし
    • 最寄り駅東武鉄道野田線 藤の牛島駅 徒歩13分
    • 東武伊勢崎・大師線 春日部駅 徒歩25分
    その他の交通
    住所埼玉県春日部市粕壁東6丁目
    • 建築条件なし
    • 更地
    • 平坦地
    • 本下水
    • 都市ガス
    ご見学にあわせて無料の外部FP相談をご利用頂けます。マイホーム購入だけでなく、老後の資金計画・お子様の教育資金等のライフシュミレーションを考慮した上で、無理のない返済計画をご提案いたします。

  • 埼玉県春日部市粕壁東6丁目 2580万円

    2580万円

    (坪単価:54.15万円)

    土地面積 157.53m2
    用途地域 1種住居
    建ぺい率 60%
    容積率 200%
    建築条件 なし
    • 最寄り駅東武鉄道野田線 藤の牛島駅 徒歩13分
    • 東武伊勢崎・大師線 春日部駅 徒歩25分
    その他の交通
    住所埼玉県春日部市粕壁東6丁目
    • 建築条件なし
    • 更地
    • 平坦地
    • 本下水
    • 都市ガス
    ご見学にあわせて無料の外部FP相談をご利用頂けます。マイホーム購入だけでなく、老後の資金計画・お子様の教育資金等のライフシュミレーションを考慮した上で、無理のない返済計画をご提案いたします。

  • 埼玉県春日部市粕壁東6丁目 2580万円

    2580万円

    (坪単価:53.95万円)

    土地面積 158.1m2
    用途地域 1種住居
    建ぺい率 60%
    容積率 200%
    建築条件 なし
    • 最寄り駅東武鉄道野田線 藤の牛島駅 徒歩13分
    • 東武伊勢崎・大師線 春日部駅 徒歩25分
    その他の交通
    住所埼玉県春日部市粕壁東6丁目
    • 建築条件なし
    • 更地
    • 平坦地
    • 本下水
    • 都市ガス
    ご見学にあわせて無料の外部FP相談をご利用頂けます。マイホーム購入だけでなく、老後の資金計画・お子様の教育資金等のライフシュミレーションを考慮した上で、無理のない返済計画をご提案いたします。

  • 埼玉県春日部市粕壁東6丁目 2580万円

    2580万円

    (坪単価:54.13万円)

    土地面積 157.59m2
    用途地域 1種住居
    建ぺい率 60%
    容積率 200%
    建築条件 なし
    • 最寄り駅東武鉄道野田線 藤の牛島駅 徒歩13分
    • 東武伊勢崎・大師線 春日部駅 徒歩25分
    その他の交通
    住所埼玉県春日部市粕壁東6丁目
    • 建築条件なし
    • 更地
    • 平坦地
    • 本下水
    • 都市ガス
    ご見学にあわせて無料の外部FP相談をご利用頂けます。マイホーム購入だけでなく、老後の資金計画・お子様の教育資金等のライフシュミレーションを考慮した上で、無理のない返済計画をご提案いたします。

  • 埼玉県春日部市粕壁東6丁目 2480万円

    2480万円

    (坪単価:53.25万円)

    土地面積 153.96m2
    用途地域 1種住居
    建ぺい率 60%
    容積率 200%
    建築条件 なし
    • 最寄り駅東武鉄道野田線 藤の牛島駅 徒歩14分
    • 東武伊勢崎・大師線 春日部駅 徒歩25分
    その他の交通
    住所埼玉県春日部市粕壁東6丁目
    • 建築条件なし
    • 更地
    • 平坦地
    • 本下水
    • 都市ガス
    ご見学にあわせて無料の外部FP相談をご利用頂けます。マイホーム購入だけでなく、老後の資金計画・お子様の教育資金等のライフシュミレーションを考慮した上で、無理のない返済計画をご提案いたします。

  • 埼玉県春日部市西金野井 1380万円

    1380万円

    (坪単価:32.6万円)

    土地面積 140.01m2
    用途地域 1種住居
    建ぺい率 60%
    容積率 200%
    建築条件 なし
    • 最寄り駅東武鉄道野田線 南桜井駅 徒歩17分
    その他の交通
    住所埼玉県春日部市西金野井
    • 建築条件なし
    全7区画の分譲地!南桜井駅まで徒歩17分!

  • 埼玉県春日部市西金野井 1480万円

    1480万円

    (坪単価:34.7万円)

    土地面積 141.2m2
    用途地域 1種住居
    建ぺい率 60%
    容積率 200%
    建築条件 なし
    • 最寄り駅東武鉄道野田線 南桜井駅 徒歩17分
    その他の交通
    住所埼玉県春日部市西金野井
    • 建築条件なし
    全7区画の分譲地!南桜井駅まで徒歩17分!

  • 埼玉県春日部市西金野井 1830万円

    1830万円

    (坪単価:36.6万円)

    土地面積 165.32m2
    用途地域 1種住居
    建ぺい率 60%
    容積率 200%
    建築条件 なし
    • 最寄り駅東武鉄道野田線 南桜井駅 徒歩17分
    その他の交通
    住所埼玉県春日部市西金野井
    • 建築条件なし
    • 南道路
    • 角地
    全7区画の分譲地!南桜井駅まで徒歩17分!

  • 埼玉県春日部市藤塚 1980万円

    1980万円

    (坪単価:39.09万円)

    土地面積 167.47m2
    用途地域 1種住居
    建ぺい率 60%
    容積率 200%
    建築条件 なし
    • 最寄り駅東武伊勢崎・大師線 一ノ割駅 徒歩17分
    • 東武鉄道野田線 藤の牛島駅 徒歩19分
    その他の交通
    住所埼玉県春日部市藤塚
    • 建築条件なし
    • 更地
    • 本下水
    • 都市ガス
    • 角地
    <選べるe-GIFT10000円分>初来場&アンケート回答でプレゼント

地域

春日部市

変更する

条件

指定なし

変更する

【ドコモ・ファイナンス】ドコモ・ファイナンスのフラット35 ずっと!固定金利の安心 詳細はこちら!

条件を追加する

お気に入りの物件を見逃さない!

プッシュ通知で最新の物件情報が届く

goo住宅・不動産アプリ

goo住宅・不動産
アプリ

App Storeからダウンロード
Google Playで手に入れよう

春日部市の住みやすさ情報

春日部市ってどんなところ?

高度経済成長期前後に都心のベッドタウンとして急速に発展した春日部市は、人気漫画の舞台としても有名で、キャラクターが街の盛り上げに一役買っています。
商業施設が充実しているのは春日部駅周辺ですが、北春日部駅周辺も再開発中で、医療や福祉、商業などの充実が期待できます。
市内には東武伊勢崎線と東武野田線が通っているほか、国道4号・16号、圏央道が通っているので、電車でも車でも移動がラクです。
街ガイド
高野 友樹
公認不動産コンサルティングマスター/相続対策専門士/宅地建物取引士/賃貸不動産経営管理士

不動産会社にて600件以上の仲介、6000戸の収益物件管理を経験。現在は株式会社高野不動産コンサルティングを設立し、不動産コンサルティングを行う。

一人暮らしの人に聞いた
春日部市の住みやすさTOP10

  1. 1スーパーやドラッグストアが充実している
  2. 2住居費(家賃や物件購入費)が安い
  3. 3必要なものが近場でそろう

夫婦・カップルに聞いた
春日部市の住みやすさTOP10

  1. 1スーパーやドラッグストアが充実している
  2. 2必要なものが近場でそろう
  3. 3車を快適に利用できる

ファミリーに聞いた
春日部市の住みやすさTOP10

  1. 1都心に近い
  2. 2スーパーやドラッグストアが充実している
  3. 3必要なものが近場でそろう

※対象エリアに過去5年以内に住んだことのある10代~60代の人を対象としてアンケートを実施し、独自に集計しています。

暮らしデータ

春日部市の人口などの統計情報

世帯数 97528世帯
人口総数 230687人
転入者数 9108人
転入率(人口1000人当たり)
39.48人
転出者数 8195人
転出率(人口1000人当たり)
35.52人
土地平均価格 住宅地 81400円/m2
商業地 173400円/m2

春日部市の結婚・育児の助成金

出産・子育て
子育て関連の独自の取り組み ファミリー・サポート事業(子育て中の人が、子どもを一時的に預かってもらえる制度。既に小学生以下の子ども2人以上と同居しており、3人目以降の子どもを出産した家庭に、ファミリー・サポート無料券を10時間分交付。利用できるのは生後6ヶ月から小学生の児童で、有効期限は発行日より1年間。ただし、有効期限内でも対象となる第1子が小学校を卒業してしまう場合は、その年の3月31日までとなる。市外からの転入者も同様に対象となる)。
出産祝い あり
備考
記念樹苗木を贈呈。
公立保育所数 11ヶ所
0歳児保育を実施 9ヶ所
私立保育所数 20ヶ所
0歳児保育を実施 19ヶ所
保育所入所待機児童数 11人
認定こども園数 7園
預かり保育実施園数-公立 -
預かり保育実施園数-私立 12園
学校給食 【小学校】完全給食【中学校】完全給食
公立中学校の学校選択制 一部実施
子ども・学生等医療費助成<通院>対象年齢 18歳3月末まで
子ども・学生等医療費助成<入院>対象年齢 18歳3月末まで

春日部市の治安・ごみ収集情報

公共料金・インフラ
ガス料金(22m3使用した場合の月額) 東彩ガス株式会社(越谷・春日部地区)4893円
水道料金(口径20mmで20m3の月額) 春日部市2684円
下水道料金(20m3を使用した場合の月額) 春日部市2376円
下水道普及率 90.1%
安心・安全
建物火災出火件数 29件
人口10000人当たり 1.26件
刑法犯認知件数 1753件
人口1000人当たり 7.63件
ハザード・防災マップ あり
医療
一般病院総数 12ヶ所
一般診療所総数 130ヶ所
小児科医師数 29人
小児人口10000人当たり
12.49人
産婦人科医師数 9人
15~49歳女性人口1万人当たり
2.18人
介護保険料基準額(月額) 6300円
ごみ
家庭ごみ収集(可燃ごみ) 無料
備考
ごみ集積所に排出された可燃ごみについては無料で収集。ごみ処理施設への直接搬入については危険が伴うため原則禁止だが、搬入された場合は10kgごとに210円の料金を徴収。
家庭ごみの分別方式 4分別18種〔可燃ごみ 不燃ごみ(不燃ごみ、小型家電) 資源物(びん、ペットボトル、かん、新聞紙・チラシ、雑誌、段ボール、雑紙、紙パック、古繊維類) 有害・危険ごみ(乾電池、水銀体温計、蛍光灯、カセット式ガスボンベ・スプレー缶、使い捨てライター、リチウムイオン電池製品)〕
家庭ごみの戸別収集 一部実施(【春日部市訪問収集事業】介助又は介護を必要とする高齢者および障害者世帯、その他特に必要と認める世帯で、自ら廃棄物等を所定の場所に持ち出すことが困難な世帯のみ)
粗大ごみ収集 あり
備考
一辺の長さが50cmを超え、2m未満の大型ごみが対象。戸別収集の場合は事前申込制。有料(1品あたり500円。スプリングマットレスは2,000円。多量排出の場合は2トン車1台5,000円)。直接持込の場合は事前申込不要。有料(10kgごとに210円。スプリングマットレスは1品につき2,000円を加算)。
生ごみ処理機助成金制度 なし
上限金額 -
上限比率 -

春日部市の住まいの給付金

暮らしデータ提供元:生活ガイド.com
※行政機関により公表していない地域及びデータがございます。東京23区以外の政令指定都市は、市全体のデータとして表示しています。
※提供データには細心の注意を払っておりますが、調査後に変更がある場合があります。 最新の情報につきましては各市区役所までお問い合わせいただくか、自治体HPなどをご確認ください。

価格相場

更新日:

春日部市の価格相場

広さ 価格相場 物件
50㎡~80㎡ 719万円 物件一覧へ
80㎡~100㎡ 1004万円 物件一覧へ
100㎡~150㎡ 1659万円 物件一覧へ
150㎡~200㎡ 1973万円 物件一覧へ
200㎡以上 2632万円 物件一覧へ

周辺エリアの価格相場

エリア 価格相場 物件
さいたま市岩槻区 - 物件一覧へ
白岡市 - 物件一覧へ
南埼玉郡宮代町 - 物件一覧へ
北葛飾郡杉戸町 - 物件一覧へ
北葛飾郡松伏町 - 物件一覧へ
※このデータはgoo住宅・不動産に掲載されている土地の平均価格(管理費・駐車場代などを除く)を算出したものです。ただし5戸以上の掲載があるものについてのみ対象とします。
※周辺エリアの価格相場は広さ50㎡~80㎡の平均価格(管理費・駐車場代などを除く)を算出したものです。

埼玉県の人気の街アクセスランキング(土地)

駅別ランキング

エリア別ランキング

路線別ランキング

他の地域のランキングをもっと見る

※このランキングは2025年11月01日~30日における各ページのアクセス数から算出しています。

住まいのコラム

春日部市のおすすめ新築一戸建て

建築条件付土地
スマートハイムシティ春日部【セキスイハイム】

  • スマートハイムシティ春日部【セキスイハイム】

    2870万円~3320万円

    ※土地価格のみ

    • 最寄り駅東武伊勢崎線 春日部駅 徒歩15分
    • 東武野田線 春日部駅 徒歩15分
    • 東武野田線 八木崎駅 徒歩17分
    住所埼玉県春日部市谷原2

建築条件付土地
増富(豊春駅) 1490万円

  • 増富(豊春駅) 1490万円

    1490万円

    ※土地価格のみ

    • 最寄り駅東武野田線 豊春駅 徒歩16分
    住所埼玉県春日部市増富

建築条件付土地
コモンステージ春日部中央【積水ハウス】

  • コモンステージ春日部中央【積水ハウス】

    2250万円~3150万円

    ※土地価格のみ

    • 最寄り駅東武野田線 春日部駅 徒歩19分
    • 東武野田線 八木崎駅 徒歩9分
    • 東武野田線 豊春駅 徒歩23分
    住所埼玉県春日部市中央3

建築条件付土地
セレクトタウン春日部緑町【積水ハウス】

  • セレクトタウン春日部緑町【積水ハウス】

    1530万円~2290万円

    ※土地価格のみ

    • 最寄り駅東武野田線 春日部駅 バス8分/人道橋 停歩1分
    • 東武野田線 春日部駅 徒歩25分
    • 東武野田線 藤の牛島駅 徒歩12分
    住所埼玉県春日部市緑町2

建築条件付土地
セレクトタウン春日部一ノ割【積水ハウス】

  • セレクトタウン春日部一ノ割【積水ハウス】

    1980万円

    ※土地価格のみ

    • 最寄り駅東武伊勢崎線 一ノ割駅 徒歩9分
    • 東武野田線 春日部駅 徒歩35分
    • 東武伊勢崎線 武里駅 徒歩28分
    住所埼玉県春日部市南4
もっと見る

その他の条件から探す

  1. goo住宅・不動産
  2. 土地
  3. 埼玉県
  4. 春日部市の土地 物件一覧

注目のコンテンツ

  • 土地活用

お役立ち情報