RSS

川崎市幸区(神奈川県)の賃貸店舗・賃貸事務所・月極駐車場 物件一覧

神奈川県川崎市幸区の貸店舗、貸事務所、月極駐車場などの店舗・事業用物件をご紹介します。貸オフィス、貸ビル、貸倉庫、貸工場などの店舗・事業用物件情報を探すならgoo住宅・不動産。賃料・広さ・間取り・写真・人気のこだわり条件から物件を簡単検索。理想の物件探しをgoo住宅・不動産がサポートします。

探したい物件のエリア・検索条件を変更して再検索

エリア
検索条件
199 並び替え
チェックした物件を一括で
選択 物件タイプ
画像
所在地/交通
(駅/バス 所要時間)
賃料
管理費等
礼金/敷金
保証金/敷引・償却
使用部分面積
土地面積
築年月
築年数
new

メイフェアー鹿島田No.2 店舗

  • 貸店舗・事務所
  • メイフェアー鹿島田No.2 店舗
    間取り図
神奈川県川崎市幸区鹿島田3丁目
JR南武線 平間駅 徒歩4分
湘南新宿ライン(宇都宮~逗子) 新川崎駅 徒歩11分
JR南武線 鹿島田駅 徒歩11分
15.4
万円

なし
1.1ヶ月 / なし
3ヶ月 / 解約時1.10ヶ月償却
50m2
-
1986年3月(築39年10ヶ月)
  • 1階
  • 即引き渡し可
  • 駐車場(近隣含)
  • 駅から徒歩5分以内

土谷ビル

  • 貸店舗・事務所
  • 土谷ビル
    間取り図
神奈川県川崎市幸区鹿島田1丁目
JR南武線 鹿島田駅 徒歩1分
湘南新宿ライン(宇都宮~逗子) 新川崎駅 徒歩6分
JR横須賀線 新川崎駅 徒歩6分
28.27
万円

16,500円
2ヶ月 / なし
5ヶ月 / 解約時1.00ヶ月償却
62.55m2
-
2000年3月(築25年10ヶ月)
  • 飲食店可
  • 駅から徒歩1分以内
  • 2階以上

神奈川県川崎市幸区南幸町3丁目

  • 貸店舗・事務所
  • 神奈川県川崎市幸区南幸町3丁目
    間取り図
神奈川県川崎市幸区南幸町3丁目
JR南武線 尻手駅 徒歩2分
JR南武線 矢向駅 徒歩14分
JR東海道本線 川崎駅 徒歩17分
14.3
万円

-
1.1ヶ月 / 3ヶ月
なし / -
58.11m2
-
1981年6月(築44年7ヶ月)
  • 1階
  • 駅から徒歩5分以内

神奈川県川崎市幸区鹿島田1丁目

  • 貸店舗(建物一部)
  • 神奈川県川崎市幸区鹿島田1丁目
    間取り図
神奈川県川崎市幸区鹿島田1丁目
JR南武線 鹿島田駅 徒歩2分
JR横須賀線 新川崎駅 徒歩6分
JR南武線 平間駅 徒歩17分
22
万円

-
3ヶ月 / なし
8ヶ月 / 更新時15.00%償却
47.19m2
-
1977年5月(築48年8ヶ月)
  • 1階
  • 即引き渡し可
  • 駅から徒歩5分以内

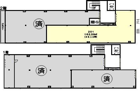
神奈川県川崎市幸区南幸町3丁目

  • 貸店舗(建物一部)
  • 神奈川県川崎市幸区南幸町3丁目
    間取り図
神奈川県川崎市幸区南幸町3丁目
JR南武線 尻手駅 徒歩3分
JR南武線 矢向駅 徒歩15分
JR南武線 川崎駅 徒歩15分
71.2
万円

なし
2ヶ月 / 4ヶ月
なし / 30%
162.39m2
-
2024年9月(築1年4ヶ月)
  • 即引き渡し可
  • 飲食店可
  • 築3年以内
  • 駅から徒歩5分以内
  • 2階以上
  • エレベーター

神奈川県川崎市幸区大宮町

  • 貸店舗・事務所
  • 神奈川県川崎市幸区大宮町
    間取り図
神奈川県川崎市幸区大宮町
JR京浜東北・根岸線 川崎駅 徒歩6分
24.2
万円

なし
1ヶ月 / 5ヶ月
なし / -
33.17m2
-
2024年8月(築1年5ヶ月)
  • 1階
  • 即引き渡し可
  • 駐車場(近隣含)
  • 築3年以内
  • 駅から徒歩7分以内

サニーライフ日吉

  • 貸店舗・事務所
  • サニーライフ日吉
    間取り図
神奈川県川崎市幸区矢上
東急東横線 元住吉駅 バス5分/「日吉中学校前」バス停 停歩2分
49.5
万円

-
1ヶ月 / 240万円
なし / -
157.48m2
-
2020年3月(築5年10ヶ月)
  • 1階
  • 即引き渡し可
  • 飲食店可
  • 築10年以内

ラ・ベルージュ

  • 貸店舗・事務所
  • ラ・ベルージュ
    間取り図
神奈川県川崎市幸区下平間
JR南武線 鹿島田駅 徒歩8分
JR横須賀線 新川崎駅 徒歩13分
JR南武線 平間駅 徒歩16分
30
万円

3,300円
1ヶ月 / なし
6ヶ月 / 解約時1.00ヶ月償却
90.58m2
-
2004年9月(築21年4ヶ月)
  • 1階
  • 駅から徒歩10分以内

アリュール新川崎機械式駐車場

  • 貸駐車場
  • アリュール新川崎機械式駐車場
神奈川県川崎市幸区古市場
JR南武線 鹿島田駅 徒歩9分
湘南新宿ライン(宇都宮~逗子) 新川崎駅 徒歩12分
1.87
万円

-
なし / なし
なし / -
-
-
2002年1月(築23年12ヶ月)
  • 駅から徒歩10分以内

アリュール新川崎駐車場

  • 貸駐車場
  • アリュール新川崎駐車場
神奈川県川崎市幸区古市場
JR南武線 鹿島田駅 徒歩9分
湘南新宿ライン(宇都宮~逗子) 新川崎駅 徒歩12分
1.98
万円

-
なし / なし
なし / -
-
-
2002年1月(築23年12ヶ月)
  • 即引き渡し可
  • 駅から徒歩10分以内

神奈川県川崎市幸区南幸町2丁目

  • 貸駐車場
  • 神奈川県川崎市幸区南幸町2丁目
    間取り図
神奈川県川崎市幸区南幸町2丁目
JR南武線 川崎駅 徒歩9分
2.2
万円

-
なし / 1ヶ月
なし / -
-
-
1991年10月(築34年3ヶ月)
  • 即引き渡し可
  • 駅から徒歩10分以内
  • 2階以上

BIZリブネス川崎塚越

  • 貸事務所
  • BIZリブネス川崎塚越
    間取り図
神奈川県川崎市幸区塚越4丁目
JR南武線 矢向駅 徒歩9分
JR南武線 鹿島田駅 徒歩17分
湘南新宿ライン(宇都宮~逗子) 新川崎駅 徒歩20分
367.4
万円

132,000円
1ヶ月 / 6ヶ月
なし / 1ヶ月
748.81m2
-
2000年1月(築25年12ヶ月)
  • 駅から徒歩10分以内
  • 2階以上
  • エレベーター

BIZリブネス川崎塚越

  • 貸工場
  • BIZリブネス川崎塚越
    間取り図
神奈川県川崎市幸区塚越4丁目
JR南武線 矢向駅 徒歩9分
JR南武線 鹿島田駅 徒歩17分
湘南新宿ライン(宇都宮~逗子) 新川崎駅 徒歩20分
367.4
万円

132,000円
1ヶ月 / 6ヶ月
なし / 1ヶ月
748.81m2
-
2000年1月(築25年12ヶ月)
  • 駅から徒歩10分以内
  • 2階以上
  • エレベーター

BIZリブネス川崎塚越

  • 貸倉庫
  • BIZリブネス川崎塚越
    間取り図
神奈川県川崎市幸区塚越4丁目
JR南武線 矢向駅 徒歩9分
JR南武線 鹿島田駅 徒歩17分
湘南新宿ライン(宇都宮~逗子) 新川崎駅 徒歩20分
367.4
万円

132,000円
1ヶ月 / 6ヶ月
なし / 1ヶ月
748.81m2
-
2000年1月(築25年12ヶ月)
  • 駅から徒歩10分以内
  • 2階以上
  • エレベーター

BIZリブネス川崎塚越

  • 貸事務所
  • BIZリブネス川崎塚越
    間取り図
神奈川県川崎市幸区塚越4丁目
JR南武線 矢向駅 徒歩9分
JR南武線 鹿島田駅 徒歩17分
湘南新宿ライン(宇都宮~逗子) 新川崎駅 徒歩20分
367.4
万円

132,000円
1ヶ月 / 6ヶ月
なし / 1ヶ月
748.81m2
-
2000年1月(築25年12ヶ月)
  • 駅から徒歩10分以内
  • 2階以上
  • エレベーター

BIZリブネス川崎塚越

  • 貸事務所
  • BIZリブネス川崎塚越
    間取り図
神奈川県川崎市幸区塚越4丁目
JR南武線 矢向駅 徒歩9分
JR南武線 鹿島田駅 徒歩17分
湘南新宿ライン(宇都宮~逗子) 新川崎駅 徒歩20分
435.6
万円

143,000円
1ヶ月 / 6ヶ月
なし / 1ヶ月
878.62m2
-
2000年1月(築25年12ヶ月)
  • 駅から徒歩10分以内
  • 2階以上
  • エレベーター

BIZリブネス川崎塚越

  • 貸工場
  • BIZリブネス川崎塚越
    間取り図
神奈川県川崎市幸区塚越4丁目
JR南武線 矢向駅 徒歩9分
JR南武線 鹿島田駅 徒歩17分
湘南新宿ライン(宇都宮~逗子) 新川崎駅 徒歩20分
435.6
万円

143,000円
1ヶ月 / 6ヶ月
なし / 1ヶ月
878.62m2
-
2000年1月(築25年12ヶ月)
  • 駅から徒歩10分以内
  • 2階以上
  • エレベーター

BIZリブネス川崎塚越

  • 貸倉庫
  • BIZリブネス川崎塚越
    間取り図
神奈川県川崎市幸区塚越4丁目
JR南武線 矢向駅 徒歩9分
JR南武線 鹿島田駅 徒歩17分
湘南新宿ライン(宇都宮~逗子) 新川崎駅 徒歩20分
435.6
万円

143,000円
1ヶ月 / 6ヶ月
なし / 1ヶ月
878.62m2
-
2000年1月(築25年12ヶ月)
  • 駅から徒歩10分以内
  • 2階以上
  • エレベーター

BIZリブネス川崎塚越

  • 貸事務所
  • BIZリブネス川崎塚越
    間取り図
神奈川県川崎市幸区塚越4丁目
JR南武線 矢向駅 徒歩9分
JR南武線 鹿島田駅 徒歩17分
湘南新宿ライン(宇都宮~逗子) 新川崎駅 徒歩20分
435.6
万円

143,000円
1ヶ月 / 6ヶ月
なし / 1ヶ月
878.62m2
-
2000年1月(築25年12ヶ月)
  • 駅から徒歩10分以内
  • 2階以上
  • エレベーター
チェックした物件を一括で

神奈川県川崎市幸区中幸町4丁目

  • 貸駐車場
  • 神奈川県川崎市幸区中幸町4丁目
    間取り図
神奈川県川崎市幸区中幸町4丁目
JR京浜東北・根岸線 川崎駅 徒歩10分
JR南武線 尻手駅 徒歩13分
京急本線 京急川崎駅 徒歩13分
2.2
万円

なし
なし / 1ヶ月
なし / -
-
-
-
  • 即引き渡し可
  • 駅から徒歩10分以内

ニチエーイン川崎25

  • 貸店舗・事務所
  • ニチエーイン川崎25
神奈川県川崎市幸区南幸町3丁目
JR東海道本線 川崎駅 徒歩10分
JR京浜東北・根岸線 川崎駅 徒歩10分
JR南武線 川崎駅 徒歩10分
46.2
万円

46,200円
1ヶ月 / なし
6ヶ月 / 解約時20.00%償却
162.45m2
-
1993年5月(築32年8ヶ月)
  • 即引き渡し可
  • 駅から徒歩10分以内
  • 2階以上
  • エレベーター

鹿島田ハウス 駐車場

  • 貸駐車場
  • 鹿島田ハウス 駐車場
    間取り図
神奈川県川崎市幸区古川町
JR南武線 鹿島田駅 徒歩11分
湘南新宿ライン(宇都宮~逗子) 新川崎駅 徒歩14分
JR横須賀線 新川崎駅 徒歩14分
2.09
万円

なし
1.1ヶ月 / 1.1ヶ月
なし / -
-
-
-
  • 即引き渡し可
  • 駅から徒歩15分以内

グリーンコート

  • 貸駐車場
  • グリーンコート
    間取り図
神奈川県川崎市幸区東小倉
JR南武線 矢向駅 徒歩12分
JR南武線 鹿島田駅 徒歩13分
湘南新宿ライン(宇都宮~逗子) 新川崎駅 徒歩12分
1.32
万円

-
なし / なし
なし / -
-
-
-
  • 即引き渡し可
  • 駅から徒歩15分以内

コーポ幸パーキング

  • 貸駐車場
  • コーポ幸パーキング
    間取り図
神奈川県川崎市幸区小向町
JR京浜東北・根岸線 川崎駅 バス10分/「小向交番前」バス停 停歩2分
1.8
万円

なし
1ヶ月 / なし
なし / -
-
-
-
  • 即引き渡し可

(仮称)幸区矢上PJ

  • 貸店舗・事務所
  • (仮称)幸区矢上PJ
    間取り図
神奈川県川崎市幸区矢上
JR横須賀線 新川崎駅 徒歩12分
東急東横線 元住吉駅 徒歩17分
49.5
万円

-
1ヶ月 / 240万円
なし / -
157.48m2
-
2020年3月(築5年10ヶ月)
  • 1階
  • 即引き渡し可
  • 飲食店可
  • 築10年以内
  • 駅から徒歩15分以内

関ビルパーキング

  • 貸駐車場
  • 関ビルパーキング
    間取り図
神奈川県川崎市幸区古市場
JR南武線 鹿島田駅 徒歩14分
湘南新宿ライン(宇都宮~逗子) 新川崎駅 徒歩17分
JR南武線 平間駅 徒歩20分
2
万円

-
なし / なし
なし / -
-
-
-
  • 駅から徒歩15分以内

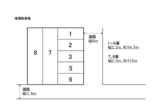
滝澤駐車場

  • 貸駐車場
  • 滝澤駐車場
    間取り図
神奈川県川崎市幸区古市場2丁目
JR南武線 鹿島田駅 徒歩15分
2.09
万円

-
なし / 1ヶ月
なし / -
-
-
-
  • 駅から徒歩15分以内

さいわいパーキング

  • 貸駐車場
  • さいわいパーキング
    間取り図
神奈川県川崎市幸区古川町
JR南武線 矢向駅 徒歩15分
JR南武線 鹿島田駅 徒歩18分
2.53
万円

なし
なし / 2.3万円
なし / -
-
-
-
  • 駅から徒歩15分以内

グランシティユーロレジデンス川崎駐車場

  • 貸駐車場
  • グランシティユーロレジデンス川崎駐車場
    間取り図
神奈川県川崎市幸区遠藤町
JR南武線 川崎駅 徒歩18分
1.76
万円

-
なし / 1ヶ月
なし / -
-
-
-
  • 即引き渡し可
  • 駅から徒歩20分以内

愛光ビル

  • 貸店舗(建物一部)
  • 愛光ビル
    間取り図
神奈川県川崎市幸区遠藤町
JR南武線 川崎駅 徒歩19分
12.65
万円

なし
なし / 2ヶ月
なし / 1ヶ月
39.6m2
-
1975年10月(築50年3ヶ月)
  • 1階
  • 駅から徒歩20分以内

KSレンタル倉庫

  • 貸倉庫
  • KSレンタル倉庫
    間取り図
神奈川県川崎市幸区鹿島田3丁目
JR南武線 平間駅 徒歩3分
湘南新宿ライン(宇都宮~逗子) 新川崎駅 徒歩12分
JR南武線 鹿島田駅 徒歩12分
3.85
万円

-
なし / なし
なし / -
9.5m2
-
1964年10月(築61年3ヶ月)
  • 1階
  • 駅から徒歩5分以内

神奈川県川崎市幸区南幸町3丁目

  • 貸駐車場
  • 神奈川県川崎市幸区南幸町3丁目
    間取り図
神奈川県川崎市幸区南幸町3丁目
JR南武線 尻手駅 徒歩5分
JR南武線 川崎駅 徒歩15分
JR南武線 矢向駅 徒歩14分
0.35
万円

なし
なし / なし
なし / -
-
-
-
  • 即引き渡し可
  • 駅から徒歩5分以内

FK川崎駅前駐車場

  • 貸駐車場
  • FK川崎駅前駐車場
    間取り図
神奈川県川崎市幸区大宮町
JR南武線 川崎駅 徒歩6分
京急大師線 京急川崎駅 徒歩14分
JR南武線 八丁畷駅 徒歩15分
1.76
万円

-
1ヶ月 / なし
なし / -
-
-
-
  • 即引き渡し可
  • 駅から徒歩7分以内

神奈川県川崎市幸区南幸町2丁目

  • 貸駐車場
  • 神奈川県川崎市幸区南幸町2丁目
    間取り図
神奈川県川崎市幸区南幸町2丁目
JR南武線 川崎駅 徒歩9分
2.2
万円

-
なし / 1ヶ月
なし / -
-
-
1991年10月(築34年3ヶ月)
  • 即引き渡し可
  • 駅から徒歩10分以内
  • 2階以上

神奈川県川崎市幸区塚越4丁目

  • 貸事務所
  • 神奈川県川崎市幸区塚越4丁目
    間取り図
神奈川県川崎市幸区塚越4丁目
JR南武線 矢向駅 徒歩10分
JR南武線 鹿島田駅 徒歩17分
JR南武線 尻手駅 徒歩20分
319
万円

120,000円
なし / 6ヶ月
なし / -
735.59m2
3718m2
2001年1月(築24年12ヶ月)
  • 即引き渡し可
  • 駅から徒歩10分以内
  • 2階以上
  • エレベーター

神奈川県川崎市幸区塚越4丁目

  • 貸工場
  • 神奈川県川崎市幸区塚越4丁目
    間取り図
神奈川県川崎市幸区塚越4丁目
JR南武線 矢向駅 徒歩10分
JR南武線 鹿島田駅 徒歩17分
JR南武線 尻手駅 徒歩20分
319
万円

120,000円
なし / 6ヶ月
なし / -
735.59m2
3718m2
2001年1月(築24年12ヶ月)
  • 即引き渡し可
  • 駅から徒歩10分以内
  • 2階以上
  • エレベーター

神奈川県川崎市幸区塚越4丁目

  • 貸倉庫
  • 神奈川県川崎市幸区塚越4丁目
    間取り図
神奈川県川崎市幸区塚越4丁目
JR南武線 矢向駅 徒歩10分
JR南武線 鹿島田駅 徒歩17分
JR南武線 尻手駅 徒歩20分
319
万円

120,000円
なし / 6ヶ月
なし / -
735.59m2
3718m2
2001年1月(築24年12ヶ月)
  • 即引き渡し可
  • 駅から徒歩10分以内
  • 2階以上
  • エレベーター

神奈川県川崎市幸区塚越4丁目

  • 貸事務所
  • 神奈川県川崎市幸区塚越4丁目
    間取り図
神奈川県川崎市幸区塚越4丁目
JR南武線 矢向駅 徒歩10分
JR南武線 鹿島田駅 徒歩17分
JR南武線 尻手駅 徒歩20分
695
万円

275,000円
なし / 6ヶ月
なし / -
1536m2
1608.34m2
2001年1月(築24年12ヶ月)
  • 1階
  • 即引き渡し可
  • 駅から徒歩10分以内
  • エレベーター

神奈川県川崎市幸区塚越4丁目

  • 貸工場
  • 神奈川県川崎市幸区塚越4丁目
    間取り図
神奈川県川崎市幸区塚越4丁目
JR南武線 矢向駅 徒歩10分
JR南武線 鹿島田駅 徒歩17分
JR南武線 尻手駅 徒歩20分
695
万円

275,000円
なし / 6ヶ月
なし / -
1536m2
1608.34m2
2001年1月(築24年12ヶ月)
  • 1階
  • 即引き渡し可
  • 駅から徒歩10分以内
  • エレベーター

神奈川県川崎市幸区塚越4丁目

  • 貸倉庫
  • 神奈川県川崎市幸区塚越4丁目
    間取り図
神奈川県川崎市幸区塚越4丁目
JR南武線 矢向駅 徒歩10分
JR南武線 鹿島田駅 徒歩17分
JR南武線 尻手駅 徒歩20分
695
万円

275,000円
なし / 6ヶ月
なし / -
1536m2
1608.34m2
2001年1月(築24年12ヶ月)
  • 1階
  • 即引き渡し可
  • 駅から徒歩10分以内
  • エレベーター
チェックした物件を一括で
  • チェックした物件をまとめて
199
表示件数 12345 次へ

条件を選択

賃料
広さ
物件タイプ
築年数
駅からの時間
こだわり条件
画像
情報の新しさ
フリーワード

川崎市幸区の暮らしデータ

人口などの統計情報

世帯数 745988世帯
人口総数 1529136人
転入者数 105162人
転入率(人口1000人当たり)
68.77人
転出者数 96761人
転出率(人口1000人当たり)
63.28人
土地平均価格
住宅地
302136円/m2
商業地
894684円/m2

川崎市幸区の治安・ごみ収集情報

公共料金・インフラ

ガス料金(22m3使用した場合の月額) 東京瓦斯株式会社(東京地区等)3926円
水道料金(口径20mmで20m3の月額) 川崎市2321円
下水道料金(20m3を使用した場合の月額) 川崎市2156円
下水道普及率 99.6%

安心・安全

建物火災出火件数 270件
人口10000人当たり
1.76件
刑法犯認知件数 7645件
人口1000人当たり
4.97件
ハザード・防災マップ あり

医療

一般病院総数 33ヶ所
一般診療所総数 1060ヶ所
小児科医師数 310人
小児人口10000人当たり
16.99人
産婦人科医師数 139人
15~49歳女性人口1万人当たり
4.04人
介護保険料基準額(月額) 6591円

ごみ

家庭ごみ収集(可燃ごみ) 無料
備考
許可業者による一時多量ごみの収集制度(有料)を実施。
家庭ごみの分別方式 7分別〔普通ごみ 空きびん 使用済み乾電池 ミックスペーパー プラスチック製容器包装 空き缶・ペットボトル 小物金属〕※プラスチック製容器包装については一部地域(川崎区)でプラスチック資源を実施
家庭ごみの戸別収集 一部実施(ふれあい収集[一部地域のみ実施])
粗大ごみ収集 あり
備考
有料。事前申込制。
生ごみ処理機助成金制度 あり
上限金額
10000円
上限比率
50.0%
暮らしデータ提供元:生活ガイド.com
※行政機関により公表していない地域及びデータがございます。東京23区以外の政令指定都市は、市全体のデータとして表示しています。
※提供データには細心の注意を払っておりますが、調査後に変更がある場合があります。 最新の情報につきましては各市区役所までお問い合わせいただくか、自治体HPなどをご確認ください。

家賃相場

更新日:2025年12月22日

川崎市幸区の家賃相場

  50㎡~80㎡ 80㎡~100㎡ 100㎡~150㎡ 150㎡~200㎡ 200㎡以上
貸事務所 19.3万円 - - 47.9万円 354.2万円
貸店舗 24.5万円 - - 53.3万円 -
貸土地 - - - - -
貸ビル・貸倉庫・その他 - - - - 370.7万円
  月極駐車場
月極駐車場 1.8万円

周辺エリアの家賃相場

  大田区 横浜市鶴見区 横浜市港北区 川崎市川崎区 川崎市中原区
貸事務所 29.7万円 28.3万円 29.5万円 23.4万円 29.4万円
貸店舗 34.4万円 32.8万円 35.1万円 26.7万円 29.4万円
貸土地 - - - - -
貸ビル・貸倉庫・その他 18.3万円 - 24.2万円 - -
月極駐車場 2.3万円 1.7万円 4.7万円 1.8万円 1.6万円
※このデータはgoo住宅・不動産に掲載されている店舗の平均賃料(管理費・駐車場代などを除く)を算出したものです。ただし5戸以上の掲載があるものについてのみ対象とします。
※周辺エリアの家賃相場は広さ50㎡~80㎡と駐車場の平均賃料を算出したものです。

神奈川県の人気の街アクセスランキング(店舗・事業用)

※このランキングは2025年11月01日~30日における各ページのアクセス数から算出しています。

他のエリアから探す

川崎市幸区の詳細地域から店舗・事業用物件を探す

遠藤町大宮町小倉鹿島田小向町小向西町紺屋町幸町下平間新塚越神明町塚越戸手中幸町東小倉東古市場古市場古川町堀川町南加瀬南幸町都町矢上柳町

川崎市幸区内の駅から探す

新川崎尻手鹿島田

特集から探す

間取り図あり月極駐車場・貸し駐車場貸店舗貸事務所貸倉庫

アプリで簡単 物件探し 大手不動産サイトの情報から一括検!プッシュ通知で物件を見逃さない
App Storeからダウンロード Google Playで手に入れよう QRコード