RSS

浅口市(岡山県)の賃貸店舗・賃貸事務所・月極駐車場 物件一覧

岡山県浅口市の貸店舗、貸事務所、月極駐車場などの店舗・事業用物件をご紹介します。貸オフィス、貸ビル、貸倉庫、貸工場などの店舗・事業用物件情報を探すならgoo住宅・不動産。賃料・広さ・間取り・写真・人気のこだわり条件から物件を簡単検索。理想の物件探しをgoo住宅・不動産がサポートします。

探したい物件のエリア・検索条件を変更して再検索

エリア
検索条件
9 並び替え
チェックした物件を一括で
選択 物件タイプ
画像
所在地/交通
(駅/バス 所要時間)
賃料
管理費等
礼金/敷金
保証金/敷引・償却
使用部分面積
土地面積
築年月
築年数

岡山県浅口市寄島町

  • 貸倉庫
  • 岡山県浅口市寄島町
岡山県浅口市寄島町
JR山陽本線 鴨方駅 徒歩6.8km
1.5
万円

-
1ヶ月 / 1ヶ月
なし / -
49.5m2
-
1988年10月(築37年2ヶ月)
  • 1階
  • 即引き渡し可
  • 駐車場(近隣含)
ホーミィエステート(株) 倉敷店

岡山県浅口市金光町占見新田

  • 貸駐車場
  • 岡山県浅口市金光町占見新田
岡山県浅口市金光町占見新田
JR山陽本線 金光駅 徒歩5分
0.4
万円

-
なし / なし
なし / -
-
-
-
  • 即引き渡し可
  • 駅から徒歩5分以内
(有)エステート守屋 エイブルネットワーク 新倉敷店

岡山県浅口市鴨方町鴨方

  • 貸駐車場
  • 岡山県浅口市鴨方町鴨方
    間取り図
岡山県浅口市鴨方町鴨方
JR山陽本線 鴨方駅 徒歩33分
0.3
万円

-
なし / なし
なし / -
-
-
-
  • 即引き渡し可
(有)ヤマキ

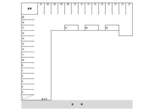
鴨方町鴨方1棟貸店舗

  • 貸店舗
  • 鴨方町鴨方1棟貸店舗
    間取り図
岡山県浅口市鴨方町鴨方
JR山陽本線 鴨方駅 徒歩21分
49.5
万円

-
1ヶ月 / 4ヶ月
なし / -
299.8m2
-
2011年2月(築14年10ヶ月)
  • 即引き渡し可
  • 飲食店可
  • 駐車場(近隣含)
テナントストア おうち家マネージメント(株)

岡山県浅口市金光町佐方

  • 貸地
  • 岡山県浅口市金光町佐方
    間取り図
岡山県浅口市金光町佐方
JR山陽本線 金光駅 徒歩20分
85
万円

-
1ヶ月 / 2ヶ月
なし / -
-
3804m2
-
  • 即引き渡し可
  • 駅から徒歩20分以内
(株)東洋システム土地倉庫

岡山県浅口市金光町占見

  • 貸地
  • 岡山県浅口市金光町占見
岡山県浅口市金光町占見
JR山陽本線 金光駅 徒歩15分
48
万円

-
1ヶ月 / 2ヶ月
なし / -
-
2683.33m2
-
  • 駅から徒歩15分以内
(有)アリオスやまじゅう

中藤駐車場

  • 貸駐車場
  • 中藤駐車場
岡山県浅口市寄島町
バス/「井笠バス 国頭」バス停 停歩3分
0.33
万円

なし
なし / なし
なし / -
-
-
-
  • 即引き渡し可
(有)タイフーン

岡山県浅口市金光町須恵

  • 貸倉庫
  • 岡山県浅口市金光町須恵
岡山県浅口市金光町須恵
JR山陽本線 金光駅 徒歩9分
38.5
万円

-
1ヶ月 / 4ヶ月
なし / -
1221.39m2
-
1986年11月(築39年1ヶ月)
  • 駐車場(近隣含)
  • 駅から徒歩10分以内
岡山スイキュウ(株) 不動産事業部

岡山県浅口市寄島町

  • 貸倉庫
  • 岡山県浅口市寄島町
岡山県浅口市寄島町
バス/「東安倉大谷」バス停 停歩2分
6.6
万円

-
1ヶ月 / 3ヶ月
なし / -
600.41m2
-
1972年6月(築53年6ヶ月)
  • 即引き渡し可
  • 駐車場(近隣含)
岡山スイキュウ(株) 不動産事業部
チェックした物件を一括で
  • チェックした物件をまとめて
9
表示件数

申し訳ございません。条件にあう物件が少なかったため
以下は「美作市と和気郡和気町」の物件情報を表示しています。

美作市と和気郡和気町の賃貸店舗・賃貸事務所・事業用 物件一覧

美作市と和気郡和気町の物件一覧画面へのリンク
チェックした物件を一括で
選択 物件タイプ
画像
所在地/交通
(駅/バス 所要時間)
賃料
管理費等
礼金/敷金
保証金/敷引・償却
使用部分面積
土地面積
築年月
築年数

岡山県和気郡和気町和気

  • 貸店舗
  • 岡山県和気郡和気町和気
    間取り図
岡山県和気郡和気町和気
JR山陽本線 和気駅 徒歩5分
3.9
万円

3,000円
1ヶ月 / 2ヶ月
なし / -
59.22m2
-
1974年10月(築51年2ヶ月)
  • 駅から徒歩5分以内
咲良不動産(株)

岡山県和気郡和気町和気

  • 貸店舗(建物一部)
  • 岡山県和気郡和気町和気
    間取り図
岡山県和気郡和気町和気
JR山陽本線 和気駅 徒歩6分
3.9
万円

3,000円
1ヶ月 / 2ヶ月
なし / -
59.22m2
-
1974年10月(築51年2ヶ月)
  • 1階
  • 駐車場(近隣含)
  • 駅から徒歩7分以内
(株)豊作家

岡山県美作市杉原

  • 貸倉庫
  • 岡山県美作市杉原
岡山県美作市杉原
JR姫新線勝間田駅徒歩10000m
11
万円

なし
1ヶ月 / 2ヶ月
なし / -
305.77m2
434.5m2
1980年1月(築45年11ヶ月)
  • 1階
  • 即引き渡し可
岡山スイキュウ(株) 不動産事業部

ビレッジハウス和気

  • 貸駐車場
  • ビレッジハウス和気
    間取り図
岡山県和気郡和気町衣笠
山陽本線 和気駅 徒歩7分
0.33
万円

-
なし / 1ヶ月
- / -
-
-
-
  • 即引き渡し可
  • 駅から徒歩7分以内
ビレッジハウス 住まい相談センター(中国エリア) ビレッジハウス・マネジメント株式会社

ビレッジハウス和気

  • 貸駐車場
  • ビレッジハウス和気
    間取り図
岡山県和気郡和気町衣笠
山陽本線 和気駅 徒歩7分
0.33
万円

-
なし / 1ヶ月
- / -
-
-
-
  • 即引き渡し可
  • 駅から徒歩7分以内
ビレッジハウス 住まい相談センター(中国エリア) ビレッジハウス・マネジメント株式会社

ビレッジハウス和気

  • 貸駐車場
  • ビレッジハウス和気
    間取り図
岡山県和気郡和気町衣笠
山陽本線 和気駅 徒歩7分
0.33
万円

-
なし / 1ヶ月
- / -
-
-
-
  • 即引き渡し可
  • 駅から徒歩7分以内
ビレッジハウス 住まい相談センター(中国エリア) ビレッジハウス・マネジメント株式会社

ビレッジハウス和気

  • 貸駐車場
  • ビレッジハウス和気
    間取り図
岡山県和気郡和気町衣笠
山陽本線 和気駅 徒歩7分
0.33
万円

-
なし / 1ヶ月
- / -
-
-
-
  • 即引き渡し可
  • 駅から徒歩7分以内
ビレッジハウス 住まい相談センター(中国エリア) ビレッジハウス・マネジメント株式会社

ビレッジハウス和気

  • 貸駐車場
  • ビレッジハウス和気
    間取り図
岡山県和気郡和気町衣笠
山陽本線 和気駅 徒歩7分
0.33
万円

-
なし / 1ヶ月
- / -
-
-
-
  • 即引き渡し可
  • 駅から徒歩7分以内
ビレッジハウス 住まい相談センター(中国エリア) ビレッジハウス・マネジメント株式会社

ビレッジハウス和気

  • 貸駐車場
  • ビレッジハウス和気
    間取り図
岡山県和気郡和気町衣笠
山陽本線 和気駅 徒歩7分
0.33
万円

-
なし / 1ヶ月
- / -
-
-
-
  • 即引き渡し可
  • 駅から徒歩7分以内
ビレッジハウス 住まい相談センター(中国エリア) ビレッジハウス・マネジメント株式会社

ビレッジハウス和気

  • 貸駐車場
  • ビレッジハウス和気
    間取り図
岡山県和気郡和気町衣笠
山陽本線 和気駅 徒歩7分
0.33
万円

-
なし / 1ヶ月
- / -
-
-
-
  • 即引き渡し可
  • 駅から徒歩7分以内
ビレッジハウス 住まい相談センター(中国エリア) ビレッジハウス・マネジメント株式会社

ビレッジハウス和気

  • 貸駐車場
  • ビレッジハウス和気
    間取り図
岡山県和気郡和気町衣笠
山陽本線 和気駅 徒歩7分
0.33
万円

-
なし / 1ヶ月
- / -
-
-
-
  • 即引き渡し可
  • 駅から徒歩7分以内
ビレッジハウス 住まい相談センター(中国エリア) ビレッジハウス・マネジメント株式会社

ビレッジハウス和気

  • 貸駐車場
  • ビレッジハウス和気
    間取り図
岡山県和気郡和気町衣笠
山陽本線 和気駅 徒歩7分
0.33
万円

-
なし / 1ヶ月
- / -
-
-
-
  • 即引き渡し可
  • 駅から徒歩7分以内
ビレッジハウス 住まい相談センター(中国エリア) ビレッジハウス・マネジメント株式会社

ビレッジハウス和気

  • 貸駐車場
  • ビレッジハウス和気
    間取り図
岡山県和気郡和気町衣笠
山陽本線 和気駅 徒歩7分
0.33
万円

-
なし / 1ヶ月
- / -
-
-
-
  • 即引き渡し可
  • 駅から徒歩7分以内
ビレッジハウス 住まい相談センター(中国エリア) ビレッジハウス・マネジメント株式会社
チェックした物件を一括で
OCN×ドコモ光新規お申込みで合計最大137,280円相当おトク!特典の内訳・適用条件など詳細はこちら

条件を選択

賃料
広さ
物件タイプ
築年数
駅からの時間
こだわり条件
画像
情報の新しさ
フリーワード

浅口市の暮らしデータ

人口などの統計情報

世帯数 12591世帯
人口総数 32987人
転入者数 945人
転入率(人口1000人当たり)
28.65人
転出者数 956人
転出率(人口1000人当たり)
28.98人
土地平均価格
住宅地
24925円/m2
商業地
51150円/m2

浅口市の治安・ごみ収集情報

公共料金・インフラ

ガス料金(22m3使用した場合の月額) -
水道料金(口径20mmで20m3の月額) 浅口市3775円
下水道料金(20m3を使用した場合の月額) 浅口市3170円
下水道普及率 79.6%

安心・安全

建物火災出火件数 14件
人口10000人当たり
4.27件
刑法犯認知件数 100件
人口1000人当たり
3.05件
ハザード・防災マップ あり

医療

一般病院総数 2ヶ所
一般診療所総数 17ヶ所
小児科医師数 6人
小児人口10000人当たり
17.27人
産婦人科医師数 0人
15~49歳女性人口1万人当たり
0.00人
介護保険料基準額(月額) 5900円

ごみ

家庭ごみ収集(可燃ごみ) 有料
備考
指定ごみ袋有料。可燃ごみ及び不燃ごみを排出する際は、指定ごみ袋を使用。
家庭ごみの分別方式 3分別15種〔もえるごみ もえないごみ 資源物(プラスチック製容器包装、雑誌・本・雑紙、新聞紙・折込広告、ダンボール、紙パック、ペットボトル、缶類、びん類[無色、茶色、緑色、その他の色]、布類、乾電池)〕 拠点回収:使用済小型電子機器、蛍光管
家庭ごみの戸別収集 一部実施(【浅口市粗大ごみ戸別収集事業実施要綱】粗大ごみの排出が困難な高齢者又は障害者で構成される世帯を対象とし、戸別に訪問して収集、運搬するもの。[利用申込制で定期収集ではない])
粗大ごみ収集 あり
備考
-
生ごみ処理機助成金制度 あり
上限金額
53000円
上限比率
66.7%
暮らしデータ提供元:生活ガイド.com
※行政機関により公表していない地域及びデータがございます。東京23区以外の政令指定都市は、市全体のデータとして表示しています。
※提供データには細心の注意を払っておりますが、調査後に変更がある場合があります。 最新の情報につきましては各市区役所までお問い合わせいただくか、自治体HPなどをご確認ください。

家賃相場

更新日:2025年11月17日

浅口市の家賃相場

  50㎡~80㎡ 80㎡~100㎡ 100㎡~150㎡ 150㎡~200㎡ 200㎡以上
貸事務所 - - - - -
貸店舗 - - - - -
貸土地 - - - - -
貸ビル・貸倉庫・その他 - - - - -
  月極駐車場
月極駐車場 -

周辺エリアの家賃相場

  笠岡市 浅口郡里庄町 小田郡矢掛町
貸事務所 - - -
貸店舗 - - -
貸土地 - - -
貸ビル・貸倉庫・その他 - - -
月極駐車場 0.5万円 - -
※このデータはgoo住宅・不動産に掲載されている店舗の平均賃料(管理費・駐車場代などを除く)を算出したものです。ただし5戸以上の掲載があるものについてのみ対象とします。
※周辺エリアの家賃相場は広さ50㎡~80㎡と駐車場の平均賃料を算出したものです。

岡山県の人気の街アクセスランキング(店舗・事業用)

※このランキングは2025年10月01日~31日における各ページのアクセス数から算出しています。

他のエリアから探す

浅口市の詳細地域から店舗・事業用物件を探す

鴨方町鴨方金光町占見金光町占見新田金光町佐方金光町須恵寄島町

浅口市内の駅から探す

金光鴨方

特集から探す

間取り図あり月極駐車場・貸し駐車場貸店舗貸事務所貸倉庫

岡山県浅口市で他のジャンルから探す

アプリで簡単 物件探し 大手不動産サイトの情報から一括検!プッシュ通知で物件を見逃さない
App Storeからダウンロード Google Playで手に入れよう QRコード