賃貸アパート
コンフォートテラス荻窪 荻窪駅 ワンルーム 賃貸(賃貸マンション・アパート)
| 賃料 |
7万円 (管理費等:3000円) |
| 礼金・敷金 |
1ヶ月 / なし |
保証金/敷引・償却 |
なし / - |
| 交通 |
|
| 所在地 |
東京都杉並区桃井1周辺地図
|
| 間取り |
ワンルーム |
専有面積 |
18.36m2 |
| 築年月 |
2015年1月 |
築年数 |
築10年11ヶ月 |
- おすすめポイント
- オンラインで申込から契約手続き、LINEでのご相談も可能です 当物件は初期費用分割払い可(クレジットカード決済も可)/お客様のご希望に合わせた方法(店頭、オンライン等)で物件をご提案いたします。初期費用のお見積りや入居希望日のご相談もお気軽にお問い合わせください
- お問い合わせ先
- アエラス三鷹店(株)アエラス.PR
- お問い合わせ先
- アエラス三鷹店(株)アエラス.PR
| 賃料 |
7万円 |
管理費等 |
3000円 |
| 敷金 |
なし |
礼金 |
1ヶ月 |
| 保証金 |
なし |
敷引・償却 |
- |
| 更新料 |
- |
契約期間 |
|
| カード決済 |
初期費用カード決済可 |
| 所在地 |
東京都杉並区桃井1周辺地図
|
| 交通 |
- JR中央線 荻窪駅 徒歩12分乗換案内
- JR総武線 西荻窪駅 徒歩26分乗換案内
- 西武新宿線 上井草駅 徒歩26分乗換案内
|
| 建物名 |
コンフォートテラス荻窪 |
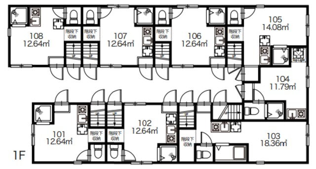
| 間取り |
ワンルーム(洋6) |
築年月(築年数) |
2015年1月(築10年11ヶ月)
|
| 専有面積 |
18.36㎡ |
所在階/階数 |
1階/2階建
|
| 建物構造 |
木造 |
方位 |
北 |
| 現況 |
|
駐車場 |
近有 18,700円 |
| 入居可能時期 |
2026年1月中旬 |
住宅保険 |
あり |
| 情報提供元 |
SUUMO[030H100473487599] |
情報公開日 |
|
| 情報更新日 |
|
次回更新予定日 |
随時 |
設備など
| 2階以上 |
- |
最上階 |
- |
角部屋 |
○ |
| 駐車場(近隣含) |
○ |
エアコン付き |
○ |
バス・トイレ別 |
○ |
| 室内洗濯機置き場 |
○ |
追焚機能 |
- |
オートロック付き |
○ |
| モニタ付インターホン |
○ |
フローリング |
○ |
バルコニー |
- |
| ガスコンロ可 |
○ |
浴室乾燥機 |
- |
24時間セキュリティ |
- |
| 宅配ボックス |
- |
ペット相談可 |
- |
二人入居可 |
- |
| 設備 |
冷房・暖房・エアコン・オートロック・バス・トイレ別・トイレ・洗濯機置場・CATV・BS端子・フローリング・ガスコンロ可・モニタ付インターホン・CS・都市ガス・ディンプルキー・浴トイレ別・インターネット無料・インターネット対応・室内洗濯機置き場 |
| リフォーム履歴 |
- |
| リノベーション履歴 |
- |
| 備考 |
損保要/エアコン洗浄代11000円/カギ交換費用29700円/保証会社利用必:月額賃料等の50% ̄100%(初回保証料)、2年目以降は1万円/年/普通借家2年/短期解約違約金 1年未満に解約の場合家賃+共益費の1ヶ月分/CATVでBSCS視聴可(CATVBS別途契約要有償)/室内清掃費用 44000円(退去時)/バストイレ別/エアコン/ガスコンロ対応/フローリング/TVインターホン/オートロック/室内洗濯置/角住戸/CATV/光ファイバー/2面採光/BS・CS/敷金不要/防犯シャッター/ディンプルキー/ネット使用料不要/ダブルロックキー/保証金不要/始発駅/3駅以上利用可/3沿線以上利用可/敷地内ごみ置き場/都市ガス/室内物干機/高速ネット対応/礼金1ヶ月/初期費用カード決済可/柴田メディカルクリニックまで538m/荻窪郵便局まで391m/まいばすけっと 荻窪四面道店(スーパー)まで471m/ファミリーマート 杉並桃井店(コンビニ)まで266m/ユニバーサルドラッグ荻窪店(ドラッグストア)まで327m/ウッディーワン(ホームセンター)まで478m/丸信(飲食店)まで748m/三育学院大学 東京校舎(大学・短大)まで1034m/西武鉄道新宿線下井草駅徒歩31分 |
| 特記事項 |
角部屋・初期費用カード決済可 |
東京都杉並区桃井1 周辺地図情報
※地図上に表示される物件の位置は付近住所に所在することを表すものであり、実際の物件所在地とは異なる場合がございます。
正確な物件所在地は、取扱い不動産会社にお問い合わせください。
- お問い合わせ先
- アエラス三鷹店(株)アエラス.PR
不動産会社情報
| お問い合わせ先 |
商号:アエラス三鷹店(株)アエラス.PR 免許番号:国土交通大臣(1)第10782号 所在地:東京都武蔵野市中町1-13-2 村越ビル 4階 TEL:0422-50-0693 取引態様:仲介 管理コード:68838218 所属協会など:(公社)首都圏不動産公正取引協議会加盟、(公社)全日本不動産協会東京都本部会員
|
共有する |
|
- お問い合わせ先
- アエラス三鷹店(株)アエラス.PR
人口などの統計情報
| 世帯数 |
336103世帯 |
| 人口総数 |
572843人 |
| 転入者数 |
46818人
- 転入率(人口1000人当たり)
- 81.73人
|
| 転出者数 |
42748人
- 転出率(人口1000人当たり)
- 74.62人
|
| 土地平均価格 |
- 住宅地
- 664800円/m2
- 商業地
- 1196929円/m2
|
結婚・育児の助成金
| 子育て関連の独自の取り組み |
(1)杉並子育て応援券(有料の子育てサービスに利用できるチケット[アプリ]。妊婦1万円、出生0歳児3万円、1~2歳児1.5万円、小学生以下の第3子以降は各券に5,000円分上乗せした無償券を交付、0~5歳児は4,000円で1万円分の有償券を子ども1人につき最大3万円分まで購入可能)。(2)妊婦歯科健康診査(妊娠中に1回、指定医療機関で受診可)。(3)産婦健康診査(産後8週間以内に1回、区内指定医療機関で受診可)。(4)歯みがきデビュー教室(予約制、対象:上の前歯が生えた生後8ヶ月から1歳3ヶ月まで)。(5)0歳からの歯みがき・歯科健診(予約制、対象:0歳から4歳まで)。 |
| 出産祝い |
なし |
| 公立保育所数 |
29所(うち0歳児保育を実施している保育所:20所) |
| 私立保育所数 |
158所(うち0歳児保育を実施している保育所:116所) |
| 保育所入所待機児童数 |
0人 |
| 認定こども園数 |
0園 |
預かり保育実施園数 |
公立:6園 私立:34園 |
| 学校給食 |
【小学校】完全給食【中学校】完全給食 |
| 公立中学校の学校選択制 |
未実施 |
| 子ども・学生等医療費助成<通院>対象年齢 |
18歳3月末まで |
子ども・学生等医療費助成<入院>対象年齢 |
18歳3月末まで |
杉並区の治安・ごみ収集情報
公共料金・インフラ
| ガス料金(22m3使用した場合の月額) |
東京瓦斯株式会社(東京地区等)3926円 |
| 水道料金(口径20mmで20m3の月額) |
東京都水道局2816円 |
| 下水道料金(20m3を使用した場合の月額) |
東京都下水道局2068円 |
| 下水道普及率 |
100.0% |
安心・安全
| 建物火災出火件数 |
89件
- 人口10000人当たり
- 1.51件
|
| 刑法犯認知件数 |
2519件
- 人口1000人当たり
- 4.26件
|
| ハザード・防災マップ |
あり |
医療
| 一般病院総数 |
20ヶ所 |
| 一般診療所総数 |
542ヶ所 |
| 小児科医師数 |
107人
- 小児人口10000人当たり
- 17.91人
|
| 産婦人科医師数 |
56人
- 15~49歳女性人口1万人当たり
- 4.02人
|
| 介護保険料基準額(月額) |
6400円 |
ごみ
| 家庭ごみ収集(可燃ごみ) |
無料
|
| 家庭ごみの分別方式 |
3分別10種〔可燃ごみ 不燃ごみ 資源(びん、缶、プラスチック製容器包装、ペットボトル、古紙[新聞紙、雑紙・雑誌・書籍・包装紙等]、段ボール、紙パック)〕 拠点回収:使用済小型家電 水銀体温計 水銀血圧計 水銀温度計 衣類 廃食用油 |
| 家庭ごみの戸別収集 |
一部実施(【ふれあい収集】集積所まで運び出すことが困難なひとり暮らしの高齢者や障害のある方のみの世帯には、職員が戸別に玄関先まで訪問して、可燃ごみ、不燃ごみ、資源の収集を実施) |
| 粗大ごみ収集 |
あり
|
| 生ごみ処理機助成金制度 |
あり
- 上限金額
- 20000円
- 上限比率
- 50.0%
|
※行政機関により公表していない地域及びデータがございます。東京23区以外の政令指定都市は、市全体のデータとして表示しています。
※提供データには細心の注意を払っておりますが、調査後に変更がある場合があります。 最新の情報につきましては各市区役所までお問い合わせいただくか、自治体HPなどをご確認ください。
杉並区の暮らしデータをもっと見る