賃貸マンション
フカサワスペース9 都立大学駅 1SLDK 賃貸(賃貸マンション・アパート)
| 賃料 |
65万円 (管理費等:30000円) |
| 礼金・敷金 |
1ヶ月 / 3ヶ月 |
保証金/敷引・償却 |
なし / - |
| 交通 |
|
| 所在地 |
東京都世田谷区深沢4周辺地図
|
| 間取り |
1SLDK |
専有面積 |
131.77m2 |
| 築年月 |
2007年9月 |
築年数 |
築18年3ヶ月 |
- お問い合わせ先
- アパマンショップ代々木店(株)レジデンシャル東京
- お問い合わせ先
- アパマンショップ代々木店(株)レジデンシャル東京
| 賃料 |
65万円 |
管理費等 |
30000円 |
| 敷金 |
3ヶ月 |
礼金 |
1ヶ月 |
| 保証金 |
なし |
敷引・償却 |
- |
| 更新料 |
- |
契約期間 |
|
| カード決済 |
- |
| 所在地 |
東京都世田谷区深沢4周辺地図
|
| 交通 |
- 東急東横線 都立大学駅 徒歩20分乗換案内
- 東急大井町線 九品仏駅 徒歩22分乗換案内
- 東急田園都市線 駒沢大学駅 徒歩22分乗換案内
|
| 建物名 |
フカサワスペース9 |
| 間取り |
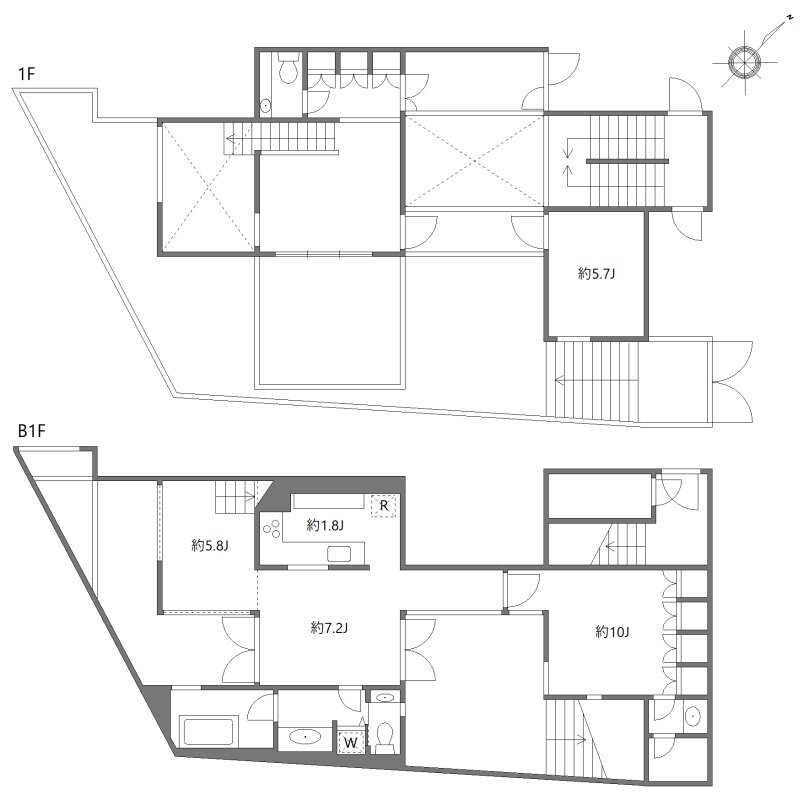
1SLDK(洋10.0 洋7.8 洋5.7 LD13.0K1.8 納戸 4.7) |
築年月(築年数) |
2007年9月(築18年3ヶ月)
|
| 専有面積 |
131.77㎡ |
所在階/階数 |
地下1階/地上3階地下1階建
|
| 建物構造 |
RC |
方位 |
南東 |
| 現況 |
|
駐車場 |
無 近くの駐車場を探す
|
| 入居可能時期 |
即時 |
住宅保険 |
あり 2年 18000円 |
| 情報提供元 |
SUUMO[030H100470097475] |
情報公開日 |
|
| 情報更新日 |
|
次回更新予定日 |
随時 |
設備など
| 2階以上 |
○ |
最上階 |
- |
角部屋 |
○ |
| 駐車場(近隣含) |
- |
エアコン付き |
○ |
バス・トイレ別 |
○ |
| 室内洗濯機置き場 |
○ |
追焚機能 |
○ |
オートロック付き |
○ |
| モニタ付インターホン |
○ |
フローリング |
○ |
バルコニー |
○ |
| ガスコンロ可 |
○ |
浴室乾燥機 |
○ |
24時間セキュリティ |
- |
| 宅配ボックス |
○ |
ペット相談可 |
○ |
二人入居可 |
- |
| 設備 |
冷房・暖房・エアコン・オートロック・バルコニー・バス・トイレ別・トイレ・収納スペース・洗濯機置場・洗面所・エレベーター・CATV・BS端子・追焚機能・フローリング・浴室乾燥機・ガスコンロ可・温水洗浄便座・システムキッチン・モニタ付インターホン・宅配BOX・駐輪場・風呂・クローゼット・衣類乾燥機・都市ガス・浴トイレ別・洗面所独立・コンロ2口以上・シューズボックス・室内洗濯機置き場 |
| リフォーム履歴 |
- |
| リノベーション履歴 |
- |
| 備考 |
プレミアデスク(2年/税込)1.65万円 鍵交換代4.95万円/更新料 新賃料1.00ヶ月分/保証会社利用必:※エポス ルームIDからの審査になります。 【ルームID】月額総賃料の50%/月次保証料、月額総賃料の1.5%/1年毎10 000円 【ナップ】月額総賃料の50%/年間保証料10 000円/引落手数料550円(税込)/普通借家2年0ヶ月/ペット相談/事務所利用不可/バストイレ別/バルコニー/エアコン/ガスコンロ対応/クロゼット/フローリング/TVインターホン/浴室乾燥機/オートロック/室内洗濯置/シューズボックス/システムキッチン/追焚機能浴室/角住戸/温水洗浄便座/エレベーター/洗面所独立/駐輪場/宅配ボックス/CATV/即入居可/3口以上コンロ/ペット相談/駐車場1台無料/デザイナーズ/メゾネット/ダブルロックキー/2駅利用可/敷地内ごみ置き場/都市ガス/玄関収納/BS/賃貸戸数:9戸 |
| 特記事項 |
ペット相談可・メゾネット・角部屋・デザイナーズ物件 |
東京都世田谷区深沢4 周辺地図情報
※地図上に表示される物件の位置は付近住所に所在することを表すものであり、実際の物件所在地とは異なる場合がございます。
正確な物件所在地は、取扱い不動産会社にお問い合わせください。
- お問い合わせ先
- アパマンショップ代々木店(株)レジデンシャル東京
不動産会社情報
| お問い合わせ先 |
商号:アパマンショップ代々木店(株)レジデンシャル東京 免許番号:東京都知事(2)第94865号 所在地:東京都渋谷区代々木1-32-12 HOUWAビル3階 TEL:03-5354-7845 取引態様:仲介 管理コード: 所属協会など:(公社)首都圏不動産公正取引協議会加盟、(公社)全日本不動産協会東京都本部会員
|
共有する |
|
- お問い合わせ先
- アパマンショップ代々木店(株)レジデンシャル東京
人口などの統計情報
| 世帯数 |
491717世帯 |
| 人口総数 |
918141人 |
| 転入者数 |
64326人
- 転入率(人口1000人当たり)
- 70.06人
|
| 転出者数 |
59597人
- 転出率(人口1000人当たり)
- 64.91人
|
| 土地平均価格 |
- 住宅地
- 676200円/m2
- 商業地
- 1209125円/m2
|
結婚・育児の助成金
| 子育て関連の独自の取り組み |
(1)産後ケア事業(産後の母子を対象に母体ケア、乳児ケア、育児相談・指導などを行う)。(2)新教科「日本語」教育(2007年より世田谷区立の全小・中学校にて実施)(3)せたがや0→1(ぜろいち)子育てエール(5ヶ月から11ヶ月の子供を育てる家庭への見守り訪問事業)(4)世田谷区バースデーサポート事業(1歳を迎える子供のいる家庭へ子育て支援用品等の購入に使用できるデジタルギフト贈呈。※条件あり)(5)子育てステーションの設置(利便性の高い駅前に点在。多機能子育て支援拠点施設) |
| 出産祝い |
あり |
| 公立保育所数 |
44所(うち0歳児保育を実施している保育所:20所) |
| 私立保育所数 |
172所(うち0歳児保育を実施している保育所:158所) |
| 保育所入所待機児童数 |
58人 |
| 認定こども園数 |
7園 |
預かり保育実施園数 |
公立:7園 私立:45園 |
| 学校給食 |
【小学校】完全給食【中学校】完全給食 |
| 公立中学校の学校選択制 |
未実施 |
| 子ども・学生等医療費助成<通院>対象年齢 |
18歳3月末まで |
子ども・学生等医療費助成<入院>対象年齢 |
18歳3月末まで |
世田谷区の治安・ごみ収集情報
公共料金・インフラ
| ガス料金(22m3使用した場合の月額) |
東京瓦斯株式会社(東京地区等)3926円 |
| 水道料金(口径20mmで20m3の月額) |
東京都水道局2816円 |
| 下水道料金(20m3を使用した場合の月額) |
東京都下水道局2068円 |
| 下水道普及率 |
99.9% |
安心・安全
| 建物火災出火件数 |
141件
- 人口10000人当たり
- 1.49件
|
| 刑法犯認知件数 |
4084件
- 人口1000人当たり
- 4.33件
|
| ハザード・防災マップ |
あり |
医療
| 一般病院総数 |
27ヶ所 |
| 一般診療所総数 |
952ヶ所 |
| 小児科医師数 |
349人
- 小児人口10000人当たり
- 33.26人
|
| 産婦人科医師数 |
66人
- 15~49歳女性人口1万人当たり
- 3.00人
|
| 介護保険料基準額(月額) |
6280円 |
ごみ
| 家庭ごみ収集(可燃ごみ) |
無料
|
| 家庭ごみの分別方式 |
3分別14種〔可燃ごみ 不燃ごみ(小型家電製品・金属類、ガラス陶磁器類、乾電池・白熱電球・LED電球類・割れた蛍光管、ライター) 資源ごみ(古紙[新聞、雑誌類、紙パック、ダンボール]、ガラスびん、缶、ペットボトル、蛍光管、スプレー缶・カセットボンベ)〕 |
| 家庭ごみの戸別収集 |
一部実施(65歳以上のひとり暮らし高齢者または高齢者のみの世帯で、世帯全員が介護保険法の要介護2または2程度、ひとり暮らしの障害者または障害者のみの世帯) |
| 粗大ごみ収集 |
あり
|
| 生ごみ処理機助成金制度 |
なし
- 上限金額
- -
- 上限比率
- -
|
※行政機関により公表していない地域及びデータがございます。東京23区以外の政令指定都市は、市全体のデータとして表示しています。
※提供データには細心の注意を払っておりますが、調査後に変更がある場合があります。 最新の情報につきましては各市区役所までお問い合わせいただくか、自治体HPなどをご確認ください。
世田谷区の暮らしデータをもっと見る