アプリで簡単 物件探し 通知 共有 アプリならではの機能を使ってみる
賃貸マンション

東京都新宿区北新宿3 東中野駅 1K 賃貸(賃貸マンション・アパート)

情報提供元
SUUMO
賃料 10.65万円  (管理費等:15000円)
礼金・敷金 なし / なし 保証金/敷引・償却 1ヶ月 / -
交通
所在地 東京都新宿区北新宿3周辺地図
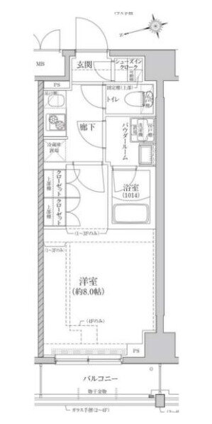
間取り 1K 専有面積 25.21m2
築年月 2020年11月 築年数 築5年1ヶ月
おすすめポイント
【神田川遊歩道沿い】【築浅分譲タイプ】【1K】 礼金ゼロ♪ペットと楽しく生活できる物件です。神田川遊歩道沿いの閑静な住宅街に位置しておりペットの散歩に最適です。防犯カメラ・オートロック付きなので、不審者が建物内に侵入することを抑止します。

詳細情報

賃料 10.65万円 管理費等 15000円
敷金 なし 礼金 なし
保証金 1ヶ月 敷引・償却 -
更新料 - 契約期間
カード決済 -
所在地 東京都新宿区北新宿3周辺地図
交通
建物名  
間取り 1K(洋8.0) 築年月(築年数) 2020年11月(築5年1ヶ月)
専有面積 25.21㎡ 所在階/階数 1階/5階建
建物構造 RC  方位 西 
現況   駐車場 近有 33,000円
入居可能時期 即時 住宅保険 あり 2年 20000円
情報提供元 SUUMO[030H100473501550] 情報公開日
情報更新日 次回更新予定日 随時

設備など

2階以上 - 最上階 - 角部屋 -
駐車場(近隣含) エアコン付き バス・トイレ別
室内洗濯機置き場 追焚機能 - オートロック付き
モニタ付インターホン フローリング バルコニー
ガスコンロ可 浴室乾燥機 24時間セキュリティ -
宅配ボックス ペット相談可 二人入居可 -
設備 冷房・暖房・エアコン・オートロック・バルコニー・バス・トイレ別・トイレ・収納スペース・洗濯機置場・洗面所・エレベーター・フローリング・浴室乾燥機・照明器具・ガスコンロ可・温水洗浄便座・システムキッチン・モニタ付インターホン・宅配BOX・駐輪場・クローゼット・衣類乾燥機・都市ガス・ディンプルキー・浴トイレ別・防犯カメラ・洗面所独立・バイク置き場・コンロ2口以上・シューズボックス・インターネット対応・室内洗濯機置き場 
リフォーム履歴 -
リノベーション履歴 -
備考 償却金1ヶ月/ペット飼育の場合敷金1ヶ月(総額)/24時間サポート1.65万円 事務手数料0.55万円 鍵交換代2.53万円/更新料 新賃料1.00ヶ月分/普通借家02年0ヶ月/ペット相談/初期費用分割払いサービス紹介可(詳細はお問い合わせください) ※退去時:ルームクリーニング費用¥46 200(税込) ※解約違約金:1年未満の解約時総賃料1ヶ月相当額/バストイレ別/バルコニー/エアコン/ガスコンロ対応/クロゼット/フローリング/TVインターホン/浴室乾燥機/オートロック/室内洗濯置/シューズボックス/システムキッチン/温水洗浄便座/脱衣所/エレベーター/洗面所独立/洗面化粧台/2口コンロ/駐輪場/宅配ボックス/光ファイバー/外壁タイル張り/礼金不要/閑静な住宅地/敷金不要/防犯カメラ/ペット相談/照明付/全居室収納/分譲賃貸/全居室洋室/二人入居相談/バイク置場/全居室フローリング/2沿線利用可/ディンプルキー/エアコン全室/24時間換気システム/南面リビング/2駅利用可/3駅以上利用可/駅徒歩5分以内/駅徒歩10分以内/24時間ゴミ出し可/敷地内ごみ置き場/全居室6畳以上/全居室8畳以上/都市ガス/洗面所にドア/玄関収納/敷金・礼金不要/キッチンコート 東中野(スーパー)まで346m/マルエツ プチ 中野中央店(スーパー)まで498m/アトレヴィ東中野(ショッピングセンター)まで505m/ファミリーマート東中野駅東口店(コンビニ)まで339m/セブンイレブン 東中野1丁目店(コンビニ)まで383m/島忠HOMES(島忠ホームズ) 中野店(ホームセンター)まで1629m/都営大江戸線 東中野駅徒歩7分 
特記事項 ペット相談可・分譲タイプ・外観タイル張り・閑静な住宅街

省エネ性能

エネルギー消費性能 -
断熱性能 -
目安光熱費 -

東京都新宿区北新宿3 周辺地図情報

地図
※地図上に表示される物件の位置は付近住所に所在することを表すものであり、実際の物件所在地とは異なる場合がございます。
   正確な物件所在地は、取扱い不動産会社にお問い合わせください。

不動産会社情報

お問い合わせ先 商号:アクセス(株)東中野店
免許番号:東京都知事(2)第99416号
所在地:東京都中野区東中野5-3-1
TEL:03-6908-9671
取引態様:仲介
管理コード:305570
所属協会など:(公社)首都圏不動産公正取引協議会加盟、(公社)全日本不動産協会東京都本部会員
共有する
QRコード

新宿区の暮らしデータ

人口などの統計情報

世帯数 222461世帯
人口総数 349226人
転入者数 46749人
転入率(人口1000人当たり)
133.86人
転出者数 41291人
転出率(人口1000人当たり)
118.24人
土地平均価格
住宅地
875917円/m2
商業地
5390517円/m2

結婚・育児の助成金

子育て関連の独自の取り組み (1)新宿区子ども未来基金(子どもの育ちを支援する区民等の自主的な活動への支援等)。(2)しんじゅく子育て応援ナビ(スマートフォンによる子育て情報の提供)。(3)産前産後支援事業(ヘルパーや産後ドゥーラの派遣)。(4)ホームスタート(先輩ママ、パパが家庭を訪問し子育て支援)。(5)多世代近居同居助成(近居・同居にかかる子世帯と親世帯の費用を一部助成)。(6)次世代育成転居助成(子育て世帯へ民間賃貸住宅への住み替えにかかる費用を一部助成)。(7)ひとり親家庭休養ホーム。(8)ベビーシッター利用支援。(9)障害児通所支援の利用者負担を軽減。(10)障害児通所施設における給食費の負担を軽減。
出産祝い あり
公立保育所数 11所(うち0歳児保育を実施している保育所:11所)
私立保育所数 54所(うち0歳児保育を実施している保育所:39所)
保育所入所待機児童数 0人
認定こども園数 17園 預かり保育実施園数 公立:4園 私立:9園
学校給食 【小学校】完全給食【中学校】完全給食
公立中学校の学校選択制 実施(新入学時のみ)
子ども・学生等医療費助成<通院>対象年齢 18歳3月末まで 子ども・学生等医療費助成<入院>対象年齢 18歳3月末まで

新宿区の治安・ごみ収集情報

公共料金・インフラ

ガス料金(22m3使用した場合の月額) 東京瓦斯株式会社(東京地区等)3926円
水道料金(口径20mmで20m3の月額) 東京都水道局2816円
下水道料金(20m3を使用した場合の月額) 東京都下水道局2068円
下水道普及率 100.0%

安心・安全

建物火災出火件数 168件
人口10000人当たり
4.81件
刑法犯認知件数 5537件
人口1000人当たり
15.85件
ハザード・防災マップ あり

医療

一般病院総数 13ヶ所
一般診療所総数 766ヶ所
小児科医師数 237人
小児人口10000人当たり
78.56人
産婦人科医師数 153人
15~49歳女性人口1万人当たり
17.39人
介護保険料基準額(月額) 6600円

ごみ

家庭ごみ収集(可燃ごみ) 無料
備考
日量10kgを超える臨時のごみは有料。
家庭ごみの分別方式 3分別14種〔燃やすごみ 金属・陶器・ガラスごみ(陶器・刃物・ガラス類、蛍光ランプ・水銀体温計・水銀血圧計、ライター) 資源(資源プラスチック[製品プラスチック・容器包装プラスチック]、古紙[新聞、チラシ・雑誌・本、紙パック、段ボール]、びん、缶、ペットボトル、スプレー缶・カセットボンベ、乾電池)〕 拠点回収:使用済小型電子機器等 紙パック 白色トレイ 乾電池
家庭ごみの戸別収集 一部実施(高齢者・障害者世帯等のごみ出しを支援)
粗大ごみ収集 あり
備考
有料。事前申込制。家庭から排出される粗大ごみに限る。大きさにより400~3,200円。
生ごみ処理機助成金制度 なし
上限金額
-
上限比率
-
暮らしデータ提供元:生活ガイド.com
※行政機関により公表していない地域及びデータがございます。東京23区以外の政令指定都市は、市全体のデータとして表示しています。
※提供データには細心の注意を払っておりますが、調査後に変更がある場合があります。 最新の情報につきましては各市区役所までお問い合わせいただくか、自治体HPなどをご確認ください。
OCN×ドコモ光新規お申込みで合計最大137,280円相当おトク!特典の内訳・適用条件など詳細はこちら

他のエリアから探す

新宿区の詳細地域から賃貸物件を探す

愛住町赤城下町赤城元町揚場町荒木町市谷加賀町市谷甲良町市谷砂土原町市谷左内町市谷鷹匠町市谷田町市谷台町市谷長延寺町市谷仲之町市谷船河原町市谷本村町市谷薬王寺町市谷柳町市谷山伏町岩戸町榎町大久保改代町神楽坂片町歌舞伎町上落合河田町喜久井町北新宿北町北山伏町細工町左門町三栄町信濃町下落合下宮比町白銀町新小川町新宿水道町須賀町住吉町高田馬場箪笥町大京町築地町津久戸町筑土八幡町天神町戸塚町富久町戸山内藤町中井中落合中里町中町納戸町西落合西五軒町西新宿西早稲田二十騎町払方町原町馬場下町東榎町東五軒町百人町袋町舟町弁天町南榎町南町南元町南山伏町山吹町矢来町横寺町余丁町四谷四谷坂町四谷三栄町四谷本塩町若葉若松町若宮町早稲田鶴巻町早稲田町早稲田南町

近辺の市区から探す

川口市千代田区中央区港区文京区台東区墨田区江東区品川区目黒区世田谷区渋谷区中野区杉並区豊島区北区荒川区板橋区練馬区足立区武蔵野市

周辺の駅から探す

総武・中央緩行線
千駄ケ谷代々木新宿大久保東中野中野高円寺阿佐ケ谷荻窪
東京メトロ東西線
中野落合高田馬場早稲田神楽坂飯田橋

掲載情報の著作権は提供元企業等に帰属します。
Copyright:(C) 2025 Recruit Co., Ltd.
アプリで簡単 物件探し 大手不動産サイトの情報から一括検!プッシュ通知で物件を見逃さない
App Storeからダウンロード Google Playで手に入れよう QRコード