アプリで簡単 物件探し 通知 共有 アプリならではの機能を使ってみる
賃貸マンション

パークコート ザ・三番町ハウス 半蔵門駅 3LDK 賃貸(賃貸マンション・アパート)

情報提供元
SUUMO
パークコート ザ・三番町ハウス
賃料 61.4万円  (管理費等:なし)
礼金・敷金 1ヶ月 / 1ヶ月 保証金/敷引・償却 なし / -
交通
所在地 東京都千代田区三番町周辺地図
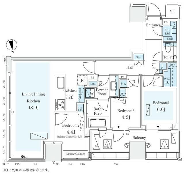
間取り 3LDK 専有面積 81.21m2
築年月 2025年11月 築年数 新築
おすすめポイント
★分譲★新築★ オンライン内見・契約実施!気になる物件はまとめてご案内可能です! お部屋探しはナビホーム赤坂店にお任せください♪
お問い合わせ先
TR(株)ナビホーム赤坂店
お問い合わせ先
TR(株)ナビホーム赤坂店

詳細情報

賃料 61.4万円 管理費等 なし
敷金 1ヶ月 礼金 1ヶ月
保証金 なし 敷引・償却 -
更新料 - 契約期間 定期借家 2年
カード決済 -
所在地 東京都千代田区三番町周辺地図
交通
  • 東京メトロ半蔵門線 半蔵門駅 徒歩10分乗換案内
  • JR中央線 市ケ谷駅 徒歩12分乗換案内
  • 東京メトロ東西線 九段下駅 徒歩13分乗換案内
建物名 パークコート ザ・三番町ハウス 
間取り 3LDK 築年月(築年数) 2025年11月 新築
専有面積 81.21㎡ 所在階/階数 3階/地上18階地下2階建
建物構造 RC  方位 南西 
現況   駐車場 無    近くの駐車場を探す
入居可能時期 相談 住宅保険 あり
情報提供元 SUUMO[030H100472225694] 情報公開日
情報更新日 次回更新予定日 随時

設備など

2階以上 最上階 - 角部屋 -
駐車場(近隣含) - エアコン付き バス・トイレ別
室内洗濯機置き場 追焚機能 オートロック付き
モニタ付インターホン フローリング バルコニー
ガスコンロ可 - 浴室乾燥機 24時間セキュリティ -
宅配ボックス ペット相談可 - 二人入居可 -
設備 冷房・暖房・エアコン・オートロック・バルコニー・バス・トイレ別・トイレ・収納スペース・洗濯機置場・洗面所・エレベーター・BS端子・追焚機能・フローリング・浴室乾燥機・ウォークインクローゼット・システムキッチン・カウンターキッチン・モニタ付インターホン・宅配BOX・風呂・対面K・クローゼット・CS・床暖房・衣類乾燥機・浴トイレ別・防犯カメラ・洗面所独立・コンロ2口以上・室内洗濯機置き場 
リフォーム履歴 -
リノベーション履歴 -
備考 損保要/室内清掃費用 151862円 口座振替事務手数料 月額110円/保証会社利用必:初回保証委託料(最低15,000円):月額賃料等の50%、 2年目以降:10,000円/年/定期借家02年0ヶ月/室内清掃費用:151 862円 口座振替事務手数料:110円/月 更新料:なし 賃貸保証:加入要 初回保証委託料(最低15,000円):月額賃料等の50%、 2年目以降:10,000円/年/バストイレ別/バルコニー/エアコン/クロゼット/フローリング/TVインターホン/浴室乾燥機/オートロック/室内洗濯置/システムキッチン/追焚機能浴室/脱衣所/エレベーター/洗面所独立/洗面化粧台/宅配ボックス/外壁タイル張り/閑静な住宅地/2面採光/BS・CS/3口以上コンロ/対面式キッチン/防犯カメラ/全居室収納/分譲賃貸/グリル付/全居室洋室/ウォークインクロゼット/全居室フローリング/2沿線利用可/LDK15畳以上/CS/床暖房/保証金不要/築2年以内/LDK20畳以上/フロントサービス/クロゼット2ヶ所/平坦地/築3年以内/浴室未使用/エレベーター2基/トイレ未使用/耐火構造/未入居/2駅利用可/3駅以上利用可/3沿線以上利用可/駅徒歩10分以内/タワー型マンション/24時間ゴミ出し可/敷地内ごみ置き場/築5年以内/LDK12畳以上/LDK18畳以上/キッチン未使用/洗面所にドア/BS/年内入居可/年度内入居可/セブンイレブン 九段南大妻通り店(コンビニ)まで170m/ミニストップ 九段南4丁目店(コンビニ)まで479m/池田薬局(ドラッグストア)まで494m 
特記事項 分譲タイプ・外観タイル張り・閑静な住宅街

省エネ性能

エネルギー消費性能 -
断熱性能 -
目安光熱費 -

東京都千代田区三番町 周辺地図情報

地図
※地図上に表示される物件の位置は付近住所に所在することを表すものであり、実際の物件所在地とは異なる場合がございます。
   正確な物件所在地は、取扱い不動産会社にお問い合わせください。
お問い合わせ先
TR(株)ナビホーム赤坂店

不動産会社情報

お問い合わせ先 商号:TR(株)ナビホーム赤坂店
免許番号:東京都知事(1)第109457号
所在地:東京都港区赤坂2-19-4 関ビル4階
TEL:03-5544-9630
取引態様:仲介
管理コード:331829
所属協会など:(公社)首都圏不動産公正取引協議会加盟、(公社)東京都宅地建物取引業協会会員
共有する
QRコード
お問い合わせ先
TR(株)ナビホーム赤坂店

千代田区の暮らしデータ

人口などの統計情報

世帯数 36963世帯
人口総数 68755人
転入者数 8663人
転入率(人口1000人当たり)
126.00人
転出者数 7904人
転出率(人口1000人当たり)
114.96人
土地平均価格
住宅地
3460000円/m2
商業地
5812393円/m2

結婚・育児の助成金

子育て関連の独自の取り組み 誕生準備手当(妊娠20週以降の妊婦に4.5万円)。
出産祝い なし
公立保育所数 6所(うち0歳児保育を実施している保育所:6所)
私立保育所数 18所(うち0歳児保育を実施している保育所:18所)
保育所入所待機児童数 0人
認定こども園数 1園 預かり保育実施園数 公立:8園 私立:1園
学校給食 【小学校】完全給食【中学校】完全給食
公立中学校の学校選択制 実施
子ども・学生等医療費助成<通院>対象年齢 18歳3月末まで 子ども・学生等医療費助成<入院>対象年齢 18歳3月末まで

千代田区の治安・ごみ収集情報

公共料金・インフラ

ガス料金(22m3使用した場合の月額) 東京瓦斯株式会社(東京地区等)3926円
水道料金(口径20mmで20m3の月額) 東京都水道局2816円
下水道料金(20m3を使用した場合の月額) 東京都下水道局2068円
下水道普及率 100.0%

安心・安全

建物火災出火件数 133件
人口10000人当たり
19.95件
刑法犯認知件数 2376件
人口1000人当たり
35.63件
ハザード・防災マップ あり

医療

一般病院総数 15ヶ所
一般診療所総数 555ヶ所
小児科医師数 44人
小児人口10000人当たり
47.85人
産婦人科医師数 33人
15~49歳女性人口1万人当たり
19.79人
介護保険料基準額(月額) 5600円

ごみ

家庭ごみ収集(可燃ごみ) 一部有料
備考
10kg以上有料。45リットル1袋200円。
家庭ごみの分別方式 5分別13種〔燃やすごみ 燃やさないごみ 資源(新聞、雑誌、段ボール、紙パック、その他の紙類、びん、かん、ペットボトル) プラスチック 蛍光管等(乾電池・スプレー缶)〕 拠点回収:資源(使用済小型家電 古布 廃食料油)
家庭ごみの戸別収集 一部実施(新規集積所・共同集積所を廃止、分散した際に戸別収集となる)
粗大ごみ収集 あり
備考
有料。事前申込制。
生ごみ処理機助成金制度 あり
上限金額
30000円
上限比率
66.7%
暮らしデータ提供元:生活ガイド.com
※行政機関により公表していない地域及びデータがございます。東京23区以外の政令指定都市は、市全体のデータとして表示しています。
※提供データには細心の注意を払っておりますが、調査後に変更がある場合があります。 最新の情報につきましては各市区役所までお問い合わせいただくか、自治体HPなどをご確認ください。
OCN×ドコモ光新規お申込みで合計最大137,280円相当おトク!特典の内訳・適用条件など詳細はこちら

千代田区内の各駅の住みやすさ

他のエリアから探す

千代田区の詳細地域から賃貸物件を探す

飯田橋一番町岩本町内神田鍛冶町神田淡路町神田和泉町神田岩本町神田小川町神田鍛冶町神田北乗物町神田紺屋町神田佐久間河岸神田佐久間町神田猿楽町神田神保町神田須田町神田駿河台神田多町神田司町神田富山町神田錦町神田西福田町神田練塀町神田東紺屋町神田東松下町神田美倉町神田三崎町紀尾井町九段北九段南麹町五番町三番町外神田永田町西神田二番町隼町東神田一ツ橋平河町富士見丸の内四番町六番町

近辺の市区から探す

川口市中央区港区新宿区文京区台東区墨田区江東区品川区目黒区世田谷区渋谷区中野区杉並区豊島区北区荒川区板橋区練馬区足立区葛飾区江戸川区

周辺の駅から探す

総武・中央緩行線
秋葉原御茶ノ水水道橋飯田橋市ケ谷四ツ谷信濃町千駄ケ谷代々木
東京メトロ半蔵門線
渋谷表参道青山一丁目永田町半蔵門九段下神保町大手町三越前
東京メトロ東西線
高田馬場早稲田神楽坂飯田橋九段下竹橋大手町日本橋茅場町

掲載情報の著作権は提供元企業等に帰属します。
Copyright:(C) 2025 Recruit Co., Ltd.
アプリで簡単 物件探し 大手不動産サイトの情報から一括検!プッシュ通知で物件を見逃さない
App Storeからダウンロード Google Playで手に入れよう QRコード