アプリで簡単 物件探し 通知 共有 アプリならではの機能を使ってみる
賃貸一戸建て

大森西戸建 大森町駅 2SLDK 賃貸(賃貸マンション・アパート)

情報提供元
アットホーム
大森西戸建
賃料 16万円  (管理費等:なし)
礼金・敷金 なし / 1ヶ月 保証金/敷引・償却 なし / -
交通
所在地 東京都大田区大森西4丁目周辺地図
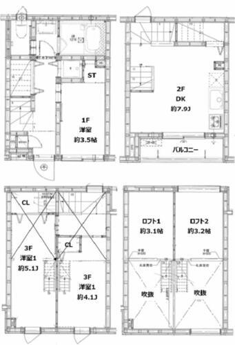
間取り 2SLDK 専有面積 73.64m2
築年月 2011年12月 築年数 築14年1ヶ月
お問い合わせ先
(株)アイディプロパティ ピタットハウス平和島店
お問い合わせ先
(株)アイディプロパティ ピタットハウス平和島店

詳細情報

賃料 16万円 管理費等 なし
敷金 1ヶ月 礼金 なし
保証金 なし 敷引・償却 -
更新料 - 契約期間 定期借家 2026年02月28日
カード決済 -
所在地 東京都大田区大森西4丁目周辺地図
交通
  • 京急本線 大森町駅 徒歩11分乗換案内
  • JR京浜東北・根岸線 蒲田駅 徒歩19分乗換案内
建物名 大森西戸建 
間取り 2SLDK(LDK13.5、他4.3、洋5.9、洋6) 築年月(築年数) 2011年12月(築14年1ヶ月)
専有面積 73.64㎡ 所在階/階数 3階建
建物構造 木造  方位 東 
現況 空  駐車場 有 無料
入居可能時期 相談 住宅保険 あり 2年 25500円
情報提供元 アットホーム[6988492893] 情報公開日
情報更新日 - 次回更新予定日 随時

設備など

2階以上 - 最上階 - 角部屋 -
駐車場(近隣含) エアコン付き バス・トイレ別
室内洗濯機置き場 追焚機能 オートロック付き -
モニタ付インターホン フローリング バルコニー
ガスコンロ可 浴室乾燥機 24時間セキュリティ -
宅配ボックス - ペット相談可 - 二人入居可 -
設備 エアコン・給湯・バルコニー・バス・トイレ別・トイレ・収納スペース・洗濯機置場・室内洗濯機置き場・洗面所・シャワー・追焚機能・都市ガス・洗面台・フローリング・浴室乾燥機・照明器具・ガスコンロ可・シャンプードレッサ・温水洗浄便座・システムキッチン・モニタ付インターホン・ルーフバルコニー・食器洗浄乾燥機・オートバス・洗面所独立・3口以上コンロ 
リフォーム履歴 -
リノベーション履歴 -
備考 20211201052026年02月28日迄/6ヶ月未満で解約した場合、賃料の0.5ヶ月分を申受けます。・賃貸保証等:加入要(保証会社 要:初回 賃料総額100%+月額 賃料総額2%(最低1,000円))・他交通手段:JR京浜東北・根岸線大森駅バス15分大森西四丁目停歩2分/リロサポ加入必須 1500円/駐車場登録料 1台(利用時のみ) 11000円/除菌施工料(契約時のみ) 19800円 
特記事項

省エネ性能

エネルギー消費性能 -
断熱性能 -
目安光熱費 -

東京都大田区大森西4丁目 周辺地図情報

地図
※地図上に表示される物件の位置は付近住所に所在することを表すものであり、実際の物件所在地とは異なる場合がございます。
   正確な物件所在地は、取扱い不動産会社にお問い合わせください。
お問い合わせ先
(株)アイディプロパティ ピタットハウス平和島店

不動産会社情報

お問い合わせ先 商号:(株)アイディプロパティ ピタットハウス平和島店
免許番号:東京都知事免許(3)第96845号
所在地:大田区大森北6丁目30-1プレールアイディ大森Ⅱ 1階
TEL:03-5753-7077
取引態様:仲介
管理コード:
所属協会など:(公社)全日本不動産協会会員、(公社)首都圏不動産公正取引協議会加盟
共有する
QRコード
お問い合わせ先
(株)アイディプロパティ ピタットハウス平和島店

    大田区の暮らしデータ

    人口などの統計情報

    世帯数 399628世帯
    人口総数 733634人
    転入者数 55358人
    転入率(人口1000人当たり)
    75.46人
    転出者数 47162人
    転出率(人口1000人当たり)
    64.29人
    土地平均価格
    住宅地
    524720円/m2
    商業地
    895412円/m2

    結婚・育児の助成金

    子育て関連の独自の取り組み 区内保育施設の人材の確保・定着を支援し、また保育の質の向上を目的とする研修実施の他、若年層保育士の定着促進と中堅・ベテラン層保育士の同一施設における継続勤務を奨励することで保育士の質の向上を図る保育士応援手当を交付している。
    出産祝い あり
    公立保育所数 37所(うち0歳児保育を実施している保育所:26所)
    私立保育所数 155所(うち0歳児保育を実施している保育所:104所)
    保育所入所待機児童数 0人
    認定こども園数 0園 預かり保育実施園数 公立:0園 私立:45園
    学校給食 【小学校】完全給食【中学校】完全給食
    公立中学校の学校選択制 未実施
    子ども・学生等医療費助成<通院>対象年齢 18歳3月末まで 子ども・学生等医療費助成<入院>対象年齢 18歳3月末まで

    大田区の治安・ごみ収集情報

    公共料金・インフラ

    ガス料金(22m3使用した場合の月額) 東京瓦斯株式会社(東京地区等)3926円
    水道料金(口径20mmで20m3の月額) 東京都水道局2816円
    下水道料金(20m3を使用した場合の月額) 東京都下水道局2068円
    下水道普及率 100.0%

    安心・安全

    建物火災出火件数 118件
    人口10000人当たり
    1.58件
    刑法犯認知件数 3851件
    人口1000人当たり
    5.15件
    ハザード・防災マップ あり

    医療

    一般病院総数 24ヶ所
    一般診療所総数 613ヶ所
    小児科医師数 149人
    小児人口10000人当たり
    19.74人
    産婦人科医師数 66人
    15~49歳女性人口1万人当たり
    3.96人
    介護保険料基準額(月額) 6600円

    ごみ

    家庭ごみ収集(可燃ごみ) 無料
    備考
    1日平均10kgを超える量の家庭廃棄物を排出する場合、超える量1kgにつき46円。臨時に排出する場合、1kgにつき46円。
    家庭ごみの分別方式 3分別11種〔可燃ごみ 不燃ごみ 資源9品目(新聞・チラシ、雑誌・雑がみ、紙パック、段ボール、飲食用びん、飲食用かん、食品トレイ、ペットボトル、発泡スチロール)〕 拠点回収:使用済小型家電10品目(携帯電話 携帯音楽プレーヤー 携帯ゲーム機器 デジタルカメラ ポータブルビデオカメラ ポータブルカーナビ 電子辞書 卓上計算機 ACアダプター USBメモリ) 廃食用油 古着
    家庭ごみの戸別収集 一部実施(次のいずれかに該当する者のみで構成される世帯で、自ら集積所までごみを持ち出すことが困難であり、また他の者の協力を得ることができない世帯。[1]要介護2以上に認定されていること。[2]身体障害者障害程度1級及び2級に認定されていること。[3]その他、区長が認める者)
    粗大ごみ収集 あり
    備考
    有料。ただし、区が指定する受入施設に自ら持ち込む場合は、手数料は5割以内の減額又は免除。事前申込制。
    生ごみ処理機助成金制度 なし
    上限金額
    -
    上限比率
    -
    暮らしデータ提供元:生活ガイド.com
    ※行政機関により公表していない地域及びデータがございます。東京23区以外の政令指定都市は、市全体のデータとして表示しています。
    ※提供データには細心の注意を払っておりますが、調査後に変更がある場合があります。 最新の情報につきましては各市区役所までお問い合わせいただくか、自治体HPなどをご確認ください。
    OCN×ドコモ光新規お申込みで合計最大137,280円相当おトク!特典の内訳・適用条件など詳細はこちら

    他のエリアから探す

    大田区の詳細地域から賃貸物件を探す

    池上石川町鵜の木大森北大森中大森西大森東大森本町大森南蒲田蒲田本町上池台北糀谷北千束北馬込北嶺町久が原山王下丸子新蒲田多摩川千鳥中央田園調布田園調布本町田園調布南仲池上中馬込仲六郷西蒲田西糀谷西馬込西嶺町西六郷萩中羽田羽田旭町東蒲田東糀谷東馬込東嶺町東矢口東雪谷東六郷本羽田南蒲田南久が原南千束南馬込南雪谷南六郷矢口雪谷大塚町

    近辺の市区から探す

    港区品川区目黒区世田谷区渋谷区横浜市鶴見区横浜市神奈川区横浜市港北区川崎市川崎区川崎市幸区川崎市中原区川崎市高津区川崎市宮前区

    周辺の駅から探す

    京浜東北・根岸線
    高輪ゲートウェイ品川大井町大森蒲田川崎鶴見新子安東神奈川
    京浜急行電鉄本線
    鮫洲立会川大森海岸平和島大森町梅屋敷京急蒲田雑色六郷土手

    東京都大田区で他のジャンルから探す


    掲載情報の著作権は提供元企業等に帰属します。
    Copyright:(C) 2025 At Home Co.,Ltd
    アプリで簡単 物件探し 大手不動産サイトの情報から一括検!プッシュ通知で物件を見逃さない
    App Storeからダウンロード Google Playで手に入れよう QRコード