アプリで簡単 物件探し 通知 共有 アプリならではの機能を使ってみる
中古マンション

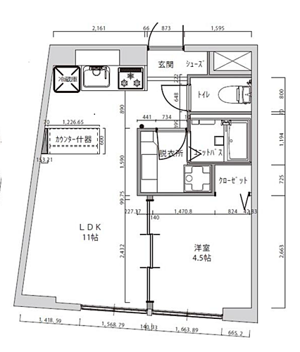
ヴィラフローラ306 3階 1LDK

情報提供元
LIFULL HOME'S
ヴィラフローラ306
価格 2200万円  (管理費等:6,600円)
修繕積立金 6,700円
交通
所在地 東京都中野区中央2丁目7-4周辺地図
間取り 1LDK 専有面積 33.37m2(内法)
所在階/階数 3階/9階建 方位 -
築年月 1971年3月 築年数 築54年8ヶ月
おすすめポイント
表面利回り6%以上
物件を見たい、物件や住環境の詳しい情報やローン相談など、
お問い合わせ先
株式会社ゼン・ランド

詳細情報

価格 2200万円 管理費等 6,600円
駐車場   修繕積立金 6,700円
所在地 東京都中野区中央2丁目7-4周辺地図
交通
  • 都営地下鉄大江戸線 中野坂上駅 徒歩3分乗換案内
  • 東京メトロ丸ノ内線 中野坂上駅 徒歩5分乗換案内
物件名 ヴィラフローラ306
築年月(築年数) 1971年3月(築54年8ヶ月) 間取り 1LDK
総戸数 54戸 専有面積 33.37m2(内法)
所在階/階数 3階/9階建 バルコニー面積
方位 建物構造 SRC
管理形態 全部委託 管理員の勤務形態 日勤
維持費等 土地権利 所有権
用途地域 1種中高 借地期間・地代
現況 賃貸中 引渡可能年月 相談
情報提供元 LIFULL HOME'S [1504170000009] 情報公開日
情報更新日 次回更新予定日 2025年11月5日

設備など

ペット相談可 - 即入居可 - 南向き -
角部屋 - 駐車場空き有り - トランクルーム -
オートロック - 宅配ボックス - 浴室乾燥機 -
床暖房 - ウォークインクローゼット - 管理人常駐 -
最上階 - 2階以上 タワーマンション -
設備 バス・トイレ別・コンロ2口以上・給湯・エレベーター・フローリング・モニタ付インターホン・クローゼット
リフォーム履歴 -
リノベーション履歴 -
備考 【物件周辺の生活情報】
・学校
私立宝仙学園小学校(400m)、私立宝仙学園中学校(310m)
・買い物
スーパー(410m)、コンビニ(210m)、ドラッグストア(380m)
・その他施設
総合病院(550m)、銀行(350m)
表面利回り:約6.65%・月額:122,000円にて賃貸中(年間:1,464,000円)・管理費:6,600/月、修繕積立金:6,700円/月、駐輪場代:200円/月、通信費:2,000円、倉庫管理費:137円/月、倉庫修繕積立金:137円/月計:15,774円/月ペット禁止、民泊禁止
特記事項

省エネ性能

エネルギー消費性能 -
断熱性能 -
目安光熱費 -

東京都中野区中央2丁目7-4 周辺地図情報

地図
※地図上に表示される物件の位置は付近住所に所在することを表すものであり、実際の物件所在地とは異なる場合がございます。
   正確な物件所在地は、取扱い不動産会社にお問い合わせください。
物件を見たい、物件や住環境の詳しい情報やローン相談など、
お問い合わせ先
株式会社ゼン・ランド

不動産会社情報

お問い合わせ先 商号:株式会社ゼン・ランド
免許番号:東京都知事(03)第094776号
所在地:東京都渋谷区道玄坂1丁目17-11 ミナミビル9階
取引態様:一般媒介
管理コード:9
所属協会など:所属団体未加入
共有する
QRコード

お電話でのお問い合わせ

電話をかける(携帯・PHS可)
お問い合わせダイヤル
通話無料0037-634-25761
営業時間 10:00~19:00 (定休日:土日祝日)
音声案内に従って数字を入力
お問い合わせ番号
94912-2978
不動産会社につながります
不動産会社のスタッフと
直接電話で話せます。
※不動産会社がお電話に出られなかった場合、株式会社LIFULLは電話会社が提供するサービスを介してお客様の発信者番号を受領後、折り返し専用の電話番号を発番してお問合せの不動産会社に通知します(お客様の発信者番号がお問合せの不動産会社に通知されることはございません)
※光IP電話、及びIP電話からはご利用になれません
※0037で始まる電話番号に携帯電話からお問合せいただいた方には、ショートメッセージ(SMS)によるお問合せ完了通知をお届けする場合があります
物件を見たい、物件や住環境の詳しい情報やローン相談など、
お問い合わせ先
株式会社ゼン・ランド

中野区の暮らしデータ

人口などの統計情報

世帯数 207944世帯
人口総数 337377人
転入者数 36387人
転入率(人口1000人当たり)
107.85人
転出者数 31624人
転出率(人口1000人当たり)
93.73人
土地平均価格
住宅地
665091円/m2
商業地
1828545円/m2

結婚・育児の助成金

子育て関連の独自の取り組み (1)妊娠・出産・子育てトータルケア事業。妊産婦との面接や出産・育児に関する個別支援プランの提供等を実施。(2)ブックスタート事業。絵本を開く楽しい「体験」と「絵本」をセットで提供。トートバックに絵本2冊とリーフレットを入れて配布。(3)実質ひとり親家庭への子育て支援給付事業の実施。離婚調停中で離婚成立前から実質的にひとり親家庭となった家庭に対する金銭給付の実施。(4)リトルベビーハンドブックの作成。2,500グラム以下の低出生体重児等の子どもを育てる家庭にハンドブックを配布。(5)ひとり親家庭住宅支援。区内在住のひとり親または実質ひとり親が区内転居する場合の初期費用等を補助。(6)区立小・中学校の学校給食費の無償化及び区立学校在籍以外の学齢期の児童生徒への給食費相当の支援。
出産祝い なし
公立保育所数 10所(うち0歳児保育を実施している保育所:8所)
私立保育所数 83所(うち0歳児保育を実施している保育所:65所)
保育所入所待機児童数 0人
認定こども園数 5園 預かり保育実施園数 公立:2園 私立:18園
学校給食 【小学校】完全給食【中学校】完全給食
公立中学校の学校選択制 未実施
子ども・学生等医療費助成<通院>対象年齢 18歳3月末まで 子ども・学生等医療費助成<入院>対象年齢 18歳3月末まで

中野区の治安・ごみ収集情報

公共料金・インフラ

ガス料金(22m3使用した場合の月額) 東京瓦斯株式会社(東京地区等)3926円
水道料金(口径20mmで20m3の月額) 東京都水道局2816円
下水道料金(20m3を使用した場合の月額) 東京都下水道局2068円
下水道普及率 100.0%

安心・安全

建物火災出火件数 57件
人口10000人当たり
1.65件
刑法犯認知件数 1976件
人口1000人当たり
5.73件
ハザード・防災マップ あり

医療

一般病院総数 8ヶ所
一般診療所総数 325ヶ所
小児科医師数 59人
小児人口10000人当たり
19.54人
産婦人科医師数 17人
15~49歳女性人口1万人当たり
2.06人
介護保険料基準額(月額) 6274円

ごみ

家庭ごみ収集(可燃ごみ) 無料
備考
家庭から出るごみも、引越しなどで一度に多量(45リットルのごみ袋で5袋以上)に出す場合は有料。45リットル300円、70リットル500円、90リットル600円。
家庭ごみの分別方式 3分別6種〔燃やすごみ 陶器・ガラス・金属ごみ 資源(びん、缶、ペットボトル、プラスチック製容器包装と製品プラスチック)〕 拠点回収:紙パック 古布 乾電池 小型充電式電池 廃蛍光管 廃食用油 ※新聞 雑誌 ダンボール等の古紙及び古着 古布は町会・自治会等が実施する「集団回収」で回収
家庭ごみの戸別収集 一部実施(自らごみを集積所まで持ち出すことが困難で、訪問介護や親族、ボランティア等の協力が得られない、身体障がい者、要支援者や要介護者だけで構成される世帯に訪問収集を実施)
粗大ごみ収集 あり
備考
有料。事前申込制。
生ごみ処理機助成金制度 なし
上限金額
-
上限比率
-

中野区の住まいの給付金

中古購入

利子補給制度 なし
補助/助成金制度 なし

増築・改築・改修

利子補給制度 なし
補助/助成金制度 なし
暮らしデータ提供元:生活ガイド.com
※行政機関により公表していない地域及びデータがございます。東京23区以外の政令指定都市は、市全体のデータとして表示しています。
※提供データには細心の注意を払っておりますが、調査後に変更がある場合があります。 最新の情報につきましては各市区役所までお問い合わせいただくか、自治体HPなどをご確認ください。

この物件を見た人はこんな物件も見ています

OCN×ドコモ光新規お申込みで合計最大137,280円相当おトク!特典の内訳・適用条件など詳細はこちら

中野区内の各駅の住みやすさ

住宅ローンの返済額一覧

物件価格 2200万円に対して、年率 で、頭金 の場合
↓ボーナス 35年間 30年間 25年間 20年間 15年間 10年間
0万円 44,129円/月 50,862円/月 60,293円/月 74,448円/月 98,050円/月 145,267円/月
5万円 35,044円/月 41,886円/月 51,427円/月 65,690円/月 89,398円/月 136,722円/月
10万円 25,958円/月 32,910円/月 42,560円/月 56,931円/月 80,747円/月 128,177円/月
15万円 ローン不可 ローン不可 33,693円/月 48,172円/月 72,095円/月 119,631円/月
20万円 ローン不可 ローン不可 ローン不可 39,414円/月 63,444円/月 111,086円/月
25万円 ローン不可 ローン不可 ローン不可 ローン不可 54,792円/月 102,541円/月
30万円 ローン不可 ローン不可 ローン不可 ローン不可 ローン不可 93,996円/月
支払い利息合計 1,541,390円~ 1,316,320円~ 1,095,750円~ 876,000円~ 656,680円~ 438,260円~
※元利均等返済方式で試算しています。 「円」の単位以下の端数金額は「切り捨て」として計算しております。
※金利は、固定金利として計算しております。
※上記の住宅ローン返済額一覧は、あくまで試算であり、将来の金利動向により、実際のご返済額とは異なります。
※ボーナス支払総額が総支払額の50%を超えている場合、上記の表では「ローン不可」となります。
※住宅ローン返済額一覧の数値は、住宅ローンのお申し込みやご融資をお約束するものではございません。
物件を見たい、物件や住環境の詳しい情報やローン相談など、
お問い合わせ先
株式会社ゼン・ランド

掲載情報の著作権は提供元企業等に帰属します。
Copyright:(C) 2025 LIFULL Co.,Ltd.
アプリで簡単 物件探し 大手不動産サイトの情報から一括検!プッシュ通知で物件を見逃さない
App Storeからダウンロード Google Playで手に入れよう QRコード