アプリで簡単 物件探し 通知 共有 アプリならではの機能を使ってみる
中古マンション

アーリアレジデンス南町田 4階 4LDK

情報提供元
SUUMO
アーリアレジデンス南町田 【アーリアレジデンス南町田】<BR>東急田園都市線「 南町田グランベリーパーク駅」まで徒歩14分の立地。緑豊かで閑静な住宅街に位置しています。
価格 5098万円  (管理費等:1万4900円/月(委託(通勤)))
修繕積立金 11,400円
交通
所在地 東京都町田市南町田4周辺地図
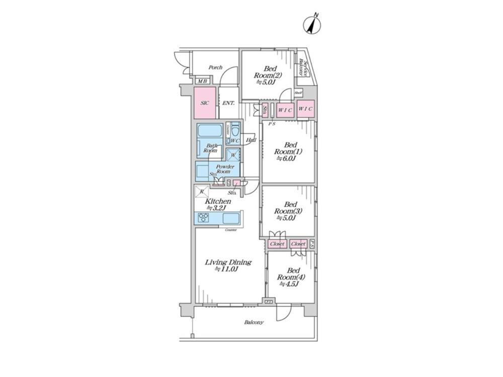
間取り 4LDK 専有面積 78.47m2(壁芯)
所在階/階数 4階/5階建 方位 南東
築年月 2016年8月 築年数 築9年3ヶ月
おすすめポイント
■□生涯の「安心」をお届け。東宝ハウスにお任せください□■~アーリアレジデンス南町田の魅力~§東急田園都市線「南町田グランベリーパーク」駅まで徒歩14分§緑豊かで閑静な住宅街に位置§LDと隣接する約5帖の洋室と約4.5帖の洋室は一体利用可能§ご家族との会話が弾む対面式のキッチン§家事をサポートする、食器洗乾燥機や浴室乾燥機付き§シューズインクローク、Wウォークインクローゼットなど、豊富な収納付き§宅配ボックス有§TVモニター付きインターホン、オートロックが搭載されており、セキュリティ充実§徒歩10分圏内にコンビニ、スーパー、ドラッグストア、保育園、幼稚園、小学校などが揃います。
ペット相談可・日当り良好・閑静な住宅街・角部屋・管理人日勤
お問い合わせ先
東宝ハウスライフソリューションズグループ(株)東宝ハウス国分寺営業3課
物件を見たい、物件や住環境の詳しい情報やローン相談など、
お問い合わせ先
東宝ハウスライフソリューションズグループ(株)東宝ハウス国分寺営業3課

詳細情報

価格 5098万円 管理費等 1万4900円/月(委託(通勤))
駐車場 敷地内(6500円~7500円/月) 修繕積立金 11,400円
所在地 東京都町田市南町田4周辺地図
交通
  • 東急田園都市線 南町田グランベリーP駅 徒歩14分乗換案内
  • 東急田園都市線 つきみ野駅 徒歩18分乗換案内
  • 東急田園都市線 すずかけ台駅 徒歩28分乗換案内
物件名 アーリアレジデンス南町田
築年月(築年数) 2016年8月(築9年3ヶ月) 間取り 4LDK
総戸数 55戸 専有面積 78.47m2(壁芯)
所在階/階数 4階/5階建 バルコニー面積 11.52m2
方位 南東 建物構造 RC
管理形態 委託管理
維持費等 土地権利 所有権
用途地域 準工業 借地期間・地代
現況 引渡可能年月 相談
情報提供元 SUUMO [030Z78604058] 情報公開日
情報更新日 次回更新予定日 随時

設備など

ペット相談可 即入居可 - 南向き -
角部屋 駐車場空き有り トランクルーム -
オートロック - 宅配ボックス - 浴室乾燥機
床暖房 ウォークインクローゼット 管理人常駐 -
最上階 - 2階以上 タワーマンション -
設備 バルコニー・トイレ・収納スペース・洗面所・エレベーター・管理人日勤・浴室乾燥機・ウォークインクローゼット・シャンプードレッサ・温水洗浄便座・システムキッチン・モニタ付インターホン・風呂・対面K・床暖房・2面バルコニー・衣類乾燥機・食器洗浄乾燥機
リフォーム履歴 2025年10月完了予定
 水回り設備交換:キッチン・浴室・トイレ
 内装リフォーム:壁・全室
 その他:ハウスクリーニング
※年月は一番古いリフォーム箇所を表します
リノベーション履歴 -
備考 <物件名>アーリアレジデンス南町田/<駐車場>敷地内/委託(日勤)/<土地権利>所有権の共有/<間取り>4LDK/<リフォーム>●リフォーム:2025年10月完了予定(水回り設備交換:キッチン・浴室・トイレ、内装リフォーム:壁・全室、その他:ハウスクリーニング)※年月は一番古いリフォーム箇所を表します/<特徴>◇陽当り・通風良好な南東向き4LDK!開放感溢れる角住戸♪全居室収納付き◇、スーパー 徒歩10分以内・避暑地・内装リフォーム・システムキッチン・浴室乾燥機
販売戸数:1戸/管理費等帯:14900円/修繕積立金帯:11400円
法令等制限:・バイク置き場:2000円/月額 ・駐輪場:200円~300円/月額 ・ポーチ面積:4.31㎡
特記事項 ペット相談可・日当り良好・閑静な住宅街・角部屋・管理人日勤

省エネ性能

エネルギー消費性能 -
断熱性能 -
目安光熱費 -

東京都町田市南町田4 周辺地図情報

地図
※地図上に表示される物件の位置は付近住所に所在することを表すものであり、実際の物件所在地とは異なる場合がございます。
   正確な物件所在地は、取扱い不動産会社にお問い合わせください。
物件を見たい、物件や住環境の詳しい情報やローン相談など、
お問い合わせ先
東宝ハウスライフソリューションズグループ(株)東宝ハウス国分寺営業3課

不動産会社情報

お問い合わせ先 商号:東宝ハウスライフソリューションズグループ(株)東宝ハウス国分寺営業3課
免許番号:東京都知事(11)第042787号
所在地:東京都国分寺市南町3-23-11
TEL:0120-153533
取引態様:媒介
管理コード:大泉
共有する
QRコード
物件を見たい、物件や住環境の詳しい情報やローン相談など、
お問い合わせ先
東宝ハウスライフソリューションズグループ(株)東宝ハウス国分寺営業3課

町田市の暮らしデータ

人口などの統計情報

世帯数 191703世帯
人口総数 430380人
転入者数 18835人
転入率(人口1000人当たり)
43.76人
転出者数 16447人
転出率(人口1000人当たり)
38.22人
土地平均価格
住宅地
153542円/m2
商業地
593091円/m2

結婚・育児の助成金

子育て関連の独自の取り組み (1)子育て家庭が気軽に相談等を行える場所として、身近な保育園を利用登録する「マイ保育園事業」を実施。(2)認可外幼児教育施設に通う児童(4・5歳児)の保護者に対し、経済的負担軽減のために補助金を交付。(3)市内の待機児童解消と利用者の選択肢拡充のため、2017年度から駅近くに送迎保育ステーションを開設。(4)2021年度から学童保育クラブで高学年児童の受け入れを開始。(5)保育園や幼稚園等の余裕スペースを活用して、小学生を一時的に預かる「学童一時預かり事業」を実施。(6)ひとり親家庭への宅食事業では、ふるさと納税やガバメントクラウドファンディングによる寄附を活用。
出産祝い あり
公立保育所数 5所(うち0歳児保育を実施している保育所:5所)
私立保育所数 71所(うち0歳児保育を実施している保育所:59所)
保育所入所待機児童数 28人
認定こども園数 14園 預かり保育実施園数 公立:- 私立:24園
学校給食 【小学校】完全給食【中学校】完全給食(1校※小中一貫校) 家庭弁当等との選択制/デリバリー形式[運搬:ランチボックス、内容:完全給食](19校) 2025年度までに、中学校給食センター方式により、デリバリー形式[運搬:食缶、内容:完全給食]となります。
公立中学校の学校選択制 実施(自由選択制[受入枠の範囲で選択可能/受入枠のない場合は希望不可])
子ども・学生等医療費助成<通院>対象年齢 18歳3月末まで 子ども・学生等医療費助成<入院>対象年齢 18歳3月末まで

町田市の治安・ごみ収集情報

公共料金・インフラ

ガス料金(22m3使用した場合の月額) 東京瓦斯株式会社(東京地区等)3926円
水道料金(口径20mmで20m3の月額) 東京都水道局2816円
下水道料金(20m3を使用した場合の月額) 町田市2068円
下水道普及率 99.1%

安心・安全

建物火災出火件数 75件
人口10000人当たり
1.74件
刑法犯認知件数 2396件
人口1000人当たり
5.56件
ハザード・防災マップ あり

医療

一般病院総数 16ヶ所
一般診療所総数 341ヶ所
小児科医師数 55人
小児人口10000人当たり
11.11人
産婦人科医師数 21人
15~49歳女性人口1万人当たり
2.54人
介護保険料基準額(月額) 6040円

ごみ

家庭ごみ収集(可燃ごみ) 有料
備考
指定ごみ袋有料。おむつ専用袋・ボランティア袋は無料。
家庭ごみの分別方式 4分別17種〔可燃ごみ 不燃ごみ 有害ごみ(乾電池、蛍光管、水銀体温計、ライター) 資源(剪定枝、ビン、カン、ペットボトル、古紙[新聞、雑誌、ダンボール、雑がみ、シュレッダーにかけた紙、紙パック]、古着)〕【JR横浜線以南地域】5分別18種〔上記+容器包装プラスチック〕ただし、拠点回収は除く。
家庭ごみの戸別収集 実施(ただし集合住宅は集積所収集)
粗大ごみ収集 あり
備考
有料。事前申込制。
生ごみ処理機助成金制度 あり
上限金額
20000円
上限比率
50.0%

町田市の住まいの給付金

中古購入

利子補給制度 なし
補助/助成金制度 なし

増築・改築・改修

利子補給制度 なし
補助/助成金制度 あり
上限金額
(1)10万円(2)130万円
備考
(1)【町田市住宅バリアフリー化改修助成制度】市内業者の行うバリアフリー改修工事の経費の4/5、上限10万円。(2)【木造住宅耐震改修事業助成制度】1981年5月31日以前に着工した住宅は全ての助成金が対象。1981年6月1日から2000年5月31日までに着工した住宅は、精密耐震診断の助成金が対象。助成金は、精密耐震診断は経費の1/2、上限10万円。耐震設計改修事業は経費の1/2、120万円が上限。耐震設計は経費の1/2、上限10万円。耐震改修は経費の1/2、50万円が上限。その他要件あり。
暮らしデータ提供元:生活ガイド.com
※行政機関により公表していない地域及びデータがございます。東京23区以外の政令指定都市は、市全体のデータとして表示しています。
※提供データには細心の注意を払っておりますが、調査後に変更がある場合があります。 最新の情報につきましては各市区役所までお問い合わせいただくか、自治体HPなどをご確認ください。

この物件を見た人はこんな物件も見ています

OCN×ドコモ光新規お申込みで合計最大137,280円相当おトク!特典の内訳・適用条件など詳細はこちら

町田市内の各駅の住みやすさ

住宅ローンの返済額一覧

物件価格 5098万円に対して、年率 で、頭金 の場合
↓ボーナス 35年間 30年間 25年間 20年間 15年間 10年間
0万円 119,357円/月 137,567円/月 163,077円/月 201,362円/月 265,196円/月 392,905円/月
5万円 110,271円/月 128,591円/月 154,210円/月 192,603円/月 256,545円/月 384,360円/月
10万円 101,186円/月 119,615円/月 145,343円/月 183,844円/月 247,893円/月 375,815円/月
15万円 92,100円/月 110,640円/月 136,476円/月 175,085円/月 239,242円/月 367,270円/月
20万円 83,015円/月 101,664円/月 127,610円/月 166,327円/月 230,590円/月 358,724円/月
25万円 73,929円/月 92,688円/月 118,743円/月 157,568円/月 221,939円/月 350,179円/月
30万円 64,844円/月 83,713円/月 109,876円/月 148,809円/月 213,287円/月 341,634円/月
支払い利息合計 4,171,710円~ 3,562,840円~ 2,958,500円~ 2,359,120円~ 1,764,610円~ 1,174,820円~
※元利均等返済方式で試算しています。 「円」の単位以下の端数金額は「切り捨て」として計算しております。
※金利は、固定金利として計算しております。
※上記の住宅ローン返済額一覧は、あくまで試算であり、将来の金利動向により、実際のご返済額とは異なります。
※ボーナス支払総額が総支払額の50%を超えている場合、上記の表では「ローン不可」となります。
※住宅ローン返済額一覧の数値は、住宅ローンのお申し込みやご融資をお約束するものではございません。
物件を見たい、物件や住環境の詳しい情報やローン相談など、
お問い合わせ先
東宝ハウスライフソリューションズグループ(株)東宝ハウス国分寺営業3課

掲載情報の著作権は提供元企業等に帰属します。
Copyright:(C) 2025 Recruit Co., Ltd.
アプリで簡単 物件探し 大手不動産サイトの情報から一括検!プッシュ通知で物件を見逃さない
App Storeからダウンロード Google Playで手に入れよう QRコード